architecturephoto®

  • 特集記事
  • 注目情報
  • タグ
  • 建築
  • アート
  • カルチャー
  • デザイン
  • ファッション
  • 動画
  • 展覧会
  • コンペ
  • 書籍
  • 建築求人
  • すべてのタグ

建築求人情報

Loading...
2025.10.03Fri
2025.10.02Thu
2025.10.04Sat
studioSHUWARIによる、富山市の住宅「Work / Life / Archive」。“クリエイティブな仕事”をする施主夫婦の為に計画。大量の資料などの整理と保管という与件に対し、自身でカスタムできる壁面収納を備えた建築を考案。全体をスキップフロアとして其々の空間を緩やかに分節する
photo©ToLoLo studio

SHARE studioSHUWARIによる、富山市の住宅「Work / Life / Archive」。“クリエイティブな仕事”をする施主夫婦の為に計画。大量の資料などの整理と保管という与件に対し、自身でカスタムできる壁面収納を備えた建築を考案。全体をスキップフロアとして其々の空間を緩やかに分節する

architecture|feature
studioSHUWARI大野創建種昻哲建材(外装・壁)建材(外装・屋根)建材(内装・床)建材(内装・壁)建材(内装・天井)建材(内装・キッチン)住宅ToLoLo studio図面あり富山ワークショップ
studioSHUWARIによる、富山市の住宅「Work / Life / Archive」。“クリエイティブな仕事”をする施主夫婦の為に計画。大量の資料などの整理と保管という与件に対し、自身でカスタムできる壁面収納を備えた建築を考案。全体をスキップフロアとして其々の空間を緩やかに分節する外観、西側より見る。夜景 photo©ToLoLo studio
studioSHUWARIによる、富山市の住宅「Work / Life / Archive」。“クリエイティブな仕事”をする施主夫婦の為に計画。大量の資料などの整理と保管という与件に対し、自身でカスタムできる壁面収納を備えた建築を考案。全体をスキップフロアとして其々の空間を緩やかに分節する1階、書斎、エントランス側を見る。 photo©ToLoLo studio
studioSHUWARIによる、富山市の住宅「Work / Life / Archive」。“クリエイティブな仕事”をする施主夫婦の為に計画。大量の資料などの整理と保管という与件に対し、自身でカスタムできる壁面収納を備えた建築を考案。全体をスキップフロアとして其々の空間を緩やかに分節する2階、リビングからキッチンとダイニングを見る。 photo©ToLoLo studio

studioSHUWARIが設計した、富山市の住宅「Work / Life / Archive」です。
“クリエイティブな仕事”をする施主夫婦の為に計画されました。建築家は、大量の資料などの整理と保管という与件に対し、自身でカスタムできる壁面収納を備えた建築を考案しました。また、全体をスキップフロアとして其々の空間を緩やかに分節しています。

住宅街にある細長い敷地に建つ、クリエイティブな仕事をされているご夫婦のための書斎スペースを持つ住居です。

建築家によるテキストより

細長い形状の敷地は二項道路に面しており、セットバックや斜線制限といった法的条件の中で、限られた空間をいかに豊かに活用できるかを丁寧に考えました。

ご夫婦の職業柄、大量のサンプルや資料を整理・保管する必要があるため、床下収納や自らカスタマイズできる収納スペースを壁面に設け、自らの使い方に応じて空間を育てていける計画とし、空間に対する柔軟性と愛着が生まれるよう配慮しています。

建築家によるテキストより

建物はスキップフロア構成とし、書斎空間と生活空間を緩やかに分節。
ハイサイドライトから差し込む自然光が仕事場をやわらかく照らし、明るく開放感のある環境を生み出しています。 生活空間では、外部からの視線に配慮しながら、窓やバルコニーの位置を丁寧に計画することで視線の抜けを生み出し、限られたスペースの中でも開放感を感じられる空間としています。

「働くこと」「暮らすこと」「ものとどう関わるか」を日々見つめ直しながら、住まいを通じて思考と創造が循環するような、そんな空間を目指しています。

建築家によるテキストより

以下の写真はクリックで拡大します

studioSHUWARIによる、富山市の住宅「Work / Life / Archive」。“クリエイティブな仕事”をする施主夫婦の為に計画。大量の資料などの整理と保管という与件に対し、自身でカスタムできる壁面収納を備えた建築を考案。全体をスキップフロアとして其々の空間を緩やかに分節する外観、西側より見る。夜景 photo©ToLoLo studio
studioSHUWARIによる、富山市の住宅「Work / Life / Archive」。“クリエイティブな仕事”をする施主夫婦の為に計画。大量の資料などの整理と保管という与件に対し、自身でカスタムできる壁面収納を備えた建築を考案。全体をスキップフロアとして其々の空間を緩やかに分節する外観、南側より見る。夜景 photo©ToLoLo studio
studioSHUWARIによる、富山市の住宅「Work / Life / Archive」。“クリエイティブな仕事”をする施主夫婦の為に計画。大量の資料などの整理と保管という与件に対し、自身でカスタムできる壁面収納を備えた建築を考案。全体をスキップフロアとして其々の空間を緩やかに分節する外観、南西側より見る。夜景 photo©ToLoLo studio
studioSHUWARIによる、富山市の住宅「Work / Life / Archive」。“クリエイティブな仕事”をする施主夫婦の為に計画。大量の資料などの整理と保管という与件に対し、自身でカスタムできる壁面収納を備えた建築を考案。全体をスキップフロアとして其々の空間を緩やかに分節する外観、南西側より見る。 photo©ToLoLo studio
studioSHUWARIによる、富山市の住宅「Work / Life / Archive」。“クリエイティブな仕事”をする施主夫婦の為に計画。大量の資料などの整理と保管という与件に対し、自身でカスタムできる壁面収納を備えた建築を考案。全体をスキップフロアとして其々の空間を緩やかに分節する外観、南側より見る。 photo©ToLoLo studio
studioSHUWARIによる、富山市の住宅「Work / Life / Archive」。“クリエイティブな仕事”をする施主夫婦の為に計画。大量の資料などの整理と保管という与件に対し、自身でカスタムできる壁面収納を備えた建築を考案。全体をスキップフロアとして其々の空間を緩やかに分節する外観、カーポートよりエントランスを見る。 photo©ToLoLo studio
studioSHUWARIによる、富山市の住宅「Work / Life / Archive」。“クリエイティブな仕事”をする施主夫婦の為に計画。大量の資料などの整理と保管という与件に対し、自身でカスタムできる壁面収納を備えた建築を考案。全体をスキップフロアとして其々の空間を緩やかに分節する1階、エントランスと書斎 photo©ToLoLo studio
studioSHUWARIによる、富山市の住宅「Work / Life / Archive」。“クリエイティブな仕事”をする施主夫婦の為に計画。大量の資料などの整理と保管という与件に対し、自身でカスタムできる壁面収納を備えた建築を考案。全体をスキップフロアとして其々の空間を緩やかに分節する1階、エントランス側から書斎を見る。 photo©ToLoLo studio
studioSHUWARIによる、富山市の住宅「Work / Life / Archive」。“クリエイティブな仕事”をする施主夫婦の為に計画。大量の資料などの整理と保管という与件に対し、自身でカスタムできる壁面収納を備えた建築を考案。全体をスキップフロアとして其々の空間を緩やかに分節する1階、書斎 photo©ToLoLo studio
studioSHUWARIによる、富山市の住宅「Work / Life / Archive」。“クリエイティブな仕事”をする施主夫婦の為に計画。大量の資料などの整理と保管という与件に対し、自身でカスタムできる壁面収納を備えた建築を考案。全体をスキップフロアとして其々の空間を緩やかに分節する1階、書斎、エントランス側を見る。 photo©ToLoLo studio
studioSHUWARIによる、富山市の住宅「Work / Life / Archive」。“クリエイティブな仕事”をする施主夫婦の為に計画。大量の資料などの整理と保管という与件に対し、自身でカスタムできる壁面収納を備えた建築を考案。全体をスキップフロアとして其々の空間を緩やかに分節する1階、書斎、開口部と壁面の詳細 photo©ToLoLo studio
studioSHUWARIによる、富山市の住宅「Work / Life / Archive」。“クリエイティブな仕事”をする施主夫婦の為に計画。大量の資料などの整理と保管という与件に対し、自身でカスタムできる壁面収納を備えた建築を考案。全体をスキップフロアとして其々の空間を緩やかに分節する1階、書斎、壁面収納側を見る。 photo©ToLoLo studio
studioSHUWARIによる、富山市の住宅「Work / Life / Archive」。“クリエイティブな仕事”をする施主夫婦の為に計画。大量の資料などの整理と保管という与件に対し、自身でカスタムできる壁面収納を備えた建築を考案。全体をスキップフロアとして其々の空間を緩やかに分節する1階から2階への階段。 photo©ToLoLo studio
studioSHUWARIによる、富山市の住宅「Work / Life / Archive」。“クリエイティブな仕事”をする施主夫婦の為に計画。大量の資料などの整理と保管という与件に対し、自身でカスタムできる壁面収納を備えた建築を考案。全体をスキップフロアとして其々の空間を緩やかに分節する中2階、寝室 photo©ToLoLo studio
studioSHUWARIによる、富山市の住宅「Work / Life / Archive」。“クリエイティブな仕事”をする施主夫婦の為に計画。大量の資料などの整理と保管という与件に対し、自身でカスタムできる壁面収納を備えた建築を考案。全体をスキップフロアとして其々の空間を緩やかに分節する中2階、寝室 photo©ToLoLo studio
studioSHUWARIによる、富山市の住宅「Work / Life / Archive」。“クリエイティブな仕事”をする施主夫婦の為に計画。大量の資料などの整理と保管という与件に対し、自身でカスタムできる壁面収納を備えた建築を考案。全体をスキップフロアとして其々の空間を緩やかに分節する中2階、寝室、壁面と開口部の詳細 photo©ToLoLo studio
studioSHUWARIによる、富山市の住宅「Work / Life / Archive」。“クリエイティブな仕事”をする施主夫婦の為に計画。大量の資料などの整理と保管という与件に対し、自身でカスタムできる壁面収納を備えた建築を考案。全体をスキップフロアとして其々の空間を緩やかに分節する1階から2階への階段。 photo©ToLoLo studio
studioSHUWARIによる、富山市の住宅「Work / Life / Archive」。“クリエイティブな仕事”をする施主夫婦の為に計画。大量の資料などの整理と保管という与件に対し、自身でカスタムできる壁面収納を備えた建築を考案。全体をスキップフロアとして其々の空間を緩やかに分節する2階、リビングからキッチンとダイニングを見る。 photo©ToLoLo studio
studioSHUWARIによる、富山市の住宅「Work / Life / Archive」。“クリエイティブな仕事”をする施主夫婦の為に計画。大量の資料などの整理と保管という与件に対し、自身でカスタムできる壁面収納を備えた建築を考案。全体をスキップフロアとして其々の空間を緩やかに分節する2階、ダイニングとリビング photo©ToLoLo studio
studioSHUWARIによる、富山市の住宅「Work / Life / Archive」。“クリエイティブな仕事”をする施主夫婦の為に計画。大量の資料などの整理と保管という与件に対し、自身でカスタムできる壁面収納を備えた建築を考案。全体をスキップフロアとして其々の空間を緩やかに分節する2階、ダイニングからキッチンを見る。 photo©ToLoLo studio
studioSHUWARIによる、富山市の住宅「Work / Life / Archive」。“クリエイティブな仕事”をする施主夫婦の為に計画。大量の資料などの整理と保管という与件に対し、自身でカスタムできる壁面収納を備えた建築を考案。全体をスキップフロアとして其々の空間を緩やかに分節する2階、左手前:ダイニング、中央奥:リビング、右手前:キッチン photo©ToLoLo studio
studioSHUWARIによる、富山市の住宅「Work / Life / Archive」。“クリエイティブな仕事”をする施主夫婦の為に計画。大量の資料などの整理と保管という与件に対し、自身でカスタムできる壁面収納を備えた建築を考案。全体をスキップフロアとして其々の空間を緩やかに分節する2階、サンルームから開口部越しにバルコニーを見る。 photo©ToLoLo studio
studioSHUWARIによる、富山市の住宅「Work / Life / Archive」。“クリエイティブな仕事”をする施主夫婦の為に計画。大量の資料などの整理と保管という与件に対し、自身でカスタムできる壁面収納を備えた建築を考案。全体をスキップフロアとして其々の空間を緩やかに分節する2階、リビング側から洗面脱衣室を見る。 photo©ToLoLo studio
studioSHUWARIによる、富山市の住宅「Work / Life / Archive」。“クリエイティブな仕事”をする施主夫婦の為に計画。大量の資料などの整理と保管という与件に対し、自身でカスタムできる壁面収納を備えた建築を考案。全体をスキップフロアとして其々の空間を緩やかに分節する2階、洗面脱衣室 photo©ToLoLo studio
studioSHUWARIによる、富山市の住宅「Work / Life / Archive」。“クリエイティブな仕事”をする施主夫婦の為に計画。大量の資料などの整理と保管という与件に対し、自身でカスタムできる壁面収納を備えた建築を考案。全体をスキップフロアとして其々の空間を緩やかに分節する2階、洗面脱衣室から階段側を見る。 photo©ToLoLo studio
studioSHUWARIによる、富山市の住宅「Work / Life / Archive」。“クリエイティブな仕事”をする施主夫婦の為に計画。大量の資料などの整理と保管という与件に対し、自身でカスタムできる壁面収納を備えた建築を考案。全体をスキップフロアとして其々の空間を緩やかに分節する2階、トイレ photo©ToLoLo studio
studioSHUWARIによる、富山市の住宅「Work / Life / Archive」。“クリエイティブな仕事”をする施主夫婦の為に計画。大量の資料などの整理と保管という与件に対し、自身でカスタムできる壁面収納を備えた建築を考案。全体をスキップフロアとして其々の空間を緩やかに分節する1階、トイレ photo©ToLoLo studio
studioSHUWARIによる、富山市の住宅「Work / Life / Archive」。“クリエイティブな仕事”をする施主夫婦の為に計画。大量の資料などの整理と保管という与件に対し、自身でカスタムできる壁面収納を備えた建築を考案。全体をスキップフロアとして其々の空間を緩やかに分節する2階、バルコニーから開口部越しにリビングを見る。夕景 photo©ToLoLo studio
studioSHUWARIによる、富山市の住宅「Work / Life / Archive」。“クリエイティブな仕事”をする施主夫婦の為に計画。大量の資料などの整理と保管という与件に対し、自身でカスタムできる壁面収納を備えた建築を考案。全体をスキップフロアとして其々の空間を緩やかに分節する1階から2階への階段の詳細。夕景 photo©ToLoLo studio
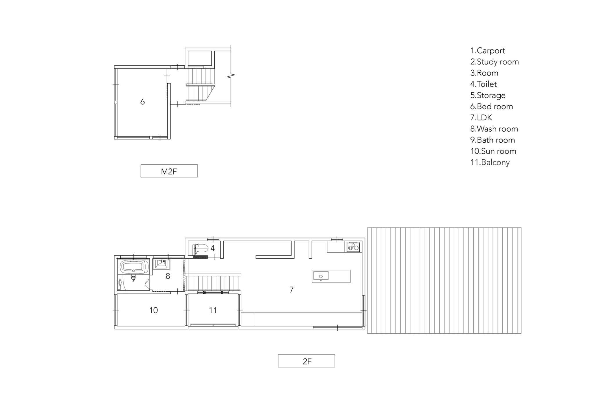
studioSHUWARIによる、富山市の住宅「Work / Life / Archive」。“クリエイティブな仕事”をする施主夫婦の為に計画。大量の資料などの整理と保管という与件に対し、自身でカスタムできる壁面収納を備えた建築を考案。全体をスキップフロアとして其々の空間を緩やかに分節する1階平面図 image©studioSHUWARI
studioSHUWARIによる、富山市の住宅「Work / Life / Archive」。“クリエイティブな仕事”をする施主夫婦の為に計画。大量の資料などの整理と保管という与件に対し、自身でカスタムできる壁面収納を備えた建築を考案。全体をスキップフロアとして其々の空間を緩やかに分節する2階平面図 image©studioSHUWARI
studioSHUWARIによる、富山市の住宅「Work / Life / Archive」。“クリエイティブな仕事”をする施主夫婦の為に計画。大量の資料などの整理と保管という与件に対し、自身でカスタムできる壁面収納を備えた建築を考案。全体をスキップフロアとして其々の空間を緩やかに分節するコンセプトスケッチ image©studioSHUWARI

以下、建築家によるテキストです。


住宅街にある細長い敷地に建つ、クリエイティブな仕事をされているご夫婦のための書斎スペースを持つ住居です。

細長い形状の敷地は二項道路に面しており、セットバックや斜線制限といった法的条件の中で、限られた空間をいかに豊かに活用できるかを丁寧に考えました。

ご夫婦の職業柄、大量のサンプルや資料を整理・保管する必要があるため、床下収納や自らカスタマイズできる収納スペースを壁面に設け、自らの使い方に応じて空間を育てていける計画とし、空間に対する柔軟性と愛着が生まれるよう配慮しています。

建物はスキップフロア構成とし、書斎空間と生活空間を緩やかに分節。
ハイサイドライトから差し込む自然光が仕事場をやわらかく照らし、明るく開放感のある環境を生み出しています。 生活空間では、外部からの視線に配慮しながら、窓やバルコニーの位置を丁寧に計画することで視線の抜けを生み出し、限られたスペースの中でも開放感を感じられる空間としています。

「働くこと」「暮らすこと」「ものとどう関わるか」を日々見つめ直しながら、住まいを通じて思考と創造が循環するような、そんな空間を目指しています。

■建築概要

所在地:富山県富山市
主用途:専用住宅
設計:studioSHUWARI Inc. 担当/種昻哲、北野るりこ
構造:ワークショップ 担当/安江一平
施工:大野創建
構造:木造
階数:地上2階
敷地面積:158.09㎡
建築面積:75.01㎡
延床面積:136.68㎡
設計:2022年12月~2024年9月
工事:2024年10月~2025年4月
竣工:2025年4月
写真:ToLoLo studio

建材情報
種別使用箇所商品名(メーカー名)
外装・壁外壁

ガルバリウム鋼板縦小波(日鉄鋼板)

外装・屋根屋根

ガルバリウム鋼板縦ハゼ葺き(日鉄鋼板)

内装・床LDK 床

ラワン合板ヘリンボーン張り(大野創建)

内装・壁LDK 壁

クロス貼り(サンゲツ)

内装・天井LDK 天井

構造用合板現し

内装・キッチンキッチン

特注(大野創建)

※企業様による建材情報についてのご意見や「PR」のご相談はこちらから
※この情報は弊サイトや設計者が建材の性能等を保証するものではありません


A Residence with a Study Space for a Creative Couple in a Narrow Urban Plot.

This residence, situated on a long, narrow plot in a residential area, is designed for a couple engaged in creative professions, featuring a dedicated study space. Faced with the unique challenge of a slender site abutting a two-lane road, we meticulously considered how to maximize the limited space within legal constraints such as setback and height restrictions.

Given the couple’s work, which necessitates the organization and storage of numerous samples and materials, we integrated underfloor storage and customizable wall-mounted storage solutions. This allows the residents to adapt and evolve the space according to their needs, fostering both flexibility and a sense of attachment to their home.

The building adopts a skip-floor configuration, gently demarcating the study area from the living spaces. Natural light pouring in from high-side windows softly illuminates the workspace, creating a bright and open environment. In the living areas, while carefully considering privacy from the outside, we strategically placed windows and balconies to create visual flow, making the limited space feel expansive.

Our aim was to create a home where thought and creativity circulate through daily reflections on “working,” “living,” and “how we interact with objects.”

あわせて読みたい

坂本拓也 / ATELIER WRITEによる、東京・中央区の「AURALEE × TDS FW23」。店舗の一角のアパレル販売の為のインスタレーション。展示製品のアーカイブをベースにしたという背景から着想し、既成の“運搬用什器”を手掛かりとした設計を志向。素材と色を変更して“洗練”された印象を付与
  • SHARE
studioSHUWARI大野創建種昻哲建材(外装・壁)建材(外装・屋根)建材(内装・床)建材(内装・壁)建材(内装・天井)建材(内装・キッチン)住宅ToLoLo studio図面あり富山ワークショップ
2025.10.03 Fri 15:52
0
permalink

#種昻哲の関連記事

  • 2023.9.28Thu
    studioSHUWARIによる、富山市の「2枚屋根の家」。丘陵地にある住宅街の中の敷地。街との“緩やかな繋がり”を求め、敷地の高低差を斜面で処理して勾配に沿う“2枚の屋根”を持つ建築を考案。窓の位置等の工夫で景観を取り込み日常の中に“季節感”を持ち込む
  • 2023.8.29Tue
    studioSHUWARIによる、富山・高岡市の「Wood Cylinder Wall」。事務所のエントランスの改修計画。“地場産材”を有効活用した空間を目指し、材の特性を考慮し“小径に加工した杉材”を用いた“柔らかな壁面”を考案。密度や高さを変化させて独自の“表情”と“視覚効果”も意図
  • 2023.7.04Tue
    studioSHUWARIによる、富山・射水市の、創業支援施設「HIBARI NEST」。テナント空間も備えた民営施設。入居者の“新たな交流”を生む場を目指し、一室空間の中に段差を設けて“一体感”と“心地よい距離感”を両立する構成を考案。天井の構造体は施設の“象徴”でもあり在来工法で実現
  • 2023.4.07Fri
    種昻哲 / studioSHUWARIによる、富山市の店舗「ideal coffee&bake」。個性的な店舗が並ぶ通りに計画。施主の持つ“凛とした空気感”の表現を目指し、シンプルな塗装で壁面等を仕上げて特注照明を“オブジェの様に”配した空間を考案。全面開放可能な出入口も設けて街と店内を繋ぐ
  • view all
view all

#studioSHUWARIの関連記事

  • 2025.8.01Fri
    studioSHUWARIによる、富山市の「風景をつくる家」。連峰を望む土手沿いの敷地。地域に存在する多様な風景との繋がりを求め、斜面を越えた先にある景色を取り込む建築を志向。上階にリビング等を配置して大開口も設ける計画を考案
  • 2023.9.28Thu
    studioSHUWARIによる、富山市の「2枚屋根の家」。丘陵地にある住宅街の中の敷地。街との“緩やかな繋がり”を求め、敷地の高低差を斜面で処理して勾配に沿う“2枚の屋根”を持つ建築を考案。窓の位置等の工夫で景観を取り込み日常の中に“季節感”を持ち込む
  • 2023.8.29Tue
    studioSHUWARIによる、富山・高岡市の「Wood Cylinder Wall」。事務所のエントランスの改修計画。“地場産材”を有効活用した空間を目指し、材の特性を考慮し“小径に加工した杉材”を用いた“柔らかな壁面”を考案。密度や高さを変化させて独自の“表情”と“視覚効果”も意図
  • 2023.7.04Tue
    studioSHUWARIによる、富山・射水市の、創業支援施設「HIBARI NEST」。テナント空間も備えた民営施設。入居者の“新たな交流”を生む場を目指し、一室空間の中に段差を設けて“一体感”と“心地よい距離感”を両立する構成を考案。天井の構造体は施設の“象徴”でもあり在来工法で実現
  • 2023.6.06Tue
    studioSHUWARIによる、富山市の、スポーツ施設「Luxe training」。自動車販売店だった建物を改修。以前の用途の為に作られた空間の特徴を活かしながら、諸室を視覚的に連続させ“アクティビティ”を繋げる構成を考案。利用体験を豊かにする照明や色彩の計画等も行う
  • 2023.4.07Fri
    種昻哲 / studioSHUWARIによる、富山市の店舗「ideal coffee&bake」。個性的な店舗が並ぶ通りに計画。施主の持つ“凛とした空気感”の表現を目指し、シンプルな塗装で壁面等を仕上げて特注照明を“オブジェの様に”配した空間を考案。全面開放可能な出入口も設けて街と店内を繋ぐ
  • view all
view all

建築求人情報

Loading...

 

    公式アカウントをフォローして、見逃せない建築情報を受け取ろう。

    61,931
    • Follow
    87,283
    • Follow
    • Follow
    • Add Friends
    • Subscribe
    • 情報募集/建築・デザイン・アートの情報を随時募集しています。
      More
    • メールマガジン/ メールマガジンで最新の情報を配信しています。
      More

    この日更新したその他の記事

    池田靖史・下田悠太・林盛による、千葉・館山市の「POP-UP ORIGAMI ROOF」。海辺の地域での相撲の土俵に屋根を掛ける計画。“折り紙の動き”を応用し、膜を引張材としカーボンパイプ等を圧縮材とした“テンセグリティ構造”の屋根を考案。超軽量を活かして人力作業かつ低コストで完成させる
    photo©コミヤ写真館

    SHARE 池田靖史・下田悠太・林盛による、千葉・館山市の「POP-UP ORIGAMI ROOF」。海辺の地域での相撲の土俵に屋根を掛ける計画。“折り紙の動き”を応用し、膜を引張材としカーボンパイプ等を圧縮材とした“テンセグリティ構造”の屋根を考案。超軽量を活かして人力作業かつ低コストで完成させる

    architecture|feature
    下田悠太林盛建材(外装・床)建材(外装・屋根)建材(外装・その他)図面ありパヴィリオン千葉池田靖史
    池田靖史・下田悠太・林盛による、千葉・館山市の「POP-UP ORIGAMI ROOF」。海辺の地域での相撲の土俵に屋根を掛ける計画。“折り紙の動き”を応用し、膜を引張材としカーボンパイプ等を圧縮材とした“テンセグリティ構造”の屋根を考案。超軽量を活かして人力作業かつ低コストで完成させる俯瞰、南側より見下ろす。(建築家による解説:四隅の柱についたウィンチを4人で回すことで、屋根を立ち上げる。屋根の高さは5,575㎜。土俵の向こうには浦賀水道と沖ノ島が見える) photo©コミヤ写真館
    池田靖史・下田悠太・林盛による、千葉・館山市の「POP-UP ORIGAMI ROOF」。海辺の地域での相撲の土俵に屋根を掛ける計画。“折り紙の動き”を応用し、膜を引張材としカーボンパイプ等を圧縮材とした“テンセグリティ構造”の屋根を考案。超軽量を活かして人力作業かつ低コストで完成させる外観、南側より見る。(建築家による解説:起こした状態の屋根。平面から立体を立ち上げる際の折り紙の挙動とテンセグリティを組み合わせた屋根をセルフビルドで建設した) photo©コミヤ写真館
    池田靖史・下田悠太・林盛による、千葉・館山市の「POP-UP ORIGAMI ROOF」。海辺の地域での相撲の土俵に屋根を掛ける計画。“折り紙の動き”を応用し、膜を引張材としカーボンパイプ等を圧縮材とした“テンセグリティ構造”の屋根を考案。超軽量を活かして人力作業かつ低コストで完成させる東側より屋根の下の土俵を見る。(建築家による解説:天候に左右されず練習できる環境が整った) photo©コミヤ写真館
    池田靖史・下田悠太・林盛による、千葉・館山市の「POP-UP ORIGAMI ROOF」。海辺の地域での相撲の土俵に屋根を掛ける計画。“折り紙の動き”を応用し、膜を引張材としカーボンパイプ等を圧縮材とした“テンセグリティ構造”の屋根を考案。超軽量を活かして人力作業かつ低コストで完成させる屋根架構の詳細(建築家による解説:屋根の動きに合わせて追従可能な屋根頂部) photo©コミヤ写真館

    池田靖史・下田悠太・林盛が設計した、千葉・館山市の「POP-UP ORIGAMI ROOF」です。
    海辺の地域での相撲の土俵に屋根を掛ける計画です。建築家たちは、“折り紙の動き”を応用し、膜を引張材としカーボンパイプ等を圧縮材とした“テンセグリティ構造”の屋根を考案しました。また、超軽量を活かして人力作業かつ低コストで完成させました。

    千葉県館山市の熱心な小学生の相撲サークルと縁があり、手作りの屋外の土俵の上にかける屋根について相談を受けた。
    炎天下の日差しの下での練習や、雨で土俵の土が流されるなどの悩みがあるが資金は全く足りないという。

    建築家によるテキストより

    台風も多い海辺の地域でかなり極端な条件だが技術的な研究課題として大学内の仲間で考え始め、軽量な半屋外屋根の最大の敵である吹上げ風荷重に対して耐えるのではなく逃げてしまう方法を思いついた。
    立体的な折り紙の動きを応用して、通常時は平らに開いて伏せておいて風雨を避け、使うときにだけ素早く折り起すような屋根なら超軽量でも実現可能だと考えたのである。

    建築家によるテキストより

    最小限の骨組みをパンタグラフのように動かし、伸縮する膜材と湾曲しながら突っ張るCFRPがテンセグリティのような関係になることで、大きく「変形する」ことが前提の構造物になった。ちょうどこれまでデザインのコンピューテーショナルな調整に使っていたパラメトリック・モデリングの方法を、さまざまな部分が連動して全体が問題なく「変形する」仕組みを3次元的に設計するために使うことができた。

    こうして最先端の知恵を動員しつつも、施工にあたっては膜材とカーボンファイバーパイプの製作以外はホームセンターで売っている単管パイプと既製品の継手部品を使い、超軽量であることを活かして人力作業だけで組み立てた。平らに伏せた状態で全ての組み立てが終わるため高所作業もなく、その後は自己起立するので仮設的な支持も必要ない。

    こうして最小限の材料や工具で非熟練者でも比較的安全に作業でき2日間で完成したことで目標の極限的な低コストを実現した。

    建築家によるテキストより
    • 残り19枚の写真と建築家によるテキスト
    • SHARE
    下田悠太林盛建材(外装・床)建材(外装・屋根)建材(外装・その他)図面ありパヴィリオン千葉池田靖史
    2025.10.03 Fri 06:42
    0
    permalink
    2025.10.01Wed
    • 【ap job更新】 東京とドバイを拠点とし、国内外で様々な建築を手掛ける「waiwai」が、建築設計とインテリアデザインのスタッフ(既卒・経験者)を募集中
    • 室宏アトリエによる、大分市の「上野丘の改修」。南北に“景色と風が抜ける”住戸を改修した設計者の自邸。特徴を活かした計画を求め、中央に配置した“角度を45°振った箱”で全体を緩やかに分ける構成を考案。自身の手で解体して“空間を掌握”してから設計
    • AMO / OMAによる展覧会「DIAGRAMS」。ヴェネツィアのプラダ財団で開催。ダイアグラムを“グラフィック装置および思考体系”として捉え、“知識の構造”や“我々の世界の理解”への貢献について考察。12世紀から現代までの300点以上の資料を展示
    2025.10.05Sun
    • 藤本壮介・妹島和世・塚本由晴・田中仁・宮田裕章が登壇しているシンポジウムのダイジェスト動画。森美術館での藤本展の関連企画として行われたもの

    Subscribe and Follow

    公式アカウントをフォローして、
    見逃せない建築情報を受け取ろう。

    「建築と社会の関係を視覚化する」メディア、アーキテクチャーフォトの公式アカウントです。
    様々な切り口による複眼的視点で建築に関する情報を最速でお届けします。

    61,931
    • Follow
    87,283
    • Follow
    • Follow
    • Add Friends
    • Subscribe
    • 情報募集/建築・デザイン・アートの情報を随時募集しています。
      More
    • メールマガジン/ メールマガジンで最新の情報を配信しています。
      More

    architecturephoto® News Letter

    メールマガジンでも最新の更新情報を配信中

    • ホーム
    • アーキテクチャーフォトについて
    • アーキテクチャーフォト規約
    • プライバシーポリシー
    • 特定商取引法に関する表記
    • 利用者情報の外部送信について
    • 広告掲載について
    • お問い合わせ/作品投稿

    Copyright © architecturephoto.net.

    • 建築
    • アート
    • カルチャー
    • デザイン
    • ファッション
    • 動画
    • 展覧会
    • コンペ
    • 書籍
    • 建築求人
    • 特集記事
    • 注目情報
    • タグ
    • アーキテクチャーフォト ジョブボード
    • アーキテクチャーフォト・ブック
    • ホーム
    • アーキテクチャーフォトについて
    • アーキテクチャーフォト規約
    • プライバシーポリシー
    • 特定商取引法に関する表記
    • 利用者情報の外部送信について
    • 広告掲載について
    • お問い合わせ/作品投稿

    メールマガジンで最新の情報を配信しています

    この記事をシェア
    タイトルタイトルタイトルタイトルタイトル
    https://architecturephoto.net/permalink

    記事について#architecturephotonetでつぶやいてみましょう。
    有益なコメントは拡散や、サイトでも紹介させていただくこともございます。

    architecturephoto®
    • black
    • gray
    • white

    建築求人情報紹介

    Loading...