ODS / 鬼木孝一郎による、東京・千代田区の店舗「DESCENTE 新丸ビル」。商業フロアの中での計画。ブランドの哲学である“機能美”の表現を意図し、ステンレス・面発光・ガラスなどで構成する空間を考案。ロゴから着想を得て“45度傾斜”した素材使いも各所に採用する東側の共用通路より売場を見る。 photo©太田拓実
ODS / 鬼木孝一郎による、東京・千代田区の店舗「DESCENTE 新丸ビル」。商業フロアの中での計画。ブランドの哲学である“機能美”の表現を意図し、ステンレス・面発光・ガラスなどで構成する空間を考案。ロゴから着想を得て“45度傾斜”した素材使いも各所に採用する売場 photo©太田拓実
ODS / 鬼木孝一郎による、東京・千代田区の店舗「DESCENTE 新丸ビル」。商業フロアの中での計画。ブランドの哲学である“機能美”の表現を意図し、ステンレス・面発光・ガラスなどで構成する空間を考案。ロゴから着想を得て“45度傾斜”した素材使いも各所に採用するレジカウンター photo©太田拓実
ODS / 鬼木孝一郎が設計した、東京・千代田区の店舗「DESCENTE 新丸ビル」です。
商業フロアの中での計画です。建築家は、ブランドの哲学である“機能美”の表現を意図し、ステンレス・面発光・ガラスなどで構成する空間を考案しました。また、ロゴから着想を得て“45度傾斜”した素材使いも各所に採用しています。店舗の場所はこちら(Google Map)。
スキーウェアへの挑戦からスタートしたDESCENTE。
そこから生まれた多様な製品を取り扱う店舗として、東京駅近くに位置する新丸ビル店のインテリアデザインを担当した。
DESCENTEが最も大切にする哲学「機能美」を表現するため、ステンレス、面発光、ガラスなどの素材を中心に構成。
また、3つの矢印からなるスピリットマークからヒントを得て、店舗を特徴づける素材として「45度」傾斜した左官材の櫛引やヘリンボーン貼りの床を各所に採用した。
ブランドロゴであるスピリットマークはスキーの基本技術である「直滑降」「斜滑降」「横滑り」を意味するものであり、ブランドの果敢で積極的な姿勢を表現している。斜めに櫛引した左官材は、「圧雪したてのゲレンデ」を連想する仕上げとなった。
ものづくりの原点を大切にしながら、時代の要求を先取りし製品化してゆくDESCENTEの思想を空間的に表現することを目指した。
以下の写真はクリックで拡大します

ODS / 鬼木孝一郎による、東京・千代田区の店舗「DESCENTE 新丸ビル」。商業フロアの中での計画。ブランドの哲学である“機能美”の表現を意図し、ステンレス・面発光・ガラスなどで構成する空間を考案。ロゴから着想を得て“45度傾斜”した素材使いも各所に採用する東側の共用通路より見る。 photo©太田拓実

ODS / 鬼木孝一郎による、東京・千代田区の店舗「DESCENTE 新丸ビル」。商業フロアの中での計画。ブランドの哲学である“機能美”の表現を意図し、ステンレス・面発光・ガラスなどで構成する空間を考案。ロゴから着想を得て“45度傾斜”した素材使いも各所に採用する東側の共用通路側より店内を見る。 photo©太田拓実

ODS / 鬼木孝一郎による、東京・千代田区の店舗「DESCENTE 新丸ビル」。商業フロアの中での計画。ブランドの哲学である“機能美”の表現を意図し、ステンレス・面発光・ガラスなどで構成する空間を考案。ロゴから着想を得て“45度傾斜”した素材使いも各所に採用する東側の共用通路より売場を見る。 photo©太田拓実

ODS / 鬼木孝一郎による、東京・千代田区の店舗「DESCENTE 新丸ビル」。商業フロアの中での計画。ブランドの哲学である“機能美”の表現を意図し、ステンレス・面発光・ガラスなどで構成する空間を考案。ロゴから着想を得て“45度傾斜”した素材使いも各所に採用する東側の共用通路より売場を見る。 photo©太田拓実

ODS / 鬼木孝一郎による、東京・千代田区の店舗「DESCENTE 新丸ビル」。商業フロアの中での計画。ブランドの哲学である“機能美”の表現を意図し、ステンレス・面発光・ガラスなどで構成する空間を考案。ロゴから着想を得て“45度傾斜”した素材使いも各所に採用する東側の共用通路よりシューズ棚を見る。 photo©太田拓実

ODS / 鬼木孝一郎による、東京・千代田区の店舗「DESCENTE 新丸ビル」。商業フロアの中での計画。ブランドの哲学である“機能美”の表現を意図し、ステンレス・面発光・ガラスなどで構成する空間を考案。ロゴから着想を得て“45度傾斜”した素材使いも各所に採用する東側の共用通路よりシューズ棚を見る。 photo©太田拓実

ODS / 鬼木孝一郎による、東京・千代田区の店舗「DESCENTE 新丸ビル」。商業フロアの中での計画。ブランドの哲学である“機能美”の表現を意図し、ステンレス・面発光・ガラスなどで構成する空間を考案。ロゴから着想を得て“45度傾斜”した素材使いも各所に採用するレジカウンター photo©太田拓実

ODS / 鬼木孝一郎による、東京・千代田区の店舗「DESCENTE 新丸ビル」。商業フロアの中での計画。ブランドの哲学である“機能美”の表現を意図し、ステンレス・面発光・ガラスなどで構成する空間を考案。ロゴから着想を得て“45度傾斜”した素材使いも各所に採用するレジカウンターとブランドロゴ photo©太田拓実

ODS / 鬼木孝一郎による、東京・千代田区の店舗「DESCENTE 新丸ビル」。商業フロアの中での計画。ブランドの哲学である“機能美”の表現を意図し、ステンレス・面発光・ガラスなどで構成する空間を考案。ロゴから着想を得て“45度傾斜”した素材使いも各所に採用する東側の共用通路より店内を見る。 photo©太田拓実

ODS / 鬼木孝一郎による、東京・千代田区の店舗「DESCENTE 新丸ビル」。商業フロアの中での計画。ブランドの哲学である“機能美”の表現を意図し、ステンレス・面発光・ガラスなどで構成する空間を考案。ロゴから着想を得て“45度傾斜”した素材使いも各所に採用する東側の共用通路より売場を見る。 photo©太田拓実

ODS / 鬼木孝一郎による、東京・千代田区の店舗「DESCENTE 新丸ビル」。商業フロアの中での計画。ブランドの哲学である“機能美”の表現を意図し、ステンレス・面発光・ガラスなどで構成する空間を考案。ロゴから着想を得て“45度傾斜”した素材使いも各所に採用する売場 photo©太田拓実

ODS / 鬼木孝一郎による、東京・千代田区の店舗「DESCENTE 新丸ビル」。商業フロアの中での計画。ブランドの哲学である“機能美”の表現を意図し、ステンレス・面発光・ガラスなどで構成する空間を考案。ロゴから着想を得て“45度傾斜”した素材使いも各所に採用する什器と壁の詳細 photo©太田拓実

ODS / 鬼木孝一郎による、東京・千代田区の店舗「DESCENTE 新丸ビル」。商業フロアの中での計画。ブランドの哲学である“機能美”の表現を意図し、ステンレス・面発光・ガラスなどで構成する空間を考案。ロゴから着想を得て“45度傾斜”した素材使いも各所に採用する壁の詳細 photo©太田拓実

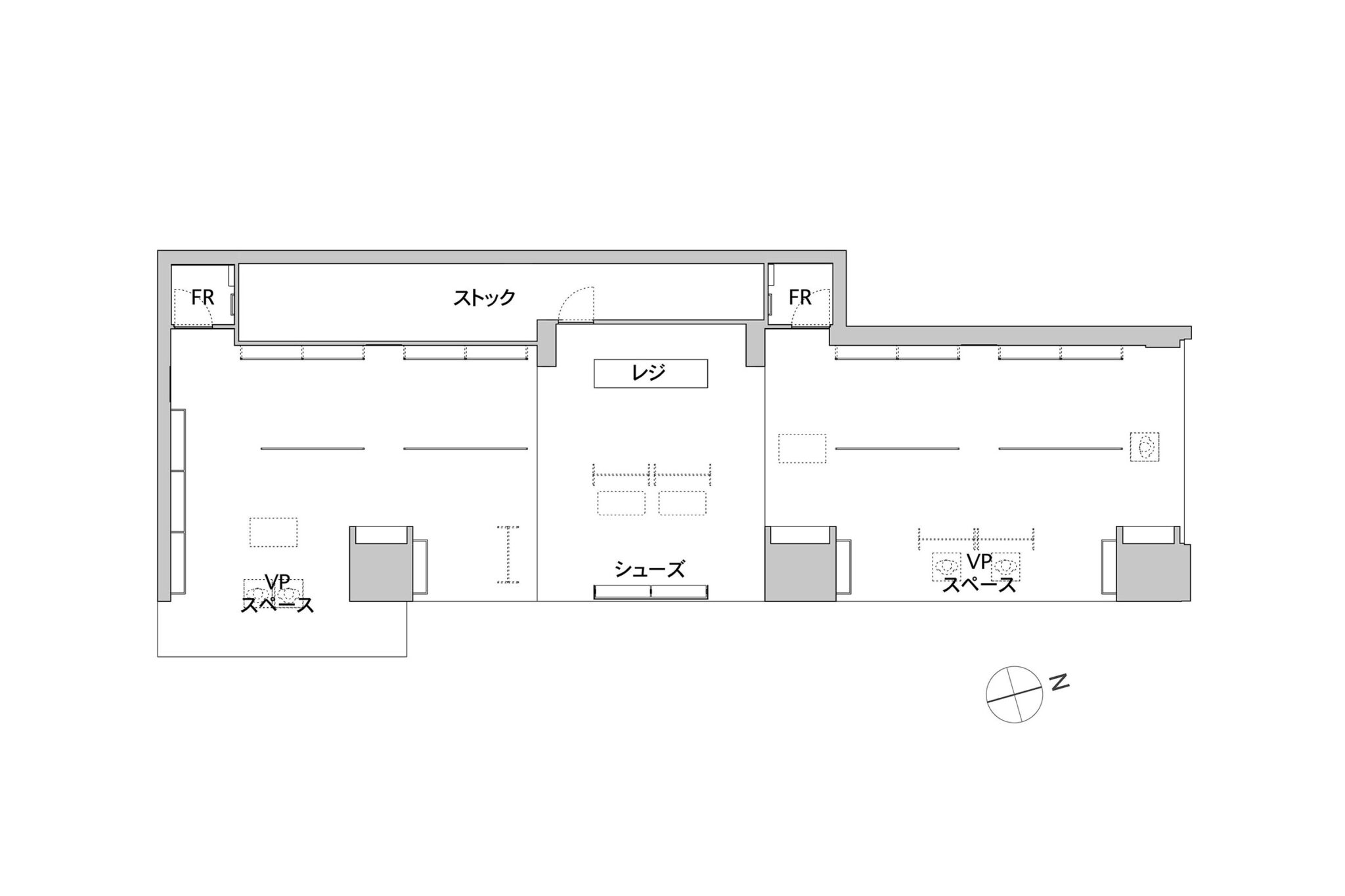
ODS / 鬼木孝一郎による、東京・千代田区の店舗「DESCENTE 新丸ビル」。商業フロアの中での計画。ブランドの哲学である“機能美”の表現を意図し、ステンレス・面発光・ガラスなどで構成する空間を考案。ロゴから着想を得て“45度傾斜”した素材使いも各所に採用する平面図 image©ODS
以下、建築家によるテキストです。
スキーウェアへの挑戦からスタートしたDESCENTE。
そこから生まれた多様な製品を取り扱う店舗として、東京駅近くに位置する新丸ビル店のインテリアデザインを担当した。
DESCENTEが最も大切にする哲学「機能美」を表現するため、ステンレス、面発光、ガラスなどの素材を中心に構成。
また、3つの矢印からなるスピリットマークからヒントを得て、店舗を特徴づける素材として「45度」傾斜した左官材の櫛引やヘリンボーン貼りの床を各所に採用した。
ブランドロゴであるスピリットマークはスキーの基本技術である「直滑降」「斜滑降」「横滑り」を意味するものであり、ブランドの果敢で積極的な姿勢を表現している。斜めに櫛引した左官材は、「圧雪したてのゲレンデ」を連想する仕上げとなった。
ものづくりの原点を大切にしながら、時代の要求を先取りし製品化してゆくDESCENTEの思想を空間的に表現することを目指した。
■建築概要
題名:DESCENTE 新丸ビル
所在地:東京都千代田区丸の内一丁目5番1号 新丸の内ビルディング4F
主用途:物販店舗
設計:ODS 担当/鬼木孝一郎、加藤葉月
施工:丹青社
延床面積:153.82㎡
設計期間:2024年7月~2025年3月
施工期間:2025年4月~2025年6月
竣工:2025年6月
写真:太田拓実