榊原節子建築研究所による、大阪市の「光廊の家」。三方を囲まれた細長い敷地に建つ二世帯住宅。多様な体験が可能な住まいを求め、白い抽象的な“光廊”と素材感のある具体的な“生活の場”を行き来する構成を考案。光廊は世帯間や家族の距離感を調整する役割も担う外観、南東側の交差点より見る。 photo©小川重雄
榊原節子建築研究所による、大阪市の「光廊の家」。三方を囲まれた細長い敷地に建つ二世帯住宅。多様な体験が可能な住まいを求め、白い抽象的な“光廊”と素材感のある具体的な“生活の場”を行き来する構成を考案。光廊は世帯間や家族の距離感を調整する役割も担う1階、玄関土間から2階への階段側を見る。 photo©小川重雄
榊原節子建築研究所による、大阪市の「光廊の家」。三方を囲まれた細長い敷地に建つ二世帯住宅。多様な体験が可能な住まいを求め、白い抽象的な“光廊”と素材感のある具体的な“生活の場”を行き来する構成を考案。光廊は世帯間や家族の距離感を調整する役割も担う2階、キッチンから「食堂」越しに居間側を見る。 photo©小川重雄
榊原節子建築研究所が設計した、大阪市の「光廊の家」です。
三方を囲まれた細長い敷地に建つ二世帯住宅の計画です。建築家は、多様な体験が可能な住まいを求め、白い抽象的な“光廊”と素材感のある具体的な“生活の場”を行き来する構成を考案しました。また、光廊は世帯間や家族の距離感を調整する役割も担っています。
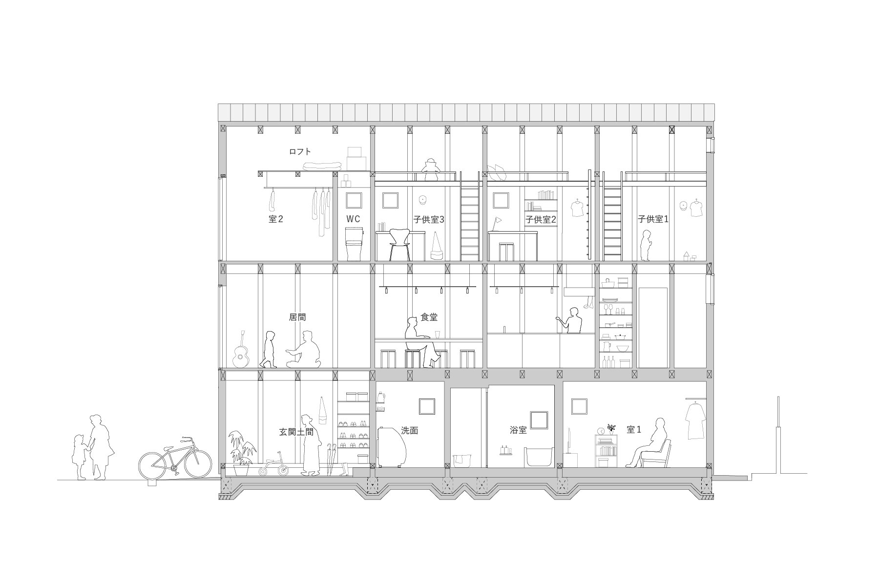
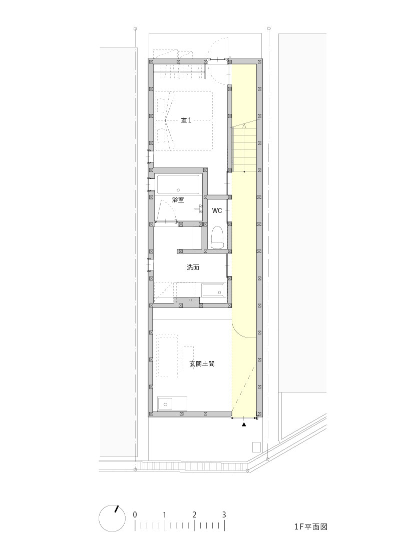
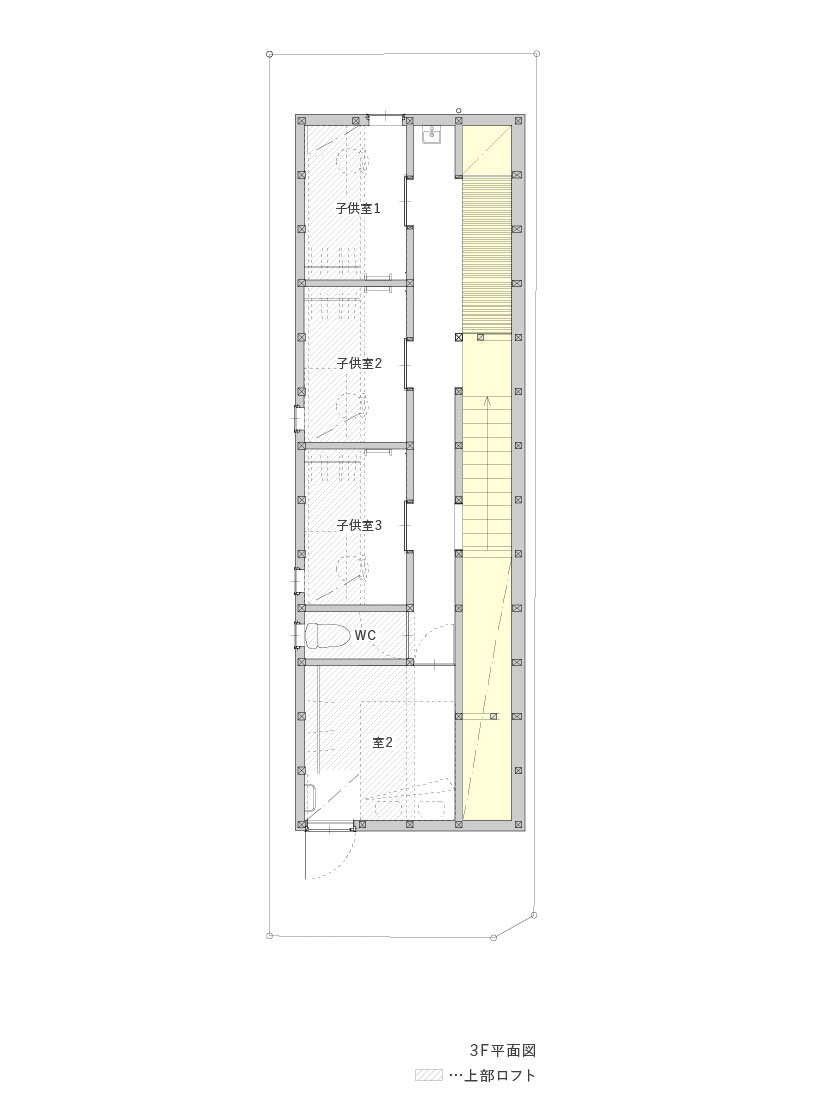
敷地は、大阪市内の長屋を解体した細長い形状で、三方を建物に囲まれている。住まい手は7人。小さな子供3人がいる若い家族と両親の二世帯住宅である。
多人数の住まいとしては決して広くなく機能的なスペースも必要ななか、あえて余白となる13の天窓が連続する「光廊」を設けた。降り注ぐ光は、十分すぎるほどの明るさと広がりをもたらすが、それらをより強調するため、白い抽象的な空間に仕上げている。
一方、「光廊」と壁一枚を隔てた生活の場は、梁や柱、耐力壁といった木構造や石膏ボードの素地仕様など構法や素材をそのまま現し、雑味がある具体的な空間としている。住まい手は、自分の部屋から出たとき、階を移動するとき、抽象的な空間と必然的に出会い、新鮮さを覚え、気持ちの切り替えをする。
ひとつの住戸内で内と外、具体と抽象、日常と非日常といったふたつの空間を行き来することで、多様な体験をすることを試みた。加えて「光廊」は各階を断面的につなぎ、世帯間や家族同士の距離感を調整する役割も担っている。
以下の写真はクリックで拡大します

榊原節子建築研究所による、大阪市の「光廊の家」。三方を囲まれた細長い敷地に建つ二世帯住宅。多様な体験が可能な住まいを求め、白い抽象的な“光廊”と素材感のある具体的な“生活の場”を行き来する構成を考案。光廊は世帯間や家族の距離感を調整する役割も担う俯瞰、南側より見下ろす。 photo©小川重雄

榊原節子建築研究所による、大阪市の「光廊の家」。三方を囲まれた細長い敷地に建つ二世帯住宅。多様な体験が可能な住まいを求め、白い抽象的な“光廊”と素材感のある具体的な“生活の場”を行き来する構成を考案。光廊は世帯間や家族の距離感を調整する役割も担う外観、南東側の交差点より見る。 photo©小川重雄

榊原節子建築研究所による、大阪市の「光廊の家」。三方を囲まれた細長い敷地に建つ二世帯住宅。多様な体験が可能な住まいを求め、白い抽象的な“光廊”と素材感のある具体的な“生活の場”を行き来する構成を考案。光廊は世帯間や家族の距離感を調整する役割も担う1階、玄関土間から2階への階段側を見る。 photo©小川重雄

榊原節子建築研究所による、大阪市の「光廊の家」。三方を囲まれた細長い敷地に建つ二世帯住宅。多様な体験が可能な住まいを求め、白い抽象的な“光廊”と素材感のある具体的な“生活の場”を行き来する構成を考案。光廊は世帯間や家族の距離感を調整する役割も担う1階、「光廊」から2階への階段を見る。 photo©小川重雄

榊原節子建築研究所による、大阪市の「光廊の家」。三方を囲まれた細長い敷地に建つ二世帯住宅。多様な体験が可能な住まいを求め、白い抽象的な“光廊”と素材感のある具体的な“生活の場”を行き来する構成を考案。光廊は世帯間や家族の距離感を調整する役割も担う1階、「光廊」から2階への階段を見る。 photo©小川重雄

榊原節子建築研究所による、大阪市の「光廊の家」。三方を囲まれた細長い敷地に建つ二世帯住宅。多様な体験が可能な住まいを求め、白い抽象的な“光廊”と素材感のある具体的な“生活の場”を行き来する構成を考案。光廊は世帯間や家族の距離感を調整する役割も担う2階、「光廊」から1階を見下ろす。 photo©小川重雄

榊原節子建築研究所による、大阪市の「光廊の家」。三方を囲まれた細長い敷地に建つ二世帯住宅。多様な体験が可能な住まいを求め、白い抽象的な“光廊”と素材感のある具体的な“生活の場”を行き来する構成を考案。光廊は世帯間や家族の距離感を調整する役割も担う2階、キッチンから「食堂」越しに居間側を見る。 photo©小川重雄

榊原節子建築研究所による、大阪市の「光廊の家」。三方を囲まれた細長い敷地に建つ二世帯住宅。多様な体験が可能な住まいを求め、白い抽象的な“光廊”と素材感のある具体的な“生活の場”を行き来する構成を考案。光廊は世帯間や家族の距離感を調整する役割も担う2階、キッチン photo©小川重雄

榊原節子建築研究所による、大阪市の「光廊の家」。三方を囲まれた細長い敷地に建つ二世帯住宅。多様な体験が可能な住まいを求め、白い抽象的な“光廊”と素材感のある具体的な“生活の場”を行き来する構成を考案。光廊は世帯間や家族の距離感を調整する役割も担う2階、左:「光廊」、右:居間 photo©小川重雄

榊原節子建築研究所による、大阪市の「光廊の家」。三方を囲まれた細長い敷地に建つ二世帯住宅。多様な体験が可能な住まいを求め、白い抽象的な“光廊”と素材感のある具体的な“生活の場”を行き来する構成を考案。光廊は世帯間や家族の距離感を調整する役割も担う2階、左:「食堂」、右:「光廊」 photo©小川重雄

榊原節子建築研究所による、大阪市の「光廊の家」。三方を囲まれた細長い敷地に建つ二世帯住宅。多様な体験が可能な住まいを求め、白い抽象的な“光廊”と素材感のある具体的な“生活の場”を行き来する構成を考案。光廊は世帯間や家族の距離感を調整する役割も担う3階、左:「光廊」、右:廊下 photo©小川重雄

榊原節子建築研究所による、大阪市の「光廊の家」。三方を囲まれた細長い敷地に建つ二世帯住宅。多様な体験が可能な住まいを求め、白い抽象的な“光廊”と素材感のある具体的な“生活の場”を行き来する構成を考案。光廊は世帯間や家族の距離感を調整する役割も担う3階、廊下 photo©小川重雄

榊原節子建築研究所による、大阪市の「光廊の家」。三方を囲まれた細長い敷地に建つ二世帯住宅。多様な体験が可能な住まいを求め、白い抽象的な“光廊”と素材感のある具体的な“生活の場”を行き来する構成を考案。光廊は世帯間や家族の距離感を調整する役割も担う3階、子供室2 photo©小川重雄

榊原節子建築研究所による、大阪市の「光廊の家」。三方を囲まれた細長い敷地に建つ二世帯住宅。多様な体験が可能な住まいを求め、白い抽象的な“光廊”と素材感のある具体的な“生活の場”を行き来する構成を考案。光廊は世帯間や家族の距離感を調整する役割も担う配置図 image©榊原節子建築研究所

榊原節子建築研究所による、大阪市の「光廊の家」。三方を囲まれた細長い敷地に建つ二世帯住宅。多様な体験が可能な住まいを求め、白い抽象的な“光廊”と素材感のある具体的な“生活の場”を行き来する構成を考案。光廊は世帯間や家族の距離感を調整する役割も担う1階平面図 image©榊原節子建築研究所

榊原節子建築研究所による、大阪市の「光廊の家」。三方を囲まれた細長い敷地に建つ二世帯住宅。多様な体験が可能な住まいを求め、白い抽象的な“光廊”と素材感のある具体的な“生活の場”を行き来する構成を考案。光廊は世帯間や家族の距離感を調整する役割も担う2階平面図 image©榊原節子建築研究所

榊原節子建築研究所による、大阪市の「光廊の家」。三方を囲まれた細長い敷地に建つ二世帯住宅。多様な体験が可能な住まいを求め、白い抽象的な“光廊”と素材感のある具体的な“生活の場”を行き来する構成を考案。光廊は世帯間や家族の距離感を調整する役割も担う3階平面図 image©榊原節子建築研究所

榊原節子建築研究所による、大阪市の「光廊の家」。三方を囲まれた細長い敷地に建つ二世帯住宅。多様な体験が可能な住まいを求め、白い抽象的な“光廊”と素材感のある具体的な“生活の場”を行き来する構成を考案。光廊は世帯間や家族の距離感を調整する役割も担う屋根伏図 image©榊原節子建築研究所

榊原節子建築研究所による、大阪市の「光廊の家」。三方を囲まれた細長い敷地に建つ二世帯住宅。多様な体験が可能な住まいを求め、白い抽象的な“光廊”と素材感のある具体的な“生活の場”を行き来する構成を考案。光廊は世帯間や家族の距離感を調整する役割も担う南立面図 image©榊原節子建築研究所

榊原節子建築研究所による、大阪市の「光廊の家」。三方を囲まれた細長い敷地に建つ二世帯住宅。多様な体験が可能な住まいを求め、白い抽象的な“光廊”と素材感のある具体的な“生活の場”を行き来する構成を考案。光廊は世帯間や家族の距離感を調整する役割も担う断面パース image©榊原節子建築研究所

榊原節子建築研究所による、大阪市の「光廊の家」。三方を囲まれた細長い敷地に建つ二世帯住宅。多様な体験が可能な住まいを求め、白い抽象的な“光廊”と素材感のある具体的な“生活の場”を行き来する構成を考案。光廊は世帯間や家族の距離感を調整する役割も担う断面図 image©榊原節子建築研究所

榊原節子建築研究所による、大阪市の「光廊の家」。三方を囲まれた細長い敷地に建つ二世帯住宅。多様な体験が可能な住まいを求め、白い抽象的な“光廊”と素材感のある具体的な“生活の場”を行き来する構成を考案。光廊は世帯間や家族の距離感を調整する役割も担う断面図 image©榊原節子建築研究所

榊原節子建築研究所による、大阪市の「光廊の家」。三方を囲まれた細長い敷地に建つ二世帯住宅。多様な体験が可能な住まいを求め、白い抽象的な“光廊”と素材感のある具体的な“生活の場”を行き来する構成を考案。光廊は世帯間や家族の距離感を調整する役割も担うダイアグラム image©榊原節子建築研究所
以下、建築家によるテキストです。
「余白」と「生活」の場の共存
敷地は、大阪市内の長屋を解体した細長い形状で、三方を建物に囲まれている。住まい手は7人。小さな子供3人がいる若い家族と両親の二世帯住宅である。
多人数の住まいとしては決して広くなく機能的なスペースも必要ななか、あえて余白となる13の天窓が連続する「光廊」を設けた。降り注ぐ光は、十分すぎるほどの明るさと広がりをもたらすが、それらをより強調するため、白い抽象的な空間に仕上げている。
また耐力壁の2箇所の木のブレースを見せ、向きを変えて設けることで、吹抜けた細長い空間に、動きや伸びやかさを出すことを意図している。
一方、「光廊」と壁一枚を隔てた生活の場は、梁や柱、耐力壁といった木構造や石膏ボードの素地仕様など構法や素材をそのまま現し、雑味がある具体的な空間としている。住まい手は、自分の部屋から出たとき、階を移動するとき、抽象的な空間と必然的に出会い、新鮮さを覚え、気持ちの切り替えをする。
ひとつの住戸内で内と外、具体と抽象、日常と非日常といったふたつの空間を行き来することで、多様な体験をすることを試みた。加えて「光廊」は各階を断面的につなぎ、世帯間や家族同士の距離感を調整する役割も担っている。
今計画では、梁や柱といった構造材を現していることが一つのポイントである。
準防火地域で3階建ての木造建築では構造材現しは法規制上難しいが、隣地に面する開口部の面積を制限することで「準延焼防火建築物」とし、準耐火建築物と同等の防火性能を確保している。現しとなる柱は120㎜角、梁は120㎜幅となるが、力強い架構が910㎜ピッチで連続することで、奥行きが感じられ細長さを強調する空間を意図した。
敷地の条件に添い、屋根面からの光の大胆な採り入れにより垂直方向へ、木架構の連続性により水平方向への伸びやかさを併せ持った都市住宅を目指した。
■建築概要
題名:光廊の家
所在地:大阪府大阪市西淀川区
主用途:二世帯住居
設計・監理:榊原節子建築研究所 担当/榊原節子
構造設計:tmsd萬田隆構造設計事務所 担当/萬田隆
施工:株式会社KEN建築工房 担当/堀内俊克
構造:木造在来工法
階数:地上3階
敷地面積:66.17㎡
建築面積:43.06㎡
延床面積:120.08㎡
設計期間:2023年4月~2023年9月
施工期間:2023年10月~2024年5月
写真:小川重雄
建材情報| 種別 | 使用箇所 | 商品名(メーカー名) | | 外装・屋根 | 屋根 | ガルバリウム鋼板 竪平葺き 極みMAXブライトレッド(JFE鋼板)
|
| 外装・壁 | 外壁 | ガルバリウム鋼板 中波 極みMAXブライトレッド(JFE鋼板)
|
| 外装・建具 | 開口部 | 住宅用防火アルミサッシ防火戸FG、一部 鋼製建具(LIXIL)
|
| 外装・建具 | 天窓 | 網入複層ガラス SUS枠押さえ
|
| 内装・床 | 玄関土間 床 | 土間コンクリート コテ押え
|
| 内装・床 | 室1、洗面、WC、光廊 床 | フロアリューム NW 20FL1002(東リ)
|
| 内装・床 | 居間、子供室、室2 床 | 複合フローリング t=12㎜ プロヴァンス シェンボン マルシェ(IOC)
|
| 内装・床 | 3階格子 床 | 米松30㎜×60㎜ @90㎜ OP塗装拭き取りの上、ポリカボネート板 t=3㎜
|
| 内装・壁 | 玄関土間 壁 | 柱現し 柱間 PB t=12.5mm 素地
|
| 内装・壁 | 室1、洗面、WC、光廊 壁 | PB t=12.5㎜の上 クロス貼り:SP2827(サンゲツ)
|
| 内装・壁 | 居間、子供室、室2 壁 | 柱現し、柱間:PB t=12.5㎜ 素地、柱間:針葉樹系合板 t=9㎜
|
| 内装・天井 | 玄関土間 天井 | 梁現し 梁間 PB t=12.5mm 素地
|
| 内装・天井 | 室1、洗面、WC 天井 | PB t=12.5㎜の上 クロス貼り:SP2827(サンゲツ)
|
| 内装・天井 | 居間 天井 | 梁現し、梁間:PB t=12.5㎜ 素地
|
| 内装・天井 | 子供室、室2 天井 | 梁現し、梁間:PB t=12.5㎜ の上 PB t=9.5㎜ 素地
|
| 内装・天井 | 光廊 天井 | 梁現し OP塗装拭き取り、梁間 天窓
|
| 内装・キッチン | キッチン | 針葉樹系合板 t=24㎜加工 天板 SUSプレート t=1㎜張り
|
| 内装・造作家具 | 子供室 ロフトベッド | 木下地組の上 杉板t=15㎜ 目透かし張り
|
| 外構・床 | 外構 | 土間コンクリートコテ押さえ
|
※企業様による建材情報についてのご意見や「PR」のご相談はこちらから
※この情報は弊サイトや設計者が建材の性能等を保証するものではありません