成瀬・猪熊建築設計事務所による、東京・新宿区の集合住宅「風の道テラス」。坂道が並行して通る地域に建つコーポラティブハウス。風が通り視線も抜ける道の豊かさに着目し、“街の骨格”をそのまま敷地に入れ込む計画を考案。全体を6つに分割して空が見え光も差し込む5つのスリットを通す外観、西側の道路側より見る。 photo©西川公朗
成瀬・猪熊建築設計事務所による、東京・新宿区の集合住宅「風の道テラス」。坂道が並行して通る地域に建つコーポラティブハウス。風が通り視線も抜ける道の豊かさに着目し、“街の骨格”をそのまま敷地に入れ込む計画を考案。全体を6つに分割して空が見え光も差し込む5つのスリットを通す外観、北側の散策路より見る。 photo©西川公朗
成瀬・猪熊建築設計事務所による、東京・新宿区の集合住宅「風の道テラス」。坂道が並行して通る地域に建つコーポラティブハウス。風が通り視線も抜ける道の豊かさに着目し、“街の骨格”をそのまま敷地に入れ込む計画を考案。全体を6つに分割して空が見え光も差し込む5つのスリットを通す住戸07、2階、リビングからキッチン側を見る。(内装設計:Ishimura+Neichi) photo©西川公朗
成瀬・猪熊建築設計事務所による、東京・新宿区の集合住宅「風の道テラス」。坂道が並行して通る地域に建つコーポラティブハウス。風が通り視線も抜ける道の豊かさに着目し、“街の骨格”をそのまま敷地に入れ込む計画を考案。全体を6つに分割して空が見え光も差し込む5つのスリットを通す住戸20、地下1階、ダイニングとキッチンからリビング側を見る。(内装設計:YY architects) photo©西川公朗
成瀬・猪熊建築設計事務所が設計した、東京・新宿区の集合住宅「風の道テラス」です。
坂道が並行して通る地域に建つコーポラティブハウスのプロジェクトです。建築家は、風が通り視線も抜ける道の豊かさに着目し、“街の骨格”をそのまま敷地に入れ込む計画を考案しました。そして、全体を6つに分割して空が見え光も差し込む5つのスリットを通しました。
住戸の内装設計は、中倉康介建築設計事務所、miCo.、Ishimura+Neichi、田中花巻事務所、TATTA、YY architectsが担当しています。
計画の敷地は新宿区の中井で、風情ある四の坂を挟んで林芙美子記念館の斜向かいとなる場所です。
周囲の地形は、北が台地、南が川となっており、四の坂だけでなく一ノ坂から八の坂までの坂が、ほぼ並行に通っています。南向きの坂は密集した住宅地でも、どれも気持ちよく風景が抜け、風がとおり、光があかるい豊かな環境になっている、なかなか特徴的な場所です。
そこで私たちが試みたのは、独特の地形から生まれた、坂が平行に並ぶまちの骨格を、そのまま敷地に入れ込むことです。
全体のボリュームに5つのスリットを平行に設け、ボリュームを6つに分けました。1,010~1,310mmまでの決して広くはない隙間ですが、南に建物があっても、空が見え、風がぬけ、光が差し込みます。
通路だけはこれに直行させ、建物を貫通する中廊下と、北側の外構を歩く散策路の二つを設け、中廊下に12戸、北側の散策路には8戸の玄関を設けました。
一見分かれた二つの通路は、行き来の風景がスリットによって繋がっています。また、二つの通路は建物の一番奥で繋がってループするようになっており、奥の住戸は、どちらを通っても道に出ることができ、子供であれば建物全体を使って鬼ごっこやかくれんぼも出来てしまうでしょう。
20世帯が集まって暮らすといっても、各世帯の多様なライフスタイルがあり、近い距離感で一緒にいるというよりは、街の中にそれぞれが暮らしているような気楽さがあると良いと考えました。
まとまった大きな共用部をつくらず、みちとスリットによって住人同士の関係性を編むように構成したことは、とても現代的な集合のあり方に繋がったのではないかと思います。
以下の写真はクリックで拡大します

成瀬・猪熊建築設計事務所による、東京・新宿区の集合住宅「風の道テラス」。坂道が並行して通る地域に建つコーポラティブハウス。風が通り視線も抜ける道の豊かさに着目し、“街の骨格”をそのまま敷地に入れ込む計画を考案。全体を6つに分割して空が見え光も差し込む5つのスリットを通す外観、西側の道路側より見る。 photo©西川公朗

成瀬・猪熊建築設計事務所による、東京・新宿区の集合住宅「風の道テラス」。坂道が並行して通る地域に建つコーポラティブハウス。風が通り視線も抜ける道の豊かさに着目し、“街の骨格”をそのまま敷地に入れ込む計画を考案。全体を6つに分割して空が見え光も差し込む5つのスリットを通す外観、敷地内の西側より見る。 photo©西川公朗

成瀬・猪熊建築設計事務所による、東京・新宿区の集合住宅「風の道テラス」。坂道が並行して通る地域に建つコーポラティブハウス。風が通り視線も抜ける道の豊かさに着目し、“街の骨格”をそのまま敷地に入れ込む計画を考案。全体を6つに分割して空が見え光も差し込む5つのスリットを通す外観、北側の散策路より見る。 photo©西川公朗

成瀬・猪熊建築設計事務所による、東京・新宿区の集合住宅「風の道テラス」。坂道が並行して通る地域に建つコーポラティブハウス。風が通り視線も抜ける道の豊かさに着目し、“街の骨格”をそのまま敷地に入れ込む計画を考案。全体を6つに分割して空が見え光も差し込む5つのスリットを通す外観、敷地内の北側より住戸18を見る。 photo©西川公朗

成瀬・猪熊建築設計事務所による、東京・新宿区の集合住宅「風の道テラス」。坂道が並行して通る地域に建つコーポラティブハウス。風が通り視線も抜ける道の豊かさに着目し、“街の骨格”をそのまま敷地に入れ込む計画を考案。全体を6つに分割して空が見え光も差し込む5つのスリットを通す1階、中廊下から住戸20側を見る。 photo©西川公朗

成瀬・猪熊建築設計事務所による、東京・新宿区の集合住宅「風の道テラス」。坂道が並行して通る地域に建つコーポラティブハウス。風が通り視線も抜ける道の豊かさに着目し、“街の骨格”をそのまま敷地に入れ込む計画を考案。全体を6つに分割して空が見え光も差し込む5つのスリットを通す1階、中廊下からスリットを見る。 photo©西川公朗

成瀬・猪熊建築設計事務所による、東京・新宿区の集合住宅「風の道テラス」。坂道が並行して通る地域に建つコーポラティブハウス。風が通り視線も抜ける道の豊かさに着目し、“街の骨格”をそのまま敷地に入れ込む計画を考案。全体を6つに分割して空が見え光も差し込む5つのスリットを通す1階、中廊下 photo©西川公朗

成瀬・猪熊建築設計事務所による、東京・新宿区の集合住宅「風の道テラス」。坂道が並行して通る地域に建つコーポラティブハウス。風が通り視線も抜ける道の豊かさに着目し、“街の骨格”をそのまま敷地に入れ込む計画を考案。全体を6つに分割して空が見え光も差し込む5つのスリットを通す住戸01、1階、寝室(内装設計:中倉康介建築設計事務所) photo©西川公朗

成瀬・猪熊建築設計事務所による、東京・新宿区の集合住宅「風の道テラス」。坂道が並行して通る地域に建つコーポラティブハウス。風が通り視線も抜ける道の豊かさに着目し、“街の骨格”をそのまま敷地に入れ込む計画を考案。全体を6つに分割して空が見え光も差し込む5つのスリットを通す住戸01、1階、書斎(内装設計:中倉康介建築設計事務所) photo©西川公朗

成瀬・猪熊建築設計事務所による、東京・新宿区の集合住宅「風の道テラス」。坂道が並行して通る地域に建つコーポラティブハウス。風が通り視線も抜ける道の豊かさに着目し、“街の骨格”をそのまま敷地に入れ込む計画を考案。全体を6つに分割して空が見え光も差し込む5つのスリットを通す住戸01、1階から2階への階段(内装設計:中倉康介建築設計事務所) photo©西川公朗

成瀬・猪熊建築設計事務所による、東京・新宿区の集合住宅「風の道テラス」。坂道が並行して通る地域に建つコーポラティブハウス。風が通り視線も抜ける道の豊かさに着目し、“街の骨格”をそのまま敷地に入れ込む計画を考案。全体を6つに分割して空が見え光も差し込む5つのスリットを通す住戸01、2階、ダイニングとリビング(内装設計:中倉康介建築設計事務所) photo©西川公朗

成瀬・猪熊建築設計事務所による、東京・新宿区の集合住宅「風の道テラス」。坂道が並行して通る地域に建つコーポラティブハウス。風が通り視線も抜ける道の豊かさに着目し、“街の骨格”をそのまま敷地に入れ込む計画を考案。全体を6つに分割して空が見え光も差し込む5つのスリットを通す住戸03、1階、ダイニングとリビング(内装設計:miCo.) photo©西川公朗

成瀬・猪熊建築設計事務所による、東京・新宿区の集合住宅「風の道テラス」。坂道が並行して通る地域に建つコーポラティブハウス。風が通り視線も抜ける道の豊かさに着目し、“街の骨格”をそのまま敷地に入れ込む計画を考案。全体を6つに分割して空が見え光も差し込む5つのスリットを通す住戸04、地下1階、キッチンからリビングを見る。(内装設計:miCo.) photo©西川公朗

成瀬・猪熊建築設計事務所による、東京・新宿区の集合住宅「風の道テラス」。坂道が並行して通る地域に建つコーポラティブハウス。風が通り視線も抜ける道の豊かさに着目し、“街の骨格”をそのまま敷地に入れ込む計画を考案。全体を6つに分割して空が見え光も差し込む5つのスリットを通す住戸04、地下1階、リビング(内装設計:miCo.) photo©西川公朗

成瀬・猪熊建築設計事務所による、東京・新宿区の集合住宅「風の道テラス」。坂道が並行して通る地域に建つコーポラティブハウス。風が通り視線も抜ける道の豊かさに着目し、“街の骨格”をそのまま敷地に入れ込む計画を考案。全体を6つに分割して空が見え光も差し込む5つのスリットを通す住戸05、2階、ダイニングからリビングと専用テラスを見る。(内装設計:miCo.) photo©西川公朗

成瀬・猪熊建築設計事務所による、東京・新宿区の集合住宅「風の道テラス」。坂道が並行して通る地域に建つコーポラティブハウス。風が通り視線も抜ける道の豊かさに着目し、“街の骨格”をそのまま敷地に入れ込む計画を考案。全体を6つに分割して空が見え光も差し込む5つのスリットを通す住戸05、2階、リビングから専用テラスとダイニングを見る。(内装設計:miCo.)(内装設計:miCo.) photo©西川公朗

成瀬・猪熊建築設計事務所による、東京・新宿区の集合住宅「風の道テラス」。坂道が並行して通る地域に建つコーポラティブハウス。風が通り視線も抜ける道の豊かさに着目し、“街の骨格”をそのまま敷地に入れ込む計画を考案。全体を6つに分割して空が見え光も差し込む5つのスリットを通す住戸06、地下2階、リビングからダイニングとキッチン側を見る。(内装設計:miCo.) photo©西川公朗

成瀬・猪熊建築設計事務所による、東京・新宿区の集合住宅「風の道テラス」。坂道が並行して通る地域に建つコーポラティブハウス。風が通り視線も抜ける道の豊かさに着目し、“街の骨格”をそのまま敷地に入れ込む計画を考案。全体を6つに分割して空が見え光も差し込む5つのスリットを通す住戸07、1階、エントランスから2階への階段を見る。(内装設計:Ishimura+Neichi) photo©西川公朗

成瀬・猪熊建築設計事務所による、東京・新宿区の集合住宅「風の道テラス」。坂道が並行して通る地域に建つコーポラティブハウス。風が通り視線も抜ける道の豊かさに着目し、“街の骨格”をそのまま敷地に入れ込む計画を考案。全体を6つに分割して空が見え光も差し込む5つのスリットを通す住戸07、2階、廊下からリビング側を見る。(内装設計:Ishimura+Neichi) photo©西川公朗

成瀬・猪熊建築設計事務所による、東京・新宿区の集合住宅「風の道テラス」。坂道が並行して通る地域に建つコーポラティブハウス。風が通り視線も抜ける道の豊かさに着目し、“街の骨格”をそのまま敷地に入れ込む計画を考案。全体を6つに分割して空が見え光も差し込む5つのスリットを通す住戸07、2階、キッチン(内装設計:Ishimura+Neichi) photo©西川公朗

成瀬・猪熊建築設計事務所による、東京・新宿区の集合住宅「風の道テラス」。坂道が並行して通る地域に建つコーポラティブハウス。風が通り視線も抜ける道の豊かさに着目し、“街の骨格”をそのまま敷地に入れ込む計画を考案。全体を6つに分割して空が見え光も差し込む5つのスリットを通す住戸07、2階、リビングからキッチン側を見る。(内装設計:Ishimura+Neichi) photo©西川公朗

成瀬・猪熊建築設計事務所による、東京・新宿区の集合住宅「風の道テラス」。坂道が並行して通る地域に建つコーポラティブハウス。風が通り視線も抜ける道の豊かさに着目し、“街の骨格”をそのまま敷地に入れ込む計画を考案。全体を6つに分割して空が見え光も差し込む5つのスリットを通す住戸07、2階、リビングから階段越しに書斎スペースを見る。(内装設計:Ishimura+Neichi) photo©西川公朗

成瀬・猪熊建築設計事務所による、東京・新宿区の集合住宅「風の道テラス」。坂道が並行して通る地域に建つコーポラティブハウス。風が通り視線も抜ける道の豊かさに着目し、“街の骨格”をそのまま敷地に入れ込む計画を考案。全体を6つに分割して空が見え光も差し込む5つのスリットを通す住戸07、2階、書斎スペースから階段越しにリビングを見る。(内装設計:Ishimura+Neichi)(内装設計:Ishimura+Neichi) photo©西川公朗

成瀬・猪熊建築設計事務所による、東京・新宿区の集合住宅「風の道テラス」。坂道が並行して通る地域に建つコーポラティブハウス。風が通り視線も抜ける道の豊かさに着目し、“街の骨格”をそのまま敷地に入れ込む計画を考案。全体を6つに分割して空が見え光も差し込む5つのスリットを通す住戸07、2階、専用テラス(内装設計:Ishimura+Neichi) photo©西川公朗

成瀬・猪熊建築設計事務所による、東京・新宿区の集合住宅「風の道テラス」。坂道が並行して通る地域に建つコーポラティブハウス。風が通り視線も抜ける道の豊かさに着目し、“街の骨格”をそのまま敷地に入れ込む計画を考案。全体を6つに分割して空が見え光も差し込む5つのスリットを通す住戸07、1階、寝室(内装設計:Ishimura+Neichi) photo©西川公朗

成瀬・猪熊建築設計事務所による、東京・新宿区の集合住宅「風の道テラス」。坂道が並行して通る地域に建つコーポラティブハウス。風が通り視線も抜ける道の豊かさに着目し、“街の骨格”をそのまま敷地に入れ込む計画を考案。全体を6つに分割して空が見え光も差し込む5つのスリットを通す住戸09、2階、リビングから専用テラスを見る。(内装設計:田中花巻事務所) photo©西川公朗

成瀬・猪熊建築設計事務所による、東京・新宿区の集合住宅「風の道テラス」。坂道が並行して通る地域に建つコーポラティブハウス。風が通り視線も抜ける道の豊かさに着目し、“街の骨格”をそのまま敷地に入れ込む計画を考案。全体を6つに分割して空が見え光も差し込む5つのスリットを通す住戸09、2階、専用テラス(内装設計:田中花巻事務所) photo©西川公朗

成瀬・猪熊建築設計事務所による、東京・新宿区の集合住宅「風の道テラス」。坂道が並行して通る地域に建つコーポラティブハウス。風が通り視線も抜ける道の豊かさに着目し、“街の骨格”をそのまま敷地に入れ込む計画を考案。全体を6つに分割して空が見え光も差し込む5つのスリットを通す住戸09、2階、浴室横から個室を見る。(内装設計:田中花巻事務所) photo©西川公朗

成瀬・猪熊建築設計事務所による、東京・新宿区の集合住宅「風の道テラス」。坂道が並行して通る地域に建つコーポラティブハウス。風が通り視線も抜ける道の豊かさに着目し、“街の骨格”をそのまま敷地に入れ込む計画を考案。全体を6つに分割して空が見え光も差し込む5つのスリットを通す住戸10、地下1階、廊下から地下2階を見下ろす。(内装設計:田中花巻事務所) photo©西川公朗

成瀬・猪熊建築設計事務所による、東京・新宿区の集合住宅「風の道テラス」。坂道が並行して通る地域に建つコーポラティブハウス。風が通り視線も抜ける道の豊かさに着目し、“街の骨格”をそのまま敷地に入れ込む計画を考案。全体を6つに分割して空が見え光も差し込む5つのスリットを通す住戸10、地下2階、リビングから専用テラスを見る。(内装設計:田中花巻事務所) photo©西川公朗

成瀬・猪熊建築設計事務所による、東京・新宿区の集合住宅「風の道テラス」。坂道が並行して通る地域に建つコーポラティブハウス。風が通り視線も抜ける道の豊かさに着目し、“街の骨格”をそのまま敷地に入れ込む計画を考案。全体を6つに分割して空が見え光も差し込む5つのスリットを通す住戸10、地下2階、専用テラス(内装設計:田中花巻事務所) photo©西川公朗

成瀬・猪熊建築設計事務所による、東京・新宿区の集合住宅「風の道テラス」。坂道が並行して通る地域に建つコーポラティブハウス。風が通り視線も抜ける道の豊かさに着目し、“街の骨格”をそのまま敷地に入れ込む計画を考案。全体を6つに分割して空が見え光も差し込む5つのスリットを通す住戸10、地下2階、専用テラスからリビングを見る。(内装設計:田中花巻事務所) photo©西川公朗

成瀬・猪熊建築設計事務所による、東京・新宿区の集合住宅「風の道テラス」。坂道が並行して通る地域に建つコーポラティブハウス。風が通り視線も抜ける道の豊かさに着目し、“街の骨格”をそのまま敷地に入れ込む計画を考案。全体を6つに分割して空が見え光も差し込む5つのスリットを通す住戸11、1階、エントランス側から室内を見る。(内装設計:田中花巻事務所) photo©西川公朗

成瀬・猪熊建築設計事務所による、東京・新宿区の集合住宅「風の道テラス」。坂道が並行して通る地域に建つコーポラティブハウス。風が通り視線も抜ける道の豊かさに着目し、“街の骨格”をそのまま敷地に入れ込む計画を考案。全体を6つに分割して空が見え光も差し込む5つのスリットを通す住戸11、2階、ダイニングと1階への階段(内装設計:田中花巻事務所) photo©西川公朗

成瀬・猪熊建築設計事務所による、東京・新宿区の集合住宅「風の道テラス」。坂道が並行して通る地域に建つコーポラティブハウス。風が通り視線も抜ける道の豊かさに着目し、“街の骨格”をそのまま敷地に入れ込む計画を考案。全体を6つに分割して空が見え光も差し込む5つのスリットを通す住戸11、2階、リビングからダイニングを見る。(内装設計:田中花巻事務所) photo©西川公朗

成瀬・猪熊建築設計事務所による、東京・新宿区の集合住宅「風の道テラス」。坂道が並行して通る地域に建つコーポラティブハウス。風が通り視線も抜ける道の豊かさに着目し、“街の骨格”をそのまま敷地に入れ込む計画を考案。全体を6つに分割して空が見え光も差し込む5つのスリットを通す住戸11、2階、リビングから小上がりを見る。(内装設計:田中花巻事務所) photo©西川公朗

成瀬・猪熊建築設計事務所による、東京・新宿区の集合住宅「風の道テラス」。坂道が並行して通る地域に建つコーポラティブハウス。風が通り視線も抜ける道の豊かさに着目し、“街の骨格”をそのまま敷地に入れ込む計画を考案。全体を6つに分割して空が見え光も差し込む5つのスリットを通す住戸12、地下1階、ダイニングから個室を見る。(内装設計:田中花巻事務所) photo©西川公朗

成瀬・猪熊建築設計事務所による、東京・新宿区の集合住宅「風の道テラス」。坂道が並行して通る地域に建つコーポラティブハウス。風が通り視線も抜ける道の豊かさに着目し、“街の骨格”をそのまま敷地に入れ込む計画を考案。全体を6つに分割して空が見え光も差し込む5つのスリットを通す住戸12、地下1階、階段越しに地下2階を見下ろす。(内装設計:田中花巻事務所) photo©西川公朗

成瀬・猪熊建築設計事務所による、東京・新宿区の集合住宅「風の道テラス」。坂道が並行して通る地域に建つコーポラティブハウス。風が通り視線も抜ける道の豊かさに着目し、“街の骨格”をそのまま敷地に入れ込む計画を考案。全体を6つに分割して空が見え光も差し込む5つのスリットを通す住戸12、地下1階、階段越しに地下2階を見下ろす。(内装設計:田中花巻事務所) photo©西川公朗

成瀬・猪熊建築設計事務所による、東京・新宿区の集合住宅「風の道テラス」。坂道が並行して通る地域に建つコーポラティブハウス。風が通り視線も抜ける道の豊かさに着目し、“街の骨格”をそのまま敷地に入れ込む計画を考案。全体を6つに分割して空が見え光も差し込む5つのスリットを通す住戸13、2階、ダイニングからリビングを見る。(内装設計:TATTA) photo©西川公朗

成瀬・猪熊建築設計事務所による、東京・新宿区の集合住宅「風の道テラス」。坂道が並行して通る地域に建つコーポラティブハウス。風が通り視線も抜ける道の豊かさに着目し、“街の骨格”をそのまま敷地に入れ込む計画を考案。全体を6つに分割して空が見え光も差し込む5つのスリットを通す住戸13、2階、個室(内装設計:TATTA) photo©西川公朗

成瀬・猪熊建築設計事務所による、東京・新宿区の集合住宅「風の道テラス」。坂道が並行して通る地域に建つコーポラティブハウス。風が通り視線も抜ける道の豊かさに着目し、“街の骨格”をそのまま敷地に入れ込む計画を考案。全体を6つに分割して空が見え光も差し込む5つのスリットを通す住戸16、1階から地下1階への階段(内装設計:TATTA) photo©西川公朗

成瀬・猪熊建築設計事務所による、東京・新宿区の集合住宅「風の道テラス」。坂道が並行して通る地域に建つコーポラティブハウス。風が通り視線も抜ける道の豊かさに着目し、“街の骨格”をそのまま敷地に入れ込む計画を考案。全体を6つに分割して空が見え光も差し込む5つのスリットを通す住戸16、地下1階、リビングからダイニングとキッチンを見る。(内装設計:TATTA) photo©西川公朗

成瀬・猪熊建築設計事務所による、東京・新宿区の集合住宅「風の道テラス」。坂道が並行して通る地域に建つコーポラティブハウス。風が通り視線も抜ける道の豊かさに着目し、“街の骨格”をそのまま敷地に入れ込む計画を考案。全体を6つに分割して空が見え光も差し込む5つのスリットを通す住戸17、1階、エントランス側から2階への階段側をみる。(内装設計:YY architects) photo©西川公朗

成瀬・猪熊建築設計事務所による、東京・新宿区の集合住宅「風の道テラス」。坂道が並行して通る地域に建つコーポラティブハウス。風が通り視線も抜ける道の豊かさに着目し、“街の骨格”をそのまま敷地に入れ込む計画を考案。全体を6つに分割して空が見え光も差し込む5つのスリットを通す住戸20、1階、個室側から地下1階への階段側を見る。(内装設計:YY architects) photo©西川公朗

成瀬・猪熊建築設計事務所による、東京・新宿区の集合住宅「風の道テラス」。坂道が並行して通る地域に建つコーポラティブハウス。風が通り視線も抜ける道の豊かさに着目し、“街の骨格”をそのまま敷地に入れ込む計画を考案。全体を6つに分割して空が見え光も差し込む5つのスリットを通す住戸20、地下1階、ダイニングとキッチンからリビング側を見る。(内装設計:YY architects) photo©西川公朗

成瀬・猪熊建築設計事務所による、東京・新宿区の集合住宅「風の道テラス」。坂道が並行して通る地域に建つコーポラティブハウス。風が通り視線も抜ける道の豊かさに着目し、“街の骨格”をそのまま敷地に入れ込む計画を考案。全体を6つに分割して空が見え光も差し込む5つのスリットを通す住戸20、地下1階、ダイニング側から1階への階段を見る。(内装設計:YY architects) photo©西川公朗

成瀬・猪熊建築設計事務所による、東京・新宿区の集合住宅「風の道テラス」。坂道が並行して通る地域に建つコーポラティブハウス。風が通り視線も抜ける道の豊かさに着目し、“街の骨格”をそのまま敷地に入れ込む計画を考案。全体を6つに分割して空が見え光も差し込む5つのスリットを通す外観、敷地内の北側より中廊下と住戸18を見る。夕景 photo©西川公朗

成瀬・猪熊建築設計事務所による、東京・新宿区の集合住宅「風の道テラス」。坂道が並行して通る地域に建つコーポラティブハウス。風が通り視線も抜ける道の豊かさに着目し、“街の骨格”をそのまま敷地に入れ込む計画を考案。全体を6つに分割して空が見え光も差し込む5つのスリットを通す外観、敷地内の北側より見る。夕景 photo©西川公朗

成瀬・猪熊建築設計事務所による、東京・新宿区の集合住宅「風の道テラス」。坂道が並行して通る地域に建つコーポラティブハウス。風が通り視線も抜ける道の豊かさに着目し、“街の骨格”をそのまま敷地に入れ込む計画を考案。全体を6つに分割して空が見え光も差し込む5つのスリットを通す外観、西側の道路側より見る。夕景 photo©西川公朗

成瀬・猪熊建築設計事務所による、東京・新宿区の集合住宅「風の道テラス」。坂道が並行して通る地域に建つコーポラティブハウス。風が通り視線も抜ける道の豊かさに着目し、“街の骨格”をそのまま敷地に入れ込む計画を考案。全体を6つに分割して空が見え光も差し込む5つのスリットを通す1階平面図 image©成瀬・猪熊建築設計事務所

成瀬・猪熊建築設計事務所による、東京・新宿区の集合住宅「風の道テラス」。坂道が並行して通る地域に建つコーポラティブハウス。風が通り視線も抜ける道の豊かさに着目し、“街の骨格”をそのまま敷地に入れ込む計画を考案。全体を6つに分割して空が見え光も差し込む5つのスリットを通す2階平面図 image©成瀬・猪熊建築設計事務所

成瀬・猪熊建築設計事務所による、東京・新宿区の集合住宅「風の道テラス」。坂道が並行して通る地域に建つコーポラティブハウス。風が通り視線も抜ける道の豊かさに着目し、“街の骨格”をそのまま敷地に入れ込む計画を考案。全体を6つに分割して空が見え光も差し込む5つのスリットを通す地下1階平面図 image©成瀬・猪熊建築設計事務所

成瀬・猪熊建築設計事務所による、東京・新宿区の集合住宅「風の道テラス」。坂道が並行して通る地域に建つコーポラティブハウス。風が通り視線も抜ける道の豊かさに着目し、“街の骨格”をそのまま敷地に入れ込む計画を考案。全体を6つに分割して空が見え光も差し込む5つのスリットを通す地下2階平面図 image©成瀬・猪熊建築設計事務所

成瀬・猪熊建築設計事務所による、東京・新宿区の集合住宅「風の道テラス」。坂道が並行して通る地域に建つコーポラティブハウス。風が通り視線も抜ける道の豊かさに着目し、“街の骨格”をそのまま敷地に入れ込む計画を考案。全体を6つに分割して空が見え光も差し込む5つのスリットを通すスリット詳細図 image©成瀬・猪熊建築設計事務所

成瀬・猪熊建築設計事務所による、東京・新宿区の集合住宅「風の道テラス」。坂道が並行して通る地域に建つコーポラティブハウス。風が通り視線も抜ける道の豊かさに着目し、“街の骨格”をそのまま敷地に入れ込む計画を考案。全体を6つに分割して空が見え光も差し込む5つのスリットを通すコンセプト図 image©成瀬・猪熊建築設計事務所

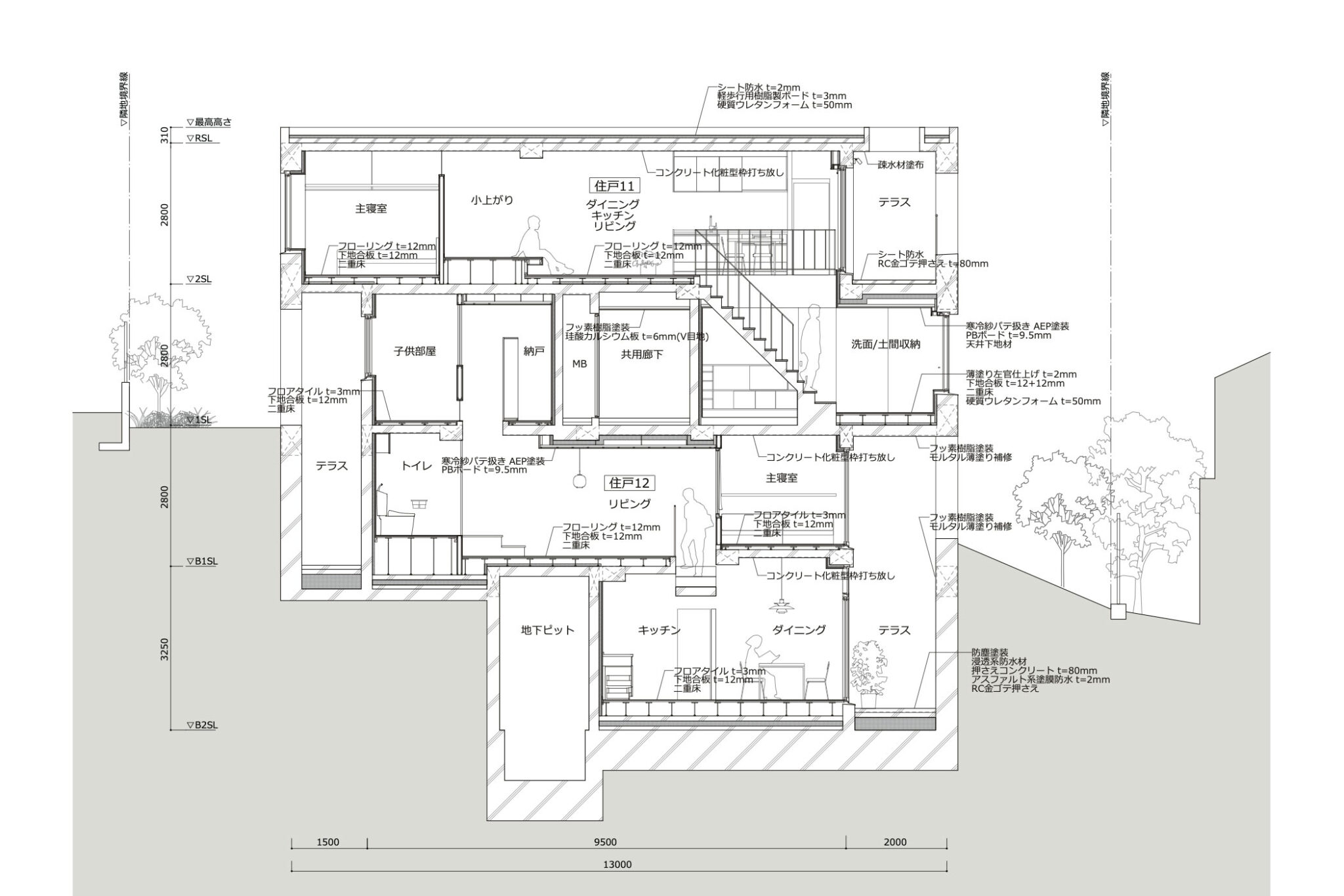
成瀬・猪熊建築設計事務所による、東京・新宿区の集合住宅「風の道テラス」。坂道が並行して通る地域に建つコーポラティブハウス。風が通り視線も抜ける道の豊かさに着目し、“街の骨格”をそのまま敷地に入れ込む計画を考案。全体を6つに分割して空が見え光も差し込む5つのスリットを通す断面詳細図 image©成瀬・猪熊建築設計事務所
以下、建築家によるテキストです。
まちの骨格に、暮らしを落とし込む
計画の敷地は新宿区の中井で、風情ある四の坂を挟んで林芙美子記念館の斜向かいとなる場所です。
周囲の地形は、北が台地、南が川となっており、四の坂だけでなく一ノ坂から八の坂までの坂が、ほぼ並行に通っています。南向きの坂は密集した住宅地でも、どれも気持ちよく風景が抜け、風がとおり、光があかるい豊かな環境になっている、なかなか特徴的な場所です。
そこで私たちが試みたのは、独特の地形から生まれた、坂が平行に並ぶまちの骨格を、そのまま敷地に入れ込むことです。
全体のボリュームに5つのスリットを平行に設け、ボリュームを6つに分けました。1,010~1,310mmまでの決して広くはない隙間ですが、南に建物があっても、空が見え、風がぬけ、光が差し込みます。
通路だけはこれに直行させ、建物を貫通する中廊下と、北側の外構を歩く散策路の二つを設け、中廊下に12戸、北側の散策路には8戸の玄関を設けました。
一見分かれた二つの通路は、行き来の風景がスリットによって繋がっています。また、二つの通路は建物の一番奥で繋がってループするようになっており、奥の住戸は、どちらを通っても道に出ることができ、子供であれば建物全体を使って鬼ごっこやかくれんぼも出来てしまうでしょう。
手前の広場のような場所も、数人で立ち話をするようなシーンをイメージし、クランクさせて死角をつくり、溜まれるような雰囲気をつくり出そうとしました。
20世帯が集まって暮らすといっても、各世帯の多様なライフスタイルがあり、近い距離感で一緒にいるというよりは、街の中にそれぞれが暮らしているような気楽さがあると良いと考えました。
まとまった大きな共用部をつくらず、みちとスリットによって住人同士の関係性を編むように構成したことは、とても現代的な集合のあり方に繋がったのではないかと思います。
■建築概要
題名:風の道テラス
所在地:東京都新宿区
用途:長屋・共同住宅(コーポラティブハウス)
建主:風の道テラス建設組合
企画・プロデュース:アーキネット
設計:成瀬・猪熊建築設計事務所 担当/成瀬友梨、猪熊純、川畑友紀子
構造:木下洋介構造計画
設備:環境エンジニアリング
監理協力:野副晋平建築計画事務所
───
インフィル設計・監理:
住戸01-02:中倉康介建築設計事務所
住戸03-06:miCo.
住戸07-08:Ishimura+Neichi
住戸09-12:田中花巻事務所
住戸13,15,16:TATTA 担当/富永大毅、藤間弥恵
住戸17-20:YY architects 担当/吉川真理子、庵原義隆
───
施工:河津建設
施工協力者:イケガミ(植栽)
構造:鉄筋コンクリート造、一部鉄骨造
階数:地下2階 地上2階
敷地面積:1096.04㎡
建築面積:561.23㎡
延べ床面積:1675.39㎡(地下2階 314.0㎡/地下1階 431.0㎡/1階 489.63㎡/2階 430.90㎡)
設計:2020年4月~20023年5月
施工:2023年6月~2024年12月
竣工:2024年12月
写真:西川公朗