青木真研究室による、東京・練馬区の「緑の家」。地域の散歩道となっている緑道沿いの敷地。体験への“特徴的なシーンの挿入”を意図し、曲面と平面が混交する“樹木に呼応したような形態”の建築を考案。内部はニッチ空間が立体的に連続した垂直的一室空間とする外観、北側の緑道より見る。 photo©日吉祥太
青木真研究室による、東京・練馬区の「緑の家」。地域の散歩道となっている緑道沿いの敷地。体験への“特徴的なシーンの挿入”を意図し、曲面と平面が混交する“樹木に呼応したような形態”の建築を考案。内部はニッチ空間が立体的に連続した垂直的一室空間とする外観、北側の緑道より見る。 photo©日吉祥太
青木真研究室による、東京・練馬区の「緑の家」。地域の散歩道となっている緑道沿いの敷地。体験への“特徴的なシーンの挿入”を意図し、曲面と平面が混交する“樹木に呼応したような形態”の建築を考案。内部はニッチ空間が立体的に連続した垂直的一室空間とする1階、キッチンからダイニングとエントランスを見る。(エントランスドアを開けた状態) photo©日吉祥太
青木真研究室が設計した、東京・練馬区の「緑の家」です。
地域の散歩道となっている緑道沿いの敷地での計画です。建築家は、体験への“特徴的なシーンの挿入”を意図し、曲面と平面が混交する“樹木に呼応したような形態”の建築を考案しました。また、内部はニッチ空間が立体的に連続した垂直的一室空間としています。
東京都練馬区の緑道沿いに立つ住宅である。
この緑道では近くの人々が花や果樹を育てており、地域の人々の散歩道として使われている。そのような線的な体験の中に、特徴的なシーンを挿入することを考えた。
緑道に面して余白なく立ち並んでいる街並みに対して、建物をセットバックしてテラスと小さな前庭を生み出した。テラスでは簡易的なDIY、前庭は忙しい中でも少しずつ植栽を育てる程度の大きさにして、徐々に地域の背景になることを期待した。玄関前には竹の花入れを和釘で留めつけ、季節の花を飾れるようにした。
ファサードは曲面と平面が混交した樹木に呼応したような形態と、銅とヒノキという時間変化するマテリアルを採用した。銅は一文字葺き、ヒノキは縦の羽目板として向きを違えつつ、曲面屋根はステンレスで統一した。形態的にも素材的にも、強い統一性が無く、かといってコラージュのような乱雑さも無い、想像力が外に開かれた外観を目指した。
敷地は49㎡と狭い一方、法的な道路幅は12mであるため高さ方向にはゆとりがある。そのため内部空間は多数の床が重なりつつ、さまざまなニッチ空間が立体的に連続した垂直的ワンルームを構想した。
1階では木造による立体的なファサードの結果として内部に現れる柱を丸太にし、そこを中心としたテーブルを製作した。道に面する北向きのハイサイドライトからの光で満たされるダイニングエリアとした。
人が集まれる1階に対して水回りなどは2階に集約した。トイレを中心にした回遊性のある平面の中にムラのある光環境を設え、住みながら使い方を発見できるような場所とした。強い機能で空間を規定しないことで、柔軟に将来の使い方の変更に対応できる。
以下の写真はクリックで拡大します

青木真研究室による、東京・練馬区の「緑の家」。地域の散歩道となっている緑道沿いの敷地。体験への“特徴的なシーンの挿入”を意図し、曲面と平面が混交する“樹木に呼応したような形態”の建築を考案。内部はニッチ空間が立体的に連続した垂直的一室空間とする俯瞰、北側より見下ろす。 photo©日吉祥太

青木真研究室による、東京・練馬区の「緑の家」。地域の散歩道となっている緑道沿いの敷地。体験への“特徴的なシーンの挿入”を意図し、曲面と平面が混交する“樹木に呼応したような形態”の建築を考案。内部はニッチ空間が立体的に連続した垂直的一室空間とする俯瞰、北東側より見下ろす。 photo©日吉祥太

青木真研究室による、東京・練馬区の「緑の家」。地域の散歩道となっている緑道沿いの敷地。体験への“特徴的なシーンの挿入”を意図し、曲面と平面が混交する“樹木に呼応したような形態”の建築を考案。内部はニッチ空間が立体的に連続した垂直的一室空間とする外観、北側の緑道より見る。 photo©日吉祥太

青木真研究室による、東京・練馬区の「緑の家」。地域の散歩道となっている緑道沿いの敷地。体験への“特徴的なシーンの挿入”を意図し、曲面と平面が混交する“樹木に呼応したような形態”の建築を考案。内部はニッチ空間が立体的に連続した垂直的一室空間とする外観、北側の緑道より見る。 photo©日吉祥太

青木真研究室による、東京・練馬区の「緑の家」。地域の散歩道となっている緑道沿いの敷地。体験への“特徴的なシーンの挿入”を意図し、曲面と平面が混交する“樹木に呼応したような形態”の建築を考案。内部はニッチ空間が立体的に連続した垂直的一室空間とする外観、北側の緑道より見る。 photo©日吉祥太

青木真研究室による、東京・練馬区の「緑の家」。地域の散歩道となっている緑道沿いの敷地。体験への“特徴的なシーンの挿入”を意図し、曲面と平面が混交する“樹木に呼応したような形態”の建築を考案。内部はニッチ空間が立体的に連続した垂直的一室空間とする外観、北側の緑道より見る。 photo©日吉祥太

青木真研究室による、東京・練馬区の「緑の家」。地域の散歩道となっている緑道沿いの敷地。体験への“特徴的なシーンの挿入”を意図し、曲面と平面が混交する“樹木に呼応したような形態”の建築を考案。内部はニッチ空間が立体的に連続した垂直的一室空間とする外観、外壁の詳細 photo©日吉祥太

青木真研究室による、東京・練馬区の「緑の家」。地域の散歩道となっている緑道沿いの敷地。体験への“特徴的なシーンの挿入”を意図し、曲面と平面が混交する“樹木に呼応したような形態”の建築を考案。内部はニッチ空間が立体的に連続した垂直的一室空間とする外観、外壁の詳細 photo©日吉祥太

青木真研究室による、東京・練馬区の「緑の家」。地域の散歩道となっている緑道沿いの敷地。体験への“特徴的なシーンの挿入”を意図し、曲面と平面が混交する“樹木に呼応したような形態”の建築を考案。内部はニッチ空間が立体的に連続した垂直的一室空間とするテラスとエントランス photo©日吉祥太

青木真研究室による、東京・練馬区の「緑の家」。地域の散歩道となっている緑道沿いの敷地。体験への“特徴的なシーンの挿入”を意図し、曲面と平面が混交する“樹木に呼応したような形態”の建築を考案。内部はニッチ空間が立体的に連続した垂直的一室空間とするテラスよりエントランスを見る。 photo©日吉祥太

青木真研究室による、東京・練馬区の「緑の家」。地域の散歩道となっている緑道沿いの敷地。体験への“特徴的なシーンの挿入”を意図し、曲面と平面が混交する“樹木に呼応したような形態”の建築を考案。内部はニッチ空間が立体的に連続した垂直的一室空間とする1階、キッチンからダイニングとエントランスを見る。 photo©日吉祥太

青木真研究室による、東京・練馬区の「緑の家」。地域の散歩道となっている緑道沿いの敷地。体験への“特徴的なシーンの挿入”を意図し、曲面と平面が混交する“樹木に呼応したような形態”の建築を考案。内部はニッチ空間が立体的に連続した垂直的一室空間とする1階、キッチンからダイニングとエントランスを見る。(エントランスドアを開けた状態) photo©日吉祥太

青木真研究室による、東京・練馬区の「緑の家」。地域の散歩道となっている緑道沿いの敷地。体験への“特徴的なシーンの挿入”を意図し、曲面と平面が混交する“樹木に呼応したような形態”の建築を考案。内部はニッチ空間が立体的に連続した垂直的一室空間とする1階、キッチンから階段側を見る。 photo©日吉祥太

青木真研究室による、東京・練馬区の「緑の家」。地域の散歩道となっている緑道沿いの敷地。体験への“特徴的なシーンの挿入”を意図し、曲面と平面が混交する“樹木に呼応したような形態”の建築を考案。内部はニッチ空間が立体的に連続した垂直的一室空間とする1階、キッチンからダイニングとエントランスを見る。 photo©日吉祥太

青木真研究室による、東京・練馬区の「緑の家」。地域の散歩道となっている緑道沿いの敷地。体験への“特徴的なシーンの挿入”を意図し、曲面と平面が混交する“樹木に呼応したような形態”の建築を考案。内部はニッチ空間が立体的に連続した垂直的一室空間とする1階、ダイニング photo©日吉祥太

青木真研究室による、東京・練馬区の「緑の家」。地域の散歩道となっている緑道沿いの敷地。体験への“特徴的なシーンの挿入”を意図し、曲面と平面が混交する“樹木に呼応したような形態”の建築を考案。内部はニッチ空間が立体的に連続した垂直的一室空間とする1階、ダイニング photo©日吉祥太

青木真研究室による、東京・練馬区の「緑の家」。地域の散歩道となっている緑道沿いの敷地。体験への“特徴的なシーンの挿入”を意図し、曲面と平面が混交する“樹木に呼応したような形態”の建築を考案。内部はニッチ空間が立体的に連続した垂直的一室空間とする1階、ダイニング(エントランスドアを開けた状態) photo©日吉祥太

青木真研究室による、東京・練馬区の「緑の家」。地域の散歩道となっている緑道沿いの敷地。体験への“特徴的なシーンの挿入”を意図し、曲面と平面が混交する“樹木に呼応したような形態”の建築を考案。内部はニッチ空間が立体的に連続した垂直的一室空間とする1階、ダイニングからエントランスを見る。 photo©日吉祥太

青木真研究室による、東京・練馬区の「緑の家」。地域の散歩道となっている緑道沿いの敷地。体験への“特徴的なシーンの挿入”を意図し、曲面と平面が混交する“樹木に呼応したような形態”の建築を考案。内部はニッチ空間が立体的に連続した垂直的一室空間とする1階、吹抜を見上げる。 photo©日吉祥太

青木真研究室による、東京・練馬区の「緑の家」。地域の散歩道となっている緑道沿いの敷地。体験への“特徴的なシーンの挿入”を意図し、曲面と平面が混交する“樹木に呼応したような形態”の建築を考案。内部はニッチ空間が立体的に連続した垂直的一室空間とする1階、ダイニングからキッチンと2階への階段を見る。 photo©日吉祥太

青木真研究室による、東京・練馬区の「緑の家」。地域の散歩道となっている緑道沿いの敷地。体験への“特徴的なシーンの挿入”を意図し、曲面と平面が混交する“樹木に呼応したような形態”の建築を考案。内部はニッチ空間が立体的に連続した垂直的一室空間とする1階ロフト photo©日吉祥太

青木真研究室による、東京・練馬区の「緑の家」。地域の散歩道となっている緑道沿いの敷地。体験への“特徴的なシーンの挿入”を意図し、曲面と平面が混交する“樹木に呼応したような形態”の建築を考案。内部はニッチ空間が立体的に連続した垂直的一室空間とする1階ロフト、1階のダイニングとエントランスを見下ろす。 photo©日吉祥太

青木真研究室による、東京・練馬区の「緑の家」。地域の散歩道となっている緑道沿いの敷地。体験への“特徴的なシーンの挿入”を意図し、曲面と平面が混交する“樹木に呼応したような形態”の建築を考案。内部はニッチ空間が立体的に連続した垂直的一室空間とする2階、1階への階段を見下ろす。 photo©日吉祥太

青木真研究室による、東京・練馬区の「緑の家」。地域の散歩道となっている緑道沿いの敷地。体験への“特徴的なシーンの挿入”を意図し、曲面と平面が混交する“樹木に呼応したような形態”の建築を考案。内部はニッチ空間が立体的に連続した垂直的一室空間とする2階、1階への階段側から2階ロフトへの階段側を見る。 photo©日吉祥太

青木真研究室による、東京・練馬区の「緑の家」。地域の散歩道となっている緑道沿いの敷地。体験への“特徴的なシーンの挿入”を意図し、曲面と平面が混交する“樹木に呼応したような形態”の建築を考案。内部はニッチ空間が立体的に連続した垂直的一室空間とする2階、1階への階段側から2階ロフトへの階段と「フレックスルーム」を見る。 photo©日吉祥太

青木真研究室による、東京・練馬区の「緑の家」。地域の散歩道となっている緑道沿いの敷地。体験への“特徴的なシーンの挿入”を意図し、曲面と平面が混交する“樹木に呼応したような形態”の建築を考案。内部はニッチ空間が立体的に連続した垂直的一室空間とする2階、フレックスルーム photo©日吉祥太

青木真研究室による、東京・練馬区の「緑の家」。地域の散歩道となっている緑道沿いの敷地。体験への“特徴的なシーンの挿入”を意図し、曲面と平面が混交する“樹木に呼応したような形態”の建築を考案。内部はニッチ空間が立体的に連続した垂直的一室空間とする2階、ウォッシュルームからギャラリーを見る。 photo©日吉祥太

青木真研究室による、東京・練馬区の「緑の家」。地域の散歩道となっている緑道沿いの敷地。体験への“特徴的なシーンの挿入”を意図し、曲面と平面が混交する“樹木に呼応したような形態”の建築を考案。内部はニッチ空間が立体的に連続した垂直的一室空間とする2階、ギャラリー photo©日吉祥太

青木真研究室による、東京・練馬区の「緑の家」。地域の散歩道となっている緑道沿いの敷地。体験への“特徴的なシーンの挿入”を意図し、曲面と平面が混交する“樹木に呼応したような形態”の建築を考案。内部はニッチ空間が立体的に連続した垂直的一室空間とする2階、1階への階段とギャラリー photo©日吉祥太

青木真研究室による、東京・練馬区の「緑の家」。地域の散歩道となっている緑道沿いの敷地。体験への“特徴的なシーンの挿入”を意図し、曲面と平面が混交する“樹木に呼応したような形態”の建築を考案。内部はニッチ空間が立体的に連続した垂直的一室空間とする2階、ギャラリー photo©日吉祥太

青木真研究室による、東京・練馬区の「緑の家」。地域の散歩道となっている緑道沿いの敷地。体験への“特徴的なシーンの挿入”を意図し、曲面と平面が混交する“樹木に呼応したような形態”の建築を考案。内部はニッチ空間が立体的に連続した垂直的一室空間とする2階、ギャラリー側から2階ロフトへの階段を見る。 photo©日吉祥太

青木真研究室による、東京・練馬区の「緑の家」。地域の散歩道となっている緑道沿いの敷地。体験への“特徴的なシーンの挿入”を意図し、曲面と平面が混交する“樹木に呼応したような形態”の建築を考案。内部はニッチ空間が立体的に連続した垂直的一室空間とする2階、バス photo©日吉祥太

青木真研究室による、東京・練馬区の「緑の家」。地域の散歩道となっている緑道沿いの敷地。体験への“特徴的なシーンの挿入”を意図し、曲面と平面が混交する“樹木に呼応したような形態”の建築を考案。内部はニッチ空間が立体的に連続した垂直的一室空間とする1階、柱と土台の詳細 photo©日吉祥太

青木真研究室による、東京・練馬区の「緑の家」。地域の散歩道となっている緑道沿いの敷地。体験への“特徴的なシーンの挿入”を意図し、曲面と平面が混交する“樹木に呼応したような形態”の建築を考案。内部はニッチ空間が立体的に連続した垂直的一室空間とする地下1階、「ベースメント」 photo©日吉祥太

青木真研究室による、東京・練馬区の「緑の家」。地域の散歩道となっている緑道沿いの敷地。体験への“特徴的なシーンの挿入”を意図し、曲面と平面が混交する“樹木に呼応したような形態”の建築を考案。内部はニッチ空間が立体的に連続した垂直的一室空間とする地下1階、「ベースメント」 photo©日吉祥太

青木真研究室による、東京・練馬区の「緑の家」。地域の散歩道となっている緑道沿いの敷地。体験への“特徴的なシーンの挿入”を意図し、曲面と平面が混交する“樹木に呼応したような形態”の建築を考案。内部はニッチ空間が立体的に連続した垂直的一室空間とする地下1階、「ベースメント」 photo©日吉祥太

青木真研究室による、東京・練馬区の「緑の家」。地域の散歩道となっている緑道沿いの敷地。体験への“特徴的なシーンの挿入”を意図し、曲面と平面が混交する“樹木に呼応したような形態”の建築を考案。内部はニッチ空間が立体的に連続した垂直的一室空間とするルーフトップ photo©日吉祥太

青木真研究室による、東京・練馬区の「緑の家」。地域の散歩道となっている緑道沿いの敷地。体験への“特徴的なシーンの挿入”を意図し、曲面と平面が混交する“樹木に呼応したような形態”の建築を考案。内部はニッチ空間が立体的に連続した垂直的一室空間とする外観、北側の緑道より見る。夕景 photo©日吉祥太

青木真研究室による、東京・練馬区の「緑の家」。地域の散歩道となっている緑道沿いの敷地。体験への“特徴的なシーンの挿入”を意図し、曲面と平面が混交する“樹木に呼応したような形態”の建築を考案。内部はニッチ空間が立体的に連続した垂直的一室空間とする地下1階平面図 image©青木真研究室

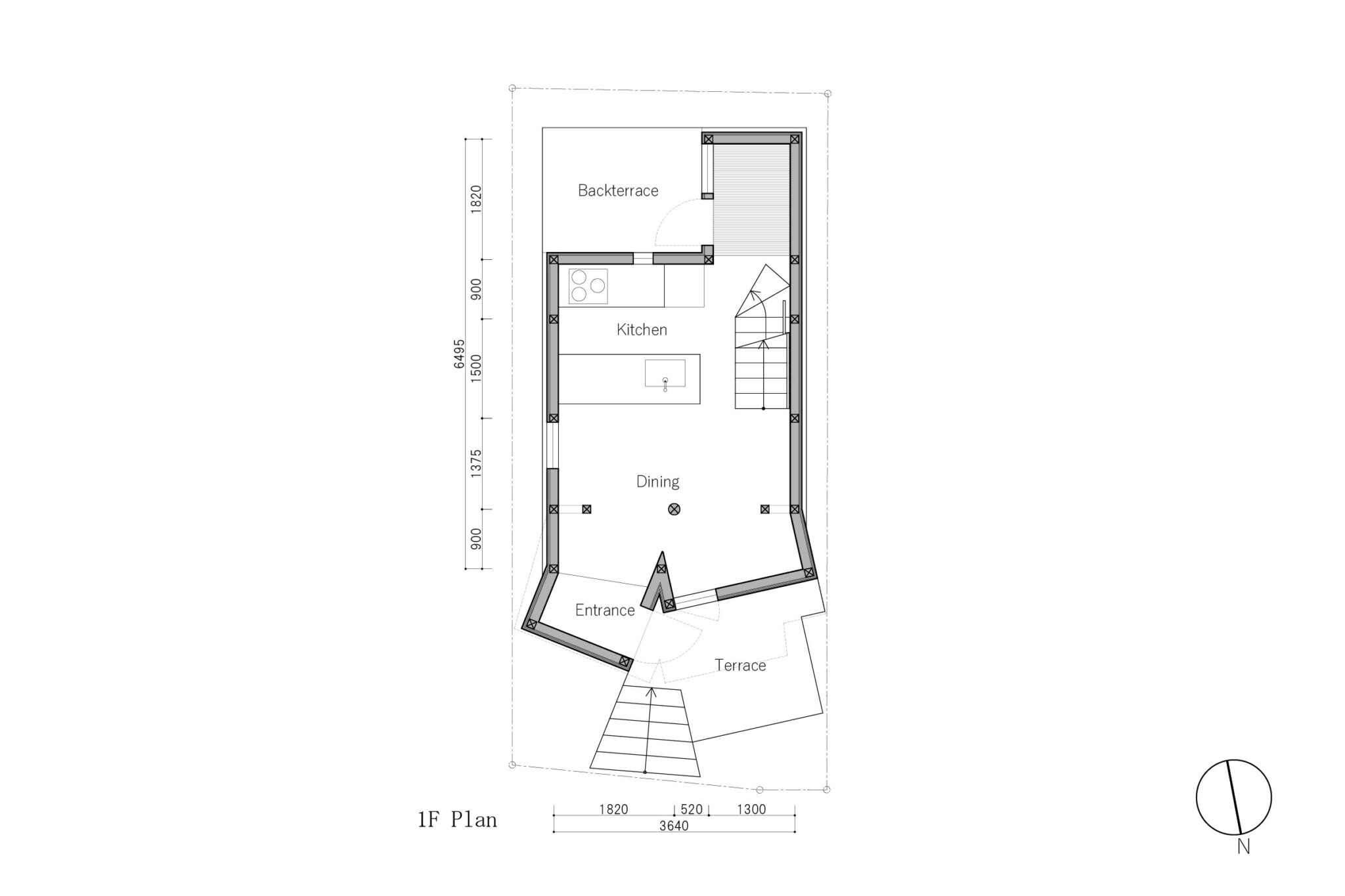
青木真研究室による、東京・練馬区の「緑の家」。地域の散歩道となっている緑道沿いの敷地。体験への“特徴的なシーンの挿入”を意図し、曲面と平面が混交する“樹木に呼応したような形態”の建築を考案。内部はニッチ空間が立体的に連続した垂直的一室空間とする1階平面図 image©青木真研究室

青木真研究室による、東京・練馬区の「緑の家」。地域の散歩道となっている緑道沿いの敷地。体験への“特徴的なシーンの挿入”を意図し、曲面と平面が混交する“樹木に呼応したような形態”の建築を考案。内部はニッチ空間が立体的に連続した垂直的一室空間とする1階ロフト平面図 image©青木真研究室

青木真研究室による、東京・練馬区の「緑の家」。地域の散歩道となっている緑道沿いの敷地。体験への“特徴的なシーンの挿入”を意図し、曲面と平面が混交する“樹木に呼応したような形態”の建築を考案。内部はニッチ空間が立体的に連続した垂直的一室空間とする2階平面図 image©青木真研究室

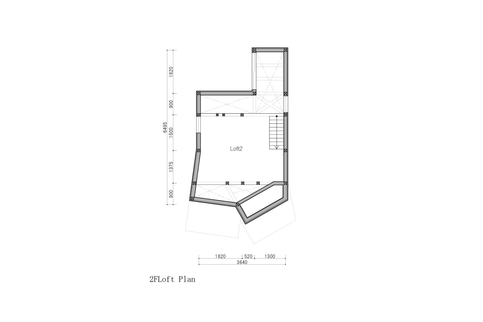
青木真研究室による、東京・練馬区の「緑の家」。地域の散歩道となっている緑道沿いの敷地。体験への“特徴的なシーンの挿入”を意図し、曲面と平面が混交する“樹木に呼応したような形態”の建築を考案。内部はニッチ空間が立体的に連続した垂直的一室空間とする2階ロフト平面図 image©青木真研究室

青木真研究室による、東京・練馬区の「緑の家」。地域の散歩道となっている緑道沿いの敷地。体験への“特徴的なシーンの挿入”を意図し、曲面と平面が混交する“樹木に呼応したような形態”の建築を考案。内部はニッチ空間が立体的に連続した垂直的一室空間とする屋根階平面図 image©青木真研究室

青木真研究室による、東京・練馬区の「緑の家」。地域の散歩道となっている緑道沿いの敷地。体験への“特徴的なシーンの挿入”を意図し、曲面と平面が混交する“樹木に呼応したような形態”の建築を考案。内部はニッチ空間が立体的に連続した垂直的一室空間とする北側立面図 image©青木真研究室

青木真研究室による、東京・練馬区の「緑の家」。地域の散歩道となっている緑道沿いの敷地。体験への“特徴的なシーンの挿入”を意図し、曲面と平面が混交する“樹木に呼応したような形態”の建築を考案。内部はニッチ空間が立体的に連続した垂直的一室空間とする断面図 image©青木真研究室
以下、建築家によるテキストです。
東京都練馬区の緑道沿いに立つ住宅である。
この緑道では近くの人々が花や果樹を育てており、地域の人々の散歩道として使われている。そのような線的な体験の中に、特徴的なシーンを挿入することを考えた。
緑道に面して余白なく立ち並んでいる街並みに対して、建物をセットバックしてテラスと小さな前庭を生み出した。テラスでは簡易的なDIY、前庭は忙しい中でも少しずつ植栽を育てる程度の大きさにして、徐々に地域の背景になることを期待した。玄関前には竹の花入れを和釘で留めつけ、季節の花を飾れるようにした。
ファサードは曲面と平面が混交した樹木に呼応したような形態と、銅とヒノキという時間変化するマテリアルを採用した。銅は一文字葺き、ヒノキは縦の羽目板として向きを違えつつ、曲面屋根はステンレスで統一した。形態的にも素材的にも、強い統一性が無く、かといってコラージュのような乱雑さも無い、想像力が外に開かれた外観を目指した。
敷地は49㎡と狭い一方、法的な道路幅は12mであるため高さ方向にはゆとりがある。そのため内部空間は多数の床が重なりつつ、さまざまなニッチ空間が立体的に連続した垂直的ワンルームを構想した。
1階では木造による立体的なファサードの結果として内部に現れる柱を丸太にし、そこを中心としたテーブルを製作した。道に面する北向きのハイサイドライトからの光で満たされるダイニングエリアとした。
人が集まれる1階に対して水回りなどは2階に集約した。トイレを中心にした回遊性のある平面の中にムラのある光環境を設え、住みながら使い方を発見できるような場所とした。強い機能で空間を規定しないことで、柔軟に将来の使い方の変更に対応できる。
南側には塔状のヴォイド空間を設け、すのこ床を通して建物全体に自然光を導入した。様々な高さ・方向に向けられた開口から差し込む光は白い壁に反射し、柔らかい光となって室内に導かれる。季節・時間帯・天気によって雰囲気の異なる光で満たされた室内空間を実現することが出来た。
■建築概要
題名:緑の家
所在地:東京都練馬区
主用途:専用住宅
設計:青木真研究室 担当/青木真
施工:栄伸建設 担当/榎本健二
構造設計:山辺構造設計事務所 担当/山辺豊彦、馬場淳一
不動産コンサルティング:創造系不動産 担当/山岸亮太
家具協力:西村俊貴
構造:木造
階数:地上2階 地下1階
敷地面積:49.59㎡
建築面積:24.70㎡
延床面積:69.65㎡
設計:2023年4月~2024年3月
工事:2024年4月~2024年12月
竣工:2025年1月
写真:日吉祥太