小阿瀬直+山田優+大嶋励 / SNARK Inc.による、東京の「三鷹の家」。公園に近い住宅街の狭小地に建つ住まい。限られた容積の中で“快適”を求め、天空率を用いた後退の回避で“街の空地の風景”を居住空間に導入。中央階段に家具の機能を付与して動線のみならず“居場所”にもする外観、東側の道路より見る。 photo©新澤一平
小阿瀬直+山田優+大嶋励 / SNARK Inc.による、東京の「三鷹の家」。公園に近い住宅街の狭小地に建つ住まい。限られた容積の中で“快適”を求め、天空率を用いた後退の回避で“街の空地の風景”を居住空間に導入。中央階段に家具の機能を付与して動線のみならず“居場所”にもする2階、リビングダイニングから3階への階段を見る。 photo©新澤一平
小阿瀬直+山田優+大嶋励 / SNARK Inc.による、東京の「三鷹の家」。公園に近い住宅街の狭小地に建つ住まい。限られた容積の中で“快適”を求め、天空率を用いた後退の回避で“街の空地の風景”を居住空間に導入。中央階段に家具の機能を付与して動線のみならず“居場所”にもする2階、リビングからダイニングを見る。 photo©新澤一平
小阿瀬直+山田優+大嶋励 / SNARK Inc.が設計した、東京の「三鷹の家」です。
公園に近い住宅街の狭小地に建つ住まいです。建築家は、限られた容積の中で“快適”を求め、天空率を用いた後退の回避で“街の空地の風景”を居住空間に導入しました。また、中央階段に家具の機能を付与して動線のみならず“居場所”にもしています。
井の頭恩賜公園近くの住宅地にある敷地面積44.58㎡の狭小住宅の計画である。
限られた容積の中で快適な居住空間を最大限に実現することを目指した。特に2階のLDKは家族が過ごす時間が長いため、天井を高く設計し開放感を重視した。
隣地の住宅が道路斜線制限により道路からセットバックして建つのに対し、天空率を利用して制限を緩和することで、居室を道路側へ寄せて配置することができ、隣地セットバック部分の街の空地の風景を取り込み、周辺環境との関係をつくりだした。
プランの中央に配置した3階まで続く階段には本棚や小さな窪みの飾り棚を設け、家具としての機能を加えている。階段そのものが単なる動線ではなく「居場所」となり、上下階を繋ぐ関係性が生まれるように設えた。
各階の繋がりを意識しながら、家全体を一体的に感じられる住宅である。
以下の写真はクリックで拡大します

小阿瀬直+山田優+大嶋励 / SNARK Inc.による、東京の「三鷹の家」。公園に近い住宅街の狭小地に建つ住まい。限られた容積の中で“快適”を求め、天空率を用いた後退の回避で“街の空地の風景”を居住空間に導入。中央階段に家具の機能を付与して動線のみならず“居場所”にもする外観、東側の道路より見る。 photo©新澤一平

小阿瀬直+山田優+大嶋励 / SNARK Inc.による、東京の「三鷹の家」。公園に近い住宅街の狭小地に建つ住まい。限られた容積の中で“快適”を求め、天空率を用いた後退の回避で“街の空地の風景”を居住空間に導入。中央階段に家具の機能を付与して動線のみならず“居場所”にもする外観、東側の道路より見る。 photo©新澤一平

小阿瀬直+山田優+大嶋励 / SNARK Inc.による、東京の「三鷹の家」。公園に近い住宅街の狭小地に建つ住まい。限られた容積の中で“快適”を求め、天空率を用いた後退の回避で“街の空地の風景”を居住空間に導入。中央階段に家具の機能を付与して動線のみならず“居場所”にもする外観、東側の道路より見る。 photo©新澤一平

小阿瀬直+山田優+大嶋励 / SNARK Inc.による、東京の「三鷹の家」。公園に近い住宅街の狭小地に建つ住まい。限られた容積の中で“快適”を求め、天空率を用いた後退の回避で“街の空地の風景”を居住空間に導入。中央階段に家具の機能を付与して動線のみならず“居場所”にもする1階、エントランスから2階への階段を見る。 photo©新澤一平

小阿瀬直+山田優+大嶋励 / SNARK Inc.による、東京の「三鷹の家」。公園に近い住宅街の狭小地に建つ住まい。限られた容積の中で“快適”を求め、天空率を用いた後退の回避で“街の空地の風景”を居住空間に導入。中央階段に家具の機能を付与して動線のみならず“居場所”にもする1階、納戸から洗面台と2階への階段を見る。 photo©新澤一平

小阿瀬直+山田優+大嶋励 / SNARK Inc.による、東京の「三鷹の家」。公園に近い住宅街の狭小地に建つ住まい。限られた容積の中で“快適”を求め、天空率を用いた後退の回避で“街の空地の風景”を居住空間に導入。中央階段に家具の機能を付与して動線のみならず“居場所”にもする1階、洗面台と2階への階段 photo©新澤一平

小阿瀬直+山田優+大嶋励 / SNARK Inc.による、東京の「三鷹の家」。公園に近い住宅街の狭小地に建つ住まい。限られた容積の中で“快適”を求め、天空率を用いた後退の回避で“街の空地の風景”を居住空間に導入。中央階段に家具の機能を付与して動線のみならず“居場所”にもする2階、キッチンから南側の開口部を見る。 photo©新澤一平

小阿瀬直+山田優+大嶋励 / SNARK Inc.による、東京の「三鷹の家」。公園に近い住宅街の狭小地に建つ住まい。限られた容積の中で“快適”を求め、天空率を用いた後退の回避で“街の空地の風景”を居住空間に導入。中央階段に家具の機能を付与して動線のみならず“居場所”にもする2階、ダイニングからリビングを見る。 photo©新澤一平

小阿瀬直+山田優+大嶋励 / SNARK Inc.による、東京の「三鷹の家」。公園に近い住宅街の狭小地に建つ住まい。限られた容積の中で“快適”を求め、天空率を用いた後退の回避で“街の空地の風景”を居住空間に導入。中央階段に家具の機能を付与して動線のみならず“居場所”にもする2階、リビングからダイニングを見る。 photo©新澤一平

小阿瀬直+山田優+大嶋励 / SNARK Inc.による、東京の「三鷹の家」。公園に近い住宅街の狭小地に建つ住まい。限られた容積の中で“快適”を求め、天空率を用いた後退の回避で“街の空地の風景”を居住空間に導入。中央階段に家具の機能を付与して動線のみならず“居場所”にもする2階、リビングダイニングから3階への階段を見る。 photo©新澤一平

小阿瀬直+山田優+大嶋励 / SNARK Inc.による、東京の「三鷹の家」。公園に近い住宅街の狭小地に建つ住まい。限られた容積の中で“快適”を求め、天空率を用いた後退の回避で“街の空地の風景”を居住空間に導入。中央階段に家具の機能を付与して動線のみならず“居場所”にもする2階、階段と家具 photo©新澤一平

小阿瀬直+山田優+大嶋励 / SNARK Inc.による、東京の「三鷹の家」。公園に近い住宅街の狭小地に建つ住まい。限られた容積の中で“快適”を求め、天空率を用いた後退の回避で“街の空地の風景”を居住空間に導入。中央階段に家具の機能を付与して動線のみならず“居場所”にもする3階、ワークスペースから2階への階段を見下ろす。 photo©新澤一平

小阿瀬直+山田優+大嶋励 / SNARK Inc.による、東京の「三鷹の家」。公園に近い住宅街の狭小地に建つ住まい。限られた容積の中で“快適”を求め、天空率を用いた後退の回避で“街の空地の風景”を居住空間に導入。中央階段に家具の機能を付与して動線のみならず“居場所”にもする3階、子供部屋からワークスペース越しに寝室を見る。 photo©新澤一平

小阿瀬直+山田優+大嶋励 / SNARK Inc.による、東京の「三鷹の家」。公園に近い住宅街の狭小地に建つ住まい。限られた容積の中で“快適”を求め、天空率を用いた後退の回避で“街の空地の風景”を居住空間に導入。中央階段に家具の機能を付与して動線のみならず“居場所”にもする3階、子供部屋から開口部越しに階段側を見る。 photo©新澤一平

小阿瀬直+山田優+大嶋励 / SNARK Inc.による、東京の「三鷹の家」。公園に近い住宅街の狭小地に建つ住まい。限られた容積の中で“快適”を求め、天空率を用いた後退の回避で“街の空地の風景”を居住空間に導入。中央階段に家具の機能を付与して動線のみならず“居場所”にもする3階、寝室からワークスペース側を見る。 photo©新澤一平

小阿瀬直+山田優+大嶋励 / SNARK Inc.による、東京の「三鷹の家」。公園に近い住宅街の狭小地に建つ住まい。限られた容積の中で“快適”を求め、天空率を用いた後退の回避で“街の空地の風景”を居住空間に導入。中央階段に家具の機能を付与して動線のみならず“居場所”にもする2階、ダイニングから階段をと家具を見る、夜景 photo©新澤一平

小阿瀬直+山田優+大嶋励 / SNARK Inc.による、東京の「三鷹の家」。公園に近い住宅街の狭小地に建つ住まい。限られた容積の中で“快適”を求め、天空率を用いた後退の回避で“街の空地の風景”を居住空間に導入。中央階段に家具の機能を付与して動線のみならず“居場所”にもする2階、キッチンからリビングとダイニングを見る、夜景 photo©新澤一平

小阿瀬直+山田優+大嶋励 / SNARK Inc.による、東京の「三鷹の家」。公園に近い住宅街の狭小地に建つ住まい。限られた容積の中で“快適”を求め、天空率を用いた後退の回避で“街の空地の風景”を居住空間に導入。中央階段に家具の機能を付与して動線のみならず“居場所”にもする外観、東側の道路より見る、夜景 photo©新澤一平

小阿瀬直+山田優+大嶋励 / SNARK Inc.による、東京の「三鷹の家」。公園に近い住宅街の狭小地に建つ住まい。限られた容積の中で“快適”を求め、天空率を用いた後退の回避で“街の空地の風景”を居住空間に導入。中央階段に家具の機能を付与して動線のみならず“居場所”にもする1階平面図 image©SNARK Inc.

小阿瀬直+山田優+大嶋励 / SNARK Inc.による、東京の「三鷹の家」。公園に近い住宅街の狭小地に建つ住まい。限られた容積の中で“快適”を求め、天空率を用いた後退の回避で“街の空地の風景”を居住空間に導入。中央階段に家具の機能を付与して動線のみならず“居場所”にもする2階平面図 image©SNARK Inc.

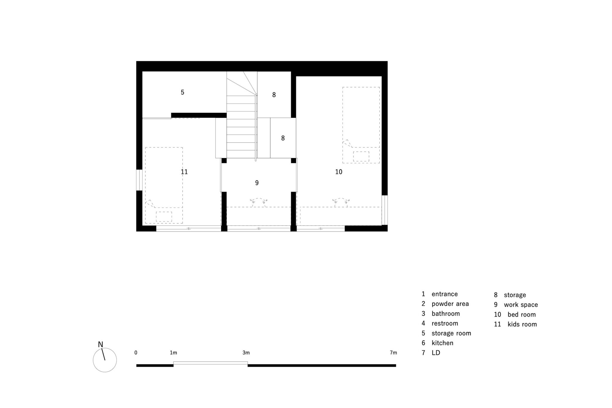
小阿瀬直+山田優+大嶋励 / SNARK Inc.による、東京の「三鷹の家」。公園に近い住宅街の狭小地に建つ住まい。限られた容積の中で“快適”を求め、天空率を用いた後退の回避で“街の空地の風景”を居住空間に導入。中央階段に家具の機能を付与して動線のみならず“居場所”にもする3階平面図 image©SNARK Inc.
以下、建築家によるテキストです。
井の頭恩賜公園近くの住宅地にある敷地面積44.58㎡の狭小住宅の計画である。
限られた容積の中で快適な居住空間を最大限に実現することを目指した。特に2階のLDKは家族が過ごす時間が長いため、天井を高く設計し開放感を重視した。
隣地の住宅が道路斜線制限により道路からセットバックして建つのに対し、天空率を利用して制限を緩和することで、居室を道路側へ寄せて配置することができ、隣地セットバック部分の街の空地の風景を取り込み、周辺環境との関係をつくりだした。
プランの中央に配置した3階まで続く階段には本棚や小さな窪みの飾り棚を設け、家具としての機能を加えている。階段そのものが単なる動線ではなく「居場所」となり、上下階を繋ぐ関係性が生まれるように設えた。
各階の繋がりを意識しながら、家全体を一体的に感じられる住宅である。
(小阿瀬直 / SNARK Inc.)
■建築概要
題名:三鷹の家
所在地:東京都三鷹市
主要用途:住宅
設計:SNARK Inc. 担当/小阿瀬直、関彩香(元所員)
構造設計:TECTONICA Inc. 担当/鶴田翔
施工:株式会社栄伸建設
構造:木造
規模:地上3階建て
敷地面積:44.58㎡
建築面積:29.06㎡(建蔽率65.18%)
延床面積:87.18㎡(容積率195.55%)
設計期間:2023年1月~2023年7月
工事期間:2023年8月~2024年2月
竣工:2024年2月
写真:新澤一平