佐久間徹設計事務所による、東京・三鷹市の「井の頭の家A」。閑静な住宅街の敷地。建て込む環境での“自然の感受”を求め、“45°回転させた正方形”を3つ並べて“複数の庭”を作り出す平面構成を考案。多方向の庭木への眺望の獲得と同時に内部空間に視覚的な奥行きも生む外観、北東側の道路より見る。 photo©西川公朗
佐久間徹設計事務所による、東京・三鷹市の「井の頭の家A」。閑静な住宅街の敷地。建て込む環境での“自然の感受”を求め、“45°回転させた正方形”を3つ並べて“複数の庭”を作り出す平面構成を考案。多方向の庭木への眺望の獲得と同時に内部空間に視覚的な奥行きも生む1階、エントランス側からホール1を見る。 photo©西川公朗
佐久間徹設計事務所による、東京・三鷹市の「井の頭の家A」。閑静な住宅街の敷地。建て込む環境での“自然の感受”を求め、“45°回転させた正方形”を3つ並べて“複数の庭”を作り出す平面構成を考案。多方向の庭木への眺望の獲得と同時に内部空間に視覚的な奥行きも生む1階、左:ホール1、右:キッチン photo©西川公朗
佐久間徹設計事務所による、東京・三鷹市の「井の頭の家A」。閑静な住宅街の敷地。建て込む環境での“自然の感受”を求め、“45°回転させた正方形”を3つ並べて“複数の庭”を作り出す平面構成を考案。多方向の庭木への眺望の獲得と同時に内部空間に視覚的な奥行きも生む2階、ホール2からルーム3側を見る。 photo©西川公朗
佐久間徹設計事務所が設計した、東京・三鷹市の「井の頭の家A」です。
閑静な住宅街の敷地での計画です。建築家は、建て込む環境での“自然の感受”を求め、“45°回転させた正方形”を3つ並べて“複数の庭”を作り出す平面構成を考案しました。そして、多方向の庭木への眺望の獲得と同時に内部空間に視覚的な奥行きも生んでいます。
井の頭公園からほど近く閑静な住宅街に建つ住宅である。
周囲を隣地建物に囲まれた環境にあるため、採光や通風を確保し、自然を感じるために、敷地内に意図的に外部空間をつくるように配置計画を考えた。
道路に向かって45°回転させた正方形を3つ並べ、45°ずれたギザギザが敷地内にいくつかの庭をつくる。雁行した内部空間が視覚的な奥行きをもたせ、どこを向いても庭の木々が目に入る。
正方形は対角線の距離が最も長い。これを利用していちばん遠くまで見通せる空間をつくるのはいつもの通り。それと同時に今回は家中のあちこちの居場所が見え隠れする。さらに中央の吹き抜けを介して見上げると空を見上げることができる。幾何学形を利用した平面であるが、うまれた内部空間は複雑で有機的だ。
環境性能の指針として、完全ZEHおよび東京ゼロエミ住宅の水準3(2024年基準)を取得している。ただ、あくまで目標は認定の取得ではなく実質的な環境性能を高めながら快適な暮らしを叶えることとし、省エネ計算の評価方法にも慎重な見方でシステムを組み立てて計画している。
最近、環境性能を追い求めるばかりに住宅が窓のない箱になった、という指摘を見聞きする。地球環境負荷への対策は社会的な正義ではあるが、それが住まい手にとっての価値を高めるかどうかはイコールではない。
今回のギザギザに雁行する外壁は、性能を高めることと逆行して、外皮の面積を増やして熱の損失を大きくしてしまっている。一方で、外部や内部の関係において替えがたい豊かさを与えてくれた。この方向性が相反する場合には葛藤せざるを得ないし、あまりうまく説明ができない。
この葛藤はプランだけでなく開口のバランスや設備設計の方針でも起きてくる。
地球環境の負荷を軽減することには大賛成である。だからこそ社会的な正しさによって建築や生活の文化的な側面(というと大仰かもしれないが)を見失わないようにしたいとも思う。
以下の写真はクリックで拡大します

佐久間徹設計事務所による、東京・三鷹市の「井の頭の家A」。閑静な住宅街の敷地。建て込む環境での“自然の感受”を求め、“45°回転させた正方形”を3つ並べて“複数の庭”を作り出す平面構成を考案。多方向の庭木への眺望の獲得と同時に内部空間に視覚的な奥行きも生む外観、北東側の道路より見る。 photo©西川公朗

佐久間徹設計事務所による、東京・三鷹市の「井の頭の家A」。閑静な住宅街の敷地。建て込む環境での“自然の感受”を求め、“45°回転させた正方形”を3つ並べて“複数の庭”を作り出す平面構成を考案。多方向の庭木への眺望の獲得と同時に内部空間に視覚的な奥行きも生む外観、北東側の道路より見る。 photo©西川公朗

佐久間徹設計事務所による、東京・三鷹市の「井の頭の家A」。閑静な住宅街の敷地。建て込む環境での“自然の感受”を求め、“45°回転させた正方形”を3つ並べて“複数の庭”を作り出す平面構成を考案。多方向の庭木への眺望の獲得と同時に内部空間に視覚的な奥行きも生む外観、敷地内の北東側より見る。 photo©西川公朗

佐久間徹設計事務所による、東京・三鷹市の「井の頭の家A」。閑静な住宅街の敷地。建て込む環境での“自然の感受”を求め、“45°回転させた正方形”を3つ並べて“複数の庭”を作り出す平面構成を考案。多方向の庭木への眺望の獲得と同時に内部空間に視覚的な奥行きも生むアプローチの詳細 photo©西川公朗

佐久間徹設計事務所による、東京・三鷹市の「井の頭の家A」。閑静な住宅街の敷地。建て込む環境での“自然の感受”を求め、“45°回転させた正方形”を3つ並べて“複数の庭”を作り出す平面構成を考案。多方向の庭木への眺望の獲得と同時に内部空間に視覚的な奥行きも生む1階、エントランス側からホール1を見る。 photo©西川公朗

佐久間徹設計事務所による、東京・三鷹市の「井の頭の家A」。閑静な住宅街の敷地。建て込む環境での“自然の感受”を求め、“45°回転させた正方形”を3つ並べて“複数の庭”を作り出す平面構成を考案。多方向の庭木への眺望の獲得と同時に内部空間に視覚的な奥行きも生む1階、ルーム1からホール1越しにキッチンをを見る。 photo©西川公朗

佐久間徹設計事務所による、東京・三鷹市の「井の頭の家A」。閑静な住宅街の敷地。建て込む環境での“自然の感受”を求め、“45°回転させた正方形”を3つ並べて“複数の庭”を作り出す平面構成を考案。多方向の庭木への眺望の獲得と同時に内部空間に視覚的な奥行きも生む1階、ホール1からキッチンを見る。 photo©西川公朗

佐久間徹設計事務所による、東京・三鷹市の「井の頭の家A」。閑静な住宅街の敷地。建て込む環境での“自然の感受”を求め、“45°回転させた正方形”を3つ並べて“複数の庭”を作り出す平面構成を考案。多方向の庭木への眺望の獲得と同時に内部空間に視覚的な奥行きも生む1階、ホール1からキッチンを見る。 photo©西川公朗

佐久間徹設計事務所による、東京・三鷹市の「井の頭の家A」。閑静な住宅街の敷地。建て込む環境での“自然の感受”を求め、“45°回転させた正方形”を3つ並べて“複数の庭”を作り出す平面構成を考案。多方向の庭木への眺望の獲得と同時に内部空間に視覚的な奥行きも生む1階、左:ホール1、右:キッチン photo©西川公朗

佐久間徹設計事務所による、東京・三鷹市の「井の頭の家A」。閑静な住宅街の敷地。建て込む環境での“自然の感受”を求め、“45°回転させた正方形”を3つ並べて“複数の庭”を作り出す平面構成を考案。多方向の庭木への眺望の獲得と同時に内部空間に視覚的な奥行きも生む1階、キッチンから開口部越しに庭を見る。 photo©西川公朗

佐久間徹設計事務所による、東京・三鷹市の「井の頭の家A」。閑静な住宅街の敷地。建て込む環境での“自然の感受”を求め、“45°回転させた正方形”を3つ並べて“複数の庭”を作り出す平面構成を考案。多方向の庭木への眺望の獲得と同時に内部空間に視覚的な奥行きも生む1階、キッチン側からホール1越しにルーム1を見る。 photo©西川公朗

佐久間徹設計事務所による、東京・三鷹市の「井の頭の家A」。閑静な住宅街の敷地。建て込む環境での“自然の感受”を求め、“45°回転させた正方形”を3つ並べて“複数の庭”を作り出す平面構成を考案。多方向の庭木への眺望の獲得と同時に内部空間に視覚的な奥行きも生む1階、ホール1から2階への階段を見る。 photo©西川公朗

佐久間徹設計事務所による、東京・三鷹市の「井の頭の家A」。閑静な住宅街の敷地。建て込む環境での“自然の感受”を求め、“45°回転させた正方形”を3つ並べて“複数の庭”を作り出す平面構成を考案。多方向の庭木への眺望の獲得と同時に内部空間に視覚的な奥行きも生む2階、ホール2から吹抜を見る。 photo©西川公朗

佐久間徹設計事務所による、東京・三鷹市の「井の頭の家A」。閑静な住宅街の敷地。建て込む環境での“自然の感受”を求め、“45°回転させた正方形”を3つ並べて“複数の庭”を作り出す平面構成を考案。多方向の庭木への眺望の獲得と同時に内部空間に視覚的な奥行きも生む2階、ホール2からルーム3側を見る。 photo©西川公朗

佐久間徹設計事務所による、東京・三鷹市の「井の頭の家A」。閑静な住宅街の敷地。建て込む環境での“自然の感受”を求め、“45°回転させた正方形”を3つ並べて“複数の庭”を作り出す平面構成を考案。多方向の庭木への眺望の獲得と同時に内部空間に視覚的な奥行きも生む1階、ルーム1 photo©西川公朗

佐久間徹設計事務所による、東京・三鷹市の「井の頭の家A」。閑静な住宅街の敷地。建て込む環境での“自然の感受”を求め、“45°回転させた正方形”を3つ並べて“複数の庭”を作り出す平面構成を考案。多方向の庭木への眺望の獲得と同時に内部空間に視覚的な奥行きも生む1階、ルーム1側からホール1越しにキッチンを見る。夕景 photo©西川公朗

佐久間徹設計事務所による、東京・三鷹市の「井の頭の家A」。閑静な住宅街の敷地。建て込む環境での“自然の感受”を求め、“45°回転させた正方形”を3つ並べて“複数の庭”を作り出す平面構成を考案。多方向の庭木への眺望の獲得と同時に内部空間に視覚的な奥行きも生む1階、ルーム1側からホール1越しにキッチンを見る。夕景 photo©西川公朗

佐久間徹設計事務所による、東京・三鷹市の「井の頭の家A」。閑静な住宅街の敷地。建て込む環境での“自然の感受”を求め、“45°回転させた正方形”を3つ並べて“複数の庭”を作り出す平面構成を考案。多方向の庭木への眺望の獲得と同時に内部空間に視覚的な奥行きも生む1階、エントランス側からホール1を見る。夕景 photo©西川公朗

佐久間徹設計事務所による、東京・三鷹市の「井の頭の家A」。閑静な住宅街の敷地。建て込む環境での“自然の感受”を求め、“45°回転させた正方形”を3つ並べて“複数の庭”を作り出す平面構成を考案。多方向の庭木への眺望の獲得と同時に内部空間に視覚的な奥行きも生むアプローチの詳細。夕景 photo©西川公朗

佐久間徹設計事務所による、東京・三鷹市の「井の頭の家A」。閑静な住宅街の敷地。建て込む環境での“自然の感受”を求め、“45°回転させた正方形”を3つ並べて“複数の庭”を作り出す平面構成を考案。多方向の庭木への眺望の獲得と同時に内部空間に視覚的な奥行きも生む外観、敷地内の北東側より見る。夕景 photo©西川公朗

佐久間徹設計事務所による、東京・三鷹市の「井の頭の家A」。閑静な住宅街の敷地。建て込む環境での“自然の感受”を求め、“45°回転させた正方形”を3つ並べて“複数の庭”を作り出す平面構成を考案。多方向の庭木への眺望の獲得と同時に内部空間に視覚的な奥行きも生む外観、北東側の道路より見る。夕景 photo©西川公朗

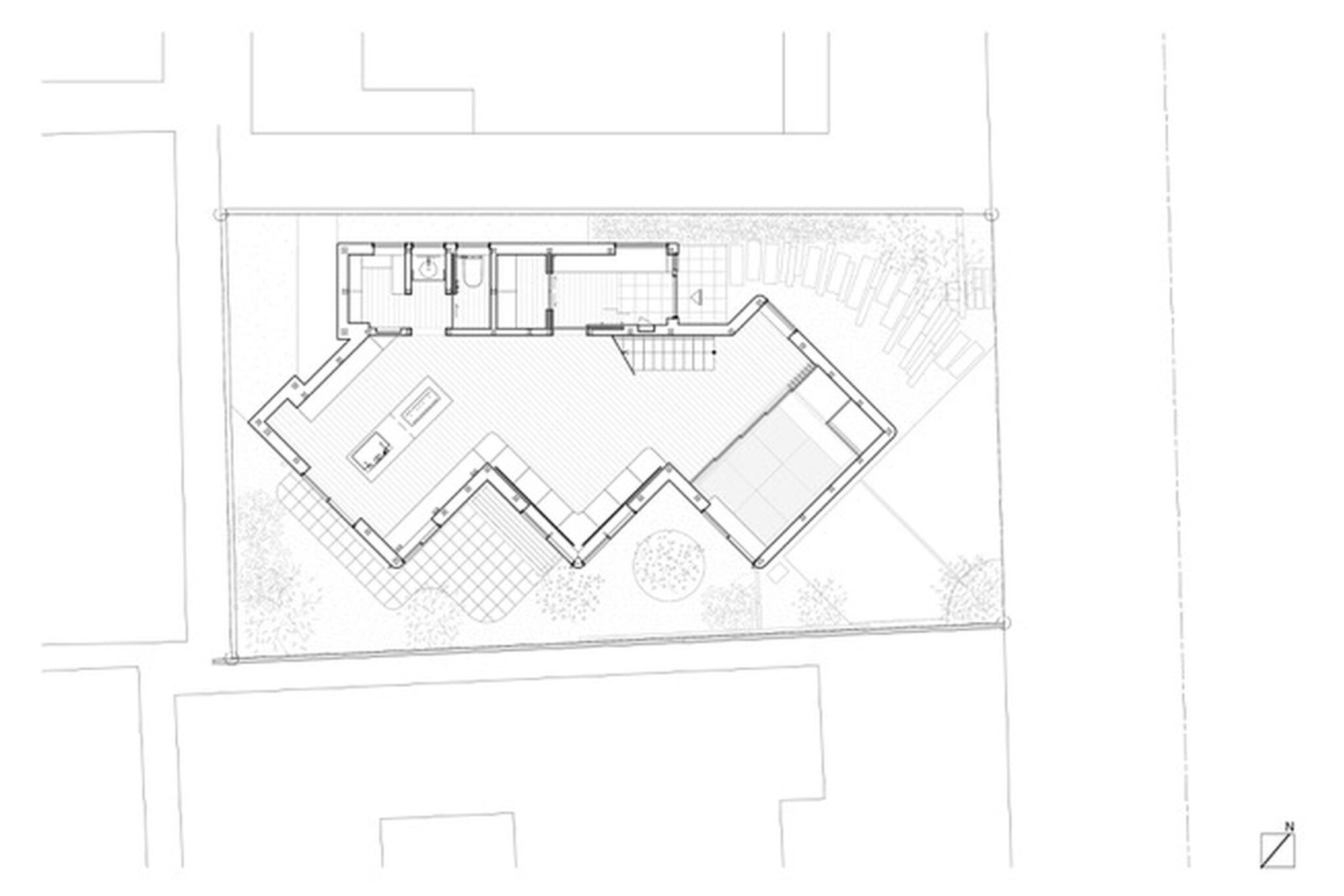
佐久間徹設計事務所による、東京・三鷹市の「井の頭の家A」。閑静な住宅街の敷地。建て込む環境での“自然の感受”を求め、“45°回転させた正方形”を3つ並べて“複数の庭”を作り出す平面構成を考案。多方向の庭木への眺望の獲得と同時に内部空間に視覚的な奥行きも生む1階平面図 image©佐久間徹設計事務所

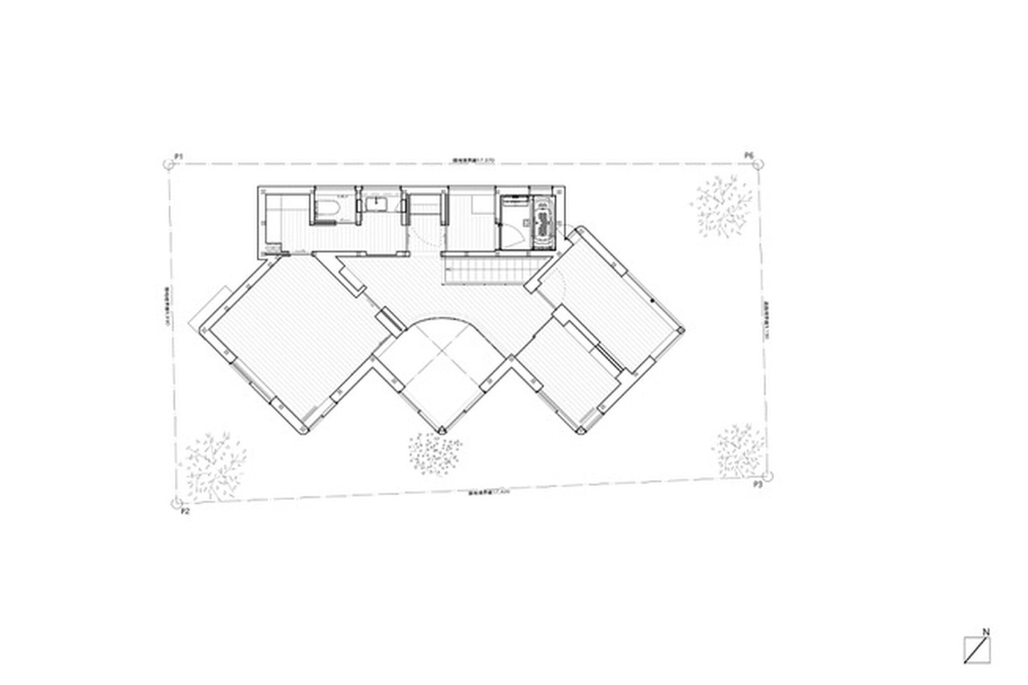
佐久間徹設計事務所による、東京・三鷹市の「井の頭の家A」。閑静な住宅街の敷地。建て込む環境での“自然の感受”を求め、“45°回転させた正方形”を3つ並べて“複数の庭”を作り出す平面構成を考案。多方向の庭木への眺望の獲得と同時に内部空間に視覚的な奥行きも生む2階平面図 image©佐久間徹設計事務所

佐久間徹設計事務所による、東京・三鷹市の「井の頭の家A」。閑静な住宅街の敷地。建て込む環境での“自然の感受”を求め、“45°回転させた正方形”を3つ並べて“複数の庭”を作り出す平面構成を考案。多方向の庭木への眺望の獲得と同時に内部空間に視覚的な奥行きも生む断面図 image©佐久間徹設計事務所
以下、建築家によるテキストです。
井の頭公園からほど近く閑静な住宅街に建つ住宅である。
周囲を隣地建物に囲まれた環境にあるため、採光や通風を確保し、自然を感じるために、敷地内に意図的に外部空間をつくるように配置計画を考えた。
道路に向かって45°回転させた正方形を3つ並べ、45°ずれたギザギザが敷地内にいくつかの庭をつくる。雁行した内部空間が視覚的な奥行きをもたせ、どこを向いても庭の木々が目に入る。
正方形は対角線の距離が最も長い。これを利用していちばん遠くまで見通せる空間をつくるのはいつもの通り。それと同時に今回は家中のあちこちの居場所が見え隠れする。さらに中央の吹き抜けを介して見上げると空を見上げることができる。幾何学形を利用した平面であるが、うまれた内部空間は複雑で有機的だ。
環境性能の指針として、完全ZEHおよび東京ゼロエミ住宅の水準3(2024年基準)を取得している。ただ、あくまで目標は認定の取得ではなく実質的な環境性能を高めながら快適な暮らしを叶えることとし、省エネ計算の評価方法にも慎重な見方でシステムを組み立てて計画している。
結果として、充填断熱と外張断熱の併用、オール電化と太陽光発電システムとHEMS、全館熱交換換気システム、ヒートポンプ式のエアコンと床暖房、が採用された。各所に気密性に対する処理も施し気密測定も行った。
一方、字面だけ追いかけると大きな設備が、極力かさばらないようにしたい。例えば熱交換換気システムは1階天井内自体をチャンバーとして利用し、省スペース化を計っている。その性能のおかげで、のびやかな空間に快適さを担保してくれた。
最近、環境性能を追い求めるばかりに住宅が窓のない箱になった、という指摘を見聞きする。地球環境負荷への対策は社会的な正義ではあるが、それが住まい手にとっての価値を高めるかどうかはイコールではない。
今回のギザギザに雁行する外壁は、性能を高めることと逆行して、外皮の面積を増やして熱の損失を大きくしてしまっている。一方で、外部や内部の関係において替えがたい豊かさを与えてくれた。この方向性が相反する場合には葛藤せざるを得ないし、あまりうまく説明ができない。
この葛藤はプランだけでなく開口のバランスや設備設計の方針でも起きてくる。
地球環境の負荷を軽減することには大賛成である。だからこそ社会的な正しさによって建築や生活の文化的な側面(というと大仰かもしれないが)を見失わないようにしたいとも思う。
年々暑くなっている夏も終わり、秋になった来た。空調をとめて、大きく開けた窓から風を通したい。
「寝る前には窓をしめておこう、お腹を冷やさないように」
そんなささやかな感性も大切していきたいと思った。
■建築概要
題名:井の頭の家A
所在地:東京都三鷹市井の頭
主用途:個人住宅
設計:佐久間徹設計事務所
施工:内田産業
造園:FUJIWARA NURSERY
構造:木造
階数:地上2階
敷地面積:166.91㎡
建築面積:66.75㎡
延床面積:122.90㎡
設計:2023年8月~2024年6月
工事:2024年6月~2025年5月
竣工:2025年5月
写真:西川公朗