向山博 / 向山建築設計事務所による、東京の「三鷹台ストリート」。駅前のバスターミナルと通りに面した店舗併設の集合住宅。ランドマークであり2つの用途が“協調しあう”在り方を目指し、外周の構造壁を千鳥状にずらして重ねる外観を考案。街への貢献も意図し滞在空間等を設ける外観、北西側の道路より見る。(建築家による解説:奥にバスターミナルが見える。1階店舗と2、3階住戸で構造壁が千鳥に配置した) photo©小出薫
向山博 / 向山建築設計事務所による、東京の「三鷹台ストリート」。駅前のバスターミナルと通りに面した店舗併設の集合住宅。ランドマークであり2つの用途が“協調しあう”在り方を目指し、外周の構造壁を千鳥状にずらして重ねる外観を考案。街への貢献も意図し滞在空間等を設ける2階、共用廊下から3階への階段を見る。(建築家による解説:3階のトップライトから光が注がれる) photo©小出薫
向山博 / 向山建築設計事務所による、東京の「三鷹台ストリート」。駅前のバスターミナルと通りに面した店舗併設の集合住宅。ランドマークであり2つの用途が“協調しあう”在り方を目指し、外周の構造壁を千鳥状にずらして重ねる外観を考案。街への貢献も意図し滞在空間等を設ける2階、住戸203号室(建築家による解説:床が低い分、天井が高い。窓は足元まで開けていて、街とダイレクトに繋がっている) photo©小出薫
向山博 / 向山建築設計事務所が設計した、東京・三鷹市の「三鷹台ストリート」です。
駅前のバスターミナルと通りに面した店舗併設の集合住宅です。建築家は、ランドマークであり2つの用途が“協調しあう”在り方を目指し、外周の構造壁を千鳥状にずらして重ねる外観を考案しました。また、街への貢献も意図し滞在空間等を設けています。
井の頭線三鷹台駅の駅前はもともと道路が狭く空地も少なく、バスが近くまで乗り入れできずにいたが、段階的に駅前道路が拡張され、バスターミナルも新設されるに至った。
その道路とバスターミナル、どちらにも面した角地に計画された店舗併設の集合住宅である。
バスターミナルに面して店舗入口を設けつつ、隣接したバスターミナル整備で残された空地もあわせて提案している。
駅前に滞在できるスペースを設け街に貢献したかった。同様に敷地の空地はすべて開放し、隣地の駐車場、駐輪場の利用者も自由に通り抜けできるようした。
外観については、建主より駅前のランドマークになるような建物にしたいという想いを聞いていた。
店舗と住戸の二つの用途が同一の建物を共有、協調しあうような外観を目指した。煉瓦タイルで仕上げた構造壁を店舗階と住戸階で千鳥状にずらし重ねた。用途の違いを明確にしつつ、協調しあう関係を表している。
立地が四周に開けているため、2、3階の住戸は外周に並べ、廊下を内廊下とした。方位によって様々な環境が享受できる魅力がある。2階の内廊下の床下は設備配管スペースとし、その結果うまれた住戸内の段差をいかし2.9mの天井高を確保。コンパクトな部屋でも豊かな空間となっている。
以下の写真はクリックで拡大します

向山博 / 向山建築設計事務所による、東京の「三鷹台ストリート」。駅前のバスターミナルと通りに面した店舗併設の集合住宅。ランドマークであり2つの用途が“協調しあう”在り方を目指し、外周の構造壁を千鳥状にずらして重ねる外観を考案。街への貢献も意図し滞在空間等を設ける外観、北西側の道路より見る。(建築家による解説:道路奥に三鷹台駅。写真右手が住戸へのアプローチ) photo©小出薫

向山博 / 向山建築設計事務所による、東京の「三鷹台ストリート」。駅前のバスターミナルと通りに面した店舗併設の集合住宅。ランドマークであり2つの用途が“協調しあう”在り方を目指し、外周の構造壁を千鳥状にずらして重ねる外観を考案。街への貢献も意図し滞在空間等を設ける外観、北西側の道路より見る。(建築家による解説:奥にバスターミナルが見える。1階店舗と2、3階住戸で構造壁が千鳥に配置した) photo©小出薫

向山博 / 向山建築設計事務所による、東京の「三鷹台ストリート」。駅前のバスターミナルと通りに面した店舗併設の集合住宅。ランドマークであり2つの用途が“協調しあう”在り方を目指し、外周の構造壁を千鳥状にずらして重ねる外観を考案。街への貢献も意図し滞在空間等を設ける外観、西側の外壁の詳細。(建築家による解説:駅に向かう歩行者のために歩道の幅を広げている。店舗の中からも味わえる緑。煉瓦タイルに埋め込まれた足元灯)
photo©小出薫

向山博 / 向山建築設計事務所による、東京の「三鷹台ストリート」。駅前のバスターミナルと通りに面した店舗併設の集合住宅。ランドマークであり2つの用途が“協調しあう”在り方を目指し、外周の構造壁を千鳥状にずらして重ねる外観を考案。街への貢献も意図し滞在空間等を設ける外観、北側の交差点より見る。 photo©小出薫

向山博 / 向山建築設計事務所による、東京の「三鷹台ストリート」。駅前のバスターミナルと通りに面した店舗併設の集合住宅。ランドマークであり2つの用途が“協調しあう”在り方を目指し、外周の構造壁を千鳥状にずらして重ねる外観を考案。街への貢献も意図し滞在空間等を設ける外観、北東のターミナル側より見る。(建築家による解説:駅側の立面。2つの店舗の入口が並ぶ) photo©小出薫

向山博 / 向山建築設計事務所による、東京の「三鷹台ストリート」。駅前のバスターミナルと通りに面した店舗併設の集合住宅。ランドマークであり2つの用途が“協調しあう”在り方を目指し、外周の構造壁を千鳥状にずらして重ねる外観を考案。街への貢献も意図し滞在空間等を設ける外観、北東のターミナル側より見る。(建築家による解説:解放されている階段を上ると住戸入口、隣接した駐車場、駐輪場にアプローチできる。写真左手は店舗利用者に開放されているテラス) photo©小出薫

向山博 / 向山建築設計事務所による、東京の「三鷹台ストリート」。駅前のバスターミナルと通りに面した店舗併設の集合住宅。ランドマークであり2つの用途が“協調しあう”在り方を目指し、外周の構造壁を千鳥状にずらして重ねる外観を考案。街への貢献も意図し滞在空間等を設ける外観、敷地内の南東側より見る。(建築家による解説:店舗利用者に開放されているテラス。バスターミナルの風景に活気が生まれる。テーブルや椅子を並べ路上カフェとして利用予定) photo©小出薫

向山博 / 向山建築設計事務所による、東京の「三鷹台ストリート」。駅前のバスターミナルと通りに面した店舗併設の集合住宅。ランドマークであり2つの用途が“協調しあう”在り方を目指し、外周の構造壁を千鳥状にずらして重ねる外観を考案。街への貢献も意図し滞在空間等を設ける1階、集合住宅の共用階段から2階の廊下を見る。(建築家による解説:デッキ下は配管スペース。メンテナンスが容易) photo©小出薫

向山博 / 向山建築設計事務所による、東京の「三鷹台ストリート」。駅前のバスターミナルと通りに面した店舗併設の集合住宅。ランドマークであり2つの用途が“協調しあう”在り方を目指し、外周の構造壁を千鳥状にずらして重ねる外観を考案。街への貢献も意図し滞在空間等を設ける2階、共用廊下から3階への階段を見る。(建築家による解説:3階のトップライトから光が注がれる) photo©小出薫

向山博 / 向山建築設計事務所による、東京の「三鷹台ストリート」。駅前のバスターミナルと通りに面した店舗併設の集合住宅。ランドマークであり2つの用途が“協調しあう”在り方を目指し、外周の構造壁を千鳥状にずらして重ねる外観を考案。街への貢献も意図し滞在空間等を設ける2階、住戸202号室(建築家による解説:共用廊下より住戸内が低く、天井高が確保されている) photo©小出薫

向山博 / 向山建築設計事務所による、東京の「三鷹台ストリート」。駅前のバスターミナルと通りに面した店舗併設の集合住宅。ランドマークであり2つの用途が“協調しあう”在り方を目指し、外周の構造壁を千鳥状にずらして重ねる外観を考案。街への貢献も意図し滞在空間等を設ける2階、住戸203号室(建築家による解説:床が低い分、天井が高い。窓は足元まで開けていて、街とダイレクトに繋がっている) photo©小出薫

向山博 / 向山建築設計事務所による、東京の「三鷹台ストリート」。駅前のバスターミナルと通りに面した店舗併設の集合住宅。ランドマークであり2つの用途が“協調しあう”在り方を目指し、外周の構造壁を千鳥状にずらして重ねる外観を考案。街への貢献も意図し滞在空間等を設ける2階、住戸206号室(建築家による解説:窓側にインナーバルコニー。奥はベッドルーム) photo©小出薫

向山博 / 向山建築設計事務所による、東京の「三鷹台ストリート」。駅前のバスターミナルと通りに面した店舗併設の集合住宅。ランドマークであり2つの用途が“協調しあう”在り方を目指し、外周の構造壁を千鳥状にずらして重ねる外観を考案。街への貢献も意図し滞在空間等を設ける2階、住戸207号室(建築家による解説:四方に開けているため開放感がある。梁型のような天井下がりはダクトスペース。煉瓦タイルの外壁面に吹出口がきて、壁面を汚さないために横引している) photo©小出薫

向山博 / 向山建築設計事務所による、東京の「三鷹台ストリート」。駅前のバスターミナルと通りに面した店舗併設の集合住宅。ランドマークであり2つの用途が“協調しあう”在り方を目指し、外周の構造壁を千鳥状にずらして重ねる外観を考案。街への貢献も意図し滞在空間等を設ける3階、共用廊下(建築家による解説:トップライトは取外しが可能で、室外機、給湯器等の更新が容易) photo©小出薫

向山博 / 向山建築設計事務所による、東京の「三鷹台ストリート」。駅前のバスターミナルと通りに面した店舗併設の集合住宅。ランドマークであり2つの用途が“協調しあう”在り方を目指し、外周の構造壁を千鳥状にずらして重ねる外観を考案。街への貢献も意図し滞在空間等を設ける3階、住戸304号室(建築家による解説:玄関から脱衣室兼廊下を見る) photo©小出薫

向山博 / 向山建築設計事務所による、東京の「三鷹台ストリート」。駅前のバスターミナルと通りに面した店舗併設の集合住宅。ランドマークであり2つの用途が“協調しあう”在り方を目指し、外周の構造壁を千鳥状にずらして重ねる外観を考案。街への貢献も意図し滞在空間等を設ける3階、住戸304号室(建築家による解説:回遊性のある間取。奥の玄関と手前寝室の間に水回りがある。普段は廊下、玄関側と寝室側の引戸を閉めると脱衣室となる) photo©小出薫

向山博 / 向山建築設計事務所による、東京の「三鷹台ストリート」。駅前のバスターミナルと通りに面した店舗併設の集合住宅。ランドマークであり2つの用途が“協調しあう”在り方を目指し、外周の構造壁を千鳥状にずらして重ねる外観を考案。街への貢献も意図し滞在空間等を設ける3階、住戸306号室(建築家による解説:布団を敷く想定の小上りがある。下部は収納) photo©小出薫

向山博 / 向山建築設計事務所による、東京の「三鷹台ストリート」。駅前のバスターミナルと通りに面した店舗併設の集合住宅。ランドマークであり2つの用途が“協調しあう”在り方を目指し、外周の構造壁を千鳥状にずらして重ねる外観を考案。街への貢献も意図し滞在空間等を設ける3階、住戸306号室(建築家による解説:小上がりから見る) photo©小出薫

向山博 / 向山建築設計事務所による、東京の「三鷹台ストリート」。駅前のバスターミナルと通りに面した店舗併設の集合住宅。ランドマークであり2つの用途が“協調しあう”在り方を目指し、外周の構造壁を千鳥状にずらして重ねる外観を考案。街への貢献も意図し滞在空間等を設ける外観、北西側の道路より見る。夕景 photo©小出薫

向山博 / 向山建築設計事務所による、東京の「三鷹台ストリート」。駅前のバスターミナルと通りに面した店舗併設の集合住宅。ランドマークであり2つの用途が“協調しあう”在り方を目指し、外周の構造壁を千鳥状にずらして重ねる外観を考案。街への貢献も意図し滞在空間等を設ける2階、住戸207号室。夜景 photo©小出薫

向山博 / 向山建築設計事務所による、東京の「三鷹台ストリート」。駅前のバスターミナルと通りに面した店舗併設の集合住宅。ランドマークであり2つの用途が“協調しあう”在り方を目指し、外周の構造壁を千鳥状にずらして重ねる外観を考案。街への貢献も意図し滞在空間等を設ける配置図 image©向山建築設計事務所

向山博 / 向山建築設計事務所による、東京の「三鷹台ストリート」。駅前のバスターミナルと通りに面した店舗併設の集合住宅。ランドマークであり2つの用途が“協調しあう”在り方を目指し、外周の構造壁を千鳥状にずらして重ねる外観を考案。街への貢献も意図し滞在空間等を設ける1階平面図 image©向山建築設計事務所

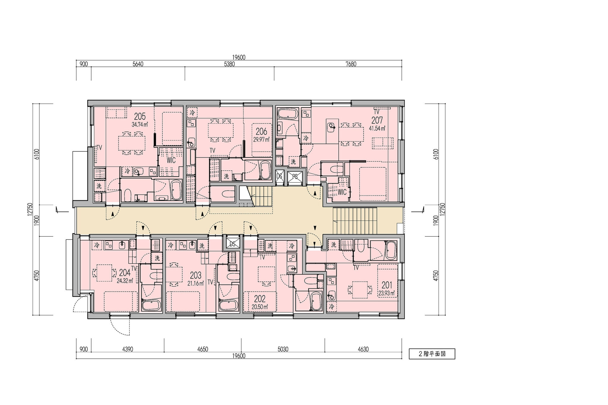
向山博 / 向山建築設計事務所による、東京の「三鷹台ストリート」。駅前のバスターミナルと通りに面した店舗併設の集合住宅。ランドマークであり2つの用途が“協調しあう”在り方を目指し、外周の構造壁を千鳥状にずらして重ねる外観を考案。街への貢献も意図し滞在空間等を設ける2階平面図 image©向山建築設計事務所

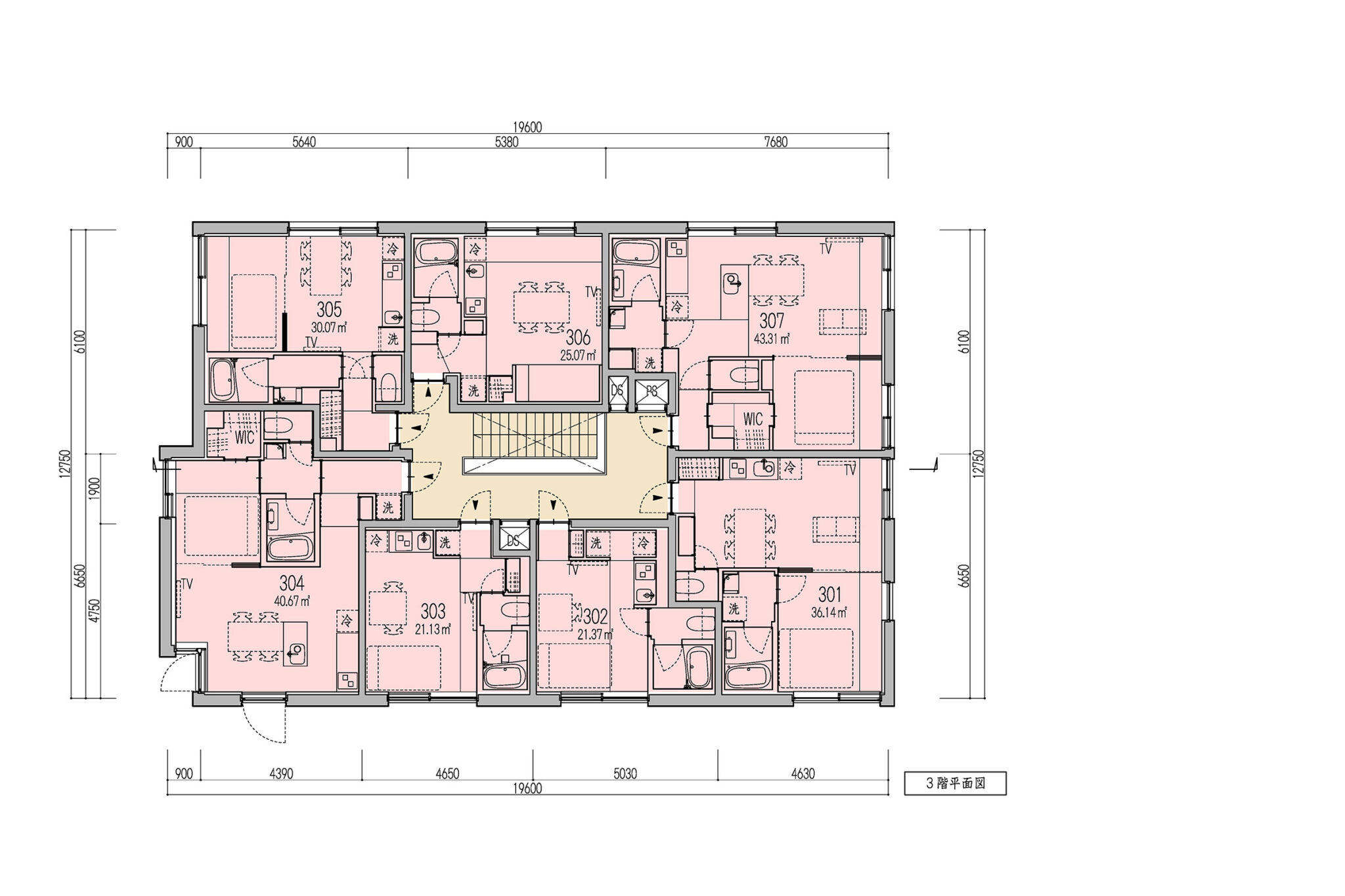
向山博 / 向山建築設計事務所による、東京の「三鷹台ストリート」。駅前のバスターミナルと通りに面した店舗併設の集合住宅。ランドマークであり2つの用途が“協調しあう”在り方を目指し、外周の構造壁を千鳥状にずらして重ねる外観を考案。街への貢献も意図し滞在空間等を設ける3階平面図 image©向山建築設計事務所

向山博 / 向山建築設計事務所による、東京の「三鷹台ストリート」。駅前のバスターミナルと通りに面した店舗併設の集合住宅。ランドマークであり2つの用途が“協調しあう”在り方を目指し、外周の構造壁を千鳥状にずらして重ねる外観を考案。街への貢献も意図し滞在空間等を設ける断面図 image©向山建築設計事務所
以下、建築家によるテキストです。
井の頭線三鷹台駅の駅前はもともと道路が狭く空地も少なく、バスが近くまで乗り入れできずにいたが、段階的に駅前道路が拡張され、バスターミナルも新設されるに至った。
その道路とバスターミナル、どちらにも面した角地に計画された店舗併設の集合住宅である。
バスターミナルに面して店舗入口を設けつつ、隣接したバスターミナル整備で残された空地もあわせて提案している。
駅前に滞在できるスペースを設け街に貢献したかった。同様に敷地の空地はすべて開放し、隣地の駐車場、駐輪場の利用者も自由に通り抜けできるようした。
外観については、建主より駅前のランドマークになるような建物にしたいという想いを聞いていた。
店舗と住戸の二つの用途が同一の建物を共有、協調しあうような外観を目指した。煉瓦タイルで仕上げた構造壁を店舗階と住戸階で千鳥状にずらし重ねた。用途の違いを明確にしつつ、協調しあう関係を表している。
立地が四周に開けているため、2、3階の住戸は外周に並べ、廊下を内廊下とした。方位によって様々な環境が享受できる魅力がある。2階の内廊下の床下は設備配管スペースとし、その結果うまれた住戸内の段差をいかし2.9mの天井高を確保。コンパクトな部屋でも豊かな空間となっている。
2、3階住戸の洗濯物等の生活感が駅前に表れてしまうためバルコニーは設けず、室内にインナーバルコニーとして利用できるスペースを設えている。植物などを置いたり、吊ったり暮らしに彩りを加えてほしい。
■建築概要
名称:三鷹台ストリート
場所:東京都三鷹市井の頭
主要用途:集合住宅14戸(約20~43㎡/戸)、店舗×2
意匠設計:向山建築設計事務所 担当/向山博、佐々木翔
構造設計:ASA 担当/鈴木啓
設備設計:ZO設計室
照明設計:コモレビデザイン(共用部・外構)
植栽計画:ユニバーサル園芸社
施工:山菱工務店
管理会社:シマダハウス
用途地区:近隣商業地域
建蔽容積:80% / 300%
防火地域:準防火地域
構造:壁式鉄筋コンクリート造
規模:地上3階
敷地面積:391.91㎡(118.55坪)
建築面積:244.55㎡ 建蔽率62.40%<100%緩和含む
延床面積:729.71㎡(220.73坪) 容積対象 662.27㎡ 容積率168.99%<300%
最高高さ:9.81m
設計期間:2022年12月~2024年9月
工事期間:2024年10月~2025年10月
竣工:2025年10月
撮影:小出薫