Eureka・早田大高事務所・佐野研究室による、さいたま市の「ブルー・ボックス・オフィス」。北向きで隣地と高低差もある敷地。“明るい空間”を求め、1階を“地域に開かれた空間”として全面開放すると共に2階の高窓からの光を内部で拡散させる建築を考案。極力壁を設けず“一体的な使用”も可能にする外観、北側の道路より見る。夕景 photo©Ookura Hideki
Eureka・早田大高事務所・佐野研究室による、さいたま市の「ブルー・ボックス・オフィス」。北向きで隣地と高低差もある敷地。“明るい空間”を求め、1階を“地域に開かれた空間”として全面開放すると共に2階の高窓からの光を内部で拡散させる建築を考案。極力壁を設けず“一体的な使用”も可能にする外観、北側の道路より見上げる。 photo©Ookura Hideki
Eureka・早田大高事務所・佐野研究室による、さいたま市の「ブルー・ボックス・オフィス」。北向きで隣地と高低差もある敷地。“明るい空間”を求め、1階を“地域に開かれた空間”として全面開放すると共に2階の高窓からの光を内部で拡散させる建築を考案。極力壁を設けず“一体的な使用”も可能にする1階、多目的スペースからエントランス越しにライブラリー側を見る。 photo©Ookura Hideki
Eureka・早田大高事務所・佐野研究室による、さいたま市の「ブルー・ボックス・オフィス」。北向きで隣地と高低差もある敷地。“明るい空間”を求め、1階を“地域に開かれた空間”として全面開放すると共に2階の高窓からの光を内部で拡散させる建築を考案。極力壁を設けず“一体的な使用”も可能にする2階、西側の事務室から北側の事務室を見る。 photo©Ookura Hideki
Eureka・早田大高事務所・慶応大学佐野研究室が設計した、さいたま市の「ブルー・ボックス・オフィス」です。
北向きで隣地と高低差もある敷地での計画です。建築家は、“明るい空間”を求め、1階を“地域に開かれた空間”として全面開放すると共に2階の高窓からの光を内部で拡散させる建築を考案しました。また、極力壁を設けず“一体的な使用”も可能にしています。
周辺環境に開かれた地域共生型の木造オフィス。
敷地はJR浦和駅近くの傾斜地で、造成された宅地に住宅が建ち並ぶエリアに位置しています。建築主は明るいオフィス空間を望んでいましたが、敷地は北側接道で、南東側の隣地境界に切り立つ擁壁と隣家群が影を落としていました。
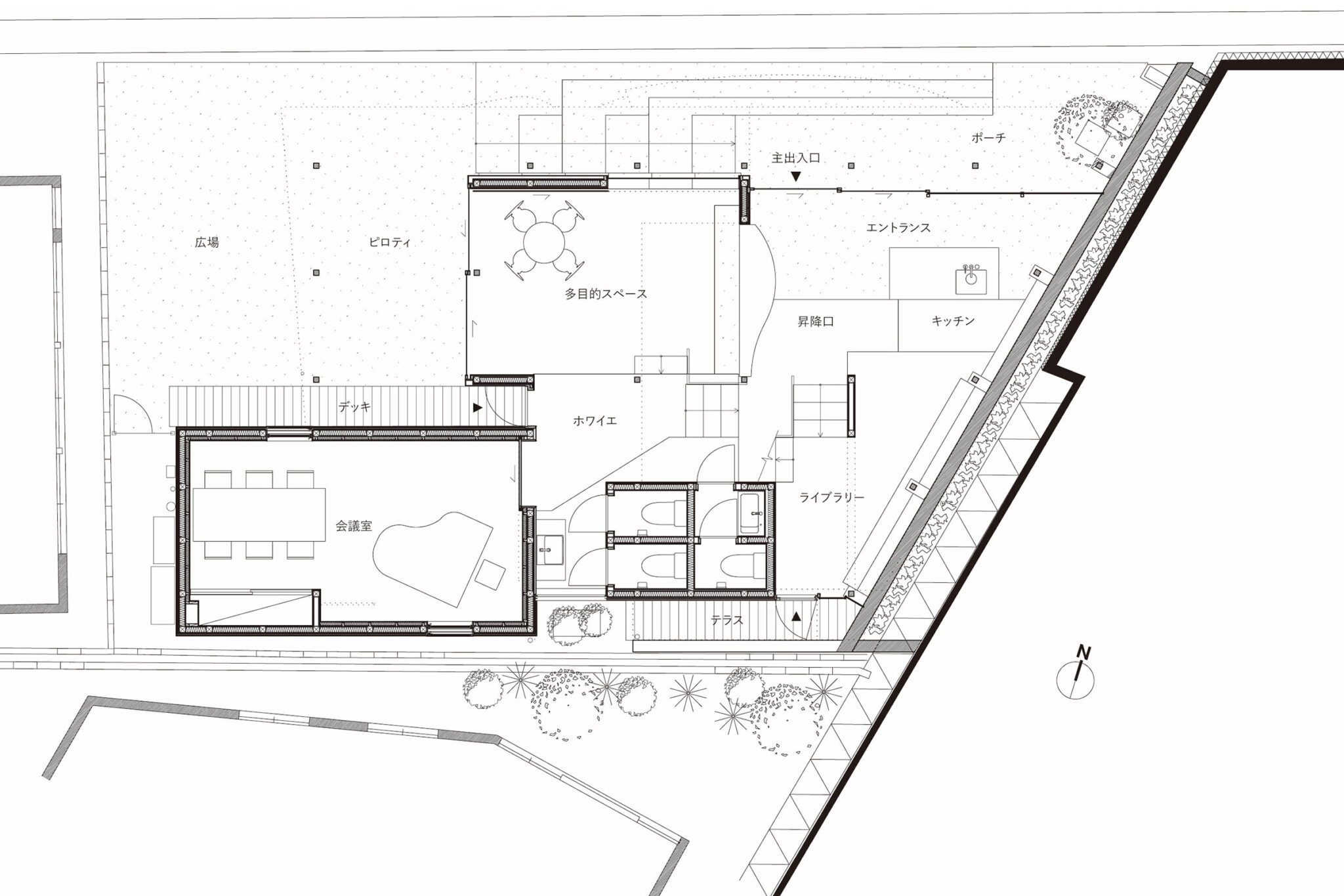
そこで、1階は北側道路に対して全面的に開いて採光すると共に地域に開かれた空間とし、2階は屋根頂部から取り入れた光を内部で拡散させるという方針をとりました。
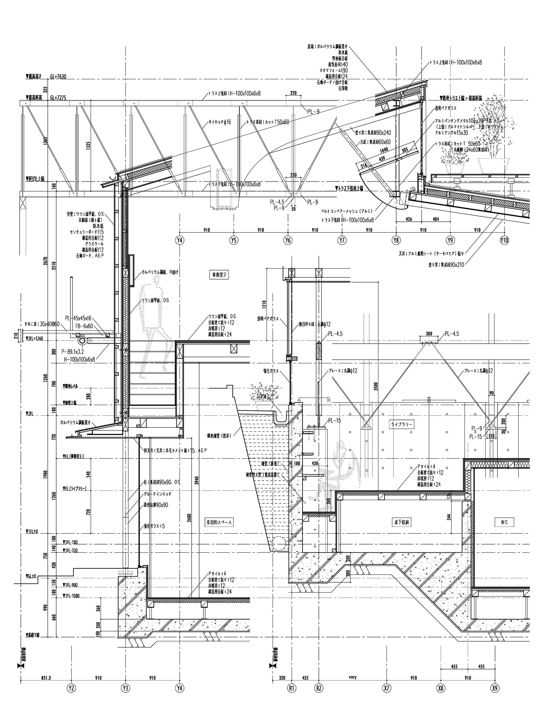
具体的には、屋根頂部の長手方向に鉄骨を木材で補剛したトラス梁を架け、トラス梁の側面から自然光を取り入れています。トラス梁から差し込んだ光をパンチングメタル製のライトシェルフが天井面へ反射し、室内全体に光が拡散されるようにしました。
敷地の傾斜に沿ったスキップフロアとすることで極力壁を設けずに空間を分け、一体的にも使用できる空間構成としました。
具体的には、1階はミーティングや休憩用の多目的スペース、アイランド型の流し台を設置した給湯スペース、軽作業もできる図書スペースという3つの空間がそれぞれ異なる床レベルにあります。
2階はパートタイムのスタッフが使うフリーアドレスのフロアと専門スタッフが使う固定席のフロアが異なる床レベルにあり、2つの床の隙間から1階エントランス付近の様子が見えるようになっています。
以下の写真はクリックで拡大します

Eureka・早田大高事務所・佐野研究室による、さいたま市の「ブルー・ボックス・オフィス」。北向きで隣地と高低差もある敷地。“明るい空間”を求め、1階を“地域に開かれた空間”として全面開放すると共に2階の高窓からの光を内部で拡散させる建築を考案。極力壁を設けず“一体的な使用”も可能にする外観、北側の道路より見る。夕景 photo©Ookura Hideki

Eureka・早田大高事務所・佐野研究室による、さいたま市の「ブルー・ボックス・オフィス」。北向きで隣地と高低差もある敷地。“明るい空間”を求め、1階を“地域に開かれた空間”として全面開放すると共に2階の高窓からの光を内部で拡散させる建築を考案。極力壁を設けず“一体的な使用”も可能にする外観、北側の道路より見上げる。 photo©Ookura Hideki

Eureka・早田大高事務所・佐野研究室による、さいたま市の「ブルー・ボックス・オフィス」。北向きで隣地と高低差もある敷地。“明るい空間”を求め、1階を“地域に開かれた空間”として全面開放すると共に2階の高窓からの光を内部で拡散させる建築を考案。極力壁を設けず“一体的な使用”も可能にする外観、北の道路側よりエントランスを見る。 photo©Ookura Hideki

Eureka・早田大高事務所・佐野研究室による、さいたま市の「ブルー・ボックス・オフィス」。北向きで隣地と高低差もある敷地。“明るい空間”を求め、1階を“地域に開かれた空間”として全面開放すると共に2階の高窓からの光を内部で拡散させる建築を考案。極力壁を設けず“一体的な使用”も可能にする1階、ポーチからエントランス越しにキッチンを見る。 photo©Ookura Hideki

Eureka・早田大高事務所・佐野研究室による、さいたま市の「ブルー・ボックス・オフィス」。北向きで隣地と高低差もある敷地。“明るい空間”を求め、1階を“地域に開かれた空間”として全面開放すると共に2階の高窓からの光を内部で拡散させる建築を考案。極力壁を設けず“一体的な使用”も可能にする1階、多目的スペースからエントランスを見る。 photo©Ookura Hideki

Eureka・早田大高事務所・佐野研究室による、さいたま市の「ブルー・ボックス・オフィス」。北向きで隣地と高低差もある敷地。“明るい空間”を求め、1階を“地域に開かれた空間”として全面開放すると共に2階の高窓からの光を内部で拡散させる建築を考案。極力壁を設けず“一体的な使用”も可能にする1階、多目的スペースからエントランス越しにライブラリー側を見る。 photo©Ookura Hideki

Eureka・早田大高事務所・佐野研究室による、さいたま市の「ブルー・ボックス・オフィス」。北向きで隣地と高低差もある敷地。“明るい空間”を求め、1階を“地域に開かれた空間”として全面開放すると共に2階の高窓からの光を内部で拡散させる建築を考案。極力壁を設けず“一体的な使用”も可能にする1階、ライブラリーからエントランスを見る。 photo©Ookura Hideki

Eureka・早田大高事務所・佐野研究室による、さいたま市の「ブルー・ボックス・オフィス」。北向きで隣地と高低差もある敷地。“明るい空間”を求め、1階を“地域に開かれた空間”として全面開放すると共に2階の高窓からの光を内部で拡散させる建築を考案。極力壁を設けず“一体的な使用”も可能にする2階、東側の事務室から西側の事務室を見る。 photo©Ookura Hideki

Eureka・早田大高事務所・佐野研究室による、さいたま市の「ブルー・ボックス・オフィス」。北向きで隣地と高低差もある敷地。“明るい空間”を求め、1階を“地域に開かれた空間”として全面開放すると共に2階の高窓からの光を内部で拡散させる建築を考案。極力壁を設けず“一体的な使用”も可能にする2階、西側の事務室から1階を見下ろす。 photo©Ookura Hideki

Eureka・早田大高事務所・佐野研究室による、さいたま市の「ブルー・ボックス・オフィス」。北向きで隣地と高低差もある敷地。“明るい空間”を求め、1階を“地域に開かれた空間”として全面開放すると共に2階の高窓からの光を内部で拡散させる建築を考案。極力壁を設けず“一体的な使用”も可能にする2階、西側の事務室から北側の事務室を見る。 photo©Ookura Hideki

Eureka・早田大高事務所・佐野研究室による、さいたま市の「ブルー・ボックス・オフィス」。北向きで隣地と高低差もある敷地。“明るい空間”を求め、1階を“地域に開かれた空間”として全面開放すると共に2階の高窓からの光を内部で拡散させる建築を考案。極力壁を設けず“一体的な使用”も可能にする2階、西側の事務室から北側の事務室を見る。 photo©Ookura Hideki

Eureka・早田大高事務所・佐野研究室による、さいたま市の「ブルー・ボックス・オフィス」。北向きで隣地と高低差もある敷地。“明るい空間”を求め、1階を“地域に開かれた空間”として全面開放すると共に2階の高窓からの光を内部で拡散させる建築を考案。極力壁を設けず“一体的な使用”も可能にする2階、北側の事務室から西側の事務室を見る。 photo©Ookura Hideki

Eureka・早田大高事務所・佐野研究室による、さいたま市の「ブルー・ボックス・オフィス」。北向きで隣地と高低差もある敷地。“明るい空間”を求め、1階を“地域に開かれた空間”として全面開放すると共に2階の高窓からの光を内部で拡散させる建築を考案。極力壁を設けず“一体的な使用”も可能にする2階、ハイサイドライトとライトシェルフ photo©Ookura Hideki

Eureka・早田大高事務所・佐野研究室による、さいたま市の「ブルー・ボックス・オフィス」。北向きで隣地と高低差もある敷地。“明るい空間”を求め、1階を“地域に開かれた空間”として全面開放すると共に2階の高窓からの光を内部で拡散させる建築を考案。極力壁を設けず“一体的な使用”も可能にする1階平面図 image©Eureka+早田大高設計事務所+慶応大学佐野研究室

Eureka・早田大高事務所・佐野研究室による、さいたま市の「ブルー・ボックス・オフィス」。北向きで隣地と高低差もある敷地。“明るい空間”を求め、1階を“地域に開かれた空間”として全面開放すると共に2階の高窓からの光を内部で拡散させる建築を考案。極力壁を設けず“一体的な使用”も可能にする2階平面図 image©Eureka+早田大高設計事務所+慶応大学佐野研究室

Eureka・早田大高事務所・佐野研究室による、さいたま市の「ブルー・ボックス・オフィス」。北向きで隣地と高低差もある敷地。“明るい空間”を求め、1階を“地域に開かれた空間”として全面開放すると共に2階の高窓からの光を内部で拡散させる建築を考案。極力壁を設けず“一体的な使用”も可能にする断面図 image©Eureka+早田大高設計事務所+慶応大学佐野研究室

Eureka・早田大高事務所・佐野研究室による、さいたま市の「ブルー・ボックス・オフィス」。北向きで隣地と高低差もある敷地。“明るい空間”を求め、1階を“地域に開かれた空間”として全面開放すると共に2階の高窓からの光を内部で拡散させる建築を考案。極力壁を設けず“一体的な使用”も可能にする矩計図 image©Eureka+早田大高設計事務所+慶応大学佐野研究室

Eureka・早田大高事務所・佐野研究室による、さいたま市の「ブルー・ボックス・オフィス」。北向きで隣地と高低差もある敷地。“明るい空間”を求め、1階を“地域に開かれた空間”として全面開放すると共に2階の高窓からの光を内部で拡散させる建築を考案。極力壁を設けず“一体的な使用”も可能にする施工中の様子、敷地上空から見下ろす。 photo©Ookura Hideki

Eureka・早田大高事務所・佐野研究室による、さいたま市の「ブルー・ボックス・オフィス」。北向きで隣地と高低差もある敷地。“明るい空間”を求め、1階を“地域に開かれた空間”として全面開放すると共に2階の高窓からの光を内部で拡散させる建築を考案。極力壁を設けず“一体的な使用”も可能にする施工中の様子、基礎工事 photo©Ookura Hideki

Eureka・早田大高事務所・佐野研究室による、さいたま市の「ブルー・ボックス・オフィス」。北向きで隣地と高低差もある敷地。“明るい空間”を求め、1階を“地域に開かれた空間”として全面開放すると共に2階の高窓からの光を内部で拡散させる建築を考案。極力壁を設けず“一体的な使用”も可能にする施工中の様子、建て方 photo©Ookura Hideki
以下、建築家によるテキストです。
周辺環境に開かれた地域共生型の木造オフィス。
敷地はJR浦和駅近くの傾斜地で、造成された宅地に住宅が建ち並ぶエリアに位置しています。建築主は明るいオフィス空間を望んでいましたが、敷地は北側接道で、南東側の隣地境界に切り立つ擁壁と隣家群が影を落としていました。
そこで、1階は北側道路に対して全面的に開いて採光すると共に地域に開かれた空間とし、2階は屋根頂部から取り入れた光を内部で拡散させるという方針をとりました。
具体的には、屋根頂部の長手方向に鉄骨を木材で補剛したトラス梁を架け、トラス梁の側面から自然光を取り入れています。トラス梁から差し込んだ光をパンチングメタル製のライトシェルフが天井面へ反射し、室内全体に光が拡散されるようにしました。
構造計画
木造を主体構造として、鉄やコンクリートを併用した構造としました。
屋根を支える鉄骨トラスのほかに、埼玉県の崖条例により新設した鉄筋コンクリートの擁壁を、木造柱の高基礎としています。
また、地震力を擁壁に伝えるための鉄筋ブレースや、エントランスまわりの細長い柱の支点間距離を縮めるために柱と同じ90角の断面で立ち上げた鉄骨柱脚など、随所に鉄骨を用いて木架構を補強しています。
空間構成
敷地の傾斜に沿ったスキップフロアとすることで極力壁を設けずに空間を分け、一体的にも使用できる空間構成としました。
具体的には、1階はミーティングや休憩用の多目的スペース、アイランド型の流し台を設置した給湯スペース、軽作業もできる図書スペースという3つの空間がそれぞれ異なる床レベルにあります。
2階はパートタイムのスタッフが使うフリーアドレスのフロアと専門スタッフが使う固定席のフロアが異なる床レベルにあり、2つの床の隙間から1階エントランス付近の様子が見えるようになっています。
■建築概要
題名:ブルー・ボックス・オフィス
所在地:埼玉県さいたま市浦和区
主用途:オフィス+地域サロン
設計:Eureka、早田大高設計事務所、慶応大学佐野研究室
建築:Eureka 担当/稲垣淳哉、佐野哲史、原章史
早田大高設計事務所 担当/早田大高
構造:Eureka 担当/永井拓生
Noot Engineer 担当/ラム・ワイコン
環境:Eureka 担当/堀英祐
慶応大学佐野研究室 担当/佐田野透、平野和代、宮崎博志、齋藤直紀、鈴木瑛貴、宮武壮太郎
設備:長谷川設備計画 担当/長谷川博
家具:スケール 担当/山本大輔
施工:榊住建 担当/大野新次
構造:木造、一部鉄骨造
建築面積:95.35㎡
延床面積:161.90㎡
設計期間:2021年6月~2022年7月
工事期間:2022年8月~2023年7月
撮影:大倉英揮