architecturephoto®

  • 特集記事
  • 注目情報
  • タグ
  • 建築
  • アート
  • カルチャー
  • デザイン
  • ファッション
  • 動画
  • 展覧会
  • コンペ
  • 書籍
  • 建築求人
  • すべてのタグ

建築求人情報

Loading...
2025.12.26Fri
2025.12.25Thu
2025.12.27Sat
山之内淡 / AWGLによる、インスタレーション「Anywhere Door」。ヴェネチアでの建築展への出展を契機に世界の4箇所に設置。寺院の“山門”と“アニメ内のドア”に着想を得て、日本の伝統と現代カルチャーの交差点としての建築を志向。周囲の風景を主役とし一体となるように作る
photo©田中克昌

SHARE 山之内淡 / AWGLによる、インスタレーション「Anywhere Door」。ヴェネチアでの建築展への出展を契機に世界の4箇所に設置。寺院の“山門”と“アニメ内のドア”に着想を得て、日本の伝統と現代カルチャーの交差点としての建築を志向。周囲の風景を主役とし一体となるように作る

architecture|feature
AWGLKURKKU FIELDS伴田鉄工所大成塗装電気製作所山之内淡松中造園生光園建材(外装・建具)建材(外装・その他)田中克昌図面ありインスタレーション群馬千葉神奈川イタリアベネチア鎌倉
山之内淡 / AWGLによる、インスタレーション「Anywhere Door」。ヴェネチアでの建築展への出展を契機に世界の4箇所に設置。寺院の“山門”と“アニメ内のドア”に着想を得て、日本の伝統と現代カルチャーの交差点としての建築を志向。周囲の風景を主役とし一体となるように作るAnywhere Door(設置場所:Time Space Existence 2025 during the Venice Architecture Biennale) photo©田中克昌
山之内淡 / AWGLによる、インスタレーション「Anywhere Door」。ヴェネチアでの建築展への出展を契機に世界の4箇所に設置。寺院の“山門”と“アニメ内のドア”に着想を得て、日本の伝統と現代カルチャーの交差点としての建築を志向。周囲の風景を主役とし一体となるように作るAnywhere Door(設置場所:臨済宗大本山 円覚寺) photo©田中克昌
山之内淡 / AWGLによる、インスタレーション「Anywhere Door」。ヴェネチアでの建築展への出展を契機に世界の4箇所に設置。寺院の“山門”と“アニメ内のドア”に着想を得て、日本の伝統と現代カルチャーの交差点としての建築を志向。周囲の風景を主役とし一体となるように作るAnywhere Door(設置場所:KURKKU FIELDS) photo©田中克昌
山之内淡 / AWGLによる、インスタレーション「Anywhere Door」。ヴェネチアでの建築展への出展を契機に世界の4箇所に設置。寺院の“山門”と“アニメ内のドア”に着想を得て、日本の伝統と現代カルチャーの交差点としての建築を志向。周囲の風景を主役とし一体となるように作るAnywhere Door(設置場所:白井屋ホテル) photo©田中克昌

山之内淡 / AWGLが設計した、インスタレーション「Anywhere Door」です。
ヴェネチアでの建築展への出展を契機に世界の4箇所に設置されました。建築家は、寺院の“山門”と“アニメ内のドア”に着想を得て、日本の伝統と現代カルチャーの交差点としての建築を志向しました。また、周囲の風景を主役とし一体となるように作られました。本作品の公式サイトはこちら。4つのうち2つは常設となっています。

建築インスタレーション作品「Anywhere Door」は、建築家である自身が思いをはせる世界の4拠点に設置された。
きっかけは、2025年ヴェネチア・ビエンナーレ国際建築展期間中に開催される、European Cultural Centre主催「Time Space Existence」への公式招聘である。本作は、国際的な“繋がり”をテーマに据えた分散型・ネットワーク型の建築インスタレーションとして設計された。

建築家によるテキストより

「Anywhere Door」は、日本の伝統と現代ポップカルチャーの交差点から生まれ、日本文化とクラフトマンシップを伝える複層的な建築である。着目したのは、日常に最も身近な建築要素である「ドア」。
ドアそのものではなく、その向こうに広がる風景を主役に据え、ランドスケープと一体となるよう設計した。目指したのは、ひとつのドアを介して鑑賞者が自然や動物、建築、文化的背景、記憶、そして人との繋がりを想像し、それを日常に持ち帰るきっかけを生み出すことである。

建築家によるテキストより

本作は、日本の伝統寺院における“山門”の柔らかな境界性から着想を得た。
境界の向こう側に、精神的な広がりや物理的な奥行き、時間や距離の跳躍を感じ取る日本伝統の考え方が本作の根底にある。

加えて、ドアが風景の中にポツンと立つイメージ、ドアの向こう側のどこかと“繋がる”イメージは、これまで日本の漫画やアニメーションの中で、繰り返し、数多くの物語に描かれてきた象徴的モチーフのひとつである。近年の例としては、日本のアニメーション映画監督・新海誠氏による長編アニメーション作品「すずめの戸締まり」が挙げられる。

「Anywhere Door」は、日本の伝統と漫画やアニメーションといった現代ポップカルチャーの交差点に誕生している。日本の伝統と日本の現代ポップカルチャーの交差点に建築を生み出すことは、自身の建築家としてのアイデンティティの核でもある。

建築家によるテキストより

Anywhere Door(設置場所:Time Space Existence 2025 during the Venice Architecture Biennale)

以下の写真はクリックで拡大します

山之内淡 / AWGLによる、インスタレーション「Anywhere Door」。ヴェネチアでの建築展への出展を契機に世界の4箇所に設置。寺院の“山門”と“アニメ内のドア”に着想を得て、日本の伝統と現代カルチャーの交差点としての建築を志向。周囲の風景を主役とし一体となるように作るAnywhere Door(設置場所:Time Space Existence 2025 during the Venice Architecture Biennale) photo©田中克昌
山之内淡 / AWGLによる、インスタレーション「Anywhere Door」。ヴェネチアでの建築展への出展を契機に世界の4箇所に設置。寺院の“山門”と“アニメ内のドア”に着想を得て、日本の伝統と現代カルチャーの交差点としての建築を志向。周囲の風景を主役とし一体となるように作る photo©田中克昌
山之内淡 / AWGLによる、インスタレーション「Anywhere Door」。ヴェネチアでの建築展への出展を契機に世界の4箇所に設置。寺院の“山門”と“アニメ内のドア”に着想を得て、日本の伝統と現代カルチャーの交差点としての建築を志向。周囲の風景を主役とし一体となるように作る photo©田中克昌
山之内淡 / AWGLによる、インスタレーション「Anywhere Door」。ヴェネチアでの建築展への出展を契機に世界の4箇所に設置。寺院の“山門”と“アニメ内のドア”に着想を得て、日本の伝統と現代カルチャーの交差点としての建築を志向。周囲の風景を主役とし一体となるように作る photo©田中克昌
山之内淡 / AWGLによる、インスタレーション「Anywhere Door」。ヴェネチアでの建築展への出展を契機に世界の4箇所に設置。寺院の“山門”と“アニメ内のドア”に着想を得て、日本の伝統と現代カルチャーの交差点としての建築を志向。周囲の風景を主役とし一体となるように作る photo©田中克昌
山之内淡 / AWGLによる、インスタレーション「Anywhere Door」。ヴェネチアでの建築展への出展を契機に世界の4箇所に設置。寺院の“山門”と“アニメ内のドア”に着想を得て、日本の伝統と現代カルチャーの交差点としての建築を志向。周囲の風景を主役とし一体となるように作る photo©田中克昌
山之内淡 / AWGLによる、インスタレーション「Anywhere Door」。ヴェネチアでの建築展への出展を契機に世界の4箇所に設置。寺院の“山門”と“アニメ内のドア”に着想を得て、日本の伝統と現代カルチャーの交差点としての建築を志向。周囲の風景を主役とし一体となるように作る photo©田中克昌
山之内淡 / AWGLによる、インスタレーション「Anywhere Door」。ヴェネチアでの建築展への出展を契機に世界の4箇所に設置。寺院の“山門”と“アニメ内のドア”に着想を得て、日本の伝統と現代カルチャーの交差点としての建築を志向。周囲の風景を主役とし一体となるように作る photo©田中克昌
山之内淡 / AWGLによる、インスタレーション「Anywhere Door」。ヴェネチアでの建築展への出展を契機に世界の4箇所に設置。寺院の“山門”と“アニメ内のドア”に着想を得て、日本の伝統と現代カルチャーの交差点としての建築を志向。周囲の風景を主役とし一体となるように作る photo©田中克昌
山之内淡 / AWGLによる、インスタレーション「Anywhere Door」。ヴェネチアでの建築展への出展を契機に世界の4箇所に設置。寺院の“山門”と“アニメ内のドア”に着想を得て、日本の伝統と現代カルチャーの交差点としての建築を志向。周囲の風景を主役とし一体となるように作る平面図 image©AWGL
山之内淡 / AWGLによる、インスタレーション「Anywhere Door」。ヴェネチアでの建築展への出展を契機に世界の4箇所に設置。寺院の“山門”と“アニメ内のドア”に着想を得て、日本の伝統と現代カルチャーの交差点としての建築を志向。周囲の風景を主役とし一体となるように作る断面図 image©AWGL
山之内淡 / AWGLによる、インスタレーション「Anywhere Door」。ヴェネチアでの建築展への出展を契機に世界の4箇所に設置。寺院の“山門”と“アニメ内のドア”に着想を得て、日本の伝統と現代カルチャーの交差点としての建築を志向。周囲の風景を主役とし一体となるように作る断面図 image©AWGL

Anywhere Door(設置場所:臨済宗大本山 円覚寺)

以下の写真はクリックで拡大します

山之内淡 / AWGLによる、インスタレーション「Anywhere Door」。ヴェネチアでの建築展への出展を契機に世界の4箇所に設置。寺院の“山門”と“アニメ内のドア”に着想を得て、日本の伝統と現代カルチャーの交差点としての建築を志向。周囲の風景を主役とし一体となるように作る photo©田中克昌
山之内淡 / AWGLによる、インスタレーション「Anywhere Door」。ヴェネチアでの建築展への出展を契機に世界の4箇所に設置。寺院の“山門”と“アニメ内のドア”に着想を得て、日本の伝統と現代カルチャーの交差点としての建築を志向。周囲の風景を主役とし一体となるように作る photo©田中克昌
山之内淡 / AWGLによる、インスタレーション「Anywhere Door」。ヴェネチアでの建築展への出展を契機に世界の4箇所に設置。寺院の“山門”と“アニメ内のドア”に着想を得て、日本の伝統と現代カルチャーの交差点としての建築を志向。周囲の風景を主役とし一体となるように作るAnywhere Door(設置場所:臨済宗大本山 円覚寺) photo©田中克昌
山之内淡 / AWGLによる、インスタレーション「Anywhere Door」。ヴェネチアでの建築展への出展を契機に世界の4箇所に設置。寺院の“山門”と“アニメ内のドア”に着想を得て、日本の伝統と現代カルチャーの交差点としての建築を志向。周囲の風景を主役とし一体となるように作る photo©田中克昌
山之内淡 / AWGLによる、インスタレーション「Anywhere Door」。ヴェネチアでの建築展への出展を契機に世界の4箇所に設置。寺院の“山門”と“アニメ内のドア”に着想を得て、日本の伝統と現代カルチャーの交差点としての建築を志向。周囲の風景を主役とし一体となるように作る photo©田中克昌
山之内淡 / AWGLによる、インスタレーション「Anywhere Door」。ヴェネチアでの建築展への出展を契機に世界の4箇所に設置。寺院の“山門”と“アニメ内のドア”に着想を得て、日本の伝統と現代カルチャーの交差点としての建築を志向。周囲の風景を主役とし一体となるように作る photo©田中克昌
山之内淡 / AWGLによる、インスタレーション「Anywhere Door」。ヴェネチアでの建築展への出展を契機に世界の4箇所に設置。寺院の“山門”と“アニメ内のドア”に着想を得て、日本の伝統と現代カルチャーの交差点としての建築を志向。周囲の風景を主役とし一体となるように作る photo©田中克昌
山之内淡 / AWGLによる、インスタレーション「Anywhere Door」。ヴェネチアでの建築展への出展を契機に世界の4箇所に設置。寺院の“山門”と“アニメ内のドア”に着想を得て、日本の伝統と現代カルチャーの交差点としての建築を志向。周囲の風景を主役とし一体となるように作る photo©田中克昌
山之内淡 / AWGLによる、インスタレーション「Anywhere Door」。ヴェネチアでの建築展への出展を契機に世界の4箇所に設置。寺院の“山門”と“アニメ内のドア”に着想を得て、日本の伝統と現代カルチャーの交差点としての建築を志向。周囲の風景を主役とし一体となるように作る photo©田中克昌
山之内淡 / AWGLによる、インスタレーション「Anywhere Door」。ヴェネチアでの建築展への出展を契機に世界の4箇所に設置。寺院の“山門”と“アニメ内のドア”に着想を得て、日本の伝統と現代カルチャーの交差点としての建築を志向。周囲の風景を主役とし一体となるように作る平面図 image©AWGL
山之内淡 / AWGLによる、インスタレーション「Anywhere Door」。ヴェネチアでの建築展への出展を契機に世界の4箇所に設置。寺院の“山門”と“アニメ内のドア”に着想を得て、日本の伝統と現代カルチャーの交差点としての建築を志向。周囲の風景を主役とし一体となるように作る断面図 image©AWGL
山之内淡 / AWGLによる、インスタレーション「Anywhere Door」。ヴェネチアでの建築展への出展を契機に世界の4箇所に設置。寺院の“山門”と“アニメ内のドア”に着想を得て、日本の伝統と現代カルチャーの交差点としての建築を志向。周囲の風景を主役とし一体となるように作る断面図 image©AWGL
山之内淡 / AWGLによる、インスタレーション「Anywhere Door」。ヴェネチアでの建築展への出展を契機に世界の4箇所に設置。寺院の“山門”と“アニメ内のドア”に着想を得て、日本の伝統と現代カルチャーの交差点としての建築を志向。周囲の風景を主役とし一体となるように作る施工中の様子(建築家による解説:文化庁から許可を得て、鎌倉市文化財課立ち会いのもと、枕木で基礎をつくり設置。) photo©山之内淡

Anywhere Door(設置場所:KURKKU FIELDS)

以下の写真はクリックで拡大します

山之内淡 / AWGLによる、インスタレーション「Anywhere Door」。ヴェネチアでの建築展への出展を契機に世界の4箇所に設置。寺院の“山門”と“アニメ内のドア”に着想を得て、日本の伝統と現代カルチャーの交差点としての建築を志向。周囲の風景を主役とし一体となるように作る photo©田中克昌
山之内淡 / AWGLによる、インスタレーション「Anywhere Door」。ヴェネチアでの建築展への出展を契機に世界の4箇所に設置。寺院の“山門”と“アニメ内のドア”に着想を得て、日本の伝統と現代カルチャーの交差点としての建築を志向。周囲の風景を主役とし一体となるように作る photo©田中克昌
山之内淡 / AWGLによる、インスタレーション「Anywhere Door」。ヴェネチアでの建築展への出展を契機に世界の4箇所に設置。寺院の“山門”と“アニメ内のドア”に着想を得て、日本の伝統と現代カルチャーの交差点としての建築を志向。周囲の風景を主役とし一体となるように作る photo©田中克昌
山之内淡 / AWGLによる、インスタレーション「Anywhere Door」。ヴェネチアでの建築展への出展を契機に世界の4箇所に設置。寺院の“山門”と“アニメ内のドア”に着想を得て、日本の伝統と現代カルチャーの交差点としての建築を志向。周囲の風景を主役とし一体となるように作る photo©田中克昌
山之内淡 / AWGLによる、インスタレーション「Anywhere Door」。ヴェネチアでの建築展への出展を契機に世界の4箇所に設置。寺院の“山門”と“アニメ内のドア”に着想を得て、日本の伝統と現代カルチャーの交差点としての建築を志向。周囲の風景を主役とし一体となるように作るAnywhere Door(設置場所:KURKKU FIELDS) photo©田中克昌
山之内淡 / AWGLによる、インスタレーション「Anywhere Door」。ヴェネチアでの建築展への出展を契機に世界の4箇所に設置。寺院の“山門”と“アニメ内のドア”に着想を得て、日本の伝統と現代カルチャーの交差点としての建築を志向。周囲の風景を主役とし一体となるように作る photo©田中克昌
山之内淡 / AWGLによる、インスタレーション「Anywhere Door」。ヴェネチアでの建築展への出展を契機に世界の4箇所に設置。寺院の“山門”と“アニメ内のドア”に着想を得て、日本の伝統と現代カルチャーの交差点としての建築を志向。周囲の風景を主役とし一体となるように作る photo©田中克昌
山之内淡 / AWGLによる、インスタレーション「Anywhere Door」。ヴェネチアでの建築展への出展を契機に世界の4箇所に設置。寺院の“山門”と“アニメ内のドア”に着想を得て、日本の伝統と現代カルチャーの交差点としての建築を志向。周囲の風景を主役とし一体となるように作る photo©田中克昌
山之内淡 / AWGLによる、インスタレーション「Anywhere Door」。ヴェネチアでの建築展への出展を契機に世界の4箇所に設置。寺院の“山門”と“アニメ内のドア”に着想を得て、日本の伝統と現代カルチャーの交差点としての建築を志向。周囲の風景を主役とし一体となるように作る photo©田中克昌
山之内淡 / AWGLによる、インスタレーション「Anywhere Door」。ヴェネチアでの建築展への出展を契機に世界の4箇所に設置。寺院の“山門”と“アニメ内のドア”に着想を得て、日本の伝統と現代カルチャーの交差点としての建築を志向。周囲の風景を主役とし一体となるように作る photo©田中克昌
山之内淡 / AWGLによる、インスタレーション「Anywhere Door」。ヴェネチアでの建築展への出展を契機に世界の4箇所に設置。寺院の“山門”と“アニメ内のドア”に着想を得て、日本の伝統と現代カルチャーの交差点としての建築を志向。周囲の風景を主役とし一体となるように作る平面図 image©AWGL
山之内淡 / AWGLによる、インスタレーション「Anywhere Door」。ヴェネチアでの建築展への出展を契機に世界の4箇所に設置。寺院の“山門”と“アニメ内のドア”に着想を得て、日本の伝統と現代カルチャーの交差点としての建築を志向。周囲の風景を主役とし一体となるように作る断面図 image©AWGL
山之内淡 / AWGLによる、インスタレーション「Anywhere Door」。ヴェネチアでの建築展への出展を契機に世界の4箇所に設置。寺院の“山門”と“アニメ内のドア”に着想を得て、日本の伝統と現代カルチャーの交差点としての建築を志向。周囲の風景を主役とし一体となるように作る断面図 image©AWGL

Anywhere Door(設置場所:白井屋ホテル)

以下の写真はクリックで拡大します

山之内淡 / AWGLによる、インスタレーション「Anywhere Door」。ヴェネチアでの建築展への出展を契機に世界の4箇所に設置。寺院の“山門”と“アニメ内のドア”に着想を得て、日本の伝統と現代カルチャーの交差点としての建築を志向。周囲の風景を主役とし一体となるように作る photo©田中克昌
山之内淡 / AWGLによる、インスタレーション「Anywhere Door」。ヴェネチアでの建築展への出展を契機に世界の4箇所に設置。寺院の“山門”と“アニメ内のドア”に着想を得て、日本の伝統と現代カルチャーの交差点としての建築を志向。周囲の風景を主役とし一体となるように作る photo©田中克昌
山之内淡 / AWGLによる、インスタレーション「Anywhere Door」。ヴェネチアでの建築展への出展を契機に世界の4箇所に設置。寺院の“山門”と“アニメ内のドア”に着想を得て、日本の伝統と現代カルチャーの交差点としての建築を志向。周囲の風景を主役とし一体となるように作る photo©田中克昌
山之内淡 / AWGLによる、インスタレーション「Anywhere Door」。ヴェネチアでの建築展への出展を契機に世界の4箇所に設置。寺院の“山門”と“アニメ内のドア”に着想を得て、日本の伝統と現代カルチャーの交差点としての建築を志向。周囲の風景を主役とし一体となるように作るAnywhere Door(設置場所:白井屋ホテル) photo©田中克昌
山之内淡 / AWGLによる、インスタレーション「Anywhere Door」。ヴェネチアでの建築展への出展を契機に世界の4箇所に設置。寺院の“山門”と“アニメ内のドア”に着想を得て、日本の伝統と現代カルチャーの交差点としての建築を志向。周囲の風景を主役とし一体となるように作る photo©田中克昌
山之内淡 / AWGLによる、インスタレーション「Anywhere Door」。ヴェネチアでの建築展への出展を契機に世界の4箇所に設置。寺院の“山門”と“アニメ内のドア”に着想を得て、日本の伝統と現代カルチャーの交差点としての建築を志向。周囲の風景を主役とし一体となるように作る photo©田中克昌
山之内淡 / AWGLによる、インスタレーション「Anywhere Door」。ヴェネチアでの建築展への出展を契機に世界の4箇所に設置。寺院の“山門”と“アニメ内のドア”に着想を得て、日本の伝統と現代カルチャーの交差点としての建築を志向。周囲の風景を主役とし一体となるように作る photo©田中克昌
山之内淡 / AWGLによる、インスタレーション「Anywhere Door」。ヴェネチアでの建築展への出展を契機に世界の4箇所に設置。寺院の“山門”と“アニメ内のドア”に着想を得て、日本の伝統と現代カルチャーの交差点としての建築を志向。周囲の風景を主役とし一体となるように作る photo©田中克昌
山之内淡 / AWGLによる、インスタレーション「Anywhere Door」。ヴェネチアでの建築展への出展を契機に世界の4箇所に設置。寺院の“山門”と“アニメ内のドア”に着想を得て、日本の伝統と現代カルチャーの交差点としての建築を志向。周囲の風景を主役とし一体となるように作る photo©田中克昌
山之内淡 / AWGLによる、インスタレーション「Anywhere Door」。ヴェネチアでの建築展への出展を契機に世界の4箇所に設置。寺院の“山門”と“アニメ内のドア”に着想を得て、日本の伝統と現代カルチャーの交差点としての建築を志向。周囲の風景を主役とし一体となるように作る photo©田中克昌
山之内淡 / AWGLによる、インスタレーション「Anywhere Door」。ヴェネチアでの建築展への出展を契機に世界の4箇所に設置。寺院の“山門”と“アニメ内のドア”に着想を得て、日本の伝統と現代カルチャーの交差点としての建築を志向。周囲の風景を主役とし一体となるように作る平面図 image©AWGL
山之内淡 / AWGLによる、インスタレーション「Anywhere Door」。ヴェネチアでの建築展への出展を契機に世界の4箇所に設置。寺院の“山門”と“アニメ内のドア”に着想を得て、日本の伝統と現代カルチャーの交差点としての建築を志向。周囲の風景を主役とし一体となるように作る断面図 image©AWGL
山之内淡 / AWGLによる、インスタレーション「Anywhere Door」。ヴェネチアでの建築展への出展を契機に世界の4箇所に設置。寺院の“山門”と“アニメ内のドア”に着想を得て、日本の伝統と現代カルチャーの交差点としての建築を志向。周囲の風景を主役とし一体となるように作る断面図 image©AWGL

コンセプトイメージ

以下の写真はクリックで拡大します

山之内淡 / AWGLによる、インスタレーション「Anywhere Door」。ヴェネチアでの建築展への出展を契機に世界の4箇所に設置。寺院の“山門”と“アニメ内のドア”に着想を得て、日本の伝統と現代カルチャーの交差点としての建築を志向。周囲の風景を主役とし一体となるように作る参照写真(建築家による解説:作品の着想を得た日本の伝統寺院の北鎌倉・浄智寺にある山門の写真。) photo©山之内淡
山之内淡 / AWGLによる、インスタレーション「Anywhere Door」。ヴェネチアでの建築展への出展を契機に世界の4箇所に設置。寺院の“山門”と“アニメ内のドア”に着想を得て、日本の伝統と現代カルチャーの交差点としての建築を志向。周囲の風景を主役とし一体となるように作るコンセプトドローイング image©AWGL

以下、建築家によるテキストです。


「ドア」という小さな建築をモチーフに、分散型・ネットワーク型の建築インスタレーションとして設計。
国際的な“繋がり”をテーマに、世界4箇所で同時展開。

建築インスタレーション作品「Anywhere Door」は、建築家である自身が思いをはせる世界の4拠点に設置された。
きっかけは、2025年ヴェネチア・ビエンナーレ国際建築展期間中に開催される、European Cultural Centre主催「Time Space Existence」への公式招聘である。本作は、国際的な“繋がり”をテーマに据えた分散型・ネットワーク型の建築インスタレーションとして設計された。

「Urgency to Repair, Regenerate, and Reuse」をテーマに掲げる2025年度の「Time Space Existence」公式招聘作品として、ヴェネチアの屋外会場Marinaressa Gardensで発表された。その後、2025年7月より世界4箇所での展示が順次公開された。

「Anywhere Door」は、日本の伝統と現代ポップカルチャーの交差点から生まれ、日本文化とクラフトマンシップを伝える複層的な建築である。着目したのは、日常に最も身近な建築要素である「ドア」。
ドアそのものではなく、その向こうに広がる風景を主役に据え、ランドスケープと一体となるよう設計した。目指したのは、ひとつのドアを介して鑑賞者が自然や動物、建築、文化的背景、記憶、そして人との繋がりを想像し、それを日常に持ち帰るきっかけを生み出すことである。

「あなたと同じ、世界のどこかに。」

この言葉は、本作を端的に表す。人や自然を含む“繋がり”への根源的な喜びや幸福を称える建築インスタレーションである。
ドアの佇む背景には、空や大地や海や森が広がっている。ドアを屋外に設置する表現を通して、具体的な情報・モノ・コトが光の速さで繋がる現代において、繋がることそのものを否定することなく、繋がることの根源的な喜びを、目の前の大地や空はどこまでも繋がっている事実の中で、鑑賞者に考えてもらうことを意図している。

「ひとつの作品が、場所や文化によって全く異なる見え方をする。」その反応の違いや重なりを意識的に織り込んだ中央集権的ではない分散型・ネットワーク型の作品である。

「Anywhere Door」は、国際的な“繋がり”をテーマにした作品として設計され、世界の4箇所に展示されていることに大きな特徴がある。それぞれの場所は、自身で選び、作品設置に関する交渉を経て、実現している。

自身が拠点とする鎌倉を代表する寺院のひとつである臨済宗大本山 円覚寺。農業と食とアートを横断する複合施設であるKURKKU FIELDS。アートデスティネーションを掲げた宿泊施設である白井屋ホテル。Time Space Existenceの公式招聘作品として展示されているヴェネチアに加えて、それら日本の3つの拠点に「Anywhere Door」は設置されている。

本作は、日本の伝統寺院における“山門”の柔らかな境界性から着想を得た。
境界の向こう側に、精神的な広がりや物理的な奥行き、時間や距離の跳躍を感じ取る日本伝統の考え方が本作の根底にある。

加えて、ドアが風景の中にポツンと立つイメージ、ドアの向こう側のどこかと“繋がる”イメージは、これまで日本の漫画やアニメーションの中で、繰り返し、数多くの物語に描かれてきた象徴的モチーフのひとつである。近年の例としては、日本のアニメーション映画監督・新海誠氏による長編アニメーション作品「すずめの戸締まり」が挙げられる。

「Anywhere Door」は、日本の伝統と漫画やアニメ―ションといった現代ポップカルチャーの交差点に誕生している。日本の伝統と日本の現代ポップカルチャーの交差点に建築を生み出すことは、自身の建築家としてのアイデンティティの核でもある。

内部構造も含め、構造・素材は全てステンレスを採用。創業90年以上、ステンレス加工で60年以上の実績をもつ日本の専門職人との共創で完成した。扉枠は直径38mmのステンレス丸パイプを外皮としたステンレス丸パイプの2重構造とした。扉本体の端部はR加工として、扉と枠が一点で接する収まりとした。扉が回転するヒンジ部分は切り込みを入れ外皮がそのまま回転する意匠とし、扉枠は平滑に収めた。

また、ビスは1本も使用せず、溶接のみで組み立てた。仕上げはステンレスヘアラインを残しつつ、見る角度や光の具合によって表情が変化する色を重ねた特殊塗装を職人の手作業で施した。

精神世界に通じるような、見たことがありそうで、見たことがない意匠を目指した。ドアを前にしたとき、鑑賞者がその向こうへ吸い込まれてしまうような、どこかこの世ならざる空気感を感じ取れることを意図した。

各拠点毎の具体的な設計に関して記載する。

1拠点目は、「Time Space Existence」の屋外会場であるMarinaressa Gardensである。
主催者である European Cultural Centreの施工によって設置された。Marinaressa Gardensでは、掘削が許されない場所のため、木製のプラットフォームを地面に配置し、ドアを固定した。縦横1800mmの大きさの木製プラットフォームの上に、園内の風景と自然につながるように盛土を行い、天然の芝生で覆った。

2拠点目は、自身も活動拠点にしている鎌倉を代表する寺院のひとつ臨済宗大本山 円覚寺。
文化財のため文化庁から許可を得て、鎌倉市文化財課の立ち会いのもと、円覚寺に馴染みの深い造園業者の施工によって設置された。円覚寺の山門のある広場は、少なくとも江戸時代頃から一度も試掘も含めて掘削されておらず、記録としても価値のあるものとなった。掘削深さと掘削範囲を最小限に留めるよう工夫する目的で、防腐処理された厚さ70mmの枕木を井の字に組み、仮設基礎をつくり、ドアを固定した。

3拠点目は、農業・食・アートを横断する複合施設であるKURKKU FIELDS。
常設での屋外展示となることから、鉄筋コンクリート基礎が施工され、ドアを固定した。KURKKU FIELDSという場所の持つ素晴らしさのひとつが子どもから大人まで楽しみ学べることであると感じたことから、遊具と屋外アート作品の中間のような存在になるよう工夫して、見通しの良い開けた場所でかつ気軽に近づけるような設置場所を選定した。背後には緑が広がっており、100年後も風景とともにある作品となるよう園内の様々な場所からの見え方も同時に考慮した。

4拠点目は、アートデスティネーションを掲げた宿泊施設である白井屋ホテル。
4拠点のうち、唯一の屋内作品となること、そして常設作品となることから、床の仕上面のカーペットと作品が自然につながるよう工夫して、曲面状に立ち上がる脚部を設計した。白井屋ホテルのヘリテージタワーは、屋内空間ではあるものの、都市的な体感とスケールを持つ美しい街のような空間である。そんな「街」の一部 になりつつ、この場所から出発したり辿り着いたりするような物語を感じられる設置場所を選定した。

「Anywhere Door」は、日本の空間に対する伝統的な哲学を現代に引き継ぎ、日本のポップカルチャーを背景にもつ身体的な建築であり、同時に建築的寓話を語る碑でもある。

■建築概要

作品題名:Anywhere Door
建築種別:屋外建築インスタレーション
設計:Tan Yamanouchi & AWGL 担当/山之内淡
制作:有限会社伴田鉄工所 担当/伴田茂
塗装:有限会社大成塗装電気製作所 担当/斗光裕一
───
拠点1:Time Space Existence 2025 during the Venice Architecture Biennale
所在地:Marinaressa Gardens, Riva dei Sette Martiri, 30122 Venezia VE, Italy
施工:Giovanna d’Albertis, Carlotta Bondesan, Paola Pepa(European Cultural Centre)
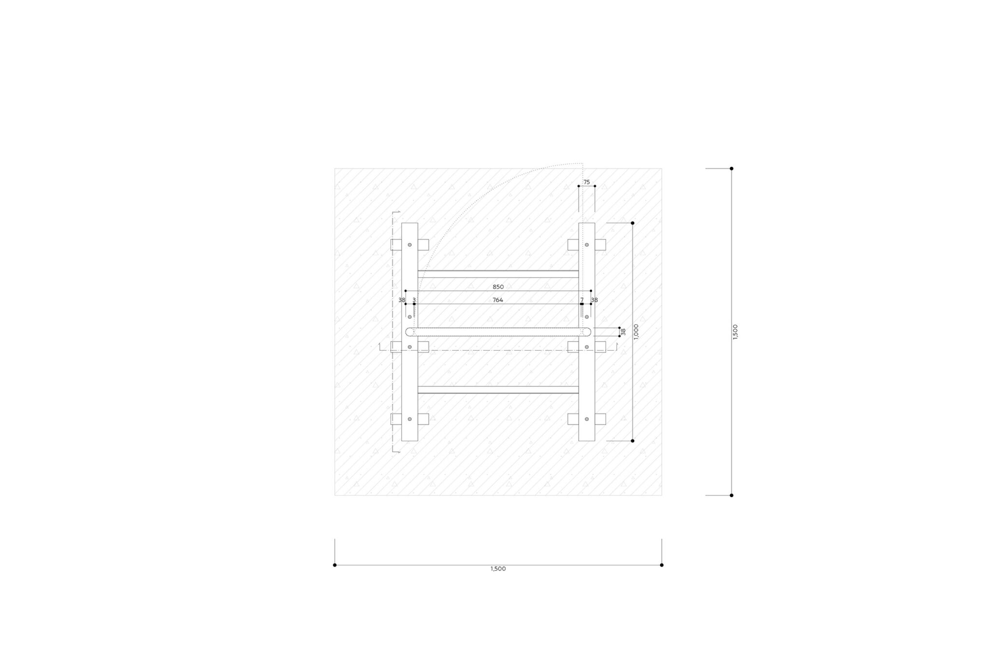
各種寸法:ドア幅/850mm、ドア厚/38mm、ドア高さ/1950mm、ドア脚部(埋設部)/900mm×1000mm×75mm
     基礎/1800mm×1800mm×150mm
設計期間:2024年1月~2025年2月
制作期間:2025年2月~2025年3月
工事期間:2025年4月~2025年5月
竣工年月日:2025年5月
設置期間:2025年5月10日~11月23日
───
拠点2:臨済宗大本山 円覚寺
所在地:神奈川県鎌倉市山ノ内409
施工:有限会社松中造園 担当/松中徹、関谷直仁
各種寸法:ドア幅/850mm、ドア厚/38mm、ドア高さ/1950mm、ドア脚部(埋設部)/900mm×1000mm×75mm
     基礎/2000mm×2000mm×140mm
設計期間:2024年10月~2025年2月
制作期間:2025年3月~2025年6月
工事期間:2025年7月
竣工年月日:2025年7月
設置期間:2025年7月~12月
───
拠点3:KURKKU FIELDS
所在地:千葉県木更津市矢那2503
施工:株式会社KURKKU FIELDS 担当/新井洸真、佐藤剛,
   株式会社生光園 担当/越川昭雄
各種寸法:ドア幅/850mm、ドア厚/38mm、ドア高さ/1950mm、ドア脚部(埋設部)/900mm×1000mm×75mm
     基礎/1500mm×1500mm×200mm
設設計期間:2024年10月~2025年2月
制作期間:2025年3月~2025年6月
工事期間:2025年7月
竣工年月日:2025年7月
設置期間:2025年7月~(常設)
───
拠点4:白井屋ホテル
所在地:群馬県前橋市本町2丁目2-15
施工:Tan Yamanouchi & AWGL 担当/山之内淡、有限会社大成塗装電気製作所 担当/斗光裕一
各種寸法:ドア幅/850mm、ドア厚/38mm、ドア高さ/1950mm、ドア脚部/850mm×1000mm×100mm
設計期間:2024年10月~2025年2月
制作期間:2025年3月~2025年6月
工事期間:2025年7月
竣工年月日:2025年7月
設置期間:2025年7月~(常設)
───
写真:田中克昌、山之内淡
動画:田中克昌

建材情報
種別使用箇所商品名(メーカー名)
外装・建具ドア

本体 [ヒンジ部, 内部構造を含む]:ステンレス t=3mm, 5色重ね特殊塗装仕上げ
ドアノブ:無垢アクリル, 加工品 Φ=40mm
脚部 [埋設部]:ステンレス t=3mm 無塗装

外装・その他Time Space Existence 2025 during the Venice Architecture Biennale 基礎

木製土台、天然芝カバーリング

外装・その他臨済宗大本山円覚寺 基礎

防腐処理済スギ枕木、井の字組

外装・その他KURKKU FIELDS 基礎

鉄筋コンクリート t=200mm、捨てコンクリート・砕石 t=150mm

外装・その他白井屋ホテル ドア脚部

ステンレス t=3mm、5色重ね特殊塗装仕上げ

※企業様による建材情報についてのご意見や「PR」のご相談はこちらから
※この情報は弊サイトや設計者が建材の性能等を保証するものではありません

あわせて読みたい

サムネイル:東京国立近代美術館で行われている
東京国立近代美術館で行われている”建築はどこにあるの? 7つのインスタレーション”展の会場写真
  • SHARE
AWGLKURKKU FIELDS伴田鉄工所大成塗装電気製作所山之内淡松中造園生光園建材(外装・建具)建材(外装・その他)田中克昌図面ありインスタレーション群馬千葉神奈川イタリアベネチア鎌倉
2025.12.26 Fri 06:48
0
permalink

#ベネチアの関連記事

  • 2019.9.10Tue
    //
    『「ガウディの再来」と言われた建築家、ベネチアで1000万円の罰金を課される』(ハーバービジネスオンライン)
  • 2007.12.24Mon
    /
    毎日.jpが五十嵐太郎のベネチアビエンナーレ建築展を紹介
  • 2007.11.26Mon
    /
    安藤忠雄がベネチアの歴史的建造物を現代美術館に再生
  • view all
view all

#田中克昌の関連記事

  • 2025.9.05Fri
    塩入勇生+矢﨑亮大 / ARCHIDIVISIONによる、北海道・札幌市の「maison y maison」。代々受け継がれた土地の設計者実家の増改築。終の棲家であり未来に繋がる存在を求め、増築した上で既存の半分を共同住宅・テナント・共用部に転用し保存する計画を考案。地域の活動が入り込み新たな交流も生まれる
  • 2025.7.25Fri
    Rebbon Architectsによる、群馬・嬬恋村の「軽井沢七生子邸」。三世代が使ってきた別荘が対象。家族の歩みに寄添う“緩やかな変化での継承”を求め、まず既存に“離れ”を増築する“段階的な更新”計画を考案。適度な距離感と自由を保てる“入れ子”状の建築を追加する
  • 2025.1.08Wed
    鈴木亜生 / ASEI建築設計事務所による、静岡・浜松市の住宅「BIOCHAR」。水質等に課題がある湖の畔の敷地。建築と環境の新たな関係を求め、負荷軽減ではなく回復させる“リジェネラティブ”な設計を志向。地域の廃材から“水質浄化機能”をもつ“バイオ炭ブロック”を開発して内外に使う
  • 2024.4.17Wed
    塩入勇生+矢﨑亮大 / ARCHIDIVISIONによる、東京・杉並区の住戸改修「ポールダンサーの部屋」。築古住戸の価値向上を目指した計画。ポールダンサー入居の想定に対し、新設の“コンクリートの列柱”を挟んでステージと住まいの機能を並列させる構成を考案。列柱の身体性でダンサーの精神に見合う秩序を作り出す
  • 2024.3.15Fri
    柿木佑介+廣岡周平 / PERSIMMON HILLS architectsによる、東京・港区の「WOWK芝公園」。現代社会における在り方を追求した賃貸事務所ビル。交流を促し“都市の新しい風景”となる建築を目指し、避難階段の配置と量塊の操作で“基準階を壊す”設計を実施。都市構造の立体化での新旧風景の接続も意図
  • 2024.2.21Wed
    胡実建築設計事務所による、東京の「大開口テラスの家」。住宅街での計画。窮屈にならず“余白を感じられる”住まいとして、内部空間と繋げて使用可能な“エクステリアリビング”としてのテラスを備えた建築を考案。テラス周辺のヴォリュームの操作で開放性と親密さも両立
  • 2024.2.06Tue
    PERSIMMON HILLS architectsによる、埼玉・春日部市の「妙善寺本堂」。本堂を建替える計画。地域住民に“門戸を開く”存在を目指し、寺院の“閉鎖的な印象を払拭”して“機能的にも空間的にも連携”をとれる建築を志向。過去と連続させながらも現代の素材と構法で新しい使い方を喚起
  • 2023.10.04Wed
    塩入勇生+矢﨑亮大 / ARCHIDIVISIONによる、長野・大町市の住宅「TRIANGLE」。施主の実家の隣で幹線道路にも面する場所。環境との“程よい距離感”を求め、内外で繋がり“遊歩道”の様な動線となる“緩衝帯”としての“道”を敷地内に設ける構成を考案。窓の配置は周辺との適切な接続を意図
  • 2023.8.16Wed
    胡実建築設計事務所による、岡山市の「サン・クリニック産後ケアセンター」。既存病棟を改修した育児の補助を行う施設。合理性が重視された建物を“命の喜びを分かち合う”場にする為、アーチと列柱を用いて“ヒューマンスケールな規律”を空間に付与。光を柔らかく拡散させ母子を包み込む
  • 2023.6.12Mon
    森下修 / 森下建築総研による、徳島市の「東亞合成水素ステーション徳島」。次世代エネルギーの製造供給直結型施設。水素活用の啓蒙も意図して、メタファーとしての“半透明の雲の様な”構造体が宙に浮く建築を考案。ETFE膜を用いたユニットの連なりは環境との融和も意識
  • view all
view all

建築求人情報

Loading...

 

    公式アカウントをフォローして、見逃せない建築情報を受け取ろう。

    61,703
    • Follow
    85,571
    • Follow
    • Follow
    • Add Friends
    • Subscribe
    • 情報募集/建築・デザイン・アートの情報を随時募集しています。
      More
    • メールマガジン/ メールマガジンで最新の情報を配信しています。
      More

    この日更新したその他の記事

    【ap job更新】 複数のプロポーザルに勝利した実績があり、地域に根差した公共施設も手掛ける「STUDIO YY」が、設計スタッフ(2026年新卒・既卒・経験者)を募集中

    ap job 【ap job更新】 複数のプロポーザルに勝利した実績があり、地域に根差した公共施設も手掛ける「STUDIO YY」が、設計スタッフ(2026年新卒・既卒・経験者)を募集中

    architecture|job|promotion
    建築求人情報
    【ap job更新】 複数のプロポーザルに勝利した実績があり、地域に根差した公共施設も手掛ける「STUDIO YY」が、設計スタッフ(2026年新卒・既卒・経験者)を募集中
    【ap job更新】 複数のプロポーザルに勝利した実績があり、地域に根差した公共施設も手掛ける「STUDIO YY」が、設計スタッフ(2026年新卒・既卒・経験者)を募集中美郷町カヌー艇庫(島根)
    アーキテクチャーフォトジョブボードに新しい情報が追加されました
    job.architecturephoto.net

    複数のプロポーザルに勝利した実績があり、地域に根差した公共施設も手掛ける「STUDIO YY」の、設計スタッフ(2026年新卒・既卒・経験者)募集のお知らせです。詳しくは、ジョブボードの当該ページにてご確認ください。アーキテクチャーフォトジョブボードには、その他にも、色々な事務所の求人情報が掲載されています。
    新規の求人の投稿はこちらからお気軽にお問い合わせください。

    STUDIO YYは設立から10年が経ちました。

    中山間地域を中心に多くの建築に携わりながら、建築を通して“まちの未来”に関わってきた設計事務所です。

    私たちの仕事は、単なる建物づくりではなく、地域に眠る歴史や文化を読み解き、人と自然が響き合う空間をデザインすること。ときに町の人と語り合い、ときに森や川に足を運びながら、プロジェクトを形にしてきました。

    コロナ禍をきっかけに公共プロポーザルへ参加するようになり、これまでに道の駅、サテライトオフィス(築100年の木造改修)、蕎麦屋、カヌー艇庫、参道拠点施設、イベントホールなど、地域に賑わいをもたらし、活性化につながる公共建築も多く手掛けてきました。

    今後も積極的に公共プロポーザルへ参加するとともに、中・大規模オフィスビルや温泉旅館の建替えなどのプロジェクトが控えており、今回の募集で業務範囲や設計規模に対応した環境作りを目指しています。

    job.architecturephoto.net
    • ap job
    建築求人情報
    2025.12.26 Fri 19:14
    0
    permalink
    【ap job更新】 京都と東京を拠点とする、関祐介が主宰の「YUSUKE SEKI STUDIO」が、設計スタッフ(既卒・経験者)を募集中

    ap job 【ap job更新】 京都と東京を拠点とする、関祐介が主宰の「YUSUKE SEKI STUDIO」が、設計スタッフ(既卒・経験者)を募集中

    architecture|job|promotion
    建築求人情報
    【ap job更新】 京都と東京を拠点とする、関祐介が主宰の「YUSUKE SEKI STUDIO」が、設計スタッフ(既卒・経験者)を募集中
    【ap job更新】 京都と東京を拠点とする、関祐介が主宰の「YUSUKE SEKI STUDIO」が、設計スタッフ(既卒・経験者)を募集中Technics cafe Kyoto ©Daisuke Shima
    アーキテクチャーフォトジョブボードに新しい情報が追加されました
    job.architecturephoto.net

    京都と東京を拠点とする、関祐介が主宰の「YUSUKE SEKI STUDIO」の、設計スタッフ(既卒・経験者)募集のお知らせです。詳しくは、ジョブボードの当該ページにてご確認ください。アーキテクチャーフォトジョブボードには、その他にも、色々な事務所の求人情報が掲載されています。
    新規の求人の投稿はこちらからお気軽にお問い合わせください。

    YUSUKE SEKI STUDIOでは、この度新たなスタッフを募集します

    私たちは設計を「図面上で完結するもの」とは考えていません
    現場・カルチャー・社会との接点を行き来しながら、
    プロジェクトごとに設計のあり方そのものを更新していくスタジオです

    1|現場主義であること
    — 図面より先に、現場がある
    施工現場でのコミュニケーションや、
    そこで生まれる発見を重視しています
    状況に応じて、
    その場での判断を設計にアドリブ的に取り込むことも少なくありません
    CAD図面上だけで完結しない表現を目指しており、
    現場で考える設計に興味がある方に向いた環境です
    現場とデスクワークを往復すること自体を設計行為と捉えています

    2|カルチャー的感度を持った仕事
    — 境界線を引かないプロジェクト
    規模や分野にとらわれず
    ファッションブランドや企業、アーティストなど
    境界線を感じさせないクライアントとのプロジェクトが多くあります
    (Sacai、Issey Miyake、Suba、常石ホールディングス ほか)

    現在も、ホテル/オフィス/飲食店/アート作品制作など
    多様なプロジェクトが同時進行しています

    job.architecturephoto.net
    • ap job
    建築求人情報
    2025.12.26 Fri 18:21
    0
    permalink
    【ap job更新】 “物語る風景”を合言葉に建築領域を拡張する、菅原大輔が主宰の「SUGAWARADAISUKE建築事務所」が、設計スタッフ(経験者)と アルバイトを募集中

    ap job 【ap job更新】 “物語る風景”を合言葉に建築領域を拡張する、菅原大輔が主宰の「SUGAWARADAISUKE建築事務所」が、設計スタッフ(経験者)と アルバイトを募集中

    architecture|job|promotion
    建築求人情報
    【ap job更新】 “物語る風景”を合言葉に建築領域を拡張する、菅原大輔が主宰の「SUGAWARADAISUKE建築事務所」が、設計スタッフ(経験者)と アルバイトを募集中
    【ap job更新】 “物語る風景”を合言葉に建築領域を拡張する、菅原大輔が主宰の「SUGAWARADAISUKE建築事務所」が、設計スタッフ(経験者)と アルバイトを募集中中井町生涯学習融合施設/プロポーザル最優秀賞 新建築、architecturephotoなどに掲載
    アーキテクチャーフォトジョブボードに新しい情報が追加されました
    job.architecturephoto.net

    “物語る風景”を合言葉に建築領域を拡張する、菅原大輔が主宰の「SUGAWARADAISUKE建築事務所」の、設計スタッフ(経験者)と アルバイト募集のお知らせです。詳しくは、ジョブボードの当該ページにてご確認ください。アーキテクチャーフォトジョブボードには、その他にも、色々な事務所の求人情報が掲載されています。
    新規の求人の投稿はこちらからお気軽にお問い合わせください。

    まちと建築空間の設計スタッフ(実務経験3年以上)募集

    弊社は、菅原大輔が代表を務める建築家ティール組織です。地域や事業の未来を方向付ける基本構想から社会実装する詳細設計まで行い、「まちと建築」の未来像を提示し続けています。今回、社名を含めた業務拡大・組織改編に合わせ、長期的ビジョンで僕たちと共に成長する建築家を募集します。

    【事務所紹介】
    弊社は「次世代の物語る風景の構築」を合言葉に土木や都市や経営の専門家と連携しながら、企画・運営・研究を横断し、地域や都市の未来像を構想・実装する建築家集団です。都市構想や地域交通拠点、公共施設、オフィスビル、グローバルブランドの商業空間、リノベーションまで、領域やスケールを越境するプロジェクトに構想段階から関与しており、その実績は【国内外50近くの受賞歴】につながっています。

    弊社は、以下の三つの強みを持った組織です。
    01|地域や事業の物語と風景(コンテクスト)から発見的に未来を思考する
    02|設計やデザインの与条件である事業や基本構想からデザインする
    03|多様性豊かな個性と専門性が連携する【ティール組織】で建築事務所のビジネスモデルを進化させる。
    現在は『中井町生涯学習融合施設』をはじめ、地域拠点としての酒蔵、道の駅と里山の一体開発、都心の高層ビル群、軽井沢の超高級別荘など、その地域の「物語」と「風景」骨格から更新する大小さまざまな「まちと建築の設計」が進んでいます。

    【代表者と大反響を生んだ書籍の紹介】
    代表の菅原大輔は、シーラカンスアソシエイツを経て渡仏し、10か国27都市のプロジェクトを担当しました。帰国後、独立してからは「物語る風景」の構築を目指し、都市や地域などの広域的視点から設計活動を行ってきました。その実績が評価され、多くの自治体で景観行政の専門官も務めています。その設計思想と手法を「建築的移行帯の実践的研究-生態学における位後退の概念に着目した、複合的で動的な不均質空間の設計手法-」として、博士論文としてまとめました。この実践と研究を往復する知見を活かし、東京電機大学で准教授を務めながら、都市-建築-ブランディングを横断する活動を行っています。

    job.architecturephoto.net
    • ap job
    建築求人情報
    2025.12.26 Fri 17:38
    0
    permalink
    【ap job更新】 長野を拠点に、歴史の中で培われた手仕事の“知恵の体系”の継承を重視する「株式会社 菱田工務店」が、BIMの導入と設計を行うスタッフ(経験者)と業務委託を募集中

    ap job 【ap job更新】 長野を拠点に、歴史の中で培われた手仕事の“知恵の体系”の継承を重視する「株式会社 菱田工務店」が、BIMの導入と設計を行うスタッフ(経験者)と業務委託を募集中

    architecture|job|promotion
    建築求人情報
    【ap job更新】 長野を拠点に、歴史の中で培われた手仕事の“知恵の体系”の継承を重視する「株式会社 菱田工務店」が、BIMの導入と設計を行うスタッフ(経験者)と業務委託を募集中
    【ap job更新】 長野を拠点に、歴史の中で培われた手仕事の“知恵の体系”の継承を重視する「株式会社 菱田工務店」が、BIMの導入と設計を行うスタッフ(経験者)と業務委託を募集中住宅1
    アーキテクチャーフォトジョブボードに新しい情報が追加されました
    job.architecturephoto.net

    長野を拠点に、歴史の中で培われた手仕事の“知恵の体系”の継承を重視する「株式会社 菱田工務店」の、BIMの導入と設計を行うスタッフ(経験者)と業務委託 募集のお知らせです。詳しくは、ジョブボードの当該ページにてご確認ください。アーキテクチャーフォトジョブボードには、その他にも、色々な事務所の求人情報が掲載されています。
    新規の求人の投稿はこちらからお気軽にお問い合わせください。

    【会社概要】
    菱田工務店は、長野を拠点に木造建築を中心とした設計施工を行う工務店です。

    歴史的な手仕事の中で培われてきた寸法感覚、納まり、素材の扱い方といった知恵の体系を、現代の建築として整理し、継承していくことを重視しています。

    提案型注文住宅ブランド HUIZEN(ハウゼン)は、その思想を全国へ展開するための設計システムです。

    現在、社内の主な設計ツールはJW-CAD/AutoCADですが、今後はBIMを設計・積算・生産をつなぐ基盤として本格的に導入していく為、その立ち上げを担う人材を募集します。

    job.architecturephoto.net
    • ap job
    建築求人情報
    2025.12.26 Fri 17:12
    0
    permalink
    【ap job更新】 “自社での設計施工”と“建築家による作品の施工”の2本柱で活動する「シグマ建設」が、施工管理職と意匠設計のスタッフ(新卒・既卒・経験者)を募集中

    ap job 【ap job更新】 “自社での設計施工”と“建築家による作品の施工”の2本柱で活動する「シグマ建設」が、施工管理職と意匠設計のスタッフ(新卒・既卒・経験者)を募集中

    architecture|job|promotion
    建築求人情報
    【ap job更新】 “自社での設計施工”と“建築家による作品の施工”の2本柱で活動する「シグマ建設」が、施工管理職と意匠設計のスタッフ(新卒・既卒・経験者)を募集中
    【ap job更新】 “自社での設計施工”と“建築家による作品の施工”の2本柱で活動する「シグマ建設」が、施工管理職と意匠設計のスタッフ(新卒・既卒・経験者)を募集中熊谷のペンシルビル テナントビル 自社設計
    アーキテクチャーフォトジョブボードに新しい情報が追加されました
    job.architecturephoto.net

    “自社での設計施工”と“建築家による作品の施工”の2本柱で活動する「シグマ建設」の、施工管理職と意匠設計のスタッフ(新卒・既卒・経験者)募集のお知らせです。詳しくは、ジョブボードの当該ページにてご確認ください。アーキテクチャーフォトジョブボードには、その他にも、色々な事務所の求人情報が掲載されています。
    新規の求人の投稿はこちらからお気軽にお問い合わせください。

    シグマ建設ONO一級建築士事務所は、「自社での設計施工」「建築家による作品の施工」と2本の柱で、これまで多くの建物づくりに携わってきました。

    「自社での設計施工」では、住宅・集合住宅・店舗・事務所など多様な建物を、設計事務所としての「提案力」、建設会社としての「施工力」という2つの強みを活かして実現してきました。

    一方で「建築家による作品の施工」では建築家の追い求める空間を共に作り上げる事で、施工力を培うと共にメディア等でも取り上げられる作品作りに携わり、多くの刺激と経験を培ってきました。

    私たちは自社で設計担当・施工担当・大工と様々な職種を抱える事で、それぞれの視点からの考えを持ち寄り、対話を通してひとつひとつ丁寧に建物を作り上げていく環境を大切にしています。会話を通じて、多様な視点での意見を交換し、議論する事で納得いく建築づくり、担当者にとって掛け替えのない経験に繋がっていくと考えているからです。

    私たちと共に建築に携わってくれる方をお待ちしています。

    job.architecturephoto.net
    • ap job
    建築求人情報
    2025.12.26 Fri 15:52
    0
    permalink
    【ap job更新】 国内外で様々な用途の建築を手掛け、労働環境の向上も目指す「株式会社 森山博之設計事務所」が、設計スタッフ(経験者・既卒・2026年新卒)と アルバイトを募集中

    ap job 【ap job更新】 国内外で様々な用途の建築を手掛け、労働環境の向上も目指す「株式会社 森山博之設計事務所」が、設計スタッフ(経験者・既卒・2026年新卒)と アルバイトを募集中

    architecture|job|promotion
    建築求人情報
    【ap job更新】 国内外で様々な用途の建築を手掛け、労働環境の向上も目指す「株式会社 森山博之設計事務所」が、設計スタッフ(経験者・既卒・2026年新卒)と アルバイトを募集中
    【ap job更新】 国内外で様々な用途の建築を手掛け、労働環境の向上も目指す「株式会社 森山博之設計事務所」が、設計スタッフ(経験者・既卒・2026年新卒)と アルバイトを募集中岡山県津山市の社員寮
    アーキテクチャーフォトジョブボードに新しい情報が追加されました
    job.architecturephoto.net

    国内外で様々な用途の建築を手掛け、労働環境の向上も目指す「株式会社 森山博之設計事務所」の、設計スタッフ(経験者・既卒・2026年新卒)と アルバイト 募集のお知らせです。詳しくは、ジョブボードの当該ページにてご確認ください。アーキテクチャーフォトジョブボードには、その他にも、色々な事務所の求人情報が掲載されています。
    新規の求人の投稿はこちらからお気軽にお問い合わせください。

    ~スタッフ募集のお知らせ~

    森山博之設計事務所では設計スタッフを募集しています。

    弊社は、国内外のプロジェクト(現在、フランスでもプロジェクト進行中です)に関わっていただきながら、多くの経験を積んでいただける環境になっています。共同住宅のほか、個人住宅、店舗、事務所等、国内外の様々なタイプの建築を設計・監理しています。

    熱意と能力のある方には、企画段階から竣工までの業務を積極的に担当していただきますので、設計実務の経験を十分に重ねていただくことが可能です。

    募集職種のうち「ディレクター」職は、事務所の実質的なナンバーツーに育成する人材として、また将来的な役員候補として考えています。

    事務所は品川区南品川にあり、京急線(新馬場駅、青物横丁駅)、大井町駅(JR京浜東北線、東急大井町線、りんかい線)、大崎駅(JR山手線、埼京線)などが利用可能な利便性の高いエリアです。

    ワークライフバランス向上のため、業務の効率化と残業時間削減に取り組んでいます。残業は月平均20~30時間です。

    また、従業員の健康に配慮した業務配分を心がけており、土日や深夜の業務は極力行わない(直近10年で数回程度の実績です)よう努めています。

    job.architecturephoto.net
    • ap job
    建築求人情報
    2025.12.26 Fri 14:39
    0
    permalink
    【ap job更新】 リノベる株式会社が、デザイン・設計パートナー(業務委託)を募集中

    ap job 【ap job更新】 リノベる株式会社が、デザイン・設計パートナー(業務委託)を募集中

    architecture|job
    建築求人情報
    【ap job更新】 リノベる株式会社が、デザイン・設計パートナー(業務委託)を募集中
    【ap job更新】 リノベる株式会社が、デザイン・設計パートナー(業務委託)を募集中
    アーキテクチャーフォトジョブボードに新しい情報が追加されました
    job.architecturephoto.net

    リノベる株式会社の、デザイン・設計パートナー(業務委託)募集のお知らせです。詳しくは、ジョブボードの当該ページにてご確認ください。アーキテクチャーフォトジョブボードには、その他にも、色々な事務所の求人情報が掲載されています。
    新規の求人の投稿はこちらからお気軽にお問い合わせください。

    【デザイン・設計パートナー募集】

    月1~2件のデザインを、コンスタントに。
    「リノベる。」のお客様に向けた、オーダーメイドのリノベーションデザインを手がけて頂きます。

    担当していただくのは、ご契約後のお客様のみ。
    デザイナー自身が営業活動を行う必要はなく、お客様へのデザイン提案に集中頂けます。

    job.architecturephoto.net
    • ap job
    建築求人情報
    2025.12.26 Fri 11:00
    0
    permalink
    【ap job更新】 北海道の札幌を拠点に、地域社会を豊かに育む“建築文化の創造”を目指す「株式会社 遠藤建築アトリエ」が、設計スタッフ(経験者)を募集中

    ap job 【ap job更新】 北海道の札幌を拠点に、地域社会を豊かに育む“建築文化の創造”を目指す「株式会社 遠藤建築アトリエ」が、設計スタッフ(経験者)を募集中

    architecture|job|promotion
    建築求人情報
    【ap job更新】 北海道の札幌を拠点に、地域社会を豊かに育む“建築文化の創造”を目指す「株式会社 遠藤建築アトリエ」が、設計スタッフ(経験者)を募集中
    【ap job更新】 北海道の札幌を拠点に、地域社会を豊かに育む“建築文化の創造”を目指す「株式会社 遠藤建築アトリエ」が、設計スタッフ(経験者)を募集中小樽港観光船ターミナル
    アーキテクチャーフォトジョブボードに新しい情報が追加されました
    job.architecturephoto.net

    北海道の札幌を拠点に、地域社会を豊かに育む“建築文化の創造”を目指す「株式会社 遠藤建築アトリエ」の、設計スタッフ(経験者)募集のお知らせです。詳しくは、ジョブボードの当該ページにてご確認ください。アーキテクチャーフォトジョブボードには、その他にも、色々な事務所の求人情報が掲載されています。
    新規の求人の投稿はこちらからお気軽にお問い合わせください。

    北海道札幌から国内外の未来を拓く「株式会社遠藤建築アトリエ」では、設計スタッフ(正社員2名)を募集しています。

    【遠藤建築アトリエについて】
    小樽出身の建築家 遠藤謙一良が主宰する遠藤建築アトリエでは、自然、文化、素材など、その土地ならではの魅力を建築に取り込みながら、環境性能の高い建築、地域社会を豊かに育む建築文化の創造を目指しています。

    2019年竣工のエゾ松でつくられたオフィスは、都市の中、自然が移ろう光景を大切にした快適な創造的環境で、現在16名、20~40代(男女比50:50)のスタッフが在籍。
    小さな子どもを持つスタッフも多く、働き方を柔軟に調整しながら、北海道ならではの魅力ある仕事と子育ての両立を実現しています。

    job.architecturephoto.net
    • ap job
    建築求人情報
    2025.12.26 Fri 09:55
    0
    permalink
    2025.12.24Wed
    • 【ap job更新】 デザインとシステムでまちを豊かにする「UDS株式会社」が、建築企画職(経験者・既卒・新卒)を募集中
    • 【ap job更新】 遠藤克彦建築研究所が、設計スタッフ(経験者・既卒)を募集中
    • MVRDVによる、台湾・嘉義の「ウッデン・ワンダーズ」。かつて木材産業で知られた市の創設記念行事の為に計画。地域の自然林の賞賛と現代木造の可能性の提示を目指し、残存する木造建築の調査から開始。著名な木造遺産を参照した“屋根ライン”を特徴とする建築を考案
    2025.12.28Sun
    • ピーター・ズントーによる、スイス・クールの「ローマ遺跡のためのシェルター」(1986年) の現在の様子を紹介する動画。2025年11月に公開されたもの

    Subscribe and Follow

    公式アカウントをフォローして、
    見逃せない建築情報を受け取ろう。

    「建築と社会の関係を視覚化する」メディア、アーキテクチャーフォトの公式アカウントです。
    様々な切り口による複眼的視点で建築に関する情報を最速でお届けします。

    61,703
    • Follow
    85,571
    • Follow
    • Follow
    • Add Friends
    • Subscribe
    • 情報募集/建築・デザイン・アートの情報を随時募集しています。
      More
    • メールマガジン/ メールマガジンで最新の情報を配信しています。
      More

    architecturephoto® News Letter

    メールマガジンでも最新の更新情報を配信中

    • ホーム
    • アーキテクチャーフォトについて
    • アーキテクチャーフォト規約
    • プライバシーポリシー
    • 特定商取引法に関する表記
    • 利用者情報の外部送信について
    • 広告掲載について
    • お問い合わせ/作品投稿

    Copyright © architecturephoto.net.

    • 建築
    • アート
    • カルチャー
    • デザイン
    • ファッション
    • 動画
    • 展覧会
    • コンペ
    • 書籍
    • 建築求人
    • 特集記事
    • 注目情報
    • タグ
    • アーキテクチャーフォト ジョブボード
    • アーキテクチャーフォト・ブック
    • ホーム
    • アーキテクチャーフォトについて
    • アーキテクチャーフォト規約
    • プライバシーポリシー
    • 特定商取引法に関する表記
    • 利用者情報の外部送信について
    • 広告掲載について
    • お問い合わせ/作品投稿

    メールマガジンで最新の情報を配信しています

    この記事をシェア
    タイトルタイトルタイトルタイトルタイトル
    https://architecturephoto.net/permalink

    記事について#architecturephotonetでつぶやいてみましょう。
    有益なコメントは拡散や、サイトでも紹介させていただくこともございます。

    architecturephoto®
    • black
    • gray
    • white

    建築求人情報紹介

    Loading...