一色暁生建築設計事務所による、大阪・吹田市の「佐井寺の家」。標準像としての“ニュートラルな日本の住まい”も目指した計画。伸びやかな暮らしを求め、内外が完全に隔てられていない“透け感をもつ”建築を志向。日本家屋の意匠を“現代的に解釈”した要素でつくり上げる外観、敷地内の東側より見る。夕景 photo©Benjamin Hosking
一色暁生建築設計事務所による、大阪・吹田市の「佐井寺の家」。標準像としての“ニュートラルな日本の住まい”も目指した計画。伸びやかな暮らしを求め、内外が完全に隔てられていない“透け感をもつ”建築を志向。日本家屋の意匠を“現代的に解釈”した要素でつくり上げる1階、食事室から和室を見る。(障子を開けた状態) photo©Benjamin Hosking
一色暁生建築設計事務所による、大阪・吹田市の「佐井寺の家」。標準像としての“ニュートラルな日本の住まい”も目指した計画。伸びやかな暮らしを求め、内外が完全に隔てられていない“透け感をもつ”建築を志向。日本家屋の意匠を“現代的に解釈”した要素でつくり上げる1階、居間側から食事室と和室を見る。(障子を開けた状態) photo©Benjamin Hosking
一色暁生建築設計事務所による、大阪・吹田市の「佐井寺の家」。標準像としての“ニュートラルな日本の住まい”も目指した計画。伸びやかな暮らしを求め、内外が完全に隔てられていない“透け感をもつ”建築を志向。日本家屋の意匠を“現代的に解釈”した要素でつくり上げる2階、クローゼット側からホールを見る。 photo©Benjamin Hosking
一色暁生建築設計事務所が設計した、大阪・吹田市の「佐井寺の家」です。
標準像としての“ニュートラルな日本の住まい”も目指した計画です。建築家は、伸びやかな暮らしを求め、内外が完全に隔てられていない“透け感をもつ”建築を志向しました。そして、日本家屋の意匠を“現代的に解釈”した要素でつくり上げました。
国や文化、年代の異なるどんな人の心も惹きつける住宅の姿を探り続けている。
それは贅を尽くした煌びやかな豪邸でも、ミニマルなホワイトキューブでもないだろう。きっと、土地の空気に溶け込みながら、普遍的な美しさを湛えた時代を超えた住宅なのだと思う。
敷地は、昔ながらの日本家屋と現代的なメーカー住宅が入り混じる、時代の変遷の只中にある旗竿地。
限られた予算の中で、この地に適した5人家族のための家を描くにあたり、私の頭の中には日本家屋の姿があった。真壁で軸組が現された、無駄を削ぎ落とした簡潔な佇まい。
たとえ面積が小さくても、内と外、内と内が完全に隔てられていない透け感をもつ住宅であれば、窮屈さを感じずに暮らすことができるだろう。工事費が高騰し続ける今、永くこの国で育まれてきた住宅の姿を見つめ直すことこそ最適解であると信じ、設計を進めた。
建主の要望、性能、コストといった住宅に求められる様々な条件を、日本家屋の意匠を現代的に解釈しながら、注意深く整えていった。和室では宙に浮いた押入れとささやかな床の間がソファと絡み合い、居間や食事室との境界を暈かす。
地窓を塞ぐ板戸は、折り畳んで持ち手を天板の切り欠きに噛み合わせることで、テレビ台と一体造作のように収納できる。これは、日本建築に見られる、使うときだけ機能が立ち現れ、不要なときには空間や家具の一部として溶け込む可動性・兼用性から着想を得て考案したものだ。
さらに、和室の障子では戸先に目隠し用の堅木を取り付けることで柱に絡む縦枠を省き、2階の引戸では柱梁そのものに鴨居や枠の役目を担わせ、枠を一部排除している。こうした操作により、軸組の独立性を際立たせ、真壁に通じる骨格の明快さを引き出している。
以下の写真はクリックで拡大します

一色暁生建築設計事務所による、大阪・吹田市の「佐井寺の家」。標準像としての“ニュートラルな日本の住まい”も目指した計画。伸びやかな暮らしを求め、内外が完全に隔てられていない“透け感をもつ”建築を志向。日本家屋の意匠を“現代的に解釈”した要素でつくり上げる外観、敷地内の東側より見る。 photo©Benjamin Hosking

一色暁生建築設計事務所による、大阪・吹田市の「佐井寺の家」。標準像としての“ニュートラルな日本の住まい”も目指した計画。伸びやかな暮らしを求め、内外が完全に隔てられていない“透け感をもつ”建築を志向。日本家屋の意匠を“現代的に解釈”した要素でつくり上げる外観、敷地内の東側より見る。 photo©Benjamin Hosking

一色暁生建築設計事務所による、大阪・吹田市の「佐井寺の家」。標準像としての“ニュートラルな日本の住まい”も目指した計画。伸びやかな暮らしを求め、内外が完全に隔てられていない“透け感をもつ”建築を志向。日本家屋の意匠を“現代的に解釈”した要素でつくり上げる1階、食事室から玄関側を見る。 photo©Benjamin Hosking

一色暁生建築設計事務所による、大阪・吹田市の「佐井寺の家」。標準像としての“ニュートラルな日本の住まい”も目指した計画。伸びやかな暮らしを求め、内外が完全に隔てられていない“透け感をもつ”建築を志向。日本家屋の意匠を“現代的に解釈”した要素でつくり上げる1階、玄関側から食事室を見る。 photo©Benjamin Hosking

一色暁生建築設計事務所による、大阪・吹田市の「佐井寺の家」。標準像としての“ニュートラルな日本の住まい”も目指した計画。伸びやかな暮らしを求め、内外が完全に隔てられていない“透け感をもつ”建築を志向。日本家屋の意匠を“現代的に解釈”した要素でつくり上げる1階、食事室側からキッチンを見る。 photo©Benjamin Hosking

一色暁生建築設計事務所による、大阪・吹田市の「佐井寺の家」。標準像としての“ニュートラルな日本の住まい”も目指した計画。伸びやかな暮らしを求め、内外が完全に隔てられていない“透け感をもつ”建築を志向。日本家屋の意匠を“現代的に解釈”した要素でつくり上げる1階、キッチンからスタディを見る。 photo©Benjamin Hosking

一色暁生建築設計事務所による、大阪・吹田市の「佐井寺の家」。標準像としての“ニュートラルな日本の住まい”も目指した計画。伸びやかな暮らしを求め、内外が完全に隔てられていない“透け感をもつ”建築を志向。日本家屋の意匠を“現代的に解釈”した要素でつくり上げる1階、食事室から和室を見る。 photo©Benjamin Hosking

一色暁生建築設計事務所による、大阪・吹田市の「佐井寺の家」。標準像としての“ニュートラルな日本の住まい”も目指した計画。伸びやかな暮らしを求め、内外が完全に隔てられていない“透け感をもつ”建築を志向。日本家屋の意匠を“現代的に解釈”した要素でつくり上げる1階、食事室から和室を見る。(障子を開けた状態) photo©Benjamin Hosking

一色暁生建築設計事務所による、大阪・吹田市の「佐井寺の家」。標準像としての“ニュートラルな日本の住まい”も目指した計画。伸びやかな暮らしを求め、内外が完全に隔てられていない“透け感をもつ”建築を志向。日本家屋の意匠を“現代的に解釈”した要素でつくり上げる1階、食事室から和室を見る。 photo©Benjamin Hosking

一色暁生建築設計事務所による、大阪・吹田市の「佐井寺の家」。標準像としての“ニュートラルな日本の住まい”も目指した計画。伸びやかな暮らしを求め、内外が完全に隔てられていない“透け感をもつ”建築を志向。日本家屋の意匠を“現代的に解釈”した要素でつくり上げる1階、食事室から和室越しに居間を見る。 photo©Benjamin Hosking

一色暁生建築設計事務所による、大阪・吹田市の「佐井寺の家」。標準像としての“ニュートラルな日本の住まい”も目指した計画。伸びやかな暮らしを求め、内外が完全に隔てられていない“透け感をもつ”建築を志向。日本家屋の意匠を“現代的に解釈”した要素でつくり上げる1階、和室 photo©Benjamin Hosking

一色暁生建築設計事務所による、大阪・吹田市の「佐井寺の家」。標準像としての“ニュートラルな日本の住まい”も目指した計画。伸びやかな暮らしを求め、内外が完全に隔てられていない“透け感をもつ”建築を志向。日本家屋の意匠を“現代的に解釈”した要素でつくり上げる1階、和室から居間を見る。 photo©Benjamin Hosking

一色暁生建築設計事務所による、大阪・吹田市の「佐井寺の家」。標準像としての“ニュートラルな日本の住まい”も目指した計画。伸びやかな暮らしを求め、内外が完全に隔てられていない“透け感をもつ”建築を志向。日本家屋の意匠を“現代的に解釈”した要素でつくり上げる1階、和室から居間を見る。 photo©Benjamin Hosking

一色暁生建築設計事務所による、大阪・吹田市の「佐井寺の家」。標準像としての“ニュートラルな日本の住まい”も目指した計画。伸びやかな暮らしを求め、内外が完全に隔てられていない“透け感をもつ”建築を志向。日本家屋の意匠を“現代的に解釈”した要素でつくり上げる1階、和室、押入 photo©Benjamin Hosking

一色暁生建築設計事務所による、大阪・吹田市の「佐井寺の家」。標準像としての“ニュートラルな日本の住まい”も目指した計画。伸びやかな暮らしを求め、内外が完全に隔てられていない“透け感をもつ”建築を志向。日本家屋の意匠を“現代的に解釈”した要素でつくり上げる1階、和室から食事室を見る。 photo©Benjamin Hosking

一色暁生建築設計事務所による、大阪・吹田市の「佐井寺の家」。標準像としての“ニュートラルな日本の住まい”も目指した計画。伸びやかな暮らしを求め、内外が完全に隔てられていない“透け感をもつ”建築を志向。日本家屋の意匠を“現代的に解釈”した要素でつくり上げる1階、和室から食事室を見る。 photo©Benjamin Hosking

一色暁生建築設計事務所による、大阪・吹田市の「佐井寺の家」。標準像としての“ニュートラルな日本の住まい”も目指した計画。伸びやかな暮らしを求め、内外が完全に隔てられていない“透け感をもつ”建築を志向。日本家屋の意匠を“現代的に解釈”した要素でつくり上げる1階、居間から和室を見る。 photo©Benjamin Hosking

一色暁生建築設計事務所による、大阪・吹田市の「佐井寺の家」。標準像としての“ニュートラルな日本の住まい”も目指した計画。伸びやかな暮らしを求め、内外が完全に隔てられていない“透け感をもつ”建築を志向。日本家屋の意匠を“現代的に解釈”した要素でつくり上げる1階、居間側から食事室と和室を見る。 photo©Benjamin Hosking

一色暁生建築設計事務所による、大阪・吹田市の「佐井寺の家」。標準像としての“ニュートラルな日本の住まい”も目指した計画。伸びやかな暮らしを求め、内外が完全に隔てられていない“透け感をもつ”建築を志向。日本家屋の意匠を“現代的に解釈”した要素でつくり上げる1階、居間側から食事室と和室を見る。 photo©Benjamin Hosking

一色暁生建築設計事務所による、大阪・吹田市の「佐井寺の家」。標準像としての“ニュートラルな日本の住まい”も目指した計画。伸びやかな暮らしを求め、内外が完全に隔てられていない“透け感をもつ”建築を志向。日本家屋の意匠を“現代的に解釈”した要素でつくり上げる1階、居間側から食事室と和室を見る。(障子を開けた状態) photo©Benjamin Hosking

一色暁生建築設計事務所による、大阪・吹田市の「佐井寺の家」。標準像としての“ニュートラルな日本の住まい”も目指した計画。伸びやかな暮らしを求め、内外が完全に隔てられていない“透け感をもつ”建築を志向。日本家屋の意匠を“現代的に解釈”した要素でつくり上げる1階、居間から食事室を見る。 photo©Benjamin Hosking

一色暁生建築設計事務所による、大阪・吹田市の「佐井寺の家」。標準像としての“ニュートラルな日本の住まい”も目指した計画。伸びやかな暮らしを求め、内外が完全に隔てられていない“透け感をもつ”建築を志向。日本家屋の意匠を“現代的に解釈”した要素でつくり上げる1階、キッチン側から食事室越しに2階への階段を見る。 photo©Benjamin Hosking

一色暁生建築設計事務所による、大阪・吹田市の「佐井寺の家」。標準像としての“ニュートラルな日本の住まい”も目指した計画。伸びやかな暮らしを求め、内外が完全に隔てられていない“透け感をもつ”建築を志向。日本家屋の意匠を“現代的に解釈”した要素でつくり上げる2階、階段横のホールから寝室側を見る。 photo©Benjamin Hosking

一色暁生建築設計事務所による、大阪・吹田市の「佐井寺の家」。標準像としての“ニュートラルな日本の住まい”も目指した計画。伸びやかな暮らしを求め、内外が完全に隔てられていない“透け感をもつ”建築を志向。日本家屋の意匠を“現代的に解釈”した要素でつくり上げる2階、クローゼット側からホールを見る。 photo©Benjamin Hosking

一色暁生建築設計事務所による、大阪・吹田市の「佐井寺の家」。標準像としての“ニュートラルな日本の住まい”も目指した計画。伸びやかな暮らしを求め、内外が完全に隔てられていない“透け感をもつ”建築を志向。日本家屋の意匠を“現代的に解釈”した要素でつくり上げる2階、ホール、洗面台 photo©Benjamin Hosking

一色暁生建築設計事務所による、大阪・吹田市の「佐井寺の家」。標準像としての“ニュートラルな日本の住まい”も目指した計画。伸びやかな暮らしを求め、内外が完全に隔てられていない“透け感をもつ”建築を志向。日本家屋の意匠を“現代的に解釈”した要素でつくり上げる2階、洗面台、鏡の詳細 photo©Benjamin Hosking

一色暁生建築設計事務所による、大阪・吹田市の「佐井寺の家」。標準像としての“ニュートラルな日本の住まい”も目指した計画。伸びやかな暮らしを求め、内外が完全に隔てられていない“透け感をもつ”建築を志向。日本家屋の意匠を“現代的に解釈”した要素でつくり上げる2階、寝室からホールを見る。 photo©Benjamin Hosking

一色暁生建築設計事務所による、大阪・吹田市の「佐井寺の家」。標準像としての“ニュートラルな日本の住まい”も目指した計画。伸びやかな暮らしを求め、内外が完全に隔てられていない“透け感をもつ”建築を志向。日本家屋の意匠を“現代的に解釈”した要素でつくり上げる2階、廊下から吹抜越しに1階を見下ろす。 photo©Benjamin Hosking

一色暁生建築設計事務所による、大阪・吹田市の「佐井寺の家」。標準像としての“ニュートラルな日本の住まい”も目指した計画。伸びやかな暮らしを求め、内外が完全に隔てられていない“透け感をもつ”建築を志向。日本家屋の意匠を“現代的に解釈”した要素でつくり上げる1階、食事室から洗面所側を見る。 photo©Benjamin Hosking

一色暁生建築設計事務所による、大阪・吹田市の「佐井寺の家」。標準像としての“ニュートラルな日本の住まい”も目指した計画。伸びやかな暮らしを求め、内外が完全に隔てられていない“透け感をもつ”建築を志向。日本家屋の意匠を“現代的に解釈”した要素でつくり上げる2階、手摺の詳細 photo©Benjamin Hosking

一色暁生建築設計事務所による、大阪・吹田市の「佐井寺の家」。標準像としての“ニュートラルな日本の住まい”も目指した計画。伸びやかな暮らしを求め、内外が完全に隔てられていない“透け感をもつ”建築を志向。日本家屋の意匠を“現代的に解釈”した要素でつくり上げる1階、天井・柱・押入の詳細 photo©Benjamin Hosking

一色暁生建築設計事務所による、大阪・吹田市の「佐井寺の家」。標準像としての“ニュートラルな日本の住まい”も目指した計画。伸びやかな暮らしを求め、内外が完全に隔てられていない“透け感をもつ”建築を志向。日本家屋の意匠を“現代的に解釈”した要素でつくり上げる1階、居間、建具の詳細 photo©Benjamin Hosking

一色暁生建築設計事務所による、大阪・吹田市の「佐井寺の家」。標準像としての“ニュートラルな日本の住まい”も目指した計画。伸びやかな暮らしを求め、内外が完全に隔てられていない“透け感をもつ”建築を志向。日本家屋の意匠を“現代的に解釈”した要素でつくり上げる1階、居間、建具の詳細(開いた状態) photo©Benjamin Hosking

一色暁生建築設計事務所による、大阪・吹田市の「佐井寺の家」。標準像としての“ニュートラルな日本の住まい”も目指した計画。伸びやかな暮らしを求め、内外が完全に隔てられていない“透け感をもつ”建築を志向。日本家屋の意匠を“現代的に解釈”した要素でつくり上げる1階、居間、照明 photo©Benjamin Hosking

一色暁生建築設計事務所による、大阪・吹田市の「佐井寺の家」。標準像としての“ニュートラルな日本の住まい”も目指した計画。伸びやかな暮らしを求め、内外が完全に隔てられていない“透け感をもつ”建築を志向。日本家屋の意匠を“現代的に解釈”した要素でつくり上げる外観、柱と基礎の詳細 photo©Benjamin Hosking

一色暁生建築設計事務所による、大阪・吹田市の「佐井寺の家」。標準像としての“ニュートラルな日本の住まい”も目指した計画。伸びやかな暮らしを求め、内外が完全に隔てられていない“透け感をもつ”建築を志向。日本家屋の意匠を“現代的に解釈”した要素でつくり上げる外観、2階の開口部越しに内部を見る。夕景 photo©Benjamin Hosking

一色暁生建築設計事務所による、大阪・吹田市の「佐井寺の家」。標準像としての“ニュートラルな日本の住まい”も目指した計画。伸びやかな暮らしを求め、内外が完全に隔てられていない“透け感をもつ”建築を志向。日本家屋の意匠を“現代的に解釈”した要素でつくり上げる外観、敷地内の東側より見る。夕景 photo©Benjamin Hosking

一色暁生建築設計事務所による、大阪・吹田市の「佐井寺の家」。標準像としての“ニュートラルな日本の住まい”も目指した計画。伸びやかな暮らしを求め、内外が完全に隔てられていない“透け感をもつ”建築を志向。日本家屋の意匠を“現代的に解釈”した要素でつくり上げる外観、敷地内の東側より見る。夕景 photo©Benjamin Hosking

一色暁生建築設計事務所による、大阪・吹田市の「佐井寺の家」。標準像としての“ニュートラルな日本の住まい”も目指した計画。伸びやかな暮らしを求め、内外が完全に隔てられていない“透け感をもつ”建築を志向。日本家屋の意匠を“現代的に解釈”した要素でつくり上げる配置図 image©一色暁生建築設計事務所

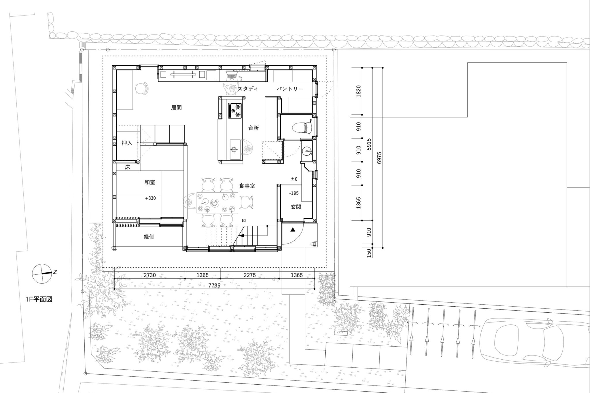
一色暁生建築設計事務所による、大阪・吹田市の「佐井寺の家」。標準像としての“ニュートラルな日本の住まい”も目指した計画。伸びやかな暮らしを求め、内外が完全に隔てられていない“透け感をもつ”建築を志向。日本家屋の意匠を“現代的に解釈”した要素でつくり上げる1階平面図 image©一色暁生建築設計事務所

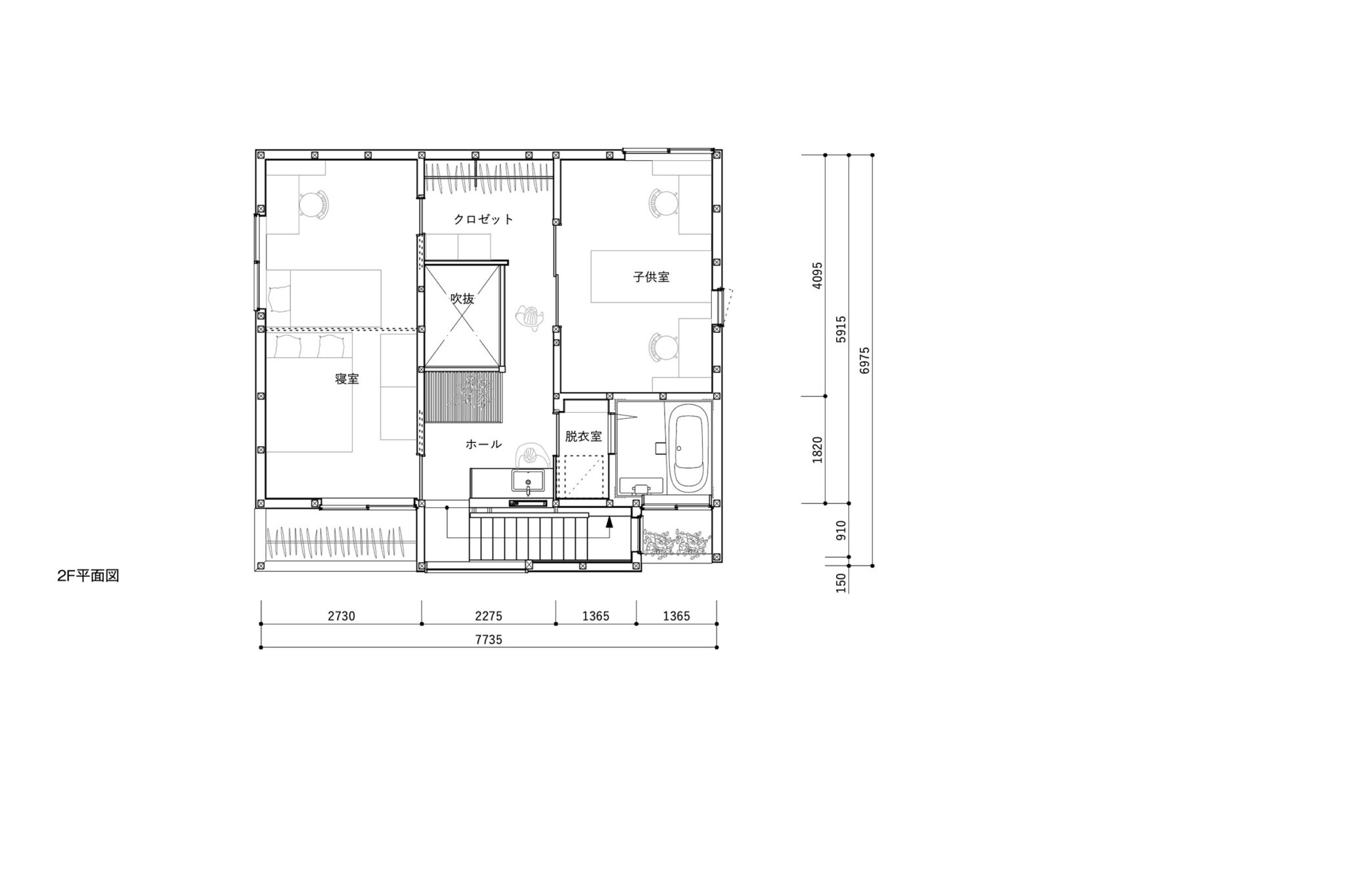
一色暁生建築設計事務所による、大阪・吹田市の「佐井寺の家」。標準像としての“ニュートラルな日本の住まい”も目指した計画。伸びやかな暮らしを求め、内外が完全に隔てられていない“透け感をもつ”建築を志向。日本家屋の意匠を“現代的に解釈”した要素でつくり上げる2階平面図 image©一色暁生建築設計事務所

一色暁生建築設計事務所による、大阪・吹田市の「佐井寺の家」。標準像としての“ニュートラルな日本の住まい”も目指した計画。伸びやかな暮らしを求め、内外が完全に隔てられていない“透け感をもつ”建築を志向。日本家屋の意匠を“現代的に解釈”した要素でつくり上げる東側立面図 image©一色暁生建築設計事務所

一色暁生建築設計事務所による、大阪・吹田市の「佐井寺の家」。標準像としての“ニュートラルな日本の住まい”も目指した計画。伸びやかな暮らしを求め、内外が完全に隔てられていない“透け感をもつ”建築を志向。日本家屋の意匠を“現代的に解釈”した要素でつくり上げる東西断面図 image©一色暁生建築設計事務所

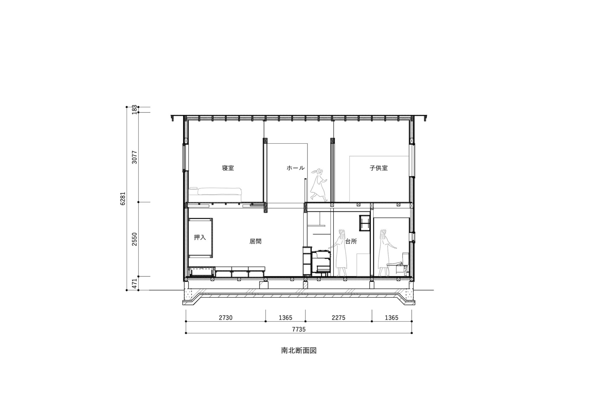
一色暁生建築設計事務所による、大阪・吹田市の「佐井寺の家」。標準像としての“ニュートラルな日本の住まい”も目指した計画。伸びやかな暮らしを求め、内外が完全に隔てられていない“透け感をもつ”建築を志向。日本家屋の意匠を“現代的に解釈”した要素でつくり上げる南北断面図 image©一色暁生建築設計事務所
以下、建築家によるテキストです。
ニュートラルな日本の住まい
国や文化、年代の異なるどんな人の心も惹きつける住宅の姿を探り続けている。
それは贅を尽くした煌びやかな豪邸でも、ミニマルなホワイトキューブでもないだろう。きっと、土地の空気に溶け込みながら、普遍的な美しさを湛えた時代を超えた住宅なのだと思う。
敷地は、昔ながらの日本家屋と現代的なメーカー住宅が入り混じる、時代の変遷の只中にある旗竿地。
限られた予算の中で、この地に適した5人家族のための家を描くにあたり、私の頭の中には日本家屋の姿があった。真壁で軸組が現された、無駄を削ぎ落とした簡潔な佇まい。
たとえ面積が小さくても、内と外、内と内が完全に隔てられていない透け感をもつ住宅であれば、窮屈さを感じずに暮らすことができるだろう。工事費が高騰し続ける今、永くこの国で育まれてきた住宅の姿を見つめ直すことこそ最適解であると信じ、設計を進めた。
建物は周囲の環境に馴染むよう、総2階建てに切妻屋根をかけたシンプルな形状とし、焼杉で仕上げた慎ましい外観とした。階高を抑えつつ構造を現し、2階床を1階天井と兼ねた杉板一枚とすることで、材料や工事を減らしながら開放感を確保している。
建材は手に入りやすい一般的なものに限定し、工種が増える仕様を避け、大工の手で完結できるものを採用した。料理好きの夫婦のために台所と食事室を家の中心に据え、その周囲に生活の諸要素をコンパクトに散らしつつ、土地の低い東側に向けて大きな開口と縁側を設け、自然と意識が外へと向かう、家族5人が伸びやかに暮らせる住まいを目指した。
建主の要望、性能、コストといった住宅に求められる様々な条件を、日本家屋の意匠を現代的に解釈しながら、注意深く整えていった。和室では宙に浮いた押入れとささやかな床の間がソファと絡み合い、居間や食事室との境界を暈かす。
地窓を塞ぐ板戸は、折り畳んで持ち手を天板の切り欠きに噛み合わせることで、テレビ台と一体造作のように収納できる。これは、日本建築に見られる、使うときだけ機能が立ち現れ、不要なときには空間や家具の一部として溶け込む可動性・兼用性から着想を得て考案したものだ。
さらに、和室の障子では戸先に目隠し用の堅木を取り付けることで柱に絡む縦枠を省き、2階の引戸では柱梁そのものに鴨居や枠の役目を担わせ、枠を一部排除している。こうした操作により、軸組の独立性を際立たせ、真壁に通じる骨格の明快さを引き出している。
昨今、家を建てる際に、日本人だからといって和風の住宅を望む人は少ない。そして住宅から畳や床の間は姿を消し、閉じ切った家に住み、季節を愛でることも失われつつある。
しかし、清潔な畳が放つ気配、畳縁や障子の桟の繊細な線が生む静謐な緊張感、障子を透過する柔らかな光と和紙に映る葉影が織りなす揺らぎ、内外の境を曖昧にしながら季節の風を家の中へと引き込む居心地の良い縁側⎯⎯そうした日本住宅のエレメントは、国や文化を越えて共有できる美しさを備えているのではないかと信じている。
同時にまた、これらを絶やすことなく後世に残していきたいと思う。そのためにも、決して華美で懐古的なものではなく、素朴で簡素だけど機能的で美しい、一つの標準像としての庶民のためのニュートラルな日本の住まいをつくりたいと考えている。
■建築概要
題名:佐井寺の家
所在地:大阪府吹田市
主用途:住宅
設計:一色暁生建築設計事務所 担当/一色暁生、一色優
構造設計:小谷建築設計 担当/小谷竜士、望月陽菜
施工:笹原建設
大工工事:Conz、三好工務店
ソファ製作:瀧本晋作
スチール照明カバー:稲嶺鉄工作室
構造:木造
階数:地上2階
敷地面積:180.96㎡
建築面積:53.89㎡
延床面積:96.13㎡
設計:2023年12月~2024年12月
工事:2025年1月~2025年7月
竣工:2025年7月
写真:Benjamin Hosking