
SHARE 手塚貴晴+手塚由比による書籍『建築のすすめ』をプレビュー。プレゼント企画も実施。建築学生や若い設計者に向けて自らの経験を“惜しみなく伝える”内容。検討スケッチや詳細図から卒業設計まで、初公開の貴重資料を多数収録

手塚貴晴+手塚由比による書籍『建築のすすめ』をプレビューします。
また、本書籍を抽選でプレゼントいたします。建築学生や若い設計者に向けて自らの経験を“惜しみなく伝える”内容です。検討スケッチや詳細図から卒業設計まで、初公開の貴重資料を多数収録しています。
プレゼント企画の応募締切は、2026年5月8日(金)13時まで(お申込みにはGoogleアカウントが必要になります)。こちらのフォームからご応募ください。厳正な抽選を行い当選された方にはメールにてご連絡いたします(メール送付を当選発表にかえさせていただきます)。本書籍のオンラインでの販売ページはこちら(amazon)。
建築を学ぶ学生や若手設計者へ
自らの経験を惜しみなく伝える手塚流“建築のすすめ”「ふじようちえん」や「副島病院」「屋根の家」「新島学園短期大学講堂-新島の森」「風姿」「希望のまち」などの詳細図やスケッチ、そして二人の卒業設計まで。初公開の貴重資料を多数収録。
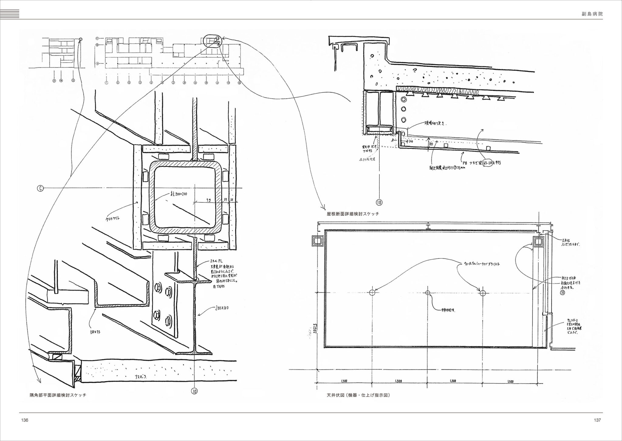
当時すべて手塚貴晴の手描きだったという処女作「副島病院」の実施図面に加え、「屋根の家」「風姿」「新島学園短期大学講堂-新島の森」「希望のまち」などの検討スケッチや詳細図、そして「ふじようちえん」設計中のスケッチやドローイングなど、初公開の貴重資料を大ヴォリュームで収録。さらには二人の卒業設計、旅のスケッチまで掲載されており、手塚建築ファン必携の一冊です(図面やスケッチが見開きやすい糸かがりの製本仕様)。
「建築家は幸せな仕事である。よき建築をつくれば、よい水とよい空気を得て健康に子どもが育つように、社会を幸せへと導ける。しかし一人の力は限られている。思想を伝えたい。いままで出会った若者たち。彼らが紡ぐ未来が見えた。」
―手塚貴晴+手塚由比(あとがきに代えてより)
以下に、プレビュー画像を掲載します。
『建築のすすめ』のプレビュー画像
以下の写真はクリックで拡大します










目次
はしがき 僕らは建築家になったかもしれない
建築のすすめ 手塚貴晴
建築家になろう 建築を学ぶ学生たちへ
世界と人間の絆をもう一度
広瀬鎌二 神のような教授1
広瀬鎌二 神のような教授2
学生の設計は嘘
立派な嘘をついてほしい
手塚貴晴の卒業設計
ほどほど 鎌倉山の家建築家を志したきっかけ 手塚由比
建築家を志したきっかけ
実家のこと
小学生時代
中学~高校時代
大学時代
手塚由比の卒業設計
ロンドンでの生活
「喫茶ロン」のこと
母のこと建築を学ぶ若者たちへ 手塚貴晴
(構造の覚書)
嫌われ者の構造力学
構造はデザイン
なぜフェイクの構造はいけないのか?
姿と構造
鉄骨
梁のプロポーション(木造の覚書)
木は命
木造
装飾か構造か
斗供
木と想い出 あさひ幼稚園
扇垂木 光恩寺・とみおかこどもえん
自由にしかし合理的に 箱根彫刻の森 ネットの森
過去と未来 富岡商工会議所会館
やわらかい木造 新島学園短期大学講堂-新島の森(音響の覚書)
JSバッハ
新島学園短期大学講堂-新島の森
番町教会
THE MOMENT JAZZ CLUB
むく保育園(環境の覚書)
怪しいサスティナブル建築
風情の環境工学(都市の覚書)
不便な都市
綺麗な都市と面白い都市 渋谷フクラス(詳細図の覚書)
神はいまでもディテールに宿っているのか?(旅の覚書)
名建築はシンプル
旅とスケッチ詳細図
副島病院
屋根の家
越後松之山「森の学校」キョロロ
ふじようちえん
聖鳩幼稚園/茅ヶ崎シオンキリスト教会
渋谷フクラス
PLAY!
あさひ幼稚園
新島学園短期大学講堂-新島の森
風姿
希望のまち旅とスケッチ
トルコ/エジプト/イタリア/フランス/イギリス/スイス/スペイン/インド/アメリカアトリエのすすめ
Princeton
著者プロフィール
手塚貴晴(てづか・たかはる)
1964年東京都生まれ。建築家。手塚建築研究所代表。東京都市大学教授。1987年武蔵工業大学(現東京都市大学)卒業。1990年ペンシルべニア大学大学院修了後、リチャード・ロジャース・パートナーシップ・ロンドン勤務。1994年手塚由比と手塚建築研究所を共同設立。OECD(経済開発協力機構)とUNESCOにより世界でもっとも優れた学校に選ばれた「ふじようちえん」に加え、「渋谷フクラス」などの大型建築物、「新島学園短期大学講堂 −新島の森」や「THE MOMENT JAZZ CLUB」などの特殊音響、小児がんセンター「チャイルド・ケモ・ハウス」などの病院建築も手がける。その他の代表作に「屋根の家」「あさひ幼稚園」「空の森クリニック」「むく保育園」など。世界環境建築賞Global Award for Sustainable Architecture、World Architecture Festival受賞。国内では日本建築学会賞、日本建築家協会賞、グッドデザイン金賞、こども環境学会賞など受賞。TEDトークの再生回数は2015年の世界7位を記録。
手塚由比(てづか・ゆい)
1969年神奈川生まれ。建築家。1992年武蔵工業大学卒業。1992-1993年ロンドン大学バートレット校(ロン・ヘロンに師事)。1994年手塚貴晴と手塚建築研究所を共同設立。1999年より東洋大学非常勤講師、2001年より東海大学非常勤講師、2006年ザルツブルグ・サマーアカデミー教授、2006年UCバークレー客員教授。

■書籍概要
書名:『手塚貴晴+手塚由比 建築のすすめ』
著者:手塚貴晴+手塚由比
出版社:グラフィック社
発売日:2026年3月刊行
仕様:A5 並製 総256頁
定価:3520円(10%税込)
ISBN:978-4-7661-4071-2






