依木想太 / Souta Yoriki Design Officeによる、長崎の「五島列島鎧瀬海岸の別邸」。古民家を改修した住宅兼宿泊施設。目前に“海岸が広がる”環境に着目し、海に向けて“水平線に呼応する横長の窓”等を配する建築を考案。自然素材の使用とシンプルな空間構成は“温もり”と“モダン”の共存も意図外観、北東側より見下ろす。夜景 photo©楠瀬友将
依木想太 / Souta Yoriki Design Officeによる、長崎の「五島列島鎧瀬海岸の別邸」。古民家を改修した住宅兼宿泊施設。目前に“海岸が広がる”環境に着目し、海に向けて“水平線に呼応する横長の窓”等を配する建築を考案。自然素材の使用とシンプルな空間構成は“温もり”と“モダン”の共存も意図外観、敷地内の北側より見る。夕景 photo©楠瀬友将
依木想太 / Souta Yoriki Design Officeによる、長崎の「五島列島鎧瀬海岸の別邸」。古民家を改修した住宅兼宿泊施設。目前に“海岸が広がる”環境に着目し、海に向けて“水平線に呼応する横長の窓”等を配する建築を考案。自然素材の使用とシンプルな空間構成は“温もり”と“モダン”の共存も意図1階、エントランス側から空間全体を見る。 photo©楠瀬友将
依木想太 / Souta Yoriki Design Officeによる、長崎の「五島列島鎧瀬海岸の別邸」。古民家を改修した住宅兼宿泊施設。目前に“海岸が広がる”環境に着目し、海に向けて“水平線に呼応する横長の窓”等を配する建築を考案。自然素材の使用とシンプルな空間構成は“温もり”と“モダン”の共存も意図1階、リビングルームから開口部越しに外部を見る。 photo©楠瀬友将
依木想太 / Souta Yoriki Design Officeが設計した、長崎・五島市の「五島列島鎧瀬海岸の別邸」です。
古民家を改修した住宅兼宿泊施設の計画です。建築家は、目前に“海岸が広がる”環境に着目し、海に向けて“水平線に呼応する横長の窓”等を配する建築を考案しました。また、自然素材の使用とシンプルな空間構成は“温もり”と“モダン”の共存も意図されました。施設の公式サイトはこちら。
長崎県五島列島福江島にて、古民家を別邸兼民泊施設へ改修する計画である。
目前には鎧瀬海岸が広がっており、この風景を部屋内からも一望できるようにしたいと考えた。
そこで、各部屋の窓を海側へ向かって設置するようにし、かつリビングの窓は水平線に呼応するように横長でダイナミックな窓とした。
また、島を取り巻く自然環境に対応するようになるべく自然素材を用いる計画とし、空間構成をシンプルにすることで、温もりがありながらもモダンな印象になるような空間を目指した。
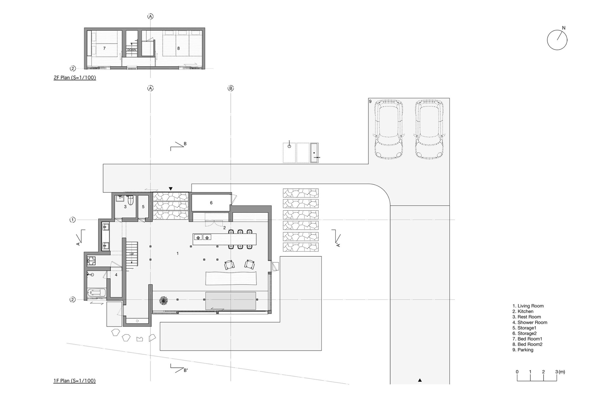
間取り構成としては民泊として利用する際に、リビングが空間のハブになるようにシークエンスの中心に広く設けることで利用者のコミュニケーションを促進するようにし、かつ部屋の内外で土間を連続してフラットに繋げることで内外の関係を曖昧にし、自然の多いこの島を存分に体験できるような計画とした。
以下の写真はクリックで拡大します

依木想太 / Souta Yoriki Design Officeによる、長崎の「五島列島鎧瀬海岸の別邸」。古民家を改修した住宅兼宿泊施設。目前に“海岸が広がる”環境に着目し、海に向けて“水平線に呼応する横長の窓”等を配する建築を考案。自然素材の使用とシンプルな空間構成は“温もり”と“モダン”の共存も意図外観、北東側より見下ろす。夜景 photo©楠瀬友将

依木想太 / Souta Yoriki Design Officeによる、長崎の「五島列島鎧瀬海岸の別邸」。古民家を改修した住宅兼宿泊施設。目前に“海岸が広がる”環境に着目し、海に向けて“水平線に呼応する横長の窓”等を配する建築を考案。自然素材の使用とシンプルな空間構成は“温もり”と“モダン”の共存も意図外観、敷地内の北側より見る。夕景 photo©楠瀬友将

依木想太 / Souta Yoriki Design Officeによる、長崎の「五島列島鎧瀬海岸の別邸」。古民家を改修した住宅兼宿泊施設。目前に“海岸が広がる”環境に着目し、海に向けて“水平線に呼応する横長の窓”等を配する建築を考案。自然素材の使用とシンプルな空間構成は“温もり”と“モダン”の共存も意図外観、南側より開口部越しに内部を見る。夕景 photo©楠瀬友将

依木想太 / Souta Yoriki Design Officeによる、長崎の「五島列島鎧瀬海岸の別邸」。古民家を改修した住宅兼宿泊施設。目前に“海岸が広がる”環境に着目し、海に向けて“水平線に呼応する横長の窓”等を配する建築を考案。自然素材の使用とシンプルな空間構成は“温もり”と“モダン”の共存も意図アプローチ photo©楠瀬友将

依木想太 / Souta Yoriki Design Officeによる、長崎の「五島列島鎧瀬海岸の別邸」。古民家を改修した住宅兼宿泊施設。目前に“海岸が広がる”環境に着目し、海に向けて“水平線に呼応する横長の窓”等を配する建築を考案。自然素材の使用とシンプルな空間構成は“温もり”と“モダン”の共存も意図1階、リビングルームからエントランスを見る。 photo©楠瀬友将

依木想太 / Souta Yoriki Design Officeによる、長崎の「五島列島鎧瀬海岸の別邸」。古民家を改修した住宅兼宿泊施設。目前に“海岸が広がる”環境に着目し、海に向けて“水平線に呼応する横長の窓”等を配する建築を考案。自然素材の使用とシンプルな空間構成は“温もり”と“モダン”の共存も意図1階、エントランス側から空間全体を見る。 photo©楠瀬友将

依木想太 / Souta Yoriki Design Officeによる、長崎の「五島列島鎧瀬海岸の別邸」。古民家を改修した住宅兼宿泊施設。目前に“海岸が広がる”環境に着目し、海に向けて“水平線に呼応する横長の窓”等を配する建築を考案。自然素材の使用とシンプルな空間構成は“温もり”と“モダン”の共存も意図1階、左:キッチン、正面:リビングルーム photo©楠瀬友将

依木想太 / Souta Yoriki Design Officeによる、長崎の「五島列島鎧瀬海岸の別邸」。古民家を改修した住宅兼宿泊施設。目前に“海岸が広がる”環境に着目し、海に向けて“水平線に呼応する横長の窓”等を配する建築を考案。自然素材の使用とシンプルな空間構成は“温もり”と“モダン”の共存も意図1階、リビングルームから開口部越しに外部を見る。 photo©楠瀬友将

依木想太 / Souta Yoriki Design Officeによる、長崎の「五島列島鎧瀬海岸の別邸」。古民家を改修した住宅兼宿泊施設。目前に“海岸が広がる”環境に着目し、海に向けて“水平線に呼応する横長の窓”等を配する建築を考案。自然素材の使用とシンプルな空間構成は“温もり”と“モダン”の共存も意図1階、リビングルームから開口部越しに外部を見る。 photo©楠瀬友将

依木想太 / Souta Yoriki Design Officeによる、長崎の「五島列島鎧瀬海岸の別邸」。古民家を改修した住宅兼宿泊施設。目前に“海岸が広がる”環境に着目し、海に向けて“水平線に呼応する横長の窓”等を配する建築を考案。自然素材の使用とシンプルな空間構成は“温もり”と“モダン”の共存も意図1階、リビングルーム、開口部の詳細 photo©楠瀬友将

依木想太 / Souta Yoriki Design Officeによる、長崎の「五島列島鎧瀬海岸の別邸」。古民家を改修した住宅兼宿泊施設。目前に“海岸が広がる”環境に着目し、海に向けて“水平線に呼応する横長の窓”等を配する建築を考案。自然素材の使用とシンプルな空間構成は“温もり”と“モダン”の共存も意図1階、リビングルーム、柱と床 photo©楠瀬友将

依木想太 / Souta Yoriki Design Officeによる、長崎の「五島列島鎧瀬海岸の別邸」。古民家を改修した住宅兼宿泊施設。目前に“海岸が広がる”環境に着目し、海に向けて“水平線に呼応する横長の窓”等を配する建築を考案。自然素材の使用とシンプルな空間構成は“温もり”と“モダン”の共存も意図1階、リビングルーム、天井と壁 photo©楠瀬友将

依木想太 / Souta Yoriki Design Officeによる、長崎の「五島列島鎧瀬海岸の別邸」。古民家を改修した住宅兼宿泊施設。目前に“海岸が広がる”環境に着目し、海に向けて“水平線に呼応する横長の窓”等を配する建築を考案。自然素材の使用とシンプルな空間構成は“温もり”と“モダン”の共存も意図1階、リビングルームからキッチンを見る。 photo©楠瀬友将

依木想太 / Souta Yoriki Design Officeによる、長崎の「五島列島鎧瀬海岸の別邸」。古民家を改修した住宅兼宿泊施設。目前に“海岸が広がる”環境に着目し、海に向けて“水平線に呼応する横長の窓”等を配する建築を考案。自然素材の使用とシンプルな空間構成は“温もり”と“モダン”の共存も意図1階、キッチン photo©楠瀬友将

依木想太 / Souta Yoriki Design Officeによる、長崎の「五島列島鎧瀬海岸の別邸」。古民家を改修した住宅兼宿泊施設。目前に“海岸が広がる”環境に着目し、海に向けて“水平線に呼応する横長の窓”等を配する建築を考案。自然素材の使用とシンプルな空間構成は“温もり”と“モダン”の共存も意図1階、キッチンからリビングルームを見る。 photo©楠瀬友将

依木想太 / Souta Yoriki Design Officeによる、長崎の「五島列島鎧瀬海岸の別邸」。古民家を改修した住宅兼宿泊施設。目前に“海岸が広がる”環境に着目し、海に向けて“水平線に呼応する横長の窓”等を配する建築を考案。自然素材の使用とシンプルな空間構成は“温もり”と“モダン”の共存も意図1階、正面:リビングルーム、左:キッチン photo©楠瀬友将

依木想太 / Souta Yoriki Design Officeによる、長崎の「五島列島鎧瀬海岸の別邸」。古民家を改修した住宅兼宿泊施設。目前に“海岸が広がる”環境に着目し、海に向けて“水平線に呼応する横長の窓”等を配する建築を考案。自然素材の使用とシンプルな空間構成は“温もり”と“モダン”の共存も意図1階、リビングルームから階段側を見る。 photo©楠瀬友将

依木想太 / Souta Yoriki Design Officeによる、長崎の「五島列島鎧瀬海岸の別邸」。古民家を改修した住宅兼宿泊施設。目前に“海岸が広がる”環境に着目し、海に向けて“水平線に呼応する横長の窓”等を配する建築を考案。自然素材の使用とシンプルな空間構成は“温もり”と“モダン”の共存も意図1階から2階への階段 photo©楠瀬友将

依木想太 / Souta Yoriki Design Officeによる、長崎の「五島列島鎧瀬海岸の別邸」。古民家を改修した住宅兼宿泊施設。目前に“海岸が広がる”環境に着目し、海に向けて“水平線に呼応する横長の窓”等を配する建築を考案。自然素材の使用とシンプルな空間構成は“温もり”と“モダン”の共存も意図2階、ベッドルーム1 photo©楠瀬友将

依木想太 / Souta Yoriki Design Officeによる、長崎の「五島列島鎧瀬海岸の別邸」。古民家を改修した住宅兼宿泊施設。目前に“海岸が広がる”環境に着目し、海に向けて“水平線に呼応する横長の窓”等を配する建築を考案。自然素材の使用とシンプルな空間構成は“温もり”と“モダン”の共存も意図外観、北西側より見下ろす。 photo©楠瀬友将

依木想太 / Souta Yoriki Design Officeによる、長崎の「五島列島鎧瀬海岸の別邸」。古民家を改修した住宅兼宿泊施設。目前に“海岸が広がる”環境に着目し、海に向けて“水平線に呼応する横長の窓”等を配する建築を考案。自然素材の使用とシンプルな空間構成は“温もり”と“モダン”の共存も意図平面図 image©Souta Yoriki Design Office

依木想太 / Souta Yoriki Design Officeによる、長崎の「五島列島鎧瀬海岸の別邸」。古民家を改修した住宅兼宿泊施設。目前に“海岸が広がる”環境に着目し、海に向けて“水平線に呼応する横長の窓”等を配する建築を考案。自然素材の使用とシンプルな空間構成は“温もり”と“モダン”の共存も意図立面図 image©Souta Yoriki Design Office

依木想太 / Souta Yoriki Design Officeによる、長崎の「五島列島鎧瀬海岸の別邸」。古民家を改修した住宅兼宿泊施設。目前に“海岸が広がる”環境に着目し、海に向けて“水平線に呼応する横長の窓”等を配する建築を考案。自然素材の使用とシンプルな空間構成は“温もり”と“モダン”の共存も意図断面図 image©Souta Yoriki Design Office
以下、建築家によるテキストです。
長崎県五島列島福江島にて、古民家を別邸兼民泊施設へ改修する計画である。
目前には鎧瀬海岸が広がっており、この風景を部屋内からも一望できるようにしたいと考えた。
そこで、各部屋の窓を海側へ向かって設置するようにし、かつリビングの窓は水平線に呼応するように横長でダイナミックな窓とした。
また、島を取り巻く自然環境に対応するようになるべく自然素材を用いる計画とし、空間構成をシンプルにすることで、温もりがありながらもモダンな印象になるような空間を目指した。
間取り構成としては民泊として利用する際に、リビングが空間のハブになるようにシークエンスの中心に広く設けることで利用者のコミュニケーションを促進するようにし、かつ部屋の内外で土間を連続してフラットに繋げることで内外の関係を曖昧にし、自然の多いこの島を存分に体験できるような計画とした。
■建築概要
題名:五島列島鎧瀬海岸の別邸
所在地:長崎県五島市野々切町1454-1
主用途:住宅兼宿泊施設
設計:Souta Yoriki Design Office 担当/依木想太
施工:工匠貴翔
構造:木造
階数:地上2階
敷地面積:533.3㎡
建築面積:100.5㎡
延床面積:120.5㎡
設計:2023年1月~2023年9月
工事:2023年9月~2024年6月
竣工:2024年7月
写真:楠瀬友将