architecturephoto®

  • 特集記事
  • 注目情報
  • タグ
  • 建築
  • アート
  • カルチャー
  • デザイン
  • ファッション
  • 動画
  • 展覧会
  • コンペ
  • 書籍
  • 建築求人
  • すべてのタグ

建築求人情報

Loading...
2025.11.10Mon
2025.11.09Sun
2025.11.11Tue
宮崎晃吉 / HAGISOによる、群馬の住宅「前橋の道の輪郭」。路地状の共有地などが見られる街区での計画。建築の時間と住み手の時間との折合いも主題とし、読み替えられながらも生き続ける存在を志向。路地の延長線上の“たまり”となる中庭の周りに諸室を配置する建築を考案
photo©楠瀬友将

SHARE 宮崎晃吉 / HAGISOによる、群馬の住宅「前橋の道の輪郭」。路地状の共有地などが見られる街区での計画。建築の時間と住み手の時間との折合いも主題とし、読み替えられながらも生き続ける存在を志向。路地の延長線上の“たまり”となる中庭の周りに諸室を配置する建築を考案

architecture|feature
HAGISO坂田涼太郎構造設計事務所安松託建楠瀬友将建材(外装・壁)建材(外装・屋根)建材(内装・床)建材(内装・壁)建材(内装・天井)建材(内装・柱)建材(内装・照明)建材(内装・キッチン)建材(内装・造作家具)建材(内装・その他)建材(外構・床)建材(外構・家具)住宅図面あり宮崎晃吉群馬
宮崎晃吉 / HAGISOによる、群馬の住宅「前橋の道の輪郭」。路地状の共有地などが見られる街区での計画。建築の時間と住み手の時間との折合いも主題とし、読み替えられながらも生き続ける存在を志向。路地の延長線上の“たまり”となる中庭の周りに諸室を配置する建築を考案外観、南側の道路より見る。 photo©楠瀬友将
宮崎晃吉 / HAGISOによる、群馬の住宅「前橋の道の輪郭」。路地状の共有地などが見られる街区での計画。建築の時間と住み手の時間との折合いも主題とし、読み替えられながらも生き続ける存在を志向。路地の延長線上の“たまり”となる中庭の周りに諸室を配置する建築を考案外観、「通り庭」より中庭を見る。 photo©楠瀬友将
宮崎晃吉 / HAGISOによる、群馬の住宅「前橋の道の輪郭」。路地状の共有地などが見られる街区での計画。建築の時間と住み手の時間との折合いも主題とし、読み替えられながらも生き続ける存在を志向。路地の延長線上の“たまり”となる中庭の周りに諸室を配置する建築を考案1階、リビング側からダイニングとキッチンを見る。 photo©楠瀬友将
宮崎晃吉 / HAGISOによる、群馬の住宅「前橋の道の輪郭」。路地状の共有地などが見られる街区での計画。建築の時間と住み手の時間との折合いも主題とし、読み替えられながらも生き続ける存在を志向。路地の延長線上の“たまり”となる中庭の周りに諸室を配置する建築を考案1階、「アリーナ」 photo©楠瀬友将

宮崎晃吉 / HAGISOが設計した、群馬の住宅「前橋の道の輪郭」です。
路地状の共有地などが見られる街区での計画です。建築家は、建築の時間と住み手の時間との折合いも主題とし、読み替えられながらも生き続ける存在を志向しました。そして、路地の延長線上の“たまり”となる中庭の周りに諸室を配置する建築を考案しました。

群馬県前橋市の駅周辺に建つ住宅。
前橋駅と中心市街地は少し離れており、その間を駅前にしてはのんびりとした宅地が埋めている。グリッド街区に対して、住宅や事務所、たまに飲食店、と小ぶりな建築が並んでいる。

旗竿敷地がせめぎあい、街区の中心部は接道できない宅地も生まれてきており、それらは路地状の共有地によってそのアクセスが確保されていたりする。そんな街区の中の、旗竿形状ながら86坪のやや広めな敷地に住宅を設計することになった。


建築家によるテキストより

住宅において、建築そのものの時間とそこに住む人々の時間をどう折り合わせるかという課題は避けて通れない。一方で建築は人間よりも長く存続しうる存在であり、決して安価な消費財ではない。標準的に規定された家族像や「住むため“だけ”の機械」としての住宅が、時間を経るごとに想定と現実の間にギャップを生み出していく。

さらに相続による分割が進み、身の丈に合った住宅像が固定化し、住宅を住宅らしく作ることの閉塞感は住宅の短命化に拍車をかけている。

まずは、街区に潜む獣道のような共有地や路地の延長線上の「たまり」として中庭を位置づけた。この中庭を囲うように、北関東地域特有の冬季の季節風である「からっ風」から守る曲面をもつ壁を配置する。この壁の内側に身を寄せるように中庭と一体的になったアリーナや諸室が並んでいる。


建築家によるテキストより

季節に応じた光の入射角をふまえた庇は、立面を分割し建具が過大になるのを避けている。中庭に対して徐々に庇がおりていってすり鉢状となることで、街区の奥の中庭でも大きな空を感じることができる。

曲面壁の裏地としての内部仕上げはラワン合板の下見板張とし、書棚に並ぶ本や華奢な手すりとともに、無機質でシームレスな外観に対してスケールを落としている。


設計を進めていく中でも家族の形は変わっていく。当初は予期していなかった5人目の子供が生まれ、中学生の長男は反抗期を迎える。常に変化する住まい方に対して、それを受け入れる建築のおおらかな全体が都市の部分として定着してくれば、この住宅は読み替えられながらも生き続けていけるはずだ。

建築家によるテキストより

以下の写真はクリックで拡大します

宮崎晃吉 / HAGISOによる、群馬の住宅「前橋の道の輪郭」。路地状の共有地などが見られる街区での計画。建築の時間と住み手の時間との折合いも主題とし、読み替えられながらも生き続ける存在を志向。路地の延長線上の“たまり”となる中庭の周りに諸室を配置する建築を考案俯瞰、敷地上空より見る。 photo©楠瀬友将
宮崎晃吉 / HAGISOによる、群馬の住宅「前橋の道の輪郭」。路地状の共有地などが見られる街区での計画。建築の時間と住み手の時間との折合いも主題とし、読み替えられながらも生き続ける存在を志向。路地の延長線上の“たまり”となる中庭の周りに諸室を配置する建築を考案外観、東側より見る。 photo©楠瀬友将
宮崎晃吉 / HAGISOによる、群馬の住宅「前橋の道の輪郭」。路地状の共有地などが見られる街区での計画。建築の時間と住み手の時間との折合いも主題とし、読み替えられながらも生き続ける存在を志向。路地の延長線上の“たまり”となる中庭の周りに諸室を配置する建築を考案外観、西側より見る。 photo©楠瀬友将
宮崎晃吉 / HAGISOによる、群馬の住宅「前橋の道の輪郭」。路地状の共有地などが見られる街区での計画。建築の時間と住み手の時間との折合いも主題とし、読み替えられながらも生き続ける存在を志向。路地の延長線上の“たまり”となる中庭の周りに諸室を配置する建築を考案外観、南側の道路より見る。 photo©楠瀬友将
宮崎晃吉 / HAGISOによる、群馬の住宅「前橋の道の輪郭」。路地状の共有地などが見られる街区での計画。建築の時間と住み手の時間との折合いも主題とし、読み替えられながらも生き続ける存在を志向。路地の延長線上の“たまり”となる中庭の周りに諸室を配置する建築を考案外観、外壁の詳細 photo©楠瀬友将
宮崎晃吉 / HAGISOによる、群馬の住宅「前橋の道の輪郭」。路地状の共有地などが見られる街区での計画。建築の時間と住み手の時間との折合いも主題とし、読み替えられながらも生き続ける存在を志向。路地の延長線上の“たまり”となる中庭の周りに諸室を配置する建築を考案外観、「通り庭」より中庭を見る。 photo©楠瀬友将
宮崎晃吉 / HAGISOによる、群馬の住宅「前橋の道の輪郭」。路地状の共有地などが見られる街区での計画。建築の時間と住み手の時間との折合いも主題とし、読み替えられながらも生き続ける存在を志向。路地の延長線上の“たまり”となる中庭の周りに諸室を配置する建築を考案「通り庭」より中庭を見る。 photo©楠瀬友将
宮崎晃吉 / HAGISOによる、群馬の住宅「前橋の道の輪郭」。路地状の共有地などが見られる街区での計画。建築の時間と住み手の時間との折合いも主題とし、読み替えられながらも生き続ける存在を志向。路地の延長線上の“たまり”となる中庭の周りに諸室を配置する建築を考案中庭 photo©楠瀬友将
宮崎晃吉 / HAGISOによる、群馬の住宅「前橋の道の輪郭」。路地状の共有地などが見られる街区での計画。建築の時間と住み手の時間との折合いも主題とし、読み替えられながらも生き続ける存在を志向。路地の延長線上の“たまり”となる中庭の周りに諸室を配置する建築を考案1階、左奥:キッチン、手前:玄関、右:「スタディ」 photo©楠瀬友将
宮崎晃吉 / HAGISOによる、群馬の住宅「前橋の道の輪郭」。路地状の共有地などが見られる街区での計画。建築の時間と住み手の時間との折合いも主題とし、読み替えられながらも生き続ける存在を志向。路地の延長線上の“たまり”となる中庭の周りに諸室を配置する建築を考案1階、リビング側からダイニングとキッチンを見る。 photo©楠瀬友将
宮崎晃吉 / HAGISOによる、群馬の住宅「前橋の道の輪郭」。路地状の共有地などが見られる街区での計画。建築の時間と住み手の時間との折合いも主題とし、読み替えられながらも生き続ける存在を志向。路地の延長線上の“たまり”となる中庭の周りに諸室を配置する建築を考案1階、左奥:ダイニング、手前:リビング、右奥:「アリーナ」 photo©楠瀬友将
宮崎晃吉 / HAGISOによる、群馬の住宅「前橋の道の輪郭」。路地状の共有地などが見られる街区での計画。建築の時間と住み手の時間との折合いも主題とし、読み替えられながらも生き続ける存在を志向。路地の延長線上の“たまり”となる中庭の周りに諸室を配置する建築を考案1階、「アリーナ」側からリビングとダイニングを見る。 photo©楠瀬友将
宮崎晃吉 / HAGISOによる、群馬の住宅「前橋の道の輪郭」。路地状の共有地などが見られる街区での計画。建築の時間と住み手の時間との折合いも主題とし、読み替えられながらも生き続ける存在を志向。路地の延長線上の“たまり”となる中庭の周りに諸室を配置する建築を考案1階、「アリーナ」 photo©楠瀬友将
宮崎晃吉 / HAGISOによる、群馬の住宅「前橋の道の輪郭」。路地状の共有地などが見られる街区での計画。建築の時間と住み手の時間との折合いも主題とし、読み替えられながらも生き続ける存在を志向。路地の延長線上の“たまり”となる中庭の周りに諸室を配置する建築を考案1階、「アリーナ」 photo©楠瀬友将
宮崎晃吉 / HAGISOによる、群馬の住宅「前橋の道の輪郭」。路地状の共有地などが見られる街区での計画。建築の時間と住み手の時間との折合いも主題とし、読み替えられながらも生き続ける存在を志向。路地の延長線上の“たまり”となる中庭の周りに諸室を配置する建築を考案1階、「アリーナ」から開口部越しに中庭を見る。 photo©楠瀬友将
宮崎晃吉 / HAGISOによる、群馬の住宅「前橋の道の輪郭」。路地状の共有地などが見られる街区での計画。建築の時間と住み手の時間との折合いも主題とし、読み替えられながらも生き続ける存在を志向。路地の延長線上の“たまり”となる中庭の周りに諸室を配置する建築を考案1階、「アリーナ」から2階への階段を見る。 photo©楠瀬友将
宮崎晃吉 / HAGISOによる、群馬の住宅「前橋の道の輪郭」。路地状の共有地などが見られる街区での計画。建築の時間と住み手の時間との折合いも主題とし、読み替えられながらも生き続ける存在を志向。路地の延長線上の“たまり”となる中庭の周りに諸室を配置する建築を考案2階、廊下から「アリーナ」の吹抜を見る。 photo©楠瀬友将
宮崎晃吉 / HAGISOによる、群馬の住宅「前橋の道の輪郭」。路地状の共有地などが見られる街区での計画。建築の時間と住み手の時間との折合いも主題とし、読み替えられながらも生き続ける存在を志向。路地の延長線上の“たまり”となる中庭の周りに諸室を配置する建築を考案2階、廊下から書斎側を見る。 photo©楠瀬友将
宮崎晃吉 / HAGISOによる、群馬の住宅「前橋の道の輪郭」。路地状の共有地などが見られる街区での計画。建築の時間と住み手の時間との折合いも主題とし、読み替えられながらも生き続ける存在を志向。路地の延長線上の“たまり”となる中庭の周りに諸室を配置する建築を考案2階、書斎側から「アリーナ」を見下ろす。 photo©楠瀬友将
宮崎晃吉 / HAGISOによる、群馬の住宅「前橋の道の輪郭」。路地状の共有地などが見られる街区での計画。建築の時間と住み手の時間との折合いも主題とし、読み替えられながらも生き続ける存在を志向。路地の延長線上の“たまり”となる中庭の周りに諸室を配置する建築を考案2階、廊下 photo©楠瀬友将
宮崎晃吉 / HAGISOによる、群馬の住宅「前橋の道の輪郭」。路地状の共有地などが見られる街区での計画。建築の時間と住み手の時間との折合いも主題とし、読み替えられながらも生き続ける存在を志向。路地の延長線上の“たまり”となる中庭の周りに諸室を配置する建築を考案2階、室1 photo©楠瀬友将
宮崎晃吉 / HAGISOによる、群馬の住宅「前橋の道の輪郭」。路地状の共有地などが見られる街区での計画。建築の時間と住み手の時間との折合いも主題とし、読み替えられながらも生き続ける存在を志向。路地の延長線上の“たまり”となる中庭の周りに諸室を配置する建築を考案2階、室2 photo©楠瀬友将
宮崎晃吉 / HAGISOによる、群馬の住宅「前橋の道の輪郭」。路地状の共有地などが見られる街区での計画。建築の時間と住み手の時間との折合いも主題とし、読み替えられながらも生き続ける存在を志向。路地の延長線上の“たまり”となる中庭の周りに諸室を配置する建築を考案2階、室3 photo©楠瀬友将
宮崎晃吉 / HAGISOによる、群馬の住宅「前橋の道の輪郭」。路地状の共有地などが見られる街区での計画。建築の時間と住み手の時間との折合いも主題とし、読み替えられながらも生き続ける存在を志向。路地の延長線上の“たまり”となる中庭の周りに諸室を配置する建築を考案2階、室3から廊下を見る。 photo©楠瀬友将
宮崎晃吉 / HAGISOによる、群馬の住宅「前橋の道の輪郭」。路地状の共有地などが見られる街区での計画。建築の時間と住み手の時間との折合いも主題とし、読み替えられながらも生き続ける存在を志向。路地の延長線上の“たまり”となる中庭の周りに諸室を配置する建築を考案2階、ウォークインクローゼット photo©楠瀬友将
宮崎晃吉 / HAGISOによる、群馬の住宅「前橋の道の輪郭」。路地状の共有地などが見られる街区での計画。建築の時間と住み手の時間との折合いも主題とし、読み替えられながらも生き続ける存在を志向。路地の延長線上の“たまり”となる中庭の周りに諸室を配置する建築を考案2階、ウォークインクローゼット photo©楠瀬友将
宮崎晃吉 / HAGISOによる、群馬の住宅「前橋の道の輪郭」。路地状の共有地などが見られる街区での計画。建築の時間と住み手の時間との折合いも主題とし、読み替えられながらも生き続ける存在を志向。路地の延長線上の“たまり”となる中庭の周りに諸室を配置する建築を考案2階、脱衣室から浴室を見る。 photo©楠瀬友将
宮崎晃吉 / HAGISOによる、群馬の住宅「前橋の道の輪郭」。路地状の共有地などが見られる街区での計画。建築の時間と住み手の時間との折合いも主題とし、読み替えられながらも生き続ける存在を志向。路地の延長線上の“たまり”となる中庭の周りに諸室を配置する建築を考案2階、浴室 photo©楠瀬友将
宮崎晃吉 / HAGISOによる、群馬の住宅「前橋の道の輪郭」。路地状の共有地などが見られる街区での計画。建築の時間と住み手の時間との折合いも主題とし、読み替えられながらも生き続ける存在を志向。路地の延長線上の“たまり”となる中庭の周りに諸室を配置する建築を考案2階、浴室から脱衣室側を見る。 photo©楠瀬友将
宮崎晃吉 / HAGISOによる、群馬の住宅「前橋の道の輪郭」。路地状の共有地などが見られる街区での計画。建築の時間と住み手の時間との折合いも主題とし、読み替えられながらも生き続ける存在を志向。路地の延長線上の“たまり”となる中庭の周りに諸室を配置する建築を考案外観、敷地内の南側より見る。 photo©楠瀬友将
宮崎晃吉 / HAGISOによる、群馬の住宅「前橋の道の輪郭」。路地状の共有地などが見られる街区での計画。建築の時間と住み手の時間との折合いも主題とし、読み替えられながらも生き続ける存在を志向。路地の延長線上の“たまり”となる中庭の周りに諸室を配置する建築を考案外観、中庭から見る。夜景 photo©楠瀬友将
宮崎晃吉 / HAGISOによる、群馬の住宅「前橋の道の輪郭」。路地状の共有地などが見られる街区での計画。建築の時間と住み手の時間との折合いも主題とし、読み替えられながらも生き続ける存在を志向。路地の延長線上の“たまり”となる中庭の周りに諸室を配置する建築を考案外観、中庭から開口部越しにダイニングとキッチンを見る。夕景 photo©楠瀬友将
宮崎晃吉 / HAGISOによる、群馬の住宅「前橋の道の輪郭」。路地状の共有地などが見られる街区での計画。建築の時間と住み手の時間との折合いも主題とし、読み替えられながらも生き続ける存在を志向。路地の延長線上の“たまり”となる中庭の周りに諸室を配置する建築を考案「通り庭」より中庭を見る。夜景 photo©楠瀬友将
宮崎晃吉 / HAGISOによる、群馬の住宅「前橋の道の輪郭」。路地状の共有地などが見られる街区での計画。建築の時間と住み手の時間との折合いも主題とし、読み替えられながらも生き続ける存在を志向。路地の延長線上の“たまり”となる中庭の周りに諸室を配置する建築を考案外観、敷地内の南側より見る。夜景 photo©楠瀬友将
宮崎晃吉 / HAGISOによる、群馬の住宅「前橋の道の輪郭」。路地状の共有地などが見られる街区での計画。建築の時間と住み手の時間との折合いも主題とし、読み替えられながらも生き続ける存在を志向。路地の延長線上の“たまり”となる中庭の周りに諸室を配置する建築を考案外観、敷地内の南側より見る。夜景 photo©楠瀬友将
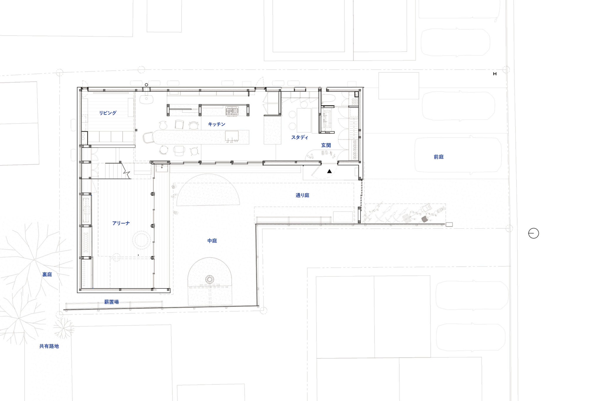
宮崎晃吉 / HAGISOによる、群馬の住宅「前橋の道の輪郭」。路地状の共有地などが見られる街区での計画。建築の時間と住み手の時間との折合いも主題とし、読み替えられながらも生き続ける存在を志向。路地の延長線上の“たまり”となる中庭の周りに諸室を配置する建築を考案1階平面図 image©HAGISO
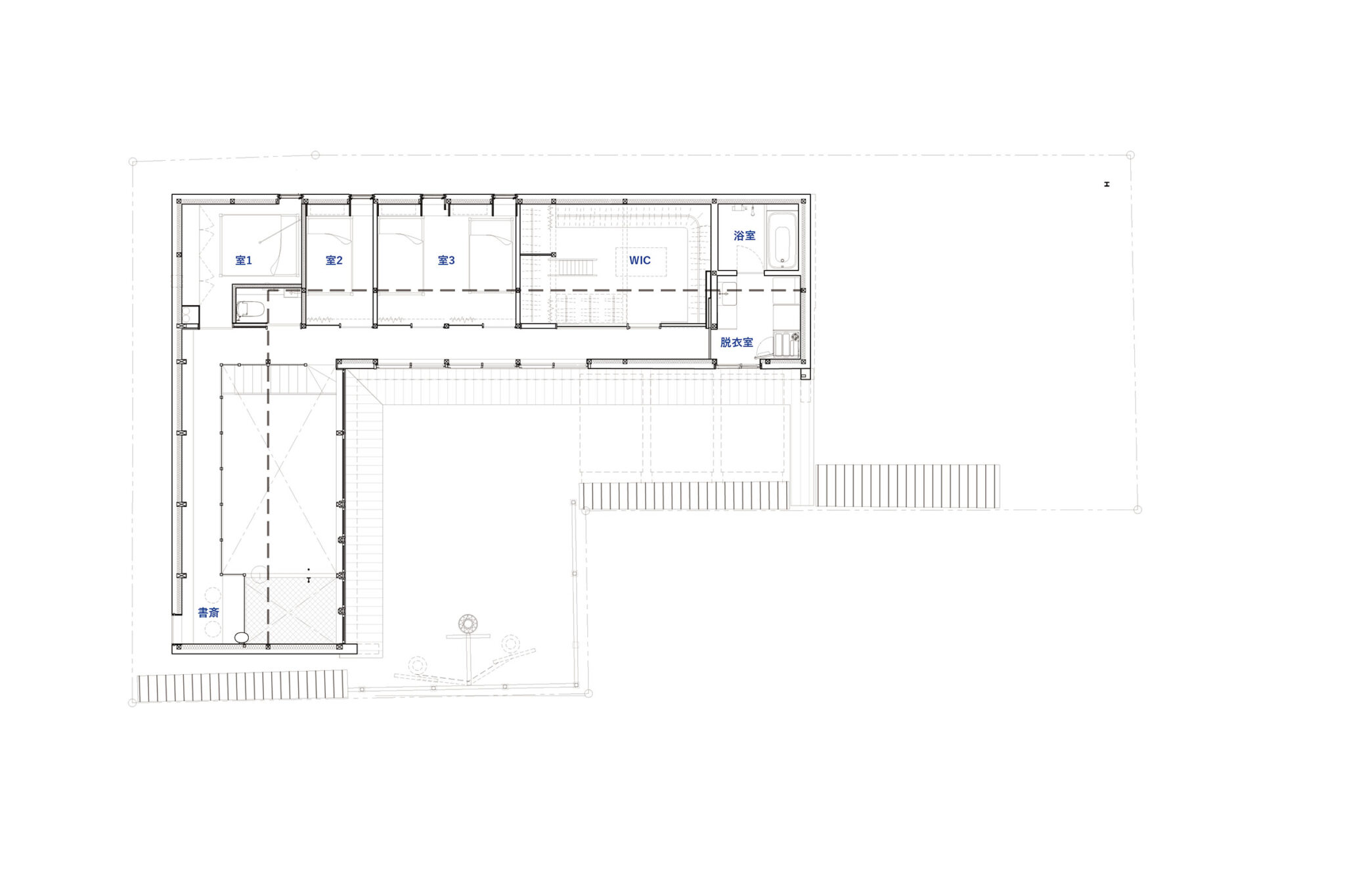
宮崎晃吉 / HAGISOによる、群馬の住宅「前橋の道の輪郭」。路地状の共有地などが見られる街区での計画。建築の時間と住み手の時間との折合いも主題とし、読み替えられながらも生き続ける存在を志向。路地の延長線上の“たまり”となる中庭の周りに諸室を配置する建築を考案2階平面図 image©HAGISO
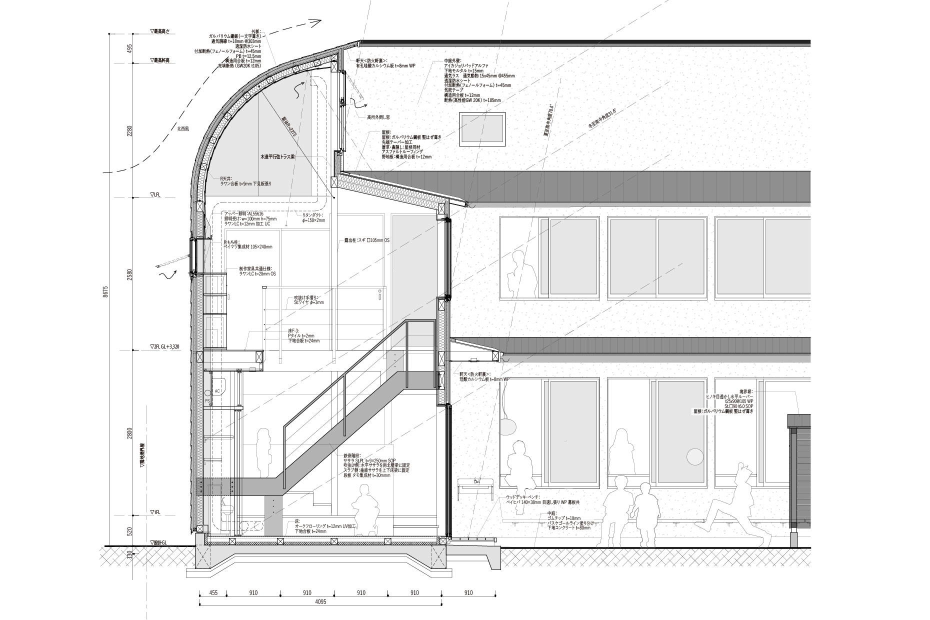
宮崎晃吉 / HAGISOによる、群馬の住宅「前橋の道の輪郭」。路地状の共有地などが見られる街区での計画。建築の時間と住み手の時間との折合いも主題とし、読み替えられながらも生き続ける存在を志向。路地の延長線上の“たまり”となる中庭の周りに諸室を配置する建築を考案矩計図 image©HAGISO

以下、建築家によるテキストです。


都市と家族を包むエンベロープ

群馬県前橋市の駅周辺に建つ住宅。
前橋駅と中心市街地は少し離れており、その間を駅前にしてはのんびりとした宅地が埋めている。グリッド街区に対して、住宅や事務所、たまに飲食店、と小ぶりな建築が並んでいる。

旗竿敷地がせめぎあい、街区の中心部は接道できない宅地も生まれてきており、それらは路地状の共有地によってそのアクセスが確保されていたりする。そんな街区の中の、旗竿形状ながら86坪のやや広めな敷地に住宅を設計することになった。


住宅において、建築そのものの時間とそこに住む人々の時間をどう折り合わせるかという課題は避けて通れない。一方で建築は人間よりも長く存続しうる存在であり、決して安価な消費財ではない。標準的に規定された家族像や「住むため“だけ”の機械」としての住宅が、時間を経るごとに想定と現実の間にギャップを生み出していく。

さらに相続による分割が進み、身の丈に合った住宅像が固定化し、住宅を住宅らしく作ることの閉塞感は住宅の短命化に拍車をかけている。

まずは、街区に潜む獣道のような共有地や路地の延長線上の「たまり」として中庭を位置づけた。この中庭を囲うように、北関東地域特有の冬季の季節風である「からっ風」から守る曲面をもつ壁を配置する。この壁の内側に身を寄せるように中庭と一体的になったアリーナや諸室が並んでいる。

季節に応じた光の入射角をふまえた庇は、立面を分割し建具が過大になるのを避けている。中庭に対して徐々に庇がおりていってすり鉢状となることで、街区の奥の中庭でも大きな空を感じることができる。

曲面壁の裏地としての内部仕上げはラワン合板の下見板張とし、書棚に並ぶ本や華奢な手すりとともに、無機質でシームレスな外観に対してスケールを落としている。


設計を進めていく中でも家族の形は変わっていく。当初は予期していなかった5人目の子供が生まれ、中学生の長男は反抗期を迎える。常に変化する住まい方に対して、それを受け入れる建築のおおらかな全体が都市の部分として定着してくれば、この住宅は読み替えられながらも生き続けていけるはずだ。

■建築概要

題名:前橋の道の輪郭

所在地:群馬県前橋市

主用途:住宅

意匠設計:HAGISO 担当/宮崎晃吉、久保田啓斗
構造設計:坂田涼太郎構造設計事務所 担当/坂田涼太郎、堀内拓磨
設備協力:ピロティ

施工:安松託建
構造:木造

階数:地上2階

敷地面積:186.56㎡

建築面積:103.21㎡

延床面積:171.43㎡

設計:2023年9月~2024年11月

工事:2024年12月~2025年9月

竣工:2025年9月

写真:楠瀬友将

建材情報
種別使用箇所商品名(メーカー名)
外装・屋根外郭

ガルバリウム鋼板平葺き(セキノ興産)

外装・屋根中庭 屋根

ガルバリウム鋼板縦ハゼ葺き(セキノ興産)

外装・壁中庭 外壁

ジョリパッド柚子肌(AICA)

内装・床主要箇所 床

Pタイル:MV36(東リ)

内装・床アリーナ 床

ヨーロピアンオーク w190(IOC)

内装・床キッチン、ダイニング 床

Pタイル:IS2139(sangetsu)

内装・床浴室 床

FRP防水トップコート [大工工事]

内装・壁内皮仕上げ

:ラワン合板t9.0曲面下見板貼り [大工工事]

内装・壁中庭側 壁

クロス:FE76255(sangetsu)

内装・壁アリーナ中庭側 壁

PB+EP N93 [大工・塗装工事]

内装・壁寝室 壁

ラワン合板+OS [大工・塗装工事]

内装・壁浴室 壁

FRP防水トップコート [大工工事]
バスパネルBTj(FUKUVI)

内装・天井アリーナ中庭側 天井

PB+EP N93 [大工・塗装工事]

内装・天井アリーナ トラス梁

ベイマツ集成材105×210 E120 [大工・塗装工事]

内装・天井寝室 天井

ラワン合板+OS [大工・塗装工事]

内装・天井浴室 天井

バスパネルBTj(FUKUVI)

内装・柱アリーナ 片持柱

ベイマツ集成材120×240 E120 [大工・塗装工事]

内装・キッチンキッチン カウンター

ラワン合板+MPCドルフィングレー [大工・塗装工事]

内装・キッチンキッチン タイル

コルマールCLM10芋貼り(名古屋モザイク工業)

内装・造作家具家具・収納

ラワン合板+OS [大工・塗装工事]

内装・照明持込 照明

Glo-Ball C2, C1(FLOS / Jasper Morrison)

内装・その他アリーナ 鉄骨階段

St.PL t9.0加工SOP 05-50F [大工・塗装工事]

外構・床中庭 床

ゴムチップ t10mm(日東化工)

外構・家具中庭 ベンチ

ベイヒバ w140t38 [大工工事]

※企業様による建材情報についてのご意見や「PR」のご相談はこちらから
※この情報は弊サイトや設計者が建材の性能等を保証するものではありません

あわせて読みたい

宮崎晃吉 / HAGISOによる、東京・新宿区の「クラウドサーカス新宿オフィス」。デジタルマーケティングに関わる企業の事務所。コロナ禍以降の実空間の意味を考慮し、“円形ステージ”の周りに執務空間を配置した“コラボレーション中心の場”を構築。段階的な施工で引越しなしでの改修も実現
  • SHARE
HAGISO坂田涼太郎構造設計事務所安松託建楠瀬友将建材(外装・壁)建材(外装・屋根)建材(内装・床)建材(内装・壁)建材(内装・天井)建材(内装・柱)建材(内装・照明)建材(内装・キッチン)建材(内装・造作家具)建材(内装・その他)建材(外構・床)建材(外構・家具)住宅図面あり宮崎晃吉群馬
2025.11.10 Mon 07:00
0
permalink

#HAGISOの関連記事

  • 2025.6.16Mon
    宮崎晃吉 / HAGISOによる、東京・足立区の「ルミネ北千住 社員食堂」。商業施設内の人々が利用する空間の改修。食事の場を超えた“意欲が向上する”存在を求め、性格の異なる3つのエリアをつくり“活動を誘発する”個性的な家具を配置。計画の前段として当事者を集めたWSも実施
  • 2025.4.28Mon
    宮崎晃吉 / HAGISOによる、東京・台東区の「Twist House」。ジェネリックな環境での計画。“ささやかな異質性”の導入を意図し、周囲と馴染む矩形の中で“内壁を10°ねじる”構成を考案。操作で生まれた“三角形の気積”を内でも外でもない“第三の空間”として位置づける
  • 2024.10.07Mon
    宮崎晃吉 / HAGISOによる、茨城・笠間市の「ATAGO FOREST HOUSE」。自然公園にある建物と周辺環境を整備する計画。“地域の憩いの場”で“観光拠点”を目指し、“心も体も切り替わる中継地点”としての建築を志向。既存への“円弧状のテラス”などの増築と共にサインまでも見直す
  • 2024.9.06Fri
    宮崎晃吉 / HAGISOによる、東京・台東区の飲食店「noie」。住宅の一部を改修したワインバー。地域住民の“もうひとつの家”を目指し、厨房を多角形のカウンターで取り囲んで“自然と会話が生まれるような”距離感を創出。空間演出や店の在り方を考慮して様々な色も用いる
  • 2024.8.30Fri
    宮崎晃吉 / HAGISOによる、東京・江東区の住宅改修「亀戸天神の客間」。客人をもてなす暮らしを思い描く施主の為に計画。ゲストの為に“どうあるべきか”を主題とし、ホテルやレストランを作る様な姿勢で設計。自然光が美しく照らすように考慮した“広いワンルーム”のLDK空間を考案
  • 2023.9.19Tue
    宮崎晃吉 / HAGISOによる、東京の、シェアオフィス「西日暮里のトンネル」。裏側に路地が連続する住宅地での計画。見出した都市構造を取入れる空間を求め、“街区に穿つトンネル”をモチーフとした設計を志向。金属板で仕上げた塀を備えた奥庭は内部に多様な表情の変化をもたらす
  • 2023.9.07Thu
    宮崎晃吉 / HAGISOによる、東京・新宿区の「クラウドサーカス新宿オフィス」。デジタルマーケティングに関わる企業の事務所。コロナ禍以降の実空間の意味を考慮し、“円形ステージ”の周りに執務空間を配置した“コラボレーション中心の場”を構築。段階的な施工で引越しなしでの改修も実現
  • 2023.8.28Mon
    宮崎晃吉 / HAGISOによる、群馬・高崎市の飲食店「Laithai」。駅に近い国道沿いの区画での計画。街への“創作の風景”の提示を意図し、通り側に厨房を配置して“大きなFIX窓”を設置。建物の脇に設けたウッドデッキのアプローチ空間は外観全体の再構築の起点の役割も担う
  • view all
view all

#宮崎晃吉の関連記事

  • 2025.6.16Mon
    宮崎晃吉 / HAGISOによる、東京・足立区の「ルミネ北千住 社員食堂」。商業施設内の人々が利用する空間の改修。食事の場を超えた“意欲が向上する”存在を求め、性格の異なる3つのエリアをつくり“活動を誘発する”個性的な家具を配置。計画の前段として当事者を集めたWSも実施
  • 2025.4.28Mon
    宮崎晃吉 / HAGISOによる、東京・台東区の「Twist House」。ジェネリックな環境での計画。“ささやかな異質性”の導入を意図し、周囲と馴染む矩形の中で“内壁を10°ねじる”構成を考案。操作で生まれた“三角形の気積”を内でも外でもない“第三の空間”として位置づける
  • 2024.10.07Mon
    宮崎晃吉 / HAGISOによる、茨城・笠間市の「ATAGO FOREST HOUSE」。自然公園にある建物と周辺環境を整備する計画。“地域の憩いの場”で“観光拠点”を目指し、“心も体も切り替わる中継地点”としての建築を志向。既存への“円弧状のテラス”などの増築と共にサインまでも見直す
  • 2024.9.06Fri
    宮崎晃吉 / HAGISOによる、東京・台東区の飲食店「noie」。住宅の一部を改修したワインバー。地域住民の“もうひとつの家”を目指し、厨房を多角形のカウンターで取り囲んで“自然と会話が生まれるような”距離感を創出。空間演出や店の在り方を考慮して様々な色も用いる
  • 2024.8.30Fri
    宮崎晃吉 / HAGISOによる、東京・江東区の住宅改修「亀戸天神の客間」。客人をもてなす暮らしを思い描く施主の為に計画。ゲストの為に“どうあるべきか”を主題とし、ホテルやレストランを作る様な姿勢で設計。自然光が美しく照らすように考慮した“広いワンルーム”のLDK空間を考案
  • 2023.9.19Tue
    宮崎晃吉 / HAGISOによる、東京の、シェアオフィス「西日暮里のトンネル」。裏側に路地が連続する住宅地での計画。見出した都市構造を取入れる空間を求め、“街区に穿つトンネル”をモチーフとした設計を志向。金属板で仕上げた塀を備えた奥庭は内部に多様な表情の変化をもたらす
  • 2023.9.07Thu
    宮崎晃吉 / HAGISOによる、東京・新宿区の「クラウドサーカス新宿オフィス」。デジタルマーケティングに関わる企業の事務所。コロナ禍以降の実空間の意味を考慮し、“円形ステージ”の周りに執務空間を配置した“コラボレーション中心の場”を構築。段階的な施工で引越しなしでの改修も実現
  • 2023.8.28Mon
    宮崎晃吉 / HAGISOによる、群馬・高崎市の飲食店「Laithai」。駅に近い国道沿いの区画での計画。街への“創作の風景”の提示を意図し、通り側に厨房を配置して“大きなFIX窓”を設置。建物の脇に設けたウッドデッキのアプローチ空間は外観全体の再構築の起点の役割も担う
  • 2022.12.29Thu
    HAGI STUDIOとtwism design studioによる、群馬の「しののめ信用金庫 前橋営業部ビル」。市中心部の建物を改修。“地域の魅力を高め愛される場”を目指し、各エリアの中継地点という場所性を生かして敷地内に歩道や広場を導入。内部には飲食や図書閲覧等の用途も取り入れ広く一般に開放
  • 2022.10.01Sat
    アトリエ・ワンの塚本由晴が、2022年8月に行った講演「地域資源へのアクセシビリティを高める建築・都市・社会」の動画
  • view all
view all

建築求人情報

Loading...

 

    公式アカウントをフォローして、見逃せない建築情報を受け取ろう。

    62,026
    • Follow
    87,374
    • Follow
    • Follow
    • Add Friends
    • Subscribe
    • 情報募集/建築・デザイン・アートの情報を随時募集しています。
      More
    • メールマガジン/ メールマガジンで最新の情報を配信しています。
      More

    この日更新したその他の記事

    arbolとwalk scapeによる、兵庫・西宮市の住戸改修「Apartment Renovation in Nishinomiya」。コロナ禍を経て意識が変化した施主の住まい。“大切な物だけを引寄せる暮らし”を意識し、家具等を引き立てる“円弧”状の天井がある空間を考案。既存開口の一部は“敢えて閉じる”操作で“魅せるニッチ”とする
    photo©下村写真事務所

    SHARE arbolとwalk scapeによる、兵庫・西宮市の住戸改修「Apartment Renovation in Nishinomiya」。コロナ禍を経て意識が変化した施主の住まい。“大切な物だけを引寄せる暮らし”を意識し、家具等を引き立てる“円弧”状の天井がある空間を考案。既存開口の一部は“敢えて閉じる”操作で“魅せるニッチ”とする

    architecture|feature
    arbolwalk scapeリノベーション下村写真事務所住戸兵庫図面あり建材(内装・キッチン)建材(内装・壁)建材(内装・天井)建材(内装・床)建材(内装・浴室)建材(内装・照明)稔工務店
    arbolとwalk scapeによる、兵庫・西宮市の住戸改修「Apartment Renovation in Nishinomiya」。コロナ禍を経て意識が変化した施主の住まい。“大切な物だけを引寄せる暮らし”を意識し、家具等を引き立てる“円弧”状の天井がある空間を考案。既存開口の一部は“敢えて閉じる”操作で“魅せるニッチ”とするリビングダイニングから開口部越しにバルコニーを見る。夕景 photo©下村写真事務所
    arbolとwalk scapeによる、兵庫・西宮市の住戸改修「Apartment Renovation in Nishinomiya」。コロナ禍を経て意識が変化した施主の住まい。“大切な物だけを引寄せる暮らし”を意識し、家具等を引き立てる“円弧”状の天井がある空間を考案。既存開口の一部は“敢えて閉じる”操作で“魅せるニッチ”とするリビングダイニングからニッチを見る。夕景 photo©下村写真事務所
    arbolとwalk scapeによる、兵庫・西宮市の住戸改修「Apartment Renovation in Nishinomiya」。コロナ禍を経て意識が変化した施主の住まい。“大切な物だけを引寄せる暮らし”を意識し、家具等を引き立てる“円弧”状の天井がある空間を考案。既存開口の一部は“敢えて閉じる”操作で“魅せるニッチ”とするバルコニー側からリビングダイニングを見る。夕景 photo©下村写真事務所

    堤庸策 / arbolとwalk scapeによる、兵庫・西宮市の住戸改修「Apartment Renovation in Nishinomiya」です。
    コロナ禍を経て意識が変化した施主の住まいです。建築家は、“大切な物だけを引寄せる暮らし”を意識し、家具等を引き立てる“円弧”状の天井がある空間を考案しました。また、既存開口の一部は“敢えて閉じる”操作で“魅せるニッチ”としています。

    コロナ禍を経て、多くの人が「本当に必要なものとは何か」を見直すきっかけを得ました。この住まいの住み手もまた、自宅という空間に対する意識が大きく変化したと語っておられます。

    好きな家具や植物、アートなど、自分にとって大切なものだけを引き寄せる暮らし。それらを美しく引き立て、静かに受け止める背景としての住まいを整えることが、このリノベーションの出発点となりました。

    建築家によるテキストより

    今回のリノベーションでまず取り組んだのが、空間の大きな整理でした。住まい手のご希望は「和室をなくして、光が届く広いリビングにしたい」「細かい仕切りや廊下はできるだけなくしたい」という明快なもの。その意図を受け、既存の間取りを一新し、ワンルームのような広がりと一体感を持たせた空間へと再構成しています。

    もともと存在していた和室は撤去し、リビングの一部として取り込みながら、視線と光がのびのびと行き交う空間に。壁ではなく天井に曲線をもたせることで、仕切らずに“場”の気配をつくる工夫も盛り込みました。

    天井に描かれた大きな円弧の造作は、空間に柔らかい緊張感をもたらしつつ、光の陰影をやさしく受け止め、家具の輪郭を引き立てる存在になっています。マットな質感の左官調仕上げ「マーブルフィール」と間接照明の組み合わせが、陰影のレイヤーを生み出し、静かな奥行きをもたらしています。

    建築家によるテキストより

    空間全体において、「光が入る広いリビングがほしい」「廊下をなくしたい」「細かく仕切らずにすっきりと」という施主の希望は、空間の構成に大きく影響しました。その中でも、リビング南側の処理は設計上の要所のひとつでした。

    もともとこの部分には、マンションの共用部に面した開口部がありました。しかし、そこから見える景色に心地よさはなく、採光の期待も薄い。そこで私たちは、「あえて閉じる」という選択を採用しました。

    新たに立ち上げた壁面には、楕円形に切り抜いた開口部を設け、そこにワーロン材のスライド建具を組み込みました。これにより、外の視線や雑多な要素を遮りながら、やわらかい光と奥行き感だけを室内に取り入れることができます。

    開口部の奥には、間接照明とTVボードを計画的に配置。テレビや照明を空間に馴染ませながら、まるでアートピースのように“演出する”工夫を施しました。これは、「生活感を隠したい」「機能性と美しさを両立させたい」という住まい手の意図に応えたものであり、“閉じることで魅せる”という、住まいづくりにおけるひとつの逆転の発想でもあります。

    建築家によるテキストより
    • 残り27枚の写真と建築家によるテキスト
    • SHARE
    arbolwalk scapeリノベーション下村写真事務所住戸兵庫図面あり建材(内装・キッチン)建材(内装・壁)建材(内装・天井)建材(内装・床)建材(内装・浴室)建材(内装・照明)稔工務店
    2025.11.10 Mon 16:01
    0
    permalink
    【ap job更新】 表札や看板などの“サインプロダクト”を手掛ける「株式会社anveil」が、商品開発部門のスタッフ(既卒・経験者)を募集中

    ap job 【ap job更新】 表札や看板などの“サインプロダクト”を手掛ける「株式会社anveil」が、商品開発部門のスタッフ(既卒・経験者)を募集中

    architecture|job|promotion
    建築求人情報
    【ap job更新】 表札や看板などの“サインプロダクト”を手掛ける「株式会社anveil」が、商品開発部門のスタッフ(既卒・経験者)を募集中
    【ap job更新】 表札や看板などの“サインプロダクト”を手掛ける「株式会社anveil」が、商品開発部門のスタッフ(既卒・経験者)を募集中「うつくしいお店を助け、残す」がミッション
    アーキテクチャーフォトジョブボードに新しい情報が追加されました
    job.architecturephoto.net

    表札や看板などの“サインプロダクト”を手掛ける「株式会社anveil」の、商品開発部門のスタッフ(既卒・経験者)募集のお知らせです。詳しくは、ジョブボードの当該ページにてご確認ください。アーキテクチャーフォトジョブボードには、その他にも、色々な事務所の求人情報が掲載されています。
    新規の求人の投稿はこちらからお気軽にお問い合わせください。

    anveilでは、デザインサイン事業 PIECEOFSIGN 商品開発アシスタントを募集します。

    表札・看板を中心としたサインブランド「PIECEOFSIGN」では、うつくしい店舗を支援するプロダクトやサービスを日本から世界へ展開しています。特にグローバル市場は成長率が高く、2027年中には日本国内の販売額を超える見込みです。
    今後はサイン以外の店舗什器や店舗の販促アイテム等のプロダクトの拡充で、店舗の誕生から成熟期までを支える”総合的な店舗支援のブランド”に成長中です。

    今回は、商品化までの全体の流れを管理する進行管理の役割を担ってくださる開発事務ポジションの方を募集します。
    将来的には商品開発デザイナーへキャリアアップしたい意欲ある方を歓迎いたします。

    【おもな業務】
    “アイデアを実際の形に変える”プロセス全体を動かす、中心的な役割です。
    プロジェクト全体の流れを設計し、自ら商品化を前に進めていく推進者としてのポジションです。また、既存プロダクトの改善もお任せします。
    具体的には、デザイナーが描いた図面や仕様書をもとに、国内外の工場と連携しながら製造を進行。サンプル確認、品質・仕様のすり合わせや、新規サプライヤー開拓、既存プロダクトの改善作業などもお任せします。

    【PIECE OF SIGNならではの環境】
    開発から製造までの一気通貫のユニークな環境で、製造や素材に関する知識を深めながら、店舗プロダクトの全体像を学べる環境があります。
    商品開発のプロフェッショナルのもとで、幅広い店舗プロダクトに携わることで視野を広げ、プロダクトの本質をつかむ力を磨くことができます。

    job.architecturephoto.net
    • ap job
    建築求人情報
    2025.11.10 Mon 15:26
    0
    permalink
    最も注目を集めたトピックス[期間:2025/11/3-11/9]

    SHARE 最も注目を集めたトピックス[期間:2025/11/3-11/9]

    architecture|feature
    最も注目を集めたトピックス
    最も注目を集めたトピックス[期間:2025/11/3-11/9]

    アーキテクチャーフォトで、先週(期間:2025/11/3-11/9)注目を集めたトピックスをまとめてご紹介します。リアルタイムでの一週間の集計は、トップページの「Weekly Top Topics」よりご覧いただけます。


    1. 青木真研究室による、東京・練馬区の「緑の家」。地域の散歩道となっている緑道沿いの敷地。体験への“特徴的なシーンの挿入”を意図し、曲面と平面が混交する“樹木に呼応したような形態”の建築を考案。内部はニッチ空間が立体的に連続した垂直的一室空間とする
    2. スノヘッタによる、中国の「杭州チエンタン湾美術館」。湾岸開発の中核となる施設。芸術と文化の波や運動を空間的に解釈して、自然と芸術が交わる“想像力の扉”となる存在を志向。橋の形や機能も参照した“波の様なヴォリューム”で周囲と滑らかに繋がる建築を考案
    3. 佐久間徹設計事務所による、東京・三鷹市の「井の頭の家A」。閑静な住宅街の敷地。建て込む環境での“自然の感受”を求め、“45°回転させた正方形”を3つ並べて“複数の庭”を作り出す平面構成を考案。多方向の庭木への眺望の獲得と同時に内部空間に視覚的な奥行きも生む
    4. 村野藤吾設計の「旧横浜市庁舎行政棟」(1959年竣工) が、宿泊施設に転用され2026年4月にオープン。改修設計は竹中工務店。利用客使用部分のインテリアの基本設計と監修を成瀬・猪熊建築設計事務所が手掛ける
    5. 成瀬・猪熊建築設計事務所による、東京・新宿区の集合住宅「風の道テラス」。坂道が並行して通る地域に建つコーポラティブハウス。風が通り視線も抜ける道の豊かさに着目し、“街の骨格”をそのまま敷地に入れ込む計画を考案。全体を6つに分割して空が見え光も差し込む5つのスリットを通す
    6. 押山剛司建築設計事務所による「栃木の家」。戸建てと田んぼが入り混じる住宅街の敷地。植物や庭いじりが好きな施主の為に、個性的な複数の庭と建築が“絡み合う”ような平面構成を志向。箱形をベースとして“スタックとシフト”を繰り返して造り上げる
    7. 【ap Masterpiece】OMAによる、オランダ・ロッテルダムの美術館「クンストハル」(1992年)
    8. スノヘッタによる、フランス・パリの店舗「Canada Goose Paris」。ファッションダウンブランドの旗艦店。“境界のない”というコンセプトを掲げ、シグネチャールックに根ざしながら“美的表現を超える”空間を志向。インテリアからデザインガイドラインまで包括的に手掛ける
    9. ミナ ペルホネンによる、世田谷美術館での展覧会の入場チケットをプレゼント。“特別な日常着”を掲げてオリジナルの生地からプロダクトまで手掛ける、ファッション・テキスタイルブランド
    10. ザハ・ハディド・アーキテクツによる、中国・杭州の「グランドキャナル・ゲートウェイブリッジ」。世界遺産の運河に架かる歩道橋。地域の伝統である“シルク刺繍の伝統”に着想を得て、“縫いの技法を再解釈”するような形態を考案。先進的なデジタル技術での最適化で環境負荷を軽減して持続可能な存在とする
    11. SANAAによる、台湾の「Taichung Green Museumbrary」が2025年12月にオープン。旧軍用空港跡地の公園内に計画された美術館と図書館を統合した施設。軽やかで開かれた存在を目指し、アルミとガラスの二重構造のファサードで地上レベルに全方向からアクセス可能な公共広場を備えた建築を考案
    12. 【ap job更新】 “適法改修”による建物の再生に特化し、様々な用途のコンサルや設計を行う「株式会社 建築再構企画」が、スタッフ(経験者・既卒)を募集中
    13. 21_21 DESIGN SIGHTでの展覧会「デザインの先生」の入場チケットをプレゼント。ブルーノ・ムナーリ、マックス・ビル、アキッレ・カスティリオーニ、オトル・アイヒャー、エンツォ・マーリ、ディーター・ラムスを“デザインの先生”と捉えて、活動の軌跡を改めて振り返る
    14. 35歳以下の若手建築家による展覧会「Under 35 Architects exhibition 2025」。藤本壮介が審査して選出した建築作品を展示。若手建築家の発表機会の創出と日本建築の可能性の提示を趣旨として開催
    15. BIGなどが設計に参加した、ニューヨークの「ソーラー・ワン環境教育センター」。水害対策として計画された公園群の一角にある施設。子供の為の教室も備えた災害時に電力を供給する避難所として、浸水時を想定した仕様に加えて太陽光パネルや蓄電システムも配備した建築を考案
    16. 大室佑介アトリエによる、香川・多度津町の「鳥のための塔」。アート祭への出展作品として計画。“雄大な自然への敬意”と“墓地に近接する立地”も考慮し、島の一部となる“ささやかな塔”を志向。正八角形の柱の中に“円筒状”の内部空間を作って中谷ミチコのレリーフを配置
    17. 渡部光樹+渡部梨華 / Wによる、秋田の「大館の住宅」。地方部の“建ち方”にも向き合った計画。集団規定の影響を殆ど受けない与件に対し、外部空間に対して“自覚的な在り方”の建築を志向。敷地を囲む様に量塊を配置して“性質の異なる二つの中庭”を設ける構成を考案
    18. フォスター+パートナーズによる、ニューヨークの「270パーク・アベニュー」。JPモルガンのグローバル本社ビル。独特なカンチレバー構造で広い公共空間と視界の抜けを確保し、ウェルビーイングに重点を置いた換気や照明の計画も実施。全体の多様なアクティビティは“都市の中の都市”を意図
    19. 藤森照信と聴竹居倶楽部の松隈章による対談イベントの動画。2025年10月に行われたもの
    20. 鎌倉市の新庁舎等基本設計プロポーザルで、日建設計が最優秀者に選定。コンセプトは「ひとつながりの未来の庁舎『鎌倉ONE』」。提案のイメージも公開

    • 過去の「最も注目を集めたトピックス」はこちらでどうぞ
    • SHARE
    最も注目を集めたトピックス
    2025.11.10 Mon 06:54
    0
    permalink
    2025.11.08Sat
    • 【ap job更新】 “適法改修”による建物の再生に特化し、様々な用途のコンサルや設計を行う「株式会社 建築再構企画」が、スタッフ(経験者・既卒)を募集中
    2025.11.12Wed
    • 小山光+KEY OPERATIONの設計監修による、東京・世田谷区の「No.R下北沢」。“商業地域の重要な焦点”となる場に建つ複合ビル。街の特徴である“細い通り”に着目し、通りが建築内部に立体的に伸びるように通路やテラスを設ける構成を考案。軒天の木材仕上げで“温かな雰囲気”も生み出す

    Subscribe and Follow

    公式アカウントをフォローして、
    見逃せない建築情報を受け取ろう。

    「建築と社会の関係を視覚化する」メディア、アーキテクチャーフォトの公式アカウントです。
    様々な切り口による複眼的視点で建築に関する情報を最速でお届けします。

    62,026
    • Follow
    87,374
    • Follow
    • Follow
    • Add Friends
    • Subscribe
    • 情報募集/建築・デザイン・アートの情報を随時募集しています。
      More
    • メールマガジン/ メールマガジンで最新の情報を配信しています。
      More

    architecturephoto® News Letter

    メールマガジンでも最新の更新情報を配信中

    • ホーム
    • アーキテクチャーフォトについて
    • アーキテクチャーフォト規約
    • プライバシーポリシー
    • 特定商取引法に関する表記
    • 利用者情報の外部送信について
    • 広告掲載について
    • お問い合わせ/作品投稿

    Copyright © architecturephoto.net.

    • 建築
    • アート
    • カルチャー
    • デザイン
    • ファッション
    • 動画
    • 展覧会
    • コンペ
    • 書籍
    • 建築求人
    • 特集記事
    • 注目情報
    • タグ
    • アーキテクチャーフォト ジョブボード
    • アーキテクチャーフォト・ブック
    • ホーム
    • アーキテクチャーフォトについて
    • アーキテクチャーフォト規約
    • プライバシーポリシー
    • 特定商取引法に関する表記
    • 利用者情報の外部送信について
    • 広告掲載について
    • お問い合わせ/作品投稿

    メールマガジンで最新の情報を配信しています

    この記事をシェア
    タイトルタイトルタイトルタイトルタイトル
    https://architecturephoto.net/permalink

    記事について#architecturephotonetでつぶやいてみましょう。
    有益なコメントは拡散や、サイトでも紹介させていただくこともございます。

    architecturephoto®
    • black
    • gray
    • white

    建築求人情報紹介

    Loading...