architecturephoto®

  • 特集記事
  • 注目情報
  • タグ
  • 建築
  • アート
  • カルチャー
  • デザイン
  • ファッション
  • 動画
  • 展覧会
  • コンペ
  • 書籍
  • 建築求人
  • すべてのタグ

建築求人情報

Loading...
2025.11.06Thu
2025.11.05Wed
2025.11.07Fri
【ap Masterpiece】OMAによる、オランダ・ロッテルダムの美術館「クンストハル」(1992年)
photograph by Delfino Sisto Legnani and Marco Cappelletti, courtesy of OMA

SHARE 【ap Masterpiece】OMAによる、オランダ・ロッテルダムの美術館「クンストハル」(1992年)

architecture|feature
ap MasterpieceOMAオランダレム・コールハース美術館・博物館
【ap Masterpiece】OMAによる、オランダ・ロッテルダムの美術館「クンストハル」(1992年) photograph by Delfino Sisto Legnani and Marco Cappelletti, courtesy of OMA
【ap Masterpiece】OMAによる、オランダ・ロッテルダムの美術館「クンストハル」(1992年) photograph by Delfino Sisto Legnani and Marco Cappelletti, courtesy of OMA
【ap Masterpiece】OMAによる、オランダ・ロッテルダムの美術館「クンストハル」(1992年) photograph by Delfino Sisto Legnani and Marco Cappelletti, courtesy of OMA
【ap Masterpiece】OMAによる、オランダ・ロッテルダムの美術館「クンストハル」(1992年) photograph by Delfino Sisto Legnani and Marco Cappelletti, courtesy of OMA

「ap Masterpiece」は、世界中に存在する名作と言える建築を、アーキテクチャーフォトのウェブサイト上で紹介するシリーズです。

OMAが設計した、オランダ・ロッテルダムの美術館「クンストハル」(1992年)です。
また、本建築は2014年にOMA自身の設計でリノベーションされています。本記事では、1999年と2017年に撮影された写真を掲載します。施設の場所はこちら(Google Map)。


こちらは建築家によるテキストです(翻訳:アーキテクチャーフォト / 原文は末尾に掲載)

クンストハルは、3300平方メートルの展示スペース、講堂、レストランをコンパクトなデザインに一体化しています。傾斜のある床面と綿密に配置された一連のスロープが、三つの大規模な展示ホールと二つの親密なギャラリーをシームレスにつないでいます。にぎやかな幹線道路と、「ミュージアム・パーク」として知られる博物館と緑地のネットワークの間に挟まれた立地により、クンストハルはロッテルダムで最も価値のある文化施設への玄関口として機能しています。この計画では、共同でも個別でも利用可能な三つの主要な展示スペース、講堂、そして独立して出入り可能なレストランが求められていました。

この敷地は二重の性格を持っています。南側の端は堤防の上を走る幹線道路「マースブールバール」に接しています。一段低くなった北側は、ミュージアム・パークに面しており、そこには従来的な鑑賞の空間が広がっています。

この建物は、二つの通路が交差する正方形として構想されました。一つはマースブールバールに平行して東西に走る道路、もう一つはミュージアム・パークの南北軸を延長する公共のスロープです。このような前提と、交差する通路によって正方形が四つの区画に分割されるという事実から、課題となったのは、四つの独立したプロジェクトとして美術館をいかに設計するかということでした。それは。互いに矛盾する体験の連続でありながら、それでもなお連続した螺旋を形成するということです。言い換えれば、四つの独立した正方形の中に、どのようにして螺旋を想像するかということです。この建物のコンセプトは、連続する回路(サーキット)です。

歩行者用スロープは分割されており、ガラスの壁が、一般に開放された外側と、回路の一部である内側とを隔てています。並行して逆方向に走る第二のスロープは、講堂を収容するために段状にされており、その下にはレストランがあります。二つのスロープが交差するレベルに、メインエントランスが設けられています。そこから来館者は、ミュージアム・パークへ下り、堤防の高さへ上がる第二のスロープへと進みます。

第一のホールに近づくと、階段と視界が遮られた空間に出会い、その景色は徐々に明らかになります。そして、木の柱のような構造が並ぶ風景が、緑を背景に映し出され、公園側のファサードに使われたさまざまな種類のガラスによって縁取られ、ときには歪められて見えるのです。そこから内部のスロープをたどると、第2のホールへと導かれます。そこは大通りに面した、空からの光が差し込む広々とした空間です。屋上庭園に沿って伸びる第三のスロープは、より親密で天井の低いホールへと続き、さらにその先には屋上テラスがあります。


1999年に撮影された写真

以下の写真はクリックで拡大します

【ap Masterpiece】OMAによる、オランダ・ロッテルダムの美術館「クンストハル」(1992年) photograph by Philippe Ruault, courtesy of OMA
【ap Masterpiece】OMAによる、オランダ・ロッテルダムの美術館「クンストハル」(1992年) photograph by Philippe Ruault, courtesy of OMA
【ap Masterpiece】OMAによる、オランダ・ロッテルダムの美術館「クンストハル」(1992年) photograph by Philippe Ruault, courtesy of OMA
【ap Masterpiece】OMAによる、オランダ・ロッテルダムの美術館「クンストハル」(1992年) photograph by Philippe Ruault, courtesy of OMA
【ap Masterpiece】OMAによる、オランダ・ロッテルダムの美術館「クンストハル」(1992年) photograph by Philippe Ruault, courtesy of OMA
【ap Masterpiece】OMAによる、オランダ・ロッテルダムの美術館「クンストハル」(1992年) photograph by Philippe Ruault, courtesy of OMA
【ap Masterpiece】OMAによる、オランダ・ロッテルダムの美術館「クンストハル」(1992年) photograph by Philippe Ruault, courtesy of OMA
【ap Masterpiece】OMAによる、オランダ・ロッテルダムの美術館「クンストハル」(1992年) photograph by Philippe Ruault, courtesy of OMA
【ap Masterpiece】OMAによる、オランダ・ロッテルダムの美術館「クンストハル」(1992年) photograph by Philippe Ruault, courtesy of OMA
【ap Masterpiece】OMAによる、オランダ・ロッテルダムの美術館「クンストハル」(1992年) photograph by Philippe Ruault, courtesy of OMA
【ap Masterpiece】OMAによる、オランダ・ロッテルダムの美術館「クンストハル」(1992年) photograph by Philippe Ruault, courtesy of OMA
【ap Masterpiece】OMAによる、オランダ・ロッテルダムの美術館「クンストハル」(1992年) photograph by Philippe Ruault, courtesy of OMA
【ap Masterpiece】OMAによる、オランダ・ロッテルダムの美術館「クンストハル」(1992年) photograph by Philippe Ruault, courtesy of OMA
【ap Masterpiece】OMAによる、オランダ・ロッテルダムの美術館「クンストハル」(1992年) photograph by Philippe Ruault, courtesy of OMA
【ap Masterpiece】OMAによる、オランダ・ロッテルダムの美術館「クンストハル」(1992年) photograph by Philippe Ruault, courtesy of OMA
【ap Masterpiece】OMAによる、オランダ・ロッテルダムの美術館「クンストハル」(1992年) photograph by Philippe Ruault, courtesy of OMA
【ap Masterpiece】OMAによる、オランダ・ロッテルダムの美術館「クンストハル」(1992年) photograph by Philippe Ruault, courtesy of OMA
【ap Masterpiece】OMAによる、オランダ・ロッテルダムの美術館「クンストハル」(1992年) photograph by Philippe Ruault, courtesy of OMA
【ap Masterpiece】OMAによる、オランダ・ロッテルダムの美術館「クンストハル」(1992年) photograph by Philippe Ruault, courtesy of OMA
【ap Masterpiece】OMAによる、オランダ・ロッテルダムの美術館「クンストハル」(1992年) photograph by Philippe Ruault, courtesy of OMA
【ap Masterpiece】OMAによる、オランダ・ロッテルダムの美術館「クンストハル」(1992年) photograph by Philippe Ruault, courtesy of OMA
【ap Masterpiece】OMAによる、オランダ・ロッテルダムの美術館「クンストハル」(1992年) photograph by Philippe Ruault, courtesy of OMA
【ap Masterpiece】OMAによる、オランダ・ロッテルダムの美術館「クンストハル」(1992年) photograph by Philippe Ruault, courtesy of OMA
【ap Masterpiece】OMAによる、オランダ・ロッテルダムの美術館「クンストハル」(1992年) photograph by Philippe Ruault, courtesy of OMA
【ap Masterpiece】OMAによる、オランダ・ロッテルダムの美術館「クンストハル」(1992年) photograph by Philippe Ruault, courtesy of OMA
【ap Masterpiece】OMAによる、オランダ・ロッテルダムの美術館「クンストハル」(1992年) photograph by Philippe Ruault, courtesy of OMA
【ap Masterpiece】OMAによる、オランダ・ロッテルダムの美術館「クンストハル」(1992年) photograph by Philippe Ruault, courtesy of OMA
【ap Masterpiece】OMAによる、オランダ・ロッテルダムの美術館「クンストハル」(1992年) photograph by Philippe Ruault, courtesy of OMA
【ap Masterpiece】OMAによる、オランダ・ロッテルダムの美術館「クンストハル」(1992年) photograph by Philippe Ruault, courtesy of OMA
【ap Masterpiece】OMAによる、オランダ・ロッテルダムの美術館「クンストハル」(1992年) photograph by Philippe Ruault, courtesy of OMA
【ap Masterpiece】OMAによる、オランダ・ロッテルダムの美術館「クンストハル」(1992年) photograph by Philippe Ruault, courtesy of OMA
【ap Masterpiece】OMAによる、オランダ・ロッテルダムの美術館「クンストハル」(1992年) photograph by Philippe Ruault, courtesy of OMA

1999年に撮影された写真

以下の写真はクリックで拡大します

【ap Masterpiece】OMAによる、オランダ・ロッテルダムの美術館「クンストハル」(1992年) photograph by Delfino Sisto Legnani and Marco Cappelletti, courtesy of OMA
【ap Masterpiece】OMAによる、オランダ・ロッテルダムの美術館「クンストハル」(1992年) photograph by Delfino Sisto Legnani and Marco Cappelletti, courtesy of OMA
【ap Masterpiece】OMAによる、オランダ・ロッテルダムの美術館「クンストハル」(1992年) photograph by Delfino Sisto Legnani and Marco Cappelletti, courtesy of OMA
【ap Masterpiece】OMAによる、オランダ・ロッテルダムの美術館「クンストハル」(1992年) photograph by Delfino Sisto Legnani and Marco Cappelletti, courtesy of OMA
【ap Masterpiece】OMAによる、オランダ・ロッテルダムの美術館「クンストハル」(1992年) photograph by Delfino Sisto Legnani and Marco Cappelletti, courtesy of OMA
【ap Masterpiece】OMAによる、オランダ・ロッテルダムの美術館「クンストハル」(1992年) photograph by Delfino Sisto Legnani and Marco Cappelletti, courtesy of OMA
【ap Masterpiece】OMAによる、オランダ・ロッテルダムの美術館「クンストハル」(1992年) photograph by Delfino Sisto Legnani and Marco Cappelletti, courtesy of OMA
【ap Masterpiece】OMAによる、オランダ・ロッテルダムの美術館「クンストハル」(1992年) photograph by Delfino Sisto Legnani and Marco Cappelletti, courtesy of OMA
【ap Masterpiece】OMAによる、オランダ・ロッテルダムの美術館「クンストハル」(1992年) photograph by Delfino Sisto Legnani and Marco Cappelletti, courtesy of OMA
【ap Masterpiece】OMAによる、オランダ・ロッテルダムの美術館「クンストハル」(1992年) photograph by Delfino Sisto Legnani and Marco Cappelletti, courtesy of OMA
【ap Masterpiece】OMAによる、オランダ・ロッテルダムの美術館「クンストハル」(1992年) photograph by Delfino Sisto Legnani and Marco Cappelletti, courtesy of OMA
【ap Masterpiece】OMAによる、オランダ・ロッテルダムの美術館「クンストハル」(1992年) photograph by Delfino Sisto Legnani and Marco Cappelletti, courtesy of OMA
【ap Masterpiece】OMAによる、オランダ・ロッテルダムの美術館「クンストハル」(1992年) photograph by Delfino Sisto Legnani and Marco Cappelletti, courtesy of OMA
【ap Masterpiece】OMAによる、オランダ・ロッテルダムの美術館「クンストハル」(1992年) photograph by Delfino Sisto Legnani and Marco Cappelletti, courtesy of OMA
【ap Masterpiece】OMAによる、オランダ・ロッテルダムの美術館「クンストハル」(1992年) photograph by Delfino Sisto Legnani and Marco Cappelletti, courtesy of OMA
【ap Masterpiece】OMAによる、オランダ・ロッテルダムの美術館「クンストハル」(1992年) photograph by Delfino Sisto Legnani and Marco Cappelletti, courtesy of OMA
【ap Masterpiece】OMAによる、オランダ・ロッテルダムの美術館「クンストハル」(1992年) photograph by Delfino Sisto Legnani and Marco Cappelletti, courtesy of OMA
【ap Masterpiece】OMAによる、オランダ・ロッテルダムの美術館「クンストハル」(1992年) photograph by Delfino Sisto Legnani and Marco Cappelletti, courtesy of OMA
【ap Masterpiece】OMAによる、オランダ・ロッテルダムの美術館「クンストハル」(1992年) photograph by Delfino Sisto Legnani and Marco Cappelletti, courtesy of OMA
【ap Masterpiece】OMAによる、オランダ・ロッテルダムの美術館「クンストハル」(1992年) photograph by Delfino Sisto Legnani and Marco Cappelletti, courtesy of OMA
【ap Masterpiece】OMAによる、オランダ・ロッテルダムの美術館「クンストハル」(1992年) photograph by Delfino Sisto Legnani and Marco Cappelletti, courtesy of OMA
【ap Masterpiece】OMAによる、オランダ・ロッテルダムの美術館「クンストハル」(1992年) photograph by Delfino Sisto Legnani and Marco Cappelletti, courtesy of OMA
【ap Masterpiece】OMAによる、オランダ・ロッテルダムの美術館「クンストハル」(1992年) photograph by Delfino Sisto Legnani and Marco Cappelletti, courtesy of OMA

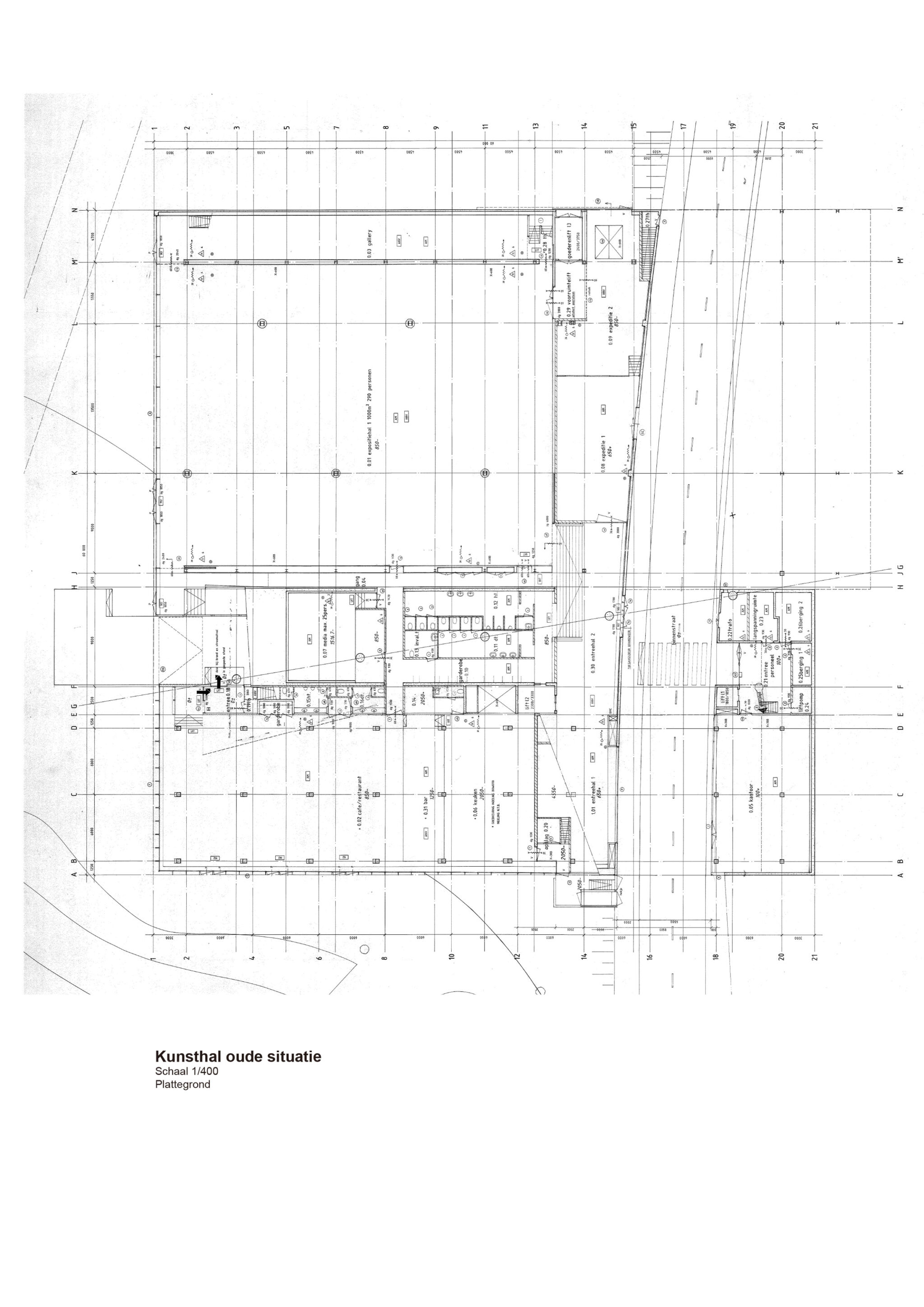
図面

以下の写真はクリックで拡大します

【ap Masterpiece】OMAによる、オランダ・ロッテルダムの美術館「クンストハル」(1992年) image©OMA
【ap Masterpiece】OMAによる、オランダ・ロッテルダムの美術館「クンストハル」(1992年) image©OMA
【ap Masterpiece】OMAによる、オランダ・ロッテルダムの美術館「クンストハル」(1992年) image©OMA
【ap Masterpiece】OMAによる、オランダ・ロッテルダムの美術館「クンストハル」(1992年) image©OMA

以下、建築家によるテキストです。


The Kunsthal combines 3300 square meters of exhibition space, an auditorium and restaurant into one compact design. Sloping floor planes and a series of tightly organized ramps provide seamless connection between the three large exhibition halls and two intimate galleries. Its position, wedged between a busy highway and the network of museums and green spaces known as the museum park, allows it to function as a gateway to Rotterdam’s most prized cultural amenities. The program demanded three major exhibition spaces – to be used jointly or separately, an auditorium and an independently accessible restaurant.

The site presents a dual condition: the southern edge is bordered by the Maasboulevard, a ‘highway’ on top of a dike. The northern side, a level lower, faces the Museum Park – conventional contemplation.

The building was conceived as a square crossed by two routes: one, a road running east / west, parallel to the Maasboulevard; the other, a public ramp extending the north/south axis of the Museum Park. With these given, and the fact that these crossings would divide the square into four parts, the challenge became: how to design a museum as four autonomous projects – a sequence of contradictory experiences which would nevertheless form a continuous spiral. In other words, how to imagine a spiral in four separate squares. The concept of the building is a continuous circuit.

The pedestrian ramp is split, with a glass wall separating the outside, which is open to the public, from the inside, which is part of the circuit. A second ramp, running parallel and reversed, is terraced to accommodate an auditorium, and beneath it the restaurant. On the level where the two ramps cross, the main entrance is defined. From there the visitor enters a second ramp which goes down to the park and up to the dike level.

Approaching the first hall, one confronts a stairway and an obstructed view, which is gradually revealed – a landscape of tree-columns with a backdrop of greenery framed, and sometimes distorted by the different types of glass of the park facade. From there one follows the inner ramp leading to hall 2, a wide open sky lit space facing the boulevard. A third ramp along a roof garden leads to a more intimate single-height hall and further on to the roof terrace.

■建築概要

Kunsthal
Project: A museum for temporary exhibitions
Client: City of Rotterdam
Year: 1992
Status: Built
Type: Museum
Location: Rotterdam, Netherlands
Site: 60m x 60m area on a dike between major highway and the southern edge of the Museumpark (location of Boymans van Beuningen Museum and Netherlands Architecture Institute), adjacent to the Nature Museum, crossed by a secondary road and a pedestrian ramp
Program: 7,000m2: large hall for traveling exhibitions, three additional galleries, auditorium, independently accessible restaurant
Partner in charge: Rem Koolhaas
Project Architect: Fuminori Hoshino
Team: Tony Adam, Isaac Batenburg, Leo van Immerzeel, Herman Jacobs, Ron Steiner, Jeroen Thomas
───
Collaborators
Interior consultants: Petra Blaisse, Kyoko Ohashi, Hans Werlemann
Collaborating artist: Gunter Förg (light installation restaurant)
Structural engineers: Cecil Balmond, Ove Arup; City of Rotterdam

KUNSTHAL RENOVATION
Project: Renovation & update of De Kunsthal 2014
Original design: 1992
Location: Westzeedijk, Rotterdam, The Netherlands
Client: City of Rotterdam
Program: Overhaul of the entire Kunsthal improving its sustainability and flexibility. Design of an extra entrance in combination with a new museum shop, café-restaurant, wardrobe and alternative routing.
Partners-in-charge: Rem Koolhaas and Ellen van Loon
Associates-in-charge: Michel van de Kar, Alex de Jong
Team: Peter Rieff, Sebastian Janusz, Mario Rodriguez Lopez, Dongwoo Kim
───
Collaborators
Consortium: Eneco, Dura Vermeer, Roodenburg Installatiebedrijf
Structural engineer: Theo Wulffraat & Partners
Interior builder: Coors Interieurbouw

あわせて読みたい

OMA / 重松象平+レム・コールハースによる、ニューヨークの、ニューミュージアムの拡張棟が2025年秋にオープン。SANAA設計の既存棟を増築する計画。歴史を作る“未来志向の美術館”の為に、集い・交流・創造を促進する透明性と開放性のある建築を志向。協働者としてクーパー・ロバートソンも参画
  • SHARE
ap MasterpieceOMAオランダレム・コールハース美術館・博物館
2025.11.06 Thu 06:56
0
permalink

#ap Masterpieceの関連記事

  • 2026.1.27Tue
    【ap Masterpiece】OMAによる、ポルトガル・ポルトの「カーサ・ダ・ムジカ」(2005年)
  • 2025.12.23Tue
    【ap Masterpiece】OMAとLMNによる、アメリカの「シアトル中央図書館」(2004年)
  • 2025.12.03Wed
    【ap Masterpiece】MVRDVによる、オランダ・アムステルダムの集合住宅「WoZoCo」(1997年)
  • 2025.11.19Wed
    【ap Masterpiece】OMAによる、フランスの「ボルドーの家」(1998年)
  • view all
view all

#レム・コールハースの関連記事

  • 2026.4.26Sun
    レム・コールハースとクリストフ・ファン・ヘレウェイの対談「A Conversation on the Places of OMA, 1975–2025」の動画。デルフト工科大学で2026年4月に行われたもの
  • 2026.3.23Mon
    OMAによる、アメリカ・ニューヨークの、ニューミュージアムの増築。SANAAの美術館の増築計画。拡張した活動と公共的な志向に応える存在として、相乗効果を生む“一対”であると同時に“異なる個性”も主張する建築を志向。新たな“ギャラリー・垂直動線・集いの場”を追加する
  • 2025.11.19Wed
    【ap Masterpiece】OMAによる、フランスの「ボルドーの家」(1998年)
  • 2025.11.12Wed
    AMO / OMAによる、カタールでの展覧会「カントリーサイド:住む場所、去る場所ではない」。2020年のNYでの展示の新たな展開として企画。アフリカからアジアに広がる山岳地形の“アーク”に焦点を当て、都市生活の代替案となるプロトタイプを探索。展示に加えてワークショップ・講義・実験なども行う
  • 2025.10.02Thu
    AMO / OMAによる展覧会「DIAGRAMS」。ヴェネツィアのプラダ財団で開催。ダイアグラムを“グラフィック装置および思考体系”として捉え、“知識の構造”や“我々の世界の理解”への貢献について考察。12世紀から現代までの300点以上の資料を展示
  • 2025.2.28Fri
    OMA / 重松象平+レム・コールハースによる、ニューヨークの、ニューミュージアムの拡張棟が2025年秋にオープン。SANAA設計の既存棟を増築する計画。歴史を作る“未来志向の美術館”の為に、集い・交流・創造を促進する透明性と開放性のある建築を志向。協働者としてクーパー・ロバートソンも参画
  • 2024.7.15Mon
    OMA / レム・コールハース+クリス・ヴァン・ドゥインによる、フランス・ボルドーの「シモーヌ・ヴェイユ橋」。幅44m長さ549mの橋。地域のアイデンティティとなる存在を目指し、全幅の半分以上を“多目的に使える公共空間”とする構成を考案。形式や構造表現への関心を捨ててパフォーマンスにフォーカスして構想
  • 2024.1.27Sat
    レム・コールハース、イルマ・ボーム、ハンス・ウルリッヒ・オブリストによる鼎談「デジタル時代の緊急図書 – なぜ触感はかけがえのないものなのか?」の動画。ドイツ・ミュンヘンで2024年1月に行われたもの
  • 2022.12.07Wed
    レム・コールハース / OMAの会場構成による、イタリアのプラダ財団での展覧会「リサイクリング・ビューティー」。中世からバロック時代での古代遺産の再利用に注目。アクリル製台座やオフィスチェアを用いた実験的な展示形式で、作品の詳細な観察を促進。断片化・再利用・解釈の重要性を伝える
  • 2022.11.26Sat
    レム・コールハースが、2022年10月にストックホルムで行った講演等の動画
  • view all
view all

建築求人情報

Loading...

 

    公式アカウントをフォローして、見逃せない建築情報を受け取ろう。

    62,026
    • Follow
    87,374
    • Follow
    • Follow
    • Add Friends
    • Subscribe
    • 情報募集/建築・デザイン・アートの情報を随時募集しています。
      More
    • メールマガジン/ メールマガジンで最新の情報を配信しています。
      More

    この日更新したその他の記事

    スノヘッタによる、中国の「杭州チエンタン湾美術館」。湾岸開発の中核となる施設。芸術と文化の波や運動を空間的に解釈して、自然と芸術が交わる“想像力の扉”となる存在を志向。橋の形や機能も参照した“波の様なヴォリューム”で周囲と滑らかに繋がる建築を考案
    image©ATCHAIN & Snohetta

    SHARE スノヘッタによる、中国の「杭州チエンタン湾美術館」。湾岸開発の中核となる施設。芸術と文化の波や運動を空間的に解釈して、自然と芸術が交わる“想像力の扉”となる存在を志向。橋の形や機能も参照した“波の様なヴォリューム”で周囲と滑らかに繋がる建築を考案

    architecture|art|feature
    美術館・博物館スノヘッタ中国
    スノヘッタによる、中国の「杭州チエンタン湾美術館」。湾岸開発の中核となる施設。芸術と文化の波や運動を空間的に解釈して、自然と芸術が交わる“想像力の扉”となる存在を志向。橋の形や機能も参照した“波の様なヴォリューム”で周囲と滑らかに繋がる建築を考案 image©ATCHAIN & Snohetta
    スノヘッタによる、中国の「杭州チエンタン湾美術館」。湾岸開発の中核となる施設。芸術と文化の波や運動を空間的に解釈して、自然と芸術が交わる“想像力の扉”となる存在を志向。橋の形や機能も参照した“波の様なヴォリューム”で周囲と滑らかに繋がる建築を考案 image©ATCHAIN & Snohetta
    スノヘッタによる、中国の「杭州チエンタン湾美術館」。湾岸開発の中核となる施設。芸術と文化の波や運動を空間的に解釈して、自然と芸術が交わる“想像力の扉”となる存在を志向。橋の形や機能も参照した“波の様なヴォリューム”で周囲と滑らかに繋がる建築を考案 image©ATCHAIN & Snohetta

    スノヘッタによる、中国の「杭州チエンタン湾美術館(Hangzhou Qiantang Bay Art Museum)」です。
    湾岸開発の中核となる施設の計画です。建築家は、芸術と文化の波や運動を空間的に解釈して、自然と芸術が交わる“想像力の扉”となる存在を志向しました。そして、橋の形や機能も参照した“波の様なヴォリューム”で周囲と滑らかに繋がる建築を考案しました。


    こちらはリリーステキストです(翻訳:アーキテクチャーフォト / 原文は末尾に掲載)

    スノヘッタが「杭州チエンタン湾美術館」の設計コンペに勝利

    スノヘッタが、杭州のショウザン区にあるチエンタン湾未来本部開発プロジェクトの中核となる美術館の設計コンペに勝利しました。スノヘッタの勝利したコンセプトは、水辺と都市のスカイラインの両方に面したこの壮大な敷地を称えるとともに、時間と芸術との関係という概念に共鳴しています。このデザインは、芸術と文化の波や運動の空間的な解釈であり、自然と芸術が交わる想像力の扉としてこの施設を構想しています。

    この18,000㎡のランドマークは、チエンタン川沿いに進められている杭州の野心的な都心開発計画の一部です。チエンタン川と中央水系の合流点という戦略的な場所に位置し、至近に地下鉄のアクセスを備えたこの美術館は、際立った見晴らしの地点を提供し、訪れる人々に一方の水路から他方の水路まで広がる雄大な景色を見渡すことを可能にします。スノヘッタは、水路の流動性を創造の触媒と解釈し、地区の中央水系に沿った文化施設群から象徴的なゲートウェイを通ってチエンタン川へと流れる、創造性と芸術に満ちた活気ある道筋を形づくっています。それにより、杭州の未来に新たな活力を吹き込んでいます。

    橋の流れるような形状と接続機能に着想を得て、この建物のデザインは、波のような2つのヴォリュームの形をしています。このダイナミックな構成は、あらゆる動線を中央の結節点に織り込むだけでなく、活気ある公共領域も創出しています。潮のリズムのようにうねるランドスケープは、来訪者を敷地の中心にあるゲートウェイへ、そして川と都市のパノラマビューを望む屋上テラスへと続く、探検のような旅へ導きます。そして、それが二つの水路の間にあるコミュニティを活性化させます。

    • 残り7枚の写真と建築家によるテキスト
    • SHARE
    美術館・博物館スノヘッタ中国
    2025.11.06 Thu 16:49
    0
    permalink
    【ap job更新】 公益財団法人 窓研究所が、カナダ建築センターと共同実施するプログラムのフェローを募集中

    ap job 【ap job更新】 公益財団法人 窓研究所が、カナダ建築センターと共同実施するプログラムのフェローを募集中

    architecture|job|promotion
    建築求人情報
    【ap job更新】 公益財団法人 窓研究所が、カナダ建築センターと共同実施するプログラムのフェローを募集中
    【ap job更新】 公益財団法人 窓研究所が、カナダ建築センターと共同実施するプログラムのフェローを募集中Naoyo Hatakeyama, View of the Bookstore, Montreal, 2007, CCA. © Naoya Hatakeyama
    アーキテクチャーフォトジョブボードに新しい情報が追加されました
    job.architecturephoto.net

    公益財団法人 窓研究所の、カナダ建築センターと共同実施するプログラムのフェロー募集のお知らせです。詳しくは、ジョブボードの当該ページにてご確認ください。アーキテクチャーフォトジョブボードには、その他にも、色々な事務所の求人情報が掲載されています。
    新規の求人の投稿はこちらからお気軽にお問い合わせください。

    ※本件は雇用契約に基づく求人ではなく、研究支援を目的としたフェロー募集に関するご案内です。

    ───

    公益財団法人 窓研究所は、カナダ建築センター(CCA)と共同で、建築や都市に関するリサーチフェローシッププログラム「CCA–WRI Research Fellowship Program」を実施しています。このたび、2026年度フェローの公募を開始しました。

    今回の公募では、「Vacancy(空き)」をテーマに、CCAで最長3か月のリサーチ滞在に取り組むフェローを募集します。採択者には支援金のほか、渡航費・ビザ関連費用などのサポートを行います。

    【公募テーマ】
    Vacancy(空き)

    都市や農村における空き地・空き家に着目し、地域の暮らしや社会との関わりから「Vacancy」を考察するリサーチやプロジェクトを歓迎します。アプローチの形式は問いません。

    job.architecturephoto.net
    • ap job
    建築求人情報
    2025.11.06 Thu 13:19
    0
    permalink
    2025.11.04Tue
    • 青木真研究室による、東京・練馬区の「緑の家」。地域の散歩道となっている緑道沿いの敷地。体験への“特徴的なシーンの挿入”を意図し、曲面と平面が混交する“樹木に呼応したような形態”の建築を考案。内部はニッチ空間が立体的に連続した垂直的一室空間とする
    • 成瀬・猪熊建築設計事務所による、東京・新宿区の集合住宅「風の道テラス」。坂道が並行して通る地域に建つコーポラティブハウス。風が通り視線も抜ける道の豊かさに着目し、“街の骨格”をそのまま敷地に入れ込む計画を考案。全体を6つに分割して空が見え光も差し込む5つのスリットを通す
    2025.11.08Sat
    • 21_21 DESIGN SIGHTでの展覧会「デザインの先生」の入場チケットをプレゼント。ブルーノ・ムナーリ、マックス・ビル、アキッレ・カスティリオーニ、オトル・アイヒャー、エンツォ・マーリ、ディーター・ラムスを“デザインの先生”と捉えて、活動の軌跡を改めて振り返る
    • 佐久間徹設計事務所による、東京・三鷹市の「井の頭の家A」。閑静な住宅街の敷地。建て込む環境での“自然の感受”を求め、“45°回転させた正方形”を3つ並べて“複数の庭”を作り出す平面構成を考案。多方向の庭木への眺望の獲得と同時に内部空間に視覚的な奥行きも生む

    Subscribe and Follow

    公式アカウントをフォローして、
    見逃せない建築情報を受け取ろう。

    「建築と社会の関係を視覚化する」メディア、アーキテクチャーフォトの公式アカウントです。
    様々な切り口による複眼的視点で建築に関する情報を最速でお届けします。

    62,026
    • Follow
    87,374
    • Follow
    • Follow
    • Add Friends
    • Subscribe
    • 情報募集/建築・デザイン・アートの情報を随時募集しています。
      More
    • メールマガジン/ メールマガジンで最新の情報を配信しています。
      More

    architecturephoto® News Letter

    メールマガジンでも最新の更新情報を配信中

    • ホーム
    • アーキテクチャーフォトについて
    • アーキテクチャーフォト規約
    • プライバシーポリシー
    • 特定商取引法に関する表記
    • 利用者情報の外部送信について
    • 広告掲載について
    • お問い合わせ/作品投稿

    Copyright © architecturephoto.net.

    • 建築
    • アート
    • カルチャー
    • デザイン
    • ファッション
    • 動画
    • 展覧会
    • コンペ
    • 書籍
    • 建築求人
    • 特集記事
    • 注目情報
    • タグ
    • アーキテクチャーフォト ジョブボード
    • アーキテクチャーフォト・ブック
    • ホーム
    • アーキテクチャーフォトについて
    • アーキテクチャーフォト規約
    • プライバシーポリシー
    • 特定商取引法に関する表記
    • 利用者情報の外部送信について
    • 広告掲載について
    • お問い合わせ/作品投稿

    メールマガジンで最新の情報を配信しています

    この記事をシェア
    タイトルタイトルタイトルタイトルタイトル
    https://architecturephoto.net/permalink

    記事について#architecturephotonetでつぶやいてみましょう。
    有益なコメントは拡散や、サイトでも紹介させていただくこともございます。

    architecturephoto®
    • black
    • gray
    • white

    建築求人情報紹介

    Loading...