
SHARE 【ap Masterpiece】OMAによる、ポルトガル・ポルトの「カーサ・ダ・ムジカ」(2005年)





「ap Masterpiece」は、世界中に存在する名作と言える建築を、アーキテクチャーフォトのウェブサイト上で紹介するシリーズです。
OMAが設計した、ポルトガル・ポルトの「カーサ・ダ・ムジカ」(2005年)です。
こちらは建築家によるテキストです(翻訳:アーキテクチャーフォト / 原文は末尾に掲載)
過去30年間、建築家たちは「靴箱型」コンサートホールの支配から逃れようとして、必死の試みを行ってきました。この伝統的な形状が持つ避けがたい音響的優位性と格闘するのではなく、カーザ・ダ・ムジカは別の方法によって、伝統的なコンサートホールを活性化しようとしています。それは、神聖視されてきた内部空間と外部の一般市民との関係を再定義することです。カーザ・ダ・ムジカは、ポルト国立管弦楽団の新たな本拠地として、歴史あるロトゥンダ・ダ・ボアヴィスタの新しい公共広場に建っています。それは白いコンクリートで造られた特徴的な多面体の形態を持ち、過剰なまでに多くのアイコンがあふれる時代にあっても、確かで、説得力のある存在であり続けています。内部には、持ち上げられた位置にある1,300席の(靴箱型の)グランド・オーディトリウムがあり、その両端には波形ガラスのファサードが設けられていて、ホールを都市に向かって開き、ポルトの街そのものを公演のための劇的な背景として提供しています。カーザ・ダ・ムジカは、教条的になることなくその内部を明らかにします。そして同時に都市を新たな光のもとに照らし出しています。
カーザ・ダ・ムジカの立地は、OMAの思考の展開において鍵となりました。私たちは、円形広場を規定している周囲の古い建物群の環の中に新しいコンサートホールを建てるのではなく、労働者階級の地区に隣接し、円形広場の公園の前にあるトラヴァーチン敷きの台地の上に立つ、孤立した建物をつくることを選びました。このコンセプトによって、象徴性、視認性、そしてアクセスという諸問題は、一つの身振りによって解決されました。
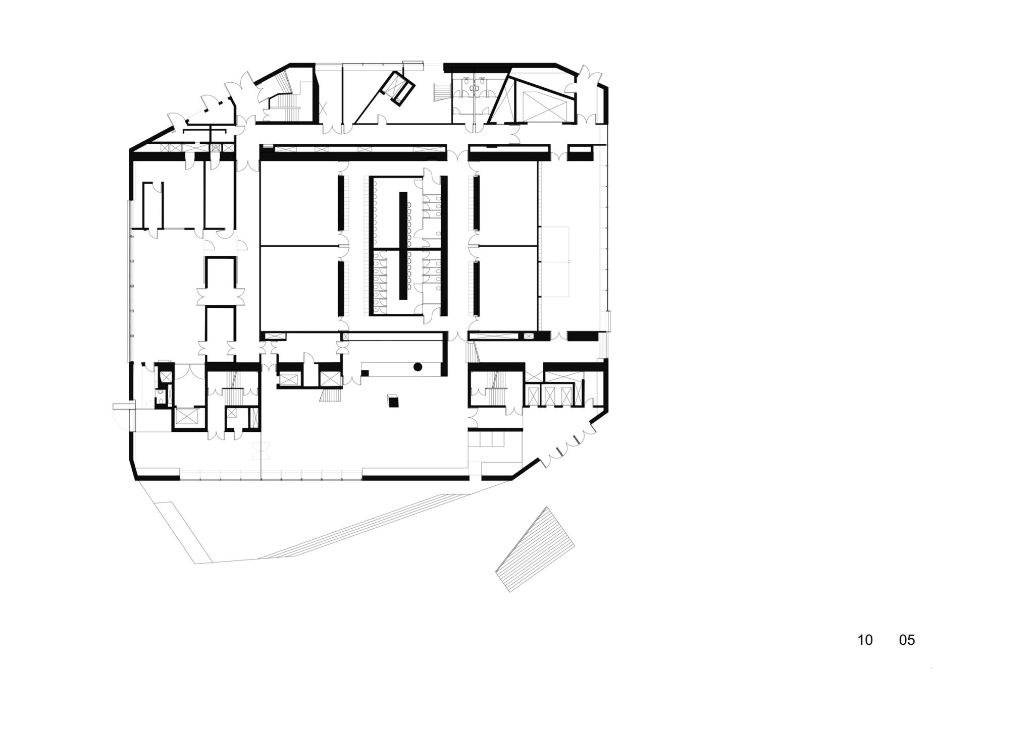
建物のソリッドな形態から端から端までくり抜かれた単純な塊として構想されたグランド・オーディトリウムに加えて、カーザ・ダ・ムジカには、固定席を持たない、より小規模で柔軟なパフォーマンス空間、10のリハーサル室、レコーディング・スタジオ、教育エリア、レストラン、テラス、バー、VIPルーム、管理部門、そして600台分の地下駐車場が含まれています。
意図的に大きな中央ホワイエは設けられておらず、その代わりに、階段、プラットフォーム、エスカレーターによる連続したパブリック・ルートが、グランド・オーディトリウム周囲の諸空間を結んでいます。この建物は建築的な冒険となっています。
2001年にポルトがヨーロッパの2つの文化首都の一つに選定された後、文化大臣とポルト市は、Porto 2001を設立しました。これは、ポルトのためのさまざまな都市的・文化的介入を立ち上げ、準備することを目的とした組織です。このような背景のもと、OMAを含む5つの国際的な建築設計事務所が、ポルトの歴史的中心部であるロトゥンダ・ダ・ボアヴィスタに建設される新しいコンサートホールを対象とした、指名制の設計競技への参加に招かれました。
アーバニズム
ポルトのこの一帯がなお「手つかずの」都市として残されていたため、OMAは、新しいコンサートホールをロトゥンダ・ダ・ボアヴィスタの周囲を取り巻く小規模な円形の壁の一部として構成するのではなく、ロトゥンダ・ダ・ボアヴィスタの歴史的な公園とつながり、三つの都市ブロックに囲まれた、新しく、より親密な広場の上に立つ、孤立した建物としてつくることを選びました。このコンセプトによって、象徴性、視認性、そしてアクセスの問題は、一つの身振りによって解決されました。
連続性と対比の双方を通じて、私たちの介入の後、ロトゥンダ・ダ・ボアヴィスタの公園は、もはや旧市街と新しいポルトをつなぐ単なる蝶番ではなく、都市の二つの異なるモデルが積極的に出会う場となっています。
音響
この世紀において、悪名高い「靴箱型」コンサートホールの専制から逃れようとする、建築的に見て必死ともいえる試みが見られてきました。しかし、既存のコンサートホールの音響性能を調査した結果、私たちは音響専門家とともに、世界で最も優れたホールは靴箱型の形状を持っている、という結論に至らざるを得ませんでした。
このことは、私たちに次の問いを残しました。
コンサートホールのような伝統的な類型の場合、どこに革新の余地があるのか。
建築コンセプト
多くの文化施設は、人口の一部の人々にしか奉仕していません。大多数の人はその外観の形を知っている一方で、内部で何が行われているのかを知っているのは、ごく少数にすぎません。
OMAは、建物をソリッドな塊として考えることによって、コンサートホールと建物の内外にいる公共との関係に取り組みました。それは、塊から二つの靴箱型コンサートホールとその他すべての公共プログラムをくり抜き、内部が空洞化したブロックをつくり出すものです。この建物は、教条的になることなくその内部を都市に向けて明らかにしています。そして同時に、これまでにない方法で、都市そのものが内部にいる公共にさらされています。
露出された公共機能のあいだにある「残余の空間」は、ホワイエ、レストラン、テラス、技術スペース、そして垂直動線といった二次的なサービス空間を構成しています。
連続したパブリック・ルートが、階段、プラットフォーム、エスカレーターを介して、グランド・オーディトリウム周囲に配置されたすべての公共機能と「残余の空間」を結び付けています。こうして、この建物は建築的な冒険となっています。このループは、同時に複数の公演が行われるフェスティバルのために建物を使用する可能性を生み出します――音楽の家として。
この建物は、ポルト・フィルハーモニー管弦楽団を収容するための多数のリハーサル室、ソリスト用室、楽屋を備えるとともに、外部および客演の演奏家のための施設もあわせて提供しています。
設計段階において、OMAは、カーザ・ダ・ムジカのために、既存の素材やポルトガルの素材を用いた新しい材料および新しい使い方について調査を行いました。具体的には、オーディトリアの窓に用いられる波形ガラス、各室で使用されるタイル、そしてグランド・オーディトリウムにおける椅子、キャノピー、壁面仕上げなどです。
構造
カーザ・ダ・ムジカは、その印象的な多面体の外形によって視覚的・空間的に規定されており、その外形から従来的な内部空間が切り出されています。建物の厚さ400mmの多面体シェルと、メイン・オーディトリウムの厚さ1mの二枚の壁が、この建物の主要な荷重支持および安定化システムです。オーディトリウムの壁は、内部のダイアフラムとして機能し、長手方向においてシェル全体を一体化させています。ArupとOMAは、外装ファサードのためのコンクリート配合について研究を行いました。
以下の写真はクリックで拡大します














































以下、建築家によるテキストです。
The past thirty years have seen frantic attempts by architects to escape the domination of the “shoe-box” concert hall. Rather than struggle with the inescapable acoustic superiority of this traditional shape, the Casa da Musica attempts to reinvigorate the traditional concert hall in another way: by redefining the relationship between the hallowed interior and the general public outside. The Casa da Musica, the new home of the National Orchestra of Porto, stands on a new public square in the historic Rotunda da Boavista. It has a distinctive faceted form, made of white concrete, which remains solid and believable in an age of too many icons. Inside, the elevated 1,300-seat (shoe box-shaped) Grand Auditorium has corrugated glass facades at either end that open the hall to the city and offer Porto itself as a dramatic backdrop for performances. Casa da Musica reveals its contents without being didactic; at the same time, it casts the city in a new light.
Locating the Casa da Musica was key in the development of OMA’s thinking; we chose not to build the new concert hall in the ring of old buildings defining the Rotunda but to create a solitary building standing on a travertine-paved plateau in front of the Rotunda’s park, neighbouring a working class area. With this concept, issues of symbolism, visibility, and access were resolved in one gesture.
As well as the Grand Auditorium, conceived as a simple mass hollowed out end-to-end from the solid form of the building, the Casa da Musica also contains a smaller, more flexible performance space with no fixed seating, ten rehearsal rooms, recording studios, an educational area, a restaurant, terrace, bars, a VIP room, administration areas, and an underground car park for 600 vehicles.
Innovative use of materials and colour throughout was another imperative: as well as the unique curtain-like glass walls at either end of the Grand Auditorium, the walls are clad in plywood with enlarged wood patterns embossed in gold, giving a dramatic jolt in perspective; the VIP area has hand-painted tiles picturing a traditional pastoral scene, while the roof terrace is patterned with geometric black and white tiles; floors in public areas are sometimes paved in aluminium.
There is deliberately no large central foyer; instead, a continuous public route connects the spaces around the Grand Auditorium by means of stairs, platforms and escalators. The building becomes an architectural adventure.
After Porto was selected one of the two cultural capitals of Europe in 2001, the Minister of Culture and the city of Porto founded Porto 2001, an organization which was to initiate and prepare different urban and cultural interventions for the city of Porto. In this context five international architectural practices, amongst which was OMA, were invited to participate in a restricted competition for a new concert hall to be positioned in the historical centre of Porto, the Rotunda da Boavista.
Urbanism
Since this part of Porto was still a city “intact”, OMA chose not to articulate the new concert hall as a segment of a small scale circular wall around the Rotunda da Boavista but to create a solitary building standing on the new, more intimate square connected to the historical park of the Rotunda da Boavista and enclosed by three urban blocks. With this concept, issues of symbolism, visibility and access were resolved in one gesture.
Through both continuity and contrast, the park on the Rotunda da Boavista, after our intervention, is no longer a mere hinge between the old and the new Porto, but it becomes a positive encounter of two different models of the city.
Acoustics
This century has seen an architecturally frantic attempt to escape from the tyranny of the notorious “shoe-box” shaped concert hall. However, after researching the acoustic quality of existing concert halls we had to conclude together with our acoustic specialist that the best halls in the world have a shoe box shape.
This left us with the questions:
Where to innovate in a case of a traditional typology like the concert hall?
Architectural concept
Most cultural institutions serve only part of a population. A majority knows their exterior shape, only a minority knows what happens inside.
OMA addressed the relationship between the Concert Hall and the public inside as well as outside the building by considering the building as a solid mass from which were eliminated the two shoe-box-shaped concert halls and all other public program creating a hollowed out block. The building reveals its contents to the city without being didactic; at the same time the city is exposed to the public inside in a way that has never happened before.
The “remaining spaces‟ between the exposed public functions consist of secondary serving spaces such as foyers, a restaurant, terraces, technical spaces and vertical transport.
A continuous public route connects all public functions and “remaining spaces” located around the Grand Auditorium by means of stairs, platforms and escalators: the building becomes an architectural adventure. The loop creates the possibility to use the building for festivals with simultaneous performances; the House of Music.
The building provides a large amount of rehearsal rooms, soloist rooms and dressing rooms to house the Porto Philharmonic Orchestra and to provide in addition facilities to external and guest performers.
During the Design Phase OMA researched new materials and new applications of existing and Portuguese materials exclusively for Casa da Musica such as; the corrugated glass for the windows of the Auditoria, the used tiles for different rooms and the chairs, canopy and wall finish in the Grand Auditorium.
Structure
Casa da Musica is visually and spatially defined by its striking faceted exterior from which its conventional interior spaces have been extracted. The buildings 400mm thick faceted shell and the two 1m thick walls of the main auditorium are the buildings primary load carrying and stability system. The auditorium walls act as internal diaphragms tying the shell together in the longitudinal direction. Arup and OMA researched the concrete mix for external facades.
■建築概要
Project: Casa da Musica
Status: Competition 1999 / Completed spring 2005
Client: Porto 2001 / Casa da Musica
Cost: Confidential Location: Porto, Portugal
Site: Rotunda da Boavista
Program: Main Building: 22.000m2, Grand Auditorium 1.300 seats, Small Auditorium 350 seats, 8 Rehearsal Rooms with recording facilities, Music shop, Cyber and Educational facilities, VIP room, Restaurant and Roof Terrace; Parking for 600 cars (27.000m2).
Prize: Royal Institute of British Architects (RIBA) European Award
───
OMA
Partners-in-Charge: Rem Koolhaas and Ellen van Loon
Project Architects: Adrianne Fisher, Michelle Howard
Competition: Rem Koolhaas, Fernando Romero Havaux, Isabel Silva, Barbara Wolff, Uwe Herlijn
Team: Isabel Silva, Uwe Herlijn, Nuno Rosado, Robert Choeff, Barbara Wolff, Stephan Griek, Govert Gerritsen, Saskia Simon, Thomas Duda, Christian von der Muelde, Rita Amado, Philip Koenen, Peter Muller, Krystian Keck, Eduarda Lima, Christoff Scholl, Alex de Jong, Alois Zierl, Olaf Hitz, Jorge Toscano, Duarte Santos, Nelson Carvalho, Stefanie Wandinger, Catarina Canas, Shadi Rahbaran, Chris van Duijn, Maria Baptista, Andre Cardoso, Paulo Costa, Ana Jacinto, Fabienne Louyot, Nicolas Firket, Christina Beaumont, Anna Little.
Local Architect: ANC Architects, Jorge Carvalho, Teresa Novais
───
Ove Arup & Partners – Afassociados
Coordination: Cecil Balmond, Rory McGowan (Arup) – Rui Furtado, Marco Carvalho (Afa)
Structure: Arup London / AFA Lda, Cecil Balmond, Rory McGowan, Asim Gaba, Toby Maclean, Andrew Minson, Rui Furtado, Rui Oliveira, Pedro Moas, Sergio Vale, Sara Caetano, Jorge Carneiro, Filipe Ferreira, Diogo Vasconcelos
Services: Arup London / AFA Lda/RGA, Tim Thornton, Stefan Waldhauser, Dane Green, Dorothee Richter, Antonio Jose Rodrigues Gomes, Joaquim Viseu, Luis Graca, Paulo Silva, Pedro Albuquerque, Isabel Sarmento, Estevao Santana.
Fire Engineering: Arup fire, George Faller
───
Consultants
Code Consultancy: OHM/Gerisco
Acoustics: TNO Eindhoven and Dorsser Blesgraaf, Renz van Luxemburg, Theo Raijmakers
Interiors, Curtains: Inside Outside, Petra Blaisse, Peter Niessen, Marieke van den Heuvel, Mathias Lehner
Scenography: Ducks Sceno, Michel Cova, Stephan Abromeit, Aldo de Sousa
Facade: Robert Jan van Santen; ARUP facades
Curved Glass Facade: ABT Arnhem (NL), Rob Nijsse
Auditorium Chairs: Maarten van Severen
Loose Furniture Foyers: Daciano da Costa, Antonio Sena da Silva, Leonor Alvares de Oliveira, Fernando Tavora



