
SHARE 【ap Masterpiece】MVRDVによる、オランダ・アムステルダムの集合住宅「WoZoCo」(1997年)




「ap Masterpiece」は、世界中に存在する名作と言える建築を、アーキテクチャーフォトのウェブサイト上で紹介するシリーズです
MVRDVが設計した、オランダ・アムステルダムの集合住宅「WoZoCo」(1997年)です。
こちらは建築家によるテキストです(翻訳:アーキテクチャーフォト / 原文は末尾に掲載)
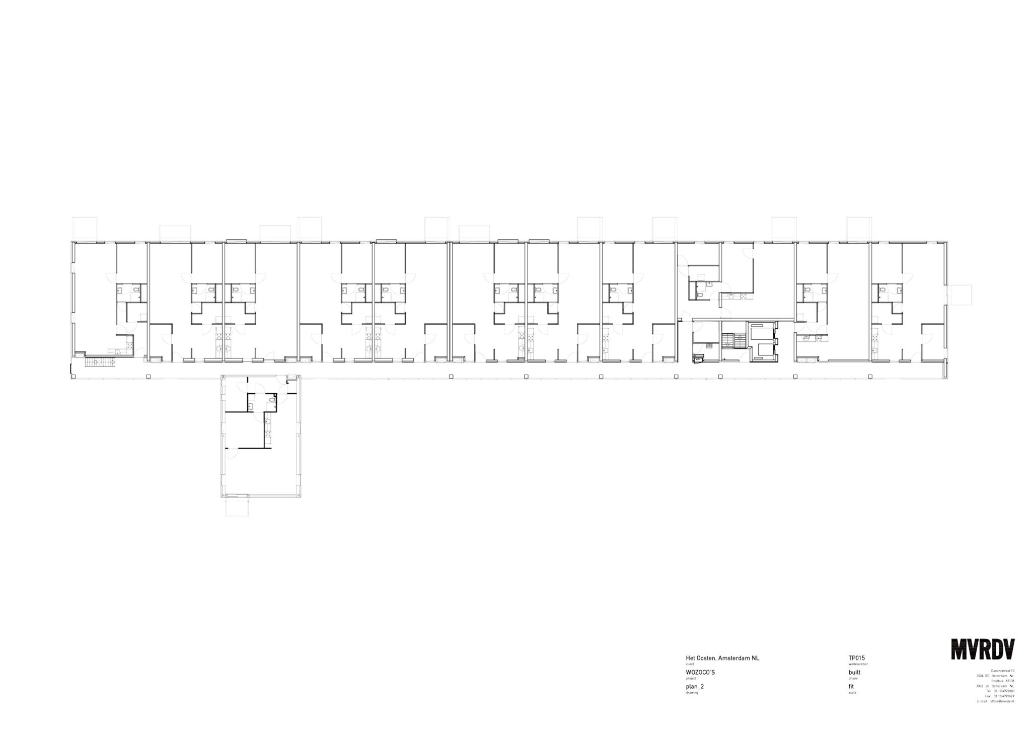
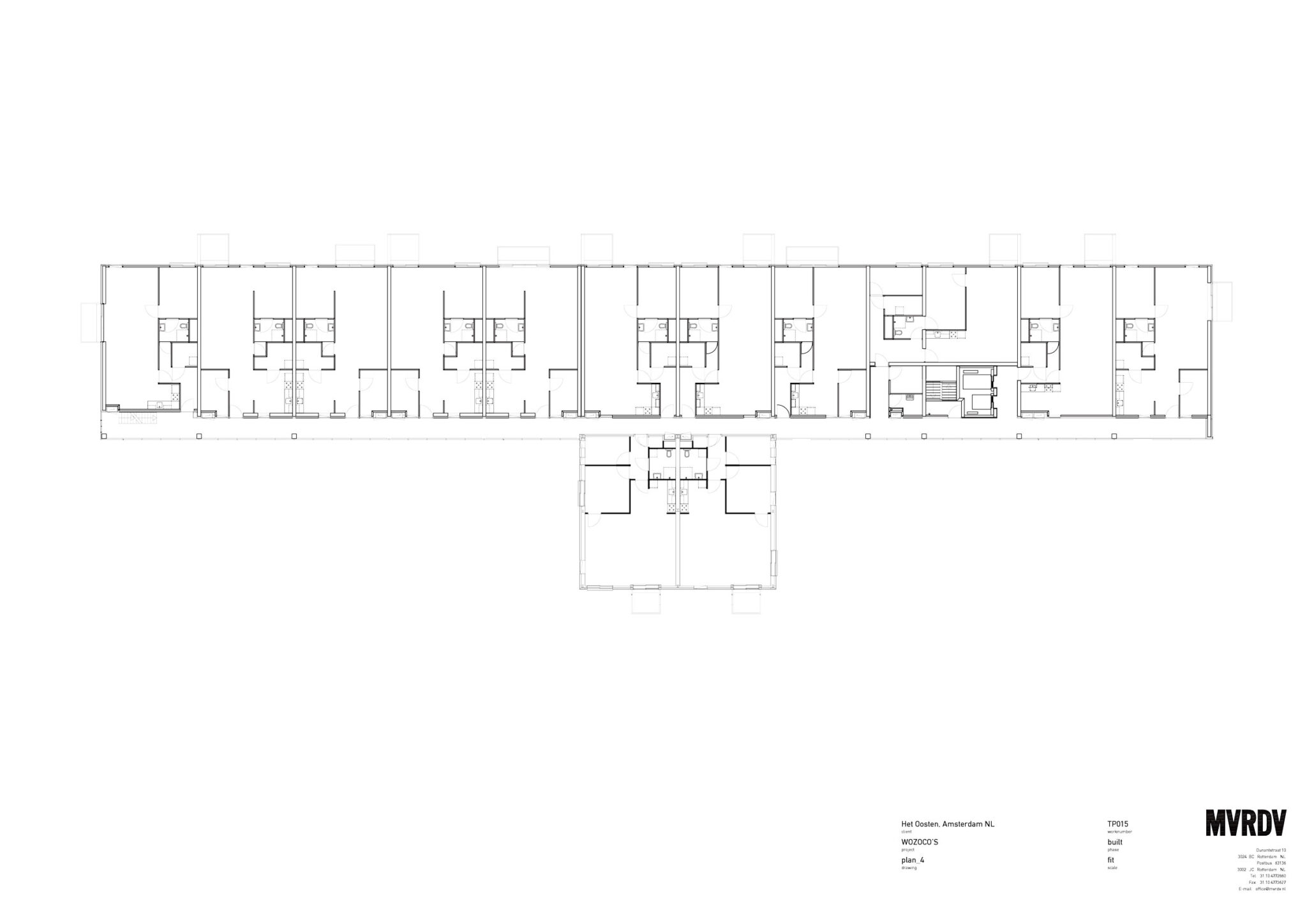
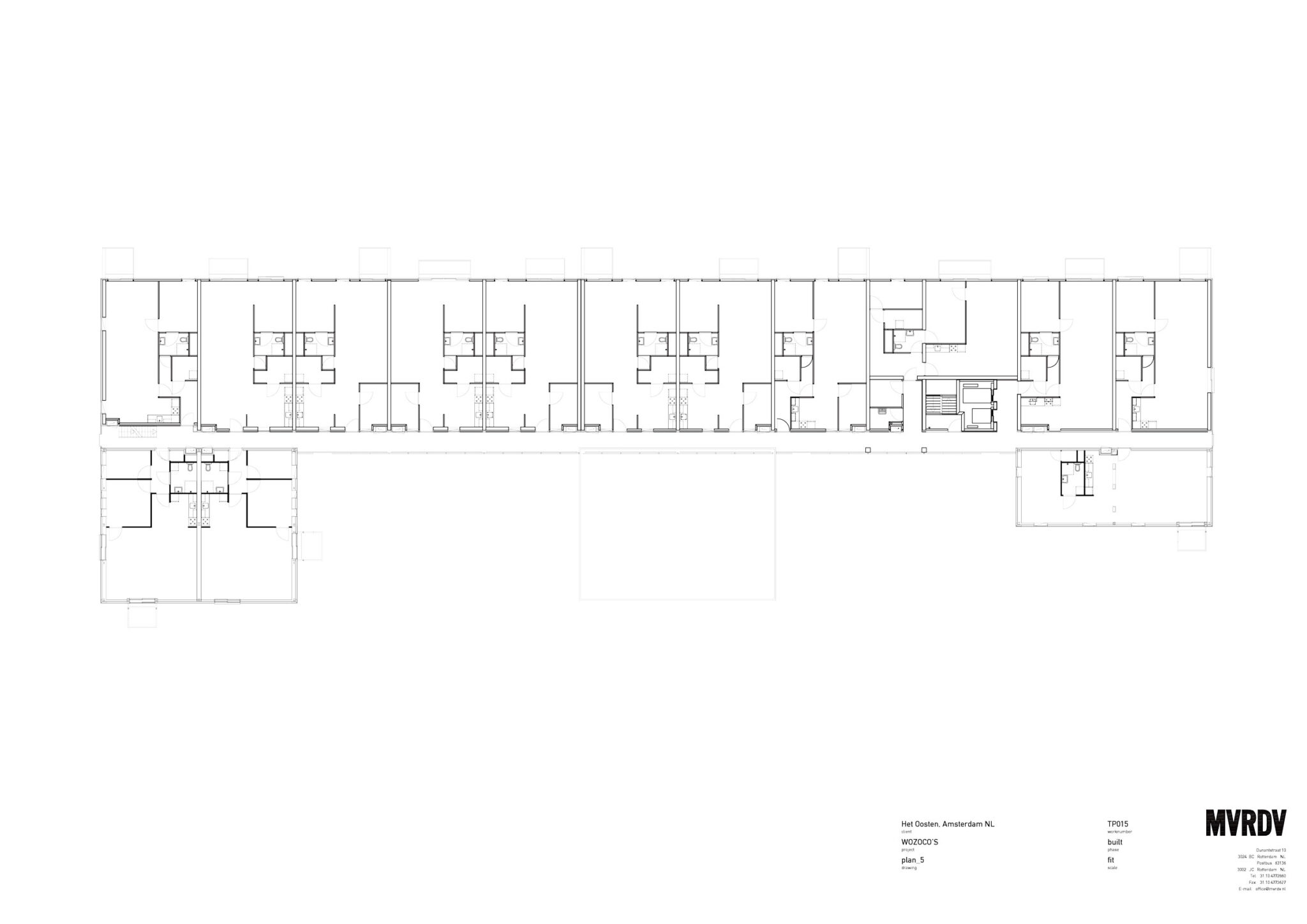
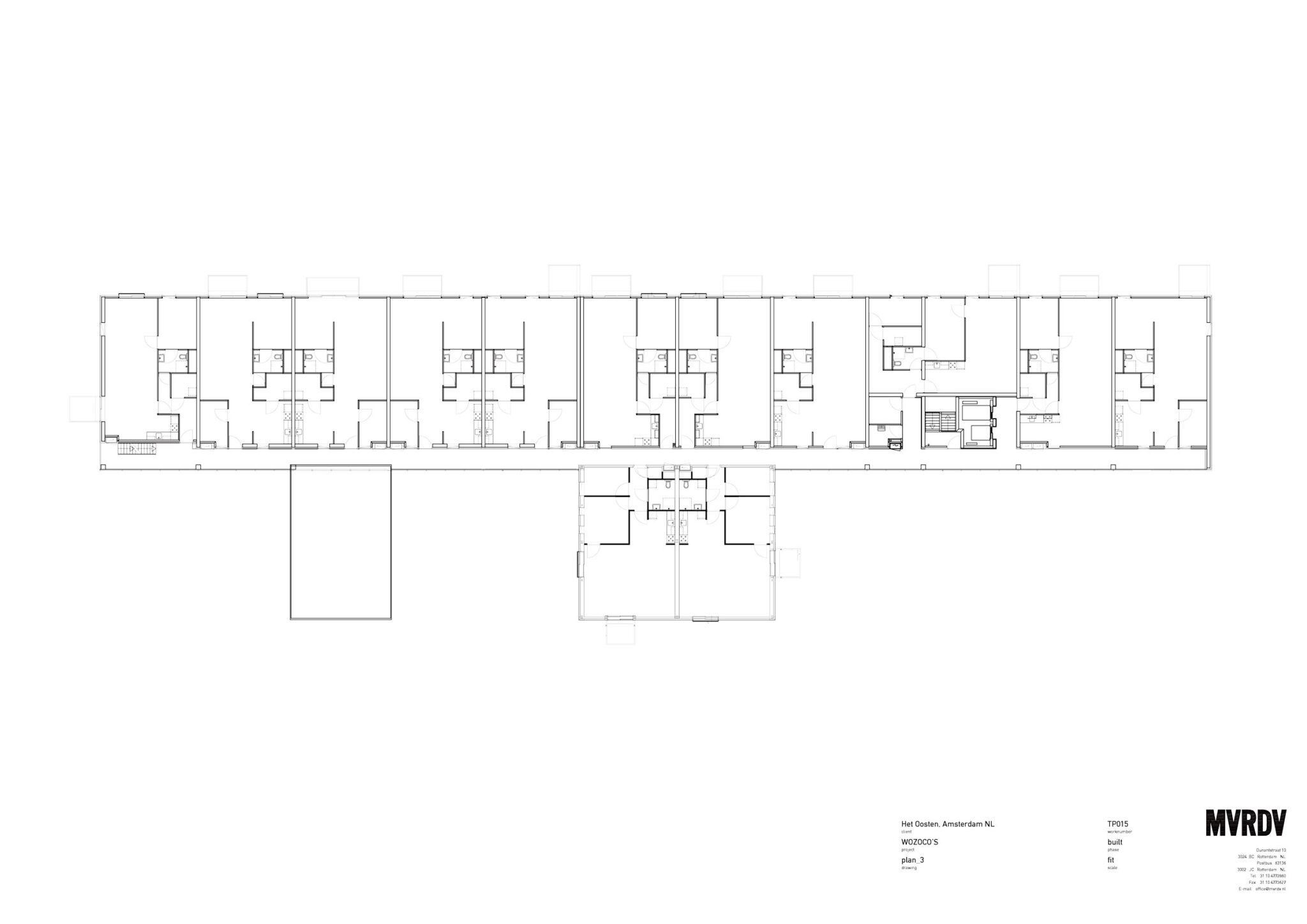
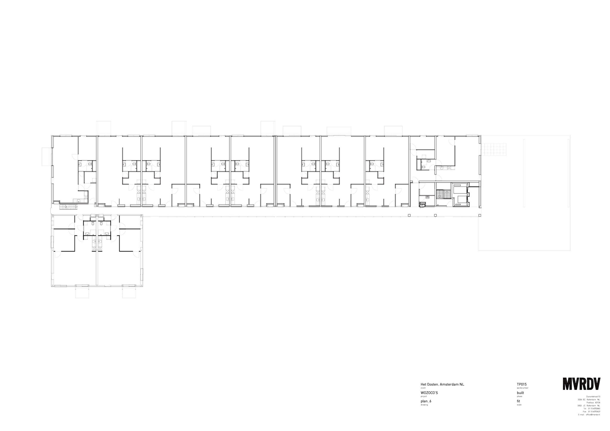
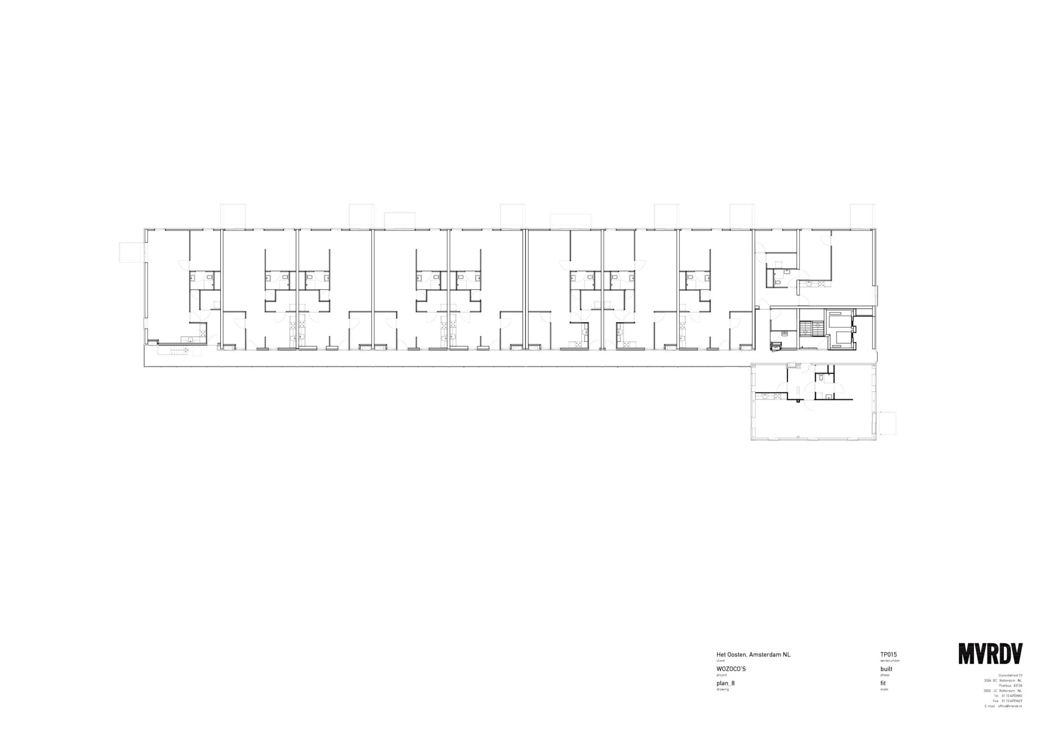
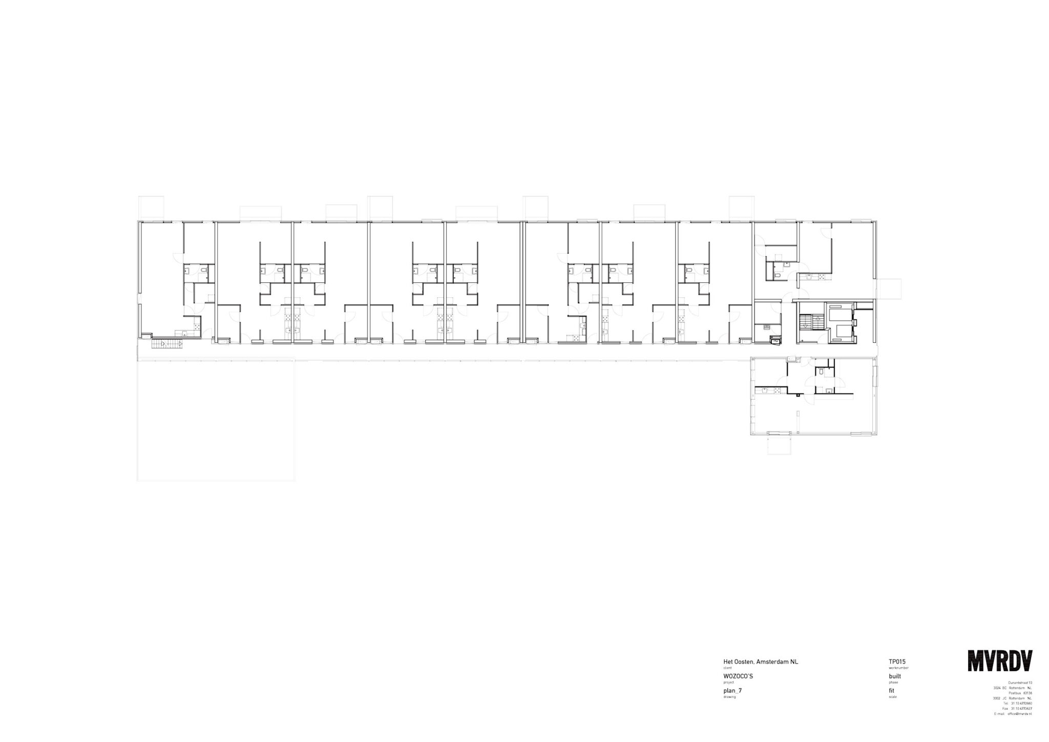
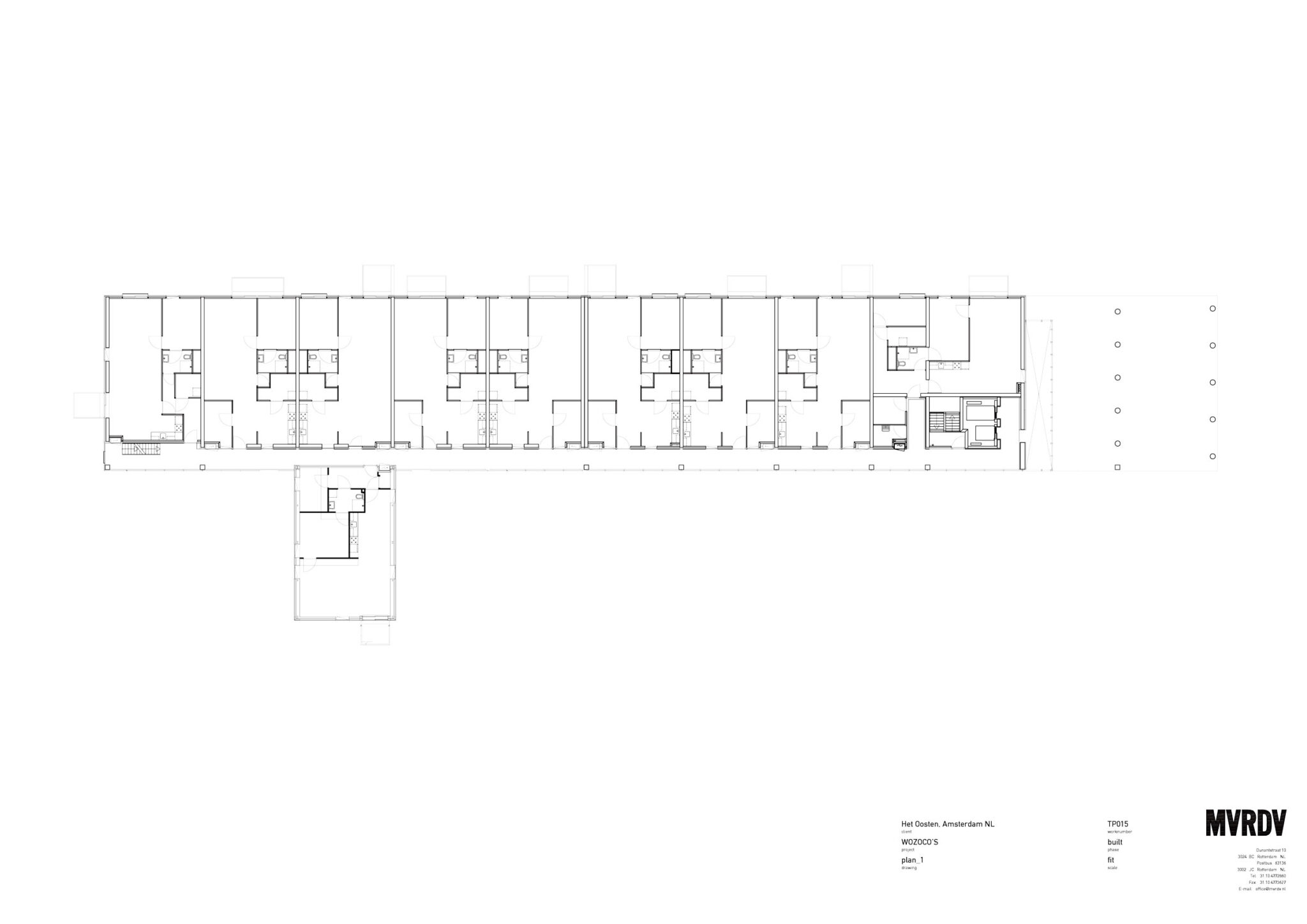
1950年代と1960年代に建設されたアムステルダムの西部ガーデンシティは、密度の大幅な上昇に直面し、それが現在もこれらの地域で最も重要な質である開放的な緑地を脅かし続けています。この活動の一環として、高齢者向け施設の帯の終点を示すために、55歳以上の人々向けの100戸のアパートメントの案が出されました。
部屋に十分な日光が差し込むようにするため、100戸のうち87戸しかそのブロック内に収容することができませんでした。残りの13戸はどこに配置できるのでしょうか? もしそれらが敷地内の別の場所に配置されていたら、オープンスペースはさらに減少していたでしょう。残りの13戸を北側ファサードから「片持ち梁式」に張り出すことで、それらは文字通り空中に浮かぶ形になっています。東西方向の吊り下げ式の住戸群が、隣接するポルダーを見渡す眺望とともに、ブロック内の南北方向の住戸群を補完しています。追加の住戸を北側ファサードに吊り下げることで、地面部分は可能な限り開放的で緑豊かな状態に保たれています。ガーデンシティにおいて、プロトタイプ的な密度の増加が実現されました。
以下の写真はクリックで拡大します
























以下、建築家によるテキストです。
The Western Garden Cities of Amsterdam built in the 1950s and 1960s, were confronted with big increases in density that continue to threaten their open green spaces, the most important quality of these areas. As part of this operation, a block of 100 apartments for people over 55 years was proposed to mark the end of a facility strip for the elderly.
To still provide an adequate degree of sunlight penetrate the rooms, only 87 of the 100 units could be accommodated within the block. Where could the remaining 13 dwellings be positioned? If they were put elsewhere on the site, the open space would have been further reduced. By ‘cantilevering’ the remaining 13 units from the north facade, they are literally suspended in the air. The hanging East-West orientated types complete the North-South dwellings in the block with a view over the adjacent polder. By hanging the extra units on the north facade, the ground plane is kept as open and green as possible. A prototypic increase in density for the garden cities was achieved.
■建築概要
Architect: MVRDV
Principal in charge: Jacob van Rijs, Winy Maas, Nathalie de Vries
Design team: Willem Timmer, Arjan Mulder, Frans de Witte
Copyright: MVRDV Winy Maas, Jacob van Rijs, Nathalie de Vries
───
Partners
Contractor: Intervam (Amsterdam, NL)
Structure: Pieters Bouwtechniek (Haarlem, NL)
Building Physics: DGMR (Arnhem, NL)
Building Advisors: Bureau Bouwkunde (Rotterdam, NL)






