architecturephoto®

  • 特集記事
  • 注目情報
  • タグ
  • 建築
  • アート
  • カルチャー
  • デザイン
  • ファッション
  • 動画
  • 展覧会
  • コンペ
  • 書籍
  • 建築求人
  • すべてのタグ

建築求人情報

Loading...
2025.12.03Wed
2025.12.02Tue
2025.12.04Thu
HUNEによる、東京・品川区の住宅「大森の幕屋」。神の住まいでもあったテント式の小屋“幕屋”を参照した計画。其々が趣味を楽しめる住まいを求め、様々な用途のフロアを“離散的”に積層させる構成を考案。全体を“布の様な屋根”で覆って内外の距離も適切に保つ
photo©高野ユリカ

SHARE HUNEによる、東京・品川区の住宅「大森の幕屋」。神の住まいでもあったテント式の小屋“幕屋”を参照した計画。其々が趣味を楽しめる住まいを求め、様々な用途のフロアを“離散的”に積層させる構成を考案。全体を“布の様な屋根”で覆って内外の距離も適切に保つ

architecture|feature
Graph StudioHUNEスタジオノラ明昇進開発建材(外装・壁)建材(外装・屋根)建材(外装・建具)建材(内装・床)建材(内装・壁)建材(内装・天井)建材(外構・床)住宅高野ユリカ図面あり品川区東京
HUNEによる、東京・品川区の住宅「大森の幕屋」。神の住まいでもあったテント式の小屋“幕屋”を参照した計画。其々が趣味を楽しめる住まいを求め、様々な用途のフロアを“離散的”に積層させる構成を考案。全体を“布の様な屋根”で覆って内外の距離も適切に保つ外観、南西側の道路より見る。 photo©高野ユリカ
HUNEによる、東京・品川区の住宅「大森の幕屋」。神の住まいでもあったテント式の小屋“幕屋”を参照した計画。其々が趣味を楽しめる住まいを求め、様々な用途のフロアを“離散的”に積層させる構成を考案。全体を“布の様な屋根”で覆って内外の距離も適切に保つ1階、「くつろぐ」から階段越しに「たべる」を見る。 photo©高野ユリカ
HUNEによる、東京・品川区の住宅「大森の幕屋」。神の住まいでもあったテント式の小屋“幕屋”を参照した計画。其々が趣味を楽しめる住まいを求め、様々な用途のフロアを“離散的”に積層させる構成を考案。全体を“布の様な屋根”で覆って内外の距離も適切に保つ2階、「たべる」から「つくる」を見る。 photo©高野ユリカ

伊波航+玉木浩太+ジュリア・リ・カ・イー+林盛 / HUNEが設計した、東京・品川区の住宅「大森の幕屋」です。
神の住まいでもあったテント式の小屋“幕屋”を参照した計画です。建築家は、其々が趣味を楽しめる住まいを求め、様々な用途のフロアを“離散的”に積層させる構成を考案しました。そして、全体を“布の様な屋根”で覆って内外の距離も適切に保っています。

幕屋とは、幕を張って布を押し上げて空間を作った簡易なテント式の小屋である。
古くから住居として建てられてきたと同時に、神が住まいとして、人と出会う場所として作られ、人間の身体そのものとしてもとらえられてきた。
力の抜けた布がだらりと降りて場所ができるように、人間の活動と自然の力学のバランスによってつくられる仮設の幕屋の空間を、住まうための「家」として建築した。

建築家によるテキストより

「大森の幕屋」は両親2人、子供2人の4人家族のための小さな2階建ての木造住宅である。
家族がそれぞれの趣味を持っており、お互い干渉し過ぎることなく、それぞれの時間を楽しめる住宅を望んだ。

建築家によるテキストより

敷地はJRの線路に面した狭い道路から小道を入ったところにある。
線路側から徐々に上る前面道路の勾配に合わせて、寝室を半層ずらしながらL字に配置した。
寝室の上に、くつろぐための低い場所、家族が集まって食事をする食堂、趣味のための作業スペースを階段に沿って離散的に積層させ、狭さを感じさせない広がりのある空間構成とした。

その上に、ゆったりと白い布をかぶせるように、屋根を架けている。
中央の柱で屋根をぐっと押し上げて棟を作り、そこから曲面を含む4枚の屋根を四周に向かって降ろすことで、屋根と床の距離感が常に変化する構成としている。
曲面の屋根は15mmの杉板を曲げて3枚重ねた薄板曲版構造としており、内部に光を拡散させるために白い塗装仕上げとした。

建築家によるテキストより

以下の写真はクリックで拡大します

HUNEによる、東京・品川区の住宅「大森の幕屋」。神の住まいでもあったテント式の小屋“幕屋”を参照した計画。其々が趣味を楽しめる住まいを求め、様々な用途のフロアを“離散的”に積層させる構成を考案。全体を“布の様な屋根”で覆って内外の距離も適切に保つ外観、南西側の道路より見る。 photo©高野ユリカ
HUNEによる、東京・品川区の住宅「大森の幕屋」。神の住まいでもあったテント式の小屋“幕屋”を参照した計画。其々が趣味を楽しめる住まいを求め、様々な用途のフロアを“離散的”に積層させる構成を考案。全体を“布の様な屋根”で覆って内外の距離も適切に保つ外観、南西側の道路より見る。 photo©高野ユリカ
HUNEによる、東京・品川区の住宅「大森の幕屋」。神の住まいでもあったテント式の小屋“幕屋”を参照した計画。其々が趣味を楽しめる住まいを求め、様々な用途のフロアを“離散的”に積層させる構成を考案。全体を“布の様な屋根”で覆って内外の距離も適切に保つ外観、屋根と壁の詳細 photo©高野ユリカ
HUNEによる、東京・品川区の住宅「大森の幕屋」。神の住まいでもあったテント式の小屋“幕屋”を参照した計画。其々が趣味を楽しめる住まいを求め、様々な用途のフロアを“離散的”に積層させる構成を考案。全体を“布の様な屋根”で覆って内外の距離も適切に保つ1階、「くつろぐ」から階段越しに「たべる」を見る。 photo©高野ユリカ
HUNEによる、東京・品川区の住宅「大森の幕屋」。神の住まいでもあったテント式の小屋“幕屋”を参照した計画。其々が趣味を楽しめる住まいを求め、様々な用途のフロアを“離散的”に積層させる構成を考案。全体を“布の様な屋根”で覆って内外の距離も適切に保つ1階、「くつろぐ」から「たべる」への階段。 photo©高野ユリカ
HUNEによる、東京・品川区の住宅「大森の幕屋」。神の住まいでもあったテント式の小屋“幕屋”を参照した計画。其々が趣味を楽しめる住まいを求め、様々な用途のフロアを“離散的”に積層させる構成を考案。全体を“布の様な屋根”で覆って内外の距離も適切に保つ2階、「たべる」から「つくる」を見る。 photo©高野ユリカ
HUNEによる、東京・品川区の住宅「大森の幕屋」。神の住まいでもあったテント式の小屋“幕屋”を参照した計画。其々が趣味を楽しめる住まいを求め、様々な用途のフロアを“離散的”に積層させる構成を考案。全体を“布の様な屋根”で覆って内外の距離も適切に保つ2階、「たべる」から1階の「くつろぐ」を見下ろす。 photo©高野ユリカ
HUNEによる、東京・品川区の住宅「大森の幕屋」。神の住まいでもあったテント式の小屋“幕屋”を参照した計画。其々が趣味を楽しめる住まいを求め、様々な用途のフロアを“離散的”に積層させる構成を考案。全体を“布の様な屋根”で覆って内外の距離も適切に保つ2階、「つくる」から1階の「くつろぐ」の壁面を見る。 photo©高野ユリカ
HUNEによる、東京・品川区の住宅「大森の幕屋」。神の住まいでもあったテント式の小屋“幕屋”を参照した計画。其々が趣味を楽しめる住まいを求め、様々な用途のフロアを“離散的”に積層させる構成を考案。全体を“布の様な屋根”で覆って内外の距離も適切に保つ2階、「つくる」から1階の「くつろぐ」側を見る。 photo©高野ユリカ
HUNEによる、東京・品川区の住宅「大森の幕屋」。神の住まいでもあったテント式の小屋“幕屋”を参照した計画。其々が趣味を楽しめる住まいを求め、様々な用途のフロアを“離散的”に積層させる構成を考案。全体を“布の様な屋根”で覆って内外の距離も適切に保つ2階、より上のフロアから「つくる」と「たべる」を見下ろす。 photo©高野ユリカ
HUNEによる、東京・品川区の住宅「大森の幕屋」。神の住まいでもあったテント式の小屋“幕屋”を参照した計画。其々が趣味を楽しめる住まいを求め、様々な用途のフロアを“離散的”に積層させる構成を考案。全体を“布の様な屋根”で覆って内外の距離も適切に保つ1階、個室「おとな」 photo©高野ユリカ
HUNEによる、東京・品川区の住宅「大森の幕屋」。神の住まいでもあったテント式の小屋“幕屋”を参照した計画。其々が趣味を楽しめる住まいを求め、様々な用途のフロアを“離散的”に積層させる構成を考案。全体を“布の様な屋根”で覆って内外の距離も適切に保つ1階、柱と天井 photo©高野ユリカ
HUNEによる、東京・品川区の住宅「大森の幕屋」。神の住まいでもあったテント式の小屋“幕屋”を参照した計画。其々が趣味を楽しめる住まいを求め、様々な用途のフロアを“離散的”に積層させる構成を考案。全体を“布の様な屋根”で覆って内外の距離も適切に保つ1階、カーテンと開口部 photo©高野ユリカ
HUNEによる、東京・品川区の住宅「大森の幕屋」。神の住まいでもあったテント式の小屋“幕屋”を参照した計画。其々が趣味を楽しめる住まいを求め、様々な用途のフロアを“離散的”に積層させる構成を考案。全体を“布の様な屋根”で覆って内外の距離も適切に保つ1階、カーテンと差し込む光 photo©高野ユリカ
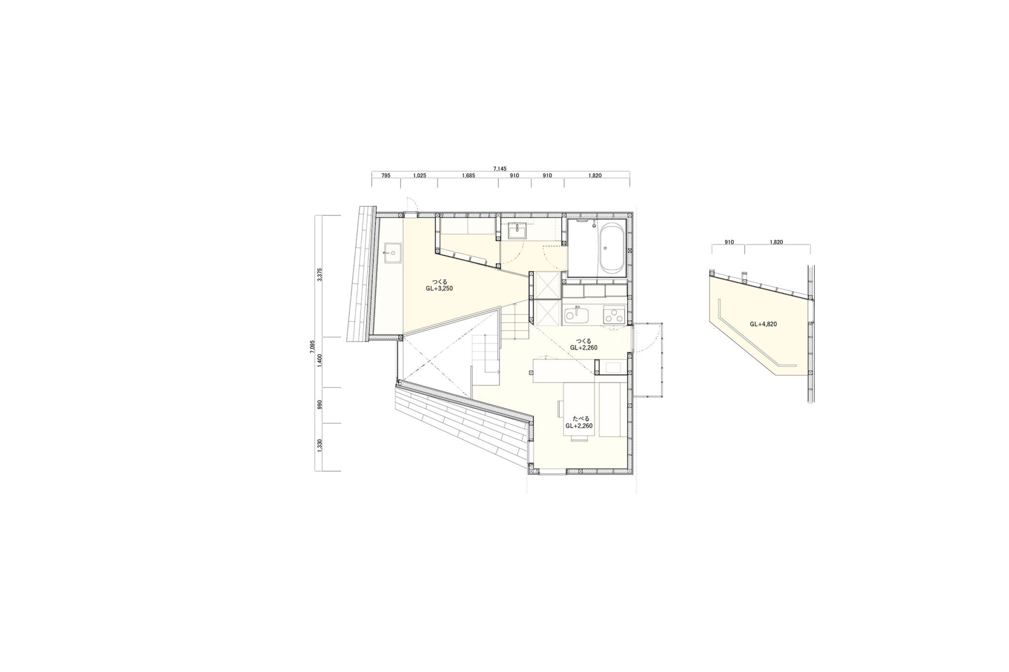
HUNEによる、東京・品川区の住宅「大森の幕屋」。神の住まいでもあったテント式の小屋“幕屋”を参照した計画。其々が趣味を楽しめる住まいを求め、様々な用途のフロアを“離散的”に積層させる構成を考案。全体を“布の様な屋根”で覆って内外の距離も適切に保つ1階平面図 image©HUNE
HUNEによる、東京・品川区の住宅「大森の幕屋」。神の住まいでもあったテント式の小屋“幕屋”を参照した計画。其々が趣味を楽しめる住まいを求め、様々な用途のフロアを“離散的”に積層させる構成を考案。全体を“布の様な屋根”で覆って内外の距離も適切に保つ2階平面図 image©HUNE
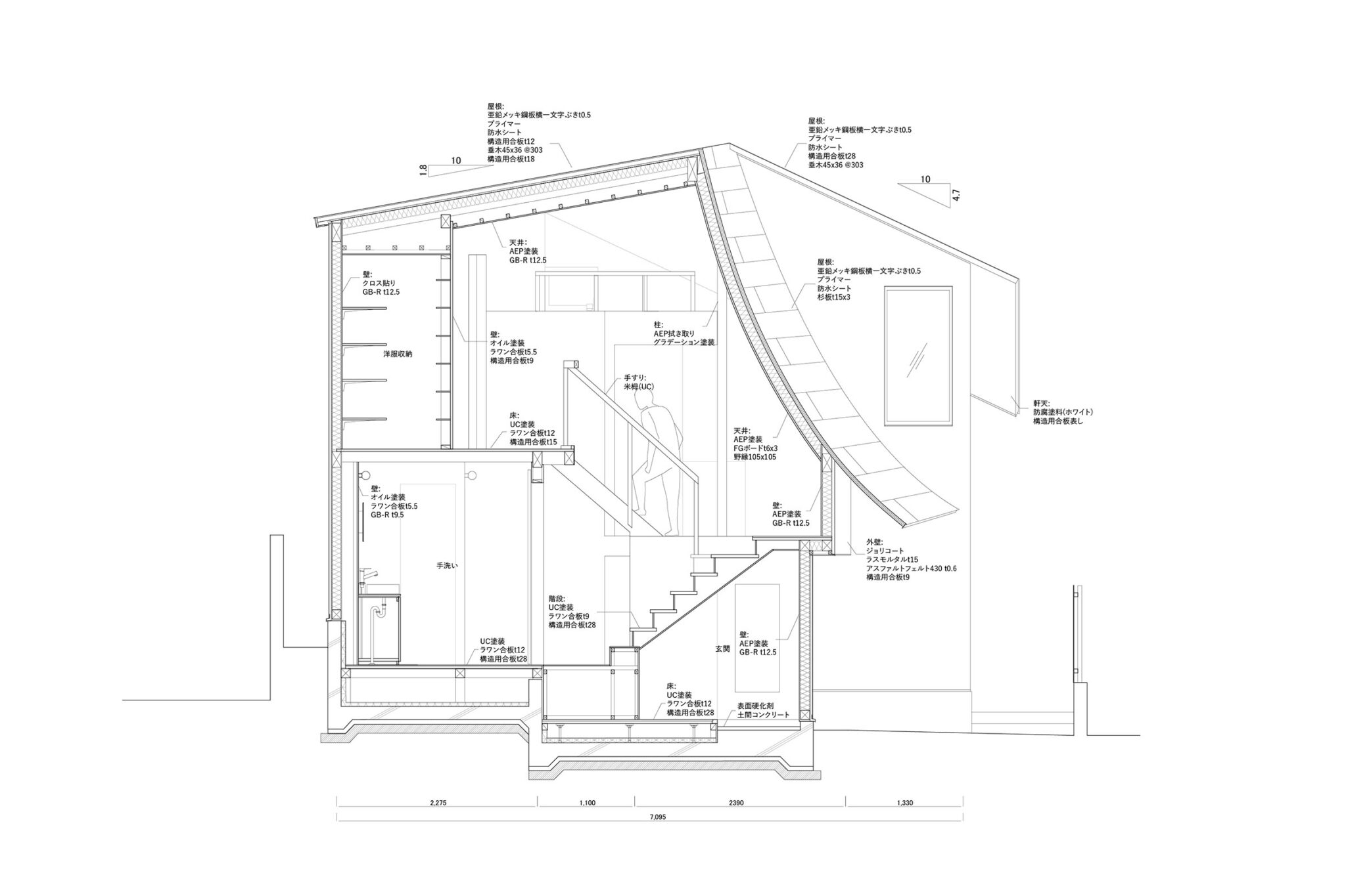
HUNEによる、東京・品川区の住宅「大森の幕屋」。神の住まいでもあったテント式の小屋“幕屋”を参照した計画。其々が趣味を楽しめる住まいを求め、様々な用途のフロアを“離散的”に積層させる構成を考案。全体を“布の様な屋根”で覆って内外の距離も適切に保つ断面図 image©HUNE
HUNEによる、東京・品川区の住宅「大森の幕屋」。神の住まいでもあったテント式の小屋“幕屋”を参照した計画。其々が趣味を楽しめる住まいを求め、様々な用途のフロアを“離散的”に積層させる構成を考案。全体を“布の様な屋根”で覆って内外の距離も適切に保つ施工中の様子 photo©HUNE
HUNEによる、東京・品川区の住宅「大森の幕屋」。神の住まいでもあったテント式の小屋“幕屋”を参照した計画。其々が趣味を楽しめる住まいを求め、様々な用途のフロアを“離散的”に積層させる構成を考案。全体を“布の様な屋根”で覆って内外の距離も適切に保つ施工中の様子 photo©HUNE
HUNEによる、東京・品川区の住宅「大森の幕屋」。神の住まいでもあったテント式の小屋“幕屋”を参照した計画。其々が趣味を楽しめる住まいを求め、様々な用途のフロアを“離散的”に積層させる構成を考案。全体を“布の様な屋根”で覆って内外の距離も適切に保つ施工中の様子 photo©HUNE
HUNEによる、東京・品川区の住宅「大森の幕屋」。神の住まいでもあったテント式の小屋“幕屋”を参照した計画。其々が趣味を楽しめる住まいを求め、様々な用途のフロアを“離散的”に積層させる構成を考案。全体を“布の様な屋根”で覆って内外の距離も適切に保つ施工中の様子 photo©HUNE
HUNEによる、東京・品川区の住宅「大森の幕屋」。神の住まいでもあったテント式の小屋“幕屋”を参照した計画。其々が趣味を楽しめる住まいを求め、様々な用途のフロアを“離散的”に積層させる構成を考案。全体を“布の様な屋根”で覆って内外の距離も適切に保つ施工中の様子 photo©HUNE
HUNEによる、東京・品川区の住宅「大森の幕屋」。神の住まいでもあったテント式の小屋“幕屋”を参照した計画。其々が趣味を楽しめる住まいを求め、様々な用途のフロアを“離散的”に積層させる構成を考案。全体を“布の様な屋根”で覆って内外の距離も適切に保つ施工中の様子 photo©HUNE

以下、建築家によるテキストです。


建築としての幕屋

幕屋とは、幕を張って布を押し上げて空間を作った簡易なテント式の小屋である。
古くから住居として建てられてきたと同時に、神が住まいとして、人と出会う場所として作られ、人間の身体そのものとしてもとらえられてきた。
力の抜けた布がだらりと降りて場所ができるように、人間の活動と自然の力学のバランスによってつくられる仮設の幕屋の空間を、住まうための「家」として建築した。

「大森の幕屋」は両親2人、子供2人の4人家族のための小さな2階建ての木造住宅である。
家族がそれぞれの趣味を持っており、お互い干渉し過ぎることなく、それぞれの時間を楽しめる住宅を望んだ。

敷地はJRの線路に面した狭い道路から小道を入ったところにある。
線路側から徐々に上る前面道路の勾配に合わせて、寝室を半層ずらしながらL字に配置した。
寝室の上に、くつろぐための低い場所、家族が集まって食事をする食堂、趣味のための作業スペースを階段に沿って離散的に積層させ、狭さを感じさせない広がりのある空間構成とした。

その上に、ゆったりと白い布をかぶせるように、屋根を架けている。
中央の柱で屋根をぐっと押し上げて棟を作り、そこから曲面を含む4枚の屋根を四周に向かって降ろすことで、屋根と床の距離感が常に変化する構成としている。
曲面の屋根は15mmの杉板を曲げて3枚重ねた薄板曲版構造としており、内部に光を拡散させるために白い塗装仕上げとした。

玄関から階段を登っていくと、徐々に空間が目の前に現れ、屋根との距離と人の動きによって外との距離感が変わることが認識される住宅となった。
切り取られた屋根の隙間に開けた窓から光が入り込んで曲面の屋根を横から照らし、時刻ごとに変化していく光の色を空間全体に拡散させている。設計を通じて布の下にできた空間に家族それぞれが自分にとっての居場所を見つけて、それぞれが思い思いに過ごすような生活を想像した。

柔らかな屋根によって室内外の距離を適切に保つことで、線路の騒音や外界の喧騒から優しく守られた家族のための場所ができたように思う。
(伊波航、玉木浩太、Julia Li、林盛 / HUNE)


薄板積層木造曲面屋根の設計・製作・性能確認

テントのような薄い曲面屋根というイメージを木造で実現するにあたり、曲げた薄板を積層して厚さ40~50mm程度の曲面をつくることを提案した。

施工者との協議やモックアップ製作を通じて、幅300mm、厚さ15mmの杉板を3枚重ねとする案に決定し、屋根の曲率に合わせて曲げた単板を、目地をずらして重ねた上で、ビスと接着剤で一体化することで45mm厚の曲面集成板としている。

工場および現場にてMEMS加速度センサを用いて面外振動を計測したところ、15mm厚の単板と比較して45mm厚の曲面集成板の固有振動数は約2.5倍高くなっており、概ね40mm厚の単板と同等の面外曲げ剛性が発揮されていることが確認できた。
(Graph Studio 福島佳浩)

■建築概要

建物名称:大森の幕屋
所在地:東京都品川区大井
主要用途:専用住宅
家族構成:夫婦+子ども2人
設計:合同会社HUNE一級建築士事務所 担当/伊波航、玉木浩太、Julia Li、林盛
施工:(株)明昇進開発 
構造設計:Graph Studio 担当/福島佳浩
環境設計:スタジオノラ 担当/谷口景一朗 
テキスタイルデザイン:庄司はるか
プレカット:(株)ひらい 担当/岩本卓也
木工事:(有)カーペンタースタッフ、(株)明昇進開発
左官:さかん清水
塗装:(有)本橋塗装店 担当/芹澤宏樹
外構:中村工業
板金:(株)ダイムワカイ
電気:沖眞電設
設備:フジ設備
鋼製サッシ:三和ファサードラボ株式会社
主体構造・構法:木造軸組
基礎:ベタ基礎
階数:地下0階、地上2階 
軒高:6,323mm
最高高さ:6,744mm
敷地面積:83.70㎡
建築面積:40.62㎡(建蔽率45%、許容60%)
延床面積:77.85㎡(容積率93%、許容150%)1階:40.52㎡、2階:37.33㎡
設計期間:2023年2月〜2024年8月
工事期間:2024年9月〜2025年4月

建材情報
種別使用箇所商品名(メーカー名)
外装・屋根屋根

亜鉛メッキ鋼板 パーフェクトルーフ(ダイムワカイ)

外装・壁外壁

ジョリコート 弾性リシン(AICA)

外装・建具開口部

アルミサッシ(YKKAP)、鋼製サッシ(三和ファサード・ラボ)

外構・床外構

土間コンクリート、石灰砕石

内装・床座敷、食堂 床

ラワン合板UC塗装

内装・壁座敷、食堂 壁

ラワン合板オイル塗装、石膏ボードAEP塗装

内装・天井座敷、食堂 天井

石膏ボードAEP塗装

内装・床寝室 床

ラワン合板UC塗装

内装・壁寝室 壁

SP9740(サンゲツ)

内装・天井寝室 天井

躯体表し

※企業様による建材情報についてのご意見や「PR」のご相談はこちらから
※この情報は弊サイトや設計者が建材の性能等を保証するものではありません

あわせて読みたい

サムネイル:西澤俊理 / NISHIZAWAARCHITECTSによる、ベトナムの多世帯住宅「チャウドックの家」
西澤俊理 / NISHIZAWAARCHITECTSによる、ベトナムの多世帯住宅「チャウドックの家」
  • SHARE
Graph StudioHUNEスタジオノラ明昇進開発建材(外装・壁)建材(外装・屋根)建材(外装・建具)建材(内装・床)建材(内装・壁)建材(内装・天井)建材(外構・床)住宅高野ユリカ図面あり品川区東京
2025.12.03 Wed 06:42
0
permalink

#スタジオノラの関連記事

  • 2024.12.19Thu
    谷口景一朗 / スタジオノラによる、大阪市の「東住吉の古民家改修」。築百年超の家屋を改修した三世代の為の住居。未来に繋がる“建物の長寿命化”を目指し、根本的な耐震断熱性能の向上に加えて既存の機能や素材を尊重する計画を考案。空間が持つ“重層的な時間の重み”の継承も意識
  • 2024.5.17Fri
    VUILDによる、香川の「小豆島 The GATE LOUNGE」。オリーヴを用いた商品の購入や体験ができる施設。木造建築の“新しい建造の在り方”の提案として、島内の木材を資源として活かす仕組みから構築。デジファブ技術を用いて熟練大工に頼らない施工体制も追求
  • 2023.4.18Tue
    遠野未来建築事務所による、長野市の「OYAKI FARM BY IROHADO」。遺跡のある街に建つ郷土料理の工場と店舗。数万年の時間軸の中で“自然と一体となる生命力のある”建築を求め、地域素材と伝統技術を“編み上げる”作り方を実践。設計と施工の協同も主題とし完成までの過程を重視
  • view all
view all

#Graph Studioの関連記事

  • 2024.12.19Thu
    谷口景一朗 / スタジオノラによる、大阪市の「東住吉の古民家改修」。築百年超の家屋を改修した三世代の為の住居。未来に繋がる“建物の長寿命化”を目指し、根本的な耐震断熱性能の向上に加えて既存の機能や素材を尊重する計画を考案。空間が持つ“重層的な時間の重み”の継承も意識
  • 2023.9.13Wed
    遠藤隆洋建築設計事務所による、長野の別荘「軽井沢の居場所」。4家族14人が集まる別荘の建替。今までの“林での活動”と“合宿の様な過ごし方”に着目して、林との接点を最大化する“約30mの細長い”建築を考案。広縁と濡れ縁を設けて滞在中の“溢れる活動”も受け止める
  • 2023.7.10Mon
    前田建設工業とツバメアーキテクツによる、茨城・取手市の「ICI STUDIO 甚吉邸」と「ICI STUDIO W-ANNEX」。歴史的洋館の移築復原と別館新築。復元では価値の維持と継承を目指し、“伝統”と“最新”の技術を併用し実践。別館では二棟が補完し合う関係を目指し、洋館と対比的な“がらんどう”で“透明性”のある空間を構築
  • 2023.5.26Fri
    九州大学岩元真明研究室と関西学院大学荒木美香研究室による、福岡市の「オーゼティック・パビリオン」。金属板を加工して制作されたパーゴラ。平面に切込を周期的に入れる“幾何学的パターン”を応用し、最小限の材料で多孔質の自由曲面を作る方法を開発。レーザー加工と人力で制作でき特殊な型枠や治具は不要
  • 2023.3.07Tue
    伊藤維建築設計事務所による、東京・豊島区の「池袋のまちなかリビング」。官民連携の実証実験の為の仮設家具。“まちを使いこなす想像”の端緒を目指し、地域の廃材等を転用して敷地の文脈と呼応する形態と構成を考案。人と植物に等価に使われる様な風景を思い描き設計
  • 2022.8.01Mon
    東京大学今井公太郎研究室による、移動式シェルター「PENTA-HARD」。3Dプリントのアルミ製仕口を用いた建築。安価・軽量・自由を目標とし、専門性と情報量が集中する“仕口”を個別の形が作れる3Dプリントに置換して特殊技術から解放。その他部材は標準化し互換性と簡易性も実現
  • 2022.6.24Fri
    笠井太雅+鄭愛香 / KACHによる、群馬の住宅「House in Yanakacho」。新興住宅地の一角に計画。穏やかに賑わう周辺環境と家との関係を模索して、遮蔽と連続を両立し家の輪郭となる“宙に浮く囲い”を考案。混ざり合う境界によって生き生きとした建築をつくる
  • 2022.1.05Wed
    田村直己 / ttt architectsによる、東京の、築約50年民家をテナントとした「清澄白河の改修」。構造や性能が不束な既存建物を、大きな意匠方針を立てず“機能性” “コスト” “施工性” “商業性”の小さな判断の集積で改修し、限られた条件下でこそ生まれる空間の良さを追求
  • 2020.9.25Fri
    藤木俊大+佐屋香織+佐治卓 / ピークスタジオによる、福岡の住宅「飯塚の平屋」
  • view all
view all

建築求人情報

Loading...

 

    公式アカウントをフォローして、見逃せない建築情報を受け取ろう。

    61,931
    • Follow
    87,166
    • Follow
    • Follow
    • Add Friends
    • Subscribe
    • 情報募集/建築・デザイン・アートの情報を随時募集しています。
      More
    • メールマガジン/ メールマガジンで最新の情報を配信しています。
      More

    この日更新したその他の記事

    岩手の「新花巻図書館」設計プロポで、昭和設計・tデ・山田紗子建築設計事務所 JVが最優秀者に選定。提案書とプレゼン動画も公開。二次審査には、C+A・木村設計A・T JV、キッタン・スタジオ・ウエスト JV、マル・アーキテクチャ、FULL POWER STUDIO、西澤・畝森 JVが名を連ねる

    SHARE 岩手の「新花巻図書館」設計プロポで、昭和設計・tデ・山田紗子建築設計事務所 JVが最優秀者に選定。提案書とプレゼン動画も公開。二次審査には、C+A・木村設計A・T JV、キッタン・スタジオ・ウエスト JV、マル・アーキテクチャ、FULL POWER STUDIO、西澤・畝森 JVが名を連ねる

    architecture|competition
    tデ図書館山田紗子岩手昭和設計
    岩手の「新花巻図書館」設計プロポで、昭和設計・tデ・山田紗子建築設計事務所 JVが最優秀者に選定。提案書とプレゼン動画も公開。二次審査には、C+A・木村設計A・T JV、キッタン・スタジオ・ウエスト JV、マル・アーキテクチャ、FULL POWER STUDIO、西澤・畝森 JVが名を連ねる

    岩手の「新花巻図書館」設計プロポーザルで、昭和設計・tデ・山田紗子建築設計事務所共同企業体が最優秀者に選定されています。
    提案書とプレゼン動画も公開されました。また、二次審査には、C+A・木村設計A・T設計共同企業体、キッタン・スタジオ・ウエスト設計共同企業体、マル・アーキテクチャ、FULL POWER STUDIO、西澤・畝森設計共同企業体が名を連ねていました。
    また、審査委員長は、乾久美子。委員には、小野田泰明と竹内昌義が参画していました。

    新花巻図書館整備基本・実施設計業務委託プロポーザル選定委員会による審査講評並びに第二次審査の提案者ごとに分割した公開プレゼンテーションの動画及び第二次審査で提案者から提出された提案書を以下のとおり公開します。

    city.hanamaki.iwate.jp

    最優秀者
    昭和設計・tデ・山田紗子建築設計事務所共同企業体

    • 提案書(PDF)

    次点者
    西澤・畝森設計共同企業体

    • 提案書(PDF)

    二次審査参加者
    C+A・木村設計A・T設計共同企業体

    • 提案書(PDF)

    キッタン・スタジオ・ウエスト設計共同企業体

    • 提案書(PDF)

    マル・アーキテクチャ

    • 提案書(PDF)

    FULL POWER STUDIO

    • 提案書(PDF)

    審査講評

    • 審査講評(PDF)

    以下に、各者のプレゼンテーションの動画も掲載します。

    • 続きを読む
    • SHARE
    tデ図書館山田紗子岩手昭和設計
    2025.12.03 Wed 16:41
    0
    permalink
    【ap job更新】 様々な規模と用途の建築を手掛け、独立した場合のサポートも行っている「黒川智之建築設計事務所」が、設計スタッフ(経験者・既卒・2026年新卒)と 業務委託を募集中

    ap job 【ap job更新】 様々な規模と用途の建築を手掛け、独立した場合のサポートも行っている「黒川智之建築設計事務所」が、設計スタッフ(経験者・既卒・2026年新卒)と 業務委託を募集中

    architecture|job|promotion
    建築求人情報
    【ap job更新】 様々な規模と用途の建築を手掛け、独立した場合のサポートも行っている「黒川智之建築設計事務所」が、設計スタッフ(経験者・既卒・2026年新卒)と 業務委託を募集中
    【ap job更新】 様々な規模と用途の建築を手掛け、独立した場合のサポートも行っている「黒川智之建築設計事務所」が、設計スタッフ(経験者・既卒・2026年新卒)と 業務委託を募集中国立テラス ©Yasuhiro Nakayama
    アーキテクチャーフォトジョブボードに新しい情報が追加されました
    job.architecturephoto.net

    様々な規模と用途の建築を手掛け、独立した場合のサポートも行っている「黒川智之建築設計事務所」の、設計スタッフ(経験者・既卒・2026年新卒)と 業務委託 募集のお知らせです。詳しくは、ジョブボードの当該ページにてご確認ください。アーキテクチャーフォトジョブボードには、その他にも、色々な事務所の求人情報が掲載されています。
    新規の求人の投稿はこちらからお気軽にお問い合わせください。

    【黒川智之建築設計事務所について】
    黒川智之建築設計事務所は、竹中工務店・Herzog & de Meuron・隈研吾建築都市設計事務所を経て独立した黒川智之が率いる建築設計事務所です。幅広い経験実績を活かし、独立後も住宅から集合住宅・保育園・オフィスビル・ホテルに至るまで、様々な規模・用途のプロジェクトを手掛けています。

    最近では海外プロジェクトや地方活性化への取り組み、また、2018年に有志とともに設立した一般社団法人日瑞建築文化協会(JSAA)の理事としてスイスとの建築文化交流を行うなど、その活動は多岐に渡ります。

    黒川智之建築設計事務所はアルムナイ制を取り入れており、独立を志す方は、事務所を独立した後も外部委託スタッフとして業務提携を行うことが可能です。経営面・技術面でのサポートを受けながら独立をすることができ、また同じように独立した仲間のネットワークもあるため、将来的な不安が少ない中で挑戦をしやすい環境が実現されています。

    もちろん、独立せずに事務所で活躍したいという方も大歓迎です。

    job.architecturephoto.net
    • ap job
    建築求人情報
    2025.12.03 Wed 14:21
    0
    permalink
    【ap Masterpiece】MVRDVによる、オランダ・アムステルダムの集合住宅「WoZoCo」(1997年)
    photo©Rob't Hart

    SHARE 【ap Masterpiece】MVRDVによる、オランダ・アムステルダムの集合住宅「WoZoCo」(1997年)

    architecture|feature
    ap MasterpieceMVRDVアムステルダムオランダ図面あり集合住宅
    【ap Masterpiece】MVRDVによる、オランダ・アムステルダムの集合住宅「WoZoCo」(1997年) photo©Rob't Hart
    【ap Masterpiece】MVRDVによる、オランダ・アムステルダムの集合住宅「WoZoCo」(1997年) photo©Rob't Hart
    【ap Masterpiece】MVRDVによる、オランダ・アムステルダムの集合住宅「WoZoCo」(1997年) photo©Rob't Hart
    【ap Masterpiece】MVRDVによる、オランダ・アムステルダムの集合住宅「WoZoCo」(1997年) photo©Rob't Hart

    「ap Masterpiece」は、世界中に存在する名作と言える建築を、アーキテクチャーフォトのウェブサイト上で紹介するシリーズです

    MVRDVが設計した、オランダ・アムステルダムの集合住宅「WoZoCo」(1997年)です。


    こちらは建築家によるテキストです(翻訳:アーキテクチャーフォト / 原文は末尾に掲載)

    1950年代と1960年代に建設されたアムステルダムの西部ガーデンシティは、密度の大幅な上昇に直面し、それが現在もこれらの地域で最も重要な質である開放的な緑地を脅かし続けています。この活動の一環として、高齢者向け施設の帯の終点を示すために、55歳以上の人々向けの100戸のアパートメントの案が出されました。

    部屋に十分な日光が差し込むようにするため、100戸のうち87戸しかそのブロック内に収容することができませんでした。残りの13戸はどこに配置できるのでしょうか? もしそれらが敷地内の別の場所に配置されていたら、オープンスペースはさらに減少していたでしょう。残りの13戸を北側ファサードから「片持ち梁式」に張り出すことで、それらは文字通り空中に浮かぶ形になっています。東西方向の吊り下げ式の住戸群が、隣接するポルダーを見渡す眺望とともに、ブロック内の南北方向の住戸群を補完しています。追加の住戸を北側ファサードに吊り下げることで、地面部分は可能な限り開放的で緑豊かな状態に保たれています。ガーデンシティにおいて、プロトタイプ的な密度の増加が実現されました。

    • 残り24枚の写真と建築家によるテキスト
    • SHARE
    ap MasterpieceMVRDVアムステルダムオランダ図面あり集合住宅
    2025.12.03 Wed 13:58
    0
    permalink
    学研グループの“Gakken LX”が実施する「建築士定期講習」。オンラインで申込から修了証の取得まで全て完結。24時間いつでも受講が可能

    SHARE 学研グループの“Gakken LX”が実施する「建築士定期講習」。オンラインで申込から修了証の取得まで全て完結。24時間いつでも受講が可能

    architecture|promotion
    学研グループの“Gakken LX”が実施する「建築士定期講習」。オンラインで申込から修了証の取得まで全て完結。24時間いつでも受講が可能
    学研グループの“Gakken LX”が実施する「建築士定期講習」の詳細と申込はこちらから
    kenchiku.gakkenlx.jp

    学研グループの“Gakken LX”が実施する「建築士定期講習」です。
    オンラインで申込から修了証の取得まで全て完結します。24時間いつでも受講が可能です。詳細と申込はこちらのページから【ap・ad】

    Gakken LX 建築士定期講習の概要

    株式会社Gakken LXは、令和7年4月9日に国土交通大臣の登録(登録番号:一級建築士定期講習 第12号、二級建築士定期講習 第11号)を受け、令和7年6月より一級建築士定期講習および二級建築士定期講習(オンライン)を実施しております。尚、Gakken LXでは木造建築士定期講習は実施しておりません。

    受講料
    一級建築士 定期講習:8,500円(税込)
    二級建築士 定期講習:7,980円(税込)

    ※受講料にはデジタルテキスト代、修了証手数料も含まれております。

    ※一級・二級両資格を所持している方へ以下ご注意ください。
    一級・二級両資格を所持している方は、一級建築士定期講習を受講したことで二級建築士定期講習も受講したこととみなされます。ただし、一級建築士定期講習を申込する際に二級建築士の免許を提示する必要があります。(二級建築士の免許証の提示がない場合、二級建築士定期講習を別途受講する必要が生じますのでご注意ください)

    リリーステキストより

    以下に、詳細な情報を掲載します。

    • 残り1枚の写真とテキストを見る
    • SHARE
    2025.12.03 Wed 07:25
    0
    permalink
    2025.12.01Mon
    • 若林拓哉 / ウミネコアーキによる、神奈川の「新横浜食料品センター」。60年代から続く“地域の食の拠点”の“動的保存”計画。各々の商店が個別に認識される状況に着目し、個が並存しつつ群として全体を作る在り方を志向。メガストラクチャーに戸建サイズの量塊が集まる建築を考案
    2025.12.05Fri
    • 【ap job更新】 各地で様々な建築に取り組み、技術に加えて好奇心とコミュニケーション力も評価する「株式会社micelle」が、設計スタッフ(2026年新卒・既卒・経験者)、業務委託、アルバイトを募集中
    • 細尾直久による、京都市の「洛和会京都看護学校」。“不規則で特徴のある輪郭”の敷地。風景との“滑らかで密接な繋がり”を求め、土地の形を“建築を構成する線”として導入。道路側から中庭まで層を作る様に諸機能を配置して“学びの場に必要な静けさ”も生み出す

    Subscribe and Follow

    公式アカウントをフォローして、
    見逃せない建築情報を受け取ろう。

    「建築と社会の関係を視覚化する」メディア、アーキテクチャーフォトの公式アカウントです。
    様々な切り口による複眼的視点で建築に関する情報を最速でお届けします。

    61,931
    • Follow
    87,166
    • Follow
    • Follow
    • Add Friends
    • Subscribe
    • 情報募集/建築・デザイン・アートの情報を随時募集しています。
      More
    • メールマガジン/ メールマガジンで最新の情報を配信しています。
      More

    architecturephoto® News Letter

    メールマガジンでも最新の更新情報を配信中

    • ホーム
    • アーキテクチャーフォトについて
    • アーキテクチャーフォト規約
    • プライバシーポリシー
    • 特定商取引法に関する表記
    • 利用者情報の外部送信について
    • 広告掲載について
    • お問い合わせ/作品投稿

    Copyright © architecturephoto.net.

    • 建築
    • アート
    • カルチャー
    • デザイン
    • ファッション
    • 動画
    • 展覧会
    • コンペ
    • 書籍
    • 建築求人
    • 特集記事
    • 注目情報
    • タグ
    • アーキテクチャーフォト ジョブボード
    • アーキテクチャーフォト・ブック
    • ホーム
    • アーキテクチャーフォトについて
    • アーキテクチャーフォト規約
    • プライバシーポリシー
    • 特定商取引法に関する表記
    • 利用者情報の外部送信について
    • 広告掲載について
    • お問い合わせ/作品投稿

    メールマガジンで最新の情報を配信しています

    この記事をシェア
    タイトルタイトルタイトルタイトルタイトル
    https://architecturephoto.net/permalink

    記事について#architecturephotonetでつぶやいてみましょう。
    有益なコメントは拡散や、サイトでも紹介させていただくこともございます。

    architecturephoto®
    • black
    • gray
    • white

    建築求人情報紹介

    Loading...