渡部光樹+渡部梨華 / Wによる、秋田の「大館の住宅」。地方部の“建ち方”にも向き合った計画。集団規定の影響を殆ど受けない与件に対し、外部空間に対して“自覚的な在り方”の建築を志向。敷地を囲む様に量塊を配置して“性質の異なる二つの中庭”を設ける構成を考案外観、西側の道路より見る。 photo©コンドウダイスケ
渡部光樹+渡部梨華 / Wによる、秋田の「大館の住宅」。地方部の“建ち方”にも向き合った計画。集団規定の影響を殆ど受けない与件に対し、外部空間に対して“自覚的な在り方”の建築を志向。敷地を囲む様に量塊を配置して“性質の異なる二つの中庭”を設ける構成を考案1階、玄関側からダイニングとキッチンを見る。 photo©コンドウダイスケ
渡部光樹+渡部梨華 / Wによる、秋田の「大館の住宅」。地方部の“建ち方”にも向き合った計画。集団規定の影響を殆ど受けない与件に対し、外部空間に対して“自覚的な在り方”の建築を志向。敷地を囲む様に量塊を配置して“性質の異なる二つの中庭”を設ける構成を考案1階、「掘込リビング」から開口部越しに中庭1を見る。 photo©コンドウダイスケ
渡部光樹+渡部梨華 / Wによる、秋田の「大館の住宅」。地方部の“建ち方”にも向き合った計画。集団規定の影響を殆ど受けない与件に対し、外部空間に対して“自覚的な在り方”の建築を志向。敷地を囲む様に量塊を配置して“性質の異なる二つの中庭”を設ける構成を考案中庭1 photo©コンドウダイスケ
渡部光樹+渡部梨華 / Wが設計した、秋田・大館市の「大館の住宅」です。
地方部の“建ち方”にも向き合った計画です。建築家は、集団規定の影響を殆ど受けない与件に対し、外部空間に対して“自覚的な在り方”の建築を志向しました。そして、敷地を囲む様に量塊を配置して“性質の異なる二つの中庭”を設ける構成を考案しました。
秋田県大館市の主要駅、大館駅のほど近く。
かつて鉱山で栄えた街であるが、閉山と共に時が止まったかのように、昭和レトロな廃屋が遺跡のようにぽつぽつと建っている。当敷地の周りにも空き家や空き地が目立ち、ゆったりとした、と言うよりも、散漫な風景が広がっているように感じられた。
このような場所に、どんな建ち方がふさわしいだろうか。
地方部での住宅は都心部の狭小地と違って、斜線制限や採光、建蔽率容積率などといった集団規定の影響をほとんど受けない。そのためその建ち方は比較的自発的なものとなる。言い換えるとそれは、外部空間をどうつくるか、ということでもある。ここでは、外部空間が無自覚な在り方をしていては、たちまちこの寂しい風景の中へ霧散してしまうように思えた。
施主の要望の、プライバシーを守りつつ使える外部空間が欲しいということも踏まえて、敷地をぐるりと取り囲むように建物を配置した中庭形式をとることで、内外に濃密な生活環境を整えたいと考えた。
まず敷地の真ん中に中庭を据える。
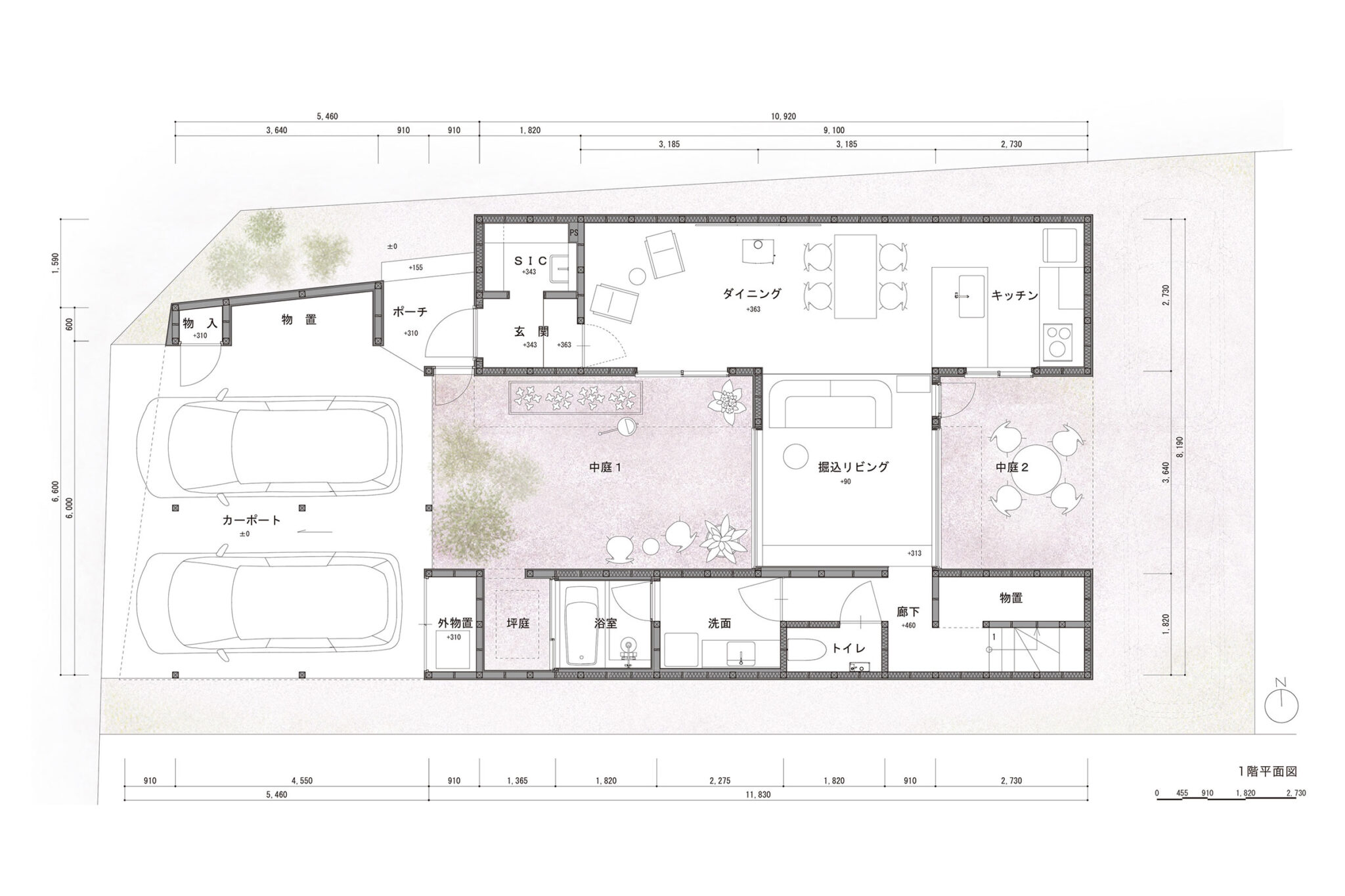
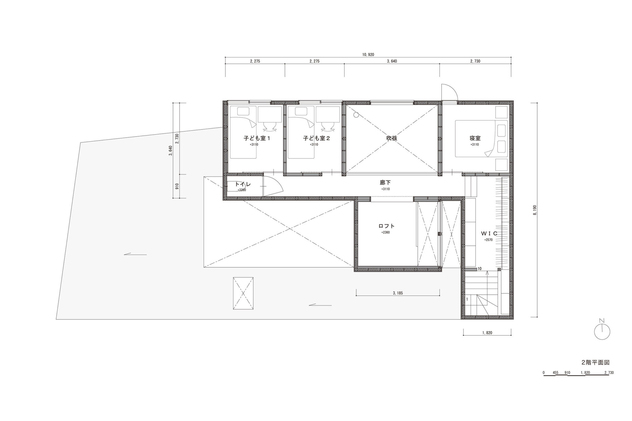
敷地は東西20m、南北10mほどの大きさである。採光を最大限確保するため、居住棟を北側に寄せ2階建とし、南側には水回りを配してコンパクトな平屋建とした。
そして、南北の棟をつなぐブリッジをリビングとした。
リビングは中庭を横断し、分断する。東西にそれぞれ性質の異なる、二つの中庭が生まれた。
一つは、玄関ポーチやカーポートからアクセスできる、割とオープンな中庭。
客人を迎え入れる“閾”の場でもある。少しずつ植物を植えて育てていき、いずれは緑豊かな居場所となる。
もう一つは、屋根(ピロティ)がかかり、半室内的に使えるひっそりとした中庭。
キッチンのそばに設けているので、家族だけで食事したり、お茶してくつろいだりできる。どちらもプライベート性は確保しながら完全には閉じることなく、周囲の環境と緩やかな関わりを持たせている。
以下の写真はクリックで拡大します

渡部光樹+渡部梨華 / Wによる、秋田の「大館の住宅」。地方部の“建ち方”にも向き合った計画。集団規定の影響を殆ど受けない与件に対し、外部空間に対して“自覚的な在り方”の建築を志向。敷地を囲む様に量塊を配置して“性質の異なる二つの中庭”を設ける構成を考案外観、西側の道路より見る。 photo©コンドウダイスケ

渡部光樹+渡部梨華 / Wによる、秋田の「大館の住宅」。地方部の“建ち方”にも向き合った計画。集団規定の影響を殆ど受けない与件に対し、外部空間に対して“自覚的な在り方”の建築を志向。敷地を囲む様に量塊を配置して“性質の異なる二つの中庭”を設ける構成を考案外観、西側の道路より見る。 photo©コンドウダイスケ

渡部光樹+渡部梨華 / Wによる、秋田の「大館の住宅」。地方部の“建ち方”にも向き合った計画。集団規定の影響を殆ど受けない与件に対し、外部空間に対して“自覚的な在り方”の建築を志向。敷地を囲む様に量塊を配置して“性質の異なる二つの中庭”を設ける構成を考案外観、西側の道路より見る。 photo©コンドウダイスケ

渡部光樹+渡部梨華 / Wによる、秋田の「大館の住宅」。地方部の“建ち方”にも向き合った計画。集団規定の影響を殆ど受けない与件に対し、外部空間に対して“自覚的な在り方”の建築を志向。敷地を囲む様に量塊を配置して“性質の異なる二つの中庭”を設ける構成を考案1階、左:玄関、右:シューズインクローゼット photo©コンドウダイスケ

渡部光樹+渡部梨華 / Wによる、秋田の「大館の住宅」。地方部の“建ち方”にも向き合った計画。集団規定の影響を殆ど受けない与件に対し、外部空間に対して“自覚的な在り方”の建築を志向。敷地を囲む様に量塊を配置して“性質の異なる二つの中庭”を設ける構成を考案1階、玄関側からダイニングとキッチンを見る。 photo©コンドウダイスケ

渡部光樹+渡部梨華 / Wによる、秋田の「大館の住宅」。地方部の“建ち方”にも向き合った計画。集団規定の影響を殆ど受けない与件に対し、外部空間に対して“自覚的な在り方”の建築を志向。敷地を囲む様に量塊を配置して“性質の異なる二つの中庭”を設ける構成を考案1階、ダイニング側からキッチンを見る。 photo©コンドウダイスケ

渡部光樹+渡部梨華 / Wによる、秋田の「大館の住宅」。地方部の“建ち方”にも向き合った計画。集団規定の影響を殆ど受けない与件に対し、外部空間に対して“自覚的な在り方”の建築を志向。敷地を囲む様に量塊を配置して“性質の異なる二つの中庭”を設ける構成を考案1階、キッチン photo©コンドウダイスケ

渡部光樹+渡部梨華 / Wによる、秋田の「大館の住宅」。地方部の“建ち方”にも向き合った計画。集団規定の影響を殆ど受けない与件に対し、外部空間に対して“自覚的な在り方”の建築を志向。敷地を囲む様に量塊を配置して“性質の異なる二つの中庭”を設ける構成を考案1階、ダイニングから「掘込リビング」を見る。 photo©コンドウダイスケ

渡部光樹+渡部梨華 / Wによる、秋田の「大館の住宅」。地方部の“建ち方”にも向き合った計画。集団規定の影響を殆ど受けない与件に対し、外部空間に対して“自覚的な在り方”の建築を志向。敷地を囲む様に量塊を配置して“性質の異なる二つの中庭”を設ける構成を考案1階、「掘込リビング」から開口部越しに中庭1を見る。 photo©コンドウダイスケ

渡部光樹+渡部梨華 / Wによる、秋田の「大館の住宅」。地方部の“建ち方”にも向き合った計画。集団規定の影響を殆ど受けない与件に対し、外部空間に対して“自覚的な在り方”の建築を志向。敷地を囲む様に量塊を配置して“性質の異なる二つの中庭”を設ける構成を考案中庭1 photo©コンドウダイスケ

渡部光樹+渡部梨華 / Wによる、秋田の「大館の住宅」。地方部の“建ち方”にも向き合った計画。集団規定の影響を殆ど受けない与件に対し、外部空間に対して“自覚的な在り方”の建築を志向。敷地を囲む様に量塊を配置して“性質の異なる二つの中庭”を設ける構成を考案中庭2より開口部越しに「掘込リビング」を見る。 photo©コンドウダイスケ

渡部光樹+渡部梨華 / Wによる、秋田の「大館の住宅」。地方部の“建ち方”にも向き合った計画。集団規定の影響を殆ど受けない与件に対し、外部空間に対して“自覚的な在り方”の建築を志向。敷地を囲む様に量塊を配置して“性質の異なる二つの中庭”を設ける構成を考案2階、廊下からトイレ側を見る。 photo©コンドウダイスケ

渡部光樹+渡部梨華 / Wによる、秋田の「大館の住宅」。地方部の“建ち方”にも向き合った計画。集団規定の影響を殆ど受けない与件に対し、外部空間に対して“自覚的な在り方”の建築を志向。敷地を囲む様に量塊を配置して“性質の異なる二つの中庭”を設ける構成を考案2階、寝室 photo©コンドウダイスケ

渡部光樹+渡部梨華 / Wによる、秋田の「大館の住宅」。地方部の“建ち方”にも向き合った計画。集団規定の影響を殆ど受けない与件に対し、外部空間に対して“自覚的な在り方”の建築を志向。敷地を囲む様に量塊を配置して“性質の異なる二つの中庭”を設ける構成を考案2階、子ども室1 photo©コンドウダイスケ

渡部光樹+渡部梨華 / Wによる、秋田の「大館の住宅」。地方部の“建ち方”にも向き合った計画。集団規定の影響を殆ど受けない与件に対し、外部空間に対して“自覚的な在り方”の建築を志向。敷地を囲む様に量塊を配置して“性質の異なる二つの中庭”を設ける構成を考案2階、ウォークインクローゼット photo©コンドウダイスケ

渡部光樹+渡部梨華 / Wによる、秋田の「大館の住宅」。地方部の“建ち方”にも向き合った計画。集団規定の影響を殆ど受けない与件に対し、外部空間に対して“自覚的な在り方”の建築を志向。敷地を囲む様に量塊を配置して“性質の異なる二つの中庭”を設ける構成を考案1階、洗面 photo©コンドウダイスケ

渡部光樹+渡部梨華 / Wによる、秋田の「大館の住宅」。地方部の“建ち方”にも向き合った計画。集団規定の影響を殆ど受けない与件に対し、外部空間に対して“自覚的な在り方”の建築を志向。敷地を囲む様に量塊を配置して“性質の異なる二つの中庭”を設ける構成を考案1階、浴室 photo©コンドウダイスケ

渡部光樹+渡部梨華 / Wによる、秋田の「大館の住宅」。地方部の“建ち方”にも向き合った計画。集団規定の影響を殆ど受けない与件に対し、外部空間に対して“自覚的な在り方”の建築を志向。敷地を囲む様に量塊を配置して“性質の異なる二つの中庭”を設ける構成を考案1階平面図 image©W

渡部光樹+渡部梨華 / Wによる、秋田の「大館の住宅」。地方部の“建ち方”にも向き合った計画。集団規定の影響を殆ど受けない与件に対し、外部空間に対して“自覚的な在り方”の建築を志向。敷地を囲む様に量塊を配置して“性質の異なる二つの中庭”を設ける構成を考案2階平面図 image©W

渡部光樹+渡部梨華 / Wによる、秋田の「大館の住宅」。地方部の“建ち方”にも向き合った計画。集団規定の影響を殆ど受けない与件に対し、外部空間に対して“自覚的な在り方”の建築を志向。敷地を囲む様に量塊を配置して“性質の異なる二つの中庭”を設ける構成を考案ダイアグラム image©W
以下、建築家によるテキストです。
秋田県大館市の主要駅、大館駅のほど近く。
かつて鉱山で栄えた街であるが、閉山と共に時が止まったかのように、昭和レトロな廃屋が遺跡のようにぽつぽつと建っている。当敷地の周りにも空き家や空き地が目立ち、ゆったりとした、と言うよりも、散漫な風景が広がっているように感じられた。
このような場所に、どんな建ち方がふさわしいだろうか。
地方部での住宅は都心部の狭小地と違って、斜線制限や採光、建蔽率容積率などといった集団規定の影響をほとんど受けない。そのためその建ち方は比較的自発的なものとなる。言い換えるとそれは、外部空間をどうつくるか、ということでもある。ここでは、外部空間が無自覚な在り方をしていては、たちまちこの寂しい風景の中へ霧散してしまうように思えた。
施主の要望の、プライバシーを守りつつ使える外部空間が欲しいということも踏まえて、敷地をぐるりと取り囲むように建物を配置した中庭形式をとることで、内外に濃密な生活環境を整えたいと考えた。
まず敷地の真ん中に中庭を据える。
敷地は東西20m、南北10mほどの大きさである。採光を最大限確保するため、居住棟を北側に寄せ2階建とし、南側には水回りを配してコンパクトな平屋建とした。
そして、南北の棟をつなぐブリッジをリビングとした。
リビングは中庭を横断し、分断する。東西にそれぞれ性質の異なる、二つの中庭が生まれた。
一つは、玄関ポーチやカーポートからアクセスできる、割とオープンな中庭。
客人を迎え入れる“閾”の場でもある。少しずつ植物を植えて育てていき、いずれは緑豊かな居場所となる。
もう一つは、屋根(ピロティ)がかかり、半室内的に使えるひっそりとした中庭。
キッチンのそばに設けているので、家族だけで食事したり、お茶してくつろいだりできる。どちらもプライベート性は確保しながら完全には閉じることなく、周囲の環境と緩やかな関わりを持たせている。
間に挟まれたリビングには両面に大開口を設けて、透明性を高めた。
これによりリビングを介して、二つの中庭がひと続きになって、敷地の東西を一直線に貫く。
内部は、生活動線をあえて長めかつスキップしながら続いていくよう複雑に構成した。
次々と展開していく場面によって、奥行きのある空間が体験され、面積以上の広さが得られている。リビングはその交差点のような空間である。敷地全体に渡る内外さまざまな居場所と相互に干渉し合い、重層的な広がりをつくり出している。
■建築概要
題名:大館の住宅
所在地:秋田県大館市
主用途:個人住宅
設計:W 担当/渡部光樹+渡部梨華
施工:マルイシ産業
構造設計:円酒構造設計
構造:木造
階数:地上2階
敷地面積:199.66㎡
建築面積:107.73㎡
延床面積:128.49㎡
設計:2021年2月~2022年10月
工事:2022年11月~2023年6月
竣工:2023年6月
写真:コンドウダイスケ
建材情報| 種別 | 使用箇所 | 商品名(メーカー名) | | 外装・壁 | 外壁 | ガルバリウム鋼板横葺
|
| 外装・屋根 | 屋根 | ガルバリウム鋼板立平葺
|
| 外装・建具 | 建具 | [サーモスⅡH](LIXIL)
|
| 内装・床 | ダイニング、キッチン 床 | コンクリート金コテ仕上 防塵ウレタン塗装
|
| 内装・壁 | ダイニング、キッチン 壁 | AEP塗装
|
| 内装・天井 | ダイニング、キッチン 天井 | ラワン合板t4 オイル塗装
|
| 内装・キッチン | キッチン | キッチンカウンター天板[SUSヘアライン仕上](松岡製作所)
レンジフード[XAI-3A-6016](富士工業)
|
| 内装・床 | リビング 床 | カーペット敷
|
| 内装・壁 | リビング 壁 | 木毛セメント板t20
|
| 内装・天井 | リビング 天井 | ラワン合板t4 オイル塗装
|
| 内装・床 | 寝室、子ども室、廊下 床 | クルミ無垢フローリングt15
|
| 内装・壁 | 寝室、子ども室、廊下 壁 | ラワン合板t5.5 オイル塗装
|
| 内装・天井 | 寝室、子ども室、廊下 天井 | ラワン合板t4 オイル塗装
|
| 内装・床 | 洗面 床 | クルミ無垢フローリングt15
|
| 内装・壁 | 洗面 壁 | ラワン合板t5.5 オイル塗装
|
| 内装・天井 | 洗面 天井 | ラワン合板t4 オイル塗装
|
| 内装・水廻り | 洗面カウンター | [マーブライトカウンターMK50](TOTO)
|
| 内装・照明 | 照明器具 | (青山電陶)
[MOD.265](FLOS)
|
| 内装・その他 | 薪ストーブ | [PV5W](チャールトン&ジェンリック)
|
| 内装・その他 | スイッチ、コンセント | クラシックシリーズ(Panasonic)
|
※企業様による建材情報についてのご意見や「PR」のご相談はこちらから
※この情報は弊サイトや設計者が建材の性能等を保証するものではありません