吉田昌弘 / KAMITOPENによる、千葉市の店舗「Hyex 海浜幕張店」。“街かど高地トレーニング”をうたうジム。低酸素ルームで運動する施設として、パフォーマンス向上の為に“空気”のデザインを志向。空の様な“青色”の空間から血液の様な“赤色”の主空間に移行する構成を考案フロントからフリースペース側を見る。 photo©宮本啓介
吉田昌弘 / KAMITOPENによる、千葉市の店舗「Hyex 海浜幕張店」。“街かど高地トレーニング”をうたうジム。低酸素ルームで運動する施設として、パフォーマンス向上の為に“空気”のデザインを志向。空の様な“青色”の空間から血液の様な“赤色”の主空間に移行する構成を考案フリースペース photo©宮本啓介
吉田昌弘 / KAMITOPENによる、千葉市の店舗「Hyex 海浜幕張店」。“街かど高地トレーニング”をうたうジム。低酸素ルームで運動する施設として、パフォーマンス向上の為に“空気”のデザインを志向。空の様な“青色”の空間から血液の様な“赤色”の主空間に移行する構成を考案フリースペースから開口部越しに「アスリートルーム」を見る。 photo©宮本啓介
吉田昌弘 / KAMITOPENが設計した、千葉市の店舗「Hyex 海浜幕張店」です。
“街かど高地トレーニング”をうたうジムの計画です。建築家は、低酸素ルームで運動する施設として、パフォーマンス向上の為に“空気”のデザインを志向しました。そして、空の様な“青色”の空間から血液の様な“赤色”の主空間に移行する構成を考案しました。店舗の場所はこちら(Google Map)。
Train High,Perform High!
街かど高地トレーニングをうたっているHyex海浜幕張店。
そのコンセプトは高地トレーニングの環境とメソッドで、トレーニングをハックし、アスリートのパフォーマンス向上に貢献することを目的としている。
実際には圧力変化のない低酸素ルームの中でトレーニングを行うことで、心肺機能が強化され、身体の酸素不足を補うため血管・血液の酸素運搬能力が向上しパフォーマンスが向上する。
そこで、我々はパフォーマンス向上に必要不可欠な「空気」そのものをデザインすることを試みた。
実際には、真っ青な澄んだ空色の空間を抜けると、ウォームアップスペースにたどり着く。
そこは全面ミラー貼りの空間で、身体の緊張をほぐしながら、青色に澄んだスケルトン天井を見上げる。
そこから、酸素を身体中に運ぶ血液をイメージした赤色に染められた「低酸素環境に維持されたアスリートルーム」とデジタルゲームを取り入れたトレーニングを提供するVRルームに入る事が出来る。
私はここで、トレーニングと空間を通して、澄んだ空気が身体の中をかけ巡り、気持ちもパフォーマンスもHigh(ハイ)になることを望む。
以下の写真はクリックで拡大します

吉田昌弘 / KAMITOPENによる、千葉市の店舗「Hyex 海浜幕張店」。“街かど高地トレーニング”をうたうジム。低酸素ルームで運動する施設として、パフォーマンス向上の為に“空気”のデザインを志向。空の様な“青色”の空間から血液の様な“赤色”の主空間に移行する構成を考案フロント photo©宮本啓介

吉田昌弘 / KAMITOPENによる、千葉市の店舗「Hyex 海浜幕張店」。“街かど高地トレーニング”をうたうジム。低酸素ルームで運動する施設として、パフォーマンス向上の為に“空気”のデザインを志向。空の様な“青色”の空間から血液の様な“赤色”の主空間に移行する構成を考案フロントからフリースペース側を見る。 photo©宮本啓介

吉田昌弘 / KAMITOPENによる、千葉市の店舗「Hyex 海浜幕張店」。“街かど高地トレーニング”をうたうジム。低酸素ルームで運動する施設として、パフォーマンス向上の為に“空気”のデザインを志向。空の様な“青色”の空間から血液の様な“赤色”の主空間に移行する構成を考案フリースペース photo©宮本啓介

吉田昌弘 / KAMITOPENによる、千葉市の店舗「Hyex 海浜幕張店」。“街かど高地トレーニング”をうたうジム。低酸素ルームで運動する施設として、パフォーマンス向上の為に“空気”のデザインを志向。空の様な“青色”の空間から血液の様な“赤色”の主空間に移行する構成を考案フリースペースから開口部越しに「アスリートルーム」を見る。 photo©宮本啓介

吉田昌弘 / KAMITOPENによる、千葉市の店舗「Hyex 海浜幕張店」。“街かど高地トレーニング”をうたうジム。低酸素ルームで運動する施設として、パフォーマンス向上の為に“空気”のデザインを志向。空の様な“青色”の空間から血液の様な“赤色”の主空間に移行する構成を考案フリースペースから開口部越しに「ズイフトルーム」を見る。 photo©宮本啓介

吉田昌弘 / KAMITOPENによる、千葉市の店舗「Hyex 海浜幕張店」。“街かど高地トレーニング”をうたうジム。低酸素ルームで運動する施設として、パフォーマンス向上の為に“空気”のデザインを志向。空の様な“青色”の空間から血液の様な“赤色”の主空間に移行する構成を考案フリースペースから開口部越しに「ズイフトルーム」を見る。 photo©宮本啓介

吉田昌弘 / KAMITOPENによる、千葉市の店舗「Hyex 海浜幕張店」。“街かど高地トレーニング”をうたうジム。低酸素ルームで運動する施設として、パフォーマンス向上の為に“空気”のデザインを志向。空の様な“青色”の空間から血液の様な“赤色”の主空間に移行する構成を考案左:「ズイフトルーム」、右:「アスリートルーム」 photo©宮本啓介

吉田昌弘 / KAMITOPENによる、千葉市の店舗「Hyex 海浜幕張店」。“街かど高地トレーニング”をうたうジム。低酸素ルームで運動する施設として、パフォーマンス向上の為に“空気”のデザインを志向。空の様な“青色”の空間から血液の様な“赤色”の主空間に移行する構成を考案「アスリートルーム」から開口部越しにフリースペースを見る。 photo©宮本啓介

吉田昌弘 / KAMITOPENによる、千葉市の店舗「Hyex 海浜幕張店」。“街かど高地トレーニング”をうたうジム。低酸素ルームで運動する施設として、パフォーマンス向上の為に“空気”のデザインを志向。空の様な“青色”の空間から血液の様な“赤色”の主空間に移行する構成を考案「ズイフトルーム」から開口部越しにフリースペースを見る。 photo©宮本啓介

吉田昌弘 / KAMITOPENによる、千葉市の店舗「Hyex 海浜幕張店」。“街かど高地トレーニング”をうたうジム。低酸素ルームで運動する施設として、パフォーマンス向上の為に“空気”のデザインを志向。空の様な“青色”の空間から血液の様な“赤色”の主空間に移行する構成を考案フリースペースからフロント側を見る。 photo©宮本啓介

吉田昌弘 / KAMITOPENによる、千葉市の店舗「Hyex 海浜幕張店」。“街かど高地トレーニング”をうたうジム。低酸素ルームで運動する施設として、パフォーマンス向上の為に“空気”のデザインを志向。空の様な“青色”の空間から血液の様な“赤色”の主空間に移行する構成を考案洗面から更衣室側を見る。 photo©宮本啓介

吉田昌弘 / KAMITOPENによる、千葉市の店舗「Hyex 海浜幕張店」。“街かど高地トレーニング”をうたうジム。低酸素ルームで運動する施設として、パフォーマンス向上の為に“空気”のデザインを志向。空の様な“青色”の空間から血液の様な“赤色”の主空間に移行する構成を考案サインの詳細 photo©宮本啓介

吉田昌弘 / KAMITOPENによる、千葉市の店舗「Hyex 海浜幕張店」。“街かど高地トレーニング”をうたうジム。低酸素ルームで運動する施設として、パフォーマンス向上の為に“空気”のデザインを志向。空の様な“青色”の空間から血液の様な“赤色”の主空間に移行する構成を考案把手の詳細 photo©宮本啓介

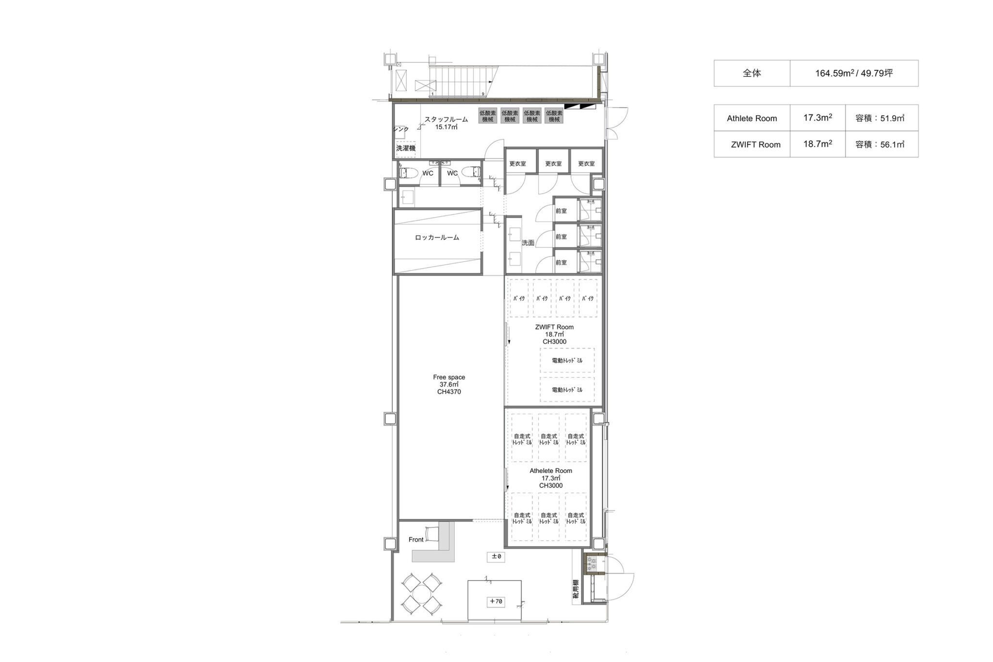
吉田昌弘 / KAMITOPENによる、千葉市の店舗「Hyex 海浜幕張店」。“街かど高地トレーニング”をうたうジム。低酸素ルームで運動する施設として、パフォーマンス向上の為に“空気”のデザインを志向。空の様な“青色”の空間から血液の様な“赤色”の主空間に移行する構成を考案平面図 image©KAMITOPEN一級建築士事務所
以下、建築家によるテキストです。
コンセプト「空気」
Train High,Perform High!
街かど高地トレーニングをうたっているHyex海浜幕張店。
そのコンセプトは高地トレーニングの環境とメソッドで、トレーニングをハックし、アスリートのパフォーマンス向上に貢献することを目的としている。
実際には圧力変化のない低酸素ルームの中でトレーニングを行うことで、心肺機能が強化され、身体の酸素不足を補うため血管・血液の酸素運搬能力が向上しパフォーマンスが向上する。
そこで、我々はパフォーマンス向上に必要不可欠な「空気」そのものをデザインすることを試みた。
実際には、真っ青な澄んだ空色の空間を抜けると、ウォームアップスペースにたどり着く。
そこは全面ミラー貼りの空間で、身体の緊張をほぐしながら、青色に澄んだスケルトン天井を見上げる。
そこから、酸素を身体中に運ぶ血液をイメージした赤色に染められた「低酸素環境に維持されたアスリートルーム」とデジタルゲームを取り入れたトレーニングを提供するVRルームに入る事が出来る。
私はここで、トレーニングと空間を通して、澄んだ空気が身体の中をかけ巡り、気持ちもパフォーマンスもHigh(ハイ)になることを望む。
■建築概要
題名:Hyex 海浜幕張店
所在地:千葉県千葉市美浜区ひび野1丁目6-2 公園通りビル D区画
設計:株式会社KAMITOPEN一級建築士事務所 担当/吉田昌弘、福嶋知子
施工:株式会社ソウワプロスパ
協力:株式会社ユーフォリア、Hypoxia Performance Project、高田敏志
構造:鉄骨造
階数:地上1階
延床面積:164.59㎡
設計:2024年7月~2024年10月
工事:2024年9月~2024年10月
竣工:2024年10年8月
写真:宮本啓介