
SHARE 坂牛卓+中川宏文 / D.A.による、山梨の「富士山ジビエセンター」。野生鹿の処理加工と加工品の販売を行う施設。両者機能の共存を求め、処理加工機能を収めた切妻の量塊の周りにランドスケープと店舗に繋がる“裳階”を配する建築を考案。見学窓や展示などでジビエ文化の教育も担う




坂牛卓+中川宏文 / D.A.が設計した、山梨・富士吉田市の「富士山ジビエセンター DEAR DEER」です。
野生鹿の処理加工と加工品の販売を行う施設です。建築家は、両者機能の共存を求め、処理加工機能を収めた切妻の量塊の周りにランドスケープと店舗に繋がる“裳階”を配する建築を考案しました。また、見学窓や展示などでジビエ文化の教育も担うことも意図されています。施設の場所はこちら(Google Map)。
このような処理加工施設は、嫌悪施設として市街地から離れた場所に設置されていることが多く、環境保全や持続可能な社会のあり方を考える上でとても重要な施設であるにもかかわらず、一般の人たちが親しみにくい場所にある。
しかし、本施設は年間200万人が訪れる道の駅エリアに隣接したカラマツ林の一角を敷地とし、処理加工機能だけでなく、ジビエ加工品の販売を通した集客機能や、地産地消やジビエ文化、命の大切さについて考えるきっかけとなるような教育機能が求められた。
前述した社会的背景や地理的要因から、処理加工施設と集客・教育施設の相反する機能を敷地の中にどのよう共存させるかが重要な課題であった。
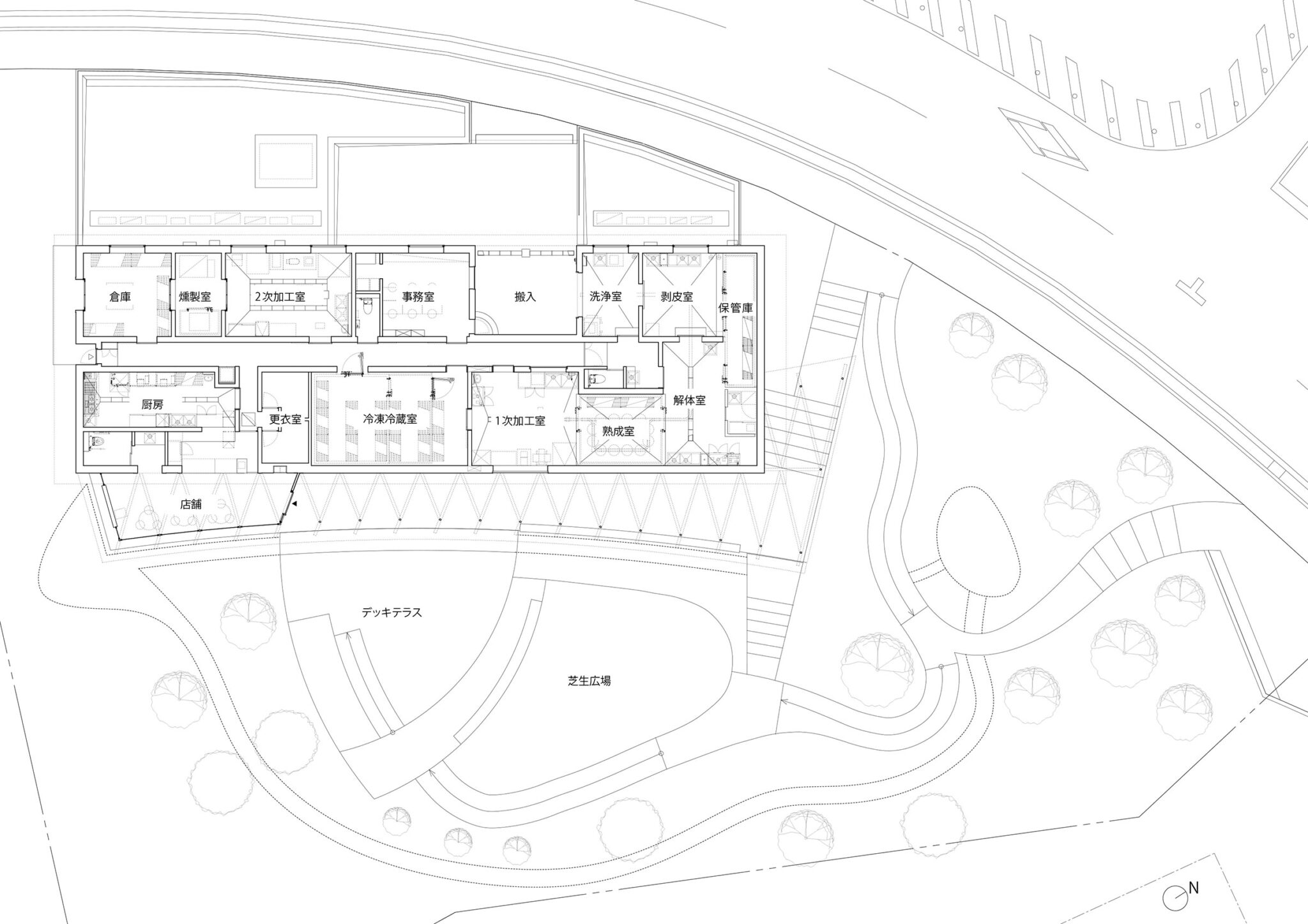
そこで、処理加工所の長細いボリュームは、接道に沿うように配置することによって個体の搬入から加工までをスムーズに行えるよう機能的に計画した。
集客・教育機能を担う店舗、展示、サイン、見学窓部分などのアプローチ部分はカラマツ林側に配置し、建築とカラマツ林に囲まれたランドスケープをつくることによって、この場所を訪れた人々が自然の中でゆっくりと過ごせる場所を計画した。
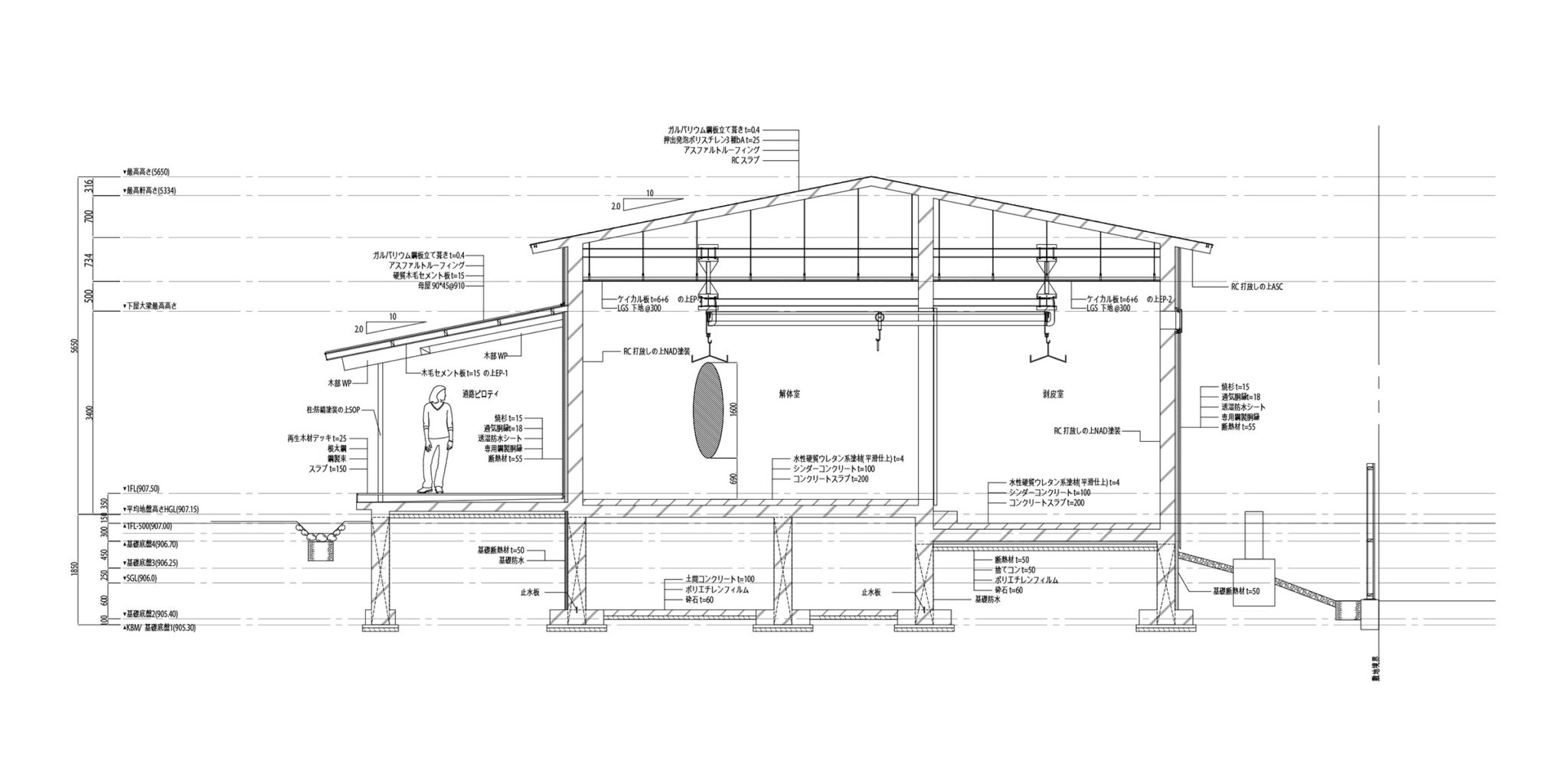
建物は加工室や保管室が機能的におさめられた切妻大屋根のボリュームと、加工食品などを販売する集客(教育)機能がおさめられた木造+鉄骨造の軽やかな裳階の2つで構成されている。
裳階は、平面トラスと鉄骨柱の架構によってリズムを生み出し、訪れた人々を建物奥の店舗スペースへと導く。加えて軒高を低く抑えて建築全体の重心を下げ、デッキテラスや芝生広場への連続性を高めている。
切妻大屋根がつくる水平性と周辺の木立の垂直性、優雅な曲線を描く裳階とランドスケープの有機的なかたちは、この場所に、人、建築、ランドスケープ、自然の調和した風景を生み出している。
以下の写真はクリックで拡大します



















以下、建築家によるテキストです。
富士山の生態系の保全
富士山周辺の野生鹿の生息密度は高く、その食害は山麓の農地から富士山の高山帯まで広範囲に広がっている。森林帯では、富士山固有の植物や、植樹された若木の芽や葉が食べられることによって、生態系にも大きな影響を与えている。
近年、行政は適正な頭数になるまで野生鹿の捕獲を進めてきたが、周辺に専門的な処理を行える施設がないため、捕獲された鹿の多くは埋設処理されてきた。
富士山麓で育った野生鹿の命を無駄にせず、地域資源として活用することで新たな循環を生み出し、鳥獣被害の防止や富士山の生態系の保全に繋げるために本計画が立ち上がった。
人々に開かれた処理加工所
このような処理加工施設は、嫌悪施設として市街地から離れた場所に設置されていることが多く、環境保全や持続可能な社会のあり方を考える上でとても重要な施設であるにもかかわらず、一般の人たちが親しみにくい場所にある。
しかし、本施設は年間200万人が訪れる道の駅エリアに隣接したカラマツ林の一角を敷地とし、処理加工機能だけでなく、ジビエ加工品の販売を通した集客機能や、地産地消やジビエ文化、命の大切さについて考えるきっかけとなるような教育機能が求められた。
周辺環境と接続する配置計画
前述した社会的背景や地理的要因から、処理加工施設と集客・教育施設の相反する機能を敷地の中にどのよう共存させるかが重要な課題であった。
そこで、処理加工所の長細いボリュームは、接道に沿うように配置することによって個体の搬入から加工までをスムーズに行えるよう機能的に計画した。
集客・教育機能を担う店舗、展示、サイン、見学窓部分などのアプローチ部分はカラマツ林側に配置し、建築とカラマツ林に囲まれたランドスケープをつくることによって、この場所を訪れた人々が自然の中でゆっくりと過ごせる場所を計画した。
建築とランドスケープを繋ぐ裳階
建物は加工室や保管室が機能的におさめられた切妻大屋根のボリュームと、加工食品などを販売する集客(教育)機能がおさめられた木造+鉄骨造の軽やかな裳階の2つで構成されている。
裳階は、平面トラスと鉄骨柱の架構によってリズムを生み出し、訪れた人々を建物奥の店舗スペースへと導く。加えて軒高を低く抑えて建築全体の重心を下げ、デッキテラスや芝生広場への連続性を高めている。
切妻大屋根がつくる水平性と周辺の木立の垂直性、優雅な曲線を描く裳階とランドスケープの有機的なかたちは、この場所に、人、建築、ランドスケープ、自然の調和した風景を生み出している。
■建築概要
タイトル:富士山ジビエセンター DEAR DEER
場所:山梨県富士吉田市新屋725-3
機能:食肉加工+物販+教育
発注者:富士吉田市
意匠設計監理:D.A. 担当/坂牛卓+中川宏文
構造設計監理:株式会社ディックス 担当/辻拓也、飯山滉介
設備設計:テーテンス事務所 担当/新井英昭、勅使川原良一
設備監理:田村設備設計監理 担当/田村貞洋
外構設計:オンサイト計画設計事務所 担当/戸田知佐、生田美菜子
iku design 担当/木田裕子
ビジュアルデザイン:株式会社フロウプラトウ 担当/佐藤文彦、小島一郎
オブジェデザイン:株式会社OFF-FLAT 担当/細野隆仁
ブックディレクション:株式会社ORDINARY BOOKS 担当/三條陽平
展示造形:emo株式会社 担当/清瀬光広
建築施工:渡秀工業株式会社 担当/渡辺秀一郎、渡辺博
電気施工:サンコー電気株式会社 担当/長田剛廣
機械施工:宮下設備工業株式会社 担当/宮下昌也
外構施工:芙蓉建設株式会社 担当/三浦基行
造園施工:株式会社浅間造園土木 担当/岡部幸一
竣工:2024年7月
写真:渡辺竜康、中川宏文
| 種別 | 使用箇所 | 商品名(メーカー名) |
|---|---|---|
| 外装・屋根 | 屋根 | ガルバリウム鋼板縦ハゼ葺き |
| 外装・床 | 主要箇所 床 | |
| 外装・壁 | 外壁 | |
| 外装・その他 | 軒天井 | 木毛セメント板の上EPスポンジ叩き仕上げ |
| 内装・床 | 工場 床 | 水性硬質ウレタン系塗材(アトミクス) |
| 内装・床 | 店舗 床 | フローリング(東京工営) |
| 内装・建具 | 建具 | ステンレス建具(サンワイズ) |
| 内装・設備 | 床排水システム | ステンレスグレーチング他(中部コーポレーション) |
| 内装・その他 | 高架軌条レール | ステンレス加工(東西産業貿易) |
※企業様による建材情報についてのご意見や「PR」のご相談はこちらから
※この情報は弊サイトや設計者が建材の性能等を保証するものではありません
Preservation of Mt. Fuji’s ecosystem
The area around Mt. Fuji has a high population density of wild deer and their feeding damage extends from the farmlands at the foot of the mountain to the alpine zone. In particular, the ecosystem of the forest zone is greatly affected because they devour the buds and leaves of young planted trees and the plants native to the area. In recent years, the local government has been promoting deer capture to reduce their number to an appropriate level. However, due to the lack of special facilities capable of handling game (gibier in French) , many of the captured deer have been simply killed and buried underground . This plan was designed to create a new cycle of utilizing the captured local deer as resource instead of wasting them as well as to reduce damage inflicted by wildlife to preserve the ecosystem of Mt. Fuji.
Processing plant open to public
Facilities such as this are often considered as a place to be kept off and located away from city centers in areas that are not familiar to the general public, although they are essential for preserving environment and achieving sustainable society. This facility, on the contrary, is located in the corner of a larch forest adjacent to a roadside rest stop that attracts two million visitors annually. In addition to the meat-processing function, the facility was required to attract customers through the sale of processed gibier products and provide an educational function that would encourage people to think about the importance of local production and consumption, learn gibier culture, and appreciate the fact that these animals sacrifice their lives for us.
Building layout blending with the surrounding environment
To satisfy the social demand and the locational condition mentioned above, the biggest issue was how to integrate the conflicting functions of processing and customer attraction/education into one building. To address this, the long and narrow volume was functionally placed to abut on a road to facilitate the smooth processing operations from receiving deer to processing meat. The customer attraction/educational facilities, including a shop, exhibits, signages and observation windows, were placed on the opposite side facing the larch forest. We designed this landscape including the building and the surrounding larch forest to create a place where visitors can relax in nature.
Pent roof connecting building and periphery
The building consists of two parts: a volume covered by a solid gable roof functionally housing the processing and storage rooms, and an area under a lighter wooden pent roof supported by steel shafts covering the customer attraction/education facility selling processed foods and other items. A rhythm is created by the pent roof’s structure of flat trusses and steel columns through which visitors are led to the shop area at the end of the building. In addition, low eaves height helps lower the center of gravity of the entire building, enhancing the continuity with the deck terrace and lawn plaza. Here, the horizontality of the large roof and the verticality of the surrounding trees as well as the gracefully curved pent roof and the organically designed landscape create a scene where people, architecture, landscape and nature coexist in harmony.
Mt. Fuji Gibier Center DEAR DEER
Location: 725-3 Araya, Fujiyoshida City, Yamanashi Prefecture
Function: Meat processing + product sales + education
Client: Fujiyoshida City
Design supervision: O.F.D.A. Sakaushi + Nakagawa (Leader : Nakagawa)
Structural design supervision: DIX Co., Ltd. (Leaders: Tsuji, Iiyama)
Equipment design: Tetens Engineering Co.,Ltd (Leaders: Arai, Teshigawara)
Equipment supervision: Tamura Setsubi Sekkei Kanri (Leader: Tamura)
Exterior design: studio on site (Leaders: Toda, Ikuta) + iku-design (Leader: Kida)
Visual design: Flowplateaux Co., Ltd. (Leaders: Sato, Kojima)
Object design: OFF-FLAT Co., Ltd. (Leader: Hosono)
Book direction: ORDINARY BOOKS Co., Ltd. (Leader: Sanjo)
Exhibition construction: emo Corporation (Leader: Kiyose)
Building construction: Watahide-Kogyo Co., Ltd. (Leaders: Shu Watanabe, Hiroshi Watanabe)
Electrical construction: Sankoh Denki Co., Ltd. (Leader: Osada)
Mechanical construction: Miyashita Setsubi Kogyo Co., Ltd. (Leader: Miyashita)
Exterior construction: Fuyo Kensetsu Co, Ltd. (Leader: Miura)
Landscaping construction: Asama Gardening Corporation (Leader: Okabe)
Completion: July 2024
Photo: Tatsuyasu Watanabe




