中川宏文 / D.A.による、長崎市の「重像の家」。地形と歴史が“大らかさと緊張感”を生む地域。四方から視認される敷地に対し、強い幾何学で各立面を完結させ“視点の変化で表情が移ろう”建築を考案。“収束を拒む複雑性”と“建築としての完結性”も共存させる外観、東側より見る。夕景 photo©楠瀬友将
中川宏文 / D.A.による、長崎市の「重像の家」。地形と歴史が“大らかさと緊張感”を生む地域。四方から視認される敷地に対し、強い幾何学で各立面を完結させ“視点の変化で表情が移ろう”建築を考案。“収束を拒む複雑性”と“建築としての完結性”も共存させる外観、北側より見る。 photo©楠瀬友将
中川宏文 / D.A.による、長崎市の「重像の家」。地形と歴史が“大らかさと緊張感”を生む地域。四方から視認される敷地に対し、強い幾何学で各立面を完結させ“視点の変化で表情が移ろう”建築を考案。“収束を拒む複雑性”と“建築としての完結性”も共存させる1階、リビングとダイニング photo©楠瀬友将
中川宏文 / D.A.による、長崎市の「重像の家」。地形と歴史が“大らかさと緊張感”を生む地域。四方から視認される敷地に対し、強い幾何学で各立面を完結させ“視点の変化で表情が移ろう”建築を考案。“収束を拒む複雑性”と“建築としての完結性”も共存させる1階、ダイニングから開口部越しに外部を見る。夕景 photo©楠瀬友将
中川宏文 / D.A.が設計した、長崎市の「重像の家」です。
地形と歴史が“大らかさと緊張感”を生む地域での計画です。建築家は、四方から視認される敷地に対し、強い幾何学で各立面を完結させ“視点の変化で表情が移ろう”建築を考案しました。また、“収束を拒む複雑性”と“建築としての完結性”も共存させています。
敷地は長崎市南部・野母崎半島にあり、東に橘湾、西に丘陵を望む。
山と海が近接するこの地は、谷筋や海岸沿いに集落が形成され、禁教期には潜伏キリシタンの信仰の場でもあった。一見長閑に見える風景は、地形と歴史の重なりによって独特の大らかさと緊張感を漂わせている。
この地域において、建築にどのようなかたちを与え、意味を生み出し、住人の生活と共に風景の一部として存在できるか、思考を積み重ねた。
都市密集地では限られた立面が建築の表情を担うが、この敷地では建物が四方から視認され、すべての立面が町に作用する。そこで強い幾何学を用いて各立面に完結したかたちをつくり、視点の変化に応じて表情が移ろう形態を探った。
外壁のガルバリウム鋼板素地は空の色を映し、天候や時間帯によって表情を変える。開口部同士の重なりは向こう側の風景を建築に取り込み、より動的な表情を生む。そして、コンテクストと重なり合うことで、海を受け止める力強さや民家の親密さ、あるいは教会を想起させる垂直性を示す。単一の像への収束を拒む複雑性と1つの建築としての完結性の共存を目指した。
内部は緊張と弛緩の対比によって構成される。アルミホイルを乱張りした天井は、細い方杖に支えられ、東西の窓から取り込んだ光を反射し、灰色の空間に動的な表情と緊張感を与える。プランは45度に振ったグリッドを導入し、内外が連続するように開口部を配置した。そして、床の高低差や円弧を描くダイニングや階段によって緩やかに分節することで空間に多様な定位と視線の抜けをつくった。
黒い空間は、灰色の空間に円弧状にせり出すようにして、半地下の洗面室や浴室、リビングダイニングキッチン、閉じたウォークインクローゼットと海へ開かれた寝室へと繋がっていく。
寝室では黒い空間にフレーミングされ広大な自然のスケールが一気に立ち現れ、見下ろせば、生活の中心である象徴的なダイニングキッチンが灰色の空間に見える。目の前に広がる海と空の開放感は、その対比によって、足元に確かに存在する生活の落ち着きと安心感を再認識させてくれる。
以下の写真はクリックで拡大します

中川宏文 / D.A.による、長崎市の「重像の家」。地形と歴史が“大らかさと緊張感”を生む地域。四方から視認される敷地に対し、強い幾何学で各立面を完結させ“視点の変化で表情が移ろう”建築を考案。“収束を拒む複雑性”と“建築としての完結性”も共存させる俯瞰、南側より見る。 photo©楠瀬友将

中川宏文 / D.A.による、長崎市の「重像の家」。地形と歴史が“大らかさと緊張感”を生む地域。四方から視認される敷地に対し、強い幾何学で各立面を完結させ“視点の変化で表情が移ろう”建築を考案。“収束を拒む複雑性”と“建築としての完結性”も共存させる外観、西側より見る。 photo©楠瀬友将

中川宏文 / D.A.による、長崎市の「重像の家」。地形と歴史が“大らかさと緊張感”を生む地域。四方から視認される敷地に対し、強い幾何学で各立面を完結させ“視点の変化で表情が移ろう”建築を考案。“収束を拒む複雑性”と“建築としての完結性”も共存させる外観、北西側より見る。 photo©楠瀬友将

中川宏文 / D.A.による、長崎市の「重像の家」。地形と歴史が“大らかさと緊張感”を生む地域。四方から視認される敷地に対し、強い幾何学で各立面を完結させ“視点の変化で表情が移ろう”建築を考案。“収束を拒む複雑性”と“建築としての完結性”も共存させる外観、西側より見る。 photo©楠瀬友将

中川宏文 / D.A.による、長崎市の「重像の家」。地形と歴史が“大らかさと緊張感”を生む地域。四方から視認される敷地に対し、強い幾何学で各立面を完結させ“視点の変化で表情が移ろう”建築を考案。“収束を拒む複雑性”と“建築としての完結性”も共存させる外観、北側より見る。 photo©楠瀬友将

中川宏文 / D.A.による、長崎市の「重像の家」。地形と歴史が“大らかさと緊張感”を生む地域。四方から視認される敷地に対し、強い幾何学で各立面を完結させ“視点の変化で表情が移ろう”建築を考案。“収束を拒む複雑性”と“建築としての完結性”も共存させる外観、北側より見る。 photo©楠瀬友将

中川宏文 / D.A.による、長崎市の「重像の家」。地形と歴史が“大らかさと緊張感”を生む地域。四方から視認される敷地に対し、強い幾何学で各立面を完結させ“視点の変化で表情が移ろう”建築を考案。“収束を拒む複雑性”と“建築としての完結性”も共存させる外観、外壁の詳細 photo©楠瀬友将

中川宏文 / D.A.による、長崎市の「重像の家」。地形と歴史が“大らかさと緊張感”を生む地域。四方から視認される敷地に対し、強い幾何学で各立面を完結させ“視点の変化で表情が移ろう”建築を考案。“収束を拒む複雑性”と“建築としての完結性”も共存させる外観、開口部の詳細 photo©楠瀬友将

中川宏文 / D.A.による、長崎市の「重像の家」。地形と歴史が“大らかさと緊張感”を生む地域。四方から視認される敷地に対し、強い幾何学で各立面を完結させ“視点の変化で表情が移ろう”建築を考案。“収束を拒む複雑性”と“建築としての完結性”も共存させる外観、屋根と外壁の詳細 photo©楠瀬友将

中川宏文 / D.A.による、長崎市の「重像の家」。地形と歴史が“大らかさと緊張感”を生む地域。四方から視認される敷地に対し、強い幾何学で各立面を完結させ“視点の変化で表情が移ろう”建築を考案。“収束を拒む複雑性”と“建築としての完結性”も共存させる1階、玄関側からキッチン越しにダイニングとリビングを見る。 photo©楠瀬友将

中川宏文 / D.A.による、長崎市の「重像の家」。地形と歴史が“大らかさと緊張感”を生む地域。四方から視認される敷地に対し、強い幾何学で各立面を完結させ“視点の変化で表情が移ろう”建築を考案。“収束を拒む複雑性”と“建築としての完結性”も共存させる1階、リビングから開口部越しに外部を見る。 photo©楠瀬友将

中川宏文 / D.A.による、長崎市の「重像の家」。地形と歴史が“大らかさと緊張感”を生む地域。四方から視認される敷地に対し、強い幾何学で各立面を完結させ“視点の変化で表情が移ろう”建築を考案。“収束を拒む複雑性”と“建築としての完結性”も共存させる1階、ダイニングから開口部越しに外部を見る。 photo©楠瀬友将

中川宏文 / D.A.による、長崎市の「重像の家」。地形と歴史が“大らかさと緊張感”を生む地域。四方から視認される敷地に対し、強い幾何学で各立面を完結させ“視点の変化で表情が移ろう”建築を考案。“収束を拒む複雑性”と“建築としての完結性”も共存させる1階、中庭側のデッキから開口部越しにリビングを見る。 photo©楠瀬友将

中川宏文 / D.A.による、長崎市の「重像の家」。地形と歴史が“大らかさと緊張感”を生む地域。四方から視認される敷地に対し、強い幾何学で各立面を完結させ“視点の変化で表情が移ろう”建築を考案。“収束を拒む複雑性”と“建築としての完結性”も共存させる1階、リビングとダイニング photo©楠瀬友将

中川宏文 / D.A.による、長崎市の「重像の家」。地形と歴史が“大らかさと緊張感”を生む地域。四方から視認される敷地に対し、強い幾何学で各立面を完結させ“視点の変化で表情が移ろう”建築を考案。“収束を拒む複雑性”と“建築としての完結性”も共存させる1階、リビングダイニング、架構と天井 photo©楠瀬友将

中川宏文 / D.A.による、長崎市の「重像の家」。地形と歴史が“大らかさと緊張感”を生む地域。四方から視認される敷地に対し、強い幾何学で各立面を完結させ“視点の変化で表情が移ろう”建築を考案。“収束を拒む複雑性”と“建築としての完結性”も共存させる1階、リビングダイニング、架構と壁 photo©楠瀬友将

中川宏文 / D.A.による、長崎市の「重像の家」。地形と歴史が“大らかさと緊張感”を生む地域。四方から視認される敷地に対し、強い幾何学で各立面を完結させ“視点の変化で表情が移ろう”建築を考案。“収束を拒む複雑性”と“建築としての完結性”も共存させる1階、リビングから2階への階段を見る。 photo©楠瀬友将

中川宏文 / D.A.による、長崎市の「重像の家」。地形と歴史が“大らかさと緊張感”を生む地域。四方から視認される敷地に対し、強い幾何学で各立面を完結させ“視点の変化で表情が移ろう”建築を考案。“収束を拒む複雑性”と“建築としての完結性”も共存させる1階から2階への階段から1階のリビングを見る。 photo©楠瀬友将

中川宏文 / D.A.による、長崎市の「重像の家」。地形と歴史が“大らかさと緊張感”を生む地域。四方から視認される敷地に対し、強い幾何学で各立面を完結させ“視点の変化で表情が移ろう”建築を考案。“収束を拒む複雑性”と“建築としての完結性”も共存させる2階、寝室 photo©楠瀬友将

中川宏文 / D.A.による、長崎市の「重像の家」。地形と歴史が“大らかさと緊張感”を生む地域。四方から視認される敷地に対し、強い幾何学で各立面を完結させ“視点の変化で表情が移ろう”建築を考案。“収束を拒む複雑性”と“建築としての完結性”も共存させる2階、寝室の開口部から1階のリビングを見下ろす。 photo©楠瀬友将

中川宏文 / D.A.による、長崎市の「重像の家」。地形と歴史が“大らかさと緊張感”を生む地域。四方から視認される敷地に対し、強い幾何学で各立面を完結させ“視点の変化で表情が移ろう”建築を考案。“収束を拒む複雑性”と“建築としての完結性”も共存させる2階、寝室の開口部から1階のリビングを見下ろす。 photo©楠瀬友将

中川宏文 / D.A.による、長崎市の「重像の家」。地形と歴史が“大らかさと緊張感”を生む地域。四方から視認される敷地に対し、強い幾何学で各立面を完結させ“視点の変化で表情が移ろう”建築を考案。“収束を拒む複雑性”と“建築としての完結性”も共存させる1階、洗面所 photo©楠瀬友将

中川宏文 / D.A.による、長崎市の「重像の家」。地形と歴史が“大らかさと緊張感”を生む地域。四方から視認される敷地に対し、強い幾何学で各立面を完結させ“視点の変化で表情が移ろう”建築を考案。“収束を拒む複雑性”と“建築としての完結性”も共存させる1階、ダイニングから開口部越しに外部を見る。夕景 photo©楠瀬友将

中川宏文 / D.A.による、長崎市の「重像の家」。地形と歴史が“大らかさと緊張感”を生む地域。四方から視認される敷地に対し、強い幾何学で各立面を完結させ“視点の変化で表情が移ろう”建築を考案。“収束を拒む複雑性”と“建築としての完結性”も共存させる外観、東側より見る。夕景 photo©楠瀬友将

中川宏文 / D.A.による、長崎市の「重像の家」。地形と歴史が“大らかさと緊張感”を生む地域。四方から視認される敷地に対し、強い幾何学で各立面を完結させ“視点の変化で表情が移ろう”建築を考案。“収束を拒む複雑性”と“建築としての完結性”も共存させる外観、北東側より見る。夕景 photo©楠瀬友将

中川宏文 / D.A.による、長崎市の「重像の家」。地形と歴史が“大らかさと緊張感”を生む地域。四方から視認される敷地に対し、強い幾何学で各立面を完結させ“視点の変化で表情が移ろう”建築を考案。“収束を拒む複雑性”と“建築としての完結性”も共存させる1階平面図 image©D.A.

中川宏文 / D.A.による、長崎市の「重像の家」。地形と歴史が“大らかさと緊張感”を生む地域。四方から視認される敷地に対し、強い幾何学で各立面を完結させ“視点の変化で表情が移ろう”建築を考案。“収束を拒む複雑性”と“建築としての完結性”も共存させる2階平面図 image©D.A.

中川宏文 / D.A.による、長崎市の「重像の家」。地形と歴史が“大らかさと緊張感”を生む地域。四方から視認される敷地に対し、強い幾何学で各立面を完結させ“視点の変化で表情が移ろう”建築を考案。“収束を拒む複雑性”と“建築としての完結性”も共存させる西側立面図 image©D.A.

中川宏文 / D.A.による、長崎市の「重像の家」。地形と歴史が“大らかさと緊張感”を生む地域。四方から視認される敷地に対し、強い幾何学で各立面を完結させ“視点の変化で表情が移ろう”建築を考案。“収束を拒む複雑性”と“建築としての完結性”も共存させる東側立面図 image©D.A.

中川宏文 / D.A.による、長崎市の「重像の家」。地形と歴史が“大らかさと緊張感”を生む地域。四方から視認される敷地に対し、強い幾何学で各立面を完結させ“視点の変化で表情が移ろう”建築を考案。“収束を拒む複雑性”と“建築としての完結性”も共存させる南側立面図 image©D.A.

中川宏文 / D.A.による、長崎市の「重像の家」。地形と歴史が“大らかさと緊張感”を生む地域。四方から視認される敷地に対し、強い幾何学で各立面を完結させ“視点の変化で表情が移ろう”建築を考案。“収束を拒む複雑性”と“建築としての完結性”も共存させる北側立面図 image©D.A.

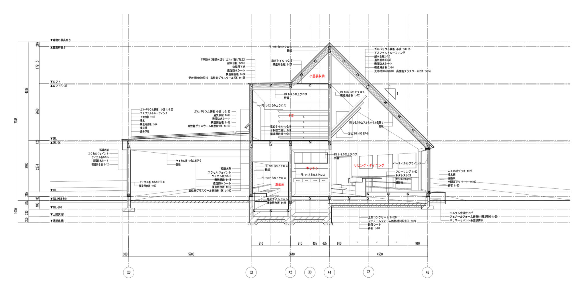
中川宏文 / D.A.による、長崎市の「重像の家」。地形と歴史が“大らかさと緊張感”を生む地域。四方から視認される敷地に対し、強い幾何学で各立面を完結させ“視点の変化で表情が移ろう”建築を考案。“収束を拒む複雑性”と“建築としての完結性”も共存させる断面パース image©D.A.

中川宏文 / D.A.による、長崎市の「重像の家」。地形と歴史が“大らかさと緊張感”を生む地域。四方から視認される敷地に対し、強い幾何学で各立面を完結させ“視点の変化で表情が移ろう”建築を考案。“収束を拒む複雑性”と“建築としての完結性”も共存させる南北東展開立面図 image©D.A.

中川宏文 / D.A.による、長崎市の「重像の家」。地形と歴史が“大らかさと緊張感”を生む地域。四方から視認される敷地に対し、強い幾何学で各立面を完結させ“視点の変化で表情が移ろう”建築を考案。“収束を拒む複雑性”と“建築としての完結性”も共存させる構造モデル image©D.A.
以下、建築家によるテキストです。
ポリフォニックな風景がつくる建築像
敷地は長崎市南部・野母崎半島にあり、東に橘湾、西に丘陵を望む。
山と海が近接するこの地は、谷筋や海岸沿いに集落が形成され、禁教期には潜伏キリシタンの信仰の場でもあった。一見長閑に見える風景は、地形と歴史の重なりによって独特の大らかさと緊張感を漂わせている。
この地域において、建築にどのようなかたちを与え、意味を生み出し、住人の生活と共に風景の一部として存在できるか、思考を積み重ねた。
都市密集地では限られた立面が建築の表情を担うが、この敷地では建物が四方から視認され、すべての立面が町に作用する。そこで強い幾何学を用いて各立面に完結したかたちをつくり、視点の変化に応じて表情が移ろう形態を探った。
外壁のガルバリウム鋼板素地は空の色を映し、天候や時間帯によって表情を変える。開口部同士の重なりは向こう側の風景を建築に取り込み、より動的な表情を生む。そして、コンテクストと重なり合うことで、海を受け止める力強さや民家の親密さ、あるいは教会を想起させる垂直性を示す。単一の像への収束を拒む複雑性と1つの建築としての完結性の共存を目指した。
内部は緊張と弛緩の対比によって構成される。アルミホイルを乱張りした天井は、細い方杖に支えられ、東西の窓から取り込んだ光を反射し、灰色の空間に動的な表情と緊張感を与える。プランは45度に振ったグリッドを導入し、内外が連続するように開口部を配置した。そして、床の高低差や円弧を描くダイニングや階段によって緩やかに分節することで空間に多様な定位と視線の抜けをつくった。
黒い空間は、灰色の空間に円弧状にせり出すようにして、半地下の洗面室や浴室、リビングダイニングキッチン、閉じたウォークインクローゼットと海へ開かれた寝室へと繋がっていく。
寝室では黒い空間にフレーミングされ広大な自然のスケールが一気に立ち現れ、見下ろせば、生活の中心である象徴的なダイニングキッチンが灰色の空間に見える。目の前に広がる海と空の開放感は、その対比によって、足元に確かに存在する生活の落ち着きと安心感を再認識させてくれる。
建築は、複数の意味を帯びながら、それぞれの関係性の中で多様なあり方を示すことができる。
そして、住人の感情と重なり合い、日々の生活の中で新たな表情を見せ続けてくれる。こうして生まれるポリフォニックな風景は、この地域の歴史や風土と呼応しながら、住宅という機能を超えて人びとの意識の中に重層的な建築像を浮かび上がらせる。
■建築概要
建物名称:重像の家
所在地:長崎県長崎市
主要用途:専用住宅
家族構成:夫婦
設計:D.A. 担当/中川宏文
構造:株式会社ディックス 担当/辻拓也
施工:株式会社ムラヤマ 担当/塚原史人
基礎工事:幸建 栗原幸二
木工事、造作工事:株式会社ムラヤマ 大工/石丸直孝
プレカット工事:株式会社富建 担当/皆木康裕
板金工事:梅崎板金 担当/梅崎忠彦
木製建具工事:前田木工所 担当/前田明
内装工事:インテリア小林 担当/小林弘和
設備:エムズ設備 担当/宮田賢
電気・太陽光・蓄電池:株式会社シンテック 担当/大瀬徹之
左官・外構・造園工事:株式会社ムラヤマ 左官/濱崎雅
主体構造・構法:木造軸組
基礎:布基礎(一部べた基礎)
階数:地上階2階
地域地区:指定なし
道路幅員:東4.7m
駐車台数:2台
軒高:7172mm
最高高さ:7388mm
敷地面積:332.44㎡
建築面積:95.60㎡(建蔽率28.79% 許容70%)
延床面積:94.34㎡(容積率28.37% 許容200%)
1階床面積:92.79㎡(駐車場を含める)
2階床面積:25.13㎡
設計期間:2023年5月~2024年10月
工事期間:2024年12月~2025年7月
撮影:楠瀬友将