竹山聖 / 設計組織アモルフによる、さいたま市の「双恵幼稚園」。“子供が世界に触れる場所”として構想された施設。思い掛けない出会いの創出も意図し、保育室群の中心に“外と内の二つの中庭”を配置する構成を考案。子供達の可能性の拡大を願って宇宙を感じる要素も散りばめる外観、西側の道路より見る。 photo©Satoshi Asakawa
竹山聖 / 設計組織アモルフによる、さいたま市の「双恵幼稚園」。“子供が世界に触れる場所”として構想された施設。思い掛けない出会いの創出も意図し、保育室群の中心に“外と内の二つの中庭”を配置する構成を考案。子供達の可能性の拡大を願って宇宙を感じる要素も散りばめる外観、敷地内の南側より見る。 photo©Satoshi Asakawa
竹山聖 / 設計組織アモルフによる、さいたま市の「双恵幼稚園」。“子供が世界に触れる場所”として構想された施設。思い掛けない出会いの創出も意図し、保育室群の中心に“外と内の二つの中庭”を配置する構成を考案。子供達の可能性の拡大を願って宇宙を感じる要素も散りばめる2階、「天空のテラス」 photo©Satoshi Asakawa
竹山聖 / 設計組織アモルフによる、さいたま市の「双恵幼稚園」。“子供が世界に触れる場所”として構想された施設。思い掛けない出会いの創出も意図し、保育室群の中心に“外と内の二つの中庭”を配置する構成を考案。子供達の可能性の拡大を願って宇宙を感じる要素も散りばめる2階、ギャラリーから吹抜越しに1階への階段を見る。夜景 photo©Satoshi Asakawa
竹山聖 / 設計組織アモルフが設計した、埼玉・さいたま市の「双恵幼稚園」です。
“子供が世界に触れる場所”として構想された施設です。建築家は、思い掛けない出会いの創出も意図し、保育室群の中心に“外と内の二つの中庭”を配置する構成を考案しました。また、子供達の可能性の拡大を願って宇宙を感じる要素も散りばめられました。
幼稚園は子供が世界に触れる場所だ。
この世の中には家族や自分以外の人々が生きていて、一緒に何かをするためにはルールがあって、でもそんな約束事に則って一緒に何かを達成したら、自分一人でやるよりはるかに大きな喜びがある。自身の可能性もまた広がる。そんなこんなをそれなりに幼な心に刻みつけながら、別の誰かと一緒にいることの戸惑いと喜びのなかに、出会いと出来事のステージを見出していけるような場所、それが幼稚園だ。
幼稚園は教育施設である、そのようなイメージを大切に考えてほしい、と園長夫妻から最初に要望を受けた。このことを受けて、保育室の配置はグリッド上に規則的に配列された柱による秩序を基本とすることにした。
それら保育室群の中心にアトリウム(内の中庭)および天空のテラスと大地のテラス(外の中庭)を配して、思いがけない出会いがもたらされる場が生まれることを期待した。楕円形の吹き抜けには階段が置かれて、これはみごとに上と下の視線が交錯する立体的な出会いの場となってくれたと思う。アトリウムの天井には、さまざまな思考と試行の果てに、北極星の方向に向かう天窓が置かれることになった。
グリッドからやや逸脱する形をもつ遊戯室にはグレースホールという名称があらかじめ与えられていて、十字架の位置や天井の高さ、光の入り方などに配慮を重ねながら、子供たちの未来の記憶に残る空間ができたのではないかと考えている。遊戯室空間の矩形のボリュームを切り取るように南西側に大きく開かれた高窓には、旧園舎にあって卒園生たちの記憶に残っているというステンドグラスを、そのスケールを拡大してより光の印象を強めるようにデザインしCosmological Garden(宇宙の庭)と命名した。
すでに気づかれているように、この幼稚園の空間構成や部位の形にはその端々に宇宙のメタフォアが用いられている。
これは出会いの場の形として構想された外と内の二つの中庭に、やや角度をずらした二つの楕円形を配したことにはじまっている。双恵はDouble Graceの訳語であり、この二つの慈愛の心を二つの楕円で表象してみたらどうかと考えたからなのだが、楕円は惑星軌道を想起させ、そうか、幼稚園が世界と出会う場所であるなら、宇宙に思いを馳せる場所であってもいいわけだ。
世界と出会い、宇宙という大自然の秩序の存在に触れることによって、子供たちの未来はより豊かなものになるのではないか、その時は気づかなくても、あとになって振り返って、人生の折々にその可能性を広げる契機を与えてくれるようになるのではないか。そんな祈りのような気持ちをこめて、幼稚園空間のあちこちに宇宙の物語を感じさせるエレメントを散りばめることにした。
以下の写真はクリックで拡大します

竹山聖 / 設計組織アモルフによる、さいたま市の「双恵幼稚園」。“子供が世界に触れる場所”として構想された施設。思い掛けない出会いの創出も意図し、保育室群の中心に“外と内の二つの中庭”を配置する構成を考案。子供達の可能性の拡大を願って宇宙を感じる要素も散りばめる外観、西側の道路より見る。 photo©Satoshi Asakawa

竹山聖 / 設計組織アモルフによる、さいたま市の「双恵幼稚園」。“子供が世界に触れる場所”として構想された施設。思い掛けない出会いの創出も意図し、保育室群の中心に“外と内の二つの中庭”を配置する構成を考案。子供達の可能性の拡大を願って宇宙を感じる要素も散りばめる外観、西側の道路より見上げる。 photo©Satoshi Asakawa

竹山聖 / 設計組織アモルフによる、さいたま市の「双恵幼稚園」。“子供が世界に触れる場所”として構想された施設。思い掛けない出会いの創出も意図し、保育室群の中心に“外と内の二つの中庭”を配置する構成を考案。子供達の可能性の拡大を願って宇宙を感じる要素も散りばめる外観、東側の道路より見る。 photo©Satoshi Asakawa

竹山聖 / 設計組織アモルフによる、さいたま市の「双恵幼稚園」。“子供が世界に触れる場所”として構想された施設。思い掛けない出会いの創出も意図し、保育室群の中心に“外と内の二つの中庭”を配置する構成を考案。子供達の可能性の拡大を願って宇宙を感じる要素も散りばめる外観、東側の道路より見る。 photo©Satoshi Asakawa

竹山聖 / 設計組織アモルフによる、さいたま市の「双恵幼稚園」。“子供が世界に触れる場所”として構想された施設。思い掛けない出会いの創出も意図し、保育室群の中心に“外と内の二つの中庭”を配置する構成を考案。子供達の可能性の拡大を願って宇宙を感じる要素も散りばめる外壁の詳細 photo©Amorphe

竹山聖 / 設計組織アモルフによる、さいたま市の「双恵幼稚園」。“子供が世界に触れる場所”として構想された施設。思い掛けない出会いの創出も意図し、保育室群の中心に“外と内の二つの中庭”を配置する構成を考案。子供達の可能性の拡大を願って宇宙を感じる要素も散りばめる外観、東の道路側よりアプローチを見る。 photo©Satoshi Asakawa

竹山聖 / 設計組織アモルフによる、さいたま市の「双恵幼稚園」。“子供が世界に触れる場所”として構想された施設。思い掛けない出会いの創出も意図し、保育室群の中心に“外と内の二つの中庭”を配置する構成を考案。子供達の可能性の拡大を願って宇宙を感じる要素も散りばめる外観、敷地内の南側より見る。 photo©Satoshi Asakawa

竹山聖 / 設計組織アモルフによる、さいたま市の「双恵幼稚園」。“子供が世界に触れる場所”として構想された施設。思い掛けない出会いの創出も意図し、保育室群の中心に“外と内の二つの中庭”を配置する構成を考案。子供達の可能性の拡大を願って宇宙を感じる要素も散りばめる外観、敷地内の南西側より見る。 photo©Satoshi Asakawa

竹山聖 / 設計組織アモルフによる、さいたま市の「双恵幼稚園」。“子供が世界に触れる場所”として構想された施設。思い掛けない出会いの創出も意図し、保育室群の中心に“外と内の二つの中庭”を配置する構成を考案。子供達の可能性の拡大を願って宇宙を感じる要素も散りばめる1階、「大地のテラス」 photo©Satoshi Asakawa

竹山聖 / 設計組織アモルフによる、さいたま市の「双恵幼稚園」。“子供が世界に触れる場所”として構想された施設。思い掛けない出会いの創出も意図し、保育室群の中心に“外と内の二つの中庭”を配置する構成を考案。子供達の可能性の拡大を願って宇宙を感じる要素も散りばめる1階、「大地のテラス」 photo©Satoshi Asakawa

竹山聖 / 設計組織アモルフによる、さいたま市の「双恵幼稚園」。“子供が世界に触れる場所”として構想された施設。思い掛けない出会いの創出も意図し、保育室群の中心に“外と内の二つの中庭”を配置する構成を考案。子供達の可能性の拡大を願って宇宙を感じる要素も散りばめる1階、「大地のテラス」と「天空のテラス」をつなぐ階段 photo©Satoshi Asakawa

竹山聖 / 設計組織アモルフによる、さいたま市の「双恵幼稚園」。“子供が世界に触れる場所”として構想された施設。思い掛けない出会いの創出も意図し、保育室群の中心に“外と内の二つの中庭”を配置する構成を考案。子供達の可能性の拡大を願って宇宙を感じる要素も散りばめる2階、「天空のテラス」 photo©Satoshi Asakawa

竹山聖 / 設計組織アモルフによる、さいたま市の「双恵幼稚園」。“子供が世界に触れる場所”として構想された施設。思い掛けない出会いの創出も意図し、保育室群の中心に“外と内の二つの中庭”を配置する構成を考案。子供達の可能性の拡大を願って宇宙を感じる要素も散りばめる2階、「天空のテラス」 photo©Satoshi Asakawa

竹山聖 / 設計組織アモルフによる、さいたま市の「双恵幼稚園」。“子供が世界に触れる場所”として構想された施設。思い掛けない出会いの創出も意図し、保育室群の中心に“外と内の二つの中庭”を配置する構成を考案。子供達の可能性の拡大を願って宇宙を感じる要素も散りばめる2階、「天空のテラス」 photo©So Matsuo

竹山聖 / 設計組織アモルフによる、さいたま市の「双恵幼稚園」。“子供が世界に触れる場所”として構想された施設。思い掛けない出会いの創出も意図し、保育室群の中心に“外と内の二つの中庭”を配置する構成を考案。子供達の可能性の拡大を願って宇宙を感じる要素も散りばめる2階、「天空のテラス」 photo©So Matsuo

竹山聖 / 設計組織アモルフによる、さいたま市の「双恵幼稚園」。“子供が世界に触れる場所”として構想された施設。思い掛けない出会いの創出も意図し、保育室群の中心に“外と内の二つの中庭”を配置する構成を考案。子供達の可能性の拡大を願って宇宙を感じる要素も散りばめる2階、「天空のテラス」 photo©So Matsuo

竹山聖 / 設計組織アモルフによる、さいたま市の「双恵幼稚園」。“子供が世界に触れる場所”として構想された施設。思い掛けない出会いの創出も意図し、保育室群の中心に“外と内の二つの中庭”を配置する構成を考案。子供達の可能性の拡大を願って宇宙を感じる要素も散りばめる2階、「天空のテラス」 photo©Amorphe

竹山聖 / 設計組織アモルフによる、さいたま市の「双恵幼稚園」。“子供が世界に触れる場所”として構想された施設。思い掛けない出会いの創出も意図し、保育室群の中心に“外と内の二つの中庭”を配置する構成を考案。子供達の可能性の拡大を願って宇宙を感じる要素も散りばめる2階、「天空のテラス」 photo©Satoshi Asakawa

竹山聖 / 設計組織アモルフによる、さいたま市の「双恵幼稚園」。“子供が世界に触れる場所”として構想された施設。思い掛けない出会いの創出も意図し、保育室群の中心に“外と内の二つの中庭”を配置する構成を考案。子供達の可能性の拡大を願って宇宙を感じる要素も散りばめる2階、「天空のテラス」 photo©Satoshi Asakawa

竹山聖 / 設計組織アモルフによる、さいたま市の「双恵幼稚園」。“子供が世界に触れる場所”として構想された施設。思い掛けない出会いの創出も意図し、保育室群の中心に“外と内の二つの中庭”を配置する構成を考案。子供達の可能性の拡大を願って宇宙を感じる要素も散りばめる2階、「天空のテラス」より多目的室の開口部を見る。 photo©Satoshi Asakawa

竹山聖 / 設計組織アモルフによる、さいたま市の「双恵幼稚園」。“子供が世界に触れる場所”として構想された施設。思い掛けない出会いの創出も意図し、保育室群の中心に“外と内の二つの中庭”を配置する構成を考案。子供達の可能性の拡大を願って宇宙を感じる要素も散りばめる1階、職員室側からアトリウムを見る。 photo©Amorphe

竹山聖 / 設計組織アモルフによる、さいたま市の「双恵幼稚園」。“子供が世界に触れる場所”として構想された施設。思い掛けない出会いの創出も意図し、保育室群の中心に“外と内の二つの中庭”を配置する構成を考案。子供達の可能性の拡大を願って宇宙を感じる要素も散りばめる1階、アトリウムから吹抜越しに2回を見上げる。 photo©Satoshi Asakawa

竹山聖 / 設計組織アモルフによる、さいたま市の「双恵幼稚園」。“子供が世界に触れる場所”として構想された施設。思い掛けない出会いの創出も意図し、保育室群の中心に“外と内の二つの中庭”を配置する構成を考案。子供達の可能性の拡大を願って宇宙を感じる要素も散りばめる2階、ギャラリー photo©Satoshi Asakawa

竹山聖 / 設計組織アモルフによる、さいたま市の「双恵幼稚園」。“子供が世界に触れる場所”として構想された施設。思い掛けない出会いの創出も意図し、保育室群の中心に“外と内の二つの中庭”を配置する構成を考案。子供達の可能性の拡大を願って宇宙を感じる要素も散りばめる2階、ギャラリー photo©Satoshi Asakawa

竹山聖 / 設計組織アモルフによる、さいたま市の「双恵幼稚園」。“子供が世界に触れる場所”として構想された施設。思い掛けない出会いの創出も意図し、保育室群の中心に“外と内の二つの中庭”を配置する構成を考案。子供達の可能性の拡大を願って宇宙を感じる要素も散りばめる2階、ギャラリー、トップライトを見上げる。 photo©So Matsuo

竹山聖 / 設計組織アモルフによる、さいたま市の「双恵幼稚園」。“子供が世界に触れる場所”として構想された施設。思い掛けない出会いの創出も意図し、保育室群の中心に“外と内の二つの中庭”を配置する構成を考案。子供達の可能性の拡大を願って宇宙を感じる要素も散りばめる2階、ギャラリー photo©Satoshi Asakawa

竹山聖 / 設計組織アモルフによる、さいたま市の「双恵幼稚園」。“子供が世界に触れる場所”として構想された施設。思い掛けない出会いの創出も意図し、保育室群の中心に“外と内の二つの中庭”を配置する構成を考案。子供達の可能性の拡大を願って宇宙を感じる要素も散りばめる2階、「グレースホール」への出入口を見る。 photo©Amorphe

竹山聖 / 設計組織アモルフによる、さいたま市の「双恵幼稚園」。“子供が世界に触れる場所”として構想された施設。思い掛けない出会いの創出も意図し、保育室群の中心に“外と内の二つの中庭”を配置する構成を考案。子供達の可能性の拡大を願って宇宙を感じる要素も散りばめる2階、「グレースホール」 photo©Satoshi Asakawa

竹山聖 / 設計組織アモルフによる、さいたま市の「双恵幼稚園」。“子供が世界に触れる場所”として構想された施設。思い掛けない出会いの創出も意図し、保育室群の中心に“外と内の二つの中庭”を配置する構成を考案。子供達の可能性の拡大を願って宇宙を感じる要素も散りばめる2階、「グレースホール」 photo©Amorphe

竹山聖 / 設計組織アモルフによる、さいたま市の「双恵幼稚園」。“子供が世界に触れる場所”として構想された施設。思い掛けない出会いの創出も意図し、保育室群の中心に“外と内の二つの中庭”を配置する構成を考案。子供達の可能性の拡大を願って宇宙を感じる要素も散りばめる2階、「グレースホール」 photo©Satoshi Asakawa

竹山聖 / 設計組織アモルフによる、さいたま市の「双恵幼稚園」。“子供が世界に触れる場所”として構想された施設。思い掛けない出会いの創出も意図し、保育室群の中心に“外と内の二つの中庭”を配置する構成を考案。子供達の可能性の拡大を願って宇宙を感じる要素も散りばめる2階、「グレースホール」、開口部を見上げる。 photo©Amorphe

竹山聖 / 設計組織アモルフによる、さいたま市の「双恵幼稚園」。“子供が世界に触れる場所”として構想された施設。思い掛けない出会いの創出も意図し、保育室群の中心に“外と内の二つの中庭”を配置する構成を考案。子供達の可能性の拡大を願って宇宙を感じる要素も散りばめる2階、多目的室への出入口を見る。 photo©Satoshi Asakawa

竹山聖 / 設計組織アモルフによる、さいたま市の「双恵幼稚園」。“子供が世界に触れる場所”として構想された施設。思い掛けない出会いの創出も意図し、保育室群の中心に“外と内の二つの中庭”を配置する構成を考案。子供達の可能性の拡大を願って宇宙を感じる要素も散りばめる2階、多目的室 photo©Satoshi Asakawa

竹山聖 / 設計組織アモルフによる、さいたま市の「双恵幼稚園」。“子供が世界に触れる場所”として構想された施設。思い掛けない出会いの創出も意図し、保育室群の中心に“外と内の二つの中庭”を配置する構成を考案。子供達の可能性の拡大を願って宇宙を感じる要素も散りばめる2階、多目的室 photo©Satoshi Asakawa

竹山聖 / 設計組織アモルフによる、さいたま市の「双恵幼稚園」。“子供が世界に触れる場所”として構想された施設。思い掛けない出会いの創出も意図し、保育室群の中心に“外と内の二つの中庭”を配置する構成を考案。子供達の可能性の拡大を願って宇宙を感じる要素も散りばめる2階、4歳児保育室 photo©Satoshi Asakawa

竹山聖 / 設計組織アモルフによる、さいたま市の「双恵幼稚園」。“子供が世界に触れる場所”として構想された施設。思い掛けない出会いの創出も意図し、保育室群の中心に“外と内の二つの中庭”を配置する構成を考案。子供達の可能性の拡大を願って宇宙を感じる要素も散りばめる2階、4歳児保育室 photo©Satoshi Asakawa

竹山聖 / 設計組織アモルフによる、さいたま市の「双恵幼稚園」。“子供が世界に触れる場所”として構想された施設。思い掛けない出会いの創出も意図し、保育室群の中心に“外と内の二つの中庭”を配置する構成を考案。子供達の可能性の拡大を願って宇宙を感じる要素も散りばめる2階、5歳児保育室 photo©Satoshi Asakawa

竹山聖 / 設計組織アモルフによる、さいたま市の「双恵幼稚園」。“子供が世界に触れる場所”として構想された施設。思い掛けない出会いの創出も意図し、保育室群の中心に“外と内の二つの中庭”を配置する構成を考案。子供達の可能性の拡大を願って宇宙を感じる要素も散りばめる1階、2歳児保育室 photo©Satoshi Asakawa

竹山聖 / 設計組織アモルフによる、さいたま市の「双恵幼稚園」。“子供が世界に触れる場所”として構想された施設。思い掛けない出会いの創出も意図し、保育室群の中心に“外と内の二つの中庭”を配置する構成を考案。子供達の可能性の拡大を願って宇宙を感じる要素も散りばめる1階、2歳児保育室の園児用トイレ photo©Satoshi Asakawa

竹山聖 / 設計組織アモルフによる、さいたま市の「双恵幼稚園」。“子供が世界に触れる場所”として構想された施設。思い掛けない出会いの創出も意図し、保育室群の中心に“外と内の二つの中庭”を配置する構成を考案。子供達の可能性の拡大を願って宇宙を感じる要素も散りばめる1階、3歳児保育室 photo©Satoshi Asakawa

竹山聖 / 設計組織アモルフによる、さいたま市の「双恵幼稚園」。“子供が世界に触れる場所”として構想された施設。思い掛けない出会いの創出も意図し、保育室群の中心に“外と内の二つの中庭”を配置する構成を考案。子供達の可能性の拡大を願って宇宙を感じる要素も散りばめる階段手摺の詳細 photo©Satoshi Asakawa

竹山聖 / 設計組織アモルフによる、さいたま市の「双恵幼稚園」。“子供が世界に触れる場所”として構想された施設。思い掛けない出会いの創出も意図し、保育室群の中心に“外と内の二つの中庭”を配置する構成を考案。子供達の可能性の拡大を願って宇宙を感じる要素も散りばめるサイン photo©Satoshi Asakawa

竹山聖 / 設計組織アモルフによる、さいたま市の「双恵幼稚園」。“子供が世界に触れる場所”として構想された施設。思い掛けない出会いの創出も意図し、保育室群の中心に“外と内の二つの中庭”を配置する構成を考案。子供達の可能性の拡大を願って宇宙を感じる要素も散りばめる2階、ギャラリーから吹抜越しに1階への階段を見る。夜景 photo©Satoshi Asakawa

竹山聖 / 設計組織アモルフによる、さいたま市の「双恵幼稚園」。“子供が世界に触れる場所”として構想された施設。思い掛けない出会いの創出も意図し、保育室群の中心に“外と内の二つの中庭”を配置する構成を考案。子供達の可能性の拡大を願って宇宙を感じる要素も散りばめる2階から1階への階段。夜景 photo©Satoshi Asakawa

竹山聖 / 設計組織アモルフによる、さいたま市の「双恵幼稚園」。“子供が世界に触れる場所”として構想された施設。思い掛けない出会いの創出も意図し、保育室群の中心に“外と内の二つの中庭”を配置する構成を考案。子供達の可能性の拡大を願って宇宙を感じる要素も散りばめる1階、アトリウム。夜景 photo©Amorphe

竹山聖 / 設計組織アモルフによる、さいたま市の「双恵幼稚園」。“子供が世界に触れる場所”として構想された施設。思い掛けない出会いの創出も意図し、保育室群の中心に“外と内の二つの中庭”を配置する構成を考案。子供達の可能性の拡大を願って宇宙を感じる要素も散りばめる外観、敷地内の南西側より見る。夜景 photo©Satoshi Asakawa

竹山聖 / 設計組織アモルフによる、さいたま市の「双恵幼稚園」。“子供が世界に触れる場所”として構想された施設。思い掛けない出会いの創出も意図し、保育室群の中心に“外と内の二つの中庭”を配置する構成を考案。子供達の可能性の拡大を願って宇宙を感じる要素も散りばめる外観、西側の道路より見る。夜景 photo©Satoshi Asakawa

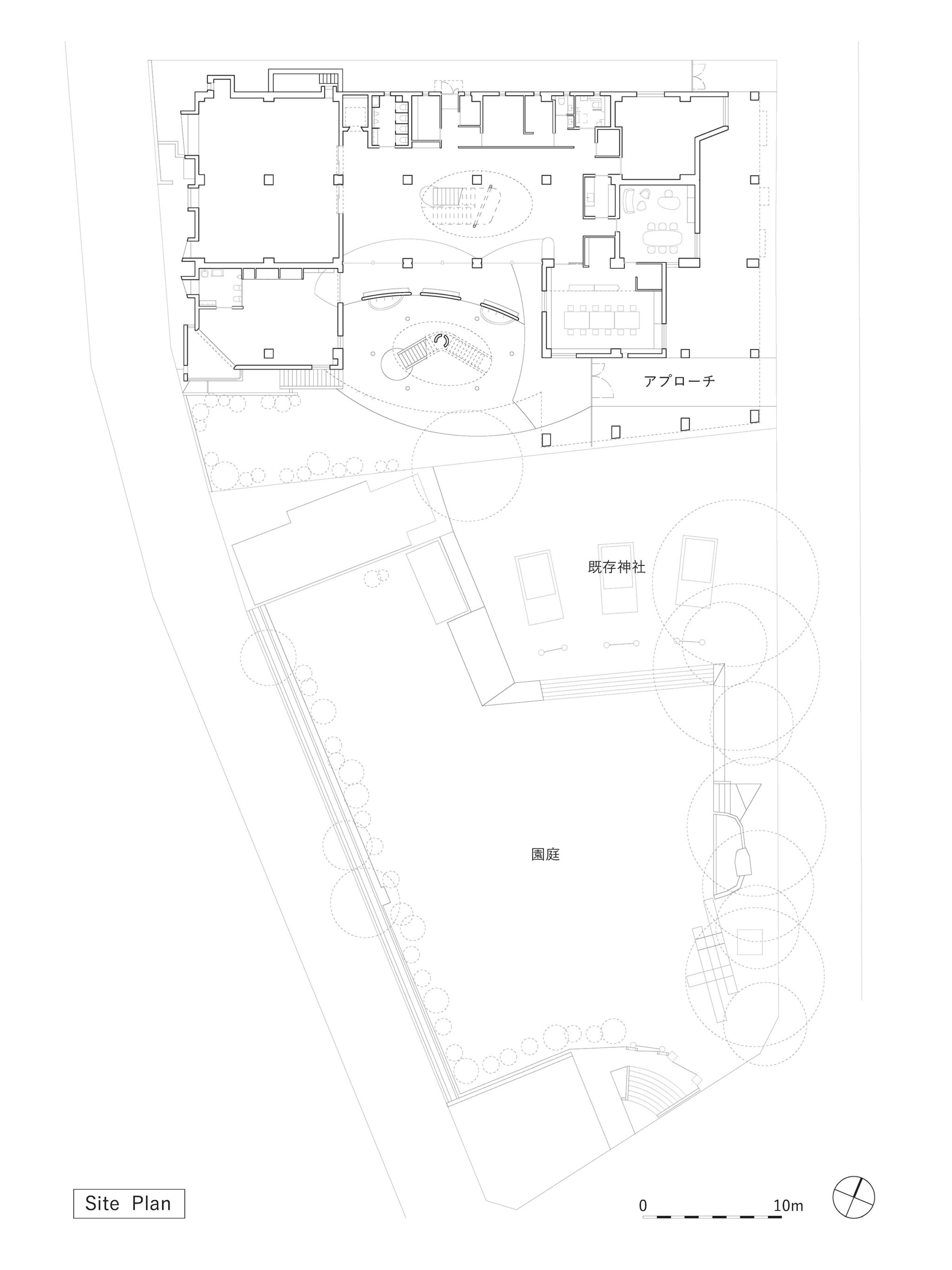
竹山聖 / 設計組織アモルフによる、さいたま市の「双恵幼稚園」。“子供が世界に触れる場所”として構想された施設。思い掛けない出会いの創出も意図し、保育室群の中心に“外と内の二つの中庭”を配置する構成を考案。子供達の可能性の拡大を願って宇宙を感じる要素も散りばめる配置図 image©設計組織アモルフ

竹山聖 / 設計組織アモルフによる、さいたま市の「双恵幼稚園」。“子供が世界に触れる場所”として構想された施設。思い掛けない出会いの創出も意図し、保育室群の中心に“外と内の二つの中庭”を配置する構成を考案。子供達の可能性の拡大を願って宇宙を感じる要素も散りばめる地下1階平面図 image©設計組織アモルフ

竹山聖 / 設計組織アモルフによる、さいたま市の「双恵幼稚園」。“子供が世界に触れる場所”として構想された施設。思い掛けない出会いの創出も意図し、保育室群の中心に“外と内の二つの中庭”を配置する構成を考案。子供達の可能性の拡大を願って宇宙を感じる要素も散りばめる1階平面図 image©設計組織アモルフ

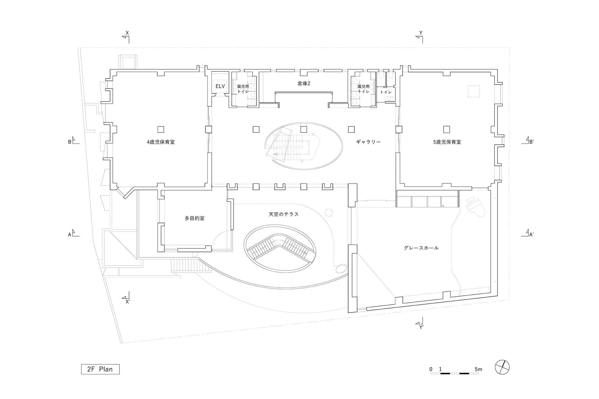
竹山聖 / 設計組織アモルフによる、さいたま市の「双恵幼稚園」。“子供が世界に触れる場所”として構想された施設。思い掛けない出会いの創出も意図し、保育室群の中心に“外と内の二つの中庭”を配置する構成を考案。子供達の可能性の拡大を願って宇宙を感じる要素も散りばめる2階平面図 image©設計組織アモルフ

竹山聖 / 設計組織アモルフによる、さいたま市の「双恵幼稚園」。“子供が世界に触れる場所”として構想された施設。思い掛けない出会いの創出も意図し、保育室群の中心に“外と内の二つの中庭”を配置する構成を考案。子供達の可能性の拡大を願って宇宙を感じる要素も散りばめる3階平面図 image©設計組織アモルフ

竹山聖 / 設計組織アモルフによる、さいたま市の「双恵幼稚園」。“子供が世界に触れる場所”として構想された施設。思い掛けない出会いの創出も意図し、保育室群の中心に“外と内の二つの中庭”を配置する構成を考案。子供達の可能性の拡大を願って宇宙を感じる要素も散りばめる立面図 image©設計組織アモルフ

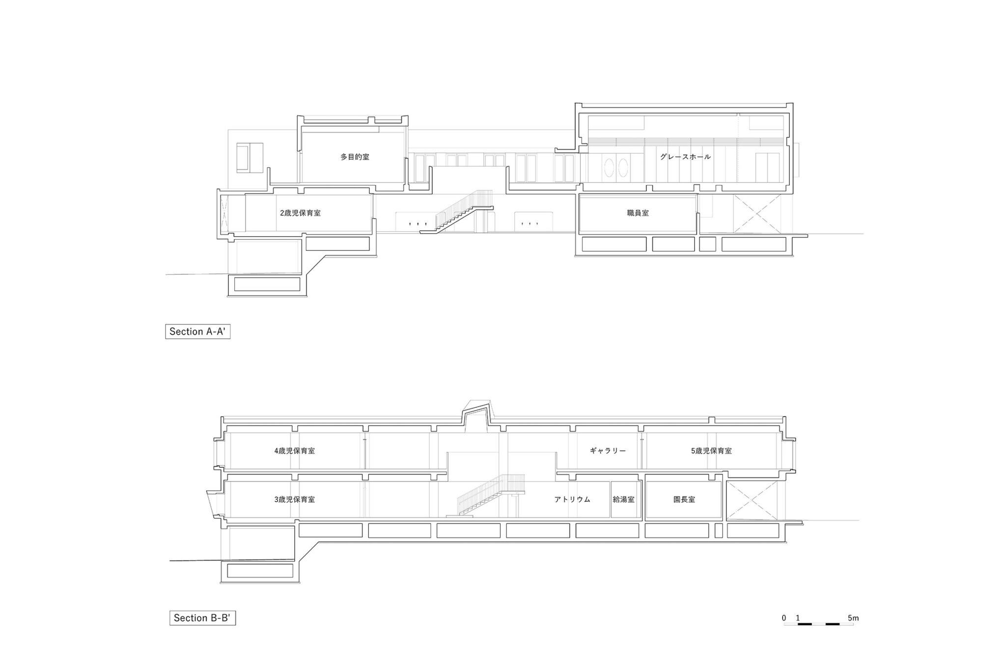
竹山聖 / 設計組織アモルフによる、さいたま市の「双恵幼稚園」。“子供が世界に触れる場所”として構想された施設。思い掛けない出会いの創出も意図し、保育室群の中心に“外と内の二つの中庭”を配置する構成を考案。子供達の可能性の拡大を願って宇宙を感じる要素も散りばめる断面図 image©設計組織アモルフ

竹山聖 / 設計組織アモルフによる、さいたま市の「双恵幼稚園」。“子供が世界に触れる場所”として構想された施設。思い掛けない出会いの創出も意図し、保育室群の中心に“外と内の二つの中庭”を配置する構成を考案。子供達の可能性の拡大を願って宇宙を感じる要素も散りばめる断面図 image©設計組織アモルフ

竹山聖 / 設計組織アモルフによる、さいたま市の「双恵幼稚園」。“子供が世界に触れる場所”として構想された施設。思い掛けない出会いの創出も意図し、保育室群の中心に“外と内の二つの中庭”を配置する構成を考案。子供達の可能性の拡大を願って宇宙を感じる要素も散りばめるアトリウムの施工中写真 photo©Amorphe

竹山聖 / 設計組織アモルフによる、さいたま市の「双恵幼稚園」。“子供が世界に触れる場所”として構想された施設。思い掛けない出会いの創出も意図し、保育室群の中心に“外と内の二つの中庭”を配置する構成を考案。子供達の可能性の拡大を願って宇宙を感じる要素も散りばめるアトリウムの施工中写真 photo©Amorphe
以下、建築家によるテキストです。
宇宙と世界に出会う幼稚園
幼稚園は子供が世界に触れる場所だ。
この世の中には家族や自分以外の人々が生きていて、一緒に何かをするためにはルールがあって、でもそんな約束事に則って一緒に何かを達成したら、自分一人でやるよりはるかに大きな喜びがある。自身の可能性もまた広がる。そんなこんなをそれなりに幼な心に刻みつけながら、別の誰かと一緒にいることの戸惑いと喜びのなかに、出会いと出来事のステージを見出していけるような場所、それが幼稚園だ。
実は私は三つの幼稚園に行っている。東京の荻窪と、大阪の住之江、そして豊中。2年保育の最初の年を荻窪の双百合幼稚園で過ごし、次の年の前半を大和川幼稚園、そして後半を梅花幼稚園。それぞれカトリック、無宗教、そしてプロテスタントの幼稚園だ。そうした場所や出来事を、私はとてもよく覚えている。
双百合幼稚園で習いはじめたピアノのこと、秋月先生という若く美しい女の先生、静謐な時と空間。
大和川幼稚園の下町的な雰囲気、パンにつける小さな木のヘラ付きの黄色いバターの箱、「走りいしょーや」と呼びにくる友達、男の先生にバイオリンを習うことになり、綺麗な音でなく強く弓を弦にあてて弾くことが求められたこと。
梅花幼稚園の上の庭と下の庭。部屋に置かれた積み木の箱のような遊具、カーロくんとジミーくんという宣教師の息子たち兄弟の面白い振る舞い、初めて異性というものを意識したこと。幼稚園で子供は初めてさまざまな世界に触れるのだ。
北浦和の駅から中山道に沿って北上し、少し東に入った針ヶ谷という地域に双恵幼稚園はある。
プロテスタント系の幼稚園だが、敷地には神社があって、小さな三つの社が鎮座している。というより、神社の境内にキリスト教の幼稚園が共存しているのである。新しい園舎は社の北側にある美しい芝生ばりの園庭に計画された。敷地の西端は一段低い位置にある道路に向かって傾斜していて子供達がそこを滑って元気に遊んでいる。初めて敷地を訪れた時、この緑の斜面で遊ぶ子供たちの姿が強く印象に残った。
新しい園舎には東の道路からのアクセスが自然であり、駐車スペースもそちら側に取られるが、内の生活を外に出さず外からも守られ、周囲を取り囲む住宅や北側のマンションとも心理的な距離を取るために中庭型にすると良いだろう、という計画の方向性がすぐに浮かんだ。西側の道路からは一段高いところに計画地はあり、見通しも良いことから、東からのアプローチの先に夕陽に向かって抜けていく風景をとりこみたいとも思った。
幼稚園は教育施設である、そのようなイメージを大切に考えてほしい、と園長夫妻から最初に要望を受けた。このことを受けて、保育室の配置はグリッド上に規則的に配列された柱による秩序を基本とすることにした。
それら保育室群の中心にアトリウム(内の中庭)および天空のテラスと大地のテラス(外の中庭)を配して、思いがけない出会いがもたらされる場が生まれることを期待した。楕円形の吹き抜けには階段が置かれて、これはみごとに上と下の視線が交錯する立体的な出会いの場となってくれたと思う。アトリウムの天井には、さまざまな思考と試行の果てに、北極星の方向に向かう天窓が置かれることになった。
グリッドからやや逸脱する形をもつ遊戯室にはグレースホールという名称があらかじめ与えられていて、十字架の位置や天井の高さ、光の入り方などに配慮を重ねながら、子供たちの未来の記憶に残る空間ができたのではないかと考えている。遊戯室空間の矩形のボリュームを切り取るように南西側に大きく開かれた高窓には、旧園舎にあって卒園生たちの記憶に残っているというステンドグラスを、そのスケールを拡大してより光の印象を強めるようにデザインしCosmological Garden(宇宙の庭)と命名した。
すでに気づかれているように、この幼稚園の空間構成や部位の形にはその端々に宇宙のメタフォアが用いられている。
これは出会いの場の形として構想された外と内の二つの中庭に、やや角度をずらした二つの楕円形を配したことにはじまっている。双恵はDouble Graceの訳語であり、この二つの慈愛の心を二つの楕円で表象してみたらどうかと考えたからなのだが、楕円は惑星軌道を想起させ、そうか、幼稚園が世界と出会う場所であるなら、宇宙に思いを馳せる場所であってもいいわけだ。
世界と出会い、宇宙という大自然の秩序の存在に触れることによって、子供たちの未来はより豊かなものになるのではないか、その時は気づかなくても、あとになって振り返って、人生の折々にその可能性を広げる契機を与えてくれるようになるのではないか。そんな祈りのような気持ちをこめて、幼稚園空間のあちこちに宇宙の物語を感じさせるエレメントを散りばめることにした。
回転する天体の不動の一点としての北極星(都心ではなかなか視認しづらく、そして幼稚園の閉じた夜にのみ見える北極星の見える窓にどれほどの意味があるか、という批判もなくはないかもしれないが、もともと北側の美しい空と光を取り込もうという意図の天窓であるし、可能性、というのは常に尊いものだとも考えているので、お許し願いたい)、天空のテラスの軒に穿たれた太陽を切り取る窓(夏至の南中時にそれは正円となってテラスの床に切り取られた光を落とすはずだ)、扉や窓に用いられた楕円のモチーフ、1/4円の高窓に切り取られあるいは映し出される樹木と空、など。
建築の構成全体に、世界や宇宙の奥に潜む規則や法則への想像力をこめながら、そのエレメントに遊びを挿入する。遊びこそが学びだ。これがこの幼稚園の未来に向けた園長夫妻やこの幼稚園で働く人たち、ここで学び遊び育つ子どもたちやその家族の人たちに向けたささやかな建築的な構想である。
■建築概要
題名:双恵幼稚園
所在地:埼玉県さいたま市
主要用途:幼稚園型認定こども園
建築設計:設計組織アモルフ 担当/竹山聖、高山広野、武田千緩
ジャクエツ(監修) 担当/浦谷勝也、青柳大祐
建築施工:松井建設東京支店 担当/岸川仁
構造設計:株式会社ジャスト 担当/金子寛文、室川貴弘、松下千紗、北村健悟
設備設計:株式会社テーテンス事務所 担当/櫻井修、横川あかり、長谷川茂
監理:設計組織アモルフ 担当/竹山聖、高山広野、武田千緩
株式会社ジャクエツ(監修) 担当/浦谷勝也、青柳大祐
空調・衛生施工:東京ダイヤエアコン 担当/遠藤浩二
電気施工:鷹電 担当/長谷川準
造園:長濱香代子造園設計 担当/長濱香代子、茂木大樹、山本かおり
家具(職員室、園長室、多目的室、クラスマークフレーム):銀杢 担当/高橋文子:
主体構造:鉄筋コンクリート造
階数:地上2階、地下1階
敷地面積:1263.52㎡
建築面積:868.40㎡
延床面積:1731.16㎡
設計期間:2022年6月~2023年8月
施工期間:2023年10月~2025年2月
写真:Satoshi Asakawa、Amorphe