architecturephoto®

  • 特集記事
  • 注目情報
  • タグ
  • 建築
  • アート
  • カルチャー
  • デザイン
  • ファッション
  • 動画
  • 展覧会
  • コンペ
  • 書籍
  • 建築求人
  • すべてのタグ

建築求人情報

Loading...
2025.11.20Thu
2025.11.19Wed
2025.11.21Fri
青柳創と青柳綾夏による、岩手の「金ケ崎の家」。寄棟屋根や左官真壁の採用が必須な地域。意思と無関係に“外形が決まる”状況に対し、通常と異なり“内部の空洞”の支え方を思考せざる負えない設計過程に着目。空洞を実態に変質させるべく極細列柱の構造体を考案
photo©太田拓実

SHARE 青柳創と青柳綾夏による、岩手の「金ケ崎の家」。寄棟屋根や左官真壁の採用が必須な地域。意思と無関係に“外形が決まる”状況に対し、通常と異なり“内部の空洞”の支え方を思考せざる負えない設計過程に着目。空洞を実態に変質させるべく極細列柱の構造体を考案

architecture|feature
アオヤギデザイン佐藤工務店朝光構造設計青柳創青柳綾夏建材(外装・建具)建材(内装・床)建材(内装・キッチン)図面あり店舗兼住宅岩手太田拓実
青柳創と青柳綾夏による、岩手の「金ケ崎の家」。寄棟屋根や左官真壁の採用が必須な地域。意思と無関係に“外形が決まる”状況に対し、通常と異なり“内部の空洞”の支え方を思考せざる負えない設計過程に着目。空洞を実態に変質させるべく極細列柱の構造体を考案外観、西側の道路より見る。 photo©太田拓実
青柳創と青柳綾夏による、岩手の「金ケ崎の家」。寄棟屋根や左官真壁の採用が必須な地域。意思と無関係に“外形が決まる”状況に対し、通常と異なり“内部の空洞”の支え方を思考せざる負えない設計過程に着目。空洞を実態に変質させるべく極細列柱の構造体を考案1階、住宅部分、ダイニングからリビングを見る。 photo©太田拓実
青柳創と青柳綾夏による、岩手の「金ケ崎の家」。寄棟屋根や左官真壁の採用が必須な地域。意思と無関係に“外形が決まる”状況に対し、通常と異なり“内部の空洞”の支え方を思考せざる負えない設計過程に着目。空洞を実態に変質させるべく極細列柱の構造体を考案1階、住宅部分、リビングからダイニングとキッチンを見る。 photo©太田拓実
青柳創と青柳綾夏による、岩手の「金ケ崎の家」。寄棟屋根や左官真壁の採用が必須な地域。意思と無関係に“外形が決まる”状況に対し、通常と異なり“内部の空洞”の支え方を思考せざる負えない設計過程に着目。空洞を実態に変質させるべく極細列柱の構造体を考案2階、住宅部分、小屋裏から吹抜を見る。 photo©太田拓実

青柳創と青柳綾夏が設計した、岩手の「金ケ崎の家」です。
寄棟屋根や左官真壁の採用が必須な地域での計画です。建築家は、意思と無関係に“外形が決まる”状況に対し、通常と異なり“内部の空洞”の支え方を思考せざる負えない設計過程に着目しました。そして、空洞を実態に変質させるべく極細列柱の構造体を考案しました。

この場所は、江戸時代からの武家屋敷群と、それらを囲う生垣が特徴的な街並みを形成する集落の中心「表小路」の突き当りに位置している。伝統的建造物群保存地区の規制がかかり、寄棟屋根で左官の真壁としなければ新築することが許されない。

建築家によるテキストより

間口は広いが奥行きが浅く、地域内では比較的狭い敷地において、外観規制の条件と要求された容積から南北に細長い建物外形がほぼ自動的に導き出された。武家屋敷風の外観を模すことは形骸とも思えたが、この集落にとっては街並みこそが重要な観光資源であり、県外から移住する建主にとっての集落に溶け込むための儀式的な側面もあったため、外観は街並みに馴染ませることを優先した。

一方で、建主や設計者の意思とは無関係に建物の外形が決まるということは、同時に内部に「空洞」を存在させてしまうという、奇妙な「反転」現象を起こしていることに気が付いた。先に空間があるという意味では改修に近いとも思えたが、それともどこか状況が異なる。改修対象の既存には空間に先行する構造体も合わせて存在するからだ。

建築家によるテキストより

つまりこの家は、通常の構造体が空間を形成していく設計・力学のプロセスとは異なり、先行する「空洞」の支え方を思考するという順序がまったく出鱈目の設計ということになる。このことに気が付いた時、新古典主義を代表するエティエンヌ・ルイ・ブーレーによる「ニュートン記念堂」の空洞が頭を過ぎった。ブーレーは建築の内部を宇宙へと「反転」させる巨大な装置を創造したが、この家は形式としての外観が「反転」して、内部に存在起源をもたない白昼夢のような空洞を生じさせているのである。

この空洞に相応しい逆説的な支え方を考えた際、空洞の暗がりの中から朧気に、繊細な柱群が浮かび上がる様を想像した。それは、いわゆる伝統的な古民家にあるはずの骨太で密な小屋組みの存在感が、極細の柱に集約され象徴化されるような様である。

建築家によるテキストより

以下の写真はクリックで拡大します

青柳創と青柳綾夏による、岩手の「金ケ崎の家」。寄棟屋根や左官真壁の採用が必須な地域。意思と無関係に“外形が決まる”状況に対し、通常と異なり“内部の空洞”の支え方を思考せざる負えない設計過程に着目。空洞を実態に変質させるべく極細列柱の構造体を考案外観、西側より見る。 photo©太田拓実
青柳創と青柳綾夏による、岩手の「金ケ崎の家」。寄棟屋根や左官真壁の採用が必須な地域。意思と無関係に“外形が決まる”状況に対し、通常と異なり“内部の空洞”の支え方を思考せざる負えない設計過程に着目。空洞を実態に変質させるべく極細列柱の構造体を考案外観、西側の道路より見る。 photo©太田拓実
青柳創と青柳綾夏による、岩手の「金ケ崎の家」。寄棟屋根や左官真壁の採用が必須な地域。意思と無関係に“外形が決まる”状況に対し、通常と異なり“内部の空洞”の支え方を思考せざる負えない設計過程に着目。空洞を実態に変質させるべく極細列柱の構造体を考案外観、東側より見る。 photo©太田拓実
青柳創と青柳綾夏による、岩手の「金ケ崎の家」。寄棟屋根や左官真壁の採用が必須な地域。意思と無関係に“外形が決まる”状況に対し、通常と異なり“内部の空洞”の支え方を思考せざる負えない設計過程に着目。空洞を実態に変質させるべく極細列柱の構造体を考案1階、住宅部分、玄関側からリビングダイニング側を見る。 photo©太田拓実
青柳創と青柳綾夏による、岩手の「金ケ崎の家」。寄棟屋根や左官真壁の採用が必須な地域。意思と無関係に“外形が決まる”状況に対し、通常と異なり“内部の空洞”の支え方を思考せざる負えない設計過程に着目。空洞を実態に変質させるべく極細列柱の構造体を考案1階、住宅部分、ダイニングからリビングを見る。 photo©太田拓実
青柳創と青柳綾夏による、岩手の「金ケ崎の家」。寄棟屋根や左官真壁の採用が必須な地域。意思と無関係に“外形が決まる”状況に対し、通常と異なり“内部の空洞”の支え方を思考せざる負えない設計過程に着目。空洞を実態に変質させるべく極細列柱の構造体を考案1階、住宅部分、ダイニングからリビングを見る。 photo©太田拓実
青柳創と青柳綾夏による、岩手の「金ケ崎の家」。寄棟屋根や左官真壁の採用が必須な地域。意思と無関係に“外形が決まる”状況に対し、通常と異なり“内部の空洞”の支え方を思考せざる負えない設計過程に着目。空洞を実態に変質させるべく極細列柱の構造体を考案1階、住宅部分、リビングからダイニングとキッチンを見る。 photo©太田拓実
青柳創と青柳綾夏による、岩手の「金ケ崎の家」。寄棟屋根や左官真壁の採用が必須な地域。意思と無関係に“外形が決まる”状況に対し、通常と異なり“内部の空洞”の支え方を思考せざる負えない設計過程に着目。空洞を実態に変質させるべく極細列柱の構造体を考案1階、住宅部分、キッチン photo©太田拓実
青柳創と青柳綾夏による、岩手の「金ケ崎の家」。寄棟屋根や左官真壁の採用が必須な地域。意思と無関係に“外形が決まる”状況に対し、通常と異なり“内部の空洞”の支え方を思考せざる負えない設計過程に着目。空洞を実態に変質させるべく極細列柱の構造体を考案1階、住宅部分、リビングから2階への階段を見る。 photo©太田拓実
青柳創と青柳綾夏による、岩手の「金ケ崎の家」。寄棟屋根や左官真壁の採用が必須な地域。意思と無関係に“外形が決まる”状況に対し、通常と異なり“内部の空洞”の支え方を思考せざる負えない設計過程に着目。空洞を実態に変質させるべく極細列柱の構造体を考案2階、住宅部分、小屋裏 photo©太田拓実
青柳創と青柳綾夏による、岩手の「金ケ崎の家」。寄棟屋根や左官真壁の採用が必須な地域。意思と無関係に“外形が決まる”状況に対し、通常と異なり“内部の空洞”の支え方を思考せざる負えない設計過程に着目。空洞を実態に変質させるべく極細列柱の構造体を考案2階、住宅部分、小屋裏 photo©太田拓実
青柳創と青柳綾夏による、岩手の「金ケ崎の家」。寄棟屋根や左官真壁の採用が必須な地域。意思と無関係に“外形が決まる”状況に対し、通常と異なり“内部の空洞”の支え方を思考せざる負えない設計過程に着目。空洞を実態に変質させるべく極細列柱の構造体を考案2階、住宅部分、小屋裏から吹抜を見る。 photo©太田拓実
青柳創と青柳綾夏による、岩手の「金ケ崎の家」。寄棟屋根や左官真壁の採用が必須な地域。意思と無関係に“外形が決まる”状況に対し、通常と異なり“内部の空洞”の支え方を思考せざる負えない設計過程に着目。空洞を実態に変質させるべく極細列柱の構造体を考案2階、住宅部分、小屋裏 photo©太田拓実
青柳創と青柳綾夏による、岩手の「金ケ崎の家」。寄棟屋根や左官真壁の採用が必須な地域。意思と無関係に“外形が決まる”状況に対し、通常と異なり“内部の空洞”の支え方を思考せざる負えない設計過程に着目。空洞を実態に変質させるべく極細列柱の構造体を考案2階、住宅部分、小屋裏から吹抜を見る。 photo©太田拓実
青柳創と青柳綾夏による、岩手の「金ケ崎の家」。寄棟屋根や左官真壁の採用が必須な地域。意思と無関係に“外形が決まる”状況に対し、通常と異なり“内部の空洞”の支え方を思考せざる負えない設計過程に着目。空洞を実態に変質させるべく極細列柱の構造体を考案外観、南側より店舗出入口を見る。 photo©太田拓実
青柳創と青柳綾夏による、岩手の「金ケ崎の家」。寄棟屋根や左官真壁の採用が必須な地域。意思と無関係に“外形が決まる”状況に対し、通常と異なり“内部の空洞”の支え方を思考せざる負えない設計過程に着目。空洞を実態に変質させるべく極細列柱の構造体を考案1階、店舗部分、広間から店舗出入口を見る。 photo©太田拓実
青柳創と青柳綾夏による、岩手の「金ケ崎の家」。寄棟屋根や左官真壁の採用が必須な地域。意思と無関係に“外形が決まる”状況に対し、通常と異なり“内部の空洞”の支え方を思考せざる負えない設計過程に着目。空洞を実態に変質させるべく極細列柱の構造体を考案1階、店舗部分、広間 photo©太田拓実
青柳創と青柳綾夏による、岩手の「金ケ崎の家」。寄棟屋根や左官真壁の採用が必須な地域。意思と無関係に“外形が決まる”状況に対し、通常と異なり“内部の空洞”の支え方を思考せざる負えない設計過程に着目。空洞を実態に変質させるべく極細列柱の構造体を考案1階、店舗部分、広間 photo©太田拓実
青柳創と青柳綾夏による、岩手の「金ケ崎の家」。寄棟屋根や左官真壁の採用が必須な地域。意思と無関係に“外形が決まる”状況に対し、通常と異なり“内部の空洞”の支え方を思考せざる負えない設計過程に着目。空洞を実態に変質させるべく極細列柱の構造体を考案1階、店舗部分、酵素風呂 photo©太田拓実
青柳創と青柳綾夏による、岩手の「金ケ崎の家」。寄棟屋根や左官真壁の採用が必須な地域。意思と無関係に“外形が決まる”状況に対し、通常と異なり“内部の空洞”の支え方を思考せざる負えない設計過程に着目。空洞を実態に変質させるべく極細列柱の構造体を考案外観、西側より見る。夜景 photo©太田拓実
青柳創と青柳綾夏による、岩手の「金ケ崎の家」。寄棟屋根や左官真壁の採用が必須な地域。意思と無関係に“外形が決まる”状況に対し、通常と異なり“内部の空洞”の支え方を思考せざる負えない設計過程に着目。空洞を実態に変質させるべく極細列柱の構造体を考案外観、西側より見る。夜景 photo©太田拓実
青柳創と青柳綾夏による、岩手の「金ケ崎の家」。寄棟屋根や左官真壁の採用が必須な地域。意思と無関係に“外形が決まる”状況に対し、通常と異なり“内部の空洞”の支え方を思考せざる負えない設計過程に着目。空洞を実態に変質させるべく極細列柱の構造体を考案2階、住宅部分、小屋裏。夜景 photo©太田拓実
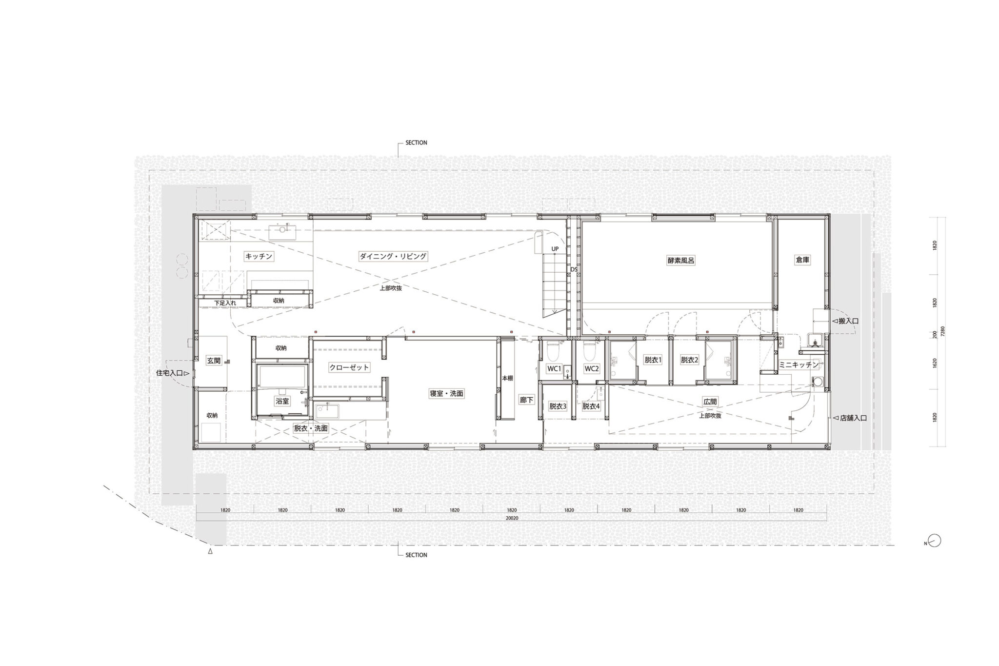
青柳創と青柳綾夏による、岩手の「金ケ崎の家」。寄棟屋根や左官真壁の採用が必須な地域。意思と無関係に“外形が決まる”状況に対し、通常と異なり“内部の空洞”の支え方を思考せざる負えない設計過程に着目。空洞を実態に変質させるべく極細列柱の構造体を考案1階平面図 image©青柳創+青柳綾夏
青柳創と青柳綾夏による、岩手の「金ケ崎の家」。寄棟屋根や左官真壁の採用が必須な地域。意思と無関係に“外形が決まる”状況に対し、通常と異なり“内部の空洞”の支え方を思考せざる負えない設計過程に着目。空洞を実態に変質させるべく極細列柱の構造体を考案2階平面図 image©青柳創+青柳綾夏
青柳創と青柳綾夏による、岩手の「金ケ崎の家」。寄棟屋根や左官真壁の採用が必須な地域。意思と無関係に“外形が決まる”状況に対し、通常と異なり“内部の空洞”の支え方を思考せざる負えない設計過程に着目。空洞を実態に変質させるべく極細列柱の構造体を考案断面図 image©青柳創+青柳綾夏
青柳創と青柳綾夏による、岩手の「金ケ崎の家」。寄棟屋根や左官真壁の採用が必須な地域。意思と無関係に“外形が決まる”状況に対し、通常と異なり“内部の空洞”の支え方を思考せざる負えない設計過程に着目。空洞を実態に変質させるべく極細列柱の構造体を考案構造コンセプトモデル image©青柳創+青柳綾夏

以下、建築家によるテキストです。


反転の空洞 / 空間の反転

この場所は、江戸時代からの武家屋敷群と、それらを囲う生垣が特徴的な街並みを形成する集落の中心「表小路」の突き当りに位置している。伝統的建造物群保存地区の規制がかかり、寄棟屋根で左官の真壁としなければ新築することが許されない。

間口は広いが奥行きが浅く、地域内では比較的狭い敷地において、外観規制の条件と要求された容積から南北に細長い建物外形がほぼ自動的に導き出された。武家屋敷風の外観を模すことは形骸とも思えたが、この集落にとっては街並みこそが重要な観光資源であり、県外から移住する建主にとっての集落に溶け込むための儀式的な側面もあったため、外観は街並みに馴染ませることを優先した。

一方で、建主や設計者の意思とは無関係に建物の外形が決まるということは、同時に内部に「空洞」を存在させてしまうという、奇妙な「反転」現象を起こしていることに気が付いた。先に空間があるという意味では改修に近いとも思えたが、それともどこか状況が異なる。改修対象の既存には空間に先行する構造体も合わせて存在するからだ。

つまりこの家は、通常の構造体が空間を形成していく設計・力学のプロセスとは異なり、先行する「空洞」の支え方を思考するという順序がまったく出鱈目の設計ということになる。このことに気が付いた時、新古典主義を代表するエティエンヌ・ルイ・ブーレーによる「ニュートン記念堂」の空洞が頭を過ぎった。ブーレーは建築の内部を宇宙へと「反転」させる巨大な装置を創造したが、この家は形式としての外観が「反転」して、内部に存在起源をもたない白昼夢のような空洞を生じさせているのである。

この空洞に相応しい逆説的な支え方を考えた際、空洞の暗がりの中から朧気に、繊細な柱群が浮かび上がる様を想像した。それは、いわゆる伝統的な古民家にあるはずの骨太で密な小屋組みの存在感が、極細の柱に集約され象徴化されるような様である。

ここでの象徴化とは、古民家の太い大黒柱における蕩尽の意味合いとは異なり、手がかりがないと思われた虚無のような空洞内を暗中模索して掴んだ柱が、空洞を実態としての空間に変質させる瞬間を指す。

つまり、空間の実体化が「反転」して、建物の外形にも血を通わせる瞬間でもある。外部仕様のメッキを施された列柱は、このような内外の「反転性」を暗示させている。
(青柳創+青柳綾夏)


外形を保持する小径の鉄骨柱(構造コンセプト)

大きな寄棟屋根が特徴的なこの建物は、外観から想像する通り内部に大きな小屋裏空間を有している。小屋裏には梁や束などの小屋組が密に配置される伝統木造の既視感に対し、「空洞」としての概念を体現すべく、小屋組の要素を極限まで減らすことにした。

まず、垂木・母屋・束を省略し、水平距離3640mmある棟木と軒桁の間に105×210の登梁を架け渡した。大きな屋根荷重を支える105×270の棟木は、5本の鉄骨柱で支持されている。鉄骨柱の断面は□-60x60x4.5、全長は約4600mm、細長比は200を超えている。細柱は桁の高さで木造部分に腕を出し座屈を拘束している。小屋組の存在感は極細の鉄骨柱に集約された。

水平力に対しては、屋根面を24mmの合板張りとして面剛性を確保するとともに、鉄骨柱・登梁・水平な小屋梁とでトラスを形成し、屋根から桁に直接力が流れるようにしている。
(朝光拓也)

■建築概要

題名:金ケ崎の家
所在地:岩手県胆沢郡金ケ崎町
主用途:店舗兼用住宅
設計:青柳創+アオヤギデザイン 担当/青柳綾夏
施工:佐藤工務店
構造設計:朝光構造設計 担当/朝光拓也
構造:木造在来工法+一部鉄骨柱
階数:地上2階
敷地面積:463.30㎡
建築面積:174.05㎡
延床面積:230.60㎡
設計:2023年8月~2024年3月
工事:2024年4月~12月
竣工:2024年12月
写真:太田拓実

建材情報
種別使用箇所商品名(メーカー名)
外装・建具開口部

TW トリプルガラス(LIXIL)

内装・床1階、2階 床

カバ材 フローリング

内装・キッチン天板

BEALSTONE 研ぎ出し(BEAL international)

※企業様による建材情報についてのご意見や「PR」のご相談はこちらから
※この情報は弊サイトや設計者が建材の性能等を保証するものではありません

あわせて読みたい

青柳綾夏 / アオヤギデザイン+青柳創による、岐阜の店舗兼住宅「飛騨高山の土蔵のリノベーション NIM」。築約130年の土蔵を改修。土蔵の“独特の空気感”を尊重する建築を求め、2つの用途を隔てる新設の“壁”で内装を成立させる設計を志向。壁の配置と素材で其々の機能要求に応え既存空間の特質も強調
  • SHARE
アオヤギデザイン佐藤工務店朝光構造設計青柳創青柳綾夏建材(外装・建具)建材(内装・床)建材(内装・キッチン)図面あり店舗兼住宅岩手太田拓実
2025.11.20 Thu 06:49
0
permalink

#朝光構造設計の関連記事

  • 2025.3.31Mon
    髙濱史子小松智彦建築設計による、埼玉の店舗「JINSかわじまインター店」。商業施設と並んで建つ郊外のメガネ店。寄棟形状をベースとし周辺環境との調整を重ねて、全ての立面で見え方が異なる建築を創出。店内の様子を外部に伝える“V字の切れ込み”は外側の自然を内部に取込む役割も担う
  • 2024.8.07Wed
    +ft+ / 髙濱史子建築設計事務所による、東京・千代田区の「ジンズホールディングス東京本社」。解体が予定されるビル全体を改修した社屋。“ベンチャー魂”を取戻す存在を目指し、“壊しながら、つくる”と“美術館×オフィス”を理念とする設計を志向。働く人に参加を促すと共に感性を刺激する空間を作る
  • 2023.4.28Fri
    青柳綾夏 / アオヤギデザイン+青柳創による、岐阜の店舗兼住宅「飛騨高山の土蔵のリノベーション NIM」。築約130年の土蔵を改修。土蔵の“独特の空気感”を尊重する建築を求め、2つの用途を隔てる新設の“壁”で内装を成立させる設計を志向。壁の配置と素材で其々の機能要求に応え既存空間の特質も強調
  • view all
view all

#アオヤギデザインの関連記事

  • 2020.12.22Tue
    青柳綾夏 / アオヤギデザイン+青柳創による、和歌山市の住宅「伊太祁曽の家」
  • 2020.12.18Fri
    青柳綾夏 / アオヤギデザイン+青柳創による、埼玉の住宅「入間の家」
  • 2020.12.17Thu
    青柳綾夏 / アオヤギデザイン+青柳創による、東京の、設計者の自邸「善福寺の家」
  • view all
view all

建築求人情報

Loading...

 

    公式アカウントをフォローして、見逃せない建築情報を受け取ろう。

    61,640
    • Follow
    85,161
    • Follow
    • Follow
    • Add Friends
    • Subscribe
    • 情報募集/建築・デザイン・アートの情報を随時募集しています。
      More
    • メールマガジン/ メールマガジンで最新の情報を配信しています。
      More

    この日更新したその他の記事

    京都・八幡市の「(仮称) 南ケ丘こども園」設計プロポで、キノアーキテクツが受注候補者に選定。二次審査には、無有建築工房・ジオ-グラフィック・デザイン・ラボ JV、芦澤竜一・水原建築事務所・VANS JV、榊原・吉村・創都 JV、日比野設計・吉村靖孝・EL3 JVが名を連ねる。各者の提案書も公開
    image courtesy of キノアーキテクツ

    SHARE 京都・八幡市の「(仮称) 南ケ丘こども園」設計プロポで、キノアーキテクツが受注候補者に選定。二次審査には、無有建築工房・ジオ-グラフィック・デザイン・ラボ JV、芦澤竜一・水原建築事務所・VANS JV、榊原・吉村・創都 JV、日比野設計・吉村靖孝・EL3 JVが名を連ねる。各者の提案書も公開

    architecture|competition
    KINO architects京都教育施設
    京都・八幡市の「(仮称) 南ケ丘こども園」設計プロポで、キノアーキテクツが受注候補者に選定。二次審査には、無有建築工房・ジオ-グラフィック・デザイン・ラボ JV、芦澤竜一・水原建築事務所・VANS JV、榊原・吉村・創都 JV、日比野設計・吉村靖孝・EL3 JVが名を連ねる。各者の提案書も公開 image courtesy of キノアーキテクツ

    京都・八幡市の「(仮称) 南ケ丘こども園」設計プロポーザルで、キノアーキテクツが受注候補者に選定されています。
    二次審査には、無有建築工房・ジオ-グラフィック・デザイン・ラボ 設計共同企業体、芦澤竜一建築設計事務所・水原建築事務所・VANS 設計共同企業体、榊原・吉村・創都 設計共同企業体、日比野設計・吉村靖孝・EL3 設計共同企業体が名を連ねていました。各者の提案書も公開されています。

    令和7年10月28日に2次審査のプレゼンテーション及びヒアリング審査を行い、評価委員会における審査を経て、下記の通り受注候補者を選定しました。

    city.yawata.kyoto.jp

    受注候補者(第1位)
    キノアーキテクツ

    • 技術提案書(PDF)

    次点者(第2位)
    無有建築工房・ジオ-グラフィック・デザイン・ラボ 設計共同企業体

    • 技術提案書(PDF)

    他の提案者
    芦澤竜一建築設計事務所・水原建築事務所・VANS 設計共同企業体

    • 技術提案書(PDF)

    榊原・吉村・創都 設計共同企業体

    • 技術提案書(PDF)

    日比野設計・吉村靖孝・EL3 設計共同企業体

    • 技術提案書(PDF)

    以下に、キノアーキテクツによる提案のパース画像を掲載します。

    • 残り4枚の写真を見る
    • SHARE
    KINO architects京都教育施設
    2025.11.20 Thu 15:41
    0
    permalink
    磯崎新の、水戸芸術館での展覧会「磯崎新:群島としての建築」。没後国内初となる大規模回顧展。単一の領域にとどまらない活動を、模型・図面・スケッチ・インスタレーション等を通して俯瞰的に紹介。会場設計は日埜直彦が手掛ける
    photo courtesy of 水戸芸術館現代美術センター

    SHARE 磯崎新の、水戸芸術館での展覧会「磯崎新:群島としての建築」。没後国内初となる大規模回顧展。単一の領域にとどまらない活動を、模型・図面・スケッチ・インスタレーション等を通して俯瞰的に紹介。会場設計は日埜直彦が手掛ける

    日程
    2025年11月1日(土)
    –
    2026年1月25日(日)
    architecture|exhibition|feature
    井関悠日埜直彦磯崎新建築展
    磯崎新の、水戸芸術館での展覧会「磯崎新:群島としての建築」。没後国内初となる大規模回顧展。単一の領域にとどまらない活動を、模型・図面・スケッチ・インスタレーション等を通して俯瞰的に紹介。会場設計は日埜直彦が手掛ける photo courtesy of 水戸芸術館現代美術センター
    磯崎新の、水戸芸術館での展覧会「磯崎新:群島としての建築」。没後国内初となる大規模回顧展。単一の領域にとどまらない活動を、模型・図面・スケッチ・インスタレーション等を通して俯瞰的に紹介。会場設計は日埜直彦が手掛ける photo courtesy of 水戸芸術館現代美術センター
    磯崎新の、水戸芸術館での展覧会「磯崎新:群島としての建築」。没後国内初となる大規模回顧展。単一の領域にとどまらない活動を、模型・図面・スケッチ・インスタレーション等を通して俯瞰的に紹介。会場設計は日埜直彦が手掛ける photo courtesy of 水戸芸術館現代美術センター
    磯崎新の、水戸芸術館での展覧会「磯崎新:群島としての建築」。没後国内初となる大規模回顧展。単一の領域にとどまらない活動を、模型・図面・スケッチ・インスタレーション等を通して俯瞰的に紹介。会場設計は日埜直彦が手掛ける photo courtesy of 水戸芸術館現代美術センター

    磯崎新の、水戸芸術館での展覧会「磯崎新:群島としての建築」です。
    没後国内初となる大規模回顧展です。同建築家の、単一の領域にとどまらない活動を、模型・図面・スケッチ・インスタレーション等を通して俯瞰的に紹介しています。また、会場設計は日埜直彦が手掛けています。会期は、2026年1月25日まで。展覧会の公式ページはこちら。

    2022年末に逝去した建築家・磯崎新の没後、国内初となる大規模回顧展を開催します。当館設計者でもある磯崎は、20世紀を代表する最も創造的で先駆的な建築家として知られ、2019年に建築界のノーベル賞と称されるプリツカー賞を受賞しました。建築プロジェクトや都市計画にとどまらず、著作活動、芸術家や知識人とのコラボレーション、さらにはキュレトリアル・ワークを通じ、60年以上にわたり思想、美術、文化論や批評分野においても卓越した地位を確立しました。

    磯崎は自身の著書『建築における「日本的なもの」』において、「グローバリゼーション状態のなかに沈殿物が発生し、これが〈しま〉をつくり、世界は無数の凝固の集合体としての、群島(アーキペラゴ)となるだろう。そのひとつの〈しま〉のつくりだされかたは、(中略)もっと多様に開発されねばなるまい」と記しています。この「群島(アーキペラゴ)」という概念はイタリアの哲学者マッシモ・カッチャーリの著書『Lʼarcipelago』(1997年)に端を発しています。磯崎はこの概念を構想の手がかりとし、自身の思想や実践における重要な空間概念として積極的に用いるようになりました。

    「群島としての建築」と題した本展では、決して単一の領域にとどまらない磯崎の活動を「群島」の様に構成します。「都市」「建築」「建築物」「フラックス・ストラクチャー」「テンタティブ・フォーム」「建築外(美術)」をキーワードに、建築模型、図面、スケッチ、インスタレーション、映像、版画、水彩画などの様々なメディアを通じて、磯崎の軌跡を辿るとともに、自身が設計した水戸芸術館を舞台に、建築の枠を超えた磯崎の活動を俯瞰的に紹介します。

    リリーステキストより
    • 残り33枚の写真と建築家によるテキスト
    • SHARE
    井関悠日埜直彦磯崎新建築展
    2025.11.20 Thu 14:30
    0
    permalink
    ラッパー 環ROY・藤原徹平・中山英之・デザイナー 古平正義が出演する、日本ペイント主催のスペシャルトークセッションが開催。建築学生コンペ「AYDA2025」の開催に合わせて企画された審査員ら参加のイベント。学生限定で参加者を募集中

    SHARE ラッパー 環ROY・藤原徹平・中山英之・デザイナー 古平正義が出演する、日本ペイント主催のスペシャルトークセッションが開催。建築学生コンペ「AYDA2025」の開催に合わせて企画された審査員ら参加のイベント。学生限定で参加者を募集中

    日程
    2025年12月9日(火)
    architecture|exhibition|promotion
    ラッパー 環ROY・藤原徹平・中山英之・デザイナー 古平正義が出演する、日本ペイント主催のスペシャルトークセッションが開催。建築学生コンペ「AYDA2025」の開催に合わせて企画された審査員ら参加のイベント。学生限定で参加者を募集中
    ラッパー 環ROY・藤原徹平・中山英之・デザイナー 古平正義が出演する、日本ペイント主催のスペシャルトークセッションが開催されます
    ayda2025talkevent.peatix.com

    ラッパー 環ROY・藤原徹平・中山英之・デザイナー 古平正義が出演する、日本ペイント主催のスペシャルトークセッションが開催されます。
    建築学生コンペ「AYDA2025」の開催に合わせて企画された審査員ら参加のイベントです。学生限定で参加者を募集しています。開催場所は、東京・港区のSHIBAURA HOUSE。開催日時は、2025年12月9日(火)18:00~19:30。参加費無料。こちらのページでの事前申込制です。【ap・ad】

    AYDA(Asia Young Designer Award)は日本ペイントグループが、グローバルに開催している建築デザインの国際コンペティションです。
    12月9日(火)に、本年の審査員長 ラッパーの環ROY氏、審査員の建築家 藤原徹平氏・中山英之氏、AYDAのホームページをデザインされているデザイナーの古平正義氏をお招きし、本年度のテーマである「空間と詩、その間」についてトークしていただきます。

    テーマを紐解くカギを審査員長と審査員から直接聞くことができ、作品制作に役立つ有意義な時間となることでしょう。
    トークイベントの終盤には質疑応答も設けております。同じ建築・デザインを学ぶ学生とコミュニケーションをつながる機会です。
    皆さんのご応募、お待ちしております。

    【トークイベント概要】
    ■日付:2025年12月9日(火)
    ■時間:18時~19時30分(17時30分より受付開始)
    ■場所:SHIBAURA HOUSE
    ■住所:東京都港区芝浦3-15-4
    ■アクセス:JR 田町駅芝浦口より徒歩7分
    地下鉄 都営三田線・浅草線 三田駅A4出口より徒歩10分
    ※お車の場合は近くのコインパーキングをご利用ください。

    aydajapan2025.peatix.com

    以下に、今年のテーマと審査員のプロフィールなどを掲載します。

    • 残り3枚の写真とテキストを見る
    • SHARE
    2025.11.20 Thu 07:30
    0
    permalink
    2025.11.18Tue
    • 【ap job更新】 福岡を拠点に創業40年以上の実績、住宅から公共施設まで幅広く手掛ける「株式会社 環・設計工房」が設計スタッフ(2026年新卒・既卒・経験者)を募集中
    • YKAAによる、北海道・札幌市の「Hiraya Pavilion」。“漠然とした環境”の中での計画。様々な人々が集まる“小さな場所”として、変化にも柔軟に応えられる“柔らかくも強い形式”を志向。地面に埋め込んだ“基壇”と“四周の開口部”で様々な行為を促す建築を考案
    • 【ap job更新】 香港・東京・上海を拠点に、アジア全域で多様なプロジェクトに携わる「LIGHTLINKS TOKYO」が、照明デザイナー(経験者・既卒・2025年新卒)を募集中
    • 【ap Masterpiece】OMAによる、フランスの「ボルドーの家」(1998年)
    2025.11.22Sat
    • マリーナ・タバサム・アーキテクツによる、TOTOギャラリー・間での建築展「People Place Poiesis」。バングラデシュを拠点とする建築家の展示。地域の材料や技術を重視した建築実践に加え、自然災害や貧困等で苦しむ人々の支援活動にも尽力。様々なアワードの受賞に加えて欧米の複数の大学でも教鞭を執る
    • 【ap job更新】 藤原徹平が主宰する「フジワラテッペイアーキテクツラボ」が、建築設計職、ランドスケープ設計職 のスタッフ(2026年新卒・既卒・経験者)を募集中
    • 【ap job更新】 外資系ホテルから個人邸まで手掛け、裁量があり自由な発想を尊重する「株式会社ファムス」が、設計スタッフ(経験者・既卒・2026年新卒)を募集中
    • ザハ・ハディド・アーキテクツによる、アラブ首長国連邦・ドバイの「ザ・シンフォニー・タワー」。集合住宅などが入る42層の高層ビル。金属糸を用いる地域の伝統織物工芸から着想を得て、三次元格子構造の“外骨格”を特徴とする建築を考案。ファサードに独自のリズムと質感を与えると共に快適な屋外空間も創出

    Subscribe and Follow

    公式アカウントをフォローして、
    見逃せない建築情報を受け取ろう。

    「建築と社会の関係を視覚化する」メディア、アーキテクチャーフォトの公式アカウントです。
    様々な切り口による複眼的視点で建築に関する情報を最速でお届けします。

    61,640
    • Follow
    85,161
    • Follow
    • Follow
    • Add Friends
    • Subscribe
    • 情報募集/建築・デザイン・アートの情報を随時募集しています。
      More
    • メールマガジン/ メールマガジンで最新の情報を配信しています。
      More

    architecturephoto® News Letter

    メールマガジンでも最新の更新情報を配信中

    • ホーム
    • アーキテクチャーフォトについて
    • アーキテクチャーフォト規約
    • プライバシーポリシー
    • 特定商取引法に関する表記
    • 利用者情報の外部送信について
    • 広告掲載について
    • お問い合わせ/作品投稿

    Copyright © architecturephoto.net.

    • 建築
    • アート
    • カルチャー
    • デザイン
    • ファッション
    • 動画
    • 展覧会
    • コンペ
    • 書籍
    • 建築求人
    • 特集記事
    • 注目情報
    • タグ
    • アーキテクチャーフォト ジョブボード
    • アーキテクチャーフォト・ブック
    • ホーム
    • アーキテクチャーフォトについて
    • アーキテクチャーフォト規約
    • プライバシーポリシー
    • 特定商取引法に関する表記
    • 利用者情報の外部送信について
    • 広告掲載について
    • お問い合わせ/作品投稿

    メールマガジンで最新の情報を配信しています

    この記事をシェア
    タイトルタイトルタイトルタイトルタイトル
    https://architecturephoto.net/permalink

    記事について#architecturephotonetでつぶやいてみましょう。
    有益なコメントは拡散や、サイトでも紹介させていただくこともございます。

    architecturephoto®
    • black
    • gray
    • white

    建築求人情報紹介

    Loading...