永冶建築研究所とdddessinによる、岐阜・多治見市の「アイコットリョーワ本社オフィス」。タイルメーカー本社での改修計画。ブランドイメージを体現する“普遍的な美しさ”を求め、“新旧の構造を調和”させる設計を志向。既存トラス梁などを生かして“3列5つのフレーム”を空間に挿入する構成を考案エントランス側にあるホール2からオフィス1側を見る。 photo©ToLoLo studio 谷川ヒロシ
永冶建築研究所とdddessinによる、岐阜・多治見市の「アイコットリョーワ本社オフィス」。タイルメーカー本社での改修計画。ブランドイメージを体現する“普遍的な美しさ”を求め、“新旧の構造を調和”させる設計を志向。既存トラス梁などを生かして“3列5つのフレーム”を空間に挿入する構成を考案食堂から開口部越しに会議室を見る。 photo©ToLoLo studio 谷川ヒロシ
永冶建築研究所とdddessinによる、岐阜・多治見市の「アイコットリョーワ本社オフィス」。タイルメーカー本社での改修計画。ブランドイメージを体現する“普遍的な美しさ”を求め、“新旧の構造を調和”させる設計を志向。既存トラス梁などを生かして“3列5つのフレーム”を空間に挿入する構成を考案廊下 photo©ToLoLo studio 谷川ヒロシ
永冶建築研究所とdddessinによる、岐阜・多治見市の「アイコットリョーワ本社オフィス」。タイルメーカー本社での改修計画。ブランドイメージを体現する“普遍的な美しさ”を求め、“新旧の構造を調和”させる設計を志向。既存トラス梁などを生かして“3列5つのフレーム”を空間に挿入する構成を考案オフィス1 photo©ToLoLo studio 谷川ヒロシ
永冶祐太 / 永冶建築研究所と池原健介 / dddessinが設計した、岐阜・多治見市の「アイコットリョーワ本社オフィス」です。
タイルメーカー本社での改修計画です。建築家は、ブランドイメージを体現する“普遍的な美しさ”を求め、“新旧の構造を調和”させる設計を志向しました。そして、既存トラス梁などを生かして“3列5つのフレーム”を空間に挿入する構成を考案しました。
緑豊かな場に本社工場を構えるタイルメーカー本社オフィスの改修計画である。
建築主は「世界の街並みをより上質にしていきたい」と理念を掲げタイムレスな価値を追求したブランドの向上を目指されていた。
ブランドイメージを体現し発信する、普遍的な美しさをもつ空間を求めて双方にアイデアを出し合い協働してきた。
工場1階は主に製造ライン、2階は主に倉庫とオフィスである。2階倉庫はハイサイドライトが象徴的にトラスの軸線を照らし床には使用と補修の履歴が重なり既設の連続窓のガラスの光を鈍く反射していた。
営業に差し支えない最大の面積を新オフィスに充て、環境のよい窓辺エリアをオフィス、奥側の空間を共用室とし、工場連続窓に対し3列5つのフレームを配置した。フレームに工事範囲を絞ることで建設費・ランニングコストを低減した。
既設空間にフレームを挿入するにあたっては既設の柱ピッチの2等分線を縦糸に、新しい3列のフレームを横糸にグリッドを引き、新旧の構造を調和して既設空間や工場連続窓に対して美しく配置した。梁下で極力高さをとったフレームの高さ寸法は縦糸の寸法と美しい比率となった。
またトラス梁の軸線をオフィスへのアプローチに見立てて通路を通すことで3列5つのフレームの配置となった。床には自社製品のタイルを貼り、柱は東濃桧、壁も地場産桧合板で仕上げ時間と共にエイジングしていくものとした。
3列5つのフレームは外部の光を受け、床のタイルを照らしながら、新しい6面の窓は工場連続窓の風景を奥へ奥へと映して複雑で重層的なシークエンスを生み出している。既存の空間を様々な視点で読み込み、その要素を象徴的に取り扱うことで新旧を調和しながら相互に引き立て合う新しい美しさを生み出した。
以下の写真はクリックで拡大します

永冶建築研究所とdddessinによる、岐阜・多治見市の「アイコットリョーワ本社オフィス」。タイルメーカー本社での改修計画。ブランドイメージを体現する“普遍的な美しさ”を求め、“新旧の構造を調和”させる設計を志向。既存トラス梁などを生かして“3列5つのフレーム”を空間に挿入する構成を考案エントランス側にあるホール2からオフィス1側を見る。 photo©ToLoLo studio 谷川ヒロシ

永冶建築研究所とdddessinによる、岐阜・多治見市の「アイコットリョーワ本社オフィス」。タイルメーカー本社での改修計画。ブランドイメージを体現する“普遍的な美しさ”を求め、“新旧の構造を調和”させる設計を志向。既存トラス梁などを生かして“3列5つのフレーム”を空間に挿入する構成を考案左:食堂、手前:ホール2、右:ミーティングルーム photo©ToLoLo studio 谷川ヒロシ

永冶建築研究所とdddessinによる、岐阜・多治見市の「アイコットリョーワ本社オフィス」。タイルメーカー本社での改修計画。ブランドイメージを体現する“普遍的な美しさ”を求め、“新旧の構造を調和”させる設計を志向。既存トラス梁などを生かして“3列5つのフレーム”を空間に挿入する構成を考案ホール2から開口部越しにミーティングルームを見る。 photo©ToLoLo studio 谷川ヒロシ

永冶建築研究所とdddessinによる、岐阜・多治見市の「アイコットリョーワ本社オフィス」。タイルメーカー本社での改修計画。ブランドイメージを体現する“普遍的な美しさ”を求め、“新旧の構造を調和”させる設計を志向。既存トラス梁などを生かして“3列5つのフレーム”を空間に挿入する構成を考案ホール2から開口部越しに食堂を見る。 photo©ToLoLo studio 谷川ヒロシ

永冶建築研究所とdddessinによる、岐阜・多治見市の「アイコットリョーワ本社オフィス」。タイルメーカー本社での改修計画。ブランドイメージを体現する“普遍的な美しさ”を求め、“新旧の構造を調和”させる設計を志向。既存トラス梁などを生かして“3列5つのフレーム”を空間に挿入する構成を考案食堂から開口部越しに会議室を見る。 photo©ToLoLo studio 谷川ヒロシ

永冶建築研究所とdddessinによる、岐阜・多治見市の「アイコットリョーワ本社オフィス」。タイルメーカー本社での改修計画。ブランドイメージを体現する“普遍的な美しさ”を求め、“新旧の構造を調和”させる設計を志向。既存トラス梁などを生かして“3列5つのフレーム”を空間に挿入する構成を考案廊下 photo©ToLoLo studio 谷川ヒロシ

永冶建築研究所とdddessinによる、岐阜・多治見市の「アイコットリョーワ本社オフィス」。タイルメーカー本社での改修計画。ブランドイメージを体現する“普遍的な美しさ”を求め、“新旧の構造を調和”させる設計を志向。既存トラス梁などを生かして“3列5つのフレーム”を空間に挿入する構成を考案左:食堂、中央:廊下、右:会議室 photo©ToLoLo studio 谷川ヒロシ

永冶建築研究所とdddessinによる、岐阜・多治見市の「アイコットリョーワ本社オフィス」。タイルメーカー本社での改修計画。ブランドイメージを体現する“普遍的な美しさ”を求め、“新旧の構造を調和”させる設計を志向。既存トラス梁などを生かして“3列5つのフレーム”を空間に挿入する構成を考案会議室 photo©ToLoLo studio 谷川ヒロシ

永冶建築研究所とdddessinによる、岐阜・多治見市の「アイコットリョーワ本社オフィス」。タイルメーカー本社での改修計画。ブランドイメージを体現する“普遍的な美しさ”を求め、“新旧の構造を調和”させる設計を志向。既存トラス梁などを生かして“3列5つのフレーム”を空間に挿入する構成を考案廊下 photo©ToLoLo studio 谷川ヒロシ

永冶建築研究所とdddessinによる、岐阜・多治見市の「アイコットリョーワ本社オフィス」。タイルメーカー本社での改修計画。ブランドイメージを体現する“普遍的な美しさ”を求め、“新旧の構造を調和”させる設計を志向。既存トラス梁などを生かして“3列5つのフレーム”を空間に挿入する構成を考案オフィス1 photo©ToLoLo studio 谷川ヒロシ

永冶建築研究所とdddessinによる、岐阜・多治見市の「アイコットリョーワ本社オフィス」。タイルメーカー本社での改修計画。ブランドイメージを体現する“普遍的な美しさ”を求め、“新旧の構造を調和”させる設計を志向。既存トラス梁などを生かして“3列5つのフレーム”を空間に挿入する構成を考案オフィス1 photo©ToLoLo studio 谷川ヒロシ

永冶建築研究所とdddessinによる、岐阜・多治見市の「アイコットリョーワ本社オフィス」。タイルメーカー本社での改修計画。ブランドイメージを体現する“普遍的な美しさ”を求め、“新旧の構造を調和”させる設計を志向。既存トラス梁などを生かして“3列5つのフレーム”を空間に挿入する構成を考案オフィス1 photo©ToLoLo studio 谷川ヒロシ

永冶建築研究所とdddessinによる、岐阜・多治見市の「アイコットリョーワ本社オフィス」。タイルメーカー本社での改修計画。ブランドイメージを体現する“普遍的な美しさ”を求め、“新旧の構造を調和”させる設計を志向。既存トラス梁などを生かして“3列5つのフレーム”を空間に挿入する構成を考案オフィス1と既存外壁の間の空間 photo©ToLoLo studio 谷川ヒロシ

永冶建築研究所とdddessinによる、岐阜・多治見市の「アイコットリョーワ本社オフィス」。タイルメーカー本社での改修計画。ブランドイメージを体現する“普遍的な美しさ”を求め、“新旧の構造を調和”させる設計を志向。既存トラス梁などを生かして“3列5つのフレーム”を空間に挿入する構成を考案オフィス1側からホール2側を見る。 photo©ToLoLo studio 谷川ヒロシ

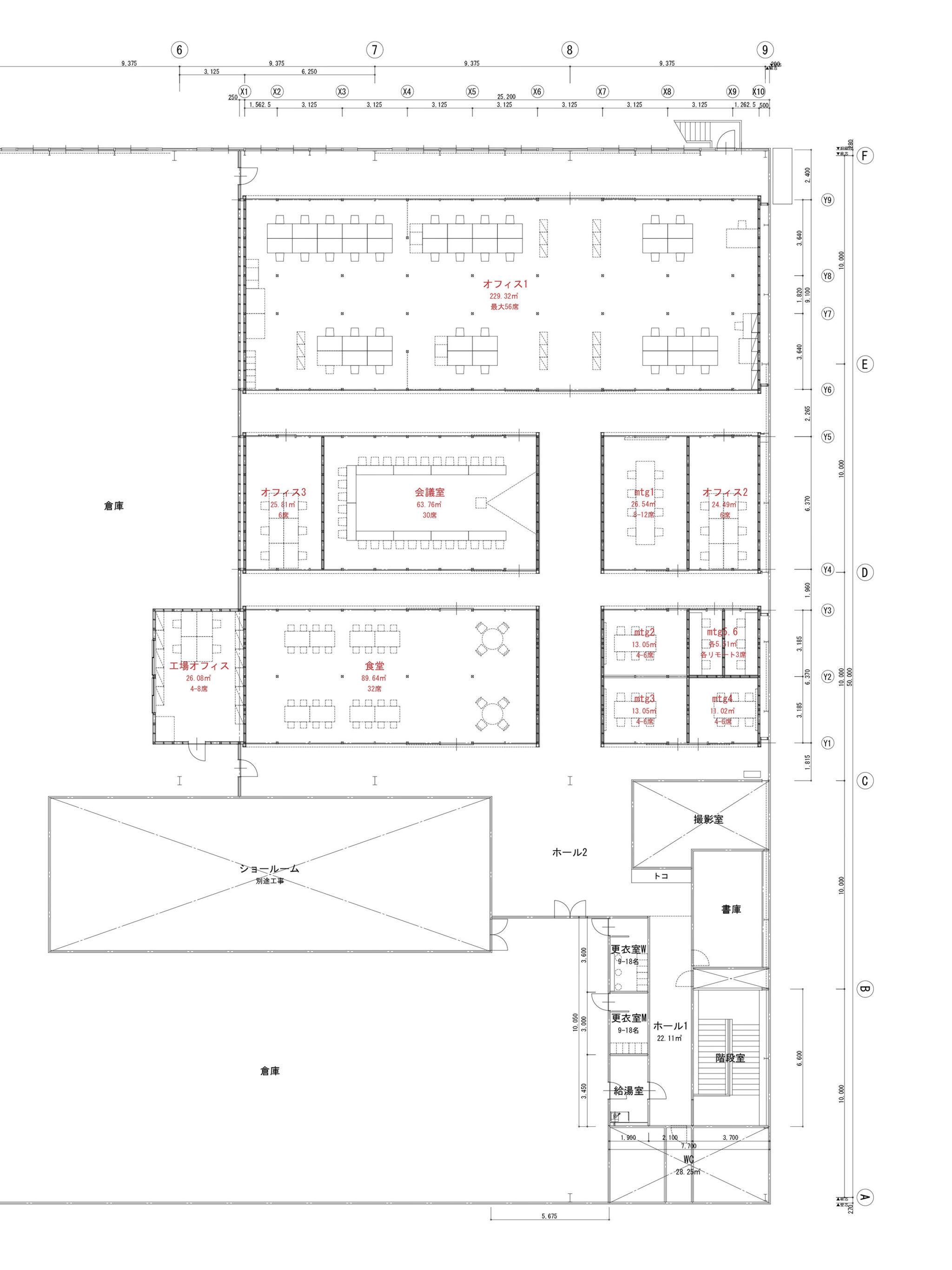
永冶建築研究所とdddessinによる、岐阜・多治見市の「アイコットリョーワ本社オフィス」。タイルメーカー本社での改修計画。ブランドイメージを体現する“普遍的な美しさ”を求め、“新旧の構造を調和”させる設計を志向。既存トラス梁などを生かして“3列5つのフレーム”を空間に挿入する構成を考案平面図 image©永冶建築研究所とdddessin

永冶建築研究所とdddessinによる、岐阜・多治見市の「アイコットリョーワ本社オフィス」。タイルメーカー本社での改修計画。ブランドイメージを体現する“普遍的な美しさ”を求め、“新旧の構造を調和”させる設計を志向。既存トラス梁などを生かして“3列5つのフレーム”を空間に挿入する構成を考案プロポーション image©永冶建築研究所とdddessin

永冶建築研究所とdddessinによる、岐阜・多治見市の「アイコットリョーワ本社オフィス」。タイルメーカー本社での改修計画。ブランドイメージを体現する“普遍的な美しさ”を求め、“新旧の構造を調和”させる設計を志向。既存トラス梁などを生かして“3列5つのフレーム”を空間に挿入する構成を考案縦横糸コンセプトスケッチ image©永冶建築研究所とdddessin

永冶建築研究所とdddessinによる、岐阜・多治見市の「アイコットリョーワ本社オフィス」。タイルメーカー本社での改修計画。ブランドイメージを体現する“普遍的な美しさ”を求め、“新旧の構造を調和”させる設計を志向。既存トラス梁などを生かして“3列5つのフレーム”を空間に挿入する構成を考案断面スケッチ image©永冶建築研究所とdddessin
以下、建築家によるテキストです。
緑豊かな場に本社工場を構えるタイルメーカー本社オフィスの改修計画である。
建築主は「世界の街並みをより上質にしていきたい」と理念を掲げタイムレスな価値を追求したブランドの向上を目指されていた。
ブランドイメージを体現し発信する、普遍的な美しさをもつ空間を求めて双方にアイデアを出し合い協働してきた。
工場1階は主に製造ライン、2階は主に倉庫とオフィスである。2階倉庫はハイサイドライトが象徴的にトラスの軸線を照らし床には使用と補修の履歴が重なり既設の連続窓のガラスの光を鈍く反射していた。
営業に差し支えない最大の面積を新オフィスに充て、環境のよい窓辺エリアをオフィス、奥側の空間を共用室とし、工場連続窓に対し3列5つのフレームを配置した。フレームに工事範囲を絞ることで建設費・ランニングコストを低減した。
既設空間にフレームを挿入するにあたっては既設の柱ピッチの2等分線を縦糸に、新しい3列のフレームを横糸にグリッドを引き、新旧の構造を調和して既設空間や工場連続窓に対して美しく配置した。梁下で極力高さをとったフレームの高さ寸法は縦糸の寸法と美しい比率となった。
またトラス梁の軸線をオフィスへのアプローチに見立てて通路を通すことで3列5つのフレームの配置となった。床には自社製品のタイルを貼り、柱は東濃桧、壁も地場産桧合板で仕上げ時間と共にエイジングしていくものとした。
3列5つのフレームは外部の光を受け、床のタイルを照らしながら、新しい6面の窓は工場連続窓の風景を奥へ奥へと映して複雑で重層的なシークエンスを生み出している。既存の空間を様々な視点で読み込み、その要素を象徴的に取り扱うことで新旧を調和しながら相互に引き立て合う新しい美しさを生み出した。
この方法や姿勢は施設の改修のみならず、建築主が目指す街並みの更新や創出にも繋がるものと考えている。
■建築概要
題名:アイコットリョーワ本社オフィス
所在地:岐阜県多治見市大藪町
主用途:オフィス
設計:永冶建築研究所 担当/永冶祐太、佐藤友美、dddessin 担当/池原健介
構造:犬山建築構造デザイン(株)
電気:(株)Y’s ESD
機械:大塚設備計画
カーテン:村瀬唯
施工:(株)MARUHA
構造:木造
建築面積:550㎡(改修エリア)
延床面積:550㎡(改修エリア)
設計:2023年5月~2024年4月
工事:2024年5月~2025年1月
竣工:2025年1月
写真:ToLoLo studio 谷川ヒロシ