architecturephoto®

  • 特集記事
  • 注目情報
  • タグ
  • 建築
  • アート
  • カルチャー
  • デザイン
  • ファッション
  • 動画
  • 展覧会
  • コンペ
  • 書籍
  • 建築求人
  • すべてのタグ

建築求人情報

Loading...
2025.11.25Tue
2025.11.24Mon
2025.11.26Wed
小林敬政による、大阪市の「K邸」。施主家族が40年以上暮らした住まいの建替。既存を建物を超えた“記憶の器”と捉え、刷新ではなく“継承”する設計を志向。旧家屋の間取りを参照して“再構築”した平面構成で“空間体験”を通して記憶を喚起する
photo©多田ユウコ写真事務所

SHARE 小林敬政による、大阪市の「K邸」。施主家族が40年以上暮らした住まいの建替。既存を建物を超えた“記憶の器”と捉え、刷新ではなく“継承”する設計を志向。旧家屋の間取りを参照して“再構築”した平面構成で“空間体験”を通して記憶を喚起する

architecture|feature
TE-DOK小林敬政木村工務店建材(外装・壁)建材(外装・屋根)建材(外装・建具)建材(外装・照明)建材(内装・床)建材(内装・壁)建材(内装・天井)建材(内装・建具)建材(内装・照明)建材(内装・その他)建材(内装・水廻り)住宅図面あり大阪多田ユウコ
小林敬政による、大阪市の「K邸」。施主家族が40年以上暮らした住まいの建替。既存を建物を超えた“記憶の器”と捉え、刷新ではなく“継承”する設計を志向。旧家屋の間取りを参照して“再構築”した平面構成で“空間体験”を通して記憶を喚起する外観、南側の道路より見る。 photo©多田ユウコ写真事務所
小林敬政による、大阪市の「K邸」。施主家族が40年以上暮らした住まいの建替。既存を建物を超えた“記憶の器”と捉え、刷新ではなく“継承”する設計を志向。旧家屋の間取りを参照して“再構築”した平面構成で“空間体験”を通して記憶を喚起する2階、階段側からリビングを見る。 photo©多田ユウコ写真事務所
小林敬政による、大阪市の「K邸」。施主家族が40年以上暮らした住まいの建替。既存を建物を超えた“記憶の器”と捉え、刷新ではなく“継承”する設計を志向。旧家屋の間取りを参照して“再構築”した平面構成で“空間体験”を通して記憶を喚起する2階、キッチンからダイニングを見る。 photo©多田ユウコ写真事務所

小林敬政が設計した、大阪市の「K邸」です。
施主家族が40年以上暮らした住まいの建替です。建築家は、既存を建物を超えた“記憶の器”と捉え、刷新ではなく“継承”する設計を志向しました。そして、旧家屋の間取りを参照して“再構築”した平面構成で“空間体験”を通して記憶を喚起します。

当初は愛着のある住まいに住み続けるべく耐震改修を検討したが、耐震診断の結果躯体の老朽化が著しいことが判明し建替えることとなった。施主は計画地に隣接する金属研磨工場を長年営んでいる。家の想い出を語る施主の表情を見て、毎日この家をながめながら仕事を行う施主にとって、この家は住まい以上の大切な記憶の器なのだと感じた。

そこで40年以上の記憶が蓄積されたこの住宅を全く新しいものにするのではなく、建物の立姿や内部の空間体験といった諸要素を受け継ぎながら、耐震性能や快適性に優れたこれからも住み続けて行ける、住まいという記憶の器の再構築を目指した。

建築家によるテキストより

住まいの記憶は階段の上り下りや部屋と部屋の行き来などの空間体験を通して身体的に想起される。
そこで既存家屋の平面計画を参照し、それらを中間階に設けたリビングを中心に再構築することで、新しい家での空間体験を通じて長年身体に蓄積された記憶が思い起こされるよう計画した。

建築家によるテキストより

かつての住宅の立姿は家族にとって帰宅時にホッとできる大切なあたりまえの風景であった。
そこでその立姿を継承すべく、施主要望である駐車スペースを計画地内で確保すること、地震による浸水対策としての床上げの2点をヒントに、駐車スペースの天井高さを絞りスキップフロア形式とすることで建物高さを既存家屋と同程度に抑えた。また屋根形状も既存と同じ平入とすることで、住み手だけでなく周辺住民からも見慣れた立姿を継承した。

建築家によるテキストより

以下の写真はクリックで拡大します

小林敬政による、大阪市の「K邸」。施主家族が40年以上暮らした住まいの建替。既存を建物を超えた“記憶の器”と捉え、刷新ではなく“継承”する設計を志向。旧家屋の間取りを参照して“再構築”した平面構成で“空間体験”を通して記憶を喚起する外観、南側の道路より見る。 photo©多田ユウコ写真事務所
小林敬政による、大阪市の「K邸」。施主家族が40年以上暮らした住まいの建替。既存を建物を超えた“記憶の器”と捉え、刷新ではなく“継承”する設計を志向。旧家屋の間取りを参照して“再構築”した平面構成で“空間体験”を通して記憶を喚起する外観、南側の道路より見る。 photo©多田ユウコ写真事務所
小林敬政による、大阪市の「K邸」。施主家族が40年以上暮らした住まいの建替。既存を建物を超えた“記憶の器”と捉え、刷新ではなく“継承”する設計を志向。旧家屋の間取りを参照して“再構築”した平面構成で“空間体験”を通して記憶を喚起する外観、南側の道路より見る。 photo©多田ユウコ写真事務所
小林敬政による、大阪市の「K邸」。施主家族が40年以上暮らした住まいの建替。既存を建物を超えた“記憶の器”と捉え、刷新ではなく“継承”する設計を志向。旧家屋の間取りを参照して“再構築”した平面構成で“空間体験”を通して記憶を喚起する外観、南側の道路よりポーチを見る。 photo©多田ユウコ写真事務所
小林敬政による、大阪市の「K邸」。施主家族が40年以上暮らした住まいの建替。既存を建物を超えた“記憶の器”と捉え、刷新ではなく“継承”する設計を志向。旧家屋の間取りを参照して“再構築”した平面構成で“空間体験”を通して記憶を喚起するポーチと玄関ドア photo©多田ユウコ写真事務所
小林敬政による、大阪市の「K邸」。施主家族が40年以上暮らした住まいの建替。既存を建物を超えた“記憶の器”と捉え、刷新ではなく“継承”する設計を志向。旧家屋の間取りを参照して“再構築”した平面構成で“空間体験”を通して記憶を喚起する1階、玄関からホールを見る。 photo©多田ユウコ写真事務所
小林敬政による、大阪市の「K邸」。施主家族が40年以上暮らした住まいの建替。既存を建物を超えた“記憶の器”と捉え、刷新ではなく“継承”する設計を志向。旧家屋の間取りを参照して“再構築”した平面構成で“空間体験”を通して記憶を喚起する1階、ホールから玄関を見る。 photo©多田ユウコ写真事務所
小林敬政による、大阪市の「K邸」。施主家族が40年以上暮らした住まいの建替。既存を建物を超えた“記憶の器”と捉え、刷新ではなく“継承”する設計を志向。旧家屋の間取りを参照して“再構築”した平面構成で“空間体験”を通して記憶を喚起する1階から2階への階段 photo©多田ユウコ写真事務所
小林敬政による、大阪市の「K邸」。施主家族が40年以上暮らした住まいの建替。既存を建物を超えた“記憶の器”と捉え、刷新ではなく“継承”する設計を志向。旧家屋の間取りを参照して“再構築”した平面構成で“空間体験”を通して記憶を喚起する2階、階段側からリビングを見る。 photo©多田ユウコ写真事務所
小林敬政による、大阪市の「K邸」。施主家族が40年以上暮らした住まいの建替。既存を建物を超えた“記憶の器”と捉え、刷新ではなく“継承”する設計を志向。旧家屋の間取りを参照して“再構築”した平面構成で“空間体験”を通して記憶を喚起する2階、リビングからダイニングにつながる階段を見る。 photo©多田ユウコ写真事務所
小林敬政による、大阪市の「K邸」。施主家族が40年以上暮らした住まいの建替。既存を建物を超えた“記憶の器”と捉え、刷新ではなく“継承”する設計を志向。旧家屋の間取りを参照して“再構築”した平面構成で“空間体験”を通して記憶を喚起する2階、リビングから階段越しにダイニングを見る。 photo©多田ユウコ写真事務所
小林敬政による、大阪市の「K邸」。施主家族が40年以上暮らした住まいの建替。既存を建物を超えた“記憶の器”と捉え、刷新ではなく“継承”する設計を志向。旧家屋の間取りを参照して“再構築”した平面構成で“空間体験”を通して記憶を喚起する2階、左奥:リビング、右:ダイニング、右奥:インナーバルコニー photo©多田ユウコ写真事務所
小林敬政による、大阪市の「K邸」。施主家族が40年以上暮らした住まいの建替。既存を建物を超えた“記憶の器”と捉え、刷新ではなく“継承”する設計を志向。旧家屋の間取りを参照して“再構築”した平面構成で“空間体験”を通して記憶を喚起する2階、ダイニングからリビング側を見る。 photo©多田ユウコ写真事務所
小林敬政による、大阪市の「K邸」。施主家族が40年以上暮らした住まいの建替。既存を建物を超えた“記憶の器”と捉え、刷新ではなく“継承”する設計を志向。旧家屋の間取りを参照して“再構築”した平面構成で“空間体験”を通して記憶を喚起する2階、ダイニングから開口部越しにインナーバルコニーを見る。 photo©多田ユウコ写真事務所
小林敬政による、大阪市の「K邸」。施主家族が40年以上暮らした住まいの建替。既存を建物を超えた“記憶の器”と捉え、刷新ではなく“継承”する設計を志向。旧家屋の間取りを参照して“再構築”した平面構成で“空間体験”を通して記憶を喚起する2階、インナーバルコニー photo©多田ユウコ写真事務所
小林敬政による、大阪市の「K邸」。施主家族が40年以上暮らした住まいの建替。既存を建物を超えた“記憶の器”と捉え、刷新ではなく“継承”する設計を志向。旧家屋の間取りを参照して“再構築”した平面構成で“空間体験”を通して記憶を喚起する2階、ダイニングからカウンターを見る。 photo©多田ユウコ写真事務所
小林敬政による、大阪市の「K邸」。施主家族が40年以上暮らした住まいの建替。既存を建物を超えた“記憶の器”と捉え、刷新ではなく“継承”する設計を志向。旧家屋の間取りを参照して“再構築”した平面構成で“空間体験”を通して記憶を喚起する2階、ダイニングからキッチンを見る。 photo©多田ユウコ写真事務所
小林敬政による、大阪市の「K邸」。施主家族が40年以上暮らした住まいの建替。既存を建物を超えた“記憶の器”と捉え、刷新ではなく“継承”する設計を志向。旧家屋の間取りを参照して“再構築”した平面構成で“空間体験”を通して記憶を喚起する2階、キッチンからダイニングを見る。 photo©多田ユウコ写真事務所
小林敬政による、大阪市の「K邸」。施主家族が40年以上暮らした住まいの建替。既存を建物を超えた“記憶の器”と捉え、刷新ではなく“継承”する設計を志向。旧家屋の間取りを参照して“再構築”した平面構成で“空間体験”を通して記憶を喚起する2階、寝室 photo©多田ユウコ写真事務所
小林敬政による、大阪市の「K邸」。施主家族が40年以上暮らした住まいの建替。既存を建物を超えた“記憶の器”と捉え、刷新ではなく“継承”する設計を志向。旧家屋の間取りを参照して“再構築”した平面構成で“空間体験”を通して記憶を喚起する1階、主寝室 photo©多田ユウコ写真事務所
小林敬政による、大阪市の「K邸」。施主家族が40年以上暮らした住まいの建替。既存を建物を超えた“記憶の器”と捉え、刷新ではなく“継承”する設計を志向。旧家屋の間取りを参照して“再構築”した平面構成で“空間体験”を通して記憶を喚起する1階、客間 photo©多田ユウコ写真事務所
小林敬政による、大阪市の「K邸」。施主家族が40年以上暮らした住まいの建替。既存を建物を超えた“記憶の器”と捉え、刷新ではなく“継承”する設計を志向。旧家屋の間取りを参照して“再構築”した平面構成で“空間体験”を通して記憶を喚起する2階、リビングから階段越しにダイニングを見る。夕景 photo©多田ユウコ写真事務所
小林敬政による、大阪市の「K邸」。施主家族が40年以上暮らした住まいの建替。既存を建物を超えた“記憶の器”と捉え、刷新ではなく“継承”する設計を志向。旧家屋の間取りを参照して“再構築”した平面構成で“空間体験”を通して記憶を喚起する外観、南側の道路より見る。夕景 photo©多田ユウコ写真事務所
小林敬政による、大阪市の「K邸」。施主家族が40年以上暮らした住まいの建替。既存を建物を超えた“記憶の器”と捉え、刷新ではなく“継承”する設計を志向。旧家屋の間取りを参照して“再構築”した平面構成で“空間体験”を通して記憶を喚起する外観、南側の道路より見る。夕景 photo©多田ユウコ写真事務所
小林敬政による、大阪市の「K邸」。施主家族が40年以上暮らした住まいの建替。既存を建物を超えた“記憶の器”と捉え、刷新ではなく“継承”する設計を志向。旧家屋の間取りを参照して“再構築”した平面構成で“空間体験”を通して記憶を喚起する外観、南側の道路より見る。夕景 photo©多田ユウコ写真事務所
小林敬政による、大阪市の「K邸」。施主家族が40年以上暮らした住まいの建替。既存を建物を超えた“記憶の器”と捉え、刷新ではなく“継承”する設計を志向。旧家屋の間取りを参照して“再構築”した平面構成で“空間体験”を通して記憶を喚起する外観、南側奥の道路より見る。夕景 photo©多田ユウコ写真事務所
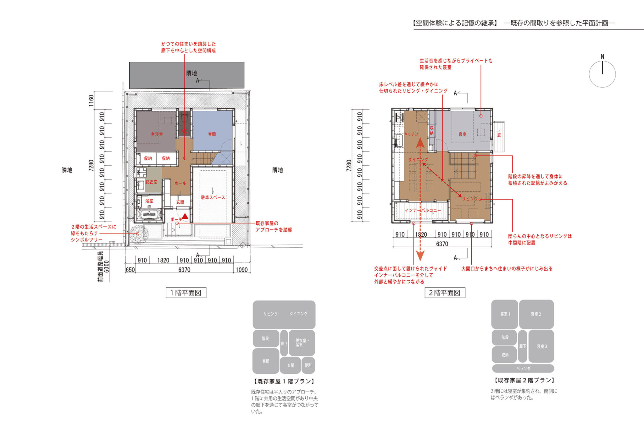
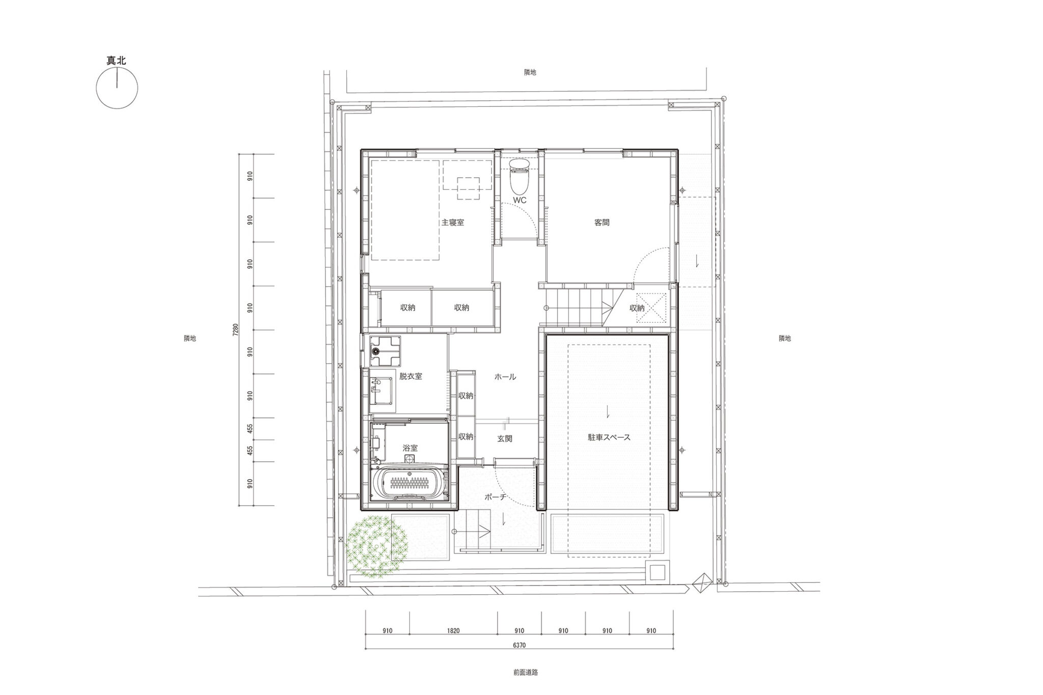
小林敬政による、大阪市の「K邸」。施主家族が40年以上暮らした住まいの建替。既存を建物を超えた“記憶の器”と捉え、刷新ではなく“継承”する設計を志向。旧家屋の間取りを参照して“再構築”した平面構成で“空間体験”を通して記憶を喚起する1階平面図 image©小林敬政
小林敬政による、大阪市の「K邸」。施主家族が40年以上暮らした住まいの建替。既存を建物を超えた“記憶の器”と捉え、刷新ではなく“継承”する設計を志向。旧家屋の間取りを参照して“再構築”した平面構成で“空間体験”を通して記憶を喚起する2階平面図 image©小林敬政
小林敬政による、大阪市の「K邸」。施主家族が40年以上暮らした住まいの建替。既存を建物を超えた“記憶の器”と捉え、刷新ではなく“継承”する設計を志向。旧家屋の間取りを参照して“再構築”した平面構成で“空間体験”を通して記憶を喚起する平面図 image©小林敬政
小林敬政による、大阪市の「K邸」。施主家族が40年以上暮らした住まいの建替。既存を建物を超えた“記憶の器”と捉え、刷新ではなく“継承”する設計を志向。旧家屋の間取りを参照して“再構築”した平面構成で“空間体験”を通して記憶を喚起する断面図 image©小林敬政
小林敬政による、大阪市の「K邸」。施主家族が40年以上暮らした住まいの建替。既存を建物を超えた“記憶の器”と捉え、刷新ではなく“継承”する設計を志向。旧家屋の間取りを参照して“再構築”した平面構成で“空間体験”を通して記憶を喚起する建物ボリュームの検討 image©小林敬政
小林敬政による、大阪市の「K邸」。施主家族が40年以上暮らした住まいの建替。既存を建物を超えた“記憶の器”と捉え、刷新ではなく“継承”する設計を志向。旧家屋の間取りを参照して“再構築”した平面構成で“空間体験”を通して記憶を喚起する既存の外観、南側より見る。 photo©小林敬政
小林敬政による、大阪市の「K邸」。施主家族が40年以上暮らした住まいの建替。既存を建物を超えた“記憶の器”と捉え、刷新ではなく“継承”する設計を志向。旧家屋の間取りを参照して“再構築”した平面構成で“空間体験”を通して記憶を喚起する既存の外観、南東側より見る。 photo©小林敬政
小林敬政による、大阪市の「K邸」。施主家族が40年以上暮らした住まいの建替。既存を建物を超えた“記憶の器”と捉え、刷新ではなく“継承”する設計を志向。旧家屋の間取りを参照して“再構築”した平面構成で“空間体験”を通して記憶を喚起する既存の外観、南側より見る。 photo©小林敬政
小林敬政による、大阪市の「K邸」。施主家族が40年以上暮らした住まいの建替。既存を建物を超えた“記憶の器”と捉え、刷新ではなく“継承”する設計を志向。旧家屋の間取りを参照して“再構築”した平面構成で“空間体験”を通して記憶を喚起する既存の1階、ホールから玄関を見る。 photo©小林敬政
小林敬政による、大阪市の「K邸」。施主家族が40年以上暮らした住まいの建替。既存を建物を超えた“記憶の器”と捉え、刷新ではなく“継承”する設計を志向。旧家屋の間取りを参照して“再構築”した平面構成で“空間体験”を通して記憶を喚起する既存の1階から2階への階段 photo©小林敬政

以下、建築家によるテキストです。


計画の背景 ―記憶を継承する住まい―

40年以上家族が住み慣れた小さな住宅の建て替え計画である。
計画地には施主夫婦が40年以上前に購入し、2人の娘とともに長年住み続けてきた住宅が建っていた。大切に住み続けてきたが、老朽化に伴い将来の地震や津波への懸念が強くなってきており、娘がひとり結婚し家を出るタイミングで3人の住まいとして改築することとなった。

当初は愛着のある住まいに住み続けるべく耐震改修を検討したが、耐震診断の結果躯体の老朽化が著しいことが判明し建替えることとなった。施主は計画地に隣接する金属研磨工場を長年営んでいる。家の想い出を語る施主の表情を見て、毎日この家をながめながら仕事を行う施主にとって、この家は住まい以上の大切な記憶の器なのだと感じた。

そこで40年以上の記憶が蓄積されたこの住宅を全く新しいものにするのではなく、建物の立姿や内部の空間体験といった諸要素を受け継ぎながら、耐震性能や快適性に優れたこれからも住み続けて行ける、住まいという記憶の器の再構築を目指した。

 
継承の手法 ―空間体験と立姿の継承-

空間体験による記憶の継承―既存の間取りを参照した平面計画―

住まいの記憶は階段の上り下りや部屋と部屋の行き来などの空間体験を通して身体的に想起される。
そこで既存家屋の平面計画を参照し、それらを中間階に設けたリビングを中心に再構築することで、新しい家での空間体験を通じて長年身体に蓄積された記憶が思い起こされるよう計画した。

立姿の継承によりあたりまえの風景を守る―既存の建物ボリュームと形状の継承―

かつての住宅の立姿は家族にとって帰宅時にホッとできる大切なあたりまえの風景であった。
そこでその立姿を継承すべく、施主要望である駐車スペースを計画地内で確保すること、地震による浸水対策としての床上げの2点をヒントに、駐車スペースの天井高さを絞りスキップフロア形式とすることで建物高さを既存家屋と同程度に抑えた。また屋根形状も既存と同じ平入とすることで、住み手だけでなく周辺住民からも見慣れた立姿を継承した。

過去と未来がつながるこの住まいで、これからの日々の営みが新たな記憶となって積み重なっていくことを願っている。

■建築概要

名称:K邸
所在地:大阪府大阪市
設計監理:小林敬政
施工:株式会社木村工務店 担当/山元智浩
構造設計:TE-DOK一級建築士事務所 担当/河本和義
構造規模:木造地上2階
敷地面積:81.45㎡
建築面積:46.38㎡
延べ面積:86.13㎡
設計期間:2022年8月~2024年7月
工事期間:2024年7月~2025年1月
写真:多田ユウコ写真事務所 多田ユウコ

建材情報
種別使用箇所商品名(メーカー名)
外装・壁外壁

SOLIDO typeM_LAP 鉄黒(ケイミュー)

外装・屋根屋根

ガルバリウム鋼板タテハゼ葺き

外装・建具建具

アルミサッシ(LIXIL)

外装・照明各部照明

(コイズミ照明)

内装・床リビング、ダイニング、ホール 床

ミャンマーチークABフローリング

内装・床各寝室、WC、脱衣室 床

マーモリウム(Forbo、田島ルーフィング)

内装・壁各寝室、リビング、ダイニング 壁

シナ合板クリア塗装

内装・壁リビング、玄関 壁

EP塗装

内装・天井各寝室、リビング、ダイニング 天井

シナ合板クリア塗装

内装・建具各寝室、WC

レバーハンドル:LH1-262(シブタニ)
玄関引手:C226-346-800(施主にて研磨の上クリア塗装、シブタニ)

内装・建具通用口

レバーハンドル:UL1058-001(ユニオン)

内装・その他ホール、WC 手摺

ホール手摺:G1277-15-265(ユニオン)
WC手摺:OAS-HB-201(ユニオン)

内装・水廻りトイレ、ユニットバス、洗面台

(TOTO)

内装・照明各部照明

(コイズミ照明)

※企業様による建材情報についてのご意見や「PR」のご相談はこちらから
※この情報は弊サイトや設計者が建材の性能等を保証するものではありません


Concept — A Home That Inherits Memories

This project involves rebuilding a small house where a family had lived for over 40 years. The site was originally purchased by the couple more than four decades ago, and they lived there with their two daughters. Although the house was cherished and well-maintained, concerns about earthquakes and tsunamis grew as it aged. When one daughter got married and moved out, the family decided to renovate the home for the remaining three members.
Initially, they considered seismic retrofitting to preserve the beloved house, but a structural diagnosis revealed significant deterioration, leading to the decision to rebuild. The owner has long operated a metal polishing workshop adjacent to the site. Seeing his expression as he spoke about the house made it clear that this home was more than just a place to live—it was a vessel of precious memories.
Rather than creating something entirely new, the design aims to reconstruct the home as a vessel of memory, preserving elements such as its form and spatial experience, while enhancing seismic safety and comfort for continued living.

Methods of Inheritance — Spatial Experience and Architectural Form

1. Inheriting Memory Through Spatial Experience
The memory of a home is often recalled through physical experiences—walking up stairs, moving between rooms. By referencing the original floor plan and reconstructing it around a centrally located living room on a split level, the new design allows these long-held bodily memories to naturally resurface in daily life.
2. Preserving the Familiar Landscape Through Architectural Form
The former house’s appearance was a comforting part of everyday life. To preserve this familiar landscape, the design incorporates two key elements requested by the client: securing on-site parking and raising the floor level to mitigate flood risks. By lowering the ceiling height of the parking space and adopting a skip-floor configuration, the overall building height was kept close to that of the original house. The roof was also designed with the same gable orientation, maintaining a familiar silhouette for both the residents and the surrounding community.

This home quietly inherits the memories of the past while supporting the life to come. It is a place where everyday moments will continue to accumulate as new memories—connecting time, space, and the family’s ongoing story.

あわせて読みたい

畠山鉄生+吉野太基+アーキペラゴアーキテクツスタジオによる、東京・東大和市の「Uの家」。周囲に“抜け”のある敷地。一般木造住宅の“再解釈”も意図して、各建築要素を“再構築”する設計を志向。諸機能を収めた“分厚い塊”の様な勾配天井は、内部を空に向けて開くと共に“家の中心”として存在
  • SHARE
TE-DOK小林敬政木村工務店建材(外装・壁)建材(外装・屋根)建材(外装・建具)建材(外装・照明)建材(内装・床)建材(内装・壁)建材(内装・天井)建材(内装・建具)建材(内装・照明)建材(内装・その他)建材(内装・水廻り)住宅図面あり大阪多田ユウコ
2025.11.25 Tue 16:50
0
permalink

#多田ユウコの関連記事

  • 2025.1.07Tue
    MuFF・文化工学研究所・クラウドアーキテクツによる、兵庫・神戸市の「KITASUZUHAUS」。市営住宅の建替えの一環で計画された“暮らし賑わい施設”。地域活性化とコミュニティの創出を求め、施設に集う様子が外側にも滲み出ていく状況を志向。“風通しの良い”木架構の空間に切妻屋根が載る建築を考案
  • 2014.12.09Tue
    サムネイル:諸江一紀建築設計事務所による三重の「東員の住宅」
    諸江一紀建築設計事務所による三重の「東員の住宅」
  • 2012.1.26Thu
    サムネイル:木村吉成+松本尚子 / 木村松本建築設計事務所による兵庫県丹波市の住宅「4」
    木村吉成+松本尚子 / 木村松本建築設計事務所による兵庫県丹波市の住宅「4」
  • view all
view all

#木村工務店の関連記事

  • 2025.1.28Tue
    竹口健太郎+山本麻子 / アルファヴィルによる、京都・宇治市の店舗「TEA SQUARE MORIHAN 第二期工事」。増築が繰り返された茶問屋を改修してカフェ等の機能を加える計画。新旧の構法が入り混じる既存に対し、新設の中庭と回廊で既存の構造とプログラムを整理する計画を考案。伝統的な場所への更なる歴史の重層も意図
  • 2024.7.10Wed
    水上和哉 / kvalitoによる、京都・大山崎町の「マクセル クセがあるスタジオ」。企業の為の展示やイベントを行う施設。回遊性と中心性を備えた空間として、“九間”のホールを中心に据えて“回廊”で囲む構成を考案。メッシュ製の展示壁を建具として設えて“状況に応じた変容”も可能にする
  • 2021.2.19Fri
    山路哲生建築設計事務所による、大阪の住宅「二枚屋根の家」
  • view all
view all

建築求人情報

Loading...

 

    公式アカウントをフォローして、見逃せない建築情報を受け取ろう。

    61,931
    • Follow
    86,964
    • Follow
    • Follow
    • Add Friends
    • Subscribe
    • 情報募集/建築・デザイン・アートの情報を随時募集しています。
      More
    • メールマガジン/ メールマガジンで最新の情報を配信しています。
      More

    この日更新したその他の記事

    【ap job更新】 吉祥寺と西荻窪を拠点に、働く人へのサポートや多様な働き方への対応も進める「角田佳瑞彰建築設計事務所」が、設計スタッフ(2026年新卒・既卒・経験者)を募集中

    ap job 【ap job更新】 吉祥寺と西荻窪を拠点に、働く人へのサポートや多様な働き方への対応も進める「角田佳瑞彰建築設計事務所」が、設計スタッフ(2026年新卒・既卒・経験者)を募集中

    architecture|job|promotion
    建築求人情報
    【ap job更新】 吉祥寺と西荻窪を拠点に、働く人へのサポートや多様な働き方への対応も進める「角田佳瑞彰建築設計事務所」が、設計スタッフ(2026年新卒・既卒・経験者)を募集中
    【ap job更新】 吉祥寺と西荻窪を拠点に、働く人へのサポートや多様な働き方への対応も進める「角田佳瑞彰建築設計事務所」が、設計スタッフ(2026年新卒・既卒・経験者)を募集中梅郷の家1
    アーキテクチャーフォトジョブボードに新しい情報が追加されました
    job.architecturephoto.net

    吉祥寺と西荻窪を拠点に、働く人へのサポートや多様な働き方への対応も進める「角田佳瑞彰建築設計事務所」の、設計スタッフ(2026年新卒・既卒・経験者)募集のお知らせです。詳しくは、ジョブボードの当該ページにてご確認ください。アーキテクチャーフォトジョブボードには、その他にも、色々な事務所の求人情報が掲載されています。
    新規の求人の投稿はこちらからお気軽にお問い合わせください。

    一級建築士事務所 角田佳瑞彰建築設計事務所株式会社では事業拡大に伴い設計スタッフを募集しています。

    東京吉祥寺と西荻窪を拠点に活動を行う設立5年目のまだまだ小さな設計事務所です。
    個人住宅、共同住宅、商業施設、オフィス、飲食店舗の設計、小規模なリノベーションなど幅広いプロジェクトが進行しております。

    現在は4名のスタッフ(正スタッフ、アルバイト)に働いていただいております。
    建築からインテリアまで様々な分野の設計スキルを習得しながら設計担当者として活躍することができます。

    ご自身のスキルを発揮していただくのはもちろんのこと、スキル以上の業務が求められた場合も先輩スタッフの指導のもとサポートしていきます。働き方も比較的自由ですのでリモートワークや勤務時間の調整など柔軟に対応しております。

    建築が好き、責任感やこだわりをを持って業務に取り組める人、コミュニケーションの取れる素直な人材を募集しています。

    job.architecturephoto.net
    • ap job
    建築求人情報
    2025.11.25 Tue 09:23
    0
    permalink
    ハンス・ウェグナーの展覧会が渋谷ヒカリエで開催。入場チケットをプレゼント。多くの名作椅子を手掛けたデザイナーの、国内最大規模となる大回顧展。会場構成は田根剛が手掛ける

    SHARE ハンス・ウェグナーの展覧会が渋谷ヒカリエで開催。入場チケットをプレゼント。多くの名作椅子を手掛けたデザイナーの、国内最大規模となる大回顧展。会場構成は田根剛が手掛ける

    日程
    2025年12月2日(火)
    –
    2026年1月18日(日)
    design|exhibition
    ハンス・ウェグナーの展覧会が渋谷ヒカリエで開催。入場チケットをプレゼント。多くの名作椅子を手掛けたデザイナーの、国内最大規模となる大回顧展。会場構成は田根剛が手掛ける展覧会ポスター image courtesy of Bunkamura
    「織田コレクション ハンス・ウェグナー展 至高のクラフツマンシップ」の入場チケットの抽選への応募はこちらから
    forms.gle

    「織田コレクション ハンス・ウェグナー展 至高のクラフツマンシップ」が渋谷ヒカリエで開催されます。
    入場チケットを抽選でプレゼントいたします。多くの名作椅子を手掛けたデザイナーの、国内最大規模となる大回顧展。会場構成は田根剛が手掛けます。
    展示会期は、2025年12月2日から2026年1月18日まで。展覧会の公式ページはこちら。入場チケットプレゼント企画の応募締切は、2025年12月12日(金)13時まで(お申込みにはGoogleアカウントが必要になります)。こちらのフォームからご応募ください。厳正な抽選を行い当選された方にはメールにてご連絡いたします(メール送付を当選発表にかえさせていただきます)。

    ハンス・ウェグナー(1914-2007)は、ミッドセンチュリー期のデンマークデザインの範疇にとどまらず20世紀の家具デザイン史における代表的な存在として語られています。代表作である《ザ・チェア》(1949)や《Yチェア》(1950)は高い人気を誇り、多くの人が目にしたことがあるでしょう。家具職人として類まれなる才能と素材に対する深い洞察を併せ持つウェグナーは、生涯で実に500脚以上の椅子を世に送り出しました。本展は、世界的な椅子研究家であり北欧を中心とした近代家具のコレクターでもある織田憲嗣氏のコレクションを有する北海道東川町の協力を得て、椅子約160点、その他家具などを一堂に集めた、国内でかつてない規模のウェグナー大回顧展となります。デザイン界の巨匠と目され、今日まで愛され続けるウェグナーの魅力とは何か。世界で活躍する建築家・田根剛氏(ATTA)による会場構成のもと、豊富な作品群と関連資料を通してその功績とデザイン哲学を振り返ります。

    リリーステキストより

    以下に、詳細な情報を掲載します。

    • 残り14枚の写真とテキストを見る
    • SHARE
    2025.11.25 Tue 07:06
    0
    permalink
    2025.11.23Sun
    • MVRDVによる、台湾の集合住宅「ザ・アイランド」。密集した商業地域での計画。“都市の中への緑のオアシスの創出”を目指し、ファサードに多数の植栽スペース付きのバルコニーなどを備えた建築を考案。緑と統合する有機的形態はガウディの建築からも着想を得る
    • 最も注目を集めたトピックス[期間:2025/11/17-11/23]
    2025.11.27Thu
    • 【ap job更新】 荒木信雄 / アーキタイプが、広報職と設計スタッフ(経験者・既卒)を募集中
    • 吉岡徳仁による、京都市の店舗「HaaT / KYOTO」。市内の商業エリアでの計画。既存町家を継承しつつ、“異なる時間の融合と対比”でつくりあげる空間を志向。内部ではアルミニウム金属を日本の伝統を感じさせる“桜色”に染め上げて用いる
    • 竹山聖 / 設計組織アモルフによる、さいたま市の「双恵幼稚園」。“子供が世界に触れる場所”として構想された施設。思い掛けない出会いの創出も意図し、保育室群の中心に“外と内の二つの中庭”を配置する構成を考案。子供達の可能性の拡大を願って宇宙を感じる要素も散りばめる

    Subscribe and Follow

    公式アカウントをフォローして、
    見逃せない建築情報を受け取ろう。

    「建築と社会の関係を視覚化する」メディア、アーキテクチャーフォトの公式アカウントです。
    様々な切り口による複眼的視点で建築に関する情報を最速でお届けします。

    61,931
    • Follow
    86,964
    • Follow
    • Follow
    • Add Friends
    • Subscribe
    • 情報募集/建築・デザイン・アートの情報を随時募集しています。
      More
    • メールマガジン/ メールマガジンで最新の情報を配信しています。
      More

    architecturephoto® News Letter

    メールマガジンでも最新の更新情報を配信中

    • ホーム
    • アーキテクチャーフォトについて
    • アーキテクチャーフォト規約
    • プライバシーポリシー
    • 特定商取引法に関する表記
    • 利用者情報の外部送信について
    • 広告掲載について
    • お問い合わせ/作品投稿

    Copyright © architecturephoto.net.

    • 建築
    • アート
    • カルチャー
    • デザイン
    • ファッション
    • 動画
    • 展覧会
    • コンペ
    • 書籍
    • 建築求人
    • 特集記事
    • 注目情報
    • タグ
    • アーキテクチャーフォト ジョブボード
    • アーキテクチャーフォト・ブック
    • ホーム
    • アーキテクチャーフォトについて
    • アーキテクチャーフォト規約
    • プライバシーポリシー
    • 特定商取引法に関する表記
    • 利用者情報の外部送信について
    • 広告掲載について
    • お問い合わせ/作品投稿

    メールマガジンで最新の情報を配信しています

    この記事をシェア
    タイトルタイトルタイトルタイトルタイトル
    https://architecturephoto.net/permalink

    記事について#architecturephotonetでつぶやいてみましょう。
    有益なコメントは拡散や、サイトでも紹介させていただくこともございます。

    architecturephoto®
    • black
    • gray
    • white

    建築求人情報紹介

    Loading...