
SHARE トラフ建築設計事務所による、北海道の店舗「NUBIAN SAPPORO PARCO」。商業施設の本館と別館にまたがる区画での計画。手前の空間に敢えてストックルームを配置して、黒い壁面と円形の照明で奥の売場へと来訪者を誘導する構成を考案。既存店の要素を継承しつつ新たな表現の導入も意図




トラフ建築設計事務所が設計した、北海道の店舗「NUBIAN SAPPORO PARCO」です。
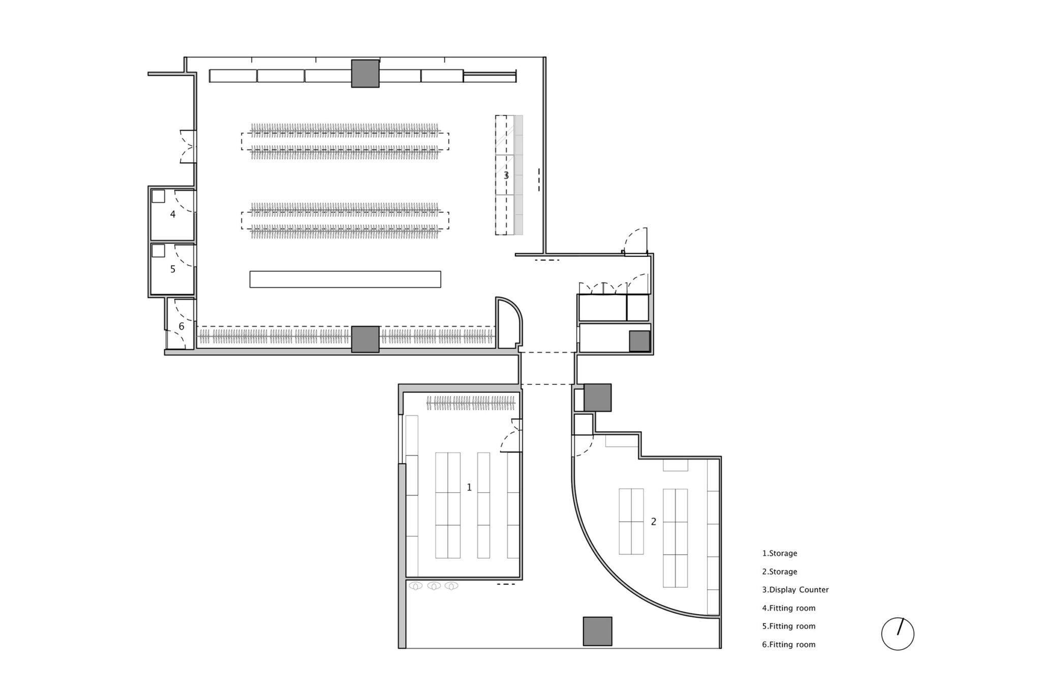
商業施設の本館と別館にまたがる区画での計画です。建築家は、手前の空間に敢えてストックルームを配置して、黒い壁面と円形の照明で奥の売場へと来訪者を誘導する構成を考案しました。また、既存店の要素を継承しつつ新たな表現の導入も意図されました。店舗の場所はこちら(Google Map)。
国内外のモードとストリートカルチャーを融合させ、新たなトレンドを生み出すセレクトショップ NUBIAN。
原宿店、渋谷PARCO店、名古屋PARCO店、大阪に続き、全国4都市目となる北海道エリア初出店として、札幌PARCO内の内装を手掛けた。区画は2階に位置し、本館と別館にまたがる約265㎡が敷地となる。
手前の区画にはあえてストックルームのみを配置し、ブラックの壁面がつくるゲートとサークル状に灯る光が導線を描き、来訪者を奥の店舗空間へと誘導する。
奥の空間は白とシルバーを基調とし、天井に走る配管や構造体を露出させることで、ストリートカルチャーのラフさを残しつつも、鏡面やアクリル素材を組み合わせ、光の反射や透過がもたらす奥行きと洗練された表情を生み出している。
NUBIANのショップ構成を象徴する店舗中央の2列のロングハンガーラックの上部には、ドットライトのボックスを設置し、商品を象徴的に浮かび上がらせる。
また、ファサードに面した窓沿いには背面にパンチングメタルを用いた棚を設け、そこを透過した自然光が店内にやわらかく広がり、開放感をもたらした。
さらに、ディスプレイカウンター上部とカウンター内部にスピーカーを配置し、天井に点在するスピーカーと合わせることで、“音の存在”が空間に自然と溶け込む本格的な音響環境を構築している。
以下の写真はクリックで拡大します
















以下、建築家によるテキストです。
国内外のモードとストリートカルチャーを融合させ、新たなトレンドを生み出すセレクトショップ NUBIAN。
原宿店、渋谷PARCO店、名古屋PARCO店、大阪に続き、全国4都市目となる北海道エリア初出店として、札幌PARCO内の内装を手掛けた。
区画は2階に位置し、本館と別館にまたがる約265㎡が敷地となる。
手前の区画にはあえてストックルームのみを配置し、ブラックの壁面がつくるゲートとサークル状に灯る光が導線を描き、来訪者を奥の店舗空間へと誘導する。
奥の空間は白とシルバーを基調とし、天井に走る配管や構造体を露出させることで、ストリートカルチャーのラフさを残しつつも、鏡面やアクリル素材を組み合わせ、光の反射や透過がもたらす奥行きと洗練された表情を生み出している。
NUBIANのショップ構成を象徴する店舗中央の2列のロングハンガーラックの上部には、ドットライトのボックスを設置し、商品を象徴的に浮かび上がらせる。
また、ファサードに面した窓沿いには背面にパンチングメタルを用いた棚を設け、そこを透過した自然光が店内にやわらかく広がり、開放感をもたらした。
さらに、ディスプレイカウンター上部とカウンター内部にスピーカーを配置し、天井に点在するスピーカーと合わせることで、“音の存在”が空間に自然と溶け込む本格的な音響環境を構築している。
ミニマルでありながら、光・音・マテリアルが呼応し、既存店の要素を継承しつつ、ここ札幌ならではの新たな表現を目指した。
■建築概要
所在・会場:北海道、札幌PARCO
主要用途:物販店舗
施工:クリキンディ
設計協力:城所美沙子
照明計画:BRANCH LIGHTING DESIGN
音響設計・制作:WHITELIGHT SOUNDSYSTEM
延床面積:265㎡
設計期間:2025年1月~2025年8月
施工期間:2025年9月~2025年10月
写真:阿野太一
| 種別 | 使用箇所 | 商品名(メーカー名) |
|---|---|---|
| 内装・床 | 主要箇所 床 | 既存コンクリートの上モルタル薄塗り+ワックス |
| 内装・床 | フィッティングルーム 床 | カーペット張り:Safire 9G21(アーテリア) |
| 内装・壁 | 主要箇所 壁 | PB t=12.5 AEP |
| 内装・壁 | フィッティングルーム 壁 | PB t=12.5 AEP、ミラー |
| 内装・天井 | 主要箇所 天井 | 既存あらわし |
| 内装・天井 | フィッティングルーム 天井 | PB t=9.5 AEP |
| 内装・造作家具 | 売場 造作家具 | 木下地の上ウレタン塗装 |
| 内装・造作家具 | キャッシャーエリア ディスプレイカウンター | |
| 内装・造作家具 | キャッシャーエリア スピーカー |
※企業様による建材情報についてのご意見や「PR」のご相談はこちらから
※この情報は弊サイトや設計者が建材の性能等を保証するものではありません
NUBIAN is a select shop that blends global fashion with street culture to create new trends. Following its locations in Harajuku, Shibuya PARCO, Nagoya PARCO, and Osaka, this project marks its first opening in Hokkaido and fourth city nationwide, for which we designed the interior at Sapporo PARCO. The site occupies approximately 265 sqm on the second floor, spanning both the main and annex buildings.
At the front of the site, only a stockroom is intentionally placed. The black wall surface forms a gate, while a circular line of light traces the circulation, guiding visitors toward the main retail area in the back.The interior is finished in a palette of white and silver. Exposed piping and structural elements running across the ceiling retain a sense of raw street culture, while the addition of mirrored and acrylic surfaces layers reflections and transparency, giving the space a refined depth.
Two long rows of hangers—symbolic of NUBIAN’s spatial identity—stand at the center of the store, above which a box of dot lighting is suspended to dramatically illuminate the products. Along the windows facing the façade, shelving backed with perforated metal is installed, allowing natural light to filter through its openings and gently diffuse throughout the space, bringing a sense of openness.
Sound is treated as an integral spatial element. Speakers placed above and within the display counter, together with additional units located across the ceiling, create an immersive acoustic environment in which sound quietly melds with the space.
Minimal in composition, yet layered with light, sound, and materiality, the space carries forward elements familiar to NUBIAN’s existing stores while seeking a new spatial expression unique to Sapporo.
NUBIAN SAPPORO PARCO
Building site: SAPPORO PARCO, Hokkaido
Principle use: SHOP
Production: kurikindi
Design collaboration: Misako Kidokoro
Lighting design: BRANCH LIGHTING DESIGN
Sound design and production: WHITELIGHT SOUNDSYSTEM
Total floor area: 265m2
Design period: 2025.1-2025.08
Construction period: 2025.09-2025.10
Photo: Daici Ano





