沼田祐子 / YNASによる、東京・渋谷区の住戸改修「神宮のスタジオ / 自邸」。共用部の光庭や動線が特徴的な集合住宅での計画。外の空間性の内への導入を求め、光を拡散して全体を緩やかに繋げる“曲面壁”を中心に据える構成を考案。歴史も読み込んだ創造で“住み継ぐ”選択肢の提示も意図玄関からダイニングエリア側を見る。 photo©西川公朗
沼田祐子 / YNASによる、東京・渋谷区の住戸改修「神宮のスタジオ / 自邸」。共用部の光庭や動線が特徴的な集合住宅での計画。外の空間性の内への導入を求め、光を拡散して全体を緩やかに繋げる“曲面壁”を中心に据える構成を考案。歴史も読み込んだ創造で“住み継ぐ”選択肢の提示も意図ダイニングエリアからリビングエリア側を見る。 photo©新建築社写真部
沼田祐子 / YNASによる、東京・渋谷区の住戸改修「神宮のスタジオ / 自邸」。共用部の光庭や動線が特徴的な集合住宅での計画。外の空間性の内への導入を求め、光を拡散して全体を緩やかに繋げる“曲面壁”を中心に据える構成を考案。歴史も読み込んだ創造で“住み継ぐ”選択肢の提示も意図スタディエリア photo©八坂麻里子
沼田祐子 / YNASが設計した、東京・渋谷区の住戸改修「神宮のスタジオ / 自邸」です。
共用部の光庭や動線が特徴的な集合住宅での計画です。建築家は、外の空間性の内への導入を求め、光を拡散して全体を緩やかに繋げる“曲面壁”を中心に据える構成を考案しました。また、歴史も読み込んだ創造で“住み継ぐ”選択肢の提示も意図されました。
ビラ・セレーナは平面的に十字スリットが入り、4つのヴォリュームに分節することで隣り合った住戸がほとんどないこと、住民共用の光庭を内包しており、建物の裏側と捉えられる内側が黄色に塗られていることが特徴である。光庭は角度のついた外壁と円筒形のEVシャフトによって、各戸の玄関の視線が制御されており、外部の曲がった小道がそのまま続いている感覚になる。
黄色の塗装が見えるスリットの階段を数段上がってたどり着く一室を、建築家とキャスティングディレクター夫婦の自邸兼仕事場として設計した。二人とも仕事とプライベートの境界が曖昧で、その曖昧さを楽しみ、集中したいときには自分の世界に没頭できる場所が必要であった。共用部まで続く動線と空間構成を住戸内にまで引き込むことで緩やかに連なる空間を作った。
曲面壁はコンクリートのグリッドで固くなりすぎる空間に柔らかさを加え、外光を反射し部屋全体を明るく照らす役割も果たす。開口部に面していない水回りや、近づいて初めて見えるスタディエリアの床に色を使い、裏方に色を持たせる共用部の特徴を踏襲した。
曲面壁に誘導された視線の先の開口は向かいの集合住宅のビワの木やテラスに施された植栽が借景になる。早朝には朝日を受けた外装の黄色壁の反射により部屋全体が黄金の光に包まれる。キッチンは無彩色に近いグリーンを使ったシンプルなヴォリュームで室内からも見えてくる共用部の特徴的な黄色を背景として際立たせた。
住戸全体が緩やかに繋がり、外への意識が加わることで、独立しプライベートヴィラのようでありつつも周囲の環境に溶け込むものとなった。周辺環境の特徴と既存建築の歴史を読み込みながら、新たな生活の場を創造することで、一室改修の可能性を最大限に示し、経年した建物を大切に住み継ぐ選択肢を浸透させていきたい。
以下の写真はクリックで拡大します

沼田祐子 / YNASによる、東京・渋谷区の住戸改修「神宮のスタジオ / 自邸」。共用部の光庭や動線が特徴的な集合住宅での計画。外の空間性の内への導入を求め、光を拡散して全体を緩やかに繋げる“曲面壁”を中心に据える構成を考案。歴史も読み込んだ創造で“住み継ぐ”選択肢の提示も意図住戸のある集合住宅の外観。 photo©西川公朗

沼田祐子 / YNASによる、東京・渋谷区の住戸改修「神宮のスタジオ / 自邸」。共用部の光庭や動線が特徴的な集合住宅での計画。外の空間性の内への導入を求め、光を拡散して全体を緩やかに繋げる“曲面壁”を中心に据える構成を考案。歴史も読み込んだ創造で“住み継ぐ”選択肢の提示も意図共用部より開口部越しに玄関を見る。 photo©西川公朗

沼田祐子 / YNASによる、東京・渋谷区の住戸改修「神宮のスタジオ / 自邸」。共用部の光庭や動線が特徴的な集合住宅での計画。外の空間性の内への導入を求め、光を拡散して全体を緩やかに繋げる“曲面壁”を中心に据える構成を考案。歴史も読み込んだ創造で“住み継ぐ”選択肢の提示も意図玄関からダイニングエリア側を見る。 photo©西川公朗

沼田祐子 / YNASによる、東京・渋谷区の住戸改修「神宮のスタジオ / 自邸」。共用部の光庭や動線が特徴的な集合住宅での計画。外の空間性の内への導入を求め、光を拡散して全体を緩やかに繋げる“曲面壁”を中心に据える構成を考案。歴史も読み込んだ創造で“住み継ぐ”選択肢の提示も意図玄関側からキッチンとダイニングエリアを見る。 photo©西川公朗

沼田祐子 / YNASによる、東京・渋谷区の住戸改修「神宮のスタジオ / 自邸」。共用部の光庭や動線が特徴的な集合住宅での計画。外の空間性の内への導入を求め、光を拡散して全体を緩やかに繋げる“曲面壁”を中心に据える構成を考案。歴史も読み込んだ創造で“住み継ぐ”選択肢の提示も意図左:キッチン、右:ダイニングエリア photo©西川公朗

沼田祐子 / YNASによる、東京・渋谷区の住戸改修「神宮のスタジオ / 自邸」。共用部の光庭や動線が特徴的な集合住宅での計画。外の空間性の内への導入を求め、光を拡散して全体を緩やかに繋げる“曲面壁”を中心に据える構成を考案。歴史も読み込んだ創造で“住み継ぐ”選択肢の提示も意図ダイニングエリアからキッチンを見る。 photo©西川公朗

沼田祐子 / YNASによる、東京・渋谷区の住戸改修「神宮のスタジオ / 自邸」。共用部の光庭や動線が特徴的な集合住宅での計画。外の空間性の内への導入を求め、光を拡散して全体を緩やかに繋げる“曲面壁”を中心に据える構成を考案。歴史も読み込んだ創造で“住み継ぐ”選択肢の提示も意図ダイニングエリアからキッチンを見る。 photo©西川公朗

沼田祐子 / YNASによる、東京・渋谷区の住戸改修「神宮のスタジオ / 自邸」。共用部の光庭や動線が特徴的な集合住宅での計画。外の空間性の内への導入を求め、光を拡散して全体を緩やかに繋げる“曲面壁”を中心に据える構成を考案。歴史も読み込んだ創造で“住み継ぐ”選択肢の提示も意図キッチン photo©西川公朗

沼田祐子 / YNASによる、東京・渋谷区の住戸改修「神宮のスタジオ / 自邸」。共用部の光庭や動線が特徴的な集合住宅での計画。外の空間性の内への導入を求め、光を拡散して全体を緩やかに繋げる“曲面壁”を中心に据える構成を考案。歴史も読み込んだ創造で“住み継ぐ”選択肢の提示も意図キッチンからダイニングエリアを見る。 photo©西川公朗

沼田祐子 / YNASによる、東京・渋谷区の住戸改修「神宮のスタジオ / 自邸」。共用部の光庭や動線が特徴的な集合住宅での計画。外の空間性の内への導入を求め、光を拡散して全体を緩やかに繋げる“曲面壁”を中心に据える構成を考案。歴史も読み込んだ創造で“住み継ぐ”選択肢の提示も意図ダイニングエリアから「アウトドアリビング」とリビングエリア側を見る。 photo©西川公朗

沼田祐子 / YNASによる、東京・渋谷区の住戸改修「神宮のスタジオ / 自邸」。共用部の光庭や動線が特徴的な集合住宅での計画。外の空間性の内への導入を求め、光を拡散して全体を緩やかに繋げる“曲面壁”を中心に据える構成を考案。歴史も読み込んだ創造で“住み継ぐ”選択肢の提示も意図ダイニングエリアからリビングエリア側を見る。 photo©新建築社写真部

沼田祐子 / YNASによる、東京・渋谷区の住戸改修「神宮のスタジオ / 自邸」。共用部の光庭や動線が特徴的な集合住宅での計画。外の空間性の内への導入を求め、光を拡散して全体を緩やかに繋げる“曲面壁”を中心に据える構成を考案。歴史も読み込んだ創造で“住み継ぐ”選択肢の提示も意図リビングエリア photo©西川公朗

沼田祐子 / YNASによる、東京・渋谷区の住戸改修「神宮のスタジオ / 自邸」。共用部の光庭や動線が特徴的な集合住宅での計画。外の空間性の内への導入を求め、光を拡散して全体を緩やかに繋げる“曲面壁”を中心に据える構成を考案。歴史も読み込んだ創造で“住み継ぐ”選択肢の提示も意図リビングエリアからダイニングエリア側を見る。 photo©西川公朗

沼田祐子 / YNASによる、東京・渋谷区の住戸改修「神宮のスタジオ / 自邸」。共用部の光庭や動線が特徴的な集合住宅での計画。外の空間性の内への導入を求め、光を拡散して全体を緩やかに繋げる“曲面壁”を中心に据える構成を考案。歴史も読み込んだ創造で“住み継ぐ”選択肢の提示も意図スタディエリア側からリビングエリアを見る。 photo©西川公朗

沼田祐子 / YNASによる、東京・渋谷区の住戸改修「神宮のスタジオ / 自邸」。共用部の光庭や動線が特徴的な集合住宅での計画。外の空間性の内への導入を求め、光を拡散して全体を緩やかに繋げる“曲面壁”を中心に据える構成を考案。歴史も読み込んだ創造で“住み継ぐ”選択肢の提示も意図スタディエリア側からリビングエリアを見る。 photo©新建築社写真部

沼田祐子 / YNASによる、東京・渋谷区の住戸改修「神宮のスタジオ / 自邸」。共用部の光庭や動線が特徴的な集合住宅での計画。外の空間性の内への導入を求め、光を拡散して全体を緩やかに繋げる“曲面壁”を中心に据える構成を考案。歴史も読み込んだ創造で“住み継ぐ”選択肢の提示も意図スタディエリア photo©八坂麻里子

沼田祐子 / YNASによる、東京・渋谷区の住戸改修「神宮のスタジオ / 自邸」。共用部の光庭や動線が特徴的な集合住宅での計画。外の空間性の内への導入を求め、光を拡散して全体を緩やかに繋げる“曲面壁”を中心に据える構成を考案。歴史も読み込んだ創造で“住み継ぐ”選択肢の提示も意図スタディエリア photo©新建築社写真部

沼田祐子 / YNASによる、東京・渋谷区の住戸改修「神宮のスタジオ / 自邸」。共用部の光庭や動線が特徴的な集合住宅での計画。外の空間性の内への導入を求め、光を拡散して全体を緩やかに繋げる“曲面壁”を中心に据える構成を考案。歴史も読み込んだ創造で“住み継ぐ”選択肢の提示も意図ベッドエリアからスタディエリア側を見る。 photo©西川公朗

沼田祐子 / YNASによる、東京・渋谷区の住戸改修「神宮のスタジオ / 自邸」。共用部の光庭や動線が特徴的な集合住宅での計画。外の空間性の内への導入を求め、光を拡散して全体を緩やかに繋げる“曲面壁”を中心に据える構成を考案。歴史も読み込んだ創造で“住み継ぐ”選択肢の提示も意図玄関側から洗面エリアを見る。 photo©西川公朗

沼田祐子 / YNASによる、東京・渋谷区の住戸改修「神宮のスタジオ / 自邸」。共用部の光庭や動線が特徴的な集合住宅での計画。外の空間性の内への導入を求め、光を拡散して全体を緩やかに繋げる“曲面壁”を中心に据える構成を考案。歴史も読み込んだ創造で“住み継ぐ”選択肢の提示も意図洗面エリアからキッチン側を見る。 photo©西川公朗

沼田祐子 / YNASによる、東京・渋谷区の住戸改修「神宮のスタジオ / 自邸」。共用部の光庭や動線が特徴的な集合住宅での計画。外の空間性の内への導入を求め、光を拡散して全体を緩やかに繋げる“曲面壁”を中心に据える構成を考案。歴史も読み込んだ創造で“住み継ぐ”選択肢の提示も意図洗面エリア photo©西川公朗

沼田祐子 / YNASによる、東京・渋谷区の住戸改修「神宮のスタジオ / 自邸」。共用部の光庭や動線が特徴的な集合住宅での計画。外の空間性の内への導入を求め、光を拡散して全体を緩やかに繋げる“曲面壁”を中心に据える構成を考案。歴史も読み込んだ創造で“住み継ぐ”選択肢の提示も意図玄関付近の床の詳細 photo©西川公朗

沼田祐子 / YNASによる、東京・渋谷区の住戸改修「神宮のスタジオ / 自邸」。共用部の光庭や動線が特徴的な集合住宅での計画。外の空間性の内への導入を求め、光を拡散して全体を緩やかに繋げる“曲面壁”を中心に据える構成を考案。歴史も読み込んだ創造で“住み継ぐ”選択肢の提示も意図キッチンから開口部越しに共用部を見る。 photo©横山祥平

沼田祐子 / YNASによる、東京・渋谷区の住戸改修「神宮のスタジオ / 自邸」。共用部の光庭や動線が特徴的な集合住宅での計画。外の空間性の内への導入を求め、光を拡散して全体を緩やかに繋げる“曲面壁”を中心に据える構成を考案。歴史も読み込んだ創造で“住み継ぐ”選択肢の提示も意図外部より開口部越しにスタディエリアを見る。夜景 photo©西川公朗

沼田祐子 / YNASによる、東京・渋谷区の住戸改修「神宮のスタジオ / 自邸」。共用部の光庭や動線が特徴的な集合住宅での計画。外の空間性の内への導入を求め、光を拡散して全体を緩やかに繋げる“曲面壁”を中心に据える構成を考案。歴史も読み込んだ創造で“住み継ぐ”選択肢の提示も意図リビングエリア。夜景 photo©西川公朗

沼田祐子 / YNASによる、東京・渋谷区の住戸改修「神宮のスタジオ / 自邸」。共用部の光庭や動線が特徴的な集合住宅での計画。外の空間性の内への導入を求め、光を拡散して全体を緩やかに繋げる“曲面壁”を中心に据える構成を考案。歴史も読み込んだ創造で“住み継ぐ”選択肢の提示も意図「アウトドアリビング」。夜景 photo©西川公朗

沼田祐子 / YNASによる、東京・渋谷区の住戸改修「神宮のスタジオ / 自邸」。共用部の光庭や動線が特徴的な集合住宅での計画。外の空間性の内への導入を求め、光を拡散して全体を緩やかに繋げる“曲面壁”を中心に据える構成を考案。歴史も読み込んだ創造で“住み継ぐ”選択肢の提示も意図住戸のある集合住宅の外観。夜景 photo©西川公朗

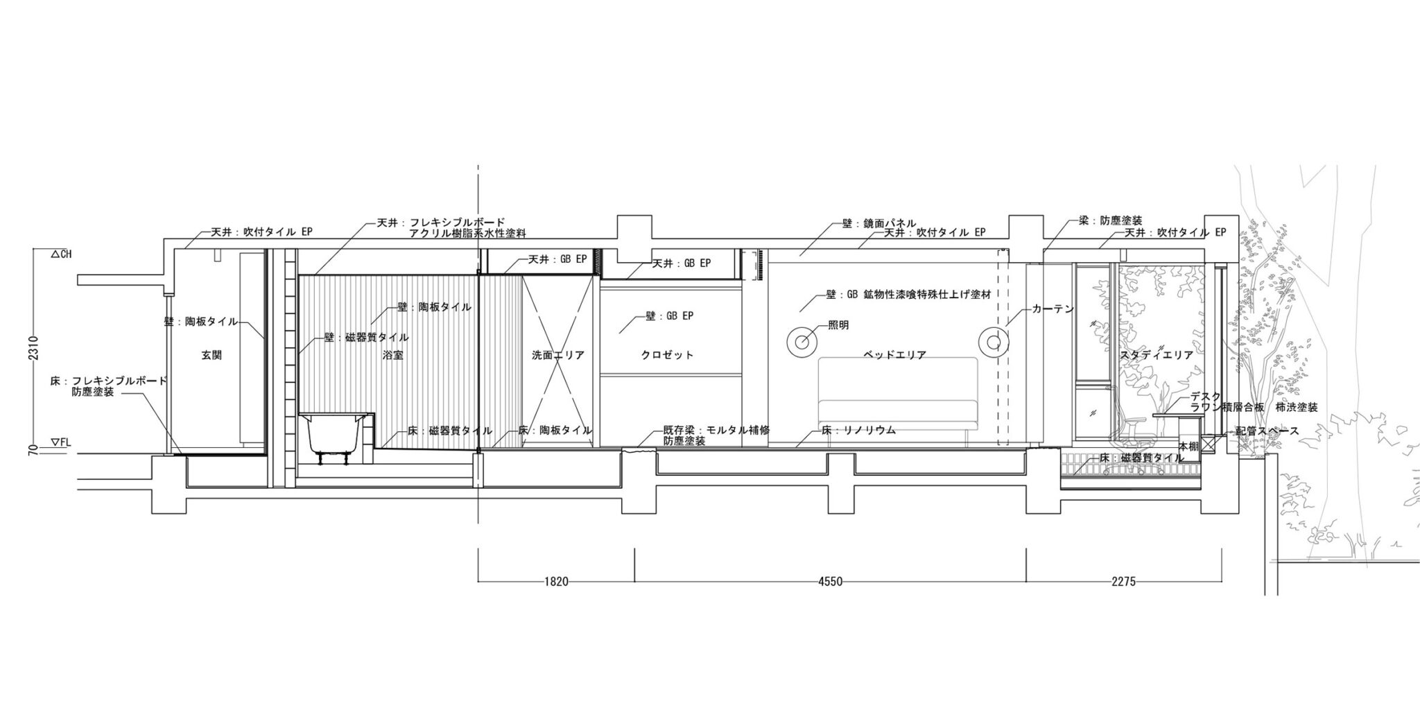
沼田祐子 / YNASによる、東京・渋谷区の住戸改修「神宮のスタジオ / 自邸」。共用部の光庭や動線が特徴的な集合住宅での計画。外の空間性の内への導入を求め、光を拡散して全体を緩やかに繋げる“曲面壁”を中心に据える構成を考案。歴史も読み込んだ創造で“住み継ぐ”選択肢の提示も意図平面図 image©YNAS

沼田祐子 / YNASによる、東京・渋谷区の住戸改修「神宮のスタジオ / 自邸」。共用部の光庭や動線が特徴的な集合住宅での計画。外の空間性の内への導入を求め、光を拡散して全体を緩やかに繋げる“曲面壁”を中心に据える構成を考案。歴史も読み込んだ創造で“住み継ぐ”選択肢の提示も意図断面図 image©YNAS
以下、建築家によるテキストです。
周辺環境と既存建築の関係を読みとき導く動線
神宮の大通りから小道に入ると、車の音と目抜き通りが消え、ランドマークを見失う。同時に小さな店や、大きな木に隠れた住戸の生活が目に入り、古い庭の木の実、小鳥の色に気が付く。そんな小道を曲がった先に現れる、半世紀前に建てられた集合住宅「ビラ・セレーナ」。
ビラ・セレーナは平面的に十字スリットが入り、4つのヴォリュームに分節することで隣り合った住戸がほとんどないこと、住民共用の光庭を内包しており、建物の裏側と捉えられる内側が黄色に塗られていることが特徴である。光庭は角度のついた外壁と円筒形のEVシャフトによって、各戸の玄関の視線が制御されており、外部の曲がった小道がそのまま続いている感覚になる。
黄色の塗装が見えるスリットの階段を数段上がってたどり着く一室を、建築家とキャスティングディレクター夫婦の自邸兼仕事場として設計した。二人とも仕事とプライベートの境界が曖昧で、その曖昧さを楽しみ、集中したいときには自分の世界に没頭できる場所が必要であった。共用部まで続く動線と空間構成を住戸内にまで引き込むことで緩やかに連なる空間を作った。
既存建築への敬意と新たな生活の場所の創造
既存は3LDKの間取り。スケルトンに解体した既存建築は躯体が美しかった。
50年前の床仕上げで隠蔽されていたが、床の梁が各住戸側に突出しており、600mm角の柱と共に、天井、床共に躯体を現し、床梁上端面と同面でフロアレベルを設定し直した。そして不整形な平面形状の空間にあえてグリッドからずらした1枚の曲面壁を設置した。曲面の先に続く空間の奥行を感じさせながらも視線を操作する。各エリアは廊下や建具を設けず、この壁を中心に半オープンな空間の連続として配置した。
キッチンとダイニングエリアはミーティングスペース、リビングはプロジェクター投影で映像確認やホワイトバック撮影の空間も兼ねる。スタディエリアは逆梁躯体を生かし、他の床より320mm下げ、長さ5.5mのデスクと本棚を設置し、開口部への圧迫感を低減しつつ、窪みの籠り空間を形成した。集中して本を読む場にも、段差に腰かけながら数人での議論の場にもなる。
ベッドエリアは透過性のあるカーテンで間仕切り、スタディエリア越しに窓の外を望む。周回できるプランで、来客中には顔を合わせずにプライベートエリアにアクセスが可能。
キッチン・ダイニングから水回りにかけて時計回りにプライベート性のグラデーションを高めており、各部と屋外空間との関係も用途に合わせた距離感、高低差により視線や借景の操作をしている。例えば来客の多いリビングエリアは住宅スケールに余白を加えた寸法感を確保し、あえて道に面した開口の近くに設置することで、プライベート感を抑え、仕事関係の来客の居心地に配慮。
くつろぐリビングエリアはアウトドアリビングの奥行と道路との高低差により、歩行者からは見えないが、内部からは空が見える。集中して作業をするスタディエリアは隣地と共有している歩行者のほとんどいない庭に面し、地面に近い距離で植栽等を望む。
各開口の窓を風向きに合わせて開放することで曲面壁に沿って部屋全体に風が通り抜ける。湿度の高い下層階のため、水回りやクローゼットを含めて常に空気が動く快適性を求めた。曲面壁は床、天井共に梁を現したことで配管などが困難な場所への設備ルートにもなる。
周辺環境を含めたカラースキームによりさらに広がる空間の気積
曲面壁はコンクリートのグリッドで固くなりすぎる空間に柔らかさを加え、外光を反射し部屋全体を明るく照らす役割も果たす。開口部に面していない水回りや、近づいて初めて見えるスタディエリアの床に色を使い、裏方に色を持たせる共用部の特徴を踏襲した。
曲面壁に誘導された視線の先の開口は向かいの集合住宅のビワの木やテラスに施された植栽が借景になる。早朝には朝日を受けた外装の黄色壁の反射により部屋全体が黄金の光に包まれる。キッチンは無彩色に近いグリーンを使ったシンプルなヴォリュームで室内からも見えてくる共用部の特徴的な黄色を背景として際立たせた。
オリジナルで製作した陶板タイル壁は開口越しに見える木々の色調と合わせ、スタディエリアの床は隣地建物の外壁のレンガタイルと合わせる等、周辺環境に存在する色を用いた構成とした。タイルは松灰を塗付して焼成した自然の色味によるグリーン、造作家具は既存の玄関ドアが木貼りであったため合板を使い、柿渋の自然由来の茶オレンジ色の塗装とした。
住戸全体が緩やかに繋がり、外への意識が加わることで、独立しプライベートヴィラのようでありつつも周囲の環境に溶け込むものとなった。周辺環境の特徴と既存建築の歴史を読み込みながら、新たな生活の場を創造することで、一室改修の可能性を最大限に示し、経年した建物を大切に住み継ぐ選択肢を浸透させていきたい。
■建築概要
建物名称:神宮のスタジオ
所在地:東京都渋谷区
主要用途:住宅
設計:YNAS 担当/沼田祐子
施工:TH-1 担当/御厨淳子、石原彩夏
電気施工:松井電気 担当/松井孝
家具施工:新・収納計画 担当/山口貴寛
タイル施工:タイレック 担当/平山真
塗装:彩塗 担当/齊藤重信
植栽施工:グリーニアン 担当/岡田陽介
主体構造・構法:鉄筋コンクリート造
専有部面積:96.56㎡
設計期間:2024年2月~2024年7月
工事期間:2024年9月~2024年12月
竣工:2024年12月
写真:西川公朗、新建築社写真部、八坂麻里子、横山祥平
建材情報| 種別 | 使用箇所 | 商品名(メーカー名) | | 外構・床 | テラス 床 | コンクリート平板敷 t40[FDパネル素地](タジマ)
|
| 内装・床 | リビング、ダイニングエリア 床 | リノリウム t=2.0 t(田島ルーフィング)
既存床梁:モルタル補修の上防塵塗装
|
| 内装・壁 | リビング、ダイニングエリア 壁 | GB+EP
GB+鉱物性漆喰特殊仕上塗材
|
| 内装・天井 | リビング、ダイニングエリア 天井 | 既存躯体の上吹付タイル+EP
|
| 内装・キッチン | リビング、ダイニングエリア 造作キッチン | アクリル化粧板 t=10.0、t=1.2[FENIX]
|
| 内装・造作家具 | リビング、ダイニングエリア 家具収納棚 | アクリル化粧板 t=1.2[FENIX]
ラワン積層合板 柿渋塗装
|
| 内装・床 | 洗面エリア 床 | 陶板タイル t=15.0(織部製陶製作品)
既存床梁:モルタル補修の上防塵塗装
|
| 内装・壁 | 洗面エリア 壁 | 陶板タイル t=15.0(織部製陶製作品)
|
| 内装・天井 | 洗面エリア 天井 | 既存躯体の上吹付タイル+EP
|
| 内装・造作家具 | 洗面エリア 洗面カウンター | アクリル化粧板 t=10.0[FENIX]
ラワン積層合板 柿渋塗装
|
| 内装・金物 | 洗面エリア 洗面用水栓金物 | 洗面用水栓金物(paffoni)
|
| 内装・床 | スタディエリア 床 | 磁器質タイル t=10.0
既存床梁:モルタル補修の上防塵塗装
|
| 内装・壁 | スタディエリア 壁 | GB+EP
|
| 内装・天井 | スタディエリア 天井 | 既存躯体の上吹付タイル+EP
|
| 内装・造作家具 | スタディエリア 造作家具 | ラワン積層合板 柿渋塗装
|
| 内装・床 | ベッドエリア 床 | リノリウム t=2.0 t(田島ルーフィング)
既存床梁:モルタル補修の上防塵塗装
|
| 内装・壁 | ベッドエリア 壁 | GB+EP
GB+鉱物性漆喰特殊仕上塗材
|
| 内装・天井 | ベッドエリア 天井 | 既存躯体の上吹付タイル+EP
|
| 内装・造作家具 | ベッドエリア 造作家具 | ラワン積層合板 柿渋塗装
|
※企業様による建材情報についてのご意見や「PR」のご相談はこちらから
※この情報は弊サイトや設計者が建材の性能等を保証するものではありません