architecturephoto®

  • 特集記事
  • 注目情報
  • タグ
  • 建築
  • アート
  • カルチャー
  • デザイン
  • ファッション
  • 動画
  • 展覧会
  • コンペ
  • 書籍
  • 建築求人
  • すべてのタグ

建築求人情報

Loading...
2025.12.05Fri
2025.12.04Thu
2025.12.06Sat
福田俊 / オフィススグルフクダによる、東京・東村山市の住宅「OVERLAP」。空間境界の“オーバーラップ”が生む関係を主題に計画。均質4分割の“単純な平面”ながら、全体を見通せず視線が奥へと流れ“奥行きを想像”させる構成を考案。確かにある“気配”が“現実を超える広がり”を生む
photo©Yurika Kono

SHARE 福田俊 / オフィススグルフクダによる、東京・東村山市の住宅「OVERLAP」。空間境界の“オーバーラップ”が生む関係を主題に計画。均質4分割の“単純な平面”ながら、全体を見通せず視線が奥へと流れ“奥行きを想像”させる構成を考案。確かにある“気配”が“現実を超える広がり”を生む

architecture|feature
21世紀工務店アラウンドアーキテクチャーオフィススグルフクダ住宅千葉顕弥図面あり建材(内装・キッチン)建材(内装・壁)建材(内装・天井)建材(内装・床)建材(内装・水廻り)建材(内装・照明)建材(内装・設備)建材(内装・金物)建材(外構・床)建材(外装・壁)建材(外装・屋根)建材(外装・建具)東京東村山市福田俊鈴木一希高野ユリカ
福田俊 / オフィススグルフクダによる、東京・東村山市の住宅「OVERLAP」。空間境界の“オーバーラップ”が生む関係を主題に計画。均質4分割の“単純な平面”ながら、全体を見通せず視線が奥へと流れ“奥行きを想像”させる構成を考案。確かにある“気配”が“現実を超える広がり”を生む外観、西側の道路より見る。 photo©千葉顕弥
福田俊 / オフィススグルフクダによる、東京・東村山市の住宅「OVERLAP」。空間境界の“オーバーラップ”が生む関係を主題に計画。均質4分割の“単純な平面”ながら、全体を見通せず視線が奥へと流れ“奥行きを想像”させる構成を考案。確かにある“気配”が“現実を超える広がり”を生む1階、エントランスドア側からホールを見る photo©Yurika Kono
福田俊 / オフィススグルフクダによる、東京・東村山市の住宅「OVERLAP」。空間境界の“オーバーラップ”が生む関係を主題に計画。均質4分割の“単純な平面”ながら、全体を見通せず視線が奥へと流れ“奥行きを想像”させる構成を考案。確かにある“気配”が“現実を超える広がり”を生む2階、ルーム1から吹抜側を見る。 photo©Yurika Kono
福田俊 / オフィススグルフクダによる、東京・東村山市の住宅「OVERLAP」。空間境界の“オーバーラップ”が生む関係を主題に計画。均質4分割の“単純な平面”ながら、全体を見通せず視線が奥へと流れ“奥行きを想像”させる構成を考案。確かにある“気配”が“現実を超える広がり”を生む2階、左:ルーム1、右:ルーム3 photo©Yurika Kono

福田俊 / オフィススグルフクダが設計した、東京・東村山市の住宅「OVERLAP」です。
空間境界の“オーバーラップ”が生む関係を主題に計画されました。建築家は、均質4分割の“単純な平面”ながら、全体を見通せず視線が奥へと流れ“奥行きを想像”させる構成を考案しました。そして、確かにある“気配”が“現実を超える広がり”を生みだします。

この家では、用途ごとに壁で空間を分割するのではなく、空間同士の境界がオーバーラップする構成によって生まれる空間の関係性を模索した。

均質に4分割された単純な平面は、一見すると、同じような部屋が隣接するワンルームにも見える。
しかし実際には、どこにいても全体を見通せず、室の繋がり方や開口部の位置を調整したことで、視線は止まることなく奥へと導かれ、空間の奥行きを想像させる。

それぞれの領域は壁や間仕切りで明確に仕切られず、余白を保ちながら、静かに重なり合っていく。

建築家によるテキストより

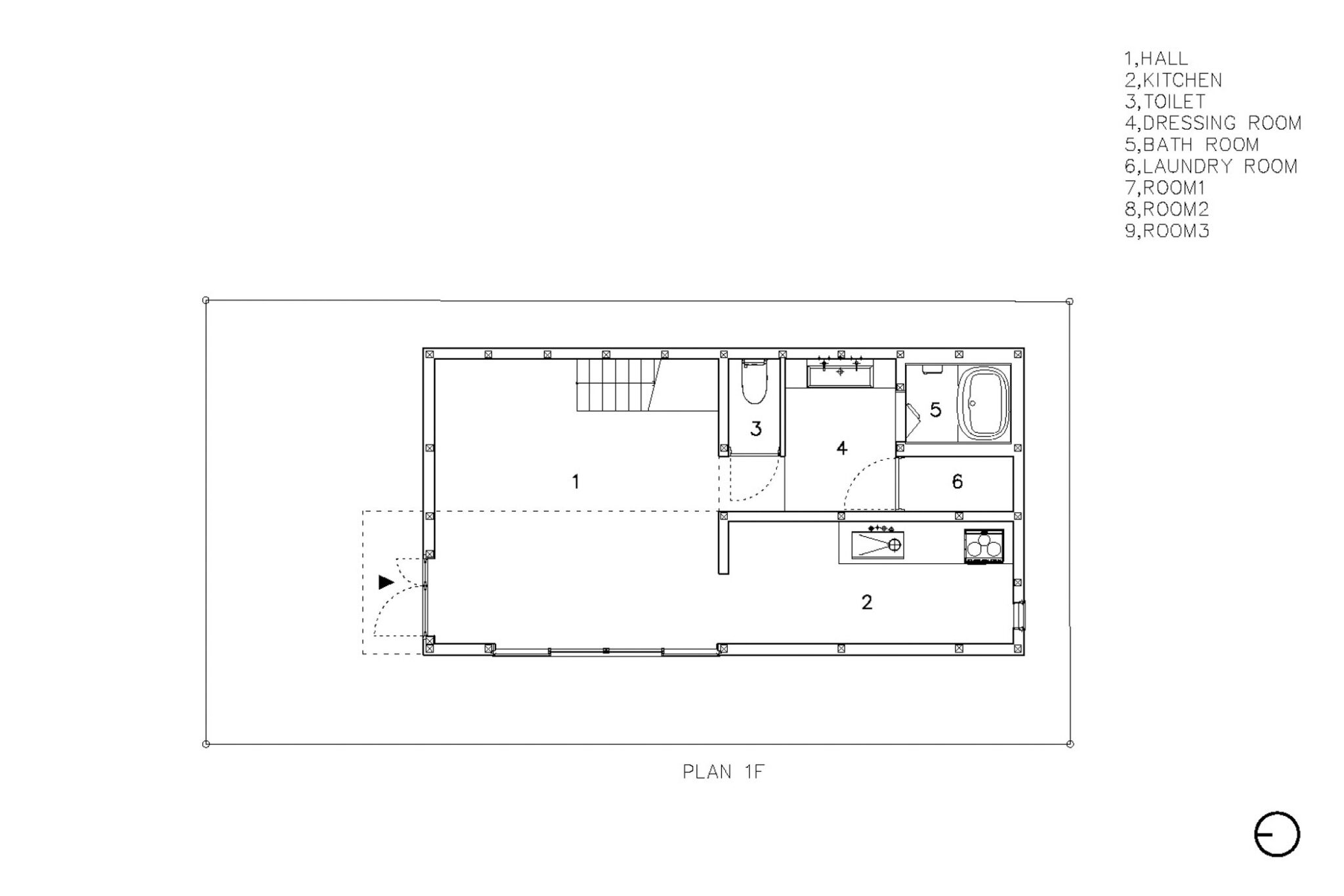
ホールは、4分割されたうちのふたつの平面を跨ぐように配置され、それぞれの天井高は2.1mと最大6m。大きな断面の変化と、窓から差し込む光の違いが、並列する空間に異なる時間の流れをもたらす。

また、数を絞って設けられた開口部は外の風景を断片化し、全容を見せない。
中心を持たない構成と重なり合うことで、家の知覚は街へと拡張し、同時に街もまた家の内部へと反転する。

反復する平面と、視線が届かない構成は、声や音は聞こえるのに姿は見えない、遠くにいるようで近くに感じられるような感覚を生み、姿が見えなくても誰かの存在を確かに感じることで、空間の存在を想像させる。

建築家によるテキストより

空間の存在を想像させる感覚は、アピチャッポン・ウィーラセタクンの映画『ブンミおじさんの森(2011年)』において、失われた妻と息子が幽霊や精霊として家に帰ってくる場面とも重なる。この映画の幽霊たちは、恐怖の対象ではなく、そっと空間に寄り添う、親しい存在として描かれている。

彼らは生者と変わらない姿でそこに佇んでいるが、生者は画面の中にいる時しか語らず、画面の外から響く声は幽霊たちのものだけだ。

その演出が彼らの「不在」を強調しながらも、確かにそこにいたという気配を空間に深く刻み込み、不在であることが、空間の奥行きをより鮮やかに立ち上げる。

建築家によるテキストより

以下の写真はクリックで拡大します

福田俊 / オフィススグルフクダによる、東京・東村山市の住宅「OVERLAP」。空間境界の“オーバーラップ”が生む関係を主題に計画。均質4分割の“単純な平面”ながら、全体を見通せず視線が奥へと流れ“奥行きを想像”させる構成を考案。確かにある“気配”が“現実を超える広がり”を生む外観、西側の道路より見る。 photo©Yurika Kono
福田俊 / オフィススグルフクダによる、東京・東村山市の住宅「OVERLAP」。空間境界の“オーバーラップ”が生む関係を主題に計画。均質4分割の“単純な平面”ながら、全体を見通せず視線が奥へと流れ“奥行きを想像”させる構成を考案。確かにある“気配”が“現実を超える広がり”を生む外観、西側の道路より見る。 photo©千葉顕弥
福田俊 / オフィススグルフクダによる、東京・東村山市の住宅「OVERLAP」。空間境界の“オーバーラップ”が生む関係を主題に計画。均質4分割の“単純な平面”ながら、全体を見通せず視線が奥へと流れ“奥行きを想像”させる構成を考案。確かにある“気配”が“現実を超える広がり”を生む外観、敷地内の北西側よりホールの開口部を見る。 photo©Yurika Kono
福田俊 / オフィススグルフクダによる、東京・東村山市の住宅「OVERLAP」。空間境界の“オーバーラップ”が生む関係を主題に計画。均質4分割の“単純な平面”ながら、全体を見通せず視線が奥へと流れ“奥行きを想像”させる構成を考案。確かにある“気配”が“現実を超える広がり”を生む外観、敷地内の南西側よりホールの開口部を見る。 photo©Yurika Kono
福田俊 / オフィススグルフクダによる、東京・東村山市の住宅「OVERLAP」。空間境界の“オーバーラップ”が生む関係を主題に計画。均質4分割の“単純な平面”ながら、全体を見通せず視線が奥へと流れ“奥行きを想像”させる構成を考案。確かにある“気配”が“現実を超える広がり”を生む1階、エントランスドアのガラス越しにホールを見る。 photo©Yurika Kono
福田俊 / オフィススグルフクダによる、東京・東村山市の住宅「OVERLAP」。空間境界の“オーバーラップ”が生む関係を主題に計画。均質4分割の“単純な平面”ながら、全体を見通せず視線が奥へと流れ“奥行きを想像”させる構成を考案。確かにある“気配”が“現実を超える広がり”を生む外観、玄関の庇 photo©Yurika Kono
福田俊 / オフィススグルフクダによる、東京・東村山市の住宅「OVERLAP」。空間境界の“オーバーラップ”が生む関係を主題に計画。均質4分割の“単純な平面”ながら、全体を見通せず視線が奥へと流れ“奥行きを想像”させる構成を考案。確かにある“気配”が“現実を超える広がり”を生む1階、玄関ドアを見る。 photo©Yurika Kono
福田俊 / オフィススグルフクダによる、東京・東村山市の住宅「OVERLAP」。空間境界の“オーバーラップ”が生む関係を主題に計画。均質4分割の“単純な平面”ながら、全体を見通せず視線が奥へと流れ“奥行きを想像”させる構成を考案。確かにある“気配”が“現実を超える広がり”を生む1階、エントランスドア側からホールを見る photo©Yurika Kono
福田俊 / オフィススグルフクダによる、東京・東村山市の住宅「OVERLAP」。空間境界の“オーバーラップ”が生む関係を主題に計画。均質4分割の“単純な平面”ながら、全体を見通せず視線が奥へと流れ“奥行きを想像”させる構成を考案。確かにある“気配”が“現実を超える広がり”を生む1階、ホール、ダイニングテーブル photo©Yurika Kono
福田俊 / オフィススグルフクダによる、東京・東村山市の住宅「OVERLAP」。空間境界の“オーバーラップ”が生む関係を主題に計画。均質4分割の“単純な平面”ながら、全体を見通せず視線が奥へと流れ“奥行きを想像”させる構成を考案。確かにある“気配”が“現実を超える広がり”を生む1階、ホールから開口部越しに外部を見る。 photo©Yurika Kono
福田俊 / オフィススグルフクダによる、東京・東村山市の住宅「OVERLAP」。空間境界の“オーバーラップ”が生む関係を主題に計画。均質4分割の“単純な平面”ながら、全体を見通せず視線が奥へと流れ“奥行きを想像”させる構成を考案。確かにある“気配”が“現実を超える広がり”を生む1階、ホールからエントランス越しに外部を見る。 photo©Yurika Kono
福田俊 / オフィススグルフクダによる、東京・東村山市の住宅「OVERLAP」。空間境界の“オーバーラップ”が生む関係を主題に計画。均質4分割の“単純な平面”ながら、全体を見通せず視線が奥へと流れ“奥行きを想像”させる構成を考案。確かにある“気配”が“現実を超える広がり”を生む1階、ホール、天井と照明 photo©Yurika Kono
福田俊 / オフィススグルフクダによる、東京・東村山市の住宅「OVERLAP」。空間境界の“オーバーラップ”が生む関係を主題に計画。均質4分割の“単純な平面”ながら、全体を見通せず視線が奥へと流れ“奥行きを想像”させる構成を考案。確かにある“気配”が“現実を超える広がり”を生む1階、ホール、天井と壁 photo©Yurika Kono
福田俊 / オフィススグルフクダによる、東京・東村山市の住宅「OVERLAP」。空間境界の“オーバーラップ”が生む関係を主題に計画。均質4分割の“単純な平面”ながら、全体を見通せず視線が奥へと流れ“奥行きを想像”させる構成を考案。確かにある“気配”が“現実を超える広がり”を生む1階、キッチン photo©Yurika Kono
福田俊 / オフィススグルフクダによる、東京・東村山市の住宅「OVERLAP」。空間境界の“オーバーラップ”が生む関係を主題に計画。均質4分割の“単純な平面”ながら、全体を見通せず視線が奥へと流れ“奥行きを想像”させる構成を考案。確かにある“気配”が“現実を超える広がり”を生む1階、キッチン、天井と造り付けの棚 photo©Yurika Kono
福田俊 / オフィススグルフクダによる、東京・東村山市の住宅「OVERLAP」。空間境界の“オーバーラップ”が生む関係を主題に計画。均質4分割の“単純な平面”ながら、全体を見通せず視線が奥へと流れ“奥行きを想像”させる構成を考案。確かにある“気配”が“現実を超える広がり”を生む1階、ホール、天井と壁 photo©Yurika Kono
福田俊 / オフィススグルフクダによる、東京・東村山市の住宅「OVERLAP」。空間境界の“オーバーラップ”が生む関係を主題に計画。均質4分割の“単純な平面”ながら、全体を見通せず視線が奥へと流れ“奥行きを想像”させる構成を考案。確かにある“気配”が“現実を超える広がり”を生む1階、ホール、天井と壁 photo©Yurika Kono
福田俊 / オフィススグルフクダによる、東京・東村山市の住宅「OVERLAP」。空間境界の“オーバーラップ”が生む関係を主題に計画。均質4分割の“単純な平面”ながら、全体を見通せず視線が奥へと流れ“奥行きを想像”させる構成を考案。確かにある“気配”が“現実を超える広がり”を生む1階、ホール photo©Yurika Kono
福田俊 / オフィススグルフクダによる、東京・東村山市の住宅「OVERLAP」。空間境界の“オーバーラップ”が生む関係を主題に計画。均質4分割の“単純な平面”ながら、全体を見通せず視線が奥へと流れ“奥行きを想像”させる構成を考案。確かにある“気配”が“現実を超える広がり”を生む1階、ホールから吹抜越しに2階を見上げる。 photo©Yurika Kono
福田俊 / オフィススグルフクダによる、東京・東村山市の住宅「OVERLAP」。空間境界の“オーバーラップ”が生む関係を主題に計画。均質4分割の“単純な平面”ながら、全体を見通せず視線が奥へと流れ“奥行きを想像”させる構成を考案。確かにある“気配”が“現実を超える広がり”を生む1階から2階への階段 photo©Yurika Kono
福田俊 / オフィススグルフクダによる、東京・東村山市の住宅「OVERLAP」。空間境界の“オーバーラップ”が生む関係を主題に計画。均質4分割の“単純な平面”ながら、全体を見通せず視線が奥へと流れ“奥行きを想像”させる構成を考案。確かにある“気配”が“現実を超える広がり”を生む2階、ルーム1から吹抜側を見る。 photo©Yurika Kono
福田俊 / オフィススグルフクダによる、東京・東村山市の住宅「OVERLAP」。空間境界の“オーバーラップ”が生む関係を主題に計画。均質4分割の“単純な平面”ながら、全体を見通せず視線が奥へと流れ“奥行きを想像”させる構成を考案。確かにある“気配”が“現実を超える広がり”を生む2階、ルーム1から1階のホールを見下ろす。 photo©Yurika Kono
福田俊 / オフィススグルフクダによる、東京・東村山市の住宅「OVERLAP」。空間境界の“オーバーラップ”が生む関係を主題に計画。均質4分割の“単純な平面”ながら、全体を見通せず視線が奥へと流れ“奥行きを想像”させる構成を考案。確かにある“気配”が“現実を超える広がり”を生む2階、ルーム1から1階のホールを見下ろす。 photo©Yurika Kono
福田俊 / オフィススグルフクダによる、東京・東村山市の住宅「OVERLAP」。空間境界の“オーバーラップ”が生む関係を主題に計画。均質4分割の“単純な平面”ながら、全体を見通せず視線が奥へと流れ“奥行きを想像”させる構成を考案。確かにある“気配”が“現実を超える広がり”を生む2階、ルーム1からルーム2側を見る。 photo©Yurika Kono
福田俊 / オフィススグルフクダによる、東京・東村山市の住宅「OVERLAP」。空間境界の“オーバーラップ”が生む関係を主題に計画。均質4分割の“単純な平面”ながら、全体を見通せず視線が奥へと流れ“奥行きを想像”させる構成を考案。確かにある“気配”が“現実を超える広がり”を生む2階、ルーム1からルーム2側を見る。 photo©Yurika Kono
福田俊 / オフィススグルフクダによる、東京・東村山市の住宅「OVERLAP」。空間境界の“オーバーラップ”が生む関係を主題に計画。均質4分割の“単純な平面”ながら、全体を見通せず視線が奥へと流れ“奥行きを想像”させる構成を考案。確かにある“気配”が“現実を超える広がり”を生む2階、左:ルーム1、右:ルーム3 photo©Yurika Kono
福田俊 / オフィススグルフクダによる、東京・東村山市の住宅「OVERLAP」。空間境界の“オーバーラップ”が生む関係を主題に計画。均質4分割の“単純な平面”ながら、全体を見通せず視線が奥へと流れ“奥行きを想像”させる構成を考案。確かにある“気配”が“現実を超える広がり”を生む2階、ルーム3 photo©Yurika Kono
福田俊 / オフィススグルフクダによる、東京・東村山市の住宅「OVERLAP」。空間境界の“オーバーラップ”が生む関係を主題に計画。均質4分割の“単純な平面”ながら、全体を見通せず視線が奥へと流れ“奥行きを想像”させる構成を考案。確かにある“気配”が“現実を超える広がり”を生む2階、ルーム3、開口部を見る。 photo©Yurika Kono
福田俊 / オフィススグルフクダによる、東京・東村山市の住宅「OVERLAP」。空間境界の“オーバーラップ”が生む関係を主題に計画。均質4分割の“単純な平面”ながら、全体を見通せず視線が奥へと流れ“奥行きを想像”させる構成を考案。確かにある“気配”が“現実を超える広がり”を生む1階、洗面室から浴室側を見る。 photo©Yurika Kono
福田俊 / オフィススグルフクダによる、東京・東村山市の住宅「OVERLAP」。空間境界の“オーバーラップ”が生む関係を主題に計画。均質4分割の“単純な平面”ながら、全体を見通せず視線が奥へと流れ“奥行きを想像”させる構成を考案。確かにある“気配”が“現実を超える広がり”を生む1階、洗面室から浴室側を見る。 photo©Yurika Kono
福田俊 / オフィススグルフクダによる、東京・東村山市の住宅「OVERLAP」。空間境界の“オーバーラップ”が生む関係を主題に計画。均質4分割の“単純な平面”ながら、全体を見通せず視線が奥へと流れ“奥行きを想像”させる構成を考案。確かにある“気配”が“現実を超える広がり”を生む1階、洗面室からホールを見る。 photo©Yurika Kono
福田俊 / オフィススグルフクダによる、東京・東村山市の住宅「OVERLAP」。空間境界の“オーバーラップ”が生む関係を主題に計画。均質4分割の“単純な平面”ながら、全体を見通せず視線が奥へと流れ“奥行きを想像”させる構成を考案。確かにある“気配”が“現実を超える広がり”を生む1階、洗面室からホールを見る。 photo©Yurika Kono
福田俊 / オフィススグルフクダによる、東京・東村山市の住宅「OVERLAP」。空間境界の“オーバーラップ”が生む関係を主題に計画。均質4分割の“単純な平面”ながら、全体を見通せず視線が奥へと流れ“奥行きを想像”させる構成を考案。確かにある“気配”が“現実を超える広がり”を生む1階、ホール、階段下の収納 photo©Yurika Kono
福田俊 / オフィススグルフクダによる、東京・東村山市の住宅「OVERLAP」。空間境界の“オーバーラップ”が生む関係を主題に計画。均質4分割の“単純な平面”ながら、全体を見通せず視線が奥へと流れ“奥行きを想像”させる構成を考案。確かにある“気配”が“現実を超える広がり”を生む1階、ホールから開口部越しに外部を見る。夕景 photo©Yurika Kono
福田俊 / オフィススグルフクダによる、東京・東村山市の住宅「OVERLAP」。空間境界の“オーバーラップ”が生む関係を主題に計画。均質4分割の“単純な平面”ながら、全体を見通せず視線が奥へと流れ“奥行きを想像”させる構成を考案。確かにある“気配”が“現実を超える広がり”を生む1階から2階への階段からルーム1を見上げる。夜景 photo©Yurika Kono
福田俊 / オフィススグルフクダによる、東京・東村山市の住宅「OVERLAP」。空間境界の“オーバーラップ”が生む関係を主題に計画。均質4分割の“単純な平面”ながら、全体を見通せず視線が奥へと流れ“奥行きを想像”させる構成を考案。確かにある“気配”が“現実を超える広がり”を生む1階、洗面室から浴室側を見る。夜景 photo©Yurika Kono
福田俊 / オフィススグルフクダによる、東京・東村山市の住宅「OVERLAP」。空間境界の“オーバーラップ”が生む関係を主題に計画。均質4分割の“単純な平面”ながら、全体を見通せず視線が奥へと流れ“奥行きを想像”させる構成を考案。確かにある“気配”が“現実を超える広がり”を生む1階、ホールからキッチンを見る。夜景 photo©Yurika Kono
福田俊 / オフィススグルフクダによる、東京・東村山市の住宅「OVERLAP」。空間境界の“オーバーラップ”が生む関係を主題に計画。均質4分割の“単純な平面”ながら、全体を見通せず視線が奥へと流れ“奥行きを想像”させる構成を考案。確かにある“気配”が“現実を超える広がり”を生む外観、玄関ドアを見る。夜景 photo©Yurika Kono
福田俊 / オフィススグルフクダによる、東京・東村山市の住宅「OVERLAP」。空間境界の“オーバーラップ”が生む関係を主題に計画。均質4分割の“単純な平面”ながら、全体を見通せず視線が奥へと流れ“奥行きを想像”させる構成を考案。確かにある“気配”が“現実を超える広がり”を生む外観、敷地内の西側から開口部越しにホールを見る。夜景 photo©Yurika Kono
福田俊 / オフィススグルフクダによる、東京・東村山市の住宅「OVERLAP」。空間境界の“オーバーラップ”が生む関係を主題に計画。均質4分割の“単純な平面”ながら、全体を見通せず視線が奥へと流れ“奥行きを想像”させる構成を考案。確かにある“気配”が“現実を超える広がり”を生む1階平面図 image©オフィススグルフクダ
福田俊 / オフィススグルフクダによる、東京・東村山市の住宅「OVERLAP」。空間境界の“オーバーラップ”が生む関係を主題に計画。均質4分割の“単純な平面”ながら、全体を見通せず視線が奥へと流れ“奥行きを想像”させる構成を考案。確かにある“気配”が“現実を超える広がり”を生む2階平面図 image©オフィススグルフクダ
福田俊 / オフィススグルフクダによる、東京・東村山市の住宅「OVERLAP」。空間境界の“オーバーラップ”が生む関係を主題に計画。均質4分割の“単純な平面”ながら、全体を見通せず視線が奥へと流れ“奥行きを想像”させる構成を考案。確かにある“気配”が“現実を超える広がり”を生む断面図 image©オフィススグルフクダ

以下、建築家によるテキストです。


存在の気配

この家では、用途ごとに壁で空間を分割するのではなく、空間同士の境界がオーバーラップする構成によって生まれる空間の関係性を模索した。

均質に4分割された単純な平面は、一見すると、同じような部屋が隣接するワンルームにも見える。
しかし実際には、どこにいても全体を見通せず、室の繋がり方や開口部の位置を調整したことで、視線は止まることなく奥へと導かれ、空間の奥行きを想像させる。

それぞれの領域は壁や間仕切りで明確に仕切られず、余白を保ちながら、静かに重なり合っていく。

ホールは、4分割されたうちのふたつの平面を跨ぐように配置され、それぞれの天井高は2.1mと最大6m。大きな断面の変化と、窓から差し込む光の違いが、並列する空間に異なる時間の流れをもたらす。

また、数を絞って設けられた開口部は外の風景を断片化し、全容を見せない。
中心を持たない構成と重なり合うことで、家の知覚は街へと拡張し、同時に街もまた家の内部へと反転する。

反復する平面と、視線が届かない構成は、声や音は聞こえるのに姿は見えない、遠くにいるようで近くに感じられるような感覚を生み、姿が見えなくても誰かの存在を確かに感じることで、空間の存在を想像させる。

空間の存在を想像させる感覚は、アピチャッポン・ウィーラセタクンの映画『ブンミおじさんの森(2011年)』において、失われた妻と息子が幽霊や精霊として家に帰ってくる場面とも重なる。この映画の幽霊たちは、恐怖の対象ではなく、そっと空間に寄り添う、親しい存在として描かれている。

彼らは生者と変わらない姿でそこに佇んでいるが、生者は画面の中にいる時しか語らず、画面の外から響く声は幽霊たちのものだけだ。

その演出が彼らの「不在」を強調しながらも、確かにそこにいたという気配を空間に深く刻み込み、不在であることが、空間の奥行きをより鮮やかに立ち上げる。

この家でも、想像上の奥行きや、見えないけれど確かに存在する空間の気配が重要な要素となっている。
そこかしこに散る存在の気配は、現実を超える空間のひろがりを静かにたたえている。

■建築概要

題名:OVERLAP
所在地:東京都東村山市
主用途:専用住宅
設計:福田俊
構造設計:鈴木一希
施工:21世紀工務店 担当/伊澤祐一
設備:株式会社大野設備 担当/川俣
電気:株式会社清水 担当/清水
外構:有限会社持田組 担当/石田
不動産:アラウンドアーキテクチャー 担当/佐竹雄太、古谷亮子
構造:木造
階数:地上2階
敷地面積:92㎡
建築面積:41㎡
延床面積:72㎡
設計:2023年12月~2024年9月
工事:2024年9月~2025年3月
竣工:2025年3月
写真:Yurika Kono、千葉顕弥

建材情報
種別使用箇所商品名(メーカー名)
外装・屋根屋根

ガルバリウム鋼板 竪はぜ葺き

外装・壁外壁

小波ガルバリウム 素地

外装・建具開口部

アルミ樹脂複合サッシ(LIXIL)

内装・床1F 床

土間コンクリート防塵塗装

内装・床2F 床

ラワン合板 水性ウレタン塗装

内装・壁主要箇所 壁

石膏ボード 塗装

内装・天井ホール、キッチン 天井

石膏ボード シルバー塗装

内装・天井洗濯室、洗面室 天井

石膏ボード 塗装

内装・キッチンキッチン

厨房機器:グラッド45(ミラタップ)
食洗器:EW-45R2SM(三菱電機)
ガスコンロ:RD641STSA-13A(リンナイ)
換気扇 シェード:ラフェット(ミラタップ)

内装・水廻り洗面

洗面カウンター:エレガンスダブル(ミラタップ)
洗面用水栓金物:ニューベガ混合水栓(ミラタップ)

内装・水廻り便器

ネオレスト(TOTO)

内装・照明ダウンライト

XSZD1000VCB1(Panasonic)

内装・金物レバーハンドル

FSB10-1144-NC-40(Tform)

内装・設備空調機器

フィルター付きパイプファン(Panasonic)

外構・床外構

砕石

※企業様による建材情報についてのご意見や「PR」のご相談はこちらから
※この情報は弊サイトや設計者が建材の性能等を保証するものではありません


aura of presence

In this house, space is not divided by walls according to function; instead, it explores relationships born from overlapping boundaries between spaces.

The simple plan, evenly divided into four parts, might at first glance appear like a one-room layout where similar rooms sit adjacent to one another.

However, in reality, the arrangement of connections between rooms and the placement of openings ensure that the entire house can never be grasped from a single point. The gaze is constantly drawn deeper inside, evoking an imagined sense of spatial depth. Each domain is not clearly separated by walls or partitions, but overlaps quietly while preserving margins, leaving no central room and instead unfolding a dispersed, multi-perspectival field.

The hall spans across two of the four quadrants, with ceiling heights ranging from 2.1 meters to a maximum of 6 meters.
Dramatic sectional changes and differing qualities of light pouring in from the windows introduce distinct flows of time into parallel spaces.

Openings, deliberately kept few in number, fragment the outside scenery and withhold its entirety.

Together with the non-centralized composition and overlapping boundaries, this fragmented view extends the perception of the house outward into the city,
while at the same time allowing the city to invert itself into the interior of the house.

The repetition of the plan and the configuration that prevents a full line of sight generate a peculiar sensation—where voices and sounds are audible though figures remain unseen,
evoking a feeling of proximity despite physical distance. This condition, where one senses the presence of someone even without seeing them, invites the imagination of space itself.

This evocation of unseen presence resonates with Apichatpong Weerasethakul’s film Uncle Boonmee Who Can Recall His Past Lives (2011), in which a lost wife and son return home as ghosts and spirits. These apparitions are not portrayed as fearful beings but as intimate presences, gently inhabiting the domestic space.

They appear in forms indistinguishable from the living, yet only the ghosts speak from off-screen, while the living characters remain silent beyond the frame. This cinematic device accentuates their “absence” while engraving the trace of their having once been there deep into the space.

Their absence paradoxically sharpens the spatial depth, making it more vivid.

In this house as well, the imagined depth and the invisible yet palpable presence of space are essential elements. The dispersed traces of existence quietly resonate throughout, holding within them a spatial expanse that surpasses mere reality.

あわせて読みたい

鈴木亜生 / ASEI建築設計事務所による、東京・世田谷区の、二世帯住宅「LOAM」。暮らしが街路に現れる地域に計画。家族間が“繋がり”ながら“適度な距離”もある状態を求め、道を引込んだ様な“立体路地”を中央に配置する構成を考案。関東ロームの土を用いた建材も開発して資源循環も意図
  • SHARE
21世紀工務店アラウンドアーキテクチャーオフィススグルフクダ住宅千葉顕弥図面あり建材(内装・キッチン)建材(内装・壁)建材(内装・天井)建材(内装・床)建材(内装・水廻り)建材(内装・照明)建材(内装・設備)建材(内装・金物)建材(外構・床)建材(外装・壁)建材(外装・屋根)建材(外装・建具)東京東村山市福田俊鈴木一希高野ユリカ
2025.12.05 Fri 06:50
0
permalink

#東村山市の関連記事

  • 2024.6.19Wed
    小泉誠 / Koizumi Studioによる、東京・東村山市の「いとう家の住宅」。住宅の建ち並ぶ路地にある敷地。“暮らしながら働く”住まいとして、働く居場所を点在させて緩やかに繋げた“家族の気配も感じられる”建築を考案。周囲の建ち方を尊重しつつ下屋を追加して“独特な”家の形も作る
  • 2023.4.27Thu
    雨宮脩大建築企画による、東京・東村山市の、飲食店「ENCOUNTER」。狭小区画に“出会い”の名前の店を作る計画。利用者と料理人の双方が居心地よい空間を求め、雁行するカウンターや段差等で空間を細かく分節。其々の場で全体の長所短所を分かち合う様に固有の性質を与える
  • 2020.6.01Mon
    加瀬谷章紀+綱川大介 / I.R.A.による、東京・東村山市の住宅「spiral」
  • view all
view all

#アラウンドアーキテクチャーの関連記事

  • 2025.2.05Wed
    ツバメアーキテクツによる、東京の「分岐の家」。コロナ禍が落ち着いた時期に計画を開始。先々の変化の想定が難しい社会状況において、様々な選択を可能にする“未来の分岐点”が多数ある建築を志向。母屋と離れの二棟を切断も可能な“ブリッジ”で繋ぐ構成を考案
  • 2024.1.05Fri
    五十嵐理人 / IGArchitectsによる、福島の二世帯住宅「柱群の家」。家々に囲まれ裏に山を背負う敷地。環境に対し閉じつつも開かれた状態を目指し、視線を遮る為の“壁”を立て“高窓”を全周に設けた建築を考案。内部では90角の柱を林立させ“人工と自然の間”の様な空間を作る
  • 2023.11.10Fri
    大室佑介アトリエ / atelier Ichikuによる、東京・練馬区の「Haus-012」。所有地の一部を売却して新しい家に建替える計画。生活変化や将来の可能性に応える建築を求め、諸空間を一列に並べた公から私へと“層”状に移り変わる構成を考案。ファサードを“黄金比”で整えて外部の美観も保持
  • 2023.4.05Wed
    ツバメアーキテクツによる、神奈川・横浜市の「六角橋の四軒長屋」。古い長屋が建ち並ぶ街の三角形の敷地。既存の問題を解決した“次なる長屋”を目指し、面積配分や開口等の操作で“多様な質”を作る設計を志向。現代の条件と均衡させ“家か店という二者択一”でない在り方も提示
  • view all
view all

建築求人情報

Loading...

 

    公式アカウントをフォローして、見逃せない建築情報を受け取ろう。

    61,703
    • Follow
    85,571
    • Follow
    • Follow
    • Add Friends
    • Subscribe
    • 情報募集/建築・デザイン・アートの情報を随時募集しています。
      More
    • メールマガジン/ メールマガジンで最新の情報を配信しています。
      More

    この日更新したその他の記事

    坂茂が、アメリカ建築家協会より送られる「2026年 AIA ゴールドメダル」を受賞。日本人建築家としては、日本人の建築家としては、丹下健三、安藤忠雄、槇文彦に次ぎ4人目の受賞

    SHARE 坂茂が、アメリカ建築家協会より送られる「2026年 AIA ゴールドメダル」を受賞。日本人建築家としては、日本人の建築家としては、丹下健三、安藤忠雄、槇文彦に次ぎ4人目の受賞

    architecture|culture|remarkable
    坂茂
    坂茂が、アメリカ建築家協会より送られる「2026年 AIA ゴールドメダル」を受賞。日本人建築家としては、日本人の建築家としては、丹下健三、安藤忠雄、槇文彦に次ぎ4人目の受賞建築家の坂茂

    坂茂が、アメリカ建築家協会より送られる「2026年 AIA ゴールドメダル」を受賞しました。
    日本人建築家としては、日本人の建築家としては、丹下健三、安藤忠雄、槇文彦に次ぎ4人目の受賞となります。アメリカ建築家協会のウェブサイトに坂の受賞とその業績を伝えるテキストが掲載されています。アーキテクチャーフォトでも、これまでに坂の様々な取り組みを紹介してきました。

    • SHARE
    坂茂
    2025.12.05 Fri 18:35
    0
    permalink
    【ap job更新】 大阪を拠点に、建築と商空間を分け隔てなく横断し木造施設も得意とする「株式会社スウィング」が、設計スタッフ(経験者・既卒・2026年新卒)、アルバイト、業務委託を募集中

    ap job 【ap job更新】 大阪を拠点に、建築と商空間を分け隔てなく横断し木造施設も得意とする「株式会社スウィング」が、設計スタッフ(経験者・既卒・2026年新卒)、アルバイト、業務委託を募集中

    architecture|job|promotion
    建築求人情報
    【ap job更新】 大阪を拠点に、建築と商空間を分け隔てなく横断し木造施設も得意とする「株式会社スウィング」が、設計スタッフ(経験者・既卒・2026年新卒)、アルバイト、業務委託を募集中
    【ap job更新】 大阪を拠点に、建築と商空間を分け隔てなく横断し木造施設も得意とする「株式会社スウィング」が、設計スタッフ(経験者・既卒・2026年新卒)、アルバイト、業務委託を募集中木造店舗_ドコモショップ篠山 ©Eiji Tomita
    アーキテクチャーフォトジョブボードに新しい情報が追加されました
    job.architecturephoto.net

    大阪を拠点に、建築と商空間を分け隔てなく横断し木造施設も得意とする「株式会社スウィング」の、設計スタッフ(経験者・既卒・2026年新卒)、アルバイト、業務委託 募集のお知らせです。詳しくは、ジョブボードの当該ページにてご確認ください。アーキテクチャーフォトジョブボードには、その他にも、色々な事務所の求人情報が掲載されています。
    新規の求人の投稿はこちらからお気軽にお問い合わせください。

    【MESSAGE】
    ㈱スウィングでは、自分の理想と可能性を信じ、変化と成長を楽しみながら共に歩んでいただける仲間を募集します。

    これまで2006年の事務所設立から、店舗・オフィス・クリニック・ホテル・別荘・住宅など、さまざまな施設を設計してきました。
    建築・インテリアを分け隔てることなく、また構造形式も木造・RC造・鉄骨造を問わず、計画にふさわしい形式を都度プロジェクトに応じて選択しています。

    私たちは建築を「人と人」「人とまち」「人と自然」をつなぐものと考えています。
    素材の手ざわりや風景の記憶、そこに暮らす人々の思いをていねいに重ねながら、その場所にふさわしい豊かな空間を形にしていく―そんな建築をめざして設計活動をしています。

    得意とする木を活かした施設建築をはじめ、内装リノベーションから大規模な施設まで、設計するプロジェクトの幅は多彩です。
    分野を問わず、設計行為と真摯に向き合う姿勢を何より大切にしています。

    今までたくさんのスタッフが仕事を通じて学び・成長し、独立や次のステップへと自身のキャリアを歩んでいます。
    また、フラットでフランクな社風からか、アトリエ事務所としては長く在籍してくれているスタッフが多いのも特徴です。

    建築・インテリアを分け隔てなく担当できることは、将来独立を考えている方にとっても、実務上のキャリア形成の面で大きなメリットになるかと思います。

    オフィスは大阪メトロ阿波座駅から徒歩数分の、河川公園の緑に隣接した光と風がぬける清々しい環境です。
    ここには静かに集中できる時間と、チームでアイデアを深めていく時間が共存しています。互いの個性も尊重しながら、学び合い、成長していける事務所だと思います。

    建築を通して、社会やまちにかけがえのない価値を生み出せたら―そんな想いを持つ方と共に歩んでいければと思います。

    ご応募をお待ちしています。

    job.architecturephoto.net
    • ap job
    建築求人情報
    2025.12.05 Fri 14:33
    0
    permalink
    「ソル・ルウィット オープン・ストラクチャー」展が、東京都現代美術館で開催。入場チケットをプレゼント。20世紀後半を代表するアーティストの、日本の公立美術館における初の個展。“ウォール・ドローイング”などの代表作を通じて、作家の思考の軌跡をたどる
    デザイン:三上悠里

    SHARE 「ソル・ルウィット オープン・ストラクチャー」展が、東京都現代美術館で開催。入場チケットをプレゼント。20世紀後半を代表するアーティストの、日本の公立美術館における初の個展。“ウォール・ドローイング”などの代表作を通じて、作家の思考の軌跡をたどる

    日程
    2025年12月25日(木)
    –
    2026年4月2日(木)
    art|exhibition
    「ソル・ルウィット オープン・ストラクチャー」展が、東京都現代美術館で開催。入場チケットをプレゼント。20世紀後半を代表するアーティストの、日本の公立美術館における初の個展。“ウォール・ドローイング”などの代表作を通じて、作家の思考の軌跡をたどるソル・ルウィット「ストラクチャー(正方形として1, 2, 3, 4, 5)」1978-80年、滋賀県立美術館蔵 © 2025 The LeWitt Estate / Artists Rights Society (ARS), New York. Courtesy Paula Cooper Gallery.
    東京都現代美術館での展覧会「ソル・ルウィット オープン・ストラクチャー」の入場チケットの抽選への応募はこちらから
    forms.gle

    「ソル・ルウィット オープン・ストラクチャー」展が、東京都現代美術館で開催されます。
    入場チケットを抽選でプレゼントいたします。20世紀後半を代表するアーティストの、日本の公立美術館における初の個展です。“ウォール・ドローイング”などの代表作を通じて、作家の思考の軌跡をたどります。
    展示会期は、2025年12月25日から2026年4月2日まで。展覧会の公式ページはこちら。入場チケットプレゼント企画の応募締切は、2025年12月22日(月)13時まで(お申込みにはGoogleアカウントが必要になります)。こちらのフォームからご応募ください。厳正な抽選を行い当選された方にはメールにてご連絡いたします(メール送付を当選発表にかえさせていただきます)。

    東京都現代美術館では、20世紀後半を代表するアーティスト、ソル・ルウィット(1928–2007)の日本の公立美術館における初の個展を開催します。

    ソル・ルウィットは1960年代後半、目に見える作品そのものよりも、作品を支えるアイデアやそれが生み出されるプロセスを重視する試みによって、芸術のあり方を大きく転換しました。ルウィットの指示をもとに、ほかの人の手で壁に描かれるウォール・ドローイング、構造の連続的な変化を明らかにする立体作品など、その仕事は「芸術とは何でありうるか」という問いを投げかけています。

    本展では、ウォール・ドローイング、立体・平面作品、アーティスト・ブックといった代表作の数々を通して、既存の枠組みや仕組みに再考を促し、別の構造への可能性を開こうとしてきたルウィットの思考の軌跡をたどります。

    リリーステキストより

    以下に、詳細な情報を掲載します。

    • 残り5枚の写真とテキストを見る
    • SHARE
    2025.12.05 Fri 14:21
    0
    permalink
    2025.12.03Wed
    • 【ap job更新】 各地で様々な建築に取り組み、技術に加えて好奇心とコミュニケーション力も評価する「株式会社micelle」が、設計スタッフ(2026年新卒・既卒・経験者)、業務委託、アルバイトを募集中
    • 細尾直久による、京都市の「洛和会京都看護学校」。“不規則で特徴のある輪郭”の敷地。風景との“滑らかで密接な繋がり”を求め、土地の形を“建築を構成する線”として導入。道路側から中庭まで層を作る様に諸機能を配置して“学びの場に必要な静けさ”も生み出す
    2025.12.07Sun
    • フランク・ゲーリーさんが亡くなりました。96歳でした

    Subscribe and Follow

    公式アカウントをフォローして、
    見逃せない建築情報を受け取ろう。

    「建築と社会の関係を視覚化する」メディア、アーキテクチャーフォトの公式アカウントです。
    様々な切り口による複眼的視点で建築に関する情報を最速でお届けします。

    61,703
    • Follow
    85,571
    • Follow
    • Follow
    • Add Friends
    • Subscribe
    • 情報募集/建築・デザイン・アートの情報を随時募集しています。
      More
    • メールマガジン/ メールマガジンで最新の情報を配信しています。
      More

    architecturephoto® News Letter

    メールマガジンでも最新の更新情報を配信中

    • ホーム
    • アーキテクチャーフォトについて
    • アーキテクチャーフォト規約
    • プライバシーポリシー
    • 特定商取引法に関する表記
    • 利用者情報の外部送信について
    • 広告掲載について
    • お問い合わせ/作品投稿

    Copyright © architecturephoto.net.

    • 建築
    • アート
    • カルチャー
    • デザイン
    • ファッション
    • 動画
    • 展覧会
    • コンペ
    • 書籍
    • 建築求人
    • 特集記事
    • 注目情報
    • タグ
    • アーキテクチャーフォト ジョブボード
    • アーキテクチャーフォト・ブック
    • ホーム
    • アーキテクチャーフォトについて
    • アーキテクチャーフォト規約
    • プライバシーポリシー
    • 特定商取引法に関する表記
    • 利用者情報の外部送信について
    • 広告掲載について
    • お問い合わせ/作品投稿

    メールマガジンで最新の情報を配信しています

    この記事をシェア
    タイトルタイトルタイトルタイトルタイトル
    https://architecturephoto.net/permalink

    記事について#architecturephotonetでつぶやいてみましょう。
    有益なコメントは拡散や、サイトでも紹介させていただくこともございます。

    architecturephoto®
    • black
    • gray
    • white

    建築求人情報紹介

    Loading...