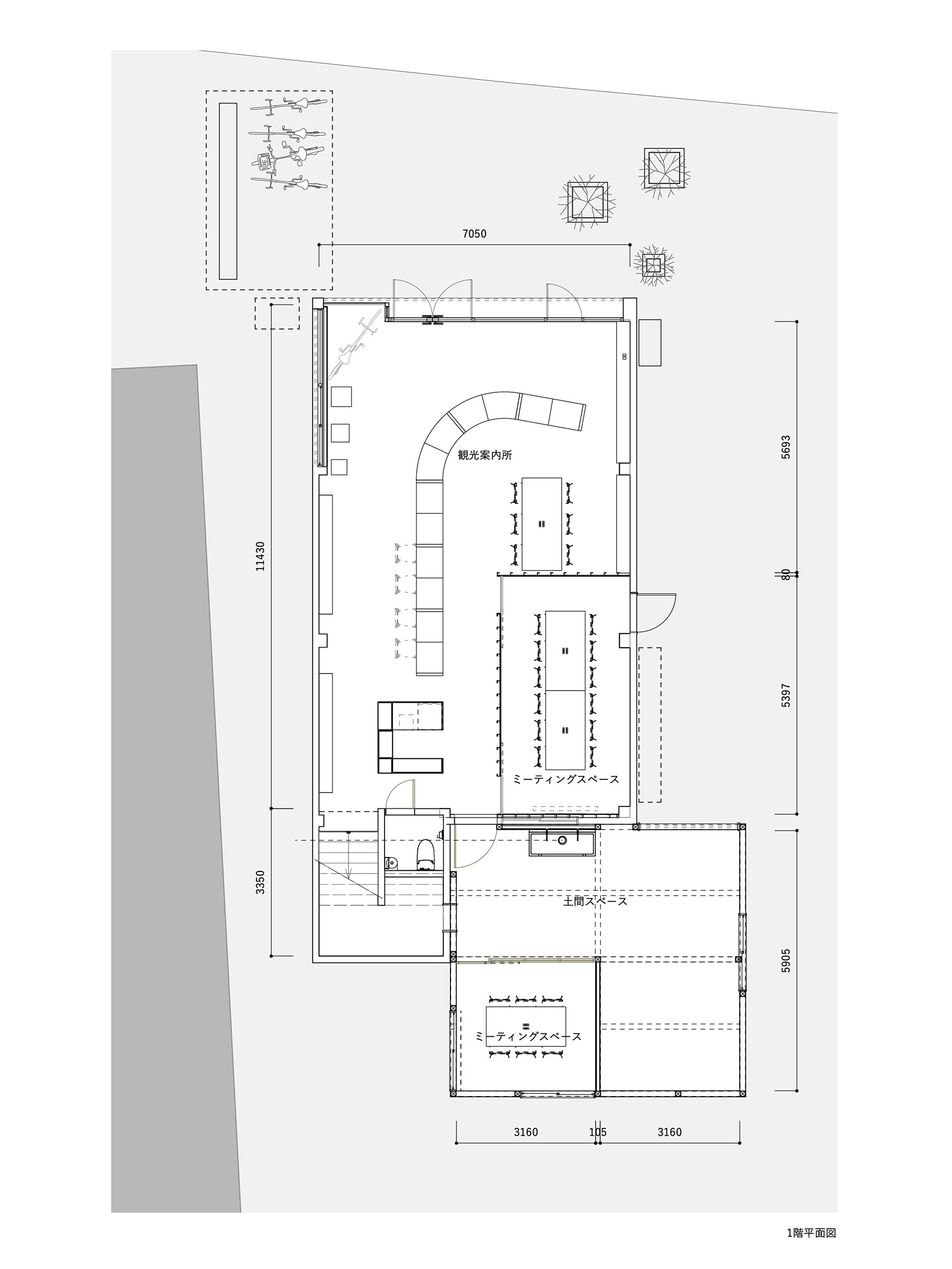
チドリスタジオとWADA studioによる、福井・鯖江市の「Craft Invitation / SOE」。観光案内所兼オフィス。漆器産地の中心という場所性に着目し、“ものづくりのプロセス”を内装や什器に組込む空間を志向。抽象的な背景をつくり“漆仕上げのカウンター”や“粗挽木地を用いた棚”などを配置する1階、観光案内所 photo©Hiroki Tagawa
チドリスタジオとWADA studioによる、福井・鯖江市の「Craft Invitation / SOE」。観光案内所兼オフィス。漆器産地の中心という場所性に着目し、“ものづくりのプロセス”を内装や什器に組込む空間を志向。抽象的な背景をつくり“漆仕上げのカウンター”や“粗挽木地を用いた棚”などを配置する1階、観光案内所、カウンターの詳細 photo©Hiroki Tagawa
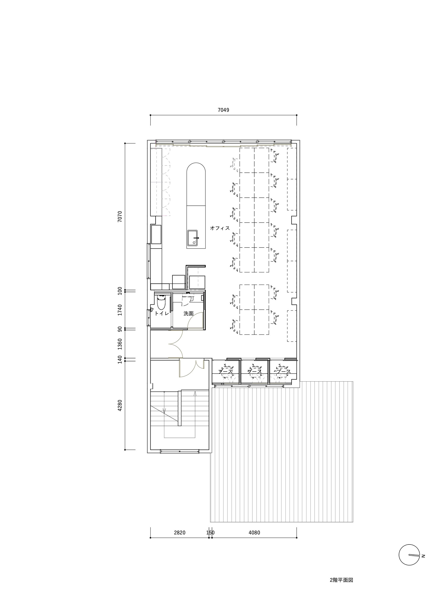
チドリスタジオとWADA studioによる、福井・鯖江市の「Craft Invitation / SOE」。観光案内所兼オフィス。漆器産地の中心という場所性に着目し、“ものづくりのプロセス”を内装や什器に組込む空間を志向。抽象的な背景をつくり“漆仕上げのカウンター”や“粗挽木地を用いた棚”などを配置する2階、オフィス photo©Hiroki Tagawa
チドリスタジオとWADA studioによる、福井・鯖江市の「Craft Invitation / SOE」。観光案内所兼オフィス。漆器産地の中心という場所性に着目し、“ものづくりのプロセス”を内装や什器に組込む空間を志向。抽象的な背景をつくり“漆仕上げのカウンター”や“粗挽木地を用いた棚”などを配置する2階、ブース、建具の詳細 photo©Hiroki Tagawa
岡佑亮+山田真暉 / チドリスタジオと和田吉史 / WADA studioによる、福井・鯖江市の「Craft Invitation / SOE office」です。
観光案内所兼オフィスのプロジェクトです。建築家は、漆器産地の中心という場所性に着目し、“ものづくりのプロセス”を内装や什器に組込む空間を志向しました。そして、抽象的な背景をつくり“漆仕上げのカウンター”や“粗挽木地を用いた棚”などを配置しました。施設の場所はこちら(Google Map)。
福井県鯖江市に建つ3階建鉄骨造のビルを、観光案内所兼オフィスへと改修した。
越前鯖江地域には、越前漆器・越前和紙・越前打刃物・越前箪笥・越前焼・眼鏡・繊維の7つの産地が集積しており、施主である一般社団法人SOEは、この地で工房見学イベント「RENEW」をはじめとした産業観光を推進し、持続可能な地域づくりに取り組んでいる。
建物の構成は、1階を観光案内所、2階をオフィスとし、さらに1階奥の倉庫部分には1on1のミーティングやワークショップに利用できる土間スペースを設けた。
建物が位置する河和田地区は漆器産地の中心にあり、周囲には材料問屋、木地師、塗師などが集積し、漆器の製造工程が分業体制のもと完結する地域特性を持つ。本計画では、観光案内所としての機能にふさわしく、この産地のものづくりのプロセスを内装や什器に組み込むことを意図した。
具体的には、デッドストックとして残されていた粗挽木地を柱に用いた棚、古典的な朱色から現代的なピンクへとグラデーションで塗り分けた漆仕上げのカウンターなど、産地の技術や素材を造作に転化している。
建築工事においては、床・壁・天井の色調を統一することで抽象的な背景をつくり、什器や展示物が際立つ空間構成とした。
また、2階オフィスのキッチンや建具、階段室の内装には、SOEやRENEWのロゴカラーであるオレンジを取り入れ、空間全体のアイコンとなるよう計画している。
以下の写真はクリックで拡大します

チドリスタジオとWADA studioによる、福井・鯖江市の「Craft Invitation / SOE」。観光案内所兼オフィス。漆器産地の中心という場所性に着目し、“ものづくりのプロセス”を内装や什器に組込む空間を志向。抽象的な背景をつくり“漆仕上げのカウンター”や“粗挽木地を用いた棚”などを配置する施設が入る建物の外観、 photo©Hiroki Tagawa

チドリスタジオとWADA studioによる、福井・鯖江市の「Craft Invitation / SOE」。観光案内所兼オフィス。漆器産地の中心という場所性に着目し、“ものづくりのプロセス”を内装や什器に組込む空間を志向。抽象的な背景をつくり“漆仕上げのカウンター”や“粗挽木地を用いた棚”などを配置するサイン photo©Hiroki Tagawa

チドリスタジオとWADA studioによる、福井・鯖江市の「Craft Invitation / SOE」。観光案内所兼オフィス。漆器産地の中心という場所性に着目し、“ものづくりのプロセス”を内装や什器に組込む空間を志向。抽象的な背景をつくり“漆仕上げのカウンター”や“粗挽木地を用いた棚”などを配置する1階、観光案内所、奥からエントランス側を見る。 photo©Hiroki Tagawa

チドリスタジオとWADA studioによる、福井・鯖江市の「Craft Invitation / SOE」。観光案内所兼オフィス。漆器産地の中心という場所性に着目し、“ものづくりのプロセス”を内装や什器に組込む空間を志向。抽象的な背景をつくり“漆仕上げのカウンター”や“粗挽木地を用いた棚”などを配置する1階、観光案内所 photo©Hiroki Tagawa

チドリスタジオとWADA studioによる、福井・鯖江市の「Craft Invitation / SOE」。観光案内所兼オフィス。漆器産地の中心という場所性に着目し、“ものづくりのプロセス”を内装や什器に組込む空間を志向。抽象的な背景をつくり“漆仕上げのカウンター”や“粗挽木地を用いた棚”などを配置する1階、観光案内所 photo©Hiroki Tagawa

チドリスタジオとWADA studioによる、福井・鯖江市の「Craft Invitation / SOE」。観光案内所兼オフィス。漆器産地の中心という場所性に着目し、“ものづくりのプロセス”を内装や什器に組込む空間を志向。抽象的な背景をつくり“漆仕上げのカウンター”や“粗挽木地を用いた棚”などを配置する1階、観光案内所、カウンターの詳細 photo©Hiroki Tagawa

チドリスタジオとWADA studioによる、福井・鯖江市の「Craft Invitation / SOE」。観光案内所兼オフィス。漆器産地の中心という場所性に着目し、“ものづくりのプロセス”を内装や什器に組込む空間を志向。抽象的な背景をつくり“漆仕上げのカウンター”や“粗挽木地を用いた棚”などを配置する1階、観光案内所、カウンターと什器の詳細 photo©Hiroki Tagawa

チドリスタジオとWADA studioによる、福井・鯖江市の「Craft Invitation / SOE」。観光案内所兼オフィス。漆器産地の中心という場所性に着目し、“ものづくりのプロセス”を内装や什器に組込む空間を志向。抽象的な背景をつくり“漆仕上げのカウンター”や“粗挽木地を用いた棚”などを配置する1階、観光案内所、カウンターと什器の詳細 photo©Hiroki Tagawa

チドリスタジオとWADA studioによる、福井・鯖江市の「Craft Invitation / SOE」。観光案内所兼オフィス。漆器産地の中心という場所性に着目し、“ものづくりのプロセス”を内装や什器に組込む空間を志向。抽象的な背景をつくり“漆仕上げのカウンター”や“粗挽木地を用いた棚”などを配置する1階、ミーティングスペースから観光案内所側を見る。 photo©Hiroki Tagawa

チドリスタジオとWADA studioによる、福井・鯖江市の「Craft Invitation / SOE」。観光案内所兼オフィス。漆器産地の中心という場所性に着目し、“ものづくりのプロセス”を内装や什器に組込む空間を志向。抽象的な背景をつくり“漆仕上げのカウンター”や“粗挽木地を用いた棚”などを配置する1階、ミーティングスペース photo©Hiroki Tagawa

チドリスタジオとWADA studioによる、福井・鯖江市の「Craft Invitation / SOE」。観光案内所兼オフィス。漆器産地の中心という場所性に着目し、“ものづくりのプロセス”を内装や什器に組込む空間を志向。抽象的な背景をつくり“漆仕上げのカウンター”や“粗挽木地を用いた棚”などを配置する1階、観光案内所から階段室側を見る。 photo©Hiroki Tagawa

チドリスタジオとWADA studioによる、福井・鯖江市の「Craft Invitation / SOE」。観光案内所兼オフィス。漆器産地の中心という場所性に着目し、“ものづくりのプロセス”を内装や什器に組込む空間を志向。抽象的な背景をつくり“漆仕上げのカウンター”や“粗挽木地を用いた棚”などを配置する1階から2階への階段 photo©Hiroki Tagawa

チドリスタジオとWADA studioによる、福井・鯖江市の「Craft Invitation / SOE」。観光案内所兼オフィス。漆器産地の中心という場所性に着目し、“ものづくりのプロセス”を内装や什器に組込む空間を志向。抽象的な背景をつくり“漆仕上げのカウンター”や“粗挽木地を用いた棚”などを配置する1階から2階への階段 photo©Hiroki Tagawa

チドリスタジオとWADA studioによる、福井・鯖江市の「Craft Invitation / SOE」。観光案内所兼オフィス。漆器産地の中心という場所性に着目し、“ものづくりのプロセス”を内装や什器に組込む空間を志向。抽象的な背景をつくり“漆仕上げのカウンター”や“粗挽木地を用いた棚”などを配置する2階、オフィス photo©Hiroki Tagawa

チドリスタジオとWADA studioによる、福井・鯖江市の「Craft Invitation / SOE」。観光案内所兼オフィス。漆器産地の中心という場所性に着目し、“ものづくりのプロセス”を内装や什器に組込む空間を志向。抽象的な背景をつくり“漆仕上げのカウンター”や“粗挽木地を用いた棚”などを配置する2階、オフィス photo©Hiroki Tagawa

チドリスタジオとWADA studioによる、福井・鯖江市の「Craft Invitation / SOE」。観光案内所兼オフィス。漆器産地の中心という場所性に着目し、“ものづくりのプロセス”を内装や什器に組込む空間を志向。抽象的な背景をつくり“漆仕上げのカウンター”や“粗挽木地を用いた棚”などを配置する2階、オフィス photo©Hiroki Tagawa

チドリスタジオとWADA studioによる、福井・鯖江市の「Craft Invitation / SOE」。観光案内所兼オフィス。漆器産地の中心という場所性に着目し、“ものづくりのプロセス”を内装や什器に組込む空間を志向。抽象的な背景をつくり“漆仕上げのカウンター”や“粗挽木地を用いた棚”などを配置する2階、オフィス photo©Hiroki Tagawa

チドリスタジオとWADA studioによる、福井・鯖江市の「Craft Invitation / SOE」。観光案内所兼オフィス。漆器産地の中心という場所性に着目し、“ものづくりのプロセス”を内装や什器に組込む空間を志向。抽象的な背景をつくり“漆仕上げのカウンター”や“粗挽木地を用いた棚”などを配置する2階、オフィス、照明の詳細 photo©Hiroki Tagawa

チドリスタジオとWADA studioによる、福井・鯖江市の「Craft Invitation / SOE」。観光案内所兼オフィス。漆器産地の中心という場所性に着目し、“ものづくりのプロセス”を内装や什器に組込む空間を志向。抽象的な背景をつくり“漆仕上げのカウンター”や“粗挽木地を用いた棚”などを配置する2階、オフィス、開口部の詳細 photo©Hiroki Tagawa

チドリスタジオとWADA studioによる、福井・鯖江市の「Craft Invitation / SOE」。観光案内所兼オフィス。漆器産地の中心という場所性に着目し、“ものづくりのプロセス”を内装や什器に組込む空間を志向。抽象的な背景をつくり“漆仕上げのカウンター”や“粗挽木地を用いた棚”などを配置する2階、オフィスからブース側を見る。 photo©Hiroki Tagawa

チドリスタジオとWADA studioによる、福井・鯖江市の「Craft Invitation / SOE」。観光案内所兼オフィス。漆器産地の中心という場所性に着目し、“ものづくりのプロセス”を内装や什器に組込む空間を志向。抽象的な背景をつくり“漆仕上げのカウンター”や“粗挽木地を用いた棚”などを配置する2階、ブース、建具の詳細 photo©Hiroki Tagawa

チドリスタジオとWADA studioによる、福井・鯖江市の「Craft Invitation / SOE」。観光案内所兼オフィス。漆器産地の中心という場所性に着目し、“ものづくりのプロセス”を内装や什器に組込む空間を志向。抽象的な背景をつくり“漆仕上げのカウンター”や“粗挽木地を用いた棚”などを配置する2階、ブース、建具の詳細 photo©Hiroki Tagawa

チドリスタジオとWADA studioによる、福井・鯖江市の「Craft Invitation / SOE」。観光案内所兼オフィス。漆器産地の中心という場所性に着目し、“ものづくりのプロセス”を内装や什器に組込む空間を志向。抽象的な背景をつくり“漆仕上げのカウンター”や“粗挽木地を用いた棚”などを配置する1階、観光案内所、什器の詳細 photo©Hiroki Tagawa

チドリスタジオとWADA studioによる、福井・鯖江市の「Craft Invitation / SOE」。観光案内所兼オフィス。漆器産地の中心という場所性に着目し、“ものづくりのプロセス”を内装や什器に組込む空間を志向。抽象的な背景をつくり“漆仕上げのカウンター”や“粗挽木地を用いた棚”などを配置する1階平面図 image©チドリスタジオ+WADA studio

チドリスタジオとWADA studioによる、福井・鯖江市の「Craft Invitation / SOE」。観光案内所兼オフィス。漆器産地の中心という場所性に着目し、“ものづくりのプロセス”を内装や什器に組込む空間を志向。抽象的な背景をつくり“漆仕上げのカウンター”や“粗挽木地を用いた棚”などを配置する2階平面図 image©チドリスタジオ+WADA studio
以下、建築家によるテキストです。
産業技術を内装デザインに転用する
福井県鯖江市に建つ3階建鉄骨造のビルを、観光案内所兼オフィスへと改修した。
越前鯖江地域には、越前漆器・越前和紙・越前打刃物・越前箪笥・越前焼・眼鏡・繊維の7つの産地が集積しており、施主である一般社団法人SOEは、この地で工房見学イベント「RENEW」をはじめとした産業観光を推進し、持続可能な地域づくりに取り組んでいる。
建物の構成は、1階を観光案内所、2階をオフィスとし、さらに1階奥の倉庫部分には1on1のミーティングやワークショップに利用できる土間スペースを設けた。
建物が位置する河和田地区は漆器産地の中心にあり、周囲には材料問屋、木地師、塗師などが集積し、漆器の製造工程が分業体制のもと完結する地域特性を持つ。本計画では、観光案内所としての機能にふさわしく、この産地のものづくりのプロセスを内装や什器に組み込むことを意図した。
具体的には、デッドストックとして残されていた粗挽木地を柱に用いた棚、古典的な朱色から現代的なピンクへとグラデーションで塗り分けた漆仕上げのカウンターなど、産地の技術や素材を造作に転化している。
建築工事においては、床・壁・天井の色調を統一することで抽象的な背景をつくり、什器や展示物が際立つ空間構成とした。
また、2階オフィスのキッチンや建具、階段室の内装には、SOEやRENEWのロゴカラーであるオレンジを取り入れ、空間全体のアイコンとなるよう計画している。
本プロジェクトは、産地の技術や素材に向き合いながら、具象性と抽象性のバランスを探り、地域性を内包したデザインとして内装に落とし込むことを試みた。
■建築概要
建物名称:Craft Invitation / SOE office
所在地:福井県鯖江市
主要用途:事務所
設計・監理:チドリスタジオ 担当/岡佑亮 山田真暉+WADA studio 担当/和田吉史
施主:SOE
サイン計画:TSUGI
施工:建大工房
粗挽木地:曽明漆器店
ろくろ挽き:ろくろ舎
漆仕上:漆琳堂
障子:滝製紙所+丸山表具店
吹付塗装:丸廣意匠
植栽:grove
階数:地上3階(改修は2階まで)
構造:鉄骨造
改修床面積:186.36m2
写真:Hiroki Tagawa
建材情報| 種別 | 使用箇所 | 商品名(メーカー名) | | 内装・床 | 主要箇所 床 | 長尺シート
|
| 内装・壁 | 主要箇所 壁 | AEP塗装
|
| 内装・天井 | 主要箇所 天井 | AEP塗装
|
| 内装・造作家具 | 造作家具 | シナベニアやポリ合板を基調
|
| 内装・照明 | 照明 | St.-L50x50による製作照明
|
※企業様による建材情報についてのご意見や「PR」のご相談はこちらから
※この情報は弊サイトや設計者が建材の性能等を保証するものではありません