真泉洋介 / プラスマイズミアーキテクトによる、東京・品川区の「荏原の集合住宅」。住宅街の細長く不定形な敷地での計画。“閉鎖的になりがち”な環境に対して、光を効果的に取り入れる“明るい住空間”を志向。開口部の形状操作と様々な場所への配置で“光の通り道”をつくり出す外観、南側の道路より見る。夜景 photo©アド・グラフィック 飯田眞秀
真泉洋介 / プラスマイズミアーキテクトによる、東京・品川区の「荏原の集合住宅」。住宅街の細長く不定形な敷地での計画。“閉鎖的になりがち”な環境に対して、光を効果的に取り入れる“明るい住空間”を志向。開口部の形状操作と様々な場所への配置で“光の通り道”をつくり出す2階、201号室、玄関側から開口部側のスペースを見る。 photo©アド・グラフィック 飯田眞秀
真泉洋介 / プラスマイズミアーキテクトによる、東京・品川区の「荏原の集合住宅」。住宅街の細長く不定形な敷地での計画。“閉鎖的になりがち”な環境に対して、光を効果的に取り入れる“明るい住空間”を志向。開口部の形状操作と様々な場所への配置で“光の通り道”をつくり出す2階、201号室、開口部側から玄関側のスペースを見る。 photo©アド・グラフィック 飯田眞秀
真泉洋介 / プラスマイズミアーキテクトが設計した、東京・品川区の「荏原の集合住宅」です。
住宅街の細長く不定形な敷地での計画です。建築家は、“閉鎖的になりがち”な環境に対して、光を効果的に取り入れる“明るい住空間”を志向しました。そして、開口部の形状操作と様々な場所への配置で“光の通り道”をつくり出しました。
品川区荏原の住宅街に佇むコンパクトな賃貸集合住宅です。
細長く閉鎖的になりがちな敷地において、光を効果的に取り入れ、明るい住空間を目指しました。
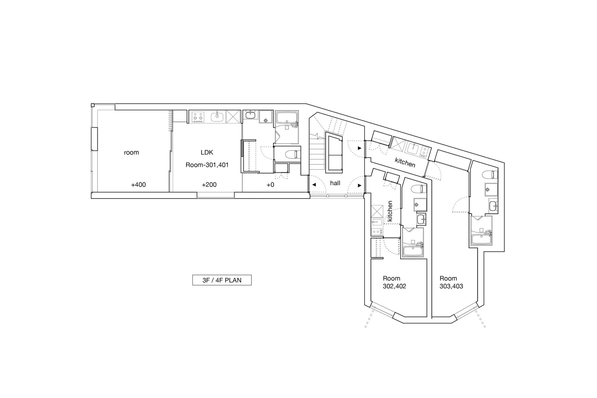
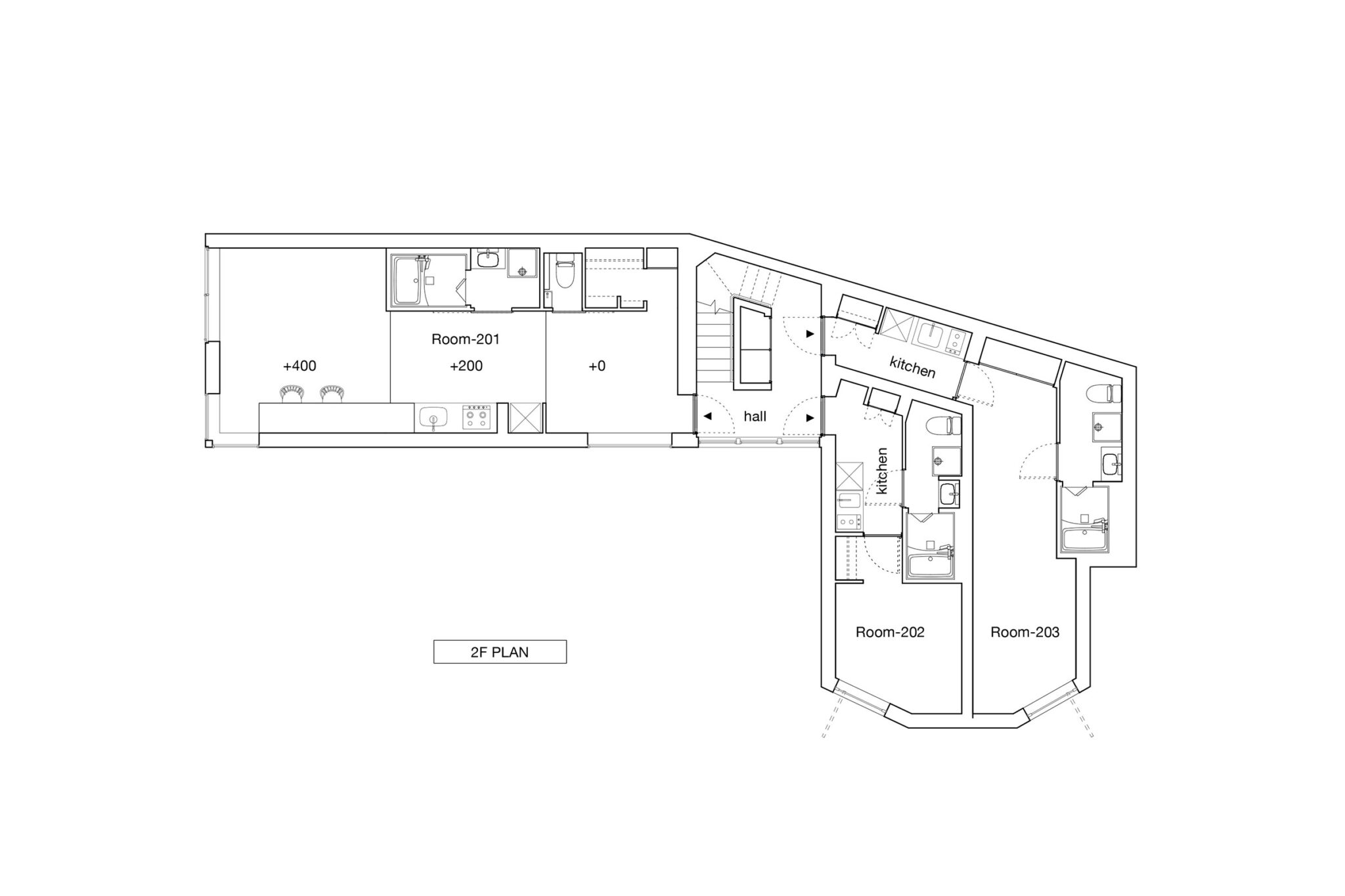
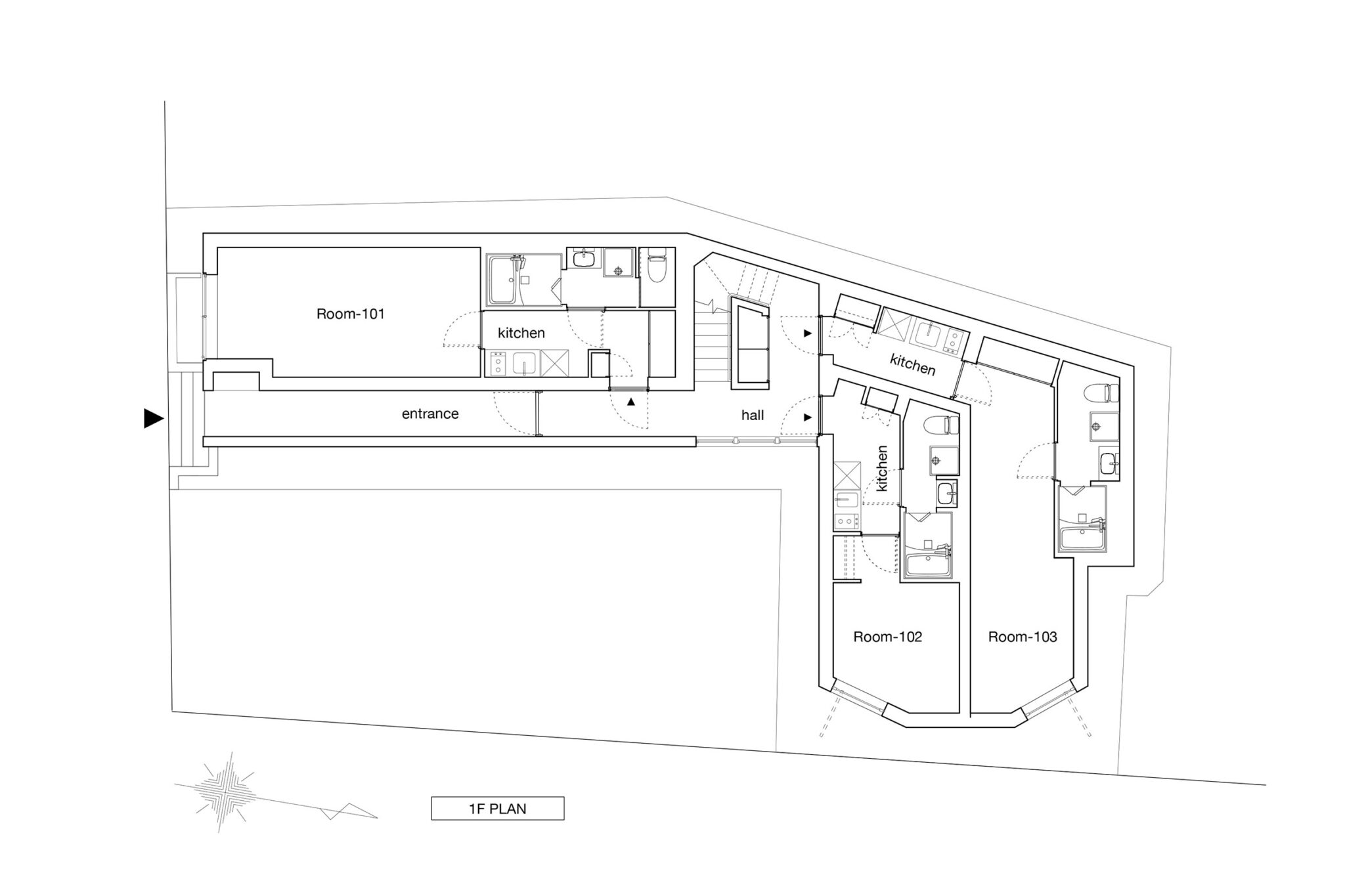
階高はコンパクトに抑えながら、住戸内で、2段のレベル差を設けています。玄関から開口部に向かって上がっていく構成とし、視線を斜め上に誘導しています。空が望め、実質の天井高さより、高く感じるような工夫を行っています。
この居室内の段差は、エントランス上部の折り上げとなります。緩やかな曲面で、エントランスへ人を導きます。
道路沿いの開口の部分は梁をインセットすることで、スラブ間を繋ぐ大きな窓としています。またコーナーに回り込む開口部で、部屋からの開放感を創出しています。
また、水回り、浴室、収納などにも居室とつながる開口部を設け、暗くなりがちな場所にも光を届けています。
閉鎖的な場所でコンパクトになってしまう共用階段にも大きな開口部を各階に設けて、階段沿いに光を導いています。
光の通り道をつくることを主とし、なるべく空気を繋げ、都市の住空間に明るさと開放感を創出しています。
以下の写真はクリックで拡大します

真泉洋介 / プラスマイズミアーキテクトによる、東京・品川区の「荏原の集合住宅」。住宅街の細長く不定形な敷地での計画。“閉鎖的になりがち”な環境に対して、光を効果的に取り入れる“明るい住空間”を志向。開口部の形状操作と様々な場所への配置で“光の通り道”をつくり出す外観、南側の道路より見る。夜景 photo©アド・グラフィック 飯田眞秀

真泉洋介 / プラスマイズミアーキテクトによる、東京・品川区の「荏原の集合住宅」。住宅街の細長く不定形な敷地での計画。“閉鎖的になりがち”な環境に対して、光を効果的に取り入れる“明るい住空間”を志向。開口部の形状操作と様々な場所への配置で“光の通り道”をつくり出す外観、南側の道路より見る。夜景 photo©アド・グラフィック 飯田眞秀

真泉洋介 / プラスマイズミアーキテクトによる、東京・品川区の「荏原の集合住宅」。住宅街の細長く不定形な敷地での計画。“閉鎖的になりがち”な環境に対して、光を効果的に取り入れる“明るい住空間”を志向。開口部の形状操作と様々な場所への配置で“光の通り道”をつくり出す外観、南側の道路より見る。夜景 photo©アド・グラフィック 飯田眞秀

真泉洋介 / プラスマイズミアーキテクトによる、東京・品川区の「荏原の集合住宅」。住宅街の細長く不定形な敷地での計画。“閉鎖的になりがち”な環境に対して、光を効果的に取り入れる“明るい住空間”を志向。開口部の形状操作と様々な場所への配置で“光の通り道”をつくり出す外観、南側の道路より見る。夜景 photo©アド・グラフィック 飯田眞秀

真泉洋介 / プラスマイズミアーキテクトによる、東京・品川区の「荏原の集合住宅」。住宅街の細長く不定形な敷地での計画。“閉鎖的になりがち”な環境に対して、光を効果的に取り入れる“明るい住空間”を志向。開口部の形状操作と様々な場所への配置で“光の通り道”をつくり出す外観、東側の道路より見る。 photo©アド・グラフィック 飯田眞秀

真泉洋介 / プラスマイズミアーキテクトによる、東京・品川区の「荏原の集合住宅」。住宅街の細長く不定形な敷地での計画。“閉鎖的になりがち”な環境に対して、光を効果的に取り入れる“明るい住空間”を志向。開口部の形状操作と様々な場所への配置で“光の通り道”をつくり出す1階、ホール photo©プラスマイズミアーキテクト

真泉洋介 / プラスマイズミアーキテクトによる、東京・品川区の「荏原の集合住宅」。住宅街の細長く不定形な敷地での計画。“閉鎖的になりがち”な環境に対して、光を効果的に取り入れる“明るい住空間”を志向。開口部の形状操作と様々な場所への配置で“光の通り道”をつくり出す共用階段 photo©プラスマイズミアーキテクト

真泉洋介 / プラスマイズミアーキテクトによる、東京・品川区の「荏原の集合住宅」。住宅街の細長く不定形な敷地での計画。“閉鎖的になりがち”な環境に対して、光を効果的に取り入れる“明るい住空間”を志向。開口部の形状操作と様々な場所への配置で“光の通り道”をつくり出す1階、101号室、居室 photo©プラスマイズミアーキテクト

真泉洋介 / プラスマイズミアーキテクトによる、東京・品川区の「荏原の集合住宅」。住宅街の細長く不定形な敷地での計画。“閉鎖的になりがち”な環境に対して、光を効果的に取り入れる“明るい住空間”を志向。開口部の形状操作と様々な場所への配置で“光の通り道”をつくり出す2階、201号室、玄関側から開口部側のスペースを見る。 photo©アド・グラフィック 飯田眞秀

真泉洋介 / プラスマイズミアーキテクトによる、東京・品川区の「荏原の集合住宅」。住宅街の細長く不定形な敷地での計画。“閉鎖的になりがち”な環境に対して、光を効果的に取り入れる“明るい住空間”を志向。開口部の形状操作と様々な場所への配置で“光の通り道”をつくり出す2階、201号室、造り付けのカウンターテーブル photo©プラスマイズミアーキテクト

真泉洋介 / プラスマイズミアーキテクトによる、東京・品川区の「荏原の集合住宅」。住宅街の細長く不定形な敷地での計画。“閉鎖的になりがち”な環境に対して、光を効果的に取り入れる“明るい住空間”を志向。開口部の形状操作と様々な場所への配置で“光の通り道”をつくり出す2階、201号室、造り付けのカウンターテーブルと開口部 photo©アド・グラフィック 飯田眞秀

真泉洋介 / プラスマイズミアーキテクトによる、東京・品川区の「荏原の集合住宅」。住宅街の細長く不定形な敷地での計画。“閉鎖的になりがち”な環境に対して、光を効果的に取り入れる“明るい住空間”を志向。開口部の形状操作と様々な場所への配置で“光の通り道”をつくり出す2階、201号室、開口部近くのスペース photo©プラスマイズミアーキテクト

真泉洋介 / プラスマイズミアーキテクトによる、東京・品川区の「荏原の集合住宅」。住宅街の細長く不定形な敷地での計画。“閉鎖的になりがち”な環境に対して、光を効果的に取り入れる“明るい住空間”を志向。開口部の形状操作と様々な場所への配置で“光の通り道”をつくり出す2階、201号室、開口部近くのスペース photo©プラスマイズミアーキテクト

真泉洋介 / プラスマイズミアーキテクトによる、東京・品川区の「荏原の集合住宅」。住宅街の細長く不定形な敷地での計画。“閉鎖的になりがち”な環境に対して、光を効果的に取り入れる“明るい住空間”を志向。開口部の形状操作と様々な場所への配置で“光の通り道”をつくり出す2階、201号室、開口部側から玄関側のスペースを見る。 photo©アド・グラフィック 飯田眞秀

真泉洋介 / プラスマイズミアーキテクトによる、東京・品川区の「荏原の集合住宅」。住宅街の細長く不定形な敷地での計画。“閉鎖的になりがち”な環境に対して、光を効果的に取り入れる“明るい住空間”を志向。開口部の形状操作と様々な場所への配置で“光の通り道”をつくり出す2階、201号室、玄関側を見る。 photo©アド・グラフィック 飯田眞秀

真泉洋介 / プラスマイズミアーキテクトによる、東京・品川区の「荏原の集合住宅」。住宅街の細長く不定形な敷地での計画。“閉鎖的になりがち”な環境に対して、光を効果的に取り入れる“明るい住空間”を志向。開口部の形状操作と様々な場所への配置で“光の通り道”をつくり出す2階、201号室、キッチンと造り付けのカウンターテーブル photo©アド・グラフィック 飯田眞秀

真泉洋介 / プラスマイズミアーキテクトによる、東京・品川区の「荏原の集合住宅」。住宅街の細長く不定形な敷地での計画。“閉鎖的になりがち”な環境に対して、光を効果的に取り入れる“明るい住空間”を志向。開口部の形状操作と様々な場所への配置で“光の通り道”をつくり出す2階、201号室、ベッド photo©プラスマイズミアーキテクト

真泉洋介 / プラスマイズミアーキテクトによる、東京・品川区の「荏原の集合住宅」。住宅街の細長く不定形な敷地での計画。“閉鎖的になりがち”な環境に対して、光を効果的に取り入れる“明るい住空間”を志向。開口部の形状操作と様々な場所への配置で“光の通り道”をつくり出す2階、201号室、水回り側を見る。 photo©プラスマイズミアーキテクト

真泉洋介 / プラスマイズミアーキテクトによる、東京・品川区の「荏原の集合住宅」。住宅街の細長く不定形な敷地での計画。“閉鎖的になりがち”な環境に対して、光を効果的に取り入れる“明るい住空間”を志向。開口部の形状操作と様々な場所への配置で“光の通り道”をつくり出す2階、201号室、洗面室を見る。 photo©アド・グラフィック 飯田眞秀

真泉洋介 / プラスマイズミアーキテクトによる、東京・品川区の「荏原の集合住宅」。住宅街の細長く不定形な敷地での計画。“閉鎖的になりがち”な環境に対して、光を効果的に取り入れる“明るい住空間”を志向。開口部の形状操作と様々な場所への配置で“光の通り道”をつくり出す4階、403号室、居室 photo©プラスマイズミアーキテクト

真泉洋介 / プラスマイズミアーキテクトによる、東京・品川区の「荏原の集合住宅」。住宅街の細長く不定形な敷地での計画。“閉鎖的になりがち”な環境に対して、光を効果的に取り入れる“明るい住空間”を志向。開口部の形状操作と様々な場所への配置で“光の通り道”をつくり出す4階、403号室、居室 photo©プラスマイズミアーキテクト

真泉洋介 / プラスマイズミアーキテクトによる、東京・品川区の「荏原の集合住宅」。住宅街の細長く不定形な敷地での計画。“閉鎖的になりがち”な環境に対して、光を効果的に取り入れる“明るい住空間”を志向。開口部の形状操作と様々な場所への配置で“光の通り道”をつくり出す1階平面図 image©プラスマイズミアーキテクト

真泉洋介 / プラスマイズミアーキテクトによる、東京・品川区の「荏原の集合住宅」。住宅街の細長く不定形な敷地での計画。“閉鎖的になりがち”な環境に対して、光を効果的に取り入れる“明るい住空間”を志向。開口部の形状操作と様々な場所への配置で“光の通り道”をつくり出す2階平面図 image©プラスマイズミアーキテクト

真泉洋介 / プラスマイズミアーキテクトによる、東京・品川区の「荏原の集合住宅」。住宅街の細長く不定形な敷地での計画。“閉鎖的になりがち”な環境に対して、光を効果的に取り入れる“明るい住空間”を志向。開口部の形状操作と様々な場所への配置で“光の通り道”をつくり出す3・4階平面図 image©プラスマイズミアーキテクト

真泉洋介 / プラスマイズミアーキテクトによる、東京・品川区の「荏原の集合住宅」。住宅街の細長く不定形な敷地での計画。“閉鎖的になりがち”な環境に対して、光を効果的に取り入れる“明るい住空間”を志向。開口部の形状操作と様々な場所への配置で“光の通り道”をつくり出す断面図 image©プラスマイズミアーキテクト
以下、建築家によるテキストです。
品川区荏原の住宅街に佇むコンパクトな賃貸集合住宅です。
細長く閉鎖的になりがちな敷地において、光を効果的に取り入れ、明るい住空間を目指しました。
階高はコンパクトに抑えながら、住戸内で、2段のレベル差を設けています。玄関から開口部に向かって上がっていく構成とし、視線を斜め上に誘導しています。空が望め、実質の天井高さより、高く感じるような工夫を行っています。
この居室内の段差は、エントランス上部の折り上げとなります。緩やかな曲面で、エントランスへ人を導きます。
道路沿いの開口の部分は梁をインセットすることで、スラブ間を繋ぐ大きな窓としています。またコーナーに回り込む開口部で、部屋からの開放感を創出しています。
また、水回り、浴室、収納などにも居室とつながる開口部を設け、暗くなりがちな場所にも光を届けています。
閉鎖的な場所でコンパクトになってしまう共用階段にも大きな開口部を各階に設けて、階段沿いに光を導いています。
光の通り道をつくることを主とし、なるべく空気を繋げ、都市の住空間に明るさと開放感を創出しています。
■建築概要
題名:荏原の集合住宅
所在地:東京都品川区荏原
主用途:共同住宅
設計:株式会社プラスマイズミアーキテクト 担当/真泉洋介、真泉絵美
構造:株式会社ハシゴタカ建築設計事務所、ladderup architects 担当/髙見澤孝志、鈴木稔子
機械設備:ジーエヌ設備計画
電気設備:株式会社 泉設備設計
施工:株式会社アルコ建築
事業主:アグレ都市デザイン株式会社 担当/田澤丈太郎
構造:鉄筋コンクリート壁式構造
階数:地上4階
住戸数:12戸
敷地面積:160.94㎡
建築面積:109.49㎡
延床面積:456.98㎡
設計:2023年10月~2024年3月
工事:2024年4月~2025年2月
竣工年月:2025年2月
写真:アド・グラフィック 飯田眞秀、一部 真泉洋介の撮影のものあり