
SHARE 若林拓哉 / ウミネコアーキによる、神奈川の「新横浜食料品センター」。60年代から続く“地域の食の拠点”の“動的保存”計画。各々の商店が個別に認識される状況に着目し、個が並存しつつ群として全体を作る在り方を志向。メガストラクチャーに戸建サイズの量塊が集まる建築を考案





若林拓哉 / ウミネコアーキが設計した、神奈川の「新横浜食料品センター」です。
60年代から続く“地域の食の拠点”の“動的保存”計画です。建築家は、各々の商店が個別に認識される状況に着目し、個が並存しつつ群として全体を作る在り方を志向しました。そして、メガストラクチャーに戸建サイズの量塊が集まる建築を考案しました。店舗の場所はこちら(Google Map)。
これは、私の祖父が1967年に築いた「新横浜食料品センター」の「動的保存」プロジェクトである。
1964年、新幹線の新横浜駅が開通して間もなく、祖父は農業に加えて不動産業を始め、この地に転居する人々の受け皿をつくった。そして彼らが生活に困らないようにと、肉屋・八百屋・牛乳屋といった個人商店が集まり、その店子が2階に暮らす地域の食の拠点「新横浜食料品センター」を建てた。
そこから現在に至るまで、店舗は入れ替わりながらもその流れを脈々と受け継いできた。計画当初、老朽化のために丸ごと建替えも検討したが、既存店舗であったうなぎ屋・八百屋の営業継続を尊重し、減築→新築→店舗移転→改修と段階的に遷移するプロセスを採用した。
元々の「新横浜食料品センター」は施設名が殆ど知られておらず、“八百屋さんのあるところ”のように各々が個別で地域住民に認識されていた。またそれぞれのテナントが余白に溢れ出すように商品を広げたり、看板や植栽を出したりする姿をずっと目の当たりにしてきた。
そうした既存の在り方を発展させ、バラバラな個が並存しながら群としての全体をつくる建築を目指した。
3Fに人工地盤を規定し、計8本の500角の柱によって支持されるメガストラクチャーを依りしろに、1階は地面から、3階は人工地盤から自立し、さらに2階はその地盤から吊り構造となっている。敷地は新横浜の都市的スケールと谷戸地形である篠原町のヒューマンスケールが折り合わさる第一種住居地域。
建築もその両スケールが混在する様相を呈している。都市的なメガストラクチャーはまるで不動の樹幹のような存在として立ち上がり、周辺の木造2階建住宅サイズの小径部材によるボリューム群がそこに寄り集まる。
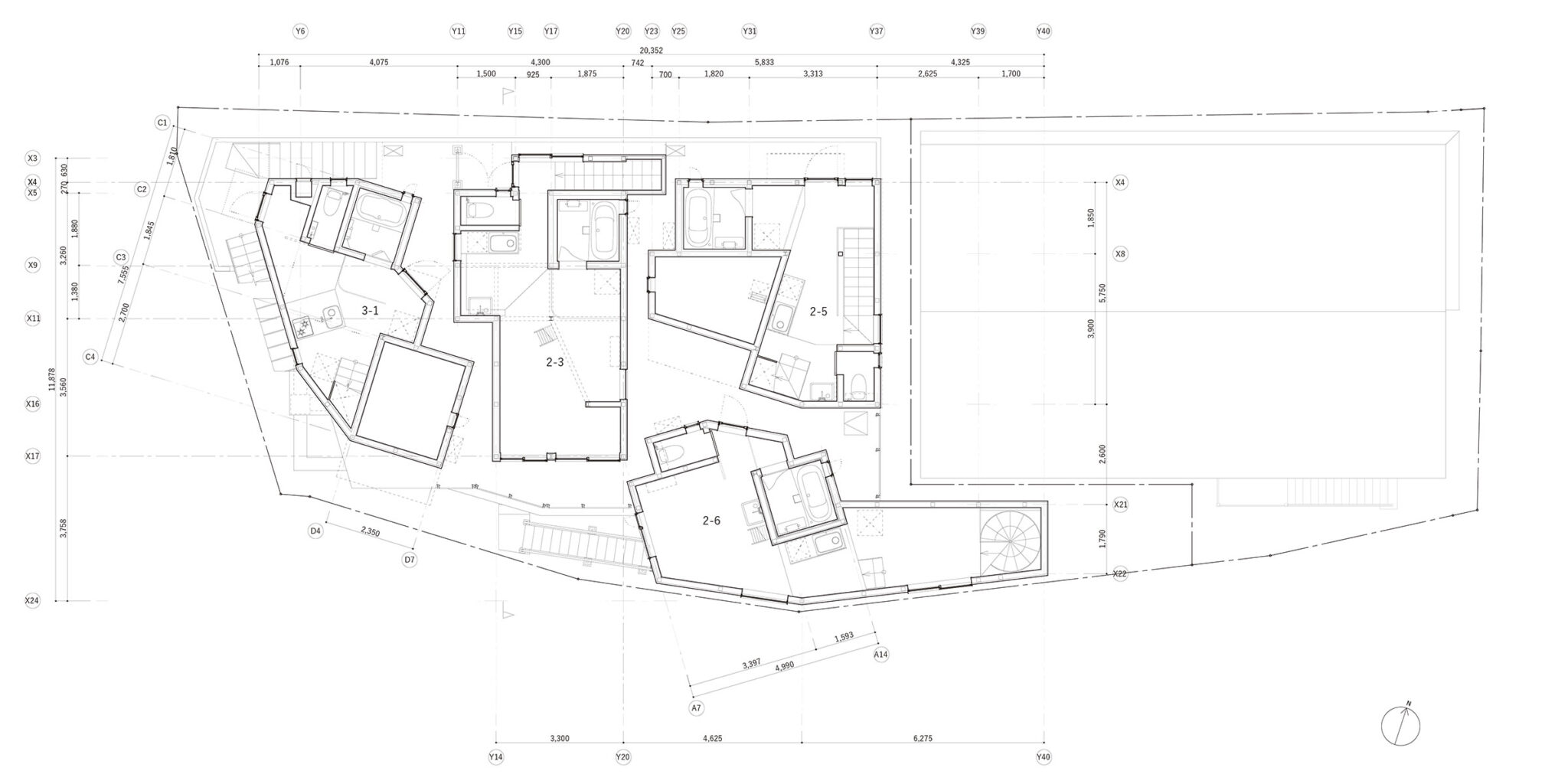
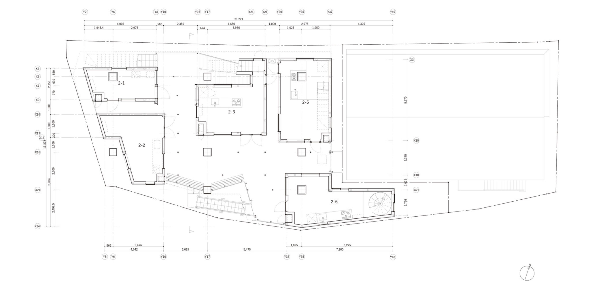
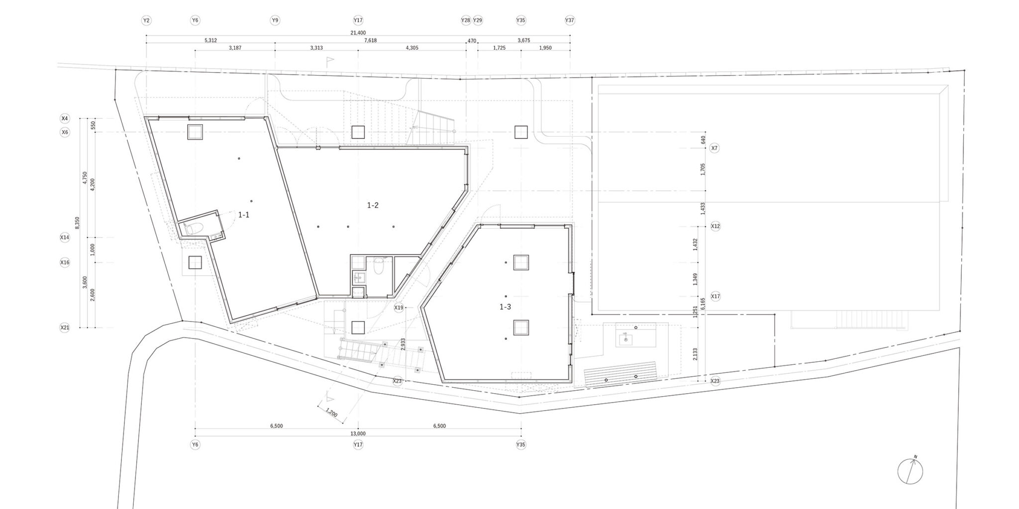
1階を店舗3軒、2階を店舗2軒およびメゾネット形式の店舗兼用住宅3戸の店舗部分、3階を単独住宅1戸と店舗兼用住宅の住居部分といったように混成させることで、各階で関係性を分断させず緩やかに繋げ合う。
一方で、それぞれ分離し独立した店舗や住戸が階ごとに全くバラバラな平面形で重なり合うことで、それらのあいだに路地のような隙間が生まれるだけでなく、複雑なシークエンスを構成している。
それに大きく寄与しているのが、表面積が拡張されることによって四方八方に開けることが可能になった開口部である。1階は店舗内部を抜けて南側の中庭や隣接店舗、既存棟へと回遊できる動線となっており、2階は店舗間・住戸間の隙間から周囲の風景を切り取りつつ、勝手動線としても機能する。
3階は4住戸が人工地盤の上に隙間をもって立ち並んでおり、専用バルコニーから延長された路地状につながる共用部となっている。そこに明確な仕切りはなく、入居者同士の距離感によって調停されるコモンの領域である。
以下の写真はクリックで拡大します












































以下、建築家によるテキストです。
「発酵」する建築
これは、私の祖父が1967年に築いた「新横浜食料品センター」の「動的保存」プロジェクトである。
1964年、新幹線の新横浜駅が開通して間もなく、祖父は農業に加えて不動産業を始め、この地に転居する人々の受け皿をつくった。そして彼らが生活に困らないようにと、肉屋・八百屋・牛乳屋といった個人商店が集まり、その店子が2階に暮らす地域の食の拠点「新横浜食料品センター」を建てた。
そこから現在に至るまで、店舗は入れ替わりながらもその流れを脈々と受け継いできた。
計画当初、老朽化のために丸ごと建替えも検討したが、既存店舗であったうなぎ屋・八百屋の営業継続を尊重し、減築→新築→店舗移転→改修と段階的に遷移するプロセスを採用した。
この一連の流れを、食とは切っても切り離せない「発酵」の概念になぞらえる。
綺麗さっぱり丸ごと刷新するのではなく、少しずつ、店舗の営業を続けながら、地域と溶け合うように更新していきたい。建築自体は形を変えながら、それでも「新横浜食料品センター」として動的に保存されてゆく。これを「発酵」する建築と名付ける。
バラバラな個の並存による群造形
元々の「新横浜食料品センター」は施設名が殆ど知られておらず、“八百屋さんのあるところ”のように各々が個別で地域住民に認識されていた。またそれぞれのテナントが余白に溢れ出すように商品を広げたり、看板や植栽を出したりする姿をずっと目の当たりにしてきた。
そうした既存の在り方を発展させ、バラバラな個が並存しながら群としての全体をつくる建築を目指した。
3Fに人工地盤を規定し、計8本の500角の柱によって支持されるメガストラクチャーを依りしろに、1階は地面から、3階は人工地盤から自立し、さらに2階はその地盤から吊り構造となっている。
敷地は新横浜の都市的スケールと谷戸地形である篠原町のヒューマンスケールが折り合わさる第一種住居地域。
建築もその両スケールが混在する様相を呈している。都市的なメガストラクチャーはまるで不動の樹幹のような存在として立ち上がり、周辺の木造2階建住宅サイズの小径部材によるボリューム群がそこに寄り集まる。このメガストラクチャーが上下間の連続性を分節し、自由な平面を実現するとともに、500角と50角の柱が並立するコントラストのあるシーンを浮かび上がらせる。
また、吊り構造によって床レベル設定の制約から開放された2階は、フラットな共用廊下に対して+400上がった区画と-200下がった区画をリズミカルに配列している。
それに呼応するように1階の屋根勾配を決定することで、1・2階の分節されたファサードを生み出している。
自律した個であると同時に弱く繋がり合う
1階を店舗3軒、2階を店舗2軒およびメゾネット形式の店舗兼用住宅3戸の店舗部分、3階を単独住宅1戸と店舗兼用住宅の住居部分といったように混成させることで、各階で関係性を分断させず緩やかに繋げ合う。
一方で、それぞれ分離し独立した店舗や住戸が階ごとに全くバラバラな平面形で重なり合うことで、それらのあいだに路地のような隙間が生まれるだけでなく、複雑なシークエンスを構成している。
それに大きく寄与しているのが、表面積が拡張されることによって四方八方に開けることが可能になった開口部である。
1階は店舗内部を抜けて南側の中庭や隣接店舗、既存棟へと回遊できる動線となっており、2階は店舗間・住戸間の隙間から周囲の風景を切り取りつつ、勝手動線としても機能する。
3階は4住戸が人工地盤の上に隙間をもって立ち並んでおり、専用バルコニーから延長された路地状につながる共用部となっている。そこに明確な仕切りはなく、入居者同士の距離感によって調停されるコモンの領域である。
2階の出入口のレベル差は、あまり商業に寄せすぎず暮らしの延長であることを重視したことの現れである。
また、隣り合うそれぞれの開口部は正対させずにずらしたり、高さ関係を変えたりすることで、店舗同士とも共用部とも適度な距離感を保てるようにしている。
それは3階の住居も同様で、隣接する住戸の寝室レベルがずれるようにフラットな室とスキップフロアの室が交互に並ぶ断面構成とした。それによって気積の大きな住戸と立体的に床が組み合わさる住戸の2パターンが生まれながら、開口部もまたずらしたり斜に位置させたりすることで、路地を介した視線をコントロールしている。
それぞれの店舗・住居が自律して在ることを前提としながら、そこに緩やかに介入する線を引いていくことで、弱い繋がりを生んでいく。このつかず離れずの距離感は、篠原地域の高低差が激しく隘路に溢れた谷戸地形がもたらすバナキュラーな振る舞いのメタファーであり、さながら篠原の地形が凝縮された丘のような建築とも云えよう。
「過分節=オーバー・アーティキュレーション」
メガストラクチャーを構成する大梁の外周に、2階から3階へ上がるメゾネット住戸3戸の階段と屋外階段を配置することで、人工地盤による上下階の分断を崩していく。
メガストラクチャー自体も耐火塗料・耐火被覆・ケイカル板・強化石膏ボードと位置や状況に応じて仕上げを変化させる。メガストラクチャーを純粋に構造表現主義的に顕在化させることを目的化せず、あくまで自立した個の並存を成立させる手段として捉えることは、場の緊張感を解きほぐすための手つきである。
そのようなチューニングが至るところに存在する。外装材はガルバリウム鋼板波板だが、木造の厚みを追及するために胴縁を無くしたことによって生じた留め具が、働き幅に基づいて必然的に生じるピッチで無数に打ち付けられ、異様な表層を生み出している。
この不可視のグリッドを活用しながらビスを取り替えてサインや掲示板を設置したり、住戸のナンバープレートを取り付けたりしている。
他にも、異形鉄筋やチェッカープレートを内外問わず手摺りや階段に用いたり、亜鉛メッキ鋼管を用いてクランプを駆使しながら手摺りや階段を作ったりと、即物的かつ接合部を露出させた納まりとしている。これが住戸内まで拡張されており、内装を構成する強化石膏ボードとラワンベニヤのビスはすべて表出している。
形式を生成すると同時に解体していくこと。本来であれば隠蔽されるべきとされる素材やディテールを逸脱し、面を異常なまでに区切ること。これらの所作を「過分節=オーバー・アーティキュレーション」と名付けた。
これはバラバラな個の並存、メガストラクチャーと木造スケールのコントラスト、多彩な床レベルの積層といった事柄にも通底する、この建築全体を捉える言葉である。
それはいったい何をもたらすのだろうか?
一つは居住者、利用者の主体性を喚起する補助線を描くことである。分節することでより身体的に、可変的に、参与可能になるための手がかりが増えていく。手の痕跡が見えることは、次にまた手を加えても良いという感覚を呼び起こすことに繋がる。
それはまたヒューマンスケールの獲得でもある。規模が大きくなればなるほど建築は人の手を離れ、ソーシャルで人間の尺度を逸脱した存在となる。商業ビル化することに抗い、人の顔が見える空間の集合へ着地させるための方法である。
既存に対して並存する新築
減築に際して、既存棟と新築棟の敷地を分筆して切り離すことで別棟として扱うこととした。
敷地割は既存棟と同程度のボリュームを再建可能であることを条件としつつ、新築棟と明確に分離しないよう、既存棟を抱き込むような形状とした。既存棟に最も寄り添う形となっている部分の店舗兼用住宅は、2階に既存棟・新築棟の切断面を眺める開口部を有し、3階は敷地割が生んだ斜線制限によって切り取られた屋根がトンネル状の空間を生み出している。
減築によって半分になった隣接する既存棟は、外装を残して内部をリノベーションする計画だ。新築棟はこの既存部分に対して一見すると全く異なる姿形をしているが、木造住宅のスケール感の踏襲やトタンをガルバリウム鋼板波板に読み替えたマテリアルの用い方、北側のカラッとした店舗の顔と南側の東南アジアのようなウェットな表情の対比、アドホックなディテール、瓦屋根を砕いた砂利への転用など、随所に要素を織り交ぜていくことで関係づけている。
また、3階の既存建築物の庇を参照した青いラインは、軒下に個性豊かなテナントが立ち並ぶ既存建物の風景をより立体的な形で表現している。
LDK=ローカル・ダイニング・キッチン
1階・2階・屋上テラスは建物住民や店舗利用者だけでなく、地域の人々も日常的に過ごすことのできる食の場である。
お店でテイクアウトした商品を持ち出すことも、住民がランチをテラスで食べることも、たとえば近隣のシニアがここに食事を持ち寄って食べることも、フラットに存在しうる。
今後、既存棟の改修工事によってコモンキッチンやアウトドアキッチンが出来上がると、自宅や店舗のキッチンといったプライベートなキッチンだけでなく、かつて近世までは存在していた井戸端のような空間が立ち現れるはずだ。食事を作る場も食べる場も、地域の中でもっと多様な選択肢があって良いはずである。
これを地域の食の場=ローカル・ダイニング・キッチンと定義している。近代化に伴って核家族化も進展した結果、分断・孤立化してきたキッチンと食卓の場を前提に、新たなコモンズとしてのレイヤーを重ねること。藤原辰史氏の提唱する「縁食」の概念にも通じる、「発酵」する建築がつくり出す地域の食の風景を目指している。
「つくる」と「つかう」のあいだを渡る
ウミネコアーキでは設計だけでなく、事業企画からはじまり、テナントや住居の不動産仲介、施設運営も手掛けている。
事業計画上では新築棟と既存棟改修の抱き合わせで銀行融資を取り付けている。すべてを建て替えてしまうと事業規模としても収支としても上手くいかないが、半分を残して改修とすることで、予算を抑えながら収益性を高めることを可能にしている。この事業スキームは建設費が高騰し続ける現代社会において今後益々重要となるだろう。
これらを一連で手がけることは、理想を机上の空論に終わらせないための試みであり、ありうべき場を作るために不可欠な実践であり、利用者のマインドを理解するための挑戦でもある。私たちの事務所も一画に構え、設計者自身が住みながら場を醸成していく。
建築は竣工時が終わりではなく、利用されることによって息づいていくものだ。そしてそこにどんな人々が参与するかによって、その建築の性質を大きく左右してしまうのもまた現実である。
地域のための場をつくっていくうえで、建築を建てることと同様にどのように使われていくかもデザインしなければならない。
(ウミネコアーキ/若林拓哉)
■建築概要
題名:新横浜食料品センター
所在地:神奈川県横浜市港北区篠原町2803-3
主用途:共同住宅4戸+店舗5軒
設計:ウミネコアーキ 担当/若林拓哉・石毛龍・伊藤祐介* (*元スタッフ)
構造設計:yasuhirokaneda STRUCTURE 担当/金田泰裕・青山健太・木村友美* (*元スタッフ)
ランドスケープデザイン:AOI LANDSCAPE DESIGN 担当/吉田葵・高石竜介
設備設計:NoMaDoS 担当/高橋良輔
グラフィックデザイン:ワニデザイン
イラスト:イスナデザイン
企画:ウミネコアーキ
不動産:ウミネコアーキ
不動産サポート:きんつぎ 担当/野々垣賢人
運営:ウミネコアーキ
施工:関口工務店 担当/中田隆・松尾健太郎
給排水衛生設備・空調換気設備工事:小林設備工業 担当/小林伸彦・岡部憲嗣
電気設備工事:高橋電気工業所 担当/高橋敏・井上宏之
ガス設備工事:ユナイテッドエンジニアリング 担当/鳴海真次・梅沢賢二
鉄骨工事:矢田部鉄工所 担当/矢田部元嗣・滝沢公雄
屋根・外壁工事:斉藤興業 担当/佐藤真・佐藤伶音
金属製建具工事・ガラス工事:老川工業 担当/飯塚浩司・内野喜晴
防水工事:モーティブ 担当/桜井弘樹・濱野景司
木工事・内装工事:有留内装 担当/有留辰男・有留公哉
木製建具工事:新井建具 担当/新井章友
塗装工事:日下部塗装店 担当/日下部修一・豊島兼好
内装工事(床):インテリア鈴木 担当/鈴木治・佐伯昌弘
住宅設備機器工事:奥山管材機器 担当/高橋和海・横山聖水
金属工事:森鉄工業 担当/森田和雄
外構工事:鳶小池工業 担当/小池勇二
耐火被覆工事:東成 担当/川上敦之・打込伸一
構造:鉄骨造
階数:地上3階
敷地面積:224.04㎡
建築面積:155.69㎡
延床面積:367.06㎡
設計:2018年11月~2023年12月
工事:2024年1月~2025年6月
竣工:2025年6月
写真:Eichi Tano
| 種別 | 使用箇所 | 商品名(メーカー名) |
|---|---|---|
| 外装・屋根 | 屋根 | |
| 外装・屋根 | 1階 屋根 | |
| 外装・床 | 主要箇所 床 | ウレタン防水:サラセーヌタフガイ SD-AK30T工法(AGCポリマー建材) |
| 外装・床 | 屋上 床 | シート防水:リベットルーフSGM(アーキヤマデ) |
| 外装・壁 | 外壁 | |
| 外装・建具 | 開口部 | アルミサッシ:エピソードⅡ防火窓G NEO(YKK AP) |
| 外装・その他 | 柱梁 | 鉄骨+耐火塗料:SKタイカコート(エスケー化研) |
| 外装・その他 | アルミ庇 | |
| 外装・その他 | 3F、屋上 手摺 | |
| 内装・床 | 主要箇所 床 | コンクリート打放+水性コンクリートステイン塗料:アクアカラー(AFJ) |
| 内装・壁 | 主要箇所 壁 | 強化石膏ボードt21:強化ボード タイプX グレー(チヨダウーテ) |
| 内装・天井 | 主要箇所 天井 | 石膏ボードt12.5+EP:水性エコファイン艶消し 65-40D(エスケー化研) |
| 内装・水廻り | キッチン | 造作キッチン |
| 外構・床 | 外構 | コンクリート打放補修 |
※企業様による建材情報についてのご意見や「PR」のご相談はこちらから
※この情報は弊サイトや設計者が建材の性能等を保証するものではありません
