
SHARE 鈴木雅也建築設計事務所による、東京・文京区の住戸改修「小石川の家」。100㎡以上の広さで施工費や採光を課題とした計画。予算と空間の質の均衡を意図し、全体を“簡易・部分・フル”の3区分に分けてリノベーションする計画を考案。平面中央に鏡を“ハの字に”配置して光も届ける




鈴木雅也建築設計事務所が設計した、東京・文京区の住戸改修「小石川の家」です。
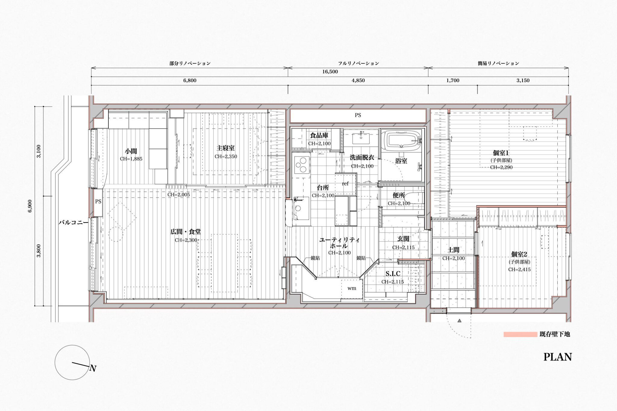
100㎡以上の広さで施工費や採光を課題とした計画です。建築家は、予算と空間の質の均衡を意図し、全体を“簡易・部分・フル”の3区分に分けてリノベーションする計画を考案しました。また、平面中央に鏡を“ハの字に”配置して光も届けています。
都内の築50年経つマンションの一住戸のリノベーション。
床面積が100㎡以上の広さを持ち、間口である南北方向に長い平面形状である事で工事費用や採光状況においての課題があった。そこで、簡易リノベーション(内装の貼替工事)、部分リノベーション(既存下地を活かした造作工事)、フルリノベーションの3つの工事規模に平面を区分した。
簡易リノベーション範囲は、玄関土間を挟んだ離れのような区画とし、まもなく家を出ていくであろう子供達の為の部屋とした。壁は部分的に日本の伝統色である芥子色や岩井茶で塗装を施し、色の強い既存内装と調和させた。
フルリノベーション範囲は、使いやすく間取りを大幅に変える必要のある水廻り区画とし、内装や設備は性能を重視しながら既製品を選定している。
部分リノベーション範囲は、居間・食堂・主寝室の主要室とし、既存下地を生かす事で、造作工事の費用割合を増やし、ディテールや素材にこだわった。全体がワンルーム空間となっており、天井の高さの緩急により、用途に合わせた居場所を設えた。
採光の問題については、鏡による光の反射を利用して解決を試みた。
窓に対して45度となるように、ハの字に2枚の鏡を設置することで、光を暗い空間まで届けている。また、斜めの鏡は、視線の広がりも生み出し、迷宮のような不思議な空間を演出してくれた。
工事規模の違いで生まれる既存内装と新設内装との取り合いにより、過去と現在が融和したインテリアとなった。築年数のある住戸ならではの、表情豊かな住まいになったのではないだろうか。
以下の写真はクリックで拡大します




















以下、建築家によるテキストです。
都内の築50年経つマンションの一住戸のリノベーション。
床面積が100㎡以上の広さを持ち、間口である南北方向に長い平面形状である事で工事費用や採光状況においての課題があった。
そこで、簡易リノベーション(内装の貼替工事)、部分リノベーション(既存下地を活かした造作工事)、フルリノベーションの3つの工事規模に平面を区分した。
簡易リノベーション範囲は、玄関土間を挟んだ離れのような区画とし、まもなく家を出ていくであろう子供達の為の部屋とした。壁は部分的に日本の伝統色である芥子色や岩井茶で塗装を施し、色の強い既存内装と調和させた。
フルリノベーション範囲は、使いやすく間取りを大幅に変える必要のある水廻り区画とし、内装や設備は性能を重視しながら既製品を選定している。
部分リノベーション範囲は、居間・食堂・主寝室の主要室とし、既存下地を生かす事で、造作工事の費用割合を増やし、ディテールや素材にこだわった。全体がワンルーム空間となっており、天井の高さの緩急により、用途に合わせた居場所を設えた。
このように、それぞれの工事規模と空間の用途や機能、将来的な変化と紐づけることで、予算と空間の質のバランスをとっている。
採光の問題については、鏡による光の反射を利用して解決を試みた。
窓に対して45度となるように、ハの字に2枚の鏡を設置することで、光を暗い空間まで届けている。
また、斜めの鏡は、視線の広がりも生み出し、迷宮のような不思議な空間を演出してくれた。
工事規模の違いで生まれる既存内装と新設内装との取り合いにより、過去と現在が融和したインテリアとなった。築年数のある住戸ならではの、表情豊かな住まいになったのではないだろうか。
■建築概要
名称:小石川の家(House in Koishikawa)
設計:鈴木雅也建築設計事務所 担当/鈴木雅也、細川祐人
施工:株式会社 参創ハウテック
石工事:矢橋大理石 株式会社
所在地:東京都文京区
主用途:専用住宅
計画種別:改修
施工面積:111.57㎡
構造:鉄筋コンクリート造
設計期間:2025年1月〜2025年4月
施工期間:2025年5月〜2025年9月
竣工:2025年9月
写真:鈴木研一
| 種別 | 使用箇所 | 商品名(メーカー名) |
|---|---|---|
| 内装・床 | 広間、小間、食堂、主寝室 床 | |
| 内装・壁 | 居間、小間、食堂 壁 | AEP塗装 寒冷石1厘骨材入り 刷毛塗り |
| 内装・天井 | 居間、小間、食堂 天井 | AEP塗装 寒冷石1厘骨材入り 刷毛塗り |
| 内装・壁 | 居間 一部壁 | |
| 内装・天井 | 主寝室 一部天井 | |
| 内装・床 | 玄関土間 床 | バサルト 水磨き 20t(矢橋大理石) |
| 内装・壁 | 便所、洗面脱衣 一部壁 | |
| 内装・床 | 台所、便所、洗面脱衣 床 | |
| 内装・床 | 子供部屋 床 | 既存フローリング |
| 内装・壁 | 子供部屋 壁 | 既存クロス剥がしの上、ビニルクロス1000番台 |
| 内装・造作家具 | 小間 ベンチ | |
| 内装・造作家具 | 玄関 下足棚天板 | |
| 内装・照明 | 照明器具 |
※企業様による建材情報についてのご意見や「PR」のご相談はこちらから
※この情報は弊サイトや設計者が建材の性能等を保証するものではありません
This project involved the renovation of a single unit in a 50-year-old apartment building in Tokyo. With a floor area of over 100m2 and a long north-south floor plan, which corresponds to the width of the building, posed challenges in terms of construction costs and lighting.
The floor plan was therefore divided into three construction scales: a simple renovation (interior refinishing), a partial renovation (fittings making use of the existing foundation), and a full renovation.
The simple renovation area was a detached-style section flanked by a dirt floor entrance, intended as a room for the children who would soon be leaving home. Parts of the walls were painted in traditional Japanese colors such as mustard green and Iwai tea to harmonize with the existing, more vibrant interior.
The full renovation area was the bathroom area, which required significant changes to the layout to make it more user-friendly. Pre-existing products were selected for the interior and fixtures, with an emphasis on performance.
The partial renovation focused on the main rooms of the living room, dining room, and master bedroom. By utilizing the existing foundation, the proportion of the cost for fitting out work was increased, with a focus on details and materials. The entire space is a single-room apartment, with varying ceiling heights creating spaces suited to different uses.
By linking the scale of each renovation to the space’s purpose, function, and future changes, the project balances budget and spatial quality.
The issue of lighting was resolved by utilizing the reflection of light from mirrors. Two mirrors were installed at a 45-degree angle to the window, allowing light to reach even dark spaces.
The angled mirrors also widen the line of sight, creating a mysterious, labyrinthine atmosphere.
The conflict between the existing and new interiors, created by the differences in the scale of the renovation, resulted in an interior that blends past and present. The result is a home with a rich character that only a dwelling with its age can offer.


