SNARK Inc.による、群馬の店舗「Think桐生」。駅構内のビアスタンド併設の売店。“地域活性化の新たな拠点”を目指し、エリアを想起させる素材を用いて文化や風景の“アイコン化”を実施。時間帯での利用客の変化に応える為にカウンターとなる可動什器も考案サイン photo©新澤一平
SNARK Inc.による、群馬の店舗「Think桐生」。駅構内のビアスタンド併設の売店。“地域活性化の新たな拠点”を目指し、エリアを想起させる素材を用いて文化や風景の“アイコン化”を実施。時間帯での利用客の変化に応える為にカウンターとなる可動什器も考案ビアスタンド、カウンターの詳細 photo©新澤一平
SNARK Inc.による、群馬の店舗「Think桐生」。駅構内のビアスタンド併設の売店。“地域活性化の新たな拠点”を目指し、エリアを想起させる素材を用いて文化や風景の“アイコン化”を実施。時間帯での利用客の変化に応える為にカウンターとなる可動什器も考案駅待合所から見る。 photo©新澤一平
小阿瀬直+金子奨太 / SNARK Inc.が設計した、群馬の店舗「Think桐生」です。
駅構内のビアスタンド併設の売店の計画です。建築家は、“地域活性化の新たな拠点”を目指し、エリアを想起させる素材を用いて文化や風景の“アイコン化”を実施しました。また、時間帯での利用客の変化に応える為にカウンターとなる可動什器も考案しました。店舗の場所はこちら(Google Map)。
東武鉄道桐生線の新桐生駅構内にあるビアスタンド併設の売店である。
桐生の玄関口として地域活性化の新しい拠点にすると共に、時間帯によって変わる利用客に対応できるような設えが求められた。
特産品と地ビールの販売スペースに加え、昼の弁当販売にも対応できるよう、可動什器によってカウンターを増設できる計画とした。
染色職人に染めてもらったカウンターの天板や、のこぎり屋根工場の外壁に使われるスレート波板の棚板など、織物産業で栄えた桐生の文化や風景をデザインに落とし込み売店のアイコンとした。
以下の写真はクリックで拡大します

SNARK Inc.による、群馬の店舗「Think桐生」。駅構内のビアスタンド併設の売店。“地域活性化の新たな拠点”を目指し、エリアを想起させる素材を用いて文化や風景の“アイコン化”を実施。時間帯での利用客の変化に応える為にカウンターとなる可動什器も考案駅待合所から見る。 photo©新澤一平

SNARK Inc.による、群馬の店舗「Think桐生」。駅構内のビアスタンド併設の売店。“地域活性化の新たな拠点”を目指し、エリアを想起させる素材を用いて文化や風景の“アイコン化”を実施。時間帯での利用客の変化に応える為にカウンターとなる可動什器も考案駅待合所から見る。(稼動什器を表に出した状態) photo©新澤一平

SNARK Inc.による、群馬の店舗「Think桐生」。駅構内のビアスタンド併設の売店。“地域活性化の新たな拠点”を目指し、エリアを想起させる素材を用いて文化や風景の“アイコン化”を実施。時間帯での利用客の変化に応える為にカウンターとなる可動什器も考案売場、什器の詳細 photo©新澤一平

SNARK Inc.による、群馬の店舗「Think桐生」。駅構内のビアスタンド併設の売店。“地域活性化の新たな拠点”を目指し、エリアを想起させる素材を用いて文化や風景の“アイコン化”を実施。時間帯での利用客の変化に応える為にカウンターとなる可動什器も考案ビアスタンド、カウンターの詳細 photo©新澤一平

SNARK Inc.による、群馬の店舗「Think桐生」。駅構内のビアスタンド併設の売店。“地域活性化の新たな拠点”を目指し、エリアを想起させる素材を用いて文化や風景の“アイコン化”を実施。時間帯での利用客の変化に応える為にカウンターとなる可動什器も考案サイン photo©新澤一平

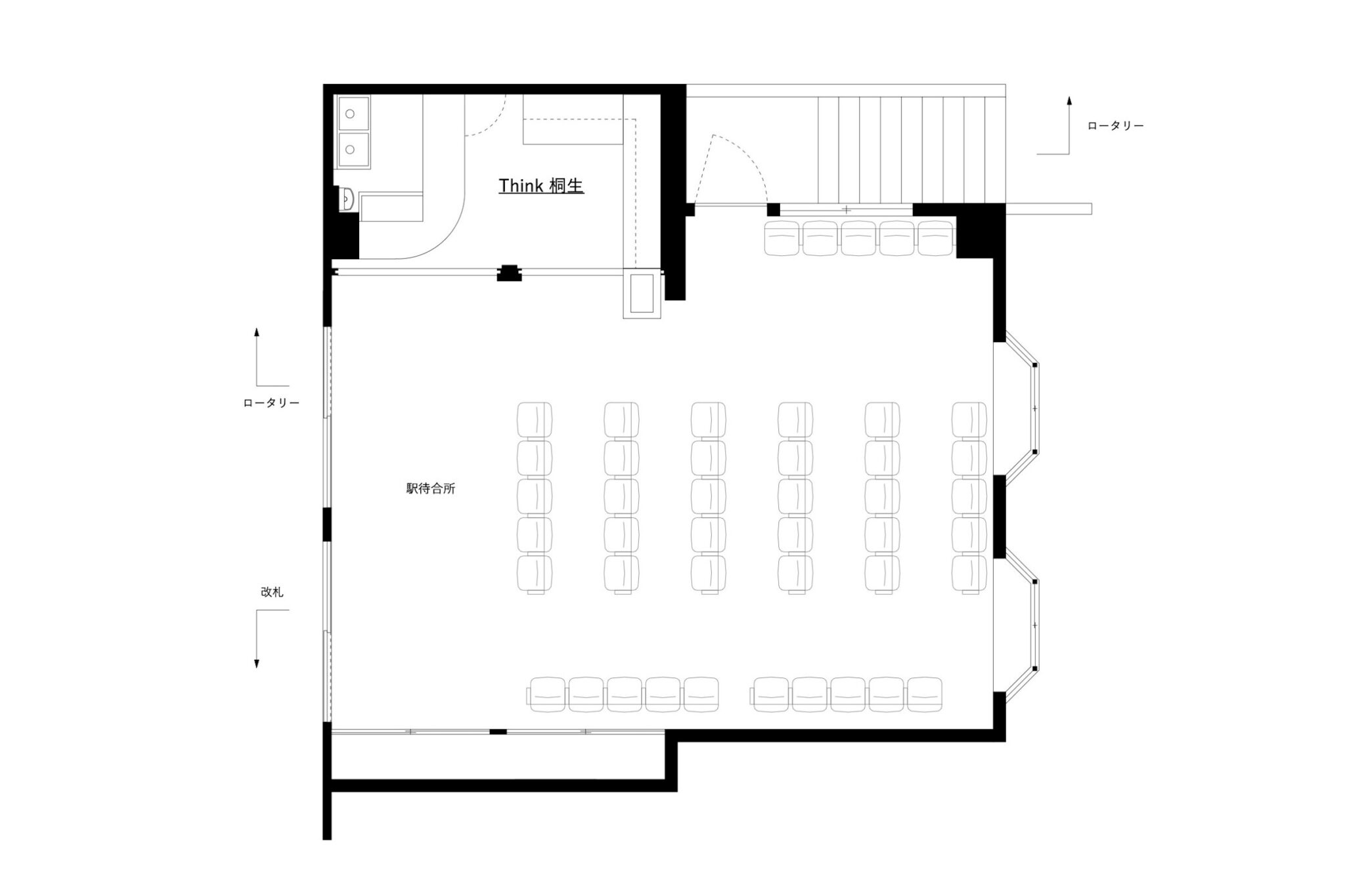
SNARK Inc.による、群馬の店舗「Think桐生」。駅構内のビアスタンド併設の売店。“地域活性化の新たな拠点”を目指し、エリアを想起させる素材を用いて文化や風景の“アイコン化”を実施。時間帯での利用客の変化に応える為にカウンターとなる可動什器も考案平面図(駅待合所を含む) image©SNARK Inc.

SNARK Inc.による、群馬の店舗「Think桐生」。駅構内のビアスタンド併設の売店。“地域活性化の新たな拠点”を目指し、エリアを想起させる素材を用いて文化や風景の“アイコン化”を実施。時間帯での利用客の変化に応える為にカウンターとなる可動什器も考案平面図(通常時) image©SNARK Inc.

SNARK Inc.による、群馬の店舗「Think桐生」。駅構内のビアスタンド併設の売店。“地域活性化の新たな拠点”を目指し、エリアを想起させる素材を用いて文化や風景の“アイコン化”を実施。時間帯での利用客の変化に応える為にカウンターとなる可動什器も考案平面図(昼時) image©SNARK Inc.
以下、建築家によるテキストです。
東武鉄道桐生線の新桐生駅構内にあるビアスタンド併設の売店である。
桐生の玄関口として地域活性化の新しい拠点にすると共に、時間帯によって変わる利用客に対応できるような設えが求められた。
特産品と地ビールの販売スペースに加え、昼の弁当販売にも対応できるよう、可動什器によってカウンターを増設できる計画とした。
染色職人に染めてもらったカウンターの天板や、のこぎり屋根工場の外壁に使われるスレート波板の棚板など、織物産業で栄えた桐生の文化や風景をデザインに落とし込み売店のアイコンとした。
(SNARK Inc. 金子奨太)
■建築概要
題名:Think桐生
所在地:群馬県桐生市
主用途:店舗
設計:SNARK Inc. 担当/小阿瀬直、金子奨太
施工:吉田組
スチール: gambit
モールテックス: Roccadia design and works、 桐染
サイン:NJ SIGN
延床面積:8.9㎡
設計:2021年11月~2023年4月
工事:2023年5月~2023年6月
竣工:2023年6月
写真:新澤一平