
SHARE 桔川卓也 / NASCAによる、さいたま市の「西浦和幼稚園」。住宅に囲まれた敷地に建つ園の建替計画。感性と思い出に長く刻まれる存在を目指し、子どもの絵を参照して“大胆で抽象的なデザイン”を志向。雲をイメージした屋根と周囲の戸建と調和するリズムを備えた建築を考案




桔川卓也 / NASCAが設計した、埼玉・さいたま市の「認定こども園 こどものにわ 西浦和幼稚園」です。
住宅に囲まれた敷地に建つ園の建替計画です。建築家は、感性と思い出に長く刻まれる存在を目指し、子どもの絵を参照して“大胆で抽象的なデザイン”を志向しました。そして、雲をイメージした屋根と周囲の戸建と調和するリズムを備えた建築を考案しました。
埼玉県さいたま市の住宅地に位置する認定こども園の計画である。
1966年、周辺がまだ田園風景だった頃に開設された幼稚園は,園庭を中心に園の関係者の住居が隣接して建ち、まるで園庭を遊び回る子どもたちを見守るような「地縁型のコミュニティのかたち」を彷彿とさせる光景だった。
長い歴史の中で数々の増改築を経てきたこの幼稚園は、施設の老朽化に伴い、「幼保連携型認定こども園」への建て替えを決定した。
私たちの多くが幼少期に保育施設で長い時間を過ごすにもかかわらず、その記憶は成長するにつれて薄れてしまう。そこで、新たな園舎は子どもたちの感性や思い出が長く刻まれる空間を目指した。
0-5歳までの子どもたちの記憶に残る抽象と具象を模索するため、子どもたちが描く絵を参考にした。
握りしめたクレヨンで描かれた絵からは、「丸・三角・四角」といった分かりやすい形や「強い色」で物質を捉えていることが分かった。そこで、建築の形状では子どもたちが大胆に描く絵のように抽象的で印象的なデザインを追求した。その結果、雲をイメージした厚みのある穏やかな屋根と、園庭と室内を優しく包み込む空間が生まれた。
新たな園舎の配置は、隣接する住居のリズムに調和させ、園庭を囲むような一体感のある空間構成を意図した。
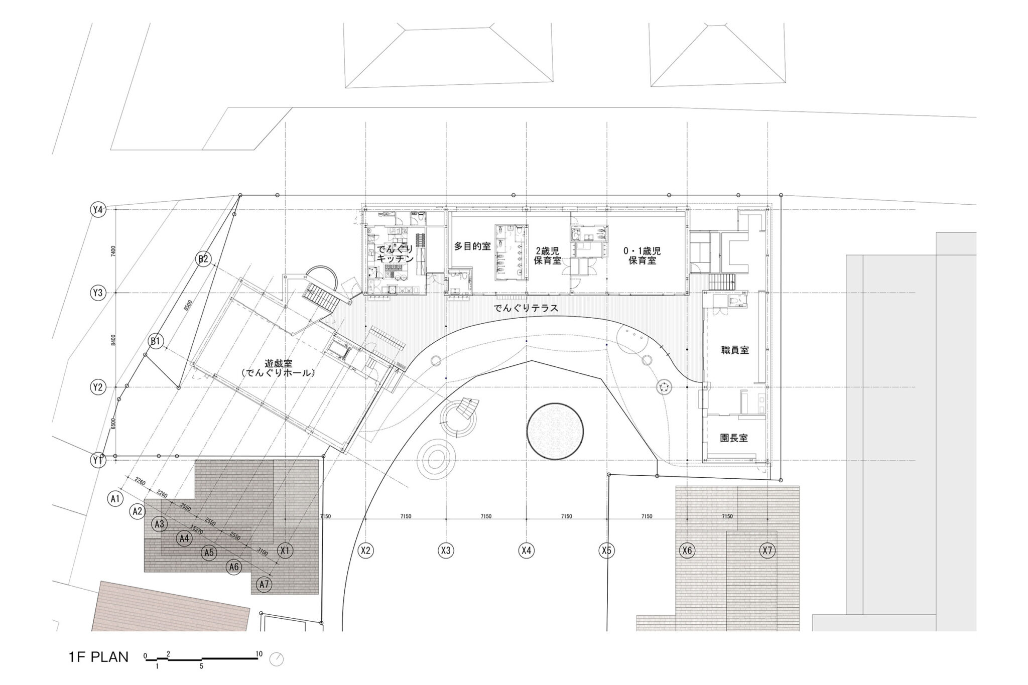
縁側空間となる「でんぐりテラス」は、園庭と保育室を繋ぐ役割を果たし、すべての部屋が外部から直接アクセスできる設計とした。特徴的なヴォールト屋根は直線的な中心軸を生み出し、テラスの平面形状は園庭の中心を基点とした円弧の連続で描くことで、どこにいても園庭と繋がる求心性のある居場所をつくり出すと共に、室内から外部への広がりを生む視覚効果も実現した。
屋根は園庭に対し自由曲線で切り取った上、ヴォールトごとに円弧状に張り出させることで、室内側への求心性を持った設計とした。
抽象的な屋根の形がおおらかさや囲まれた安心感を生む一方、赤く塗った直線状の梁と柱は空間の基軸となり、屋根の下に分節された領域を生み出す。これらの具象的なエレメントは、さまざまな色や構成、マテリアルによって存在感を際立たせている。
以下の写真はクリックで拡大します


































以下、建築家によるテキストです。
埼玉県さいたま市の住宅地に位置する認定こども園の計画である。
1966年、周辺がまだ田園風景だった頃に開設された幼稚園は,園庭を中心に園の関係者の住居が隣接して建ち、まるで園庭を遊び回る子どもたちを見守るような「地縁型のコミュニティのかたち」を彷彿とさせる光景だった。
長い歴史の中で数々の増改築を経てきたこの幼稚園は、施設の老朽化に伴い、「幼保連携型認定こども園」への建て替えを決定した。
私たちの多くが幼少期に保育施設で長い時間を過ごすにもかかわらず、その記憶は成長するにつれて薄れてしまう。そこで、新たな園舎は子どもたちの感性や思い出が長く刻まれる空間を目指した。
0-5歳までの子どもたちの記憶に残る抽象と具象を模索するため、子どもたちが描く絵を参考にした。
握りしめたクレヨンで描かれた絵からは、「丸・三角・四角」といった分かりやすい形や「強い色」で物質を捉えていることが分かった。そこで、建築の形状では子どもたちが大胆に描く絵のように抽象的で印象的なデザインを追求した。その結果、雲をイメージした厚みのある穏やかな屋根と、園庭と室内を優しく包み込む空間が生まれた。
新たな園舎の配置は、隣接する住居のリズムに調和させ、園庭を囲むような一体感のある空間構成を意図した。
縁側空間となる「でんぐりテラス」は、園庭と保育室を繋ぐ役割を果たし、すべての部屋が外部から直接アクセスできる設計とした。
特徴的なヴォールト屋根は直線的な中心軸を生み出し、テラスの平面形状は園庭の中心を基点とした円弧の連続で描くことで、どこにいても園庭と繋がる求心性のある居場所をつくり出すと共に、室内から外部への広がりを生む視覚効果も実現した。
屋根は園庭に対し自由曲線で切り取った上、ヴォールトごとに円弧状に張り出させることで、室内側への求心性を持った設計とした。
抽象的な屋根の形がおおらかさや囲まれた安心感を生む一方、赤く塗った直線状の梁と柱は空間の基軸となり、屋根の下に分節された領域を生み出す。
これらの具象的なエレメントは、さまざまな色や構成、マテリアルによって存在感を際立たせている。
このようにして生み出した半屋外の多層的な空間が,園児ひとりひとりがお気に入りの場所を見つけ,環境を意識しながら成長する場となり,いつまでも記憶に残り続けることを願っている。
平面計画・断面計画
天候に関わらず屋外で遊べる空間は、子どもたちの日常にとって欠かせない要素である。そのため、半屋外のでんぐりテラスは、近年の気候変動を考慮し、深い軒で日差しを遮る設計とした。
テラス床面に反射した光は室内の天井を柔らかく照らし、照明エネルギーや冷房負荷を抑え、省エネルギー化を促進した。さらに、近年の豪雨にも対応し、雨の侵入を防ぐ設計を採用した。夏至の太陽高度と降雨角度を30度に設定し、持続的な遮蔽効果を得ることを目指した。
その結果、アーチ形状の断面が上部で広がり、ベースボールキャップの「つば」のような凸面のフォルムが生まれた。屋根の縁を凸側で切り取ることで、囲まれた安心感を保ちつつ、園庭と地続きの広がりを感じさせる、多層的で中心性のある空間を実現した。
このテラスは縁側のような役割を果たし、異学年の交流を促す。テラス先端には210mmの段差を設け、子どもたちが列になって腰かけ、園庭を眺められるスペースとした。幼稚園部の保育室は各学年2部屋を用意し、隣接する部屋を家具で緩やかに仕切ることで学年間の交流を促した。
遊戯室は2層分の天井高を確保し、放課後の体操やスポーツ教室にも対応可能とした。舞台後方の窓は全開放可能な折戸とし、園庭との連動性を重視した。室内の舞台だけでなく、園庭側の築山から屋外劇場のように舞台を眺める使い方も想定した。夏祭りやイベントでは、この舞台が祝祭的な場となることを願った。
構造計画
2階建ての鉄骨造の架構の上に円弧状のRC屋根が連続して架かるブレース付きラーメン構造を採用した。地震力のほとんどをブレースに負担させ、中庭に面する構面を除いたコ型の配置とすることで建物全体の偏心を抑えることにより、柱のサイズを全体的にH-200×200以下まで小さくすることができた。
外部に現れる柱は直径120mmの丸柱とし、主に円弧屋根の先端を支持している。
2階のテラスは4m程の片持ち架構により構成されている。片持ちの始端に相当する保育室の範囲についてもあえて柱を設けず、スパンを大きくすることで鉛直荷重のバランスをとり、テラスの先端に過度な鉛直変形が生じないように工夫した。
屋根は厚さ180mm厚の円弧状の在来RCスラブで構成されている。
ブレース構面における大梁と鉛直ブレースによりスラストを負担することで、最大限のアーチ効果を発揮することができ、薄いスラブ厚にも関わらず大スパンの実現が可能となった。
アーチ屋根の谷に位置する軒レベルの梁の座屈補剛は上フランジに設けた頭付きスタッドと屋根スラブによるものとし、直交方向の小梁を省略している。これにより、2階からも屋根のアーチ架構を視認できる魅力的な空間を実現した。
サイン計画
園のテーマ「ホップ、ステップ、でんぐり」に込められた「ジャンプだけでなく、つまずきや転がる経験も大切に」というメッセージを基に、ロゴとサインをデザインした。文字のパーツをクラスアイコンの野菜にみたて、それらがわらわら、ひょこひょこと集ってくる。そんな動きの感じられる楽しげなロゴとなるようデザインした。
また、そのロゴをベースに文字の一部を途切れさせたり、傾けたり、「でんぐり」させたオリジナルのフォントとピクトグラムを制作した。
2階の各クラスに設けた突き出しサインはそれぞれ近しく並びあっているが、それでも見えるようにと形状を変え、ずらすことで隣の部屋のサインがはみ出して見えてくるような工夫をした。途切れ/はみ出し/ずれ/かさなりといった「でんぐり」した表現からおおらかさや豊かさが感じられるようなサインとなることを目指した。
こどもたちが、この形の違いに気づき、そのひとつひとつの意味と良さを気づき、学びへと昇華させていくことを願っている。
照明計画
1階の0-2歳児保育室ではシンプルなライン型照明を並べてフラットな光環境を、2階の3-5歳児保育室ではアーチ天井の両端から伸びるラインの光が天井から跳ね返り、柔らかな間接光に満たされている。
1、2階共に保育室内にはハイサイド窓が設け、ハイサイド窓とテラスから差し込む自然光の移ろいで時間や天気、季節を感じさせ、人工光で保育室内の機能的な明るさを作っている。上下階で照明手法は異なるが、光のラインを揃えることで空間に方向性をつくり、外へ開けた空間をより強調している。
お迎えが多くなる夕方の時間帯にかけては、2階の保育室内の間接光がテラスへと滲み出し、連続するアーチ天井が夕空に浮かび上がることで親子の記憶に残る建物として光で演出している。
発表会が行われる遊戯室では、反響版として構成された斜めの連続する天井にライン照明を仕込み、天井デザインを演出しながら空間全体に十分な明るさを作っている。
その他、こどもが利用する部屋には丸形、大人が利用する部屋には角形のブラケット照明を入口に設けている。言葉や文字よりも認識しやすい形の違いで、未就学児にもわかりやすい光のアイコンを部屋ごとに使い分けた。
多様な領域認識が公共的な居場所をつくる
一般的には「洗練されたデザイン」とは、要素を統一しながら、ノイズを排除する美学が長く根付いているように思う。近年、多様性を認めるインクルーシブなあり方が注目されるなかで、ノイズを排除するような考えでは建築デザインとしての強度を生むことができないのではないかと考えた。
そこで平均化のプロセスではなく、それぞれのエレメントが「自律性」を持ち合わせたまま、共存できる構成美を追求した。「抽象」として存在するRC屋根は、おおらかさを生み出す。
屋根のおおらかさとは対比的に、「具象」として現れる直線的にグリッド配列された赤い構造フレームは、合理的な平面計画によって生み出され、屋根の下に区切られた領域を生み出す。
直線的な鉄骨フレームとヴォールトのRCスラブの対比、引いては直線と曲線の対比が、どちらが主というわけでもなく共存している状況が空間の許容力に繋がると考えている。
共存を受け入れる空間は、過ごし方や使い方の選択肢を増やし、ヒトやコトにとっての居心地の良さを与えてくれるだろう。このように普段隠してしまいがちな、構造フレームやその他の要素を心地の良いノイズとして差し込むことによって、多様な領域認識として公共的な居場所へ昇華させている。
■建築概要
作品名:認定こども園 こどものにわ 西浦和幼稚園
所在地:埼玉県さいたま市南区
主要用途:幼保連携型認定こども園
建主:西浦和学園 理事長 熊谷万里子
建築:桔川卓也 / NASCA 担当/桔川卓也、木村寧生
構造:yAt構造設計事務所 担当/中畠敦広
設備:環境エンジニアリング 担当/平井孝典、高山浩
照明:ModuleX 担当/遠矢亜美
サイン:寺澤事務所・工房 担当/寺澤知実、寺澤由樹
プロジェクトデザイン:AXIS 担当/遠藤えりか
施工:丸和工業 担当/渡辺裕一、横山聡、成塚章広、飛鳥川翼
空調:ミヤザワ工業
衛生:ミヤザワ工業
電気:深井電気
敷地面積:2,218.51㎡
建築面積:856.66㎡
延床面積:1,299.64㎡
1階:662.32㎡
2階:637.32㎡
建蔽率:38.61%(許容 60%)
容積率:58.57%(許容 200%)
階数:地上2階
最高高:7,702mm
軒高:7,687mm
階高:3450mm
天井高:2階保育室 2,920mm、1階保育室 2,350mm、遊戯室 6,500mm
主なスパン:7,150mm×7,400mm、8,400mm、6,500mm
地域地区:都市計画区域内、高度地区(15m地区)、景観誘導地区(市街化区域)、22条区域
道路幅員:南7.8m
駐車台数:大型車1台
主体構造:鉄骨造
杭・基礎:PHC杭
設計期間:2022年7月~2023年3月
施工期間:2023年7月~2024年8月
写真:淺川敏、小椋裕一
| 種別 | 使用箇所 | 商品名(メーカー名) |
|---|---|---|
| 外装・屋根 | 屋根 | ウレタン塗膜防水 X-2工法 OTコートA ライトグレー D-12 シート防水 SI-M2工法 ビュートップU20 V-12 |
| 外装・床 | でんぐりテラス 床 | 傾斜プレート+マルチポスト@450+木根太30×90@500+セランガンバツ材 t=20mm [一部既存建物の青森ヒバを転用] |
| 外装・壁 | 外壁 | ALC [タイルベース] |
| 外装・壁 | でんぐりテラス 壁 | 透湿防水シート+木毛セメント板 t=15mm+AEP [15-70D] |
| 外装・建具 | 開口部 | |
| 外装・その他 | でんぐりテラス 天井 | 1階:珪酸カルシウム板t=6+6mmの上AEP |
| 外装・その他 | でんぐりテラス 柱梁 | 耐火塗装 |
| 内装・床 | 主要箇所 床 | フリーフロアSDG同等品 H165.5+パーティクルボード t=20mm+構造用合板 t=12mm の上 オーク複合フローリング t12 |
| 内装・壁 | 保育室 壁 | PB t=9.5mm+シナ合板 t=12mmの上 OSCL塗装 |
| 内装・壁 | 遊戯室 壁 | PB t=9.5mm+フレキシブルボード t=6mm 接着貼OSCL塗装 [マホガニー] |
| 内装・天井 | 1階保育室 天井 | PB t=9.5mmの上岩綿吸音板 t=12mm [スターダスト4柄] |
| 内装・天井 | 2階保育室 天井 | コンクリートの上セラミタイトエコG t=30mm吹付仕上げ(エスケー化研) |
| 内装・天井 | 遊戯室 床 | PB t=9.5mmの上EP |
| 外構・床 | 外構 | コンクリート刷毛引き |
※企業様による建材情報についてのご意見や「PR」のご相談はこちらから
※この情報は弊サイトや設計者が建材の性能等を保証するものではありません
