architecturephoto®

  • 特集記事
  • 注目情報
  • タグ
  • 建築
  • アート
  • カルチャー
  • デザイン
  • ファッション
  • 動画
  • 展覧会
  • コンペ
  • 書籍
  • 建築求人
  • すべてのタグ

建築求人情報

Loading...
2025.10.02Thu
2025.10.01Wed
2025.10.03Fri
室宏アトリエによる、大分市の「上野丘の改修」。南北に“景色と風が抜ける”住戸を改修した設計者の自邸。特徴を活かした計画を求め、中央に配置した“角度を45°振った箱”で全体を緩やかに分ける構成を考案。自身の手で解体して“空間を掌握”してから設計
photo©Yasu Kojima

SHARE 室宏アトリエによる、大分市の「上野丘の改修」。南北に“景色と風が抜ける”住戸を改修した設計者の自邸。特徴を活かした計画を求め、中央に配置した“角度を45°振った箱”で全体を緩やかに分ける構成を考案。自身の手で解体して“空間を掌握”してから設計

architecture|feature
室宏原大地建材(内装・床)建材(内装・壁)建材(内装・天井)図面あり小島康敬住戸リノベーション大分
室宏アトリエによる、大分市の「上野丘の改修」。南北に“景色と風が抜ける”住戸を改修した設計者の自邸。特徴を活かした計画を求め、中央に配置した“角度を45°振った箱”で全体を緩やかに分ける構成を考案。自身の手で解体して“空間を掌握”してから設計仕事場、北の開口部側を見る。 photo©原大地ケンチク設計室
室宏アトリエによる、大分市の「上野丘の改修」。南北に“景色と風が抜ける”住戸を改修した設計者の自邸。特徴を活かした計画を求め、中央に配置した“角度を45°振った箱”で全体を緩やかに分ける構成を考案。自身の手で解体して“空間を掌握”してから設計リビングからダイニングを見る。 photo©Yasu Kojima
室宏アトリエによる、大分市の「上野丘の改修」。南北に“景色と風が抜ける”住戸を改修した設計者の自邸。特徴を活かした計画を求め、中央に配置した“角度を45°振った箱”で全体を緩やかに分ける構成を考案。自身の手で解体して“空間を掌握”してから設計リビング、南の開口部側を見る。 photo©Yasu Kojima

室宏アトリエが設計した、大分市の「上野丘の改修」です。
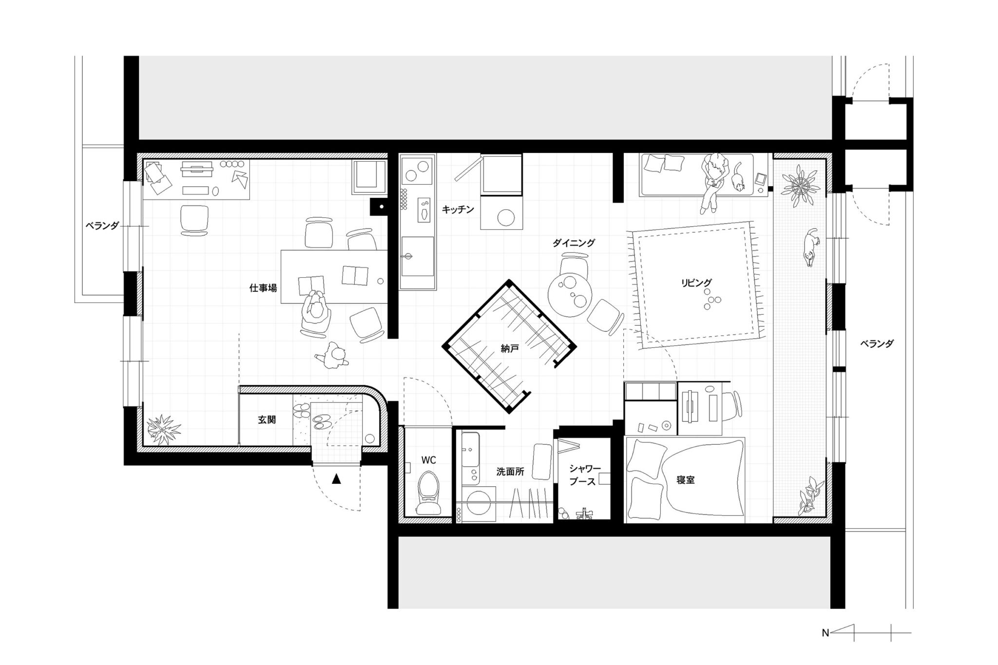
南北に“景色と風が抜ける”住戸を改修した設計者の自邸です。建築家は、特徴を活かした計画を求め、中央に配置した“角度を45°振った箱”で全体を緩やかに分ける構成を考案しました。また、自身の手で解体して“空間を掌握”してから設計しました。

大分県大分市に建つ築37年の分譲マンション一室の改修計画である。

夫婦と猫3匹が快適に暮らすため設計者の自邸として計画された。北側傾斜の敷地を造成して建てられた5階建て壁式鉄筋コンクリート構造のマンションは、北側に大分市中心市街地、南側に上野丘の森を望む立地である。

建築家によるテキストより

はじめに4階の一室の解体を自身で行う際に、南北に景色が抜けて心地良い風も抜けていくことに気が付き、この風を活かすことを計画の主軸とした。

計画においては設計者の仕事場を設ける必要があった。そのため、角度を45°振った箱を中央に配置し、仕事場と居住空間を緩やかに分けている。斜めの箱は風を受け流しながら、視線を遮る機能を持たせている。この箱をきっかけに高さを抑えた箱の家具を複数配置し、猫たちの運動を促す立体的で回遊性のある構成とした。

建築家によるテキストより

さらに無断熱のRC造ゆえに温熱環境の改善を試みている。外部に面する壁・天井には断熱材を設け、既存サッシには内窓を設置した。熱を通しやすい防火鋼製建具の玄関ドアは風除室として閉じることで、熱が仕事場へ伝わらないようにした。

また、解体だけではなくシナランバーの家具、壁・天井・木部の塗装、一輪挿しの花器など設計者自らが手を動かしながらつくっている。リノベーションにおいて対象の室内は、新築の敷地と同義であり、解体を自ら行うことは敷地を読み取ることに似ている。机上の設計だけではなく、手を動かすことで空間の掌握ができたと感じている。

建築家によるテキストより

以下の写真はクリックで拡大します

室宏アトリエによる、大分市の「上野丘の改修」。南北に“景色と風が抜ける”住戸を改修した設計者の自邸。特徴を活かした計画を求め、中央に配置した“角度を45°振った箱”で全体を緩やかに分ける構成を考案。自身の手で解体して“空間を掌握”してから設計玄関 photo©原大地ケンチク設計室
室宏アトリエによる、大分市の「上野丘の改修」。南北に“景色と風が抜ける”住戸を改修した設計者の自邸。特徴を活かした計画を求め、中央に配置した“角度を45°振った箱”で全体を緩やかに分ける構成を考案。自身の手で解体して“空間を掌握”してから設計玄関から仕事場側を見る。 photo©原大地ケンチク設計室
室宏アトリエによる、大分市の「上野丘の改修」。南北に“景色と風が抜ける”住戸を改修した設計者の自邸。特徴を活かした計画を求め、中央に配置した“角度を45°振った箱”で全体を緩やかに分ける構成を考案。自身の手で解体して“空間を掌握”してから設計仕事場、北の開口部側を見る。 photo©原大地ケンチク設計室
室宏アトリエによる、大分市の「上野丘の改修」。南北に“景色と風が抜ける”住戸を改修した設計者の自邸。特徴を活かした計画を求め、中央に配置した“角度を45°振った箱”で全体を緩やかに分ける構成を考案。自身の手で解体して“空間を掌握”してから設計仕事場、玄関側を見る。 photo©Yasu Kojima
室宏アトリエによる、大分市の「上野丘の改修」。南北に“景色と風が抜ける”住戸を改修した設計者の自邸。特徴を活かした計画を求め、中央に配置した“角度を45°振った箱”で全体を緩やかに分ける構成を考案。自身の手で解体して“空間を掌握”してから設計仕事場、キッチン側を見る。 photo©Yasu Kojima
室宏アトリエによる、大分市の「上野丘の改修」。南北に“景色と風が抜ける”住戸を改修した設計者の自邸。特徴を活かした計画を求め、中央に配置した“角度を45°振った箱”で全体を緩やかに分ける構成を考案。自身の手で解体して“空間を掌握”してから設計仕事場から納戸を見る。 photo©原大地ケンチク設計室
室宏アトリエによる、大分市の「上野丘の改修」。南北に“景色と風が抜ける”住戸を改修した設計者の自邸。特徴を活かした計画を求め、中央に配置した“角度を45°振った箱”で全体を緩やかに分ける構成を考案。自身の手で解体して“空間を掌握”してから設計キッチン photo©原大地ケンチク設計室
室宏アトリエによる、大分市の「上野丘の改修」。南北に“景色と風が抜ける”住戸を改修した設計者の自邸。特徴を活かした計画を求め、中央に配置した“角度を45°振った箱”で全体を緩やかに分ける構成を考案。自身の手で解体して“空間を掌握”してから設計ダイニング photo©原大地ケンチク設計室
室宏アトリエによる、大分市の「上野丘の改修」。南北に“景色と風が抜ける”住戸を改修した設計者の自邸。特徴を活かした計画を求め、中央に配置した“角度を45°振った箱”で全体を緩やかに分ける構成を考案。自身の手で解体して“空間を掌握”してから設計リビング、南の開口部側を見る。 photo©Yasu Kojima
室宏アトリエによる、大分市の「上野丘の改修」。南北に“景色と風が抜ける”住戸を改修した設計者の自邸。特徴を活かした計画を求め、中央に配置した“角度を45°振った箱”で全体を緩やかに分ける構成を考案。自身の手で解体して“空間を掌握”してから設計リビング photo©Yasu Kojima
室宏アトリエによる、大分市の「上野丘の改修」。南北に“景色と風が抜ける”住戸を改修した設計者の自邸。特徴を活かした計画を求め、中央に配置した“角度を45°振った箱”で全体を緩やかに分ける構成を考案。自身の手で解体して“空間を掌握”してから設計リビング photo©原大地ケンチク設計室
室宏アトリエによる、大分市の「上野丘の改修」。南北に“景色と風が抜ける”住戸を改修した設計者の自邸。特徴を活かした計画を求め、中央に配置した“角度を45°振った箱”で全体を緩やかに分ける構成を考案。自身の手で解体して“空間を掌握”してから設計リビングから寝室側を見る。 photo©Yasu Kojima
室宏アトリエによる、大分市の「上野丘の改修」。南北に“景色と風が抜ける”住戸を改修した設計者の自邸。特徴を活かした計画を求め、中央に配置した“角度を45°振った箱”で全体を緩やかに分ける構成を考案。自身の手で解体して“空間を掌握”してから設計リビングから寝室側を見る。 photo©Yasu Kojima
室宏アトリエによる、大分市の「上野丘の改修」。南北に“景色と風が抜ける”住戸を改修した設計者の自邸。特徴を活かした計画を求め、中央に配置した“角度を45°振った箱”で全体を緩やかに分ける構成を考案。自身の手で解体して“空間を掌握”してから設計リビングからダイニングを見る。 photo©Yasu Kojima
室宏アトリエによる、大分市の「上野丘の改修」。南北に“景色と風が抜ける”住戸を改修した設計者の自邸。特徴を活かした計画を求め、中央に配置した“角度を45°振った箱”で全体を緩やかに分ける構成を考案。自身の手で解体して“空間を掌握”してから設計洗面所から納戸側を見る。 photo©原大地ケンチク設計室
室宏アトリエによる、大分市の「上野丘の改修」。南北に“景色と風が抜ける”住戸を改修した設計者の自邸。特徴を活かした計画を求め、中央に配置した“角度を45°振った箱”で全体を緩やかに分ける構成を考案。自身の手で解体して“空間を掌握”してから設計納戸 photo©原大地ケンチク設計室
室宏アトリエによる、大分市の「上野丘の改修」。南北に“景色と風が抜ける”住戸を改修した設計者の自邸。特徴を活かした計画を求め、中央に配置した“角度を45°振った箱”で全体を緩やかに分ける構成を考案。自身の手で解体して“空間を掌握”してから設計天井・梁・壁の詳細 photo©原大地ケンチク設計室
室宏アトリエによる、大分市の「上野丘の改修」。南北に“景色と風が抜ける”住戸を改修した設計者の自邸。特徴を活かした計画を求め、中央に配置した“角度を45°振った箱”で全体を緩やかに分ける構成を考案。自身の手で解体して“空間を掌握”してから設計壁の詳細 photo©原大地ケンチク設計室
室宏アトリエによる、大分市の「上野丘の改修」。南北に“景色と風が抜ける”住戸を改修した設計者の自邸。特徴を活かした計画を求め、中央に配置した“角度を45°振った箱”で全体を緩やかに分ける構成を考案。自身の手で解体して“空間を掌握”してから設計柱の詳細 photo©原大地ケンチク設計室
室宏アトリエによる、大分市の「上野丘の改修」。南北に“景色と風が抜ける”住戸を改修した設計者の自邸。特徴を活かした計画を求め、中央に配置した“角度を45°振った箱”で全体を緩やかに分ける構成を考案。自身の手で解体して“空間を掌握”してから設計ダイニングとリビング、夜景 photo©原大地ケンチク設計室
室宏アトリエによる、大分市の「上野丘の改修」。南北に“景色と風が抜ける”住戸を改修した設計者の自邸。特徴を活かした計画を求め、中央に配置した“角度を45°振った箱”で全体を緩やかに分ける構成を考案。自身の手で解体して“空間を掌握”してから設計リビングからダイニングを見る。夜景 photo©原大地ケンチク設計室
室宏アトリエによる、大分市の「上野丘の改修」。南北に“景色と風が抜ける”住戸を改修した設計者の自邸。特徴を活かした計画を求め、中央に配置した“角度を45°振った箱”で全体を緩やかに分ける構成を考案。自身の手で解体して“空間を掌握”してから設計平面図 image©室宏アトリエ
室宏アトリエによる、大分市の「上野丘の改修」。南北に“景色と風が抜ける”住戸を改修した設計者の自邸。特徴を活かした計画を求め、中央に配置した“角度を45°振った箱”で全体を緩やかに分ける構成を考案。自身の手で解体して“空間を掌握”してから設計コンセプト image©室宏アトリエ
室宏アトリエによる、大分市の「上野丘の改修」。南北に“景色と風が抜ける”住戸を改修した設計者の自邸。特徴を活かした計画を求め、中央に配置した“角度を45°振った箱”で全体を緩やかに分ける構成を考案。自身の手で解体して“空間を掌握”してから設計既存写真 photo©室宏アトリエ
室宏アトリエによる、大分市の「上野丘の改修」。南北に“景色と風が抜ける”住戸を改修した設計者の自邸。特徴を活かした計画を求め、中央に配置した“角度を45°振った箱”で全体を緩やかに分ける構成を考案。自身の手で解体して“空間を掌握”してから設計既存写真 photo©室宏アトリエ

以下、建築家によるテキストです。


大分県大分市に建つ築37年の分譲マンション一室の改修計画である。

夫婦と猫3匹が快適に暮らすため設計者の自邸として計画された。北側傾斜の敷地を造成して建てられた5階建て壁式鉄筋コンクリート構造のマンションは、北側に大分市中心市街地、南側に上野丘の森を望む立地である。

はじめに4階の一室の解体を自身で行う際に、南北に景色が抜けて心地良い風も抜けていくことに気が付き、この風を活かすことを計画の主軸とした。

計画においては設計者の仕事場を設ける必要があった。そのため、角度を45°振った箱を中央に配置し、仕事場と居住空間を緩やかに分けている。斜めの箱は風を受け流しながら、視線を遮る機能を持たせている。この箱をきっかけに高さを抑えた箱の家具を複数配置し、猫たちの運動を促す立体的で回遊性のある構成とした。

さらに無断熱のRC造ゆえに温熱環境の改善を試みている。外部に面する壁・天井には断熱材を設け、既存サッシには内窓を設置した。熱を通しやすい防火鋼製建具の玄関ドアは風除室として閉じることで、熱が仕事場へ伝わらないようにした。

また、解体だけではなくシナランバーの家具、壁・天井・木部の塗装、一輪挿しの花器など設計者自らが手を動かしながらつくっている。リノベーションにおいて対象の室内は、新築の敷地と同義であり、解体を自ら行うことは敷地を読み取ることに似ている。机上の設計だけではなく、手を動かすことで空間の掌握ができたと感じている。

世帯数よりも遥かに多い住戸数がストックされる現社会において、リノベーションは社会問題の解決の手法である。
表面を新しくするだけではなく、空間のアップグレードを行うことが重要となる。本改修計画においては、空間の魅力的な特徴を増幅させ、温熱環境を改善させ、DIYにより継続されるアップグレードの可能性を残している。次の時代に空間を繋げ、暮らしを楽しむ住居空間として完成した。
(室宏 / 取材・文:伊藤憲吾)

■建築概要

題名:上野丘の改修
所在地:大分県大分市
用途:住宅
設計監理:室宏アトリエ
施工:株式会社是永ホーム
規模:5階建壁式鉄筋コンクリート構造(4階の1室)
占有面積:65.34㎡
設計期間:2023年12月
施工期間:2024年6月〜2024年7月
コンセプト文:伊藤憲吾建築設計事務所
写真:原大地ケンチク設計室、Yasu Kojima、室宏アトリエ

建材情報
種別使用箇所商品名(メーカー名)
内装・床玄関、仕事場、LDK、WC、洗面所、寝室 床

マチコV t=2(東リ)

内装・床リビング 床

ルーチェモザイクビアンコカララ t=10(アドヴァングループ)

内装・壁玄関、仕事場、リビング、WC、洗面所 壁

PBt=12.5 フェザーフィールローラー2回塗り(PLANET JAPAN)

内装・壁洗面所 壁

ファータ t=6(名古屋モザイク工業)

内装・天井玄関、仕事場、リビング、WC 天井

PBt=9.5 フェザーフィールローラー2回塗り(PLANET JAPAN)

※企業様による建材情報についてのご意見や「PR」のご相談はこちらから
※この情報は弊サイトや設計者が建材の性能等を保証するものではありません

あわせて読みたい

サムネイル:シブカワ・エダーアーキテクツによるオーストリア・ノイレンバッハの「ノイレングバッハ高校」
シブカワ・エダーアーキテクツによるオーストリア・ノイレンバッハの「ノイレングバッハ高校」
  • SHARE
室宏原大地建材(内装・床)建材(内装・壁)建材(内装・天井)図面あり小島康敬住戸リノベーション大分
2025.10.02 Thu 14:28
0
permalink

#小島康敬の関連記事

  • 2026.3.02Mon
    渡邉明弘建築設計事務所による、東京・杉並区の「Harport Suginami Sud」。築50年の共同住宅を再生する計画。複雑な諸問題を解決して“長く建物を使う”為に、“減量での耐震化”と“是正での遵法化”に加えて“事業計画に基づく長期融資”も実現。時間を経て得られる豊かさの補強も意識
  • 2025.5.16Fri
    axonometricによる、東京・中央区のオフィス「Creation Palette YAE」。約1,300㎡のワンフロアでの計画。多様と一体感を両立する“共創”の場として、皆で共有できる“象徴的な風景”がある空間を志向。間仕切り壁やデスク等の役割も担う“1本の帯”を全体に配する構成を考案
  • 2024.12.11Wed
    鹿内健+鹿内真沙子 / Sデザインファームによる、千葉の、設計者の自邸「増減の家」。コロナ禍以降の“豊かさとは?”を主題に計画。限られた条件での実現性も考慮し、“増による豊かさ”と“減による豊かさ”を両立させる建築を志向。高気密高断熱の内部空間に“外リビング”を付加する構成を考案
  • 2024.12.05Thu
    axonometricとNKS2 architectsの建築設計による、福岡市の「NOT A HOTEL FUKUOKA」。別荘としても利用可能な“分譲型ホテル”。“現代の多様な暮らし方”へ応答を意図し、異なるコンセプトで作られた客室を積み重ねる“立体的な街”の様な建築を考案。周辺環境との関係も考慮して量塊の細分化も行う
  • 2024.1.15Mon
    鹿内健+渡辺裕貴 / Sデザインファームによる、東京の「アウトドアルームのある家」。住宅街にある奥側の環境が良好な敷地。高気密高断熱と共に“自然の変化”の享受も求め、性能担保した内部空間と庭の間に“アウトドアルーム”を設ける構成を考案。“生き物としての感覚”を繋ぎ止める建築を作る
  • 2020.8.31Mon
    南木隆助のデザインとディレクションによる、東京・中央区銀座の、経済ニュースアプリを運営するNewsPicks社が開設したスペース「NewsPicks GINZA」
  • 2019.3.27Wed
    南木隆助による、山形・青柳の店舗「呼び継ぎのリノベーション」
  • view all
view all

#大分の関連記事

  • 2025.7.05Sat
    磯崎新による「旧大分県立大分図書館 / アートプラザ」(1966年竣工) の現在の様子を紹介する動画。大分市の制作で2025年7月に公開されたもの
  • 2024.9.05Thu
    室宏アトリエによる、大分の「宇佐の家」。“自然と住宅地が切替わる”場での計画。外の視線を遮りつつ“環境を享受”する為、壁で閉じた空間の上に“切妻の大屋根”を架けて間に高窓を設ける建築を考案。内部では小さな間仕切を点在させて光と風を共有
  • 2023.11.09Thu
    塩塚隆生アトリエと下村正樹建築設計事務所による、大分・国東市の「鶴川商店街周辺拠点施設」。歴史遺産が残る街の地域振興の為の施設。エリアの歴史も横断できる建築として、現代的な木造の“新築棟”と築120年の民家を基にした“改修棟”を設計。新築棟は将来の可変性を考慮し“極めて簡素な”仕様で造る
  • 2023.11.08Wed
    光浦高史 / DABURA.mによる、大分・豊後大野市の「鷹来屋ガーデンささら」。老舗造り酒屋が運営する体験型の施設。豊かな自然を享受する“集いの場”を求め、RC壁とCLT折版構造屋根を組合わせて外部と繋がる開放的な空間を構築。素材は土地の時間や環境を“肌で感じられる”ものを選定
  • 2023.9.13Wed
    光浦高史 / DABURA.mによる、大分・佐伯市の工場「U meme Lab.」。美容液の開発製造を行う建築。地域に開かれた親しみのある存在を目指し、内部の可視化と共に“門型フレーム”の段階的な変化で“柔らかな”外部形状を構築。自然光が入り風景を望む諸室は労働環境の向上も叶える
  • 2022.7.27Wed
    /
    塩塚隆生アトリエ+下村正樹建築設計事務所が、大分の「鶴川商店街周辺拠点施設」設計プロポで最優秀提案者に選定され、提案書も公開
  • 2022.4.08Fri
    江藤健太アトリエによる、大分の住宅「別府の家」。地域の特色の石垣が残る細長い敷地に計画、適度な距離感で二世帯住宅の利点を享受できる空間を目指して建物を貫く土間ホールを設計、限られた面積内で各諸室の延長となり緩衝と交流の役割を担う
  • 2022.2.03Thu
    田中悠希+榎本亮祐 / YRADによる、大分市の商業施設「TAKENISHI TERRACE」。商店街のビル跡地が敷地で界隈に賑わいを取り戻したいとの依頼に、設計前に意義を理解し場を盛り上げてくれる入居者を探し計画開始、回遊性と様々な居場所をつくり活性化を目指す
  • 2021.5.21Fri
    光浦高史 / DABURA.mによる、大分・別府市の宿泊施設「GALLERIA MIDOBARU」。地形を出発点とし地域性と固有性を持つ建築を構想
  • 2021.5.07Fri
    /
    大分・豊後大野市の「多機能型関係人口拠点施設」設計プロポで最優秀提案者に選ばれた、塩塚隆生アトリエの提案書が公開
  • view all
view all

建築求人情報

Loading...

 

    公式アカウントをフォローして、見逃せない建築情報を受け取ろう。

    62,026
    • Follow
    87,374
    • Follow
    • Follow
    • Add Friends
    • Subscribe
    • 情報募集/建築・デザイン・アートの情報を随時募集しています。
      More
    • メールマガジン/ メールマガジンで最新の情報を配信しています。
      More

    この日更新したその他の記事

    【ap job更新】 東京とドバイを拠点とし、国内外で様々な建築を手掛ける「waiwai」が、建築設計とインテリアデザインのスタッフ(既卒・経験者)を募集中

    ap job 【ap job更新】 東京とドバイを拠点とし、国内外で様々な建築を手掛ける「waiwai」が、建築設計とインテリアデザインのスタッフ(既卒・経験者)を募集中

    architecture|job|promotion
    建築求人情報
    【ap job更新】 東京とドバイを拠点とし、国内外で様々な建築を手掛ける「waiwai」が、建築設計とインテリアデザインのスタッフ(既卒・経験者)を募集中
    【ap job更新】 東京とドバイを拠点とし、国内外で様々な建築を手掛ける「waiwai」が、建築設計とインテリアデザインのスタッフ(既卒・経験者)を募集中HANACREEK NISEKO PROJECT, lot 27 (北海道)
    アーキテクチャーフォトジョブボードに新しい情報が追加されました
    job.architecturephoto.net

    東京とドバイを拠点とし、国内外で様々な建築を手掛ける「waiwai」の、建築設計とインテリアデザインのスタッフ(既卒・経験者)募集のお知らせです。詳しくは、ジョブボードの当該ページにてご確認ください。アーキテクチャーフォトジョブボードには、その他にも、色々な事務所の求人情報が掲載されています。
    新規の求人の投稿はこちらからお気軽にお問い合わせください。

    waiwaiは、山雄和真とWael Al Awarの2人のパートナーが率いる、東京とドバイを拠点とする建築設計事務所です。
    東京とドバイを拠点としながら、日本国内をはじめ、中東・アジア・アフリカの様々な国や地域において幅広い設計・デザイン業務を手がけています。

    ベネチア・ビエンナーレ国際建築展で金獅子賞を受賞したUAEを中心とした新素材および空間モデル開発、北海道ニセコでの継続的なまちづくりなど、建築を軸とした国内外の各地域における真にサステナブルな文化の創造と継承を目指し、建築家のひとりよがりではなくプロジェクトに関わる全ての人にとっての作品となる建築づくりを目指しています。
    ひとつひとつのプロジェクトが真に求めているものを様々な角度から分析し、「そこにしかない物語」を構築することによって、関係者全員の意思共有を図るとともに、その都度全く異なったデザインを行うことを信条としています。

    現在進行中のプロジェクトに、数万㎡規模の美術館・アートギャラリーやホテル、大規模住宅地開発、数千㎡規模のホテル・ヴィラ/別荘・商業施設・福祉施設等々、多種多様なプロジェクトが動いています。クライアントや協働する関係者も国内外多様な人々と日々関わっており、チームメンバー全員が前線に立ちますので、組織設計では手に入れることのできない経験が得られるはずです。

    現在、会社規模の一層の発展を目指した組織改編を行っています。中東地域を中心とする海外プロジェクトにおいても日本チームとドバイチーム双方で携わり、すべてのチームメンバーが、国内外双方のプロジェクトに関わる機会があります。

    本年度よりランドスケープとインテリアデザインの部門を設立し、建築を軸にした、建築プロジェクト全般を手掛ける総合デザインファームとしての展開を目指しています。
    今年度は特に組織力強化のため、プロジェクトチームを引っ張っていってくれる建築実務経験者を主とするメンバーを募集します。私たちwaiwaiでしか得ることのできない経験を元に、他にないチームを共に作り上げていく仲間を募集します。

    大きな視点で様々なプロジェクトに共に挑戦してくれる方の応募をお待ちしています。

    job.architecturephoto.net
    • ap job
    建築求人情報
    2025.10.02 Thu 16:20
    0
    permalink
    AMO / OMAによる展覧会「DIAGRAMS」。ヴェネツィアのプラダ財団で開催。ダイアグラムを“グラフィック装置および思考体系”として捉え、“知識の構造”や“我々の世界の理解”への貢献について考察。12世紀から現代までの300点以上の資料を展示
    photo: Marco Cappelletti, courtesy: Fondazione Prada

    SHARE AMO / OMAによる展覧会「DIAGRAMS」。ヴェネツィアのプラダ財団で開催。ダイアグラムを“グラフィック装置および思考体系”として捉え、“知識の構造”や“我々の世界の理解”への貢献について考察。12世紀から現代までの300点以上の資料を展示

    architecture|design|feature
    AMOOMAレム・コールハース
    AMO / OMAによる展覧会「DIAGRAMS」。ヴェネツィアのプラダ財団で開催。ダイアグラムを“グラフィック装置および思考体系”として捉え、“知識の構造”や“我々の世界の理解”への貢献について考察。12世紀から現代までの300点以上の資料を展示Exhibition view of “Diagrams: A Project by AMO/OMA” Fondazione Prada, Venice photo: Marco Cappelletti, courtesy: Fondazione Prada
    AMO / OMAによる展覧会「DIAGRAMS」。ヴェネツィアのプラダ財団で開催。ダイアグラムを“グラフィック装置および思考体系”として捉え、“知識の構造”や“我々の世界の理解”への貢献について考察。12世紀から現代までの300点以上の資料を展示Exhibition view of “Diagrams: A Project by AMO/OMA” Fondazione Prada, Venice photo: Marco Cappelletti, courtesy: Fondazione Prada
    AMO / OMAによる展覧会「DIAGRAMS」。ヴェネツィアのプラダ財団で開催。ダイアグラムを“グラフィック装置および思考体系”として捉え、“知識の構造”や“我々の世界の理解”への貢献について考察。12世紀から現代までの300点以上の資料を展示Exhibition view of “Diagrams: A Project by AMO/OMA” Fondazione Prada, Venice photo: Marco Cappelletti, courtesy: Fondazione Prada
    AMO / OMAによる展覧会「DIAGRAMS」。ヴェネツィアのプラダ財団で開催。ダイアグラムを“グラフィック装置および思考体系”として捉え、“知識の構造”や“我々の世界の理解”への貢献について考察。12世紀から現代までの300点以上の資料を展示Exhibition view of “Diagrams: A Project by AMO/OMA” Fondazione Prada, Venice photo: Marco Cappelletti, courtesy: Fondazione Prada

    AMO / OMAによる展覧会「DIAGRAMS: A PROJECT BY AMO/OMA」です
    ヴェネツィアのプラダ財団で開催されています。ダイアグラムを“グラフィック装置および思考体系”として捉え、“知識の構造”や“我々の世界の理解”への貢献について考察します。また、12世紀から現代までの300点以上の資料を展示しています。会期は2025年11月24日まで。展覧会の公式ページはこちら。また、展覧会の書籍も出版されています。(amazon)


    こちらはリリーステキストの翻訳です(文責:アーキテクチャーフォト)

    DIAGRAMS: A PROJECT BY AMO/OMA

    DIAGRAMS: A PROJECT BY AMO/OMA、2025年5月7日、ヴェネツィア - プラダ財団は、レム・コールハースが設立したスタジオ AMO/OMA によって構想された展覧会プロジェクト「Diagrams」を、2025年5月10日から11月24日まで、ヴェネツィアにある会場カ・コルネール・デッラ・レジーナにて開催します。

    「Diagrams」は、意味を構築し、理解し、あるいは操作するための強力な手段として、また周囲の世界を分析し、理解し、変容させるための広範な手段として、データの視覚的コミュニケーションを探究します。それは、人間の知性、科学的および文化的現象、そして知識の創造と伝達との関係についての対話と思索的な考察を促すことを目的としています。

    この展覧会は、18世紀に建てられたパラッツォ・カ・コルネール・デッラ・レジーナの1階および2階にわたって展示されており、12世紀から現代に至るまでの、さまざまな地理的および文化的背景に関連する貴重な文書、印刷物、デジタル画像、映像など300点以上の資料を集めています。これらの資料は、現代世界が抱える緊急課題を反映するだけでなく、実質的にダイアグラムが持つ横断的かつ通時的な性質を示す主題的な原則に基づいて展示されています。

    本プロジェクトは、プラダ財団がレム・コールハースおよびOMAのアソシエイト・アーキテクトであるジュリオ・マルゲリ(Giulio Margheri)と緊密に連携して行った広範なリサーチの恩恵を受けています。マックス・プランク美術史研究所ビブリオテカ・ヘルツィアーナのマックス・プランク研究グループリーダーであるシーツケ・フランセン(Sietske Fransen)の専門知識が重要な役割を果たしました。

    レム・コールハースが述べているように、「私の見解では、ダイアグラムはほぼ常に存在してきた道具です。たとえば、私たちのリサーチの初期段階で、紀元前4万年にまでさかのぼる南アフリカの三次元ダイアグラムや、アマッサリク島で作られたグリーンランドの海岸線を木彫りで表した地図を発見しました。これは、ダイアグラムが、その時代に存在するあらゆるメディアに適応する、不朽のコミュニケーションの形態であることを示しています。メディアの種類にかかわらず、ダイアグラムは、教示的(説明的)あるいは示唆的(説得的)な目的に用いられます。つまり、ダイアグラムはあらゆる新しいメディアにおいて自ずと存在するだけでなく、実質的に人間の生活のほぼすべての領域に適用可能であるということです。ファッション、宗教、あるいは社会的不平等の歴史も、ダイアグラムとして解釈することができます。私はダイアグラムのこの学際的な側面を非常に魅力的に感じています。それが持つ不変の特性――つまり言語(言葉)からの独立性によって、ダイアグラムは最も効果的な表現形態のひとつとなっているのです」

    ダイアグラムは概ね、情報を可視化し、それについて考察し、伝達し、記録するための手段として捉えることができます。その結果として、それは中立的かつ客観的な表現として現れるのです。「ダイアグラムは事実そのものではなく、事実の可能性である」というジル・ドゥルーズ(Gilles Deleuze)の主張に基づき、本展はダイアグラムを、意味を生成する主体として捉え、人間の思考や生活に積極的に形を与え、影響を及ぼす存在として探究します。そしてそれは、誤解を生む媒体や、プロパガンダや政治的闘争の手段となる可能性も秘めているのです。

    AMO/OMAが「now urgencies(今この瞬間の緊急課題)」という原則に基づいて設計した展示構成は、「建設環境」「健康」「不平等」「移民」「環境」「資源」「戦争」「真実」「価値」という9つの主要テーマに沿って構成されています。これらのテーマは、2階中央の部屋において、互いに平行に配置された一連の展示ケースによって表現されています。いわゆる「now urgencies(今この瞬間の緊急課題)」のそれぞれは、同じ階にある横の部屋でさらに掘り下げられており、特定のサブテーマや著名な作家の作品を探究するための異なる展示形式が用いられています。この複雑で多様な探究は、AMO/OMAによって制作されたセットによって1階で導入されており、それはダイアグラムによって構成された、展覧会全体のダイアグラムとして定義されることができます。このメタ・ダイアグラムは、リサーチおよび展示の手法を、その透明性と正確性のすべてにおいて明らかにしています。

    「Diagrams」の出発点は、19世紀後半から20世紀初頭にかけてアフリカ系アメリカ人コミュニティに関する研究とインフォグラフィックスで知られる、アフリカ系アメリカ人社会学者W.E.B.デュボイス(W.E.B. Du Bois, 1868–1963)の仕事にあります。彼が1900年のパリ万国博覧会における「The Exhibit of American Negroes(アメリカ黒人展)」のために制作した図表は、グラフィック表現の伝達力、さらには社会的調査やアクティビズムにおけるその可能性を探るための最初の参照点となっています。これらの作品は、やがて起こるマス・コミュニケーションの台頭のための基盤における重要な転換点を示しています。このケーススタディは、インフォグラフィックスが社会的正義、人種差別、民族的および宗教的少数派の表象、そしてアイデンティティに関する問題をどのように扱い、伝え、そしてしばしば省いてきたかを浮き彫りにしています。

    本展はまた、インフォグラフィックスの伝達力および観客がそれを正確に解釈する能力という観点における限界についても深く掘り下げています。この枠組みの中で、近代看護の創始者であるイギリス人フローレンス・ナイチンゲール(Florence Nightingale, 1820–1910)の事例は、医療分野における明確な視覚的コミュニケーションが、医療環境の改善を目的とした重要な立法の進展につながったことを浮き彫りにしています。このケーススタディは、世界各地の古代文化に由来する、この科学的領域に関連した膨大な文書や写本群を探究するための入口として機能しています。これは、インフォグラフィックスの利用が最近の現象でも、特定の西洋文化に限ったものでもなく、今なお人々の生活に具体的で意味のある影響を与え続けていることを示しています。このセクションはまた、科学の進歩と身体のケアの交差点に関する、より広範な議論の端緒ともなっています。特に現在では、高齢化の影響、人間の存在の時間的限界、そして身体的健康やウェルネスに対する文化的関心が、世論やメディアの議論の中心となっているのです。

    もう一つの重要なテーマ的な流れは「戦争」に焦点を当てています。フランスの土木技師シャルル=ジョゼフ・ミニャール(Charles Joseph Minard, 1781–1871)によって制作された、ナポレオンのロシア遠征を描いたダイアグラムは、データのグラフィカルな表現における画期的な成果と広く見なされています。本展は、ミニャールの視覚的革新を、スコットランドの政治経済学者ウィリアム・プレイフェア(William Playfair, 1759–1823)の業績や、20世紀の体制によるプロパガンダ・グラフィック、そして現代のスタジオによる調査的な制作活動と結びつける対話を展開しています。

    「インフォグラフィックスの黄金時代」とも呼ばれる19世紀は、社会政治的知識を伝える上でのデータの使用と誤用について考察する出発点となっています。19世紀初頭には、新たな印刷技術の登場が、教育の急速な普及と時を同じくして起こりました。この歴史的背景の中で、アメリカの先駆的なフェミニスト教育者エマ・ウィラード(Emma Willard, 1787–1870)は、革新的かつ創造的な「時間の地図」を特徴とする歴史と地理の教科書を出版し、データや情報を理解しやすい視覚的形式へと変換する手助けをしました。本展はまた、ダイアグラムが、ソーシャルメディアやオンラインプラットフォームによって促進されたビッグデータの圧倒的な力と断片化したコミュニケーション環境によって、その物語を歪める曖昧な道具として同時に機能し得ることを示しています。

    18世紀から19世紀にかけて、インフォグラフィックの制作において、自然科学や生態学への関心が高まりを見せました。ドイツの博物学者で探検家のアレクサンダー・フォン・フンボルト(Alexander von Humboldt, 1769–1859)は、重要な人物でした。フンボルトの図像やダイアグラムは、データの視覚化および生態学的知識の伝達に関する議論の基盤を成しています。この議論は、今日の深刻な気候問題を踏まえると、さらに大きな重要性を帯びています。

    インフォグラフィックスの最も初期の例は、天文学的、地理的、あるいは宗教的知識と結びついており、文化的・知的エリートの間で限定的に流通することを意図して制作されていました。これはヨーロッパに限らず、アラブ、アジア、メソアメリカの文化にも当てはまり、この事実は、いくつかの古代文明に共通する文化的な地平についての省察を促します。このような理由から、ダイアグラムは、意味の生成における明確な主体として、また時には合意形成の手段として現れます。そしてそれはしばしば、宗教的・政治的・哲学的伝統に根ざしています。

    古代と現代の継続的な相互作用は本展の物語を形作っており、それはダイアグラムの形式と内容を交差させるような思索を促します。インフォグラフィックによるコミュニケーションは、歴史的アヴァンギャルドの影響を受けながら、20世紀に形式的な進化を遂げました。モダニズムが視覚的コミュニケーションにもたらした重要な貢献は、古代および近代以前のインフォグラフィックスにおける形式的・美的・芸術的特性の回顧的な再評価を可能にしています。

    本展の中心には、AMO/OMAのデザイン実践も位置づけられており、同スタジオは1970年代以降、建築のツールとしてダイアグラム的な形式を取り入れてきました。クールハースが説明するように、「複雑なアイデアというのは、知的な、あるいは時には芸術的な喜びのようなものであり、それは私たちの取り組みの原動力となっていました。そのような文脈において、ダイアグラムは非常に役立つものでした。私たちはそれらを調査しデザインすることによって、空間を形成しようと、あるいは別の建築を定義しようとしていました。その形を導き出すには、膨大な議論と明確な言語化が必要だったのです。もし私が数多くのダイアグラムを発見していなければ、私たちはその段階に到達することはできなかったでしょう。当時においてダイアグラムの役割は決定的でした。なぜなら、私たちが成し遂げたいことが実現可能であることを示すためには、物理的な「証拠の重み」が必要だったからです。今日の私はもはや、物事が可能であることを証明する必要のない、別の立場にいるのかもしれません。そしてそれは確かに、ダイアグラムの本質や役割を変えるものとなっています。しかし、私は今でもダイアグラムが自分のレパートリーの重要な一部であると言えるでしょう」

    本展にはまた、Atmos Labや Transsolarといった国際的なプラットフォームによって展開されてきた重要かつ近年の環境デザインおよび都市計画の実践に加え、テオ・ドイティンガー(Theo Deutinger)やSITU Researchなどによる調査的な実践や研究者の貢献も含まれています。

    「Diagrams」には、プラダ財団から刊行され、イルマ・ブーム(Irma Boom)がデザインを手がけた図版入りの書籍が付随します。この書籍には、プラダ財団の会長兼ディレクターであるミウッチャ・プラダ(Miuccia Prada)による序文、レム・コールハースとカティア・イノゼムツェワ(Katya Inozemtseva)の対談、そして著名な国際的学者やデザイナーであるアルベルト・カイロ(Alberto Cairo)、ケイト・クロフォード(Kate Crawford)、テオ・ドイティンガー(Theo Deutinger)、シーツケ・フランセン(Sietske Fransen)、スコット・ラインハード(Scott Reinhard)、フィリップ・レカセヴィッツ(Philippe Rekacewicz)、サンドラ・レンドゲン(Sandra Rendgen)、マルキット・ショシャン(Malkit Shoshan)、杉浦康平(Kohei Sugiura)による9本のエッセイが収録されています。

    • 残り40枚の写真と建築家によるテキスト
    • SHARE
    AMOOMAレム・コールハース
    2025.10.02 Thu 06:44
    0
    permalink
    2025.9.30Tue
    • 【ap job更新】 歴史的な木造建造物の復元に取り組む「公益財団法人 文化財建造物保存技術協会」が、設計・工事監理に携わる職員(経験者・既卒)を募集中
    • BIGによる、アメリカ・ロサンゼルスの「ロバート・デイ・サイエンス・センター」。大学キャンパス内での計画。アイデアの交換を促進する刺激的な場を目指し、各階のヴォリュームを45°回転させて積層する建築を考案。中心に作られた吹抜空間を多様な属性の人々たちの交流の場として機能させる
    • 2025年8月にアーキテクチャーフォトで注目を集めた記事トップ40
    • 2025年9月にアーキテクチャーフォトで注目を集めた記事トップ40
    2025.10.04Sat
    • studioSHUWARIによる、富山市の住宅「Work / Life / Archive」。“クリエイティブな仕事”をする施主夫婦の為に計画。大量の資料などの整理と保管という与件に対し、自身でカスタムできる壁面収納を備えた建築を考案。全体をスキップフロアとして其々の空間を緩やかに分節する
    • 池田靖史・下田悠太・林盛による、千葉・館山市の「POP-UP ORIGAMI ROOF」。海辺の地域での相撲の土俵に屋根を掛ける計画。“折り紙の動き”を応用し、膜を引張材としカーボンパイプ等を圧縮材とした“テンセグリティ構造”の屋根を考案。超軽量を活かして人力作業かつ低コストで完成させる

    Subscribe and Follow

    公式アカウントをフォローして、
    見逃せない建築情報を受け取ろう。

    「建築と社会の関係を視覚化する」メディア、アーキテクチャーフォトの公式アカウントです。
    様々な切り口による複眼的視点で建築に関する情報を最速でお届けします。

    62,026
    • Follow
    87,374
    • Follow
    • Follow
    • Add Friends
    • Subscribe
    • 情報募集/建築・デザイン・アートの情報を随時募集しています。
      More
    • メールマガジン/ メールマガジンで最新の情報を配信しています。
      More

    architecturephoto® News Letter

    メールマガジンでも最新の更新情報を配信中

    • ホーム
    • アーキテクチャーフォトについて
    • アーキテクチャーフォト規約
    • プライバシーポリシー
    • 特定商取引法に関する表記
    • 利用者情報の外部送信について
    • 広告掲載について
    • お問い合わせ/作品投稿

    Copyright © architecturephoto.net.

    • 建築
    • アート
    • カルチャー
    • デザイン
    • ファッション
    • 動画
    • 展覧会
    • コンペ
    • 書籍
    • 建築求人
    • 特集記事
    • 注目情報
    • タグ
    • アーキテクチャーフォト ジョブボード
    • アーキテクチャーフォト・ブック
    • ホーム
    • アーキテクチャーフォトについて
    • アーキテクチャーフォト規約
    • プライバシーポリシー
    • 特定商取引法に関する表記
    • 利用者情報の外部送信について
    • 広告掲載について
    • お問い合わせ/作品投稿

    メールマガジンで最新の情報を配信しています

    この記事をシェア
    タイトルタイトルタイトルタイトルタイトル
    https://architecturephoto.net/permalink

    記事について#architecturephotonetでつぶやいてみましょう。
    有益なコメントは拡散や、サイトでも紹介させていただくこともございます。

    architecturephoto®
    • black
    • gray
    • white

    建築求人情報紹介

    Loading...