渡邉明弘建築設計事務所による、東京・杉並区の「Harport Suginami Sud」。築50年の共同住宅を再生する計画。複雑な諸問題を解決して“長く建物を使う”為に、“減量での耐震化”と“是正での遵法化”に加えて“事業計画に基づく長期融資”も実現。時間を経て得られる豊かさの補強も意識外観、東側より見る。 photo©Yasu Kojima
渡邉明弘建築設計事務所による、東京・杉並区の「Harport Suginami Sud」。築50年の共同住宅を再生する計画。複雑な諸問題を解決して“長く建物を使う”為に、“減量での耐震化”と“是正での遵法化”に加えて“事業計画に基づく長期融資”も実現。時間を経て得られる豊かさの補強も意識外観、東側より見る。 photo©Yasu Kojima
渡邉明弘建築設計事務所による、東京・杉並区の「Harport Suginami Sud」。築50年の共同住宅を再生する計画。複雑な諸問題を解決して“長く建物を使う”為に、“減量での耐震化”と“是正での遵法化”に加えて“事業計画に基づく長期融資”も実現。時間を経て得られる豊かさの補強も意識外観、北西側よりエントランスを見る。 photo©Yasu Kojima
渡邉明弘建築設計事務所による、東京・杉並区の「Harport Suginami Sud」。築50年の共同住宅を再生する計画。複雑な諸問題を解決して“長く建物を使う”為に、“減量での耐震化”と“是正での遵法化”に加えて“事業計画に基づく長期融資”も実現。時間を経て得られる豊かさの補強も意識3階、308号室、ダイニングからキッチン側を見る。 photo©鳥村鋼一
渡邉明弘建築設計事務所が設計した、東京・杉並区の「永福町大博マンション再生 / Harport Suginami Sud」です。
築50年の共同住宅を再生する計画です。建築家は、複雑な諸問題を解決して“長く建物を使う”為に、“減量での耐震化”と“是正での遵法化”に加えて“事業計画に基づく長期融資”も実現しました。また、時間を経て得られる豊かさの補強も意識されました。
東京都杉並区にある築50年の共同住宅を再生した。
建主が半世紀かけて開発する過程で、敷地には少しづつ色々な建物、緑や人々が根付き、それらが共存する暮らしが育まれている。求められたのは、この土地で最初に建てられた住棟をさらに数十年住み継げるようにすることと、そのための事業費全てに長期融資を実行することだった。
内外装やサッシ・設備を全て一新し、躯体の撤去や設備計画を含めた減量によって、補強を入れずに耐震化した。検査済証が無かったが、違反の是正と既存不適格の証明を経て「増築」の検査済証を取得した。こうした耐震化・遵法化・長寿命化は、再生に不可避の技術的問題に正面から取り組むことはもちろん、この建物と、後から出来た周辺状況とを調和させる契機にもなっている。
築古ストックの建て替えが進み急速に街並みが均質化しつつある住宅地で、耐震性や遵法性、融資付けといった築古ストック特有の問題を乗り越えながら、時間を経て得られる豊かさの補強と、そこに上書きするからこそ出来る建物のあり方を考えた。
敷地は東京郊外の住宅地。半世紀かけて根付いた複数の建物や緑、人々が共存する豊かな環境が、時間をかけて育まれていました。
一方で、
・建物は築50年になり、間取りや設備、構造躯体の劣化や陳腐化が進行していた
・法改正による様々な既存不適格に加え、相続に伴う分筆や私道の敷設により敷地の形状や接道条件が変更されていた
・第二マンションとEV棟、駐輪場などの段階的な増築が検査済証を取得せずに繰り返され、違反建築となっていた
といった問題を抱えていました。
建主の要望は、複雑に絡み合うこれらの問題を根本的に解決して今後も長く建物を使う事でした。
このプロジェクトでは複雑な問題を抱えていた状況をていねいに解きほぐし、色々な要素を取り除いたり付け加えたりしています。それらは単にスペックを底上げするに止まらず、敷地の周辺を含めた既存と調和をもたらすよう注意深く計画されています。
築古ストックの建て替えが進み急速に街並みが均質化しつつある住宅地で、耐震性や遵法性、融資付けといった築古ストック特有の問題を乗り越えながら、時間を経て得られる豊かさの補強と、そこに上書きするからこそ出来る建物のあり方を考えました。
竣工後、建主からは植栽や新しい駐輪場を計画したいと依頼が。50年かけて空き地を順に開墾しながら育ててきた土地が、これからは根付いた人やものに手を加えながら住み継ぐ場所になって欲しいと願っています。
以下の写真はクリックで拡大します

渡邉明弘建築設計事務所による、東京・杉並区の「Harport Suginami Sud」。築50年の共同住宅を再生する計画。複雑な諸問題を解決して“長く建物を使う”為に、“減量での耐震化”と“是正での遵法化”に加えて“事業計画に基づく長期融資”も実現。時間を経て得られる豊かさの補強も意識外観、西側より見る。 photo©鳥村鋼一

渡邉明弘建築設計事務所による、東京・杉並区の「Harport Suginami Sud」。築50年の共同住宅を再生する計画。複雑な諸問題を解決して“長く建物を使う”為に、“減量での耐震化”と“是正での遵法化”に加えて“事業計画に基づく長期融資”も実現。時間を経て得られる豊かさの補強も意識外観、西側より見る。 photo©Yasu Kojima

渡邉明弘建築設計事務所による、東京・杉並区の「Harport Suginami Sud」。築50年の共同住宅を再生する計画。複雑な諸問題を解決して“長く建物を使う”為に、“減量での耐震化”と“是正での遵法化”に加えて“事業計画に基づく長期融資”も実現。時間を経て得られる豊かさの補強も意識外観、西側より見る。 photo©鳥村鋼一

渡邉明弘建築設計事務所による、東京・杉並区の「Harport Suginami Sud」。築50年の共同住宅を再生する計画。複雑な諸問題を解決して“長く建物を使う”為に、“減量での耐震化”と“是正での遵法化”に加えて“事業計画に基づく長期融資”も実現。時間を経て得られる豊かさの補強も意識外観、西側より共用廊下を見る。 photo©Yasu Kojima

渡邉明弘建築設計事務所による、東京・杉並区の「Harport Suginami Sud」。築50年の共同住宅を再生する計画。複雑な諸問題を解決して“長く建物を使う”為に、“減量での耐震化”と“是正での遵法化”に加えて“事業計画に基づく長期融資”も実現。時間を経て得られる豊かさの補強も意識外観、北東側より見る。 photo©鳥村鋼一

渡邉明弘建築設計事務所による、東京・杉並区の「Harport Suginami Sud」。築50年の共同住宅を再生する計画。複雑な諸問題を解決して“長く建物を使う”為に、“減量での耐震化”と“是正での遵法化”に加えて“事業計画に基づく長期融資”も実現。時間を経て得られる豊かさの補強も意識外観、北東側より見る。 photo©Yasu Kojima

渡邉明弘建築設計事務所による、東京・杉並区の「Harport Suginami Sud」。築50年の共同住宅を再生する計画。複雑な諸問題を解決して“長く建物を使う”為に、“減量での耐震化”と“是正での遵法化”に加えて“事業計画に基づく長期融資”も実現。時間を経て得られる豊かさの補強も意識外観、南側より見る。 photo©鳥村鋼一

渡邉明弘建築設計事務所による、東京・杉並区の「Harport Suginami Sud」。築50年の共同住宅を再生する計画。複雑な諸問題を解決して“長く建物を使う”為に、“減量での耐震化”と“是正での遵法化”に加えて“事業計画に基づく長期融資”も実現。時間を経て得られる豊かさの補強も意識外観、東側より見る。 photo©Yasu Kojima

渡邉明弘建築設計事務所による、東京・杉並区の「Harport Suginami Sud」。築50年の共同住宅を再生する計画。複雑な諸問題を解決して“長く建物を使う”為に、“減量での耐震化”と“是正での遵法化”に加えて“事業計画に基づく長期融資”も実現。時間を経て得られる豊かさの補強も意識外観、東側より見る。 photo©Yasu Kojima

渡邉明弘建築設計事務所による、東京・杉並区の「Harport Suginami Sud」。築50年の共同住宅を再生する計画。複雑な諸問題を解決して“長く建物を使う”為に、“減量での耐震化”と“是正での遵法化”に加えて“事業計画に基づく長期融資”も実現。時間を経て得られる豊かさの補強も意識外観、東側より見る。 photo©Yasu Kojima

渡邉明弘建築設計事務所による、東京・杉並区の「Harport Suginami Sud」。築50年の共同住宅を再生する計画。複雑な諸問題を解決して“長く建物を使う”為に、“減量での耐震化”と“是正での遵法化”に加えて“事業計画に基づく長期融資”も実現。時間を経て得られる豊かさの補強も意識外観、東側より見る。 photo©鳥村鋼一

渡邉明弘建築設計事務所による、東京・杉並区の「Harport Suginami Sud」。築50年の共同住宅を再生する計画。複雑な諸問題を解決して“長く建物を使う”為に、“減量での耐震化”と“是正での遵法化”に加えて“事業計画に基づく長期融資”も実現。時間を経て得られる豊かさの補強も意識外観、北西側より見る。 photo©Yasu Kojima

渡邉明弘建築設計事務所による、東京・杉並区の「Harport Suginami Sud」。築50年の共同住宅を再生する計画。複雑な諸問題を解決して“長く建物を使う”為に、“減量での耐震化”と“是正での遵法化”に加えて“事業計画に基づく長期融資”も実現。時間を経て得られる豊かさの補強も意識駐輪場 photo©鳥村鋼一

渡邉明弘建築設計事務所による、東京・杉並区の「Harport Suginami Sud」。築50年の共同住宅を再生する計画。複雑な諸問題を解決して“長く建物を使う”為に、“減量での耐震化”と“是正での遵法化”に加えて“事業計画に基づく長期融資”も実現。時間を経て得られる豊かさの補強も意識駐輪場 photo©Yasu Kojima

渡邉明弘建築設計事務所による、東京・杉並区の「Harport Suginami Sud」。築50年の共同住宅を再生する計画。複雑な諸問題を解決して“長く建物を使う”為に、“減量での耐震化”と“是正での遵法化”に加えて“事業計画に基づく長期融資”も実現。時間を経て得られる豊かさの補強も意識外観、北西側よりエントランスを見る。 photo©鳥村鋼一

渡邉明弘建築設計事務所による、東京・杉並区の「Harport Suginami Sud」。築50年の共同住宅を再生する計画。複雑な諸問題を解決して“長く建物を使う”為に、“減量での耐震化”と“是正での遵法化”に加えて“事業計画に基づく長期融資”も実現。時間を経て得られる豊かさの補強も意識外観、北西側よりエントランスを見る。 photo©鳥村鋼一

渡邉明弘建築設計事務所による、東京・杉並区の「Harport Suginami Sud」。築50年の共同住宅を再生する計画。複雑な諸問題を解決して“長く建物を使う”為に、“減量での耐震化”と“是正での遵法化”に加えて“事業計画に基づく長期融資”も実現。時間を経て得られる豊かさの補強も意識外観、北西側よりエントランスを見る。 photo©Yasu Kojima

渡邉明弘建築設計事務所による、東京・杉並区の「Harport Suginami Sud」。築50年の共同住宅を再生する計画。複雑な諸問題を解決して“長く建物を使う”為に、“減量での耐震化”と“是正での遵法化”に加えて“事業計画に基づく長期融資”も実現。時間を経て得られる豊かさの補強も意識外観、南西側よりエントランスを見る。 photo©鳥村鋼一

渡邉明弘建築設計事務所による、東京・杉並区の「Harport Suginami Sud」。築50年の共同住宅を再生する計画。複雑な諸問題を解決して“長く建物を使う”為に、“減量での耐震化”と“是正での遵法化”に加えて“事業計画に基づく長期融資”も実現。時間を経て得られる豊かさの補強も意識外観、西側よりエントランスを見る。 photo©Yasu Kojima

渡邉明弘建築設計事務所による、東京・杉並区の「Harport Suginami Sud」。築50年の共同住宅を再生する計画。複雑な諸問題を解決して“長く建物を使う”為に、“減量での耐震化”と“是正での遵法化”に加えて“事業計画に基づく長期融資”も実現。時間を経て得られる豊かさの補強も意識1階、エントランス photo©鳥村鋼一

渡邉明弘建築設計事務所による、東京・杉並区の「Harport Suginami Sud」。築50年の共同住宅を再生する計画。複雑な諸問題を解決して“長く建物を使う”為に、“減量での耐震化”と“是正での遵法化”に加えて“事業計画に基づく長期融資”も実現。時間を経て得られる豊かさの補強も意識1階、エントランス photo©Yasu Kojima

渡邉明弘建築設計事務所による、東京・杉並区の「Harport Suginami Sud」。築50年の共同住宅を再生する計画。複雑な諸問題を解決して“長く建物を使う”為に、“減量での耐震化”と“是正での遵法化”に加えて“事業計画に基づく長期融資”も実現。時間を経て得られる豊かさの補強も意識1階、エントランス photo©鳥村鋼一

渡邉明弘建築設計事務所による、東京・杉並区の「Harport Suginami Sud」。築50年の共同住宅を再生する計画。複雑な諸問題を解決して“長く建物を使う”為に、“減量での耐震化”と“是正での遵法化”に加えて“事業計画に基づく長期融資”も実現。時間を経て得られる豊かさの補強も意識1階、エントランス、庇を見上げる。 photo©Yasu Kojima

渡邉明弘建築設計事務所による、東京・杉並区の「Harport Suginami Sud」。築50年の共同住宅を再生する計画。複雑な諸問題を解決して“長く建物を使う”為に、“減量での耐震化”と“是正での遵法化”に加えて“事業計画に基づく長期融資”も実現。時間を経て得られる豊かさの補強も意識1階、エントランス、庇を見上げる。 photo©Yasu Kojima

渡邉明弘建築設計事務所による、東京・杉並区の「Harport Suginami Sud」。築50年の共同住宅を再生する計画。複雑な諸問題を解決して“長く建物を使う”為に、“減量での耐震化”と“是正での遵法化”に加えて“事業計画に基づく長期融資”も実現。時間を経て得られる豊かさの補強も意識3階、共用廊下 photo©鳥村鋼一

渡邉明弘建築設計事務所による、東京・杉並区の「Harport Suginami Sud」。築50年の共同住宅を再生する計画。複雑な諸問題を解決して“長く建物を使う”為に、“減量での耐震化”と“是正での遵法化”に加えて“事業計画に基づく長期融資”も実現。時間を経て得られる豊かさの補強も意識3階、共用廊下 photo©Yasu Kojima

渡邉明弘建築設計事務所による、東京・杉並区の「Harport Suginami Sud」。築50年の共同住宅を再生する計画。複雑な諸問題を解決して“長く建物を使う”為に、“減量での耐震化”と“是正での遵法化”に加えて“事業計画に基づく長期融資”も実現。時間を経て得られる豊かさの補強も意識3階、302号室、玄関からキッチン越しにリビング側を見る。 photo©Yasu Kojima

渡邉明弘建築設計事務所による、東京・杉並区の「Harport Suginami Sud」。築50年の共同住宅を再生する計画。複雑な諸問題を解決して“長く建物を使う”為に、“減量での耐震化”と“是正での遵法化”に加えて“事業計画に基づく長期融資”も実現。時間を経て得られる豊かさの補強も意識3階、302号室、キッチン側から水回り側を見る。 photo©鳥村鋼一

渡邉明弘建築設計事務所による、東京・杉並区の「Harport Suginami Sud」。築50年の共同住宅を再生する計画。複雑な諸問題を解決して“長く建物を使う”為に、“減量での耐震化”と“是正での遵法化”に加えて“事業計画に基づく長期融資”も実現。時間を経て得られる豊かさの補強も意識3階、302号室、水回り側からバルコニー側を見る。 photo©Yasu Kojima

渡邉明弘建築設計事務所による、東京・杉並区の「Harport Suginami Sud」。築50年の共同住宅を再生する計画。複雑な諸問題を解決して“長く建物を使う”為に、“減量での耐震化”と“是正での遵法化”に加えて“事業計画に基づく長期融資”も実現。時間を経て得られる豊かさの補強も意識3階、302号室、水回り側からキッチン側を見る。 photo©鳥村鋼一

渡邉明弘建築設計事務所による、東京・杉並区の「Harport Suginami Sud」。築50年の共同住宅を再生する計画。複雑な諸問題を解決して“長く建物を使う”為に、“減量での耐震化”と“是正での遵法化”に加えて“事業計画に基づく長期融資”も実現。時間を経て得られる豊かさの補強も意識3階、302号室、リビングから水回りとキッチンを見る。夜景 photo©鳥村鋼一

渡邉明弘建築設計事務所による、東京・杉並区の「Harport Suginami Sud」。築50年の共同住宅を再生する計画。複雑な諸問題を解決して“長く建物を使う”為に、“減量での耐震化”と“是正での遵法化”に加えて“事業計画に基づく長期融資”も実現。時間を経て得られる豊かさの補強も意識3階、302号室、キッチン。夜景 photo©鳥村鋼一

渡邉明弘建築設計事務所による、東京・杉並区の「Harport Suginami Sud」。築50年の共同住宅を再生する計画。複雑な諸問題を解決して“長く建物を使う”為に、“減量での耐震化”と“是正での遵法化”に加えて“事業計画に基づく長期融資”も実現。時間を経て得られる豊かさの補強も意識3階、305号室、玄関側からバルコニー側を見る。 photo©Yasu Kojima

渡邉明弘建築設計事務所による、東京・杉並区の「Harport Suginami Sud」。築50年の共同住宅を再生する計画。複雑な諸問題を解決して“長く建物を使う”為に、“減量での耐震化”と“是正での遵法化”に加えて“事業計画に基づく長期融資”も実現。時間を経て得られる豊かさの補強も意識3階、306号室、窓際のスペース photo©鳥村鋼一

渡邉明弘建築設計事務所による、東京・杉並区の「Harport Suginami Sud」。築50年の共同住宅を再生する計画。複雑な諸問題を解決して“長く建物を使う”為に、“減量での耐震化”と“是正での遵法化”に加えて“事業計画に基づく長期融資”も実現。時間を経て得られる豊かさの補強も意識3階、306号室、玄関側からバルコニー側を見る。 photo©鳥村鋼一

渡邉明弘建築設計事務所による、東京・杉並区の「Harport Suginami Sud」。築50年の共同住宅を再生する計画。複雑な諸問題を解決して“長く建物を使う”為に、“減量での耐震化”と“是正での遵法化”に加えて“事業計画に基づく長期融資”も実現。時間を経て得られる豊かさの補強も意識3階、308号室、玄関 photo©Yasu Kojima

渡邉明弘建築設計事務所による、東京・杉並区の「Harport Suginami Sud」。築50年の共同住宅を再生する計画。複雑な諸問題を解決して“長く建物を使う”為に、“減量での耐震化”と“是正での遵法化”に加えて“事業計画に基づく長期融資”も実現。時間を経て得られる豊かさの補強も意識3階、308号室、パウダールームからバルコニー側を見る。 photo©Yasu Kojima

渡邉明弘建築設計事務所による、東京・杉並区の「Harport Suginami Sud」。築50年の共同住宅を再生する計画。複雑な諸問題を解決して“長く建物を使う”為に、“減量での耐震化”と“是正での遵法化”に加えて“事業計画に基づく長期融資”も実現。時間を経て得られる豊かさの補強も意識3階、308号室、ダイニング photo©Yasu Kojima

渡邉明弘建築設計事務所による、東京・杉並区の「Harport Suginami Sud」。築50年の共同住宅を再生する計画。複雑な諸問題を解決して“長く建物を使う”為に、“減量での耐震化”と“是正での遵法化”に加えて“事業計画に基づく長期融資”も実現。時間を経て得られる豊かさの補強も意識3階、308号室、ダイニングから洋室を見る。 photo©鳥村鋼一

渡邉明弘建築設計事務所による、東京・杉並区の「Harport Suginami Sud」。築50年の共同住宅を再生する計画。複雑な諸問題を解決して“長く建物を使う”為に、“減量での耐震化”と“是正での遵法化”に加えて“事業計画に基づく長期融資”も実現。時間を経て得られる豊かさの補強も意識3階、308号室、ダイニングからキッチン側を見る。 photo©鳥村鋼一

渡邉明弘建築設計事務所による、東京・杉並区の「Harport Suginami Sud」。築50年の共同住宅を再生する計画。複雑な諸問題を解決して“長く建物を使う”為に、“減量での耐震化”と“是正での遵法化”に加えて“事業計画に基づく長期融資”も実現。時間を経て得られる豊かさの補強も意識1階、エントランス。夜景 photo©鳥村鋼一

渡邉明弘建築設計事務所による、東京・杉並区の「Harport Suginami Sud」。築50年の共同住宅を再生する計画。複雑な諸問題を解決して“長く建物を使う”為に、“減量での耐震化”と“是正での遵法化”に加えて“事業計画に基づく長期融資”も実現。時間を経て得られる豊かさの補強も意識外観、北西側よりエントランスを見る。夜景 photo©鳥村鋼一

渡邉明弘建築設計事務所による、東京・杉並区の「Harport Suginami Sud」。築50年の共同住宅を再生する計画。複雑な諸問題を解決して“長く建物を使う”為に、“減量での耐震化”と“是正での遵法化”に加えて“事業計画に基づく長期融資”も実現。時間を経て得られる豊かさの補強も意識外観、北西側よりエントランスを見る。夜景 photo©鳥村鋼一

渡邉明弘建築設計事務所による、東京・杉並区の「Harport Suginami Sud」。築50年の共同住宅を再生する計画。複雑な諸問題を解決して“長く建物を使う”為に、“減量での耐震化”と“是正での遵法化”に加えて“事業計画に基づく長期融資”も実現。時間を経て得られる豊かさの補強も意識外観、東側より見る、夜景 photo©鳥村鋼一

渡邉明弘建築設計事務所による、東京・杉並区の「Harport Suginami Sud」。築50年の共同住宅を再生する計画。複雑な諸問題を解決して“長く建物を使う”為に、“減量での耐震化”と“是正での遵法化”に加えて“事業計画に基づく長期融資”も実現。時間を経て得られる豊かさの補強も意識外観、北西側より見る。夜景 photo©鳥村鋼一

渡邉明弘建築設計事務所による、東京・杉並区の「Harport Suginami Sud」。築50年の共同住宅を再生する計画。複雑な諸問題を解決して“長く建物を使う”為に、“減量での耐震化”と“是正での遵法化”に加えて“事業計画に基づく長期融資”も実現。時間を経て得られる豊かさの補強も意識外観、西側より見る。夜景 photo©鳥村鋼一

渡邉明弘建築設計事務所による、東京・杉並区の「Harport Suginami Sud」。築50年の共同住宅を再生する計画。複雑な諸問題を解決して“長く建物を使う”為に、“減量での耐震化”と“是正での遵法化”に加えて“事業計画に基づく長期融資”も実現。時間を経て得られる豊かさの補強も意識外観、西側より見る。夜景 photo©Yasu Kojima

渡邉明弘建築設計事務所による、東京・杉並区の「Harport Suginami Sud」。築50年の共同住宅を再生する計画。複雑な諸問題を解決して“長く建物を使う”為に、“減量での耐震化”と“是正での遵法化”に加えて“事業計画に基づく長期融資”も実現。時間を経て得られる豊かさの補強も意識基準階平面図、外構図 image©渡邉明弘建築設計事務所

渡邉明弘建築設計事務所による、東京・杉並区の「Harport Suginami Sud」。築50年の共同住宅を再生する計画。複雑な諸問題を解決して“長く建物を使う”為に、“減量での耐震化”と“是正での遵法化”に加えて“事業計画に基づく長期融資”も実現。時間を経て得られる豊かさの補強も意識基準階平面図 image©渡邉明弘建築設計事務所

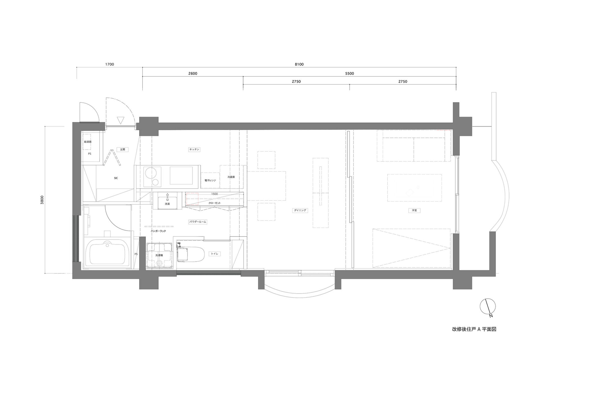
渡邉明弘建築設計事務所による、東京・杉並区の「Harport Suginami Sud」。築50年の共同住宅を再生する計画。複雑な諸問題を解決して“長く建物を使う”為に、“減量での耐震化”と“是正での遵法化”に加えて“事業計画に基づく長期融資”も実現。時間を経て得られる豊かさの補強も意識改修住戸A平面図 image©渡邉明弘建築設計事務所

渡邉明弘建築設計事務所による、東京・杉並区の「Harport Suginami Sud」。築50年の共同住宅を再生する計画。複雑な諸問題を解決して“長く建物を使う”為に、“減量での耐震化”と“是正での遵法化”に加えて“事業計画に基づく長期融資”も実現。時間を経て得られる豊かさの補強も意識改修住戸A平面図 image©渡邉明弘建築設計事務所

渡邉明弘建築設計事務所による、東京・杉並区の「Harport Suginami Sud」。築50年の共同住宅を再生する計画。複雑な諸問題を解決して“長く建物を使う”為に、“減量での耐震化”と“是正での遵法化”に加えて“事業計画に基づく長期融資”も実現。時間を経て得られる豊かさの補強も意識改修住戸B平面図 image©渡邉明弘建築設計事務所

渡邉明弘建築設計事務所による、東京・杉並区の「Harport Suginami Sud」。築50年の共同住宅を再生する計画。複雑な諸問題を解決して“長く建物を使う”為に、“減量での耐震化”と“是正での遵法化”に加えて“事業計画に基づく長期融資”も実現。時間を経て得られる豊かさの補強も意識改修住戸B平面図 image©渡邉明弘建築設計事務所

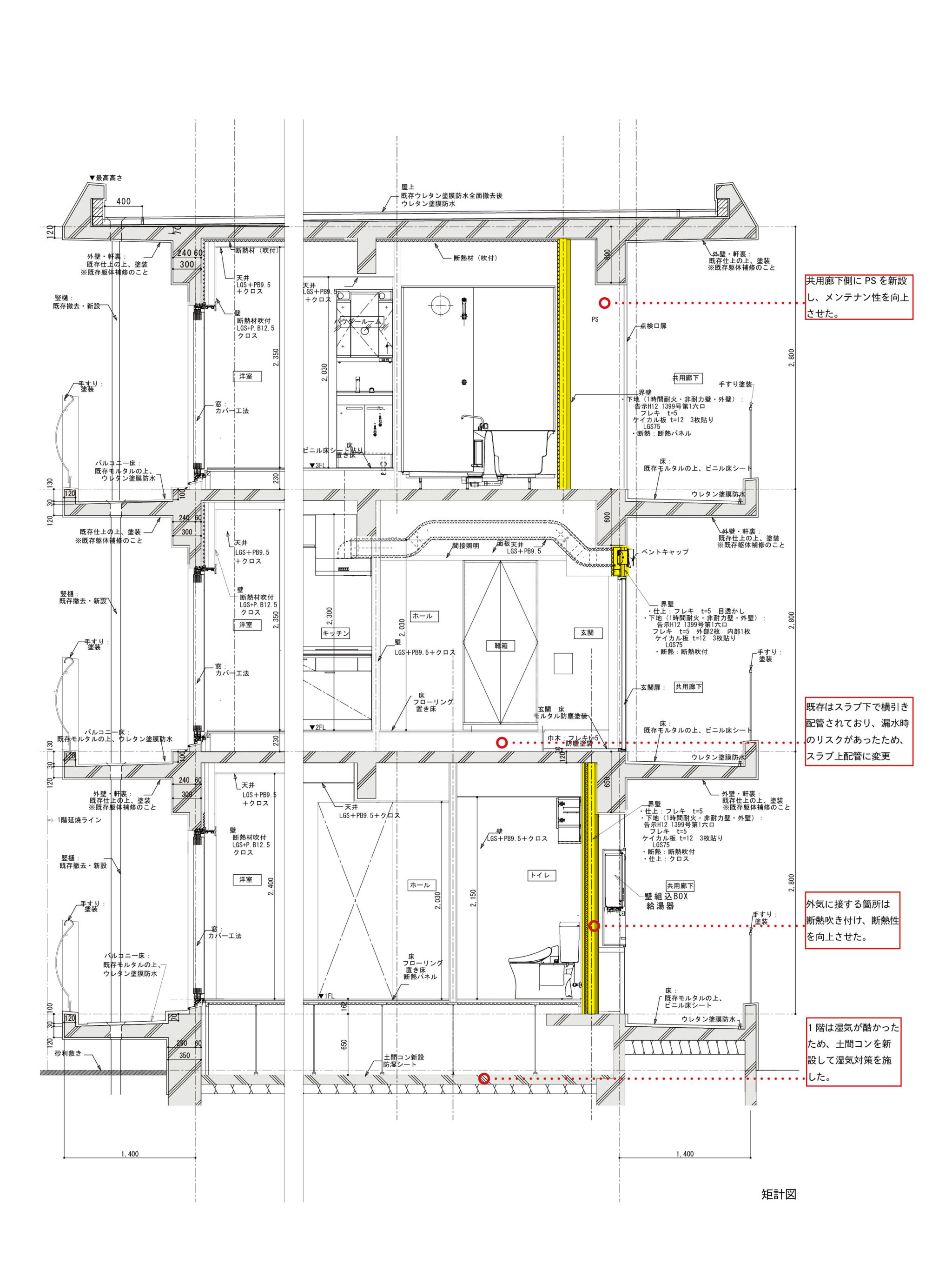
渡邉明弘建築設計事務所による、東京・杉並区の「Harport Suginami Sud」。築50年の共同住宅を再生する計画。複雑な諸問題を解決して“長く建物を使う”為に、“減量での耐震化”と“是正での遵法化”に加えて“事業計画に基づく長期融資”も実現。時間を経て得られる豊かさの補強も意識断面図 image©渡邉明弘建築設計事務所

渡邉明弘建築設計事務所による、東京・杉並区の「Harport Suginami Sud」。築50年の共同住宅を再生する計画。複雑な諸問題を解決して“長く建物を使う”為に、“減量での耐震化”と“是正での遵法化”に加えて“事業計画に基づく長期融資”も実現。時間を経て得られる豊かさの補強も意識植栽変化ダイアグラム image©渡邉明弘建築設計事務所

渡邉明弘建築設計事務所による、東京・杉並区の「Harport Suginami Sud」。築50年の共同住宅を再生する計画。複雑な諸問題を解決して“長く建物を使う”為に、“減量での耐震化”と“是正での遵法化”に加えて“事業計画に基づく長期融資”も実現。時間を経て得られる豊かさの補強も意識アクソノメトリック image©渡邉明弘建築設計事務所

渡邉明弘建築設計事務所による、東京・杉並区の「Harport Suginami Sud」。築50年の共同住宅を再生する計画。複雑な諸問題を解決して“長く建物を使う”為に、“減量での耐震化”と“是正での遵法化”に加えて“事業計画に基づく長期融資”も実現。時間を経て得られる豊かさの補強も意識既存写真 photo©渡邉明弘建築設計事務所

渡邉明弘建築設計事務所による、東京・杉並区の「Harport Suginami Sud」。築50年の共同住宅を再生する計画。複雑な諸問題を解決して“長く建物を使う”為に、“減量での耐震化”と“是正での遵法化”に加えて“事業計画に基づく長期融資”も実現。時間を経て得られる豊かさの補強も意識既存写真 photo©渡邉明弘建築設計事務所

渡邉明弘建築設計事務所による、東京・杉並区の「Harport Suginami Sud」。築50年の共同住宅を再生する計画。複雑な諸問題を解決して“長く建物を使う”為に、“減量での耐震化”と“是正での遵法化”に加えて“事業計画に基づく長期融資”も実現。時間を経て得られる豊かさの補強も意識既存写真 photo©渡邉明弘建築設計事務所

渡邉明弘建築設計事務所による、東京・杉並区の「Harport Suginami Sud」。築50年の共同住宅を再生する計画。複雑な諸問題を解決して“長く建物を使う”為に、“減量での耐震化”と“是正での遵法化”に加えて“事業計画に基づく長期融資”も実現。時間を経て得られる豊かさの補強も意識施工中の様子 photo©渡邉明弘建築設計事務所

渡邉明弘建築設計事務所による、東京・杉並区の「Harport Suginami Sud」。築50年の共同住宅を再生する計画。複雑な諸問題を解決して“長く建物を使う”為に、“減量での耐震化”と“是正での遵法化”に加えて“事業計画に基づく長期融資”も実現。時間を経て得られる豊かさの補強も意識既存写真 photo©渡邉明弘建築設計事務所
以下、建築家によるテキストです。
足し引きで調和を取り戻し、時間がもたらす豊かさを補強する
東京都杉並区にある築50年の共同住宅を再生した。
建主が半世紀かけて開発する過程で、敷地には少しづつ色々な建物、緑や人々が根付き、それらが共存する暮らしが育まれている。求められたのは、この土地で最初に建てられた住棟をさらに数十年住み継げるようにすることと、そのための事業費全てに長期融資を実行することだった。
内外装やサッシ・設備を全て一新し、躯体の撤去や設備計画を含めた減量によって、補強を入れずに耐震化した。検査済証が無かったが、違反の是正と既存不適格の証明を経て「増築」の検査済証を取得した。こうした耐震化・遵法化・長寿命化は、再生に不可避の技術的問題に正面から取り組むことはもちろん、この建物と、後から出来た周辺状況とを調和させる契機にもなっている。
築古ストックの建て替えが進み急速に街並みが均質化しつつある住宅地で、耐震性や遵法性、融資付けといった築古ストック特有の問題を乗り越えながら、時間を経て得られる豊かさの補強と、そこに上書きするからこそ出来る建物のあり方を考えた。
蓄積と課題
敷地は東京郊外の住宅地。半世紀かけて根付いた複数の建物や緑、人々が共存する豊かな環境が、時間をかけて育まれていました。
一方で、
・建物は築50年になり、間取りや設備、構造躯体の劣化や陳腐化が進行していた
・法改正による様々な既存不適格に加え、相続に伴う分筆や私道の敷設により敷地の形状や接道条件が変更されていた
・第二マンションとEV棟、駐輪場などの段階的な増築が検査済証を取得せずに繰り返され、違反建築となっていた
といった問題を抱えていました。
建主の要望は、複雑に絡み合うこれらの問題を根本的に解決して今後も長く建物を使う事でした。
遵法性 / 耐震性 / 事業性を確保して長期融資を実行する
耐用年数の過ぎた建物の大掛かりな改修工事ですが、不動産賃貸業として安定した経営を続けるためには、事業費のほぼ全額について長期融資の実行が不可欠でした。
そこで、私たちは行政や金融機関と念入りに協議し、以下を設計条件に設定しました。
・遵法性:検査済証のない建物で建築確認を受け、検査済証を取得する
・耐震・耐久性:Is値0.6を確保し、旧耐震建築物でも新耐震と同様の安全性を確保する
・事業性:事業費の総額について長期融資を実行し、賃料収入で無理なく返済できる事業計画を立てる
検査済証のない建物で増築の建築確認を行う ─遵法性の確保─
既存建物は、検査済証がなかったため、遵法性に疑問のある状態でした。そこで、設計前には入念な敷地・建物の調査を実施。検査済証がないものの建設時は法令に適合していたことを確認するとともに、過去50年の間に発生した違反箇所は、今回の計画で全て是正しました。
さらに、エントランスを「増築」することで建築確認と完了検査を受けて、検査済証を取得しています。
ノイズを引き算して本来の構造形式に還元する ─耐震化─
耐震性は、雑壁2の撤去によって、補強材を設置することなく自重の軽減のみで確保しています。新しい外皮は乾式構法を使用。軽量化しながら足し算や引き算の痕跡を残しています。新耐震の建物と同等の基準であるIs値0.6以上を確保し、更に第三者の評価である構造評定も取得しました。
再生ならではの住戸計画 ─事業性─
収益に直結する住戸計画は、既存の住戸割りを維持しつつ広い間口を活かし、回遊性や変化のある空間としています。寝室とユニットバスの動線上は、外の視線も気にならないパウダールームにもなっています。
単身者向けとしたことで、子育て世帯やシルバー層が多いコミュニティの多様化にも寄与することを目指しました。
さらに、PSや水回りを屋外廊下側に計画することで、共用部から設備のメンテナンスができることや、スラブを貫通せずに横引き管を配管できるようにするなど、快適性や競争力を持たせつつ建物を長寿命化する工夫をちりばめています。
調和をもたらし、時間をかけて得られる豊さを補強する足し算と引き算
このプロジェクトでは複雑な問題を抱えていた状況をていねいに解きほぐし、色々な要素を取り除いたり付け加えたりしています。それらは単にスペックを底上げするに止まらず、敷地の周辺を含めた既存と調和をもたらすよう注意深く計画されています。
築古ストックの建て替えが進み急速に街並みが均質化しつつある住宅地で、耐震性や遵法性、融資付けといった築古ストック特有の問題を乗り越えながら、時間を経て得られる豊かさの補強と、そこに上書きするからこそ出来る建物のあり方を考えました。
竣工後、建主からは植栽や新しい駐輪場を計画したいと依頼が。50年かけて空き地を順に開墾しながら育ててきた土地が、これからは根付いた人やものに手を加えながら住み継ぐ場所になって欲しいと願っています。
■建築概要
題名:永福町大博マンション再生/Harport Suginami Sud
所在地:東京都杉並区和泉
主用途:賃貸共同住宅
設計:渡邉明弘建築設計事務所 担当/渡邉明弘、高橋歩、山崎健一
施工:清本建設
構造:対震構造エンジニアリング
電気:EOSplus
機械:テーテンス事務所
構造:鉄筋コンクリート造 一部鉄骨造
階数:地上5階
敷地面積:1,313.15㎡
建築面積:670.67㎡
延床面積:2,554.88㎡
設計:2019年1月~2023年5月
工事:2023年6月~2024年2月
竣工:2024年2月
写真:小島康敬、鳥村鋼一
建材情報| 種別 | 使用箇所 | 商品名(メーカー名) | | 外構・床 | 床 | 土間コンクリート
アスファルト舗装
|
| 外装・壁 | エントランス腰壁 | 鉄筋コンクリート
|
| 外装・壁 | 外装・壁(既存) | 躯体補修の上、塗装
|
| 外装・壁 | 外装・壁(新規) | フレキシブルボード t=5mm
|
| 外装・屋根 | 屋根 | ウレタン塗膜防水
|
| 外装・屋根 | エントランス庇 | ガルバリウム鋼板
|
| 外装・建具 | 開口部 | アルミサッシカバー工法
|
| 内装・床 | 住戸床 | フローリング t=12mm[ハピアフロア](大建工業)
|
| 内装・壁 | 住戸壁 | PB t=12.5mmの上、ビニルクロス[VSシリーズ](東リ)
|
| 内装・天井 | 住戸天井 | PB t=12.5mmの上、ビニルクロス[VSシリーズ](東リ)
|
※企業様による建材情報についてのご意見や「PR」のご相談はこちらから
※この情報は弊サイトや設計者が建材の性能等を保証するものではありません