生沼広之建築設計事務所による、東京の「中野の住宅」。住宅密集地に建つ設計者の自邸。厳しい条件下で“庭に向けた大きな窓”の実現を目指し、開口と前面道路との間に“空中を迂回する線形テラス”を設ける構成を考案。都市との緩衝帯になると共に風景に煌めきも与える俯瞰、北西側から見下ろす。 photo©関拓弥
生沼広之建築設計事務所による、東京の「中野の住宅」。住宅密集地に建つ設計者の自邸。厳しい条件下で“庭に向けた大きな窓”の実現を目指し、開口と前面道路との間に“空中を迂回する線形テラス”を設ける構成を考案。都市との緩衝帯になると共に風景に煌めきも与える外観、北側の道路より見る。 photo©関拓弥
生沼広之建築設計事務所による、東京の「中野の住宅」。住宅密集地に建つ設計者の自邸。厳しい条件下で“庭に向けた大きな窓”の実現を目指し、開口と前面道路との間に“空中を迂回する線形テラス”を設ける構成を考案。都市との緩衝帯になると共に風景に煌めきも与える2階、キッチンからダイニング越しに寝室側を見る。 photo©関拓弥
生沼広之建築設計事務所による、東京の「中野の住宅」。住宅密集地に建つ設計者の自邸。厳しい条件下で“庭に向けた大きな窓”の実現を目指し、開口と前面道路との間に“空中を迂回する線形テラス”を設ける構成を考案。都市との緩衝帯になると共に風景に煌めきも与える2.5階、寝室からダイニングとキッチンを見下ろす。 photo©関拓弥
生沼広之建築設計事務所が設計した、東京の「中野の住宅」です。
住宅密集地に建つ設計者の自邸です。建築家は、厳しい条件下で“庭に向けた大きな窓”の実現を目指し、開口と前面道路との間に“空中を迂回する線形テラス”を設ける構成を考案しました。そして、都市との緩衝帯になると共に風景に煌めきも与えます。
庭へ向けて明るく大きな窓のついた家が欲しい。この月並みな想いから自邸の計画は始まった。
しかし敷地は住戸間の見合いが起こる東京の住宅密集地であり、敷地奥に建物を大きく開くことは現実的に難しい。
そのため前面道路に向かって生活空間を開き庭を配置する方針としたが、道路は敷地の北側に位置しており、北向きの窓だけで明るい庭の風景をつくるには限界があった。
そこで2階の北側に大きな窓を開け、そこから日の光を求めるように道路際の空中を迂回する線形テラス「飾り庭」を伸ばしていく。飾り庭はやわらかい曲線を描きながら建物の影を逃れ、ダイニングの北側採光窓からの風景に煌めきを与え、都市と住宅の間に緩衝領域をつくる。
内部は敷地の高低差を利用したスキップフロアとし、道路側の飾り庭と敷地奥の奥庭のふたつの庭への視線の抜けを全体に発生させ、それらの庭を交互に望む一筆書きの螺旋形の動線を計画した。
さらに思い入れのある器、本、写真、植木などをこれまでの自分たちの生活の表象ととらえ、それらを飾りとして設えるための棚によって動線を包み込むことで、住宅に小さな美術館のような程よい緊張感をつくり、これからの生活を肌理細やかなものにするための意欲が醸成されていくと考えた。
2階の扉から飾り庭に出て植木に水を撒くと、通りすがりの人びととの会話が発生し、子供たちが喜んでいる姿が見える。
ここでは植物も含めた「飾り」が人、住まい、そして都市の心理的な繋がりを生み、個人住宅が都市に対して開かれた公器としてのふるまいを見せる。
以下の写真はクリックで拡大します

生沼広之建築設計事務所による、東京の「中野の住宅」。住宅密集地に建つ設計者の自邸。厳しい条件下で“庭に向けた大きな窓”の実現を目指し、開口と前面道路との間に“空中を迂回する線形テラス”を設ける構成を考案。都市との緩衝帯になると共に風景に煌めきも与える俯瞰、北西側から見下ろす。 photo©関拓弥

生沼広之建築設計事務所による、東京の「中野の住宅」。住宅密集地に建つ設計者の自邸。厳しい条件下で“庭に向けた大きな窓”の実現を目指し、開口と前面道路との間に“空中を迂回する線形テラス”を設ける構成を考案。都市との緩衝帯になると共に風景に煌めきも与える俯瞰、東側より「飾り庭」を見る。 photo©関拓弥

生沼広之建築設計事務所による、東京の「中野の住宅」。住宅密集地に建つ設計者の自邸。厳しい条件下で“庭に向けた大きな窓”の実現を目指し、開口と前面道路との間に“空中を迂回する線形テラス”を設ける構成を考案。都市との緩衝帯になると共に風景に煌めきも与える外観、北側の道路より見る。 photo©関拓弥

生沼広之建築設計事務所による、東京の「中野の住宅」。住宅密集地に建つ設計者の自邸。厳しい条件下で“庭に向けた大きな窓”の実現を目指し、開口と前面道路との間に“空中を迂回する線形テラス”を設ける構成を考案。都市との緩衝帯になると共に風景に煌めきも与える外観、前庭より玄関側を見る。 photo©関拓弥

生沼広之建築設計事務所による、東京の「中野の住宅」。住宅密集地に建つ設計者の自邸。厳しい条件下で“庭に向けた大きな窓”の実現を目指し、開口と前面道路との間に“空中を迂回する線形テラス”を設ける構成を考案。都市との緩衝帯になると共に風景に煌めきも与える1階、玄関から客間への階段を見る。 photo©関拓弥

生沼広之建築設計事務所による、東京の「中野の住宅」。住宅密集地に建つ設計者の自邸。厳しい条件下で“庭に向けた大きな窓”の実現を目指し、開口と前面道路との間に“空中を迂回する線形テラス”を設ける構成を考案。都市との緩衝帯になると共に風景に煌めきも与える1階、階段側から客間を見る。 photo©関拓弥

生沼広之建築設計事務所による、東京の「中野の住宅」。住宅密集地に建つ設計者の自邸。厳しい条件下で“庭に向けた大きな窓”の実現を目指し、開口と前面道路との間に“空中を迂回する線形テラス”を設ける構成を考案。都市との緩衝帯になると共に風景に煌めきも与える1階、客間 photo©関拓弥

生沼広之建築設計事務所による、東京の「中野の住宅」。住宅密集地に建つ設計者の自邸。厳しい条件下で“庭に向けた大きな窓”の実現を目指し、開口と前面道路との間に“空中を迂回する線形テラス”を設ける構成を考案。都市との緩衝帯になると共に風景に煌めきも与える1階、客間から2階のダイニング側を見る。 photo©関拓弥

生沼広之建築設計事務所による、東京の「中野の住宅」。住宅密集地に建つ設計者の自邸。厳しい条件下で“庭に向けた大きな窓”の実現を目指し、開口と前面道路との間に“空中を迂回する線形テラス”を設ける構成を考案。都市との緩衝帯になると共に風景に煌めきも与える2階への階段からダイニングを見る。 photo©関拓弥

生沼広之建築設計事務所による、東京の「中野の住宅」。住宅密集地に建つ設計者の自邸。厳しい条件下で“庭に向けた大きな窓”の実現を目指し、開口と前面道路との間に“空中を迂回する線形テラス”を設ける構成を考案。都市との緩衝帯になると共に風景に煌めきも与える2階、ダイニングからキッチンを見る。 photo©関拓弥

生沼広之建築設計事務所による、東京の「中野の住宅」。住宅密集地に建つ設計者の自邸。厳しい条件下で“庭に向けた大きな窓”の実現を目指し、開口と前面道路との間に“空中を迂回する線形テラス”を設ける構成を考案。都市との緩衝帯になると共に風景に煌めきも与える2階、左:キッチン、中央手前:ダイニング、右奥:寝室 photo©生沼広之

生沼広之建築設計事務所による、東京の「中野の住宅」。住宅密集地に建つ設計者の自邸。厳しい条件下で“庭に向けた大きな窓”の実現を目指し、開口と前面道路との間に“空中を迂回する線形テラス”を設ける構成を考案。都市との緩衝帯になると共に風景に煌めきも与える2階、キッチンからダイニング越しに寝室側を見る。 photo©関拓弥

生沼広之建築設計事務所による、東京の「中野の住宅」。住宅密集地に建つ設計者の自邸。厳しい条件下で“庭に向けた大きな窓”の実現を目指し、開口と前面道路との間に“空中を迂回する線形テラス”を設ける構成を考案。都市との緩衝帯になると共に風景に煌めきも与える2階、ダイニング photo©関拓弥

生沼広之建築設計事務所による、東京の「中野の住宅」。住宅密集地に建つ設計者の自邸。厳しい条件下で“庭に向けた大きな窓”の実現を目指し、開口と前面道路との間に“空中を迂回する線形テラス”を設ける構成を考案。都市との緩衝帯になると共に風景に煌めきも与える2階、ダイニングから寝室側を見る。 photo©関拓弥

生沼広之建築設計事務所による、東京の「中野の住宅」。住宅密集地に建つ設計者の自邸。厳しい条件下で“庭に向けた大きな窓”の実現を目指し、開口と前面道路との間に“空中を迂回する線形テラス”を設ける構成を考案。都市との緩衝帯になると共に風景に煌めきも与える2.5階、寝室 photo©関拓弥

生沼広之建築設計事務所による、東京の「中野の住宅」。住宅密集地に建つ設計者の自邸。厳しい条件下で“庭に向けた大きな窓”の実現を目指し、開口と前面道路との間に“空中を迂回する線形テラス”を設ける構成を考案。都市との緩衝帯になると共に風景に煌めきも与える2.5階、寝室からダイニングとキッチンを見下ろす。 photo©関拓弥

生沼広之建築設計事務所による、東京の「中野の住宅」。住宅密集地に建つ設計者の自邸。厳しい条件下で“庭に向けた大きな窓”の実現を目指し、開口と前面道路との間に“空中を迂回する線形テラス”を設ける構成を考案。都市との緩衝帯になると共に風景に煌めきも与える2.5階、寝室からダイニングとキッチンを見下ろす。 photo©生沼広之

生沼広之建築設計事務所による、東京の「中野の住宅」。住宅密集地に建つ設計者の自邸。厳しい条件下で“庭に向けた大きな窓”の実現を目指し、開口と前面道路との間に“空中を迂回する線形テラス”を設ける構成を考案。都市との緩衝帯になると共に風景に煌めきも与える2階、ダイニングから開口部越しに「飾り庭」を見る。 photo©生沼広之

生沼広之建築設計事務所による、東京の「中野の住宅」。住宅密集地に建つ設計者の自邸。厳しい条件下で“庭に向けた大きな窓”の実現を目指し、開口と前面道路との間に“空中を迂回する線形テラス”を設ける構成を考案。都市との緩衝帯になると共に風景に煌めきも与える1階、「土間庭」 photo©生沼広之

生沼広之建築設計事務所による、東京の「中野の住宅」。住宅密集地に建つ設計者の自邸。厳しい条件下で“庭に向けた大きな窓”の実現を目指し、開口と前面道路との間に“空中を迂回する線形テラス”を設ける構成を考案。都市との緩衝帯になると共に風景に煌めきも与える1階、客間から開口部越しに「奥庭」を見る。 photo©生沼広之

生沼広之建築設計事務所による、東京の「中野の住宅」。住宅密集地に建つ設計者の自邸。厳しい条件下で“庭に向けた大きな窓”の実現を目指し、開口と前面道路との間に“空中を迂回する線形テラス”を設ける構成を考案。都市との緩衝帯になると共に風景に煌めきも与える「飾り庭」 photo©生沼広之

生沼広之建築設計事務所による、東京の「中野の住宅」。住宅密集地に建つ設計者の自邸。厳しい条件下で“庭に向けた大きな窓”の実現を目指し、開口と前面道路との間に“空中を迂回する線形テラス”を設ける構成を考案。都市との緩衝帯になると共に風景に煌めきも与える2階、外部の水栓 photo©生沼広之

生沼広之建築設計事務所による、東京の「中野の住宅」。住宅密集地に建つ設計者の自邸。厳しい条件下で“庭に向けた大きな窓”の実現を目指し、開口と前面道路との間に“空中を迂回する線形テラス”を設ける構成を考案。都市との緩衝帯になると共に風景に煌めきも与える前庭から「飾り庭」の階段を見る。 photo©生沼広之

生沼広之建築設計事務所による、東京の「中野の住宅」。住宅密集地に建つ設計者の自邸。厳しい条件下で“庭に向けた大きな窓”の実現を目指し、開口と前面道路との間に“空中を迂回する線形テラス”を設ける構成を考案。都市との緩衝帯になると共に風景に煌めきも与える外観、北側の道路より見る。夕景 photo©関拓弥

生沼広之建築設計事務所による、東京の「中野の住宅」。住宅密集地に建つ設計者の自邸。厳しい条件下で“庭に向けた大きな窓”の実現を目指し、開口と前面道路との間に“空中を迂回する線形テラス”を設ける構成を考案。都市との緩衝帯になると共に風景に煌めきも与える1階平面図 image©生沼広之建築設計事務所

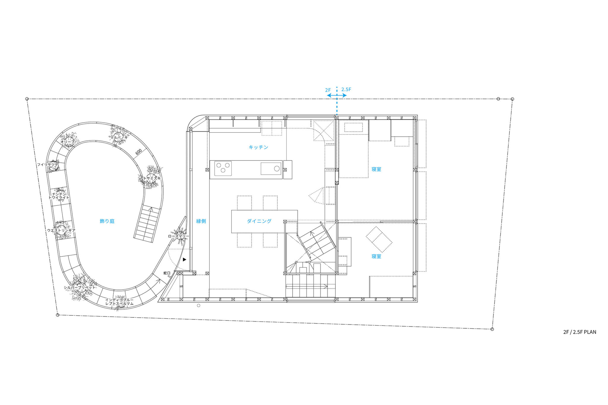
生沼広之建築設計事務所による、東京の「中野の住宅」。住宅密集地に建つ設計者の自邸。厳しい条件下で“庭に向けた大きな窓”の実現を目指し、開口と前面道路との間に“空中を迂回する線形テラス”を設ける構成を考案。都市との緩衝帯になると共に風景に煌めきも与える2階平面図 image©生沼広之建築設計事務所

生沼広之建築設計事務所による、東京の「中野の住宅」。住宅密集地に建つ設計者の自邸。厳しい条件下で“庭に向けた大きな窓”の実現を目指し、開口と前面道路との間に“空中を迂回する線形テラス”を設ける構成を考案。都市との緩衝帯になると共に風景に煌めきも与える断面詳細図 image©生沼広之建築設計事務所

生沼広之建築設計事務所による、東京の「中野の住宅」。住宅密集地に建つ設計者の自邸。厳しい条件下で“庭に向けた大きな窓”の実現を目指し、開口と前面道路との間に“空中を迂回する線形テラス”を設ける構成を考案。都市との緩衝帯になると共に風景に煌めきも与えるアクソメ図 image©生沼広之建築設計事務所
以下、建築家によるテキストです。
「飾り」が繋ぐ人・住宅・都市
庭へ向けて明るく大きな窓のついた家が欲しい。この月並みな想いから自邸の計画は始まった。
しかし敷地は住戸間の見合いが起こる東京の住宅密集地であり、敷地奥に建物を大きく開くことは現実的に難しい。
そのため前面道路に向かって生活空間を開き庭を配置する方針としたが、道路は敷地の北側に位置しており、北向きの窓だけで明るい庭の風景をつくるには限界があった。
そこで2階の北側に大きな窓を開け、そこから日の光を求めるように道路際の空中を迂回する線形テラス「飾り庭」を伸ばしていく。飾り庭はやわらかい曲線を描きながら建物の影を逃れ、ダイニングの北側採光窓からの風景に煌めきを与え、都市と住宅の間に緩衝領域をつくる。
内部は敷地の高低差を利用したスキップフロアとし、道路側の飾り庭と敷地奥の奥庭のふたつの庭への視線の抜けを全体に発生させ、それらの庭を交互に望む一筆書きの螺旋形の動線を計画した。
さらに思い入れのある器、本、写真、植木などをこれまでの自分たちの生活の表象ととらえ、それらを飾りとして設えるための棚によって動線を包み込むことで、住宅に小さな美術館のような程よい緊張感をつくり、これからの生活を肌理細やかなものにするための意欲が醸成されていくと考えた。
2階の扉から飾り庭に出て植木に水を撒くと、通りすがりの人びととの会話が発生し、子供たちが喜んでいる姿が見える。
ここでは植物も含めた「飾り」が人、住まい、そして都市の心理的な繋がりを生み、個人住宅が都市に対して開かれた公器としてのふるまいを見せる。
アールヌーヴォーやポストモダンのように建築そのものに装飾表現を施すのではなく、現代で通俗的に批判されがちな建築における装飾の新しい形式と役割を示し、都市住宅での生活に彩りを添える。
■建築概要
題名:中野の住宅
所在地:東京都中野区
主用途:住宅
設計:生沼広之建築設計事務所 担当/生沼広之
構造:三野建築構造研究所 担当/三野裕太
施工:山下工務店 担当/前田佳臣
構造:木造在来工法
階数:地上2階
敷地面積:126.50㎡
建築面積:61.27㎡
延床面積:96.38㎡
設計:2022年7月~2024年6月
工事:2024年7月~2025年4月
写真:関拓弥、生沼広之