
SHARE 五十嵐理人 / IGArchitectsによる、東京の「〇」。オフィスの1層を多用途に使える場とする計画。“使い方が更新され続ける”与件に対し、“空間の余地”自体を“空間の構成”とする設計を志向。スケールレスな“6つのリング”で変化に耐えうる“骨格”を創り出す




五十嵐理人 / IGArchitectsが設計した、東京の「〇」です。
オフィスの1層を多用途に使える場とする計画です。建築家は、“使い方が更新され続ける”与件に対し、“空間の余地”自体を“空間の構成”とする設計を志向しました。そして、スケールレスな“6つのリング”で変化に耐えうる“骨格”を創り出しました。
渋谷のオフィス・ワンフロアの改修の計画。
このプロジェクトで求められたのは、特定の用途に回収されるオフィスではなく、社員の福利厚生、レセプションなど、用途が固定されない複数の振る舞いを受け止める場であった。
打合せを重ねる中で、クライアントがワンフロアの内部に、空間の偏りや居場所のイメージを感覚的に持っていることがわかってきた。
このプロジェクトでは、そうした曖昧な用途や機能を空間として定着させるのではなく、使われ方が更新され続ける空間の余地そのものを空間の構成として立ち上げることを試みている。
内部に潜在する環境の差異や関係性を読み替え、それらを切断するのでも、明確にゾーニングするのでもない、共存のための構成を探った。
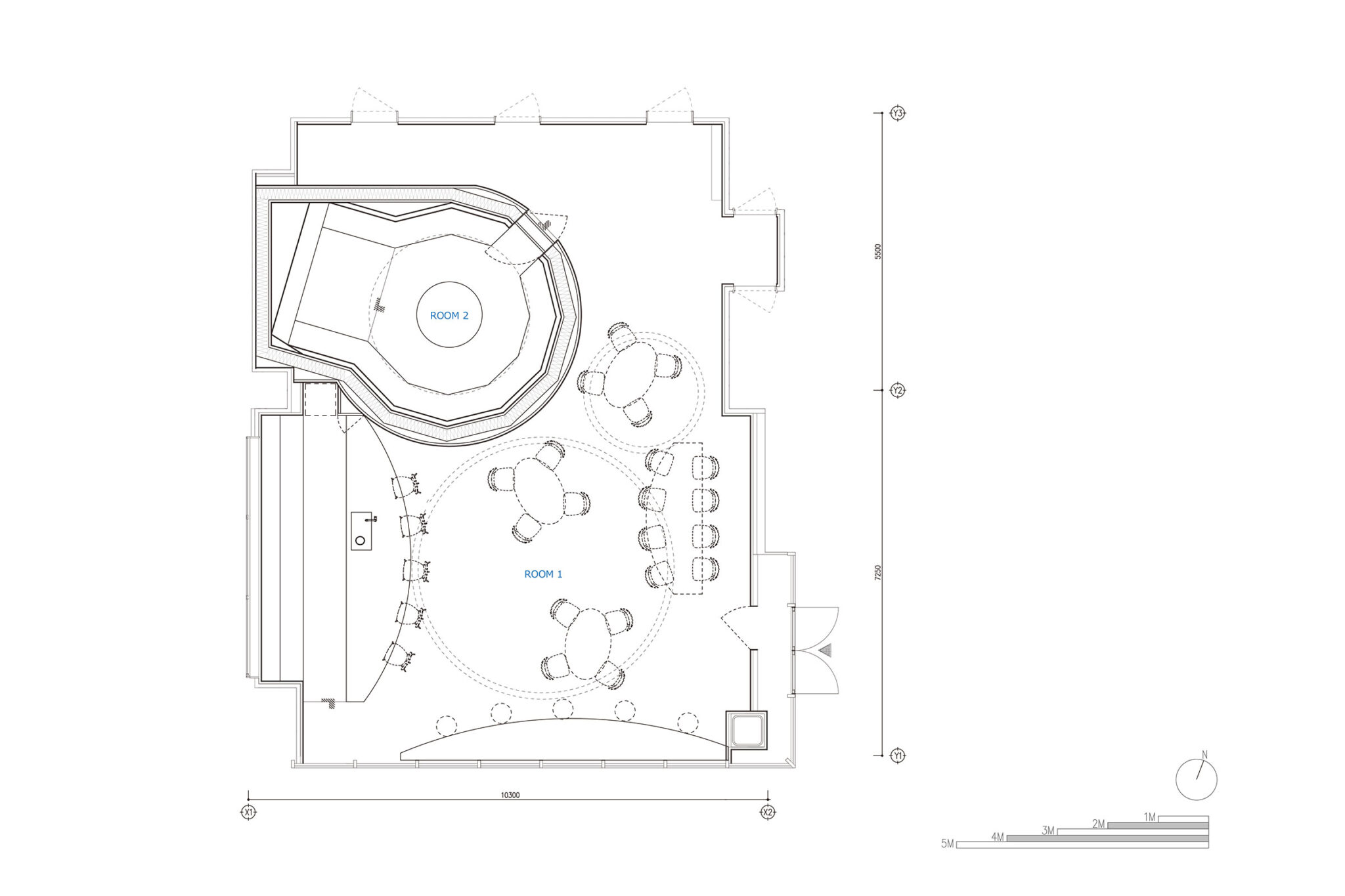
フロア内部には、建築的要素から家具的要素までを横断するスケールレスな6つのリングが挿入されている。
これらのリングは、空間を仕切る壁でも、明確な部屋でもなく、人の滞留や視線、行為を緩やかに誘導する存在として配置された。つなぐこと、切り離すこと、包み込むこと、外部へと開くことといった相反する性質を併せ持ちながら、空間に引力と斥力を生み出し、人と空間の関係を更新し続ける。このリング群によって構成されるワンフロアは、明確な中心や周縁を持たず、用途や居方が常に揺れ動く場となる。空間は固定された意味を持たず、単一の用途に回収されることもない。人の行為や状況に応じて関係性が立ち上がり、使われ方がずれたり、重なったりしながら更新され続ける。
以下の写真はクリックで拡大します























以下、建築家によるテキストです。
渋谷のオフィス・ワンフロアの改修の計画。
このプロジェクトで求められたのは、特定の用途に回収されるオフィスではなく、社員の福利厚生、レセプションなど、用途が固定されない複数の振る舞いを受け止める場であった。
打合せを重ねる中で、クライアントがワンフロアの内部に、空間の偏りや居場所のイメージを感覚的に持っていることがわかってきた。
このプロジェクトでは、そうした曖昧な用途や機能を空間として定着させるのではなく、使われ方が更新され続ける空間の余地そのものを空間の構成として立ち上げることを試みている。
内部に潜在する環境の差異や関係性を読み替え、それらを切断するのでも、明確にゾーニングするのでもない、共存のための構成を探った。
フロア内部には、建築的要素から家具的要素までを横断するスケールレスな6つのリングが挿入されている。
これらのリングは、空間を仕切る壁でも、明確な部屋でもなく、人の滞留や視線、行為を緩やかに誘導する存在として配置された。つなぐこと、切り離すこと、包み込むこと、外部へと開くことといった相反する性質を併せ持ちながら、空間に引力と斥力を生み出し、人と空間の関係を更新し続ける。
このリング群によって構成されるワンフロアは、明確な中心や周縁を持たず、用途や居方が常に揺れ動く場となる。空間は固定された意味を持たず、単一の用途に回収されることもない。人の行為や状況に応じて関係性が立ち上がり、使われ方がずれたり、重なったりしながら更新され続ける。
クライアントの要望に対して直接的に応答しながらも、それらを一つの用途や機能に定めることなく、リングの構成によって、変化に耐えうる空間の骨格をつくりだした。
今の時代において、オフィスという言葉では括りきれない多様な機能や振る舞いが、フロアの中で重なり広がっている。
■建築概要
題名:〇
所在地:東京都
用途:事務所
設計監理:IGArchitects 担当/五十嵐理人、矢崎裕希
施工:GALAS 担当/大片健太郎、石井健、千葉秀一
厨房機器:マルゼン 細田廣宣
構造規模:鉄骨造5階のワンフロア
改修面積:132.50㎡
設計期間:2025年9月~2025年9月
工事期間:2025年10月~2025年11月
竣工年:2025年12月
写真:合同会社神宮巨樹 神宮巨樹
| 種別 | 使用箇所 | 商品名(メーカー名) |
|---|---|---|
| 内装・床 | 主要箇所 床 | タイル |
| 内装・壁 | 主要箇所 壁 | 左官仕上げ |
| 内装・天井 | 主要箇所 天井 | あらわし |
| 内装・キッチン | キッチン | マルゼン |
※企業様による建材情報についてのご意見や「PR」のご相談はこちらから
※この情報は弊サイトや設計者が建材の性能等を保証するものではありません
This project involves the renovation of a single-floor office in Shibuya. Rather than an office organized around a specific, fixed function, the brief called for a place capable of accommodating multiple, unfixed modes of use, including employee welfare, receptions, and other forms of gathering.
Through a series of discussions, it became clear that the client held an intuitive sense of spatial bias and imagined places of occupation within the single floor. Instead of fixing these ambiguous uses and functions into predetermined spaces, the project attempts to give form to the spatial margin itself—one that allows patterns of use to be continually updated. By reinterpreting latent environmental differences and relationships within the floor, the design explores a configuration for coexistence that neither fragments the space nor relies on clear zoning.
Inserted within the floor are six scaleless rings that span from architectural elements to furniture-like components. These rings are neither walls that divide space nor clearly defined rooms; rather, they are positioned as devices that gently guide occupation, sightlines, and actions. Holding opposing qualities simultaneously—connecting and separating, enclosing and opening outward—they generate forces of attraction and repulsion, continuously renewing the relationship between people and space.
The single floor composed by these rings has neither a clear center nor a periphery, becoming a field in which uses and modes of occupation constantly fluctuate. The space does not carry a fixed meaning, nor is it subsumed into a single function. Relationships emerge in response to actions and situations, and patterns of use shift, overlap, and are repeatedly renewed over time.
While responding directly to the client’s requests, the project avoids defining them as singular uses or functions. Through the configuration of the rings, it establishes a spatial framework capable of withstanding change. In the contemporary context, a diversity of functions and behaviors that cannot be encompassed by the term “office” overlap and extend throughout the floor.
〇
Project location: Tokyo , Japan
Architecture Firm: IGArchitects
Lead Architects: IGArchitects Masato Igarashi
Gross Built Area: 132.50㎡
Completion Year: November, 2025
Photo credits: Ooki Jingu


