橋本卓磨 / oocによる、東京・中央区の「o tokyo」。自身のオフィス兼カフェの計画。物が潜在的に持つ“存在としての美しさ”に興味を持ち、石や人工物などの“連続から成る什器”を中心に据える空間を考案。予期しない違和感や非日常が創造の原点となる環境も意図西側の道路より開口部越しに内部を見る。夕景 photo©橋本越百
橋本卓磨 / oocによる、東京・中央区の「o tokyo」。自身のオフィス兼カフェの計画。物が潜在的に持つ“存在としての美しさ”に興味を持ち、石や人工物などの“連続から成る什器”を中心に据える空間を考案。予期しない違和感や非日常が創造の原点となる環境も意図「テーブル4」とキッチン photo©橋本越百
橋本卓磨 / oocによる、東京・中央区の「o tokyo」。自身のオフィス兼カフェの計画。物が潜在的に持つ“存在としての美しさ”に興味を持ち、石や人工物などの“連続から成る什器”を中心に据える空間を考案。予期しない違和感や非日常が創造の原点となる環境も意図奥から、「テーブル1」「テーブル2」「テーブル3」。 photo©橋本越百
橋本卓磨 / oocによる、東京・中央区の「o tokyo」。自身のオフィス兼カフェの計画。物が潜在的に持つ“存在としての美しさ”に興味を持ち、石や人工物などの“連続から成る什器”を中心に据える空間を考案。予期しない違和感や非日常が創造の原点となる環境も意図左奥:「テーブル1」、中央:「テーブル2」右手前:「テーブル3」 photo©橋本越百
橋本卓磨 / oocが設計した、東京・中央区の「o tokyo」です。
自身のオフィス兼カフェの計画です。建築家は、物が潜在的に持つ“存在としての美しさ”に興味を持ち、石や人工物などの“連続から成る什器”を中心に据える空間を考案しました。また、予期しない違和感や非日常が創造の原点となる環境も意図されました。店舗の場所はこちら(Google Map)。
意味のないモノが潜在的にもっている「存在」としての美しさに興味がある。
時間の経過に伴って機能的意義を失った構造体。人知れずそこに存在しているだけの石。制作した人の時間軸を超えて数百年かけて自然に還る人工物。意図が消失して、物体としての形象のみが存在している状態をモニュメントと定義して、その連続から成る什器を計画した。
空間の用途は、自社のオフィス兼カフェであり、街に開いた空間になることを意図した。
ここでは様々なバックグラウンドを持つ方々が自由にクリエイションを拡張していく風景が生まれることを目指している。誰かが持ち込んだ概念や物が、文脈なくこの場所に併置される状態を受け入れることで、予期しなかった違和感や非日常がクリエイションの原点となることを期待している。
制作プロセスとしては、全体の形は検討せずに素材を集めるなかでその特性を理解しながら設計を進めた。
様々なモノが脈絡なく併存するという空間のコンセプトを象徴するように、意味や文脈から検討せず素材と向き合うなかで形態を導き出し、什器として成り立たせるときに建築構造やディテールを再解釈して用いている。
意味や背景に囚われず、マテリアルそのものに焦点を当てることで、物質がもつそれ自体の存在価値を模索している。
以下の写真はクリックで拡大します

橋本卓磨 / oocによる、東京・中央区の「o tokyo」。自身のオフィス兼カフェの計画。物が潜在的に持つ“存在としての美しさ”に興味を持ち、石や人工物などの“連続から成る什器”を中心に据える空間を考案。予期しない違和感や非日常が創造の原点となる環境も意図西側の道路より開口部越しに内部を見る。夕景 photo©橋本越百

橋本卓磨 / oocによる、東京・中央区の「o tokyo」。自身のオフィス兼カフェの計画。物が潜在的に持つ“存在としての美しさ”に興味を持ち、石や人工物などの“連続から成る什器”を中心に据える空間を考案。予期しない違和感や非日常が創造の原点となる環境も意図西側の道路より開口部越しに内部を見る。夕景 photo©橋本越百

橋本卓磨 / oocによる、東京・中央区の「o tokyo」。自身のオフィス兼カフェの計画。物が潜在的に持つ“存在としての美しさ”に興味を持ち、石や人工物などの“連続から成る什器”を中心に据える空間を考案。予期しない違和感や非日常が創造の原点となる環境も意図エントランスから開口部越しに内部を見る。 photo©橋本越百

橋本卓磨 / oocによる、東京・中央区の「o tokyo」。自身のオフィス兼カフェの計画。物が潜在的に持つ“存在としての美しさ”に興味を持ち、石や人工物などの“連続から成る什器”を中心に据える空間を考案。予期しない違和感や非日常が創造の原点となる環境も意図エントランスから開口部越しに内部を見る。 photo©橋本越百

橋本卓磨 / oocによる、東京・中央区の「o tokyo」。自身のオフィス兼カフェの計画。物が潜在的に持つ“存在としての美しさ”に興味を持ち、石や人工物などの“連続から成る什器”を中心に据える空間を考案。予期しない違和感や非日常が創造の原点となる環境も意図エントランス側から「テーブル4」とキッチンを見る。 photo©橋本越百

橋本卓磨 / oocによる、東京・中央区の「o tokyo」。自身のオフィス兼カフェの計画。物が潜在的に持つ“存在としての美しさ”に興味を持ち、石や人工物などの“連続から成る什器”を中心に据える空間を考案。予期しない違和感や非日常が創造の原点となる環境も意図「テーブル4」とキッチン photo©橋本越百

橋本卓磨 / oocによる、東京・中央区の「o tokyo」。自身のオフィス兼カフェの計画。物が潜在的に持つ“存在としての美しさ”に興味を持ち、石や人工物などの“連続から成る什器”を中心に据える空間を考案。予期しない違和感や非日常が創造の原点となる環境も意図エントランス側から「テーブル3」「テーブル2」「テーブル1」を見る。 photo©橋本越百

橋本卓磨 / oocによる、東京・中央区の「o tokyo」。自身のオフィス兼カフェの計画。物が潜在的に持つ“存在としての美しさ”に興味を持ち、石や人工物などの“連続から成る什器”を中心に据える空間を考案。予期しない違和感や非日常が創造の原点となる環境も意図奥から、「テーブル1」「テーブル2」「テーブル3」。 photo©橋本越百

橋本卓磨 / oocによる、東京・中央区の「o tokyo」。自身のオフィス兼カフェの計画。物が潜在的に持つ“存在としての美しさ”に興味を持ち、石や人工物などの“連続から成る什器”を中心に据える空間を考案。予期しない違和感や非日常が創造の原点となる環境も意図奥から、「テーブル1」「テーブル2」「テーブル3」。 photo©橋本越百

橋本卓磨 / oocによる、東京・中央区の「o tokyo」。自身のオフィス兼カフェの計画。物が潜在的に持つ“存在としての美しさ”に興味を持ち、石や人工物などの“連続から成る什器”を中心に据える空間を考案。予期しない違和感や非日常が創造の原点となる環境も意図「テーブル3」 photo©橋本越百

橋本卓磨 / oocによる、東京・中央区の「o tokyo」。自身のオフィス兼カフェの計画。物が潜在的に持つ“存在としての美しさ”に興味を持ち、石や人工物などの“連続から成る什器”を中心に据える空間を考案。予期しない違和感や非日常が創造の原点となる環境も意図「テーブル3」 photo©橋本越百

橋本卓磨 / oocによる、東京・中央区の「o tokyo」。自身のオフィス兼カフェの計画。物が潜在的に持つ“存在としての美しさ”に興味を持ち、石や人工物などの“連続から成る什器”を中心に据える空間を考案。予期しない違和感や非日常が創造の原点となる環境も意図左奥:「テーブル1」、中央:「テーブル2」右手前:「テーブル3」 photo©橋本越百

橋本卓磨 / oocによる、東京・中央区の「o tokyo」。自身のオフィス兼カフェの計画。物が潜在的に持つ“存在としての美しさ”に興味を持ち、石や人工物などの“連続から成る什器”を中心に据える空間を考案。予期しない違和感や非日常が創造の原点となる環境も意図左奥:「テーブル2」、右手前:「テーブル1」 photo©橋本越百

橋本卓磨 / oocによる、東京・中央区の「o tokyo」。自身のオフィス兼カフェの計画。物が潜在的に持つ“存在としての美しさ”に興味を持ち、石や人工物などの“連続から成る什器”を中心に据える空間を考案。予期しない違和感や非日常が創造の原点となる環境も意図テスク側から「テーブル1」「テーブル2」「テーブル3」を見る。 photo©橋本越百

橋本卓磨 / oocによる、東京・中央区の「o tokyo」。自身のオフィス兼カフェの計画。物が潜在的に持つ“存在としての美しさ”に興味を持ち、石や人工物などの“連続から成る什器”を中心に据える空間を考案。予期しない違和感や非日常が創造の原点となる環境も意図「テーブル2」側からキッチンと「テーブル4」を見る。 photo©橋本越百

橋本卓磨 / oocによる、東京・中央区の「o tokyo」。自身のオフィス兼カフェの計画。物が潜在的に持つ“存在としての美しさ”に興味を持ち、石や人工物などの“連続から成る什器”を中心に据える空間を考案。予期しない違和感や非日常が創造の原点となる環境も意図「テーブル2」側からキッチンと「テーブル4」を見る。 photo©橋本越百

橋本卓磨 / oocによる、東京・中央区の「o tokyo」。自身のオフィス兼カフェの計画。物が潜在的に持つ“存在としての美しさ”に興味を持ち、石や人工物などの“連続から成る什器”を中心に据える空間を考案。予期しない違和感や非日常が創造の原点となる環境も意図「テーブル3」の詳細 photo©橋本越百

橋本卓磨 / oocによる、東京・中央区の「o tokyo」。自身のオフィス兼カフェの計画。物が潜在的に持つ“存在としての美しさ”に興味を持ち、石や人工物などの“連続から成る什器”を中心に据える空間を考案。予期しない違和感や非日常が創造の原点となる環境も意図「テーブル3」の詳細 photo©橋本越百

橋本卓磨 / oocによる、東京・中央区の「o tokyo」。自身のオフィス兼カフェの計画。物が潜在的に持つ“存在としての美しさ”に興味を持ち、石や人工物などの“連続から成る什器”を中心に据える空間を考案。予期しない違和感や非日常が創造の原点となる環境も意図「テーブル3」の詳細 photo©橋本越百

橋本卓磨 / oocによる、東京・中央区の「o tokyo」。自身のオフィス兼カフェの計画。物が潜在的に持つ“存在としての美しさ”に興味を持ち、石や人工物などの“連続から成る什器”を中心に据える空間を考案。予期しない違和感や非日常が創造の原点となる環境も意図「テーブル2」の詳細 photo©橋本越百

橋本卓磨 / oocによる、東京・中央区の「o tokyo」。自身のオフィス兼カフェの計画。物が潜在的に持つ“存在としての美しさ”に興味を持ち、石や人工物などの“連続から成る什器”を中心に据える空間を考案。予期しない違和感や非日常が創造の原点となる環境も意図「テーブル2」の詳細 photo©橋本越百

橋本卓磨 / oocによる、東京・中央区の「o tokyo」。自身のオフィス兼カフェの計画。物が潜在的に持つ“存在としての美しさ”に興味を持ち、石や人工物などの“連続から成る什器”を中心に据える空間を考案。予期しない違和感や非日常が創造の原点となる環境も意図「テーブル1」の詳細 photo©橋本越百

橋本卓磨 / oocによる、東京・中央区の「o tokyo」。自身のオフィス兼カフェの計画。物が潜在的に持つ“存在としての美しさ”に興味を持ち、石や人工物などの“連続から成る什器”を中心に据える空間を考案。予期しない違和感や非日常が創造の原点となる環境も意図「テーブル1」の詳細 photo©橋本越百

橋本卓磨 / oocによる、東京・中央区の「o tokyo」。自身のオフィス兼カフェの計画。物が潜在的に持つ“存在としての美しさ”に興味を持ち、石や人工物などの“連続から成る什器”を中心に据える空間を考案。予期しない違和感や非日常が創造の原点となる環境も意図サイン。夕景 photo©橋本越百

橋本卓磨 / oocによる、東京・中央区の「o tokyo」。自身のオフィス兼カフェの計画。物が潜在的に持つ“存在としての美しさ”に興味を持ち、石や人工物などの“連続から成る什器”を中心に据える空間を考案。予期しない違和感や非日常が創造の原点となる環境も意図オフィス兼カフェの入る建物の外観を見る。夕景 photo©橋本越百

橋本卓磨 / oocによる、東京・中央区の「o tokyo」。自身のオフィス兼カフェの計画。物が潜在的に持つ“存在としての美しさ”に興味を持ち、石や人工物などの“連続から成る什器”を中心に据える空間を考案。予期しない違和感や非日常が創造の原点となる環境も意図歩道より開口部越しに内部を見る。夕景 photo©橋本越百

橋本卓磨 / oocによる、東京・中央区の「o tokyo」。自身のオフィス兼カフェの計画。物が潜在的に持つ“存在としての美しさ”に興味を持ち、石や人工物などの“連続から成る什器”を中心に据える空間を考案。予期しない違和感や非日常が創造の原点となる環境も意図歩道より開口部越しに内部を見る。夕景 photo©橋本越百

橋本卓磨 / oocによる、東京・中央区の「o tokyo」。自身のオフィス兼カフェの計画。物が潜在的に持つ“存在としての美しさ”に興味を持ち、石や人工物などの“連続から成る什器”を中心に据える空間を考案。予期しない違和感や非日常が創造の原点となる環境も意図歩道より開口部越しに内部を見る。夕景 photo©橋本越百

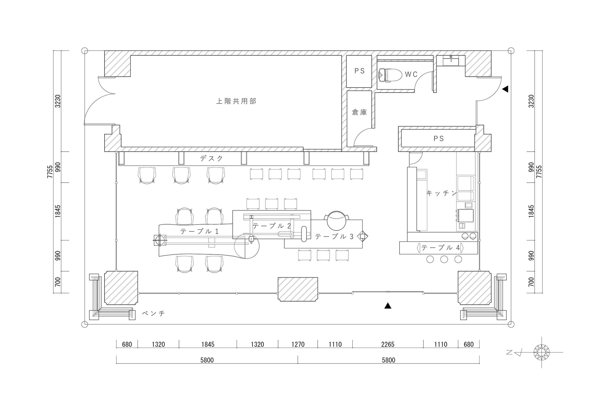
橋本卓磨 / oocによる、東京・中央区の「o tokyo」。自身のオフィス兼カフェの計画。物が潜在的に持つ“存在としての美しさ”に興味を持ち、石や人工物などの“連続から成る什器”を中心に据える空間を考案。予期しない違和感や非日常が創造の原点となる環境も意図平面図 image©ooc

橋本卓磨 / oocによる、東京・中央区の「o tokyo」。自身のオフィス兼カフェの計画。物が潜在的に持つ“存在としての美しさ”に興味を持ち、石や人工物などの“連続から成る什器”を中心に据える空間を考案。予期しない違和感や非日常が創造の原点となる環境も意図断面図 image©ooc

橋本卓磨 / oocによる、東京・中央区の「o tokyo」。自身のオフィス兼カフェの計画。物が潜在的に持つ“存在としての美しさ”に興味を持ち、石や人工物などの“連続から成る什器”を中心に据える空間を考案。予期しない違和感や非日常が創造の原点となる環境も意図テーブル詳細図 image©ooc

橋本卓磨 / oocによる、東京・中央区の「o tokyo」。自身のオフィス兼カフェの計画。物が潜在的に持つ“存在としての美しさ”に興味を持ち、石や人工物などの“連続から成る什器”を中心に据える空間を考案。予期しない違和感や非日常が創造の原点となる環境も意図テーブルアクソメ図 image©ooc
以下、建築家によるテキストです。
意味のないモノが潜在的にもっている「存在」としての美しさに興味がある。
時間の経過に伴って機能的意義を失った構造体。人知れずそこに存在しているだけの石。制作した人の時間軸を超えて数百年かけて自然に還る人工物。意図が消失して、物体としての形象のみが存在している状態をモニュメントと定義して、その連続から成る什器を計画した。
空間の用途は、自社のオフィス兼カフェであり、街に開いた空間になることを意図した。
ここでは様々なバックグラウンドを持つ方々が自由にクリエイションを拡張していく風景が生まれることを目指している。誰かが持ち込んだ概念や物が、文脈なくこの場所に併置される状態を受け入れることで、予期しなかった違和感や非日常がクリエイションの原点となることを期待している。
制作プロセスとしては、全体の形は検討せずに素材を集めるなかでその特性を理解しながら設計を進めた。
様々なモノが脈絡なく併存するという空間のコンセプトを象徴するように、意味や文脈から検討せず素材と向き合うなかで形態を導き出し、什器として成り立たせるときに建築構造やディテールを再解釈して用いている。
意味や背景に囚われず、マテリアルそのものに焦点を当てることで、物質がもつそれ自体の存在価値を模索している。
■建築概要
題名:o tokyo
所在地:東京都中央区新富1-12-12
主用途:オフィス・カフェ
設計:ooc 担当/橋本卓磨
施工:ooc
協力:ひととき
延床面積:64.05㎡
設計:2024年8月~2024年10月
施工:2024年11月~2025年5月
写真:橋本越百
建材情報| 種別 | 使用箇所 | 商品名(メーカー名) | | 内装・造作家具 | テーブル1 | 天板:紫檀 t=60の上, オイル塗装
貫材:胡桃突板
脚:青石磨き仕上げ、鉄板 t=15真鍮メッキ仕上げ
|
| 内装・造作家具 | テーブル2 | 天板:セルセメントt=3
桟材:桧35角、桧105角、磨き丸太105Φ
脚:黒御影石Φ800、栗150角、ユーカリ原木
脚:特殊左官t=5、タイルt=10、磨き丸太105Φ
|
| 内装・造作家具 | テーブル3 | 天板:ボグオーク突板
脚:版築左官t=10、鉄板 t=4
|
| 内装・造作家具 | テーブル4 | 天板:左官研ぎ出しt=3
脚:楡突板、特殊左官
|
| 内装・造作家具 | デスク | 天板:オーク突板の上、ウレタン塗装
脚:トラバーチンt=15
|
※企業様による建材情報についてのご意見や「PR」のご相談はこちらから
※この情報は弊サイトや設計者が建材の性能等を保証するものではありません