田邉雄之建築設計事務所による、神奈川・鎌倉市の「桟敷の家」。擁壁の上を“江ノ電”が通る谷状の敷地。景観や光の享受に加えて電車との関係も主題とし、上階を“パブリック”と捉えて“桟敷席の様なバルコニー”を持つ建築を考案。屋根形状や外壁の質感は町並みとの調和も意図外観、南東側の道路より見る。 photo©田邉雄之
田邉雄之建築設計事務所による、神奈川・鎌倉市の「桟敷の家」。擁壁の上を“江ノ電”が通る谷状の敷地。景観や光の享受に加えて電車との関係も主題とし、上階を“パブリック”と捉えて“桟敷席の様なバルコニー”を持つ建築を考案。屋根形状や外壁の質感は町並みとの調和も意図2階、アトリエからリビングを見る。 photo©田邉雄之
田邉雄之建築設計事務所による、神奈川・鎌倉市の「桟敷の家」。擁壁の上を“江ノ電”が通る谷状の敷地。景観や光の享受に加えて電車との関係も主題とし、上階を“パブリック”と捉えて“桟敷席の様なバルコニー”を持つ建築を考案。屋根形状や外壁の質感は町並みとの調和も意図2階、「桟敷」 photo©田邉雄之
田邉雄之建築設計事務所による、神奈川・鎌倉市の「桟敷の家」。擁壁の上を“江ノ電”が通る谷状の敷地。景観や光の享受に加えて電車との関係も主題とし、上階を“パブリック”と捉えて“桟敷席の様なバルコニー”を持つ建築を考案。屋根形状や外壁の質感は町並みとの調和も意図外観、南西側より見る。夜景 photo©田邉雄之
田邉雄之建築設計事務所が設計した、神奈川・鎌倉市の「桟敷の家」です。
擁壁の上を“江ノ電”が通る谷状の敷地での計画です。建築家は、景観や光の享受に加えて電車との関係も主題とし、上階を“パブリック”と捉えて“桟敷席の様なバルコニー”を持つ建築を考案しました。また、屋根形状や外壁の質感は町並みとの調和も意図されました。
谷戸の向こうに陽が隠れる夕暮れ時、バルコニーに腰を掛けて山と空を眺める。
単線の江ノ電が砂時計のように7分間隔で軋みながら目の前のカーブを通過する。
鎌倉の谷戸、高さ3mの擁壁を挟んで江ノ電と隣接する夫婦のための住宅。
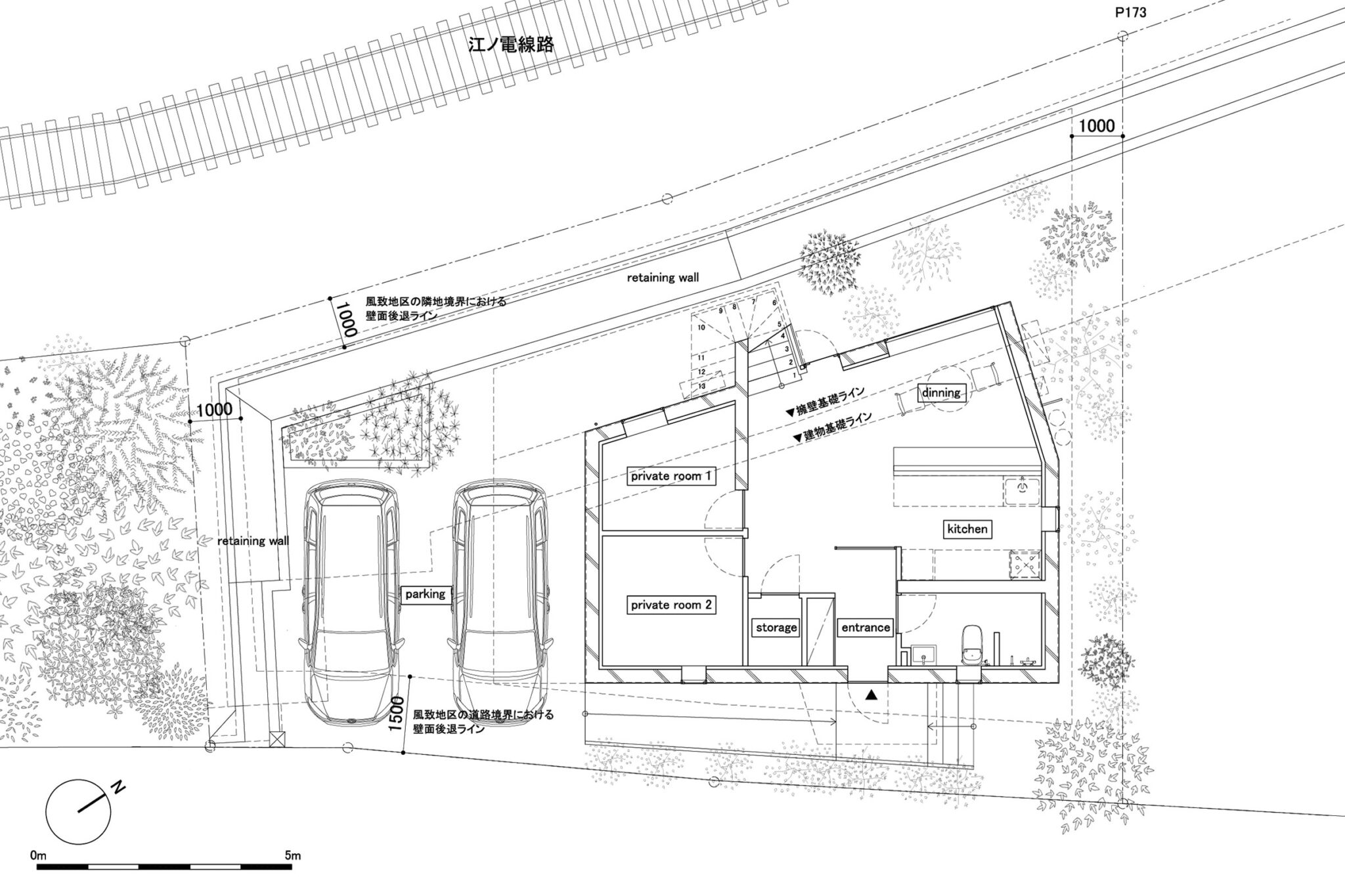
敷地は擁壁の基礎と風致条例によって建築可能範囲が限られている。谷戸越しの自然と山に切り取られた景色と陽の光の享受、趣味の工芸と江ノ電との関係性が主なテーマ。
1階をプライベート、2階をパブリックと捉えて、外部においては江ノ電に向けて劇場における桟敷席のようなバルコニーを設けた。
構造は振動に強く防音性も高い壁式RC造で、基礎施工可能範囲と2台の駐車場を確保するため西側と南側に約2mずつ片持ちしており、約5mの支持層まで杭が伸びる。
型枠には少しザラザラとして柔らかな質感が感じられる普通合板を用いたことと、切妻屋根の形状を採用したことで、RC造でありながらも歴史ある鎌倉の町並みに馴染むことを目指した。
以下の写真はクリックで拡大します

田邉雄之建築設計事務所による、神奈川・鎌倉市の「桟敷の家」。擁壁の上を“江ノ電”が通る谷状の敷地。景観や光の享受に加えて電車との関係も主題とし、上階を“パブリック”と捉えて“桟敷席の様なバルコニー”を持つ建築を考案。屋根形状や外壁の質感は町並みとの調和も意図外観、南東側の道路より見る。 photo©田邉雄之

田邉雄之建築設計事務所による、神奈川・鎌倉市の「桟敷の家」。擁壁の上を“江ノ電”が通る谷状の敷地。景観や光の享受に加えて電車との関係も主題とし、上階を“パブリック”と捉えて“桟敷席の様なバルコニー”を持つ建築を考案。屋根形状や外壁の質感は町並みとの調和も意図外観、南東側の道路より見る。 photo©田邉雄之

田邉雄之建築設計事務所による、神奈川・鎌倉市の「桟敷の家」。擁壁の上を“江ノ電”が通る谷状の敷地。景観や光の享受に加えて電車との関係も主題とし、上階を“パブリック”と捉えて“桟敷席の様なバルコニー”を持つ建築を考案。屋根形状や外壁の質感は町並みとの調和も意図外観、南西側より見る。 photo©田邉雄之

田邉雄之建築設計事務所による、神奈川・鎌倉市の「桟敷の家」。擁壁の上を“江ノ電”が通る谷状の敷地。景観や光の享受に加えて電車との関係も主題とし、上階を“パブリック”と捉えて“桟敷席の様なバルコニー”を持つ建築を考案。屋根形状や外壁の質感は町並みとの調和も意図外観、敷地内の南西側より見る。 photo©田邉雄之

田邉雄之建築設計事務所による、神奈川・鎌倉市の「桟敷の家」。擁壁の上を“江ノ電”が通る谷状の敷地。景観や光の享受に加えて電車との関係も主題とし、上階を“パブリック”と捉えて“桟敷席の様なバルコニー”を持つ建築を考案。屋根形状や外壁の質感は町並みとの調和も意図外観、敷地内の南側より見る。 photo©田邉雄之

田邉雄之建築設計事務所による、神奈川・鎌倉市の「桟敷の家」。擁壁の上を“江ノ電”が通る谷状の敷地。景観や光の享受に加えて電車との関係も主題とし、上階を“パブリック”と捉えて“桟敷席の様なバルコニー”を持つ建築を考案。屋根形状や外壁の質感は町並みとの調和も意図外観、南東側の道路よりエントランスドア側を見る。 photo©田邉雄之

田邉雄之建築設計事務所による、神奈川・鎌倉市の「桟敷の家」。擁壁の上を“江ノ電”が通る谷状の敷地。景観や光の享受に加えて電車との関係も主題とし、上階を“パブリック”と捉えて“桟敷席の様なバルコニー”を持つ建築を考案。屋根形状や外壁の質感は町並みとの調和も意図1階、エントランスからダイニング側を見る。 photo©田邉雄之

田邉雄之建築設計事務所による、神奈川・鎌倉市の「桟敷の家」。擁壁の上を“江ノ電”が通る谷状の敷地。景観や光の享受に加えて電車との関係も主題とし、上階を“パブリック”と捉えて“桟敷席の様なバルコニー”を持つ建築を考案。屋根形状や外壁の質感は町並みとの調和も意図1階、エントランス側から、2階への階段とダイニングとキッチンを見る。 photo©田邉雄之

田邉雄之建築設計事務所による、神奈川・鎌倉市の「桟敷の家」。擁壁の上を“江ノ電”が通る谷状の敷地。景観や光の享受に加えて電車との関係も主題とし、上階を“パブリック”と捉えて“桟敷席の様なバルコニー”を持つ建築を考案。屋根形状や外壁の質感は町並みとの調和も意図1階、ダイニングからキッチンを見る。 photo©田邉雄之

田邉雄之建築設計事務所による、神奈川・鎌倉市の「桟敷の家」。擁壁の上を“江ノ電”が通る谷状の敷地。景観や光の享受に加えて電車との関係も主題とし、上階を“パブリック”と捉えて“桟敷席の様なバルコニー”を持つ建築を考案。屋根形状や外壁の質感は町並みとの調和も意図1階、ダイニングから2階への階段側を見る。 photo©田邉雄之

田邉雄之建築設計事務所による、神奈川・鎌倉市の「桟敷の家」。擁壁の上を“江ノ電”が通る谷状の敷地。景観や光の享受に加えて電車との関係も主題とし、上階を“パブリック”と捉えて“桟敷席の様なバルコニー”を持つ建築を考案。屋根形状や外壁の質感は町並みとの調和も意図1階から2階への階段 photo©田邉雄之

田邉雄之建築設計事務所による、神奈川・鎌倉市の「桟敷の家」。擁壁の上を“江ノ電”が通る谷状の敷地。景観や光の享受に加えて電車との関係も主題とし、上階を“パブリック”と捉えて“桟敷席の様なバルコニー”を持つ建築を考案。屋根形状や外壁の質感は町並みとの調和も意図1階から2階への階段から開口部越しに「桟敷」を見る。 photo©田邉雄之

田邉雄之建築設計事務所による、神奈川・鎌倉市の「桟敷の家」。擁壁の上を“江ノ電”が通る谷状の敷地。景観や光の享受に加えて電車との関係も主題とし、上階を“パブリック”と捉えて“桟敷席の様なバルコニー”を持つ建築を考案。屋根形状や外壁の質感は町並みとの調和も意図2階、「桟敷」 photo©田邉雄之

田邉雄之建築設計事務所による、神奈川・鎌倉市の「桟敷の家」。擁壁の上を“江ノ電”が通る谷状の敷地。景観や光の享受に加えて電車との関係も主題とし、上階を“パブリック”と捉えて“桟敷席の様なバルコニー”を持つ建築を考案。屋根形状や外壁の質感は町並みとの調和も意図1階から2階への階段から開口部越しに外部を見る。 photo©田邉雄之

田邉雄之建築設計事務所による、神奈川・鎌倉市の「桟敷の家」。擁壁の上を“江ノ電”が通る谷状の敷地。景観や光の享受に加えて電車との関係も主題とし、上階を“パブリック”と捉えて“桟敷席の様なバルコニー”を持つ建築を考案。屋根形状や外壁の質感は町並みとの調和も意図2階、アトリエ側からリビングを見る。 photo©田邉雄之

田邉雄之建築設計事務所による、神奈川・鎌倉市の「桟敷の家」。擁壁の上を“江ノ電”が通る谷状の敷地。景観や光の享受に加えて電車との関係も主題とし、上階を“パブリック”と捉えて“桟敷席の様なバルコニー”を持つ建築を考案。屋根形状や外壁の質感は町並みとの調和も意図2階、ミニキッチン側からアトリエを見る。 photo©田邉雄之

田邉雄之建築設計事務所による、神奈川・鎌倉市の「桟敷の家」。擁壁の上を“江ノ電”が通る谷状の敷地。景観や光の享受に加えて電車との関係も主題とし、上階を“パブリック”と捉えて“桟敷席の様なバルコニー”を持つ建築を考案。屋根形状や外壁の質感は町並みとの調和も意図2階、アトリエからリビングを見る。 photo©田邉雄之

田邉雄之建築設計事務所による、神奈川・鎌倉市の「桟敷の家」。擁壁の上を“江ノ電”が通る谷状の敷地。景観や光の享受に加えて電車との関係も主題とし、上階を“パブリック”と捉えて“桟敷席の様なバルコニー”を持つ建築を考案。屋根形状や外壁の質感は町並みとの調和も意図2階、アトリエからリビングを見る。 photo©田邉雄之

田邉雄之建築設計事務所による、神奈川・鎌倉市の「桟敷の家」。擁壁の上を“江ノ電”が通る谷状の敷地。景観や光の享受に加えて電車との関係も主題とし、上階を“パブリック”と捉えて“桟敷席の様なバルコニー”を持つ建築を考案。屋根形状や外壁の質感は町並みとの調和も意図2階、リビングから開口部越しに外部を見る。 photo©田邉雄之

田邉雄之建築設計事務所による、神奈川・鎌倉市の「桟敷の家」。擁壁の上を“江ノ電”が通る谷状の敷地。景観や光の享受に加えて電車との関係も主題とし、上階を“パブリック”と捉えて“桟敷席の様なバルコニー”を持つ建築を考案。屋根形状や外壁の質感は町並みとの調和も意図2階、リビングからアトリエとミニキッチンを見る。 photo©田邉雄之

田邉雄之建築設計事務所による、神奈川・鎌倉市の「桟敷の家」。擁壁の上を“江ノ電”が通る谷状の敷地。景観や光の享受に加えて電車との関係も主題とし、上階を“パブリック”と捉えて“桟敷席の様なバルコニー”を持つ建築を考案。屋根形状や外壁の質感は町並みとの調和も意図2階、ミニキッチン photo©田邉雄之

田邉雄之建築設計事務所による、神奈川・鎌倉市の「桟敷の家」。擁壁の上を“江ノ電”が通る谷状の敷地。景観や光の享受に加えて電車との関係も主題とし、上階を“パブリック”と捉えて“桟敷席の様なバルコニー”を持つ建築を考案。屋根形状や外壁の質感は町並みとの調和も意図1階、プライベートルーム2からキッチン側を見る。 photo©田邉雄之

田邉雄之建築設計事務所による、神奈川・鎌倉市の「桟敷の家」。擁壁の上を“江ノ電”が通る谷状の敷地。景観や光の享受に加えて電車との関係も主題とし、上階を“パブリック”と捉えて“桟敷席の様なバルコニー”を持つ建築を考案。屋根形状や外壁の質感は町並みとの調和も意図外観、外壁と外構の詳細 photo©田邉雄之

田邉雄之建築設計事務所による、神奈川・鎌倉市の「桟敷の家」。擁壁の上を“江ノ電”が通る谷状の敷地。景観や光の享受に加えて電車との関係も主題とし、上階を“パブリック”と捉えて“桟敷席の様なバルコニー”を持つ建築を考案。屋根形状や外壁の質感は町並みとの調和も意図外観、躯体と手摺の詳細 photo©田邉雄之

田邉雄之建築設計事務所による、神奈川・鎌倉市の「桟敷の家」。擁壁の上を“江ノ電”が通る谷状の敷地。景観や光の享受に加えて電車との関係も主題とし、上階を“パブリック”と捉えて“桟敷席の様なバルコニー”を持つ建築を考案。屋根形状や外壁の質感は町並みとの調和も意図外観、屋根と壁の詳細 photo©田邉雄之

田邉雄之建築設計事務所による、神奈川・鎌倉市の「桟敷の家」。擁壁の上を“江ノ電”が通る谷状の敷地。景観や光の享受に加えて電車との関係も主題とし、上階を“パブリック”と捉えて“桟敷席の様なバルコニー”を持つ建築を考案。屋根形状や外壁の質感は町並みとの調和も意図外観、南東側の道路より見る。夕景 photo©田邉雄之

田邉雄之建築設計事務所による、神奈川・鎌倉市の「桟敷の家」。擁壁の上を“江ノ電”が通る谷状の敷地。景観や光の享受に加えて電車との関係も主題とし、上階を“パブリック”と捉えて“桟敷席の様なバルコニー”を持つ建築を考案。屋根形状や外壁の質感は町並みとの調和も意図外観、敷地内の北側より見る。夕景 photo©田邉雄之

田邉雄之建築設計事務所による、神奈川・鎌倉市の「桟敷の家」。擁壁の上を“江ノ電”が通る谷状の敷地。景観や光の享受に加えて電車との関係も主題とし、上階を“パブリック”と捉えて“桟敷席の様なバルコニー”を持つ建築を考案。屋根形状や外壁の質感は町並みとの調和も意図外観、北西側より見る。夕景 photo©田邉雄之

田邉雄之建築設計事務所による、神奈川・鎌倉市の「桟敷の家」。擁壁の上を“江ノ電”が通る谷状の敷地。景観や光の享受に加えて電車との関係も主題とし、上階を“パブリック”と捉えて“桟敷席の様なバルコニー”を持つ建築を考案。屋根形状や外壁の質感は町並みとの調和も意図外観、南西側より見る。夜景 photo©田邉雄之

田邉雄之建築設計事務所による、神奈川・鎌倉市の「桟敷の家」。擁壁の上を“江ノ電”が通る谷状の敷地。景観や光の享受に加えて電車との関係も主題とし、上階を“パブリック”と捉えて“桟敷席の様なバルコニー”を持つ建築を考案。屋根形状や外壁の質感は町並みとの調和も意図外観、南西側より見る。夜景 photo©田邉雄之

田邉雄之建築設計事務所による、神奈川・鎌倉市の「桟敷の家」。擁壁の上を“江ノ電”が通る谷状の敷地。景観や光の享受に加えて電車との関係も主題とし、上階を“パブリック”と捉えて“桟敷席の様なバルコニー”を持つ建築を考案。屋根形状や外壁の質感は町並みとの調和も意図1階平面図 image©田邉雄之建築設計事務所

田邉雄之建築設計事務所による、神奈川・鎌倉市の「桟敷の家」。擁壁の上を“江ノ電”が通る谷状の敷地。景観や光の享受に加えて電車との関係も主題とし、上階を“パブリック”と捉えて“桟敷席の様なバルコニー”を持つ建築を考案。屋根形状や外壁の質感は町並みとの調和も意図2階平面図 image©田邉雄之建築設計事務所

田邉雄之建築設計事務所による、神奈川・鎌倉市の「桟敷の家」。擁壁の上を“江ノ電”が通る谷状の敷地。景観や光の享受に加えて電車との関係も主題とし、上階を“パブリック”と捉えて“桟敷席の様なバルコニー”を持つ建築を考案。屋根形状や外壁の質感は町並みとの調和も意図1階平面図 image©田邉雄之建築設計事務所

田邉雄之建築設計事務所による、神奈川・鎌倉市の「桟敷の家」。擁壁の上を“江ノ電”が通る谷状の敷地。景観や光の享受に加えて電車との関係も主題とし、上階を“パブリック”と捉えて“桟敷席の様なバルコニー”を持つ建築を考案。屋根形状や外壁の質感は町並みとの調和も意図2階平面図 image©田邉雄之建築設計事務所

田邉雄之建築設計事務所による、神奈川・鎌倉市の「桟敷の家」。擁壁の上を“江ノ電”が通る谷状の敷地。景観や光の享受に加えて電車との関係も主題とし、上階を“パブリック”と捉えて“桟敷席の様なバルコニー”を持つ建築を考案。屋根形状や外壁の質感は町並みとの調和も意図断面図 image©田邉雄之建築設計事務所

田邉雄之建築設計事務所による、神奈川・鎌倉市の「桟敷の家」。擁壁の上を“江ノ電”が通る谷状の敷地。景観や光の享受に加えて電車との関係も主題とし、上階を“パブリック”と捉えて“桟敷席の様なバルコニー”を持つ建築を考案。屋根形状や外壁の質感は町並みとの調和も意図模型写真 image©田邉雄之建築設計事務所

田邉雄之建築設計事務所による、神奈川・鎌倉市の「桟敷の家」。擁壁の上を“江ノ電”が通る谷状の敷地。景観や光の享受に加えて電車との関係も主題とし、上階を“パブリック”と捉えて“桟敷席の様なバルコニー”を持つ建築を考案。屋根形状や外壁の質感は町並みとの調和も意図イメージパース image©田邉雄之建築設計事務所

田邉雄之建築設計事務所による、神奈川・鎌倉市の「桟敷の家」。擁壁の上を“江ノ電”が通る谷状の敷地。景観や光の享受に加えて電車との関係も主題とし、上階を“パブリック”と捉えて“桟敷席の様なバルコニー”を持つ建築を考案。屋根形状や外壁の質感は町並みとの調和も意図スケッチ image©田邉雄之建築設計事務所

田邉雄之建築設計事務所による、神奈川・鎌倉市の「桟敷の家」。擁壁の上を“江ノ電”が通る谷状の敷地。景観や光の享受に加えて電車との関係も主題とし、上階を“パブリック”と捉えて“桟敷席の様なバルコニー”を持つ建築を考案。屋根形状や外壁の質感は町並みとの調和も意図スケッチ image©田邉雄之建築設計事務所

田邉雄之建築設計事務所による、神奈川・鎌倉市の「桟敷の家」。擁壁の上を“江ノ電”が通る谷状の敷地。景観や光の享受に加えて電車との関係も主題とし、上階を“パブリック”と捉えて“桟敷席の様なバルコニー”を持つ建築を考案。屋根形状や外壁の質感は町並みとの調和も意図スケッチ image©田邉雄之建築設計事務所
以下、建築家によるテキストです。
谷戸の向こうに陽が隠れる夕暮れ時、バルコニーに腰を掛けて山と空を眺める。
単線の江ノ電が砂時計のように7分間隔で軋みながら目の前のカーブを通過する。
鎌倉の谷戸、高さ3mの擁壁を挟んで江ノ電と隣接する夫婦のための住宅。
敷地は擁壁の基礎と風致条例によって建築可能範囲が限られている。谷戸越しの自然と山に切り取られた景色と陽の光の享受、趣味の工芸と江ノ電との関係性が主なテーマ。
1階をプライベート、2階をパブリックと捉えて、外部においては江ノ電に向けて劇場における桟敷席のようなバルコニーを設けた。
構造は振動に強く防音性も高い壁式RC造で、基礎施工可能範囲と2台の駐車場を確保するため西側と南側に約2mずつ片持ちしており、約5mの支持層まで杭が伸びる。
型枠には少しザラザラとして柔らかな質感が感じられる普通合板を用いたことと、切妻屋根の形状を採用したことで、RC造でありながらも歴史ある鎌倉の町並みに馴染むことを目指した。
■建築概要
題名:桟敷の家
所在地:神奈川県鎌倉市
主用途:住宅
設計監理:田邉雄之建築設計事務所
施工:新都市建設
構造設計:ロウファットストラクチュア
構造:RC造
階数:2階
敷地面積:206.82㎡
建築面積:72.68㎡
延床面積:120.68㎡
設計:2024年2月~2025年2月
工事:2025年3月~2025年10月
竣工:2025年10月
写真:田邉雄之