山田修爾による、神奈川の「鎌倉・板倉・隅切の家」。変形敷地に建つ設計者の自邸。四隅にある三角の土地を創作の起点とし、壁を張り出し“奴凧”の様な平面形状として光と風を内部に効果的に導く建築を考案。更新や移築などの持続可能性を意図し“板倉構法”で作る外観、南東側の道路より見る。 photo©長谷川健太 OFP
山田修爾による、神奈川の「鎌倉・板倉・隅切の家」。変形敷地に建つ設計者の自邸。四隅にある三角の土地を創作の起点とし、壁を張り出し“奴凧”の様な平面形状として光と風を内部に効果的に導く建築を考案。更新や移築などの持続可能性を意図し“板倉構法”で作る外観、南東側の道路より見る。 photo©長谷川健太 OFP
山田修爾による、神奈川の「鎌倉・板倉・隅切の家」。変形敷地に建つ設計者の自邸。四隅にある三角の土地を創作の起点とし、壁を張り出し“奴凧”の様な平面形状として光と風を内部に効果的に導く建築を考案。更新や移築などの持続可能性を意図し“板倉構法”で作る1階、玄関から土間1と土間2を見る。 photo©長谷川健太 OFP
山田修爾による、神奈川の「鎌倉・板倉・隅切の家」。変形敷地に建つ設計者の自邸。四隅にある三角の土地を創作の起点とし、壁を張り出し“奴凧”の様な平面形状として光と風を内部に効果的に導く建築を考案。更新や移築などの持続可能性を意図し“板倉構法”で作る2階、主室、キッチン側を見る。(三角障子を開けている状態) photo©長谷川健太 OFP
山田修爾が設計した、神奈川・鎌倉市の「鎌倉・板倉・隅切の家」です。
変形敷地に建つ設計者の自邸の計画です。建築家は、四隅にある三角の土地を創作の起点とし、壁を張り出し“奴凧”の様な平面形状として光と風を内部に効果的に導く建築を考案しました。また、更新や移築などの持続可能性を意図し“板倉構法”で作っています。
鎌倉の緑豊かな小路に面した自邸の計画である。
敷地は変わった形をしていた。将来道路として残された土地で、四隅に三角形の隅切りがあるのだ。一般的にはネガティブなこの条件を創作の起点として設計をスタートさせた。
小路側の隅切りには大きな壁を設けることで、プライバシーを確保すると同時に小路沿いにリズミカルな景観を創出。
一方、隣地側の隅切りは、東西隣地に隅切り部分を開放するように壁を張り出させることで、両腕を広げた「奴凧」のような形状が現れた。この奴凧の手足と胴体の隙間に開口部を設け、光と風を効果的に室内へ導き入れる。
1階に水廻りと個室空間を集約。2階はワンルーム空間。回遊性のある動線。 以上を平面計画の骨子としている。
日頃大規模木造や持続可能性等の社会課題と対峙しているが、自邸では根源的でプリミティブであることと、次世代へまるまる、或いは部材レベルでバトンを渡せることを考えていた。
板倉構法は柱に設けた溝に杉板を落とし込むシンプルな構法で、シンプルさ故に更新や移築にも対応できる持続可能性を備えている。加えて手運びサイズの杉板の集積によるこの構法は、車両の進入できない小路沿いの敷地条件にも合致し、採用には時間がかからなかった。
以下の写真はクリックで拡大します

山田修爾による、神奈川の「鎌倉・板倉・隅切の家」。変形敷地に建つ設計者の自邸。四隅にある三角の土地を創作の起点とし、壁を張り出し“奴凧”の様な平面形状として光と風を内部に効果的に導く建築を考案。更新や移築などの持続可能性を意図し“板倉構法”で作る鳥瞰、北側より見下ろす。 photo©長谷川健太 OFP

山田修爾による、神奈川の「鎌倉・板倉・隅切の家」。変形敷地に建つ設計者の自邸。四隅にある三角の土地を創作の起点とし、壁を張り出し“奴凧”の様な平面形状として光と風を内部に効果的に導く建築を考案。更新や移築などの持続可能性を意図し“板倉構法”で作る俯瞰、南西側より見下ろす。 photo©長谷川健太 OFP

山田修爾による、神奈川の「鎌倉・板倉・隅切の家」。変形敷地に建つ設計者の自邸。四隅にある三角の土地を創作の起点とし、壁を張り出し“奴凧”の様な平面形状として光と風を内部に効果的に導く建築を考案。更新や移築などの持続可能性を意図し“板倉構法”で作る俯瞰、敷地上空より見下ろす。 photo©長谷川健太 OFP

山田修爾による、神奈川の「鎌倉・板倉・隅切の家」。変形敷地に建つ設計者の自邸。四隅にある三角の土地を創作の起点とし、壁を張り出し“奴凧”の様な平面形状として光と風を内部に効果的に導く建築を考案。更新や移築などの持続可能性を意図し“板倉構法”で作る外観、南東側の道路より見る。 photo©長谷川健太 OFP

山田修爾による、神奈川の「鎌倉・板倉・隅切の家」。変形敷地に建つ設計者の自邸。四隅にある三角の土地を創作の起点とし、壁を張り出し“奴凧”の様な平面形状として光と風を内部に効果的に導く建築を考案。更新や移築などの持続可能性を意図し“板倉構法”で作る外観、南東側の道路より見る。 photo©長谷川健太 OFP

山田修爾による、神奈川の「鎌倉・板倉・隅切の家」。変形敷地に建つ設計者の自邸。四隅にある三角の土地を創作の起点とし、壁を張り出し“奴凧”の様な平面形状として光と風を内部に効果的に導く建築を考案。更新や移築などの持続可能性を意図し“板倉構法”で作る外観、開口部の詳細 photo©長谷川健太 OFP

山田修爾による、神奈川の「鎌倉・板倉・隅切の家」。変形敷地に建つ設計者の自邸。四隅にある三角の土地を創作の起点とし、壁を張り出し“奴凧”の様な平面形状として光と風を内部に効果的に導く建築を考案。更新や移築などの持続可能性を意図し“板倉構法”で作る1階、玄関から土間1と土間2を見る。 photo©長谷川健太 OFP

山田修爾による、神奈川の「鎌倉・板倉・隅切の家」。変形敷地に建つ設計者の自邸。四隅にある三角の土地を創作の起点とし、壁を張り出し“奴凧”の様な平面形状として光と風を内部に効果的に導く建築を考案。更新や移築などの持続可能性を意図し“板倉構法”で作る1階、土間1 photo©長谷川健太 OFP

山田修爾による、神奈川の「鎌倉・板倉・隅切の家」。変形敷地に建つ設計者の自邸。四隅にある三角の土地を創作の起点とし、壁を張り出し“奴凧”の様な平面形状として光と風を内部に効果的に導く建築を考案。更新や移築などの持続可能性を意図し“板倉構法”で作る1階、土間3 photo©長谷川健太 OFP

山田修爾による、神奈川の「鎌倉・板倉・隅切の家」。変形敷地に建つ設計者の自邸。四隅にある三角の土地を創作の起点とし、壁を張り出し“奴凧”の様な平面形状として光と風を内部に効果的に導く建築を考案。更新や移築などの持続可能性を意図し“板倉構法”で作る1階、左:土間3、右:寝室 photo©長谷川健太 OFP

山田修爾による、神奈川の「鎌倉・板倉・隅切の家」。変形敷地に建つ設計者の自邸。四隅にある三角の土地を創作の起点とし、壁を張り出し“奴凧”の様な平面形状として光と風を内部に効果的に導く建築を考案。更新や移築などの持続可能性を意図し“板倉構法”で作る1階、土間3から寝室を見る。 photo©長谷川健太 OFP

山田修爾による、神奈川の「鎌倉・板倉・隅切の家」。変形敷地に建つ設計者の自邸。四隅にある三角の土地を創作の起点とし、壁を張り出し“奴凧”の様な平面形状として光と風を内部に効果的に導く建築を考案。更新や移築などの持続可能性を意図し“板倉構法”で作る1階、脱衣所から浴室を見る。 photo©長谷川健太 OFP

山田修爾による、神奈川の「鎌倉・板倉・隅切の家」。変形敷地に建つ設計者の自邸。四隅にある三角の土地を創作の起点とし、壁を張り出し“奴凧”の様な平面形状として光と風を内部に効果的に導く建築を考案。更新や移築などの持続可能性を意図し“板倉構法”で作る1階から2階への階段 photo©長谷川健太 OFP

山田修爾による、神奈川の「鎌倉・板倉・隅切の家」。変形敷地に建つ設計者の自邸。四隅にある三角の土地を創作の起点とし、壁を張り出し“奴凧”の様な平面形状として光と風を内部に効果的に導く建築を考案。更新や移築などの持続可能性を意図し“板倉構法”で作る2階、主室、キッチン側を見る。 photo©長谷川健太 OFP

山田修爾による、神奈川の「鎌倉・板倉・隅切の家」。変形敷地に建つ設計者の自邸。四隅にある三角の土地を創作の起点とし、壁を張り出し“奴凧”の様な平面形状として光と風を内部に効果的に導く建築を考案。更新や移築などの持続可能性を意図し“板倉構法”で作る2階、主室、キッチン側を見る。(三角障子を開けている状態) photo©長谷川健太 OFP

山田修爾による、神奈川の「鎌倉・板倉・隅切の家」。変形敷地に建つ設計者の自邸。四隅にある三角の土地を創作の起点とし、壁を張り出し“奴凧”の様な平面形状として光と風を内部に効果的に導く建築を考案。更新や移築などの持続可能性を意図し“板倉構法”で作る2階、主室、キッチン側を見る。(三角障子を全開した状態) photo©長谷川健太 OFP

山田修爾による、神奈川の「鎌倉・板倉・隅切の家」。変形敷地に建つ設計者の自邸。四隅にある三角の土地を創作の起点とし、壁を張り出し“奴凧”の様な平面形状として光と風を内部に効果的に導く建築を考案。更新や移築などの持続可能性を意図し“板倉構法”で作る2階、主室、キッチン側を見る。 photo©長谷川健太 OFP

山田修爾による、神奈川の「鎌倉・板倉・隅切の家」。変形敷地に建つ設計者の自邸。四隅にある三角の土地を創作の起点とし、壁を張り出し“奴凧”の様な平面形状として光と風を内部に効果的に導く建築を考案。更新や移築などの持続可能性を意図し“板倉構法”で作る2階、主室、キッチン側を見る。(三角障子を開けている状態) photo©長谷川健太 OFP

山田修爾による、神奈川の「鎌倉・板倉・隅切の家」。変形敷地に建つ設計者の自邸。四隅にある三角の土地を創作の起点とし、壁を張り出し“奴凧”の様な平面形状として光と風を内部に効果的に導く建築を考案。更新や移築などの持続可能性を意図し“板倉構法”で作る2階、主室、キッチン側を見る。(三角障子を全開した状態) photo©長谷川健太 OFP

山田修爾による、神奈川の「鎌倉・板倉・隅切の家」。変形敷地に建つ設計者の自邸。四隅にある三角の土地を創作の起点とし、壁を張り出し“奴凧”の様な平面形状として光と風を内部に効果的に導く建築を考案。更新や移築などの持続可能性を意図し“板倉構法”で作る2階、主室、三角障子の詳細 photo©長谷川健太 OFP

山田修爾による、神奈川の「鎌倉・板倉・隅切の家」。変形敷地に建つ設計者の自邸。四隅にある三角の土地を創作の起点とし、壁を張り出し“奴凧”の様な平面形状として光と風を内部に効果的に導く建築を考案。更新や移築などの持続可能性を意図し“板倉構法”で作る2階、主室、三角障子の詳細(開けている状態) photo©長谷川健太 OFP

山田修爾による、神奈川の「鎌倉・板倉・隅切の家」。変形敷地に建つ設計者の自邸。四隅にある三角の土地を創作の起点とし、壁を張り出し“奴凧”の様な平面形状として光と風を内部に効果的に導く建築を考案。更新や移築などの持続可能性を意図し“板倉構法”で作る2階、キッチン photo©長谷川健太 OFP

山田修爾による、神奈川の「鎌倉・板倉・隅切の家」。変形敷地に建つ設計者の自邸。四隅にある三角の土地を創作の起点とし、壁を張り出し“奴凧”の様な平面形状として光と風を内部に効果的に導く建築を考案。更新や移築などの持続可能性を意図し“板倉構法”で作る2階、主室、キッチン側から見る。 photo©長谷川健太 OFP

山田修爾による、神奈川の「鎌倉・板倉・隅切の家」。変形敷地に建つ設計者の自邸。四隅にある三角の土地を創作の起点とし、壁を張り出し“奴凧”の様な平面形状として光と風を内部に効果的に導く建築を考案。更新や移築などの持続可能性を意図し“板倉構法”で作る2階、主室、キッチン側から見る。 photo©長谷川健太 OFP

山田修爾による、神奈川の「鎌倉・板倉・隅切の家」。変形敷地に建つ設計者の自邸。四隅にある三角の土地を創作の起点とし、壁を張り出し“奴凧”の様な平面形状として光と風を内部に効果的に導く建築を考案。更新や移築などの持続可能性を意図し“板倉構法”で作る2階、主室 photo©長谷川健太 OFP

山田修爾による、神奈川の「鎌倉・板倉・隅切の家」。変形敷地に建つ設計者の自邸。四隅にある三角の土地を創作の起点とし、壁を張り出し“奴凧”の様な平面形状として光と風を内部に効果的に導く建築を考案。更新や移築などの持続可能性を意図し“板倉構法”で作る2階、フリースペース photo©長谷川健太 OFP

山田修爾による、神奈川の「鎌倉・板倉・隅切の家」。変形敷地に建つ設計者の自邸。四隅にある三角の土地を創作の起点とし、壁を張り出し“奴凧”の様な平面形状として光と風を内部に効果的に導く建築を考案。更新や移築などの持続可能性を意図し“板倉構法”で作る2階、フリースペース(三角障子を全開した状態) photo©長谷川健太 OFP

山田修爾による、神奈川の「鎌倉・板倉・隅切の家」。変形敷地に建つ設計者の自邸。四隅にある三角の土地を創作の起点とし、壁を張り出し“奴凧”の様な平面形状として光と風を内部に効果的に導く建築を考案。更新や移築などの持続可能性を意図し“板倉構法”で作る2階、フリースペース、三角障子の詳細 photo©長谷川健太 OFP

山田修爾による、神奈川の「鎌倉・板倉・隅切の家」。変形敷地に建つ設計者の自邸。四隅にある三角の土地を創作の起点とし、壁を張り出し“奴凧”の様な平面形状として光と風を内部に効果的に導く建築を考案。更新や移築などの持続可能性を意図し“板倉構法”で作る2階、フリースペース、三角障子の詳細(三角障子を全開した状態) photo©長谷川健太 OFP

山田修爾による、神奈川の「鎌倉・板倉・隅切の家」。変形敷地に建つ設計者の自邸。四隅にある三角の土地を創作の起点とし、壁を張り出し“奴凧”の様な平面形状として光と風を内部に効果的に導く建築を考案。更新や移築などの持続可能性を意図し“板倉構法”で作る2階、三角障子の詳細 photo©長谷川健太 OFP

山田修爾による、神奈川の「鎌倉・板倉・隅切の家」。変形敷地に建つ設計者の自邸。四隅にある三角の土地を創作の起点とし、壁を張り出し“奴凧”の様な平面形状として光と風を内部に効果的に導く建築を考案。更新や移築などの持続可能性を意図し“板倉構法”で作る2階、三角障子の詳細 photo©長谷川健太 OFP

山田修爾による、神奈川の「鎌倉・板倉・隅切の家」。変形敷地に建つ設計者の自邸。四隅にある三角の土地を創作の起点とし、壁を張り出し“奴凧”の様な平面形状として光と風を内部に効果的に導く建築を考案。更新や移築などの持続可能性を意図し“板倉構法”で作る2階、三角障子の詳細 photo©長谷川健太 OFP

山田修爾による、神奈川の「鎌倉・板倉・隅切の家」。変形敷地に建つ設計者の自邸。四隅にある三角の土地を創作の起点とし、壁を張り出し“奴凧”の様な平面形状として光と風を内部に効果的に導く建築を考案。更新や移築などの持続可能性を意図し“板倉構法”で作る三角障子を開けるためのフック棒 photo©長谷川健太 OFP

山田修爾による、神奈川の「鎌倉・板倉・隅切の家」。変形敷地に建つ設計者の自邸。四隅にある三角の土地を創作の起点とし、壁を張り出し“奴凧”の様な平面形状として光と風を内部に効果的に導く建築を考案。更新や移築などの持続可能性を意図し“板倉構法”で作る玄関の照明 photo©長谷川健太 OFP

山田修爾による、神奈川の「鎌倉・板倉・隅切の家」。変形敷地に建つ設計者の自邸。四隅にある三角の土地を創作の起点とし、壁を張り出し“奴凧”の様な平面形状として光と風を内部に効果的に導く建築を考案。更新や移築などの持続可能性を意図し“板倉構法”で作る外観、南東側の道路より見る。夜景 photo©長谷川健太 OFP

山田修爾による、神奈川の「鎌倉・板倉・隅切の家」。変形敷地に建つ設計者の自邸。四隅にある三角の土地を創作の起点とし、壁を張り出し“奴凧”の様な平面形状として光と風を内部に効果的に導く建築を考案。更新や移築などの持続可能性を意図し“板倉構法”で作る外観、南東側の道路より見る。夜景 photo©長谷川健太 OFP

山田修爾による、神奈川の「鎌倉・板倉・隅切の家」。変形敷地に建つ設計者の自邸。四隅にある三角の土地を創作の起点とし、壁を張り出し“奴凧”の様な平面形状として光と風を内部に効果的に導く建築を考案。更新や移築などの持続可能性を意図し“板倉構法”で作る配置図 image©山田修爾

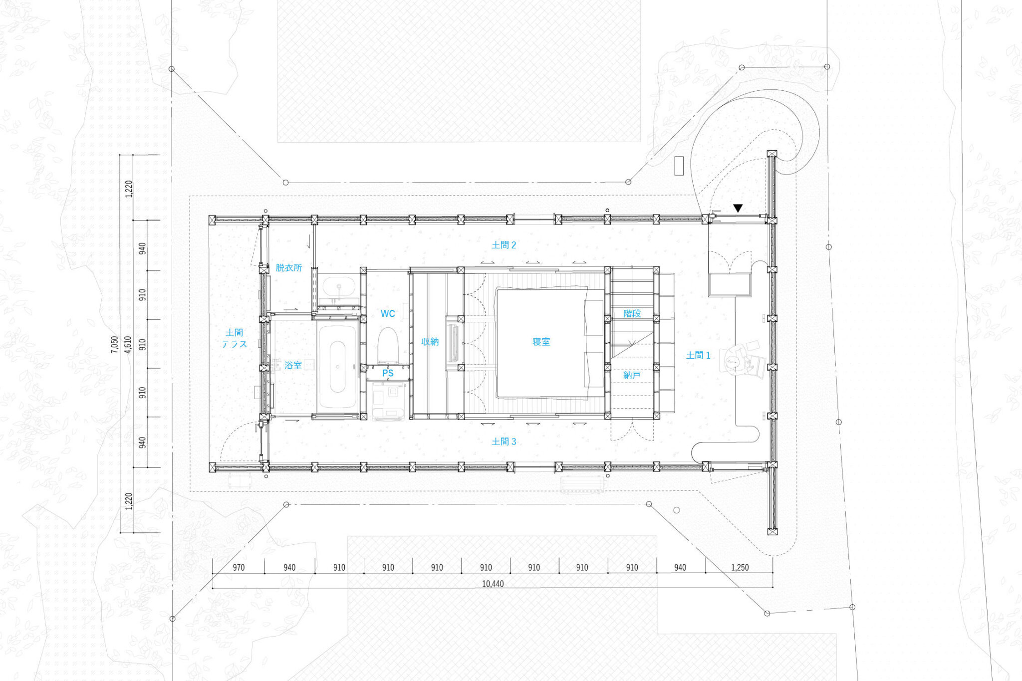
山田修爾による、神奈川の「鎌倉・板倉・隅切の家」。変形敷地に建つ設計者の自邸。四隅にある三角の土地を創作の起点とし、壁を張り出し“奴凧”の様な平面形状として光と風を内部に効果的に導く建築を考案。更新や移築などの持続可能性を意図し“板倉構法”で作る1階平面図 image©山田修爾

山田修爾による、神奈川の「鎌倉・板倉・隅切の家」。変形敷地に建つ設計者の自邸。四隅にある三角の土地を創作の起点とし、壁を張り出し“奴凧”の様な平面形状として光と風を内部に効果的に導く建築を考案。更新や移築などの持続可能性を意図し“板倉構法”で作る2階平面図 image©山田修爾

山田修爾による、神奈川の「鎌倉・板倉・隅切の家」。変形敷地に建つ設計者の自邸。四隅にある三角の土地を創作の起点とし、壁を張り出し“奴凧”の様な平面形状として光と風を内部に効果的に導く建築を考案。更新や移築などの持続可能性を意図し“板倉構法”で作る桁レベル平面図 image©山田修爾

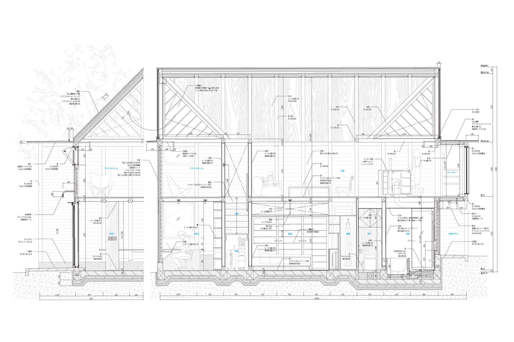
山田修爾による、神奈川の「鎌倉・板倉・隅切の家」。変形敷地に建つ設計者の自邸。四隅にある三角の土地を創作の起点とし、壁を張り出し“奴凧”の様な平面形状として光と風を内部に効果的に導く建築を考案。更新や移築などの持続可能性を意図し“板倉構法”で作る矩形図 image©山田修爾

山田修爾による、神奈川の「鎌倉・板倉・隅切の家」。変形敷地に建つ設計者の自邸。四隅にある三角の土地を創作の起点とし、壁を張り出し“奴凧”の様な平面形状として光と風を内部に効果的に導く建築を考案。更新や移築などの持続可能性を意図し“板倉構法”で作る三角障子平面詳細図 image©山田修爾

山田修爾による、神奈川の「鎌倉・板倉・隅切の家」。変形敷地に建つ設計者の自邸。四隅にある三角の土地を創作の起点とし、壁を張り出し“奴凧”の様な平面形状として光と風を内部に効果的に導く建築を考案。更新や移築などの持続可能性を意図し“板倉構法”で作る外壁詳細断面図 image©山田修爾
以下、建築家によるテキストです。
奴凧のような平面計画
鎌倉の緑豊かな小路に面した自邸の計画である。
敷地は変わった形をしていた。将来道路として残された土地で、四隅に三角形の隅切りがあるのだ。一般的にはネガティブなこの条件を創作の起点として設計をスタートさせた。
小路側の隅切りには大きな壁を設けることで、プライバシーを確保すると同時に小路沿いにリズミカルな景観を創出。
一方、隣地側の隅切りは、東西隣地に隅切り部分を開放するように壁を張り出させることで、両腕を広げた「奴凧」のような形状が現れた。この奴凧の手足と胴体の隙間に開口部を設け、光と風を効果的に室内へ導き入れる。
1階に水廻りと個室空間を集約。2階はワンルーム空間。回遊性のある動線。 以上を平面計画の骨子としている。
板倉構法の採用
日頃大規模木造や持続可能性等の社会課題と対峙しているが、自邸では根源的でプリミティブであることと、次世代へまるまる、或いは部材レベルでバトンを渡せることを考えていた。
板倉構法は柱に設けた溝に杉板を落とし込むシンプルな構法で、シンプルさ故に更新や移築にも対応できる持続可能性を備えている。加えて手運びサイズの杉板の集積によるこの構法は、車両の進入できない小路沿いの敷地条件にも合致し、採用には時間がかからなかった。
家型空間の在り方を再構築する三角障子
2階は10寸勾配の所謂「家型」フォルムを持つ空間である。家型の妻面は三角形のガラス構成としているが、その内側に大きな両開きの三角障子を設けた。妻面の面外方向に抵抗する斜材を障子と同形状で整理することで、障子は光を取り込む際には斜材の中に完全に収納され、左右の空間を分節する。
一方で障子を閉じるともちろん光も遮るが、斜材上部の空間をつなげ、内部空間の気積の見立てを変える。この空間に対して異様に大きく天邪鬼な建具は、その動きによって家型空間の様相を常に再構築し、日々の暮らしに楽しみを与えてくれている。
寸法体系について
板倉構法は□120mm以上の柱が構法上求められるが、梁を含めて見附を120mmで統一し、空間全体のリズムを整えている。外周は全て通し柱として2 階の登り梁のスラストに抵抗させるとともに、4m材で収まるよう階高と基礎高さを設定。
2階の気積を最大限確保可能な10寸勾配とした登り梁は棟木に集約されるが、棟木の必要長さは10m以上となるため、3分割する位置に束材と斜材を設けて手運びを前提とした寸法体系としている。
構造と仕上げの間
板倉構法は構造的表現が非常に強い。かといって逆を攻めて仕上げと切り離すのも芸がない。
そこでその間の表現として、板倉構法の規定する落とし込み板135mmに対し、外壁はラフソーン加工を施した105mm の小幅とし、構造的でありながらも仕上げであることを表明。
外周の板倉構法壁以外は柱梁と仕上げを面一構造とし構造と仕上げのフラットな関係をつくる。2階の勾配天井は棟木を隠蔽させて登り梁を単なるボーダー表現として浮上させる、、、などの表現を試みている。
■建築概要
建物名称:鎌倉・板倉・隅切の家
所在地:神奈川県鎌倉市
主要用途:住宅
家族構成:夫婦+子供1人
設計:山田修爾
建築:裕建築工房 担当/三嶋圭樹、井坂真一
構造:林将利
照明デザイン:Geniusloci & Lighting Design 担当/麻田勝正
家具・木工:裕建築工房 担当/西浦伸太
設備:栄工業 担当/松本貴大、田山仁史
電気:小澤 担当/小澤忠晴
建具:双葉建具店 担当/岩本淳史
左官:川久保左官 担当/川久保博
主体構造・構法:板倉構法、木造従来工法
基礎:ベタ基礎
階数:地上2階建
軒高:6,475mm
最高の高さ:6,700mm
地域地区:第一種住居地域、準防火地域、鎌倉景観地区(旧市街地の住宅地)
道路幅員:4m(北東側)
駐車台数:なし
敷地面積:89.65㎡
建築面積:48.12㎡(建蔽率:53.67%、許容:60%)
延床面積:91.77㎡(容積率:102.36%、許容:160%)
設計期間:2021年10月~2022年4月
工事期間:2022年5月~2024年6月
撮影:長谷川健太 / OFP
建材情報| 種別 | 使用箇所 | 商品名(メーカー名) | | 外構・床 | 外構 | 砂利敷き
RC洗い出し
|
| 外装・壁 | 外壁 | 杉t15x105 ラフソーン加工 落とし込み+木材保護剤Sioo:X(共栄木材)
|
| 外装・壁 | 外壁立上り | RCビシャン仕上[PCP工法](パーフェクトウォッシュ)
|
| 外装・屋根 | 屋根 | SGL 鋼板縦ハゼ葺[ハーパーズストロングルーフ330](MAXKENZO)
|
| 外装・屋根 | 軒 | 構造用トラパネt30(トライ・ウッド)
|
| 外装・建具 | 開口部 | スチールサッシ(清峰)
|
| 内装・壁 | 外周廻り内壁共通 | 杉t30x135 落とし込み[板倉構法]
|
| 内装・床 | 土間 床 | RC+モルタルt20+撥水材
|
| 内装・壁 | 土間 壁 | 構造用合板t12+ヒノキ合板t5.5
|
| 内装・天井 | 土間 天井 | ヒノキ合板t5.5
|
| 内装・床 | 寝室 床 | カラマツラフソーン加工 t14+床用自然系塗装
|
| 内装・壁 | 寝室 壁 | 構造用合板t12+ヒノキ合板t5.5
|
| 内装・天井 | 寝室 天井 | ヒノキ合板t5.5
|
| 内装・床 | 浴室 床 | FRP 防水砂利+下地モルタルt30+白玉洗い出し
|
| 内装・壁 | 浴室 壁 | 耐水合板t12+12+FRP 防水+トップコート
|
| 内装・天井 | 浴室 天井 | 耐水合板t12下地、防湿シート貼りの上 ケイカル板t8 継ぎ目処理の上AEP
|
| 内装・浴室 | 浴室 | バスタブ[LUX17075](BETTE)
シャワー水栓[SK1781-WJP-13]
|
| 内装・床 | 主室 床 | カラマツラフソーン加工 t14+床用自然系塗装
|
| 内装・壁 | 主室 壁 | 構造用合板t12+ヒノキ合板t5.5
|
| 内装・天井 | 主室 天井 | ヒノキ合板AA グレードt5.5
|
| 内装・キッチン | キッチン天板 | キッチン天板[プリモ](フッコー)
|
※企業様による建材情報についてのご意見や「PR」のご相談はこちらから
※この情報は弊サイトや設計者が建材の性能等を保証するものではありません