矢野青山建築設計事務所による、愛媛・松山市の「だんだんPARK」。カーディーラーの建替計画。自動車を取巻く“環境の変化”に向き合い、用途の提案まで行って多目的ホール等を内包する“公共的な場”を志向。様々な用途の入る“5つのBOX”がズレながら重なる構成の建築とする俯瞰、北東側より見下ろす。 photo©西川公朗
矢野青山建築設計事務所による、愛媛・松山市の「だんだんPARK」。カーディーラーの建替計画。自動車を取巻く“環境の変化”に向き合い、用途の提案まで行って多目的ホール等を内包する“公共的な場”を志向。様々な用途の入る“5つのBOX”がズレながら重なる構成の建築とする外観、敷地内の北東側より見る。 photo©西川公朗
矢野青山建築設計事務所による、愛媛・松山市の「だんだんPARK」。カーディーラーの建替計画。自動車を取巻く“環境の変化”に向き合い、用途の提案まで行って多目的ホール等を内包する“公共的な場”を志向。様々な用途の入る“5つのBOX”がズレながら重なる構成の建築とする1階、「だんだんホール」から2階側を見る。 photo©西川公朗
矢野青山建築設計事務所による、愛媛・松山市の「だんだんPARK」。カーディーラーの建替計画。自動車を取巻く“環境の変化”に向き合い、用途の提案まで行って多目的ホール等を内包する“公共的な場”を志向。様々な用途の入る“5つのBOX”がズレながら重なる構成の建築とする2階、客席越しに「だんだんホール」を見下ろす。 photo©西川公朗
矢野寿洋+青山えり子 / 矢野青山建築設計事務所が設計した、愛媛・松山市の「だんだんPARK」です。
カーディーラーの建替計画です。建築家は、自動車を取巻く“環境の変化”に向き合い、用途の提案まで行って多目的ホール等を内包する“公共的な場”を志向しました。そして、様々な用途の入る“5つのBOX”がズレながら重なる構成の建築としました。店舗の場所はこちら(Google Map)。
愛媛県内でカーディーラーを運営するネッツトヨタ愛媛の本店を建て替えるプロジェクト。
今治店(2017)や新居浜店(2020)の計画時から、いずれ本店を建替えるときいていたので約7年かけて実現したプロジェクトである。敷地は空港と松山市内を結ぶ空港通りに面し、業務施設を中心に多様な用途が立地する準工業地域で、交通量が多い上に緑やオープンエリアが少なく、立ち寄りにくいエリアであった。
クライアントの要望は自動車を取り巻く環境変化を見据え、単なるショールームではなく、これまでにない魅力化・複合化を図り、今治と新居浜の知見を活かして集客と地域活性化に繋げてほしいということであった。
そのため、私たち設計者が建築計画と並行して複合用途の検討・提案を行い、ハードとソフトの両面において、複合化による相乗効果を生み出し、それによって民間ならではの公共的な場をつくりだすことを意図した。
用途の検討にあたって、多様な顧客に対する魅力維持、継続的な情報発信、新規来客獲得、相乗効果という観点から、飲食・ホール・キッズスペース・コワーキングスペースを特徴づけて複合化することとし、コンセプト・空間・運営方法まで検討・提案した。
複合する用途が固まってきた段階で、ハードとソフトの両方に繋がるコンセプトとして、「このエリアに不足する公園のような自由な場所」が「多様に積み重なって複合施設として地域に貢献する」がふさわしいと考え、「だんだんPARK」というコンセプトを考案した。
「だんだん」は地域の方言で「ありがとう」という意味があり、地域に貢献する場を屋内外につくりだすことを現している。
愛媛県に象徴的なみかん畑を意識しただんだん形状にボリュームを徐々にセットバックさせ緑化することで、良好な景観をつくりだし回遊性を高めている。「PARK」は駐車場と公園の両方の意図を込め、各階テラスを公園のようにつくるだけでなく、車がテラスに横付けできるように斜路を計画し場の賑わいと利用の幅を広げている。
場の多様性と相乗効果を生み出す最適なだんだん形状のあり方を検討し、内部の用途を現した5つのBOXがずれながら積み上がり、各階に車が上れるスロープとの間に多様なシーンをつくりだす全体構成とした。
以下の写真はクリックで拡大します

矢野青山建築設計事務所による、愛媛・松山市の「だんだんPARK」。カーディーラーの建替計画。自動車を取巻く“環境の変化”に向き合い、用途の提案まで行って多目的ホール等を内包する“公共的な場”を志向。様々な用途の入る“5つのBOX”がズレながら重なる構成の建築とする鳥瞰、北西側より見下ろす。 photo©西川公朗

矢野青山建築設計事務所による、愛媛・松山市の「だんだんPARK」。カーディーラーの建替計画。自動車を取巻く“環境の変化”に向き合い、用途の提案まで行って多目的ホール等を内包する“公共的な場”を志向。様々な用途の入る“5つのBOX”がズレながら重なる構成の建築とする俯瞰、北東側より見下ろす。 photo©西川公朗

矢野青山建築設計事務所による、愛媛・松山市の「だんだんPARK」。カーディーラーの建替計画。自動車を取巻く“環境の変化”に向き合い、用途の提案まで行って多目的ホール等を内包する“公共的な場”を志向。様々な用途の入る“5つのBOX”がズレながら重なる構成の建築とする俯瞰、敷地上空より見下ろす。 photo©西川公朗

矢野青山建築設計事務所による、愛媛・松山市の「だんだんPARK」。カーディーラーの建替計画。自動車を取巻く“環境の変化”に向き合い、用途の提案まで行って多目的ホール等を内包する“公共的な場”を志向。様々な用途の入る“5つのBOX”がズレながら重なる構成の建築とする外観、北側の道路より見る。 photo©西川公朗

矢野青山建築設計事務所による、愛媛・松山市の「だんだんPARK」。カーディーラーの建替計画。自動車を取巻く“環境の変化”に向き合い、用途の提案まで行って多目的ホール等を内包する“公共的な場”を志向。様々な用途の入る“5つのBOX”がズレながら重なる構成の建築とする外観、北側の道路より見る。 photo©西川公朗

矢野青山建築設計事務所による、愛媛・松山市の「だんだんPARK」。カーディーラーの建替計画。自動車を取巻く“環境の変化”に向き合い、用途の提案まで行って多目的ホール等を内包する“公共的な場”を志向。様々な用途の入る“5つのBOX”がズレながら重なる構成の建築とする外観、敷地内の北東側より見る。 photo©西川公朗

矢野青山建築設計事務所による、愛媛・松山市の「だんだんPARK」。カーディーラーの建替計画。自動車を取巻く“環境の変化”に向き合い、用途の提案まで行って多目的ホール等を内包する“公共的な場”を志向。様々な用途の入る“5つのBOX”がズレながら重なる構成の建築とする外観、敷地内の北東側より見る。 photo©西川公朗

矢野青山建築設計事務所による、愛媛・松山市の「だんだんPARK」。カーディーラーの建替計画。自動車を取巻く“環境の変化”に向き合い、用途の提案まで行って多目的ホール等を内包する“公共的な場”を志向。様々な用途の入る“5つのBOX”がズレながら重なる構成の建築とする外観、敷地内の東側より見る。 photo©西川公朗

矢野青山建築設計事務所による、愛媛・松山市の「だんだんPARK」。カーディーラーの建替計画。自動車を取巻く“環境の変化”に向き合い、用途の提案まで行って多目的ホール等を内包する“公共的な場”を志向。様々な用途の入る“5つのBOX”がズレながら重なる構成の建築とする外観、東側よりエントランスを見る。 photo©西川公朗

矢野青山建築設計事務所による、愛媛・松山市の「だんだんPARK」。カーディーラーの建替計画。自動車を取巻く“環境の変化”に向き合い、用途の提案まで行って多目的ホール等を内包する“公共的な場”を志向。様々な用途の入る“5つのBOX”がズレながら重なる構成の建築とする1階、エントランス側から待合商談スペースと受付を見る。 photo©西川公朗

矢野青山建築設計事務所による、愛媛・松山市の「だんだんPARK」。カーディーラーの建替計画。自動車を取巻く“環境の変化”に向き合い、用途の提案まで行って多目的ホール等を内包する“公共的な場”を志向。様々な用途の入る“5つのBOX”がズレながら重なる構成の建築とする1階、受付前のスペースと2階への階段 photo©西川公朗

矢野青山建築設計事務所による、愛媛・松山市の「だんだんPARK」。カーディーラーの建替計画。自動車を取巻く“環境の変化”に向き合い、用途の提案まで行って多目的ホール等を内包する“公共的な場”を志向。様々な用途の入る“5つのBOX”がズレながら重なる構成の建築とする1階、受付前のスペース photo©西川公朗

矢野青山建築設計事務所による、愛媛・松山市の「だんだんPARK」。カーディーラーの建替計画。自動車を取巻く“環境の変化”に向き合い、用途の提案まで行って多目的ホール等を内包する“公共的な場”を志向。様々な用途の入る“5つのBOX”がズレながら重なる構成の建築とする1階、受付側からギャラリーラウンジ側を見る。 photo©西川公朗

矢野青山建築設計事務所による、愛媛・松山市の「だんだんPARK」。カーディーラーの建替計画。自動車を取巻く“環境の変化”に向き合い、用途の提案まで行って多目的ホール等を内包する“公共的な場”を志向。様々な用途の入る“5つのBOX”がズレながら重なる構成の建築とする1階、ギャラリーラウンジ側からカフェスペースを見る。 photo©西川公朗

矢野青山建築設計事務所による、愛媛・松山市の「だんだんPARK」。カーディーラーの建替計画。自動車を取巻く“環境の変化”に向き合い、用途の提案まで行って多目的ホール等を内包する“公共的な場”を志向。様々な用途の入る“5つのBOX”がズレながら重なる構成の建築とする1階、天井の詳細 photo©西川公朗

矢野青山建築設計事務所による、愛媛・松山市の「だんだんPARK」。カーディーラーの建替計画。自動車を取巻く“環境の変化”に向き合い、用途の提案まで行って多目的ホール等を内包する“公共的な場”を志向。様々な用途の入る“5つのBOX”がズレながら重なる構成の建築とする1階、ギャラリーラウンジ側から「だんだんホール」を見る。 photo©西川公朗

矢野青山建築設計事務所による、愛媛・松山市の「だんだんPARK」。カーディーラーの建替計画。自動車を取巻く“環境の変化”に向き合い、用途の提案まで行って多目的ホール等を内包する“公共的な場”を志向。様々な用途の入る“5つのBOX”がズレながら重なる構成の建築とする1階、「だんだんホール」、開口部の詳細 photo©西川公朗

矢野青山建築設計事務所による、愛媛・松山市の「だんだんPARK」。カーディーラーの建替計画。自動車を取巻く“環境の変化”に向き合い、用途の提案まで行って多目的ホール等を内包する“公共的な場”を志向。様々な用途の入る“5つのBOX”がズレながら重なる構成の建築とする1階、「だんだんホール」、開口部の詳細 photo©西川公朗

矢野青山建築設計事務所による、愛媛・松山市の「だんだんPARK」。カーディーラーの建替計画。自動車を取巻く“環境の変化”に向き合い、用途の提案まで行って多目的ホール等を内包する“公共的な場”を志向。様々な用途の入る“5つのBOX”がズレながら重なる構成の建築とする1階、「だんだんホール」から2階側を見る。 photo©西川公朗

矢野青山建築設計事務所による、愛媛・松山市の「だんだんPARK」。カーディーラーの建替計画。自動車を取巻く“環境の変化”に向き合い、用途の提案まで行って多目的ホール等を内包する“公共的な場”を志向。様々な用途の入る“5つのBOX”がズレながら重なる構成の建築とする1階、「だんだんホール」、2階への階段と客席 photo©西川公朗

矢野青山建築設計事務所による、愛媛・松山市の「だんだんPARK」。カーディーラーの建替計画。自動車を取巻く“環境の変化”に向き合い、用途の提案まで行って多目的ホール等を内包する“公共的な場”を志向。様々な用途の入る“5つのBOX”がズレながら重なる構成の建築とする2階、客席越しに「だんだんホール」を見下ろす。 photo©西川公朗

矢野青山建築設計事務所による、愛媛・松山市の「だんだんPARK」。カーディーラーの建替計画。自動車を取巻く“環境の変化”に向き合い、用途の提案まで行って多目的ホール等を内包する“公共的な場”を志向。様々な用途の入る“5つのBOX”がズレながら重なる構成の建築とする2階、客席越しに「だんだんホール」を見下ろす。 photo©西川公朗

矢野青山建築設計事務所による、愛媛・松山市の「だんだんPARK」。カーディーラーの建替計画。自動車を取巻く“環境の変化”に向き合い、用途の提案まで行って多目的ホール等を内包する“公共的な場”を志向。様々な用途の入る“5つのBOX”がズレながら重なる構成の建築とする2階、客席横からGR展示側を見る。 photo©西川公朗

矢野青山建築設計事務所による、愛媛・松山市の「だんだんPARK」。カーディーラーの建替計画。自動車を取巻く“環境の変化”に向き合い、用途の提案まで行って多目的ホール等を内包する“公共的な場”を志向。様々な用途の入る“5つのBOX”がズレながら重なる構成の建築とする2階、GR展示室 photo©西川公朗

矢野青山建築設計事務所による、愛媛・松山市の「だんだんPARK」。カーディーラーの建替計画。自動車を取巻く“環境の変化”に向き合い、用途の提案まで行って多目的ホール等を内包する“公共的な場”を志向。様々な用途の入る“5つのBOX”がズレながら重なる構成の建築とする2階、GRラウンジ photo©西川公朗

矢野青山建築設計事務所による、愛媛・松山市の「だんだんPARK」。カーディーラーの建替計画。自動車を取巻く“環境の変化”に向き合い、用途の提案まで行って多目的ホール等を内包する“公共的な場”を志向。様々な用途の入る“5つのBOX”がズレながら重なる構成の建築とする2階、屋外のGR展示スペース photo©西川公朗

矢野青山建築設計事務所による、愛媛・松山市の「だんだんPARK」。カーディーラーの建替計画。自動車を取巻く“環境の変化”に向き合い、用途の提案まで行って多目的ホール等を内包する“公共的な場”を志向。様々な用途の入る“5つのBOX”がズレながら重なる構成の建築とする2階、3階への階段を見る。 photo©西川公朗

矢野青山建築設計事務所による、愛媛・松山市の「だんだんPARK」。カーディーラーの建替計画。自動車を取巻く“環境の変化”に向き合い、用途の提案まで行って多目的ホール等を内包する“公共的な場”を志向。様々な用途の入る“5つのBOX”がズレながら重なる構成の建築とする3階、2階への階段を見下ろす。 photo©西川公朗

矢野青山建築設計事務所による、愛媛・松山市の「だんだんPARK」。カーディーラーの建替計画。自動車を取巻く“環境の変化”に向き合い、用途の提案まで行って多目的ホール等を内包する“公共的な場”を志向。様々な用途の入る“5つのBOX”がズレながら重なる構成の建築とする階段の詳細 photo©西川公朗

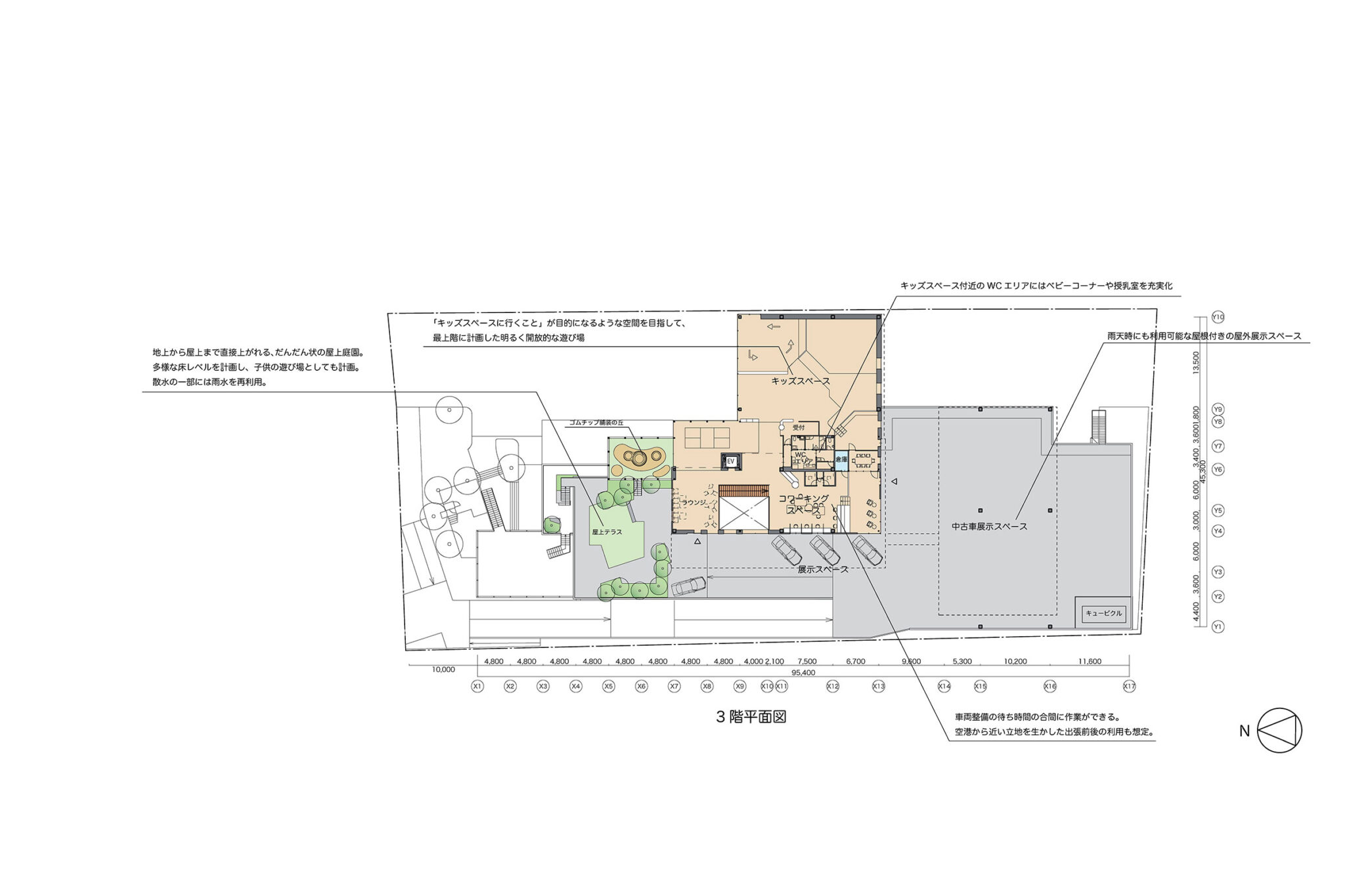
矢野青山建築設計事務所による、愛媛・松山市の「だんだんPARK」。カーディーラーの建替計画。自動車を取巻く“環境の変化”に向き合い、用途の提案まで行って多目的ホール等を内包する“公共的な場”を志向。様々な用途の入る“5つのBOX”がズレながら重なる構成の建築とする3階、キッズスペース photo©西川公朗

矢野青山建築設計事務所による、愛媛・松山市の「だんだんPARK」。カーディーラーの建替計画。自動車を取巻く“環境の変化”に向き合い、用途の提案まで行って多目的ホール等を内包する“公共的な場”を志向。様々な用途の入る“5つのBOX”がズレながら重なる構成の建築とする3階、キッズスペースから開口部越しに外部を見る。 photo©西川公朗

矢野青山建築設計事務所による、愛媛・松山市の「だんだんPARK」。カーディーラーの建替計画。自動車を取巻く“環境の変化”に向き合い、用途の提案まで行って多目的ホール等を内包する“公共的な場”を志向。様々な用途の入る“5つのBOX”がズレながら重なる構成の建築とする3階、コワーキングスペース photo©西川公朗

矢野青山建築設計事務所による、愛媛・松山市の「だんだんPARK」。カーディーラーの建替計画。自動車を取巻く“環境の変化”に向き合い、用途の提案まで行って多目的ホール等を内包する“公共的な場”を志向。様々な用途の入る“5つのBOX”がズレながら重なる構成の建築とする3階、中古車展示スペース photo©西川公朗

矢野青山建築設計事務所による、愛媛・松山市の「だんだんPARK」。カーディーラーの建替計画。自動車を取巻く“環境の変化”に向き合い、用途の提案まで行って多目的ホール等を内包する“公共的な場”を志向。様々な用途の入る“5つのBOX”がズレながら重なる構成の建築とする3階、屋上テラスよりドッグスペース側を見下ろす。 photo©西川公朗

矢野青山建築設計事務所による、愛媛・松山市の「だんだんPARK」。カーディーラーの建替計画。自動車を取巻く“環境の変化”に向き合い、用途の提案まで行って多目的ホール等を内包する“公共的な場”を志向。様々な用途の入る“5つのBOX”がズレながら重なる構成の建築とする2階、屋外テラスよりドッグスペースを見下ろす。 photo©西川公朗

矢野青山建築設計事務所による、愛媛・松山市の「だんだんPARK」。カーディーラーの建替計画。自動車を取巻く“環境の変化”に向き合い、用途の提案まで行って多目的ホール等を内包する“公共的な場”を志向。様々な用途の入る“5つのBOX”がズレながら重なる構成の建築とする1階、整備工場 photo©西川公朗

矢野青山建築設計事務所による、愛媛・松山市の「だんだんPARK」。カーディーラーの建替計画。自動車を取巻く“環境の変化”に向き合い、用途の提案まで行って多目的ホール等を内包する“公共的な場”を志向。様々な用途の入る“5つのBOX”がズレながら重なる構成の建築とする外観、敷地内の東側より見る。夕景 photo©西川公朗

矢野青山建築設計事務所による、愛媛・松山市の「だんだんPARK」。カーディーラーの建替計画。自動車を取巻く“環境の変化”に向き合い、用途の提案まで行って多目的ホール等を内包する“公共的な場”を志向。様々な用途の入る“5つのBOX”がズレながら重なる構成の建築とする外観、敷地内の北東側より見る。夕景 photo©西川公朗

矢野青山建築設計事務所による、愛媛・松山市の「だんだんPARK」。カーディーラーの建替計画。自動車を取巻く“環境の変化”に向き合い、用途の提案まで行って多目的ホール等を内包する“公共的な場”を志向。様々な用途の入る“5つのBOX”がズレながら重なる構成の建築とする外観、敷地内の北東側より見る。夜景 photo©西川公朗

矢野青山建築設計事務所による、愛媛・松山市の「だんだんPARK」。カーディーラーの建替計画。自動車を取巻く“環境の変化”に向き合い、用途の提案まで行って多目的ホール等を内包する“公共的な場”を志向。様々な用途の入る“5つのBOX”がズレながら重なる構成の建築とする外観、敷地内の北側より見る。夜景 photo©西川公朗

矢野青山建築設計事務所による、愛媛・松山市の「だんだんPARK」。カーディーラーの建替計画。自動車を取巻く“環境の変化”に向き合い、用途の提案まで行って多目的ホール等を内包する“公共的な場”を志向。様々な用途の入る“5つのBOX”がズレながら重なる構成の建築とする外観、ドックスペース側より見る。夜景 photo©西川公朗

矢野青山建築設計事務所による、愛媛・松山市の「だんだんPARK」。カーディーラーの建替計画。自動車を取巻く“環境の変化”に向き合い、用途の提案まで行って多目的ホール等を内包する“公共的な場”を志向。様々な用途の入る“5つのBOX”がズレながら重なる構成の建築とする外観、北側の屋外階段より見る。夜景 photo©西川公朗

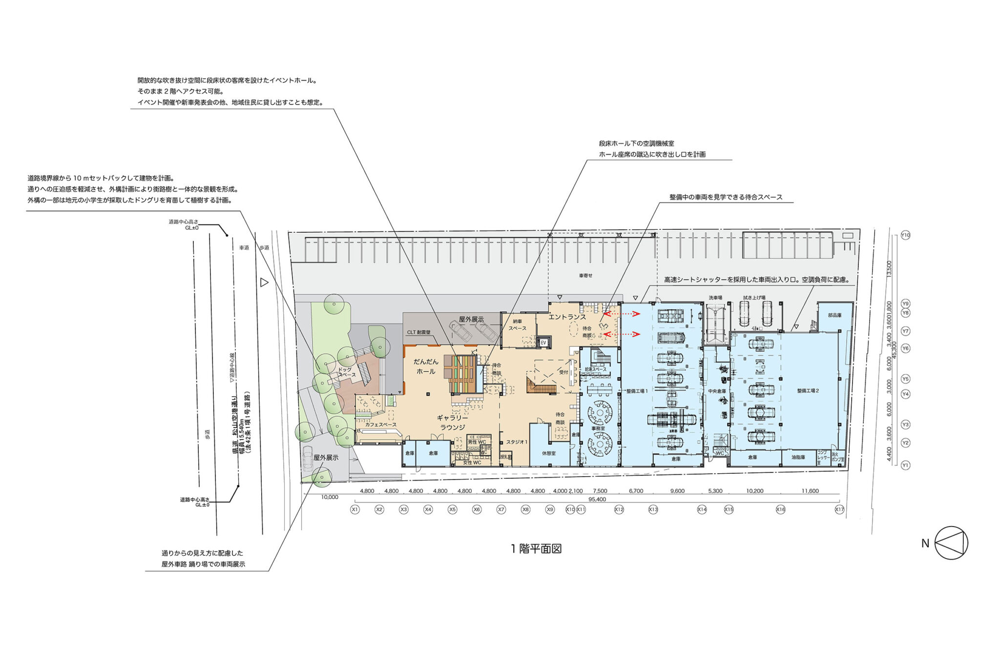
矢野青山建築設計事務所による、愛媛・松山市の「だんだんPARK」。カーディーラーの建替計画。自動車を取巻く“環境の変化”に向き合い、用途の提案まで行って多目的ホール等を内包する“公共的な場”を志向。様々な用途の入る“5つのBOX”がズレながら重なる構成の建築とする1階平面図 image©矢野青山建築設計事務所

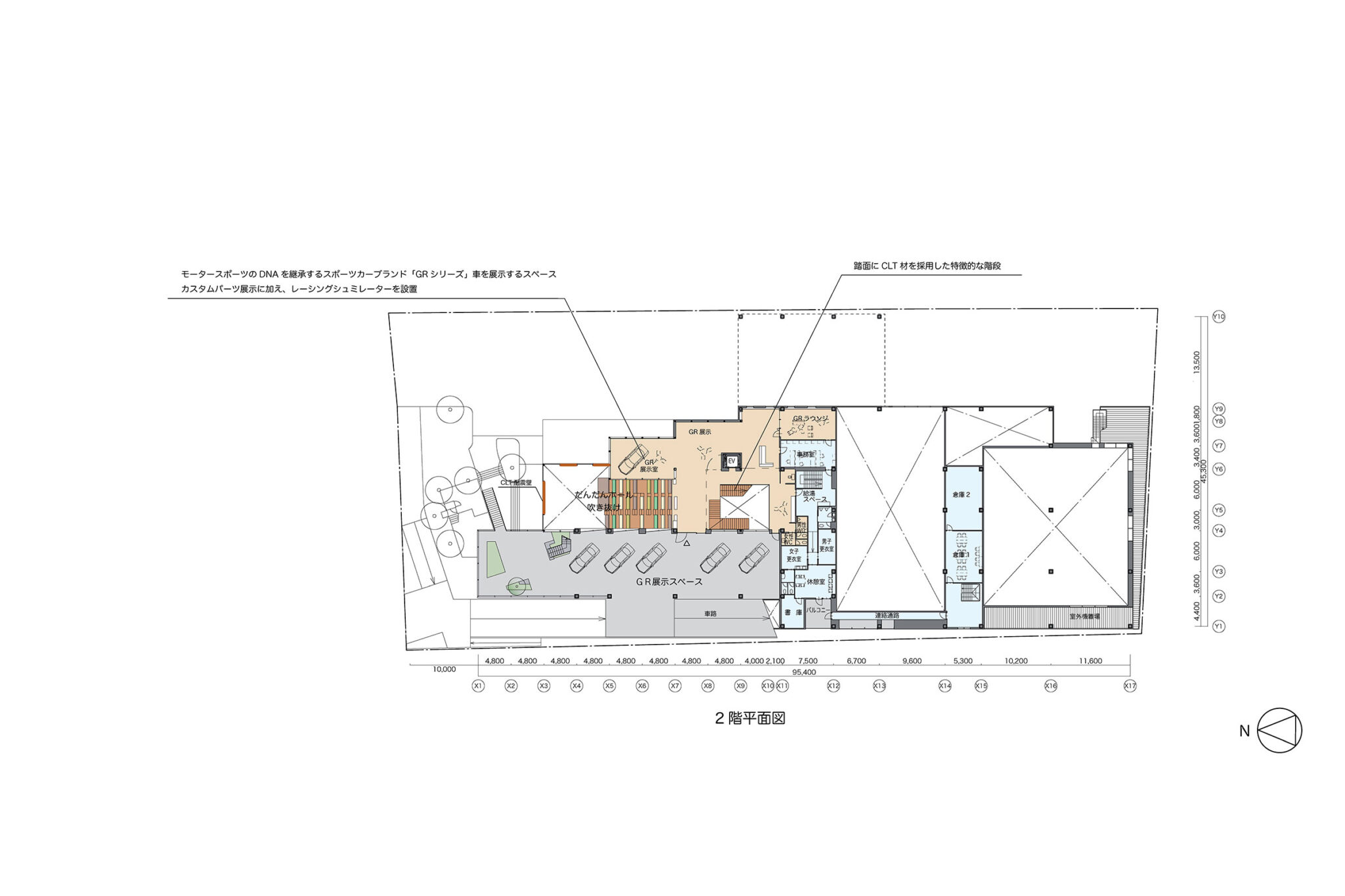
矢野青山建築設計事務所による、愛媛・松山市の「だんだんPARK」。カーディーラーの建替計画。自動車を取巻く“環境の変化”に向き合い、用途の提案まで行って多目的ホール等を内包する“公共的な場”を志向。様々な用途の入る“5つのBOX”がズレながら重なる構成の建築とする2階平面図 image©矢野青山建築設計事務所

矢野青山建築設計事務所による、愛媛・松山市の「だんだんPARK」。カーディーラーの建替計画。自動車を取巻く“環境の変化”に向き合い、用途の提案まで行って多目的ホール等を内包する“公共的な場”を志向。様々な用途の入る“5つのBOX”がズレながら重なる構成の建築とする3階平面図 image©矢野青山建築設計事務所

矢野青山建築設計事務所による、愛媛・松山市の「だんだんPARK」。カーディーラーの建替計画。自動車を取巻く“環境の変化”に向き合い、用途の提案まで行って多目的ホール等を内包する“公共的な場”を志向。様々な用途の入る“5つのBOX”がズレながら重なる構成の建築とする東側立面図、断面図 image©矢野青山建築設計事務所

矢野青山建築設計事務所による、愛媛・松山市の「だんだんPARK」。カーディーラーの建替計画。自動車を取巻く“環境の変化”に向き合い、用途の提案まで行って多目的ホール等を内包する“公共的な場”を志向。様々な用途の入る“5つのBOX”がズレながら重なる構成の建築とする断面図 image©矢野青山建築設計事務所

矢野青山建築設計事務所による、愛媛・松山市の「だんだんPARK」。カーディーラーの建替計画。自動車を取巻く“環境の変化”に向き合い、用途の提案まで行って多目的ホール等を内包する“公共的な場”を志向。様々な用途の入る“5つのBOX”がズレながら重なる構成の建築とするCLT接合部 image©矢野青山建築設計事務所

矢野青山建築設計事務所による、愛媛・松山市の「だんだんPARK」。カーディーラーの建替計画。自動車を取巻く“環境の変化”に向き合い、用途の提案まで行って多目的ホール等を内包する“公共的な場”を志向。様々な用途の入る“5つのBOX”がズレながら重なる構成の建築とするダイアグラム image©矢野青山建築設計事務所

矢野青山建築設計事務所による、愛媛・松山市の「だんだんPARK」。カーディーラーの建替計画。自動車を取巻く“環境の変化”に向き合い、用途の提案まで行って多目的ホール等を内包する“公共的な場”を志向。様々な用途の入る“5つのBOX”がズレながら重なる構成の建築とするプログラムダイアグラム image©矢野青山建築設計事務所
以下、建築家によるテキストです。
愛媛県内でカーディーラーを運営するネッツトヨタ愛媛の本店を建て替えるプロジェクト。
今治店(2017)や新居浜店(2020)の計画時から、いずれ本店を建替えるときいていたので約7年かけて実現したプロジェクトである。敷地は空港と松山市内を結ぶ空港通りに面し、業務施設を中心に多様な用途が立地する準工業地域で、交通量が多い上に緑やオープンエリアが少なく、立ち寄りにくいエリアであった。
クライアントの要望は自動車を取り巻く環境変化を見据え、単なるショールームではなく、これまでにない魅力化・複合化を図り、今治と新居浜の知見を活かして集客と地域活性化に繋げてほしいということであった。
そのため、私たち設計者が建築計画と並行して複合用途の検討・提案を行い、ハードとソフトの両面において、複合化による相乗効果を生み出し、それによって民間ならではの公共的な場をつくりだすことを意図した。
用途の検討にあたって、多様な顧客に対する魅力維持、継続的な情報発信、新規来客獲得、相乗効果という観点から、飲食・ホール・キッズスペース・コワーキングスペースを特徴づけて複合化することとし、コンセプト・空間・運営方法まで検討・提案した。
複合する用途が固まってきた段階で、ハードとソフトの両方に繋がるコンセプトとして、「このエリアに不足する公園のような自由な場所」が「多様に積み重なって複合施設として地域に貢献する」がふさわしいと考え、「だんだんPARK」というコンセプトを考案した。
「だんだん」は地域の方言で「ありがとう」という意味があり、地域に貢献する場を屋内外につくりだすことを現している。
愛媛県に象徴的なみかん畑を意識しただんだん形状にボリュームを徐々にセットバックさせ緑化することで、良好な景観をつくりだし回遊性を高めている。「PARK」は駐車場と公園の両方の意図を込め、各階テラスを公園のようにつくるだけでなく、車がテラスに横付けできるように斜路を計画し場の賑わいと利用の幅を広げている。
場の多様性と相乗効果を生み出す最適なだんだん形状のあり方を検討し、内部の用途を現した5つのBOXがずれながら積み上がり、各階に車が上れるスロープとの間に多様なシーンをつくりだす全体構成とした。
雁行して積み上がる5つのBOXはスチールサッシと一体化した細い柱梁で構成し、地震力は背後の鉄骨ラーメン構造部分で負担している。中央のホールのファサードは、鉄骨柱にCLT耐震壁をボルトで取り付ける簡易な工法を実験・開発し、耐震要素でありながら、施設を彩るアクセントとして昇華させた。
ラーメン構造部分は、大梁の上に小梁を載せた構成を現しとすることで、排煙・間接照明・設備ルート・シャッター納まりなどの諸要素を統合し、準工業地域という立地や自動車という工業製品に関連付けて鉄骨を意匠として表現した。(ロ-2準耐建築物で梁の耐火被覆や竪穴区画が不要であることを活かしている。)
建物の段々にセットバックして生まれたテラス部分を、上って過ごしたくなる場所になるように階段でつなぎそれぞれ植栽や家具でコンセプトを変えて計画した。地域で最も植生環境が保全されている松山城周辺で、地域の小学校の子ども達とどんぐりを拾って育てて植樹し、地域の植生保全に寄与することを意図した。
1階のメインのショールーム部分と2階のモータースポーツエリアをつなぐように大階段状のホールを設けた。日常的に動線と居場所を兼ねながらイベント時に観覧席になることを意図し、升席・可動テーブル・棚・映像配信設備を設けた。
来店を促し屋内外の回遊を後押しする飲食スペースは道路に近づけながら緑に囲まれた雰囲気として整備し、安心して子どもを遊ばせられるキッズスペースを下階への振動配慮が不要なピロティ上の3階レベルの前面道路からもよく見える場所に配置し、様々な企画を生み出すコワーキングスペースを屋上展示場に面して配置した。
各用途がそれぞれ利用者を惹きつけながら緩く共存し相乗効果を生み出すよう、音に配慮し配置とデザインを工夫している。
拾って育てて植えたどんぐりが徐々に育って緑を増やしていくように、複合施設で生まれる活動・交流・プロジェクトの輪が徐々に広がって地域を活性化していく、育成型の施設を目指した。そのため派手なオープニングイベントを開催するのではなく徐々に認知され活用が広がることを目指して、広報・運営を行っている。
実際、オープン以降、書道パフォーマンスなどの各種発表会やマルシェ、犬猫譲渡会など様々な口コミ等を通してどんどん多様な用途で利用されている。近くの小学校(養護学級)の遠足先として、施設全体を使って子ども達が楽しんで過ごすなど、想像以上に幅広い活用がされている。
カーボンオフセット証書の取得や、一時預かりサービスを併設した起業イベントの開催など、クライアントはこの施設を使って次々と新しい取り組みを行っており、地域の設計者の一連の店舗建築への継続的な関わり方としての任が少しは果たせたかと思う。
■建築概要
題名:だんだんPARK
計画地:愛媛県松山市
主要用途:屋内あそび場+ショールーム+飲食+ホール+コワーキング+事務所+自動車修理工場
設計:矢野青山建築設計事務所 担当/矢野寿洋、青山えり子、西山琳
施工:トライアル
設備:コモド設備計画
構造:平岩構造計画
外構:SfG Landscape Architects
敷地面積:5,327.06㎡
建築面積:3,188.72㎡
延床面積:5,386.52㎡ (1階:2,954.65㎡、2階:1,009.77㎡、3階:1,432.07㎡)
建蔽率:59.86%(許容60%)
容積率:101.11%(許容200%)
階数:地上3階
地域地区:準工業地域、22条地域
構造:鉄骨造(一部CLT造)
設計:2021年3月~2021年12月
工事:2022年2月~2023年1月
竣工:2023年1月
写真:西川公朗