
SHARE 五十嵐理人 / IGArchitectsによる、沖縄の住宅「重なりの間」。本島の“穏やかな集落”での計画。“気候と生活の間のフレーム”としての在り方も追及し、視覚的な開放とは異なる“開放性”を備えた空間を志向。重なりを生む“壁柱”と暮らしを守る“大屋根”からなる建築を考案




五十嵐理人 / IGArchitectsが設計した、沖縄の住宅「重なりの間」です。
本島の“穏やかな集落”での計画です。建築家は、“気候と生活の間のフレーム”としての在り方も追及し、視覚的な開放とは異なる“開放性”を備えた空間を志向しました。そして、重なりを生む“壁柱”と暮らしを守る“大屋根”からなる建築を考案しました。
沖縄本島中部、うるまの穏やかな集落に計画された住宅である。
クライアントは子育てを終え、人生の次のステージに向けて、この土地で、より自分たちらしく生活できる環境を求めていた。仕事や趣味など住宅に求められる要望は多岐にわたったが、それらを単純に機能や間取りとして整理するのではなく、強い日射、湿潤な空気、季節ごとに向きを変える風といった、この土地固有の環境条件にどのように応答するかを設計の起点とした。
個別の要求を満たす器をつくるのではなく、生活と環境を受け止め、更新し続けるためのフレームをつくることを目指した。
本計画で志向したのは、単純に外部へ開く「透明性」を獲得することではない。ガラスによって内外を連続させるような視覚的な開放とは異なるかたちで、建築に開放性を与えることを考えた。
その手がかりとしたのが、マグリットの「白紙委任状」に示される、見えていなくても向こう側が知覚される状態である。
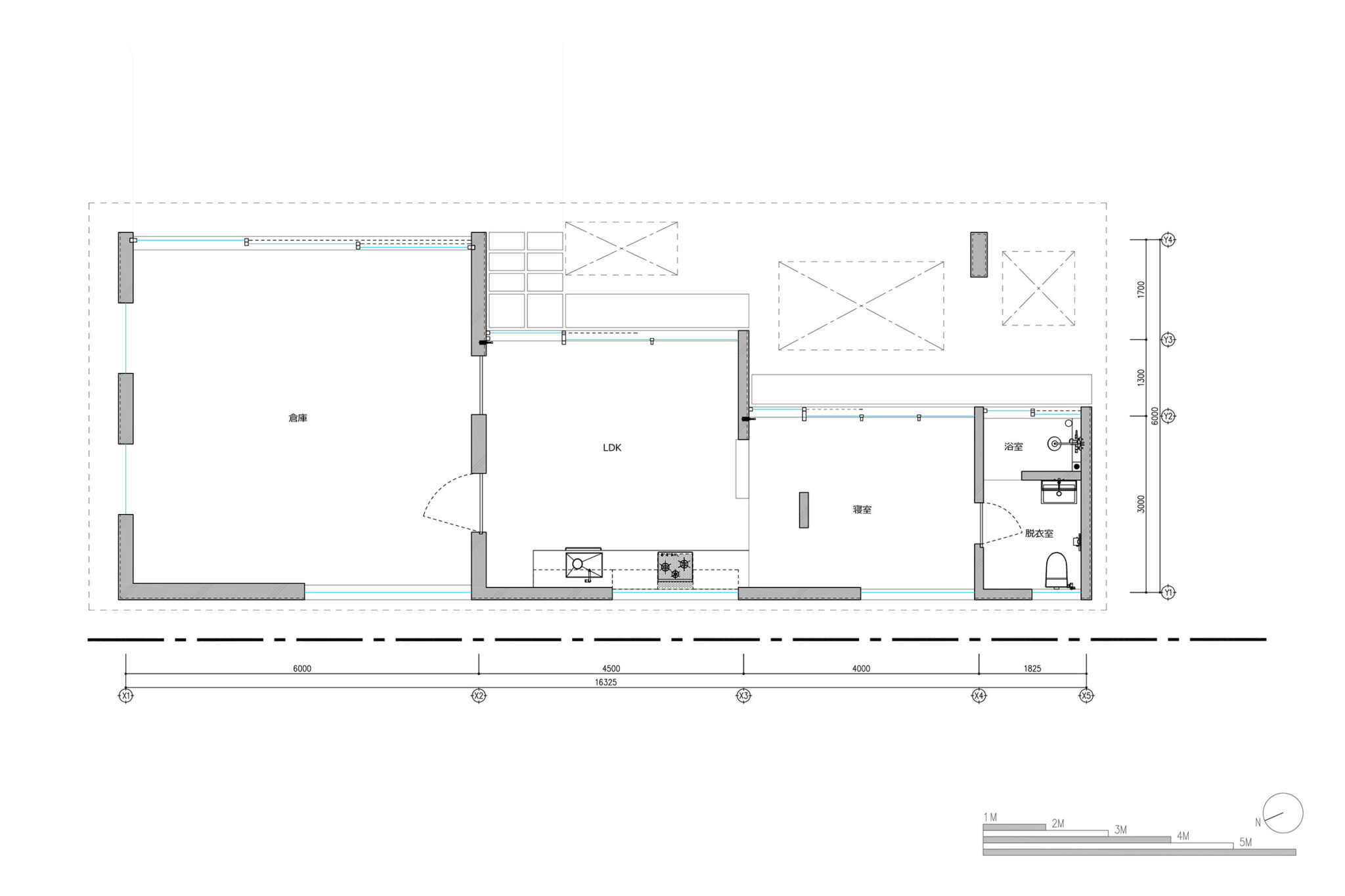
画面に林立する木々は風景を遮断しているにもかかわらず、断片の重なりによって、その奥に広がる空間の存在が知覚される。ここでは、切断そのものが空間の連続性を生み出している。建物は、RCの壁柱が林立する構成と、それらを覆う大きな屋根によって成り立っている。敷地の勾配に呼応して傾けられた大屋根は、直射日光を遮り、雨を受け止め、内部に安定した陰をつくり出す。沖縄の厳しい環境から生活を守るシェルターであると同時に、内外を緩やかにつなぐ雨端のような中間領域を生み出している。
内部空間では、林立する壁柱が空間を分割するのではなく、重ねるための要素として配置されている。壁柱は向こう側を知覚させる媒介として機能し、その重なりによって用途は明確に分節されることなく互いに滲み合う。こうしてワンルームの内部に多層的な空間が生まれ、視線や気配、光や風はその連なりを通して空間の奥へ、さらに建築の外側へと接続されていく。
重なりの間は、特定のクライアントのための住宅であると同時に、建築を気候と生活のあいだに立ち続けるフレームとして捉え直す試みである。
視覚的な透明性に依らず、空間を切断しながら接続することで獲得された開放性が、沖縄という土地の環境に身を委ねながら成熟していく。そしてクライアントの手を離れたとしても、別の住まい手や役割を受け入れ、この土地に建ち続ける——そんな大らかな建築を目指した。
以下の写真はクリックで拡大します

































以下、建築家によるテキストです。
沖縄本島中部、うるまの穏やかな集落に計画された住宅である。
クライアントは子育てを終え、人生の次のステージに向けて、この土地で、より自分たちらしく生活できる環境を求めていた。
仕事や趣味など住宅に求められる要望は多岐にわたったが、それらを単純に機能や間取りとして整理するのではなく、強い日射、湿潤な空気、季節ごとに向きを変える風といった、この土地固有の環境条件にどのように応答するかを設計の起点とした。
個別の要求を満たす器をつくるのではなく、生活と環境を受け止め、更新し続けるためのフレームをつくることを目指した。
本計画で志向したのは、単純に外部へ開く「透明性」を獲得することではない。ガラスによって内外を連続させるような視覚的な開放とは異なるかたちで、建築に開放性を与えることを考えた。
その手がかりとしたのが、マグリットの「白紙委任状」に示される、見えていなくても向こう側が知覚される状態である。
画面に林立する木々は風景を遮断しているにもかかわらず、断片の重なりによって、その奥に広がる空間の存在が知覚される。ここでは、切断そのものが空間の連続性を生み出している。
建物は、RCの壁柱が林立する構成と、それらを覆う大きな屋根によって成り立っている。敷地の勾配に呼応して傾けられた大屋根は、直射日光を遮り、雨を受け止め、内部に安定した陰をつくり出す。沖縄の厳しい環境から生活を守るシェルターであると同時に、内外を緩やかにつなぐ雨端のような中間領域を生み出している。
内部空間では、林立する壁柱が空間を分割するのではなく、重ねるための要素として配置されている。壁柱は向こう側を知覚させる媒介として機能し、その重なりによって用途は明確に分節されることなく互いに滲み合う。こうしてワンルームの内部に多層的な空間が生まれ、視線や気配、光や風はその連なりを通して空間の奥へ、さらに建築の外側へと接続されていく。
用途は固定されることなく、半屋外的な場所から屋外へと連続し、環境の変化に応じて使われ方が更新されていく。
この建築は、環境を一方的に制御する装置ではなく、住まい手が環境と応答するためのフレームである。明確な「竣工」を設定せず、フレームだけを土地に定着させ、その上に生活が重なっていくように計画している。意味や使い方をあらかじめ規定しないことで、空間は常に未完の状態に置かれ、意図しないずれや余白が生活の振る舞いによってその都度読み替えられていく。
そしてそれを許容しながら、住まい手固有の風景が時間をかけて形成されていく。家具や植物、開口の操作といった日常的な行為が、フレームに一時的な意味を与え、空間の解釈は時間とともに変化していく。
重なりの間は、特定のクライアントのための住宅であると同時に、建築を気候と生活のあいだに立ち続けるフレームとして捉え直す試みである。
視覚的な透明性に依らず、空間を切断しながら接続することで獲得された開放性が、沖縄という土地の環境に身を委ねながら成熟していく。そしてクライアントの手を離れたとしても、別の住まい手や役割を受け入れ、この土地に建ち続ける——そんな大らかな建築を目指した。
■建築概要
所在地:沖縄県
用途:戸建ての住宅
設計監理:IGArchitects 担当/五十嵐理人
構造:株式会社EQSD 担当/三崎洋輔
施工:FUN SHARE株式会社 担当/下地恭光
構造規模:RC造 平屋建
敷地面積:310.09㎡
建築面積:87.50㎡
延べ面積:72.83㎡
設計期間:2024年9月~2025年2月
工事期間:2025年3月~2026年1月
竣工年:2026年2月
写真:合同会社神宮巨樹 神宮巨樹
| 種別 | 使用箇所 | 商品名(メーカー名) |
|---|---|---|
| 外装・屋根 | 屋根 | コンクリート打放 |
| 外装・壁 | 外壁 | コンクリート打放 |
| 外装・建具 | 木製建具 | 製作・アルミサッシ |
| 内装・床 | 主要箇所 床 | 土間コンクリート金鏝仕上げ |
| 内装・壁 | 主要箇所 壁 | コンクリート打放 |
| 内装・天井 | 主要箇所 天井 | コンクリート打放 |
| 内装・キッチン | キッチン | 製作 |
| 内装・水廻り | トイレ | (TOTO) |
※企業様による建材情報についてのご意見や「PR」のご相談はこちらから
※この情報は弊サイトや設計者が建材の性能等を保証するものではありません
This house is planned in a quiet settlement in Uruma, in the central part of Okinawa’s main island. Having finished raising their children, the clients sought an environment where they could live more in accordance with themselves as they entered the next stage of their lives.
Although the house was expected to accommodate a wide range of activities—work, hobbies, and daily life—the design did not begin by organizing these demands simply as functions or rooms. Instead, it took as its starting point how the architecture might respond to the environmental conditions specific to this place: intense sunlight, humid air, and winds that shift direction with the seasons. Rather than creating a container that satisfies individual requirements, the aim was to establish a frame that could receive both life and environment, and continue to evolve over time.
The project did not seek to achieve openness merely by creating transparency toward the exterior. Rather than relying on glass to visually merge inside and outside, the intention was to give the architecture a different form of openness. A clue was found in The Blank Signature by René Magritte, which depicts a condition in which the space beyond is perceived even when it is not fully visible. Although the trees standing in the foreground appear to interrupt the landscape, the fragments overlap in such a way that the space extending behind them can still be sensed. Here, it is the very act of interruption that produces spatial continuity.
The building consists of a field of RC wall-columns standing in succession, covered by a large roof above. Responding to the slope of the site, the roof tilts gently along the terrain, shielding the interior from direct sunlight, collecting rain, and creating a stable field of shade beneath it. It acts as a shelter protecting daily life from Okinawa’s severe climate, while also generating an intermediate zone—reminiscent of the traditional amahaji eaves—that softly connects inside and outside.
Within the interior, the wall-columns do not function to divide space but are arranged as elements that overlap it. They operate as mediators that allow the presence of what lies beyond to be sensed. Through their layering, uses are not clearly separated but instead bleed into one another. In this way, a multilayered spatial condition emerges within what is essentially a single room. Through the continuity of space, lines of sight, presences, light, and wind extend deeper into the interior and eventually connect to the exterior of the building.
Uses are therefore not fixed. Semi-outdoor spaces gradually extend toward the outdoors, and the ways in which the spaces are used continue to evolve in response to changing environmental conditions.
This architecture is not conceived as a device that unilaterally controls the environment, but as a frame through which the inhabitants can respond to it. Rather than defining a clear moment of “completion,” the frame alone is anchored to the site, allowing life to accumulate upon it over time. By refraining from prescribing meanings or uses in advance, the space remains in a state of incompletion, where unexpected shifts and margins can be continually reinterpreted through everyday actions.
In this way, the inhabitants’ own landscape slowly takes shape over time. Furniture, plants, and the operation of openings—ordinary acts of daily life—temporarily give meaning to the frame, and the interpretation of the space evolves as time passes.
Overlap no Ma is therefore both a house for a particular client and an attempt to reconsider architecture as a frame that stands between climate and life. Without relying on visual transparency, openness is achieved by cutting and reconnecting space. Entrusting itself to the environment of Okinawa, the architecture is expected to mature over time. Even after it leaves the hands of its current inhabitants, it may accept other residents or roles, continuing to stand on this land—an architecture generous enough to endure beyond a single life.
Overlap no Ma
Project location: Okinawa, Japan
Clients: Private
Architecture Firm: IGArchitects
Lead Architects: IGArchitects Masato Igarashi
Engineering: Structure: Yousuke Misaki EQSD
Construction: Yukimitsu Shimoji ,FUN SHARE Ltd.
Construction System: Concrete
Finishes: Concrete , Glass
Gross Built Area: 72.83㎡
Completion Year: February,2026
Photo credits: Ooki Jingu





