
SHARE kurosawa kawara-tenによる、千葉・木更津市の「Gさんのための家」。施主が手入れを続けてきた敷地での計画。望む建築を共に探る対話のプロセスを試み、“のびやか”だか“草花を守る為に大きな建物は避ける”という思いを発見。1階面積を抑えて2階部分を大きく跳ね出す建築を考案




髙島和広+池田京史+西山依里 / kurosawa kawara-tenが設計した、千葉・木更津市の「Gさんのための家」です。
施主が手入れを続けてきた敷地での計画。建築家は、望む建築を共に探る対話のプロセスを試み、“のびやか”だか“草花を守る為に大きな建物は避ける”という思いを発見しました。そして、1階面積を抑えて2階部分を大きく跳ね出す建築を考案しました。
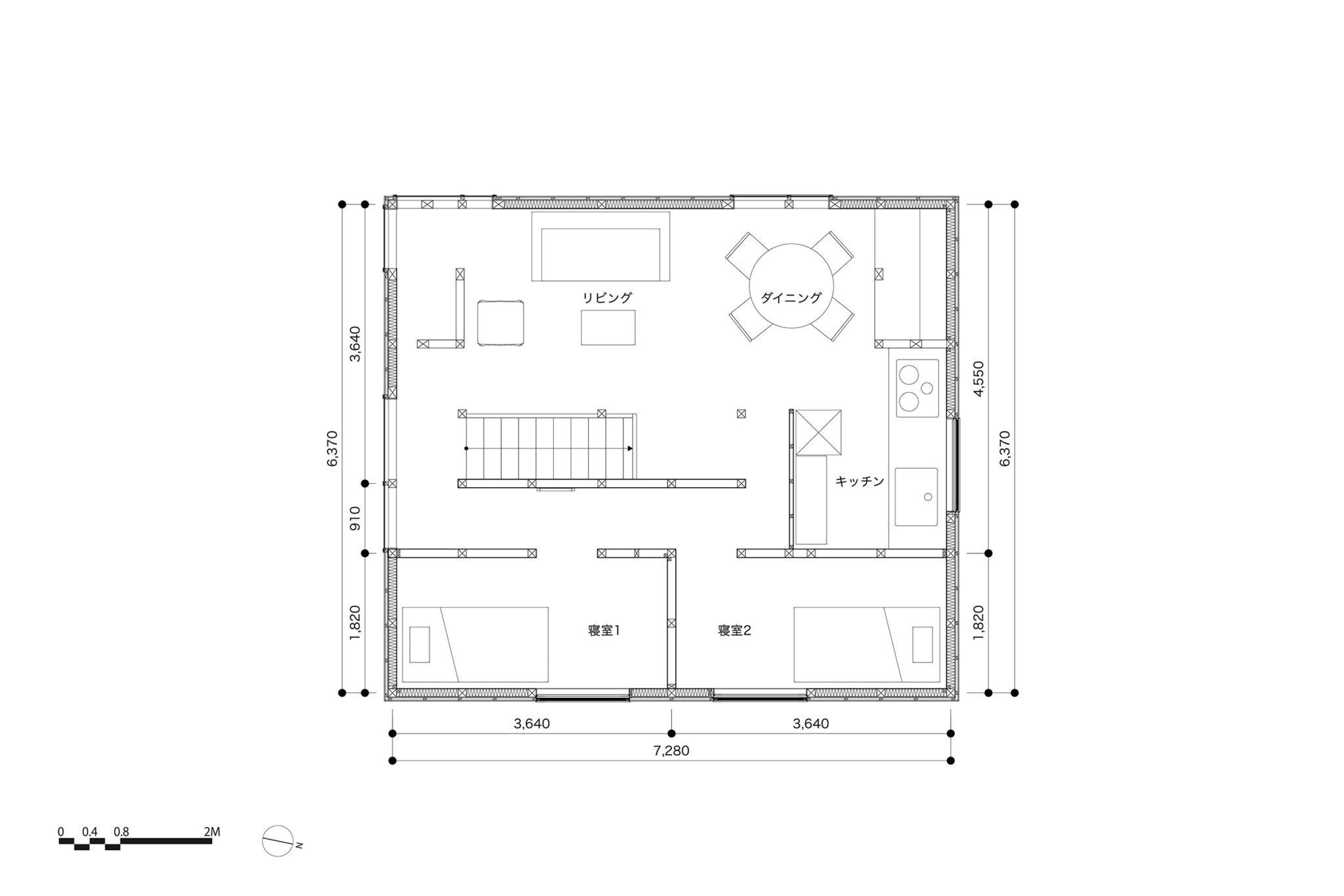
この住宅は千葉県木更津市内、ひな壇に分譲された戸建団地の際で斜面を背負った敷地に建っています。
設計当初、敷地にはたくさんの草花や作物が植えられ、斜面には施主が育てている樹木が葉を茂らせていました。施主は10数年前にこの土地を手に入れ、毎週欠かさず都内からやって来ては庭木の手入れを行い、焚き火とピクニックをして帰る生活を繰り返しながら、いつかは週末住宅を建て、泊まりがけでゆったりとここで過ごしたいと望んでいました。
そこで、設計にあたり、こちらから一方的に提案をするのではなく、施主に対して建築の歴史やスタイルなど、建築にまつわるさまざまなレクチャーを行うことで、クライアントの思う「美しい建築」を一緒に探っていくという設計プロセスを試みます。
さまざまな対話を通じて、「景色を楽しめる、のびやかな建築にしたい」という思いと、「育てた畑や草花を守るため、大きな建物は避けたい」という相反する思いを発見するに至りました。
斜面の樹木や平地の畑を残しながらも、景色の良いゆったりとしたリビングを実現するために、1階面積を小さく抑え、2階部分を大きく跳ね出す構成とします。
さらに、屋上にはロフトや設備スペースを兼ねた塔屋を計画して、木更津市街地越しに東京湾やアクアラインの景色を見渡せる眺望を確保しました。2階が全周を大きく跳ね出した形式であるため、眺望が欲しい山側にはトラスを組んで大きな開口と剛性を確保し、その他の面には倍率の高い構造面材を張って強度を担保しています。
結果として、跳ね出し部分を支えるため、室内にも斜材が現れていますが、キッチンの棚やハンモックコーナーとして積極的に活用されています。
以下の写真はクリックで拡大します





















































以下、建築家によるテキストです。
この住宅は千葉県木更津市内、ひな壇に分譲された戸建団地の際で斜面を背負った敷地に建っています。
設計当初、敷地にはたくさんの草花や作物が植えられ、斜面には施主が育てている樹木が葉を茂らせていました。
施主は10数年前にこの土地を手に入れ、毎週欠かさず都内からやって来ては庭木の手入れを行い、焚き火とピクニックをして帰る生活を繰り返しながら、いつかは週末住宅を建て、泊まりがけでゆったりとここで過ごしたいと望んでいました。
そこで、設計にあたり、こちらから一方的に提案をするのではなく、施主に対して建築の歴史やスタイルなど、建築にまつわるさまざまなレクチャーを行うことで、クライアントの思う「美しい建築」を一緒に探っていくという設計プロセスを試みます。
さまざまな対話を通じて、「景色を楽しめる、のびやかな建築にしたい」という思いと、「育てた畑や草花を守るため、大きな建物は避けたい」という相反する思いを発見するに至りました。
斜面の樹木や平地の畑を残しながらも、景色の良いゆったりとしたリビングを実現するために、1階面積を小さく抑え、2階部分を大きく跳ね出す構成とします。
さらに、屋上にはロフトや設備スペースを兼ねた塔屋を計画して、木更津市街地越しに東京湾やアクアラインの景色を見渡せる眺望を確保しました。
2階が全周を大きく跳ね出した形式であるため、眺望が欲しい山側にはトラスを組んで大きな開口と剛性を確保し、その他の面には倍率の高い構造面材を張って強度を担保しています。
結果として、跳ね出し部分を支えるため、室内にも斜材が現れていますが、キッチンの棚やハンモックコーナーとして積極的に活用されています。
外装については、1階を杉羽目板外壁、2階以上はガルバリウム鋼板で仕上げることで、施主が歳を重ねてもメンテナンスの負担が少ないよう配慮しました。
かつて田園都市を夢見て開発された郊外では、世代を経るにつれて敷地が小分けに小さくなり、庭木は切られ、小綺麗なコンクリートと砂利とカーポートに置き換わり、気づけば自然は遠いものになってしまったように思います。
そんな現代の暮らしにおいてこそ、手間と時間をかけて、土の匂いや草木の手触り、風の心地よさ、火のゆらめきを感じて過ごせることは、とても豊かで贅沢な時間ではないでしょうか。
この住宅は「暮らす」ために作られた郊外において、「過ごす」郊外団地の魅力を再発見するケーススタディと言えるのではないかと考えています。
■建築概要
題名:Gさんのための家
所在地:千葉県木更津市真舟
主用途:週末住宅
設計:kurosawa kawara-ten 担当/髙島 和広 、池田 京史、西山 依里
施工:kurosawa kawara-ten
構造設計:須藤正尊一級建築士事務所 担当/須藤正尊
協力:千葉県森林組合
構造:木造・在来軸組工法
階数:地上2階
敷地面積:1727.78㎡
建築面積:46.37㎡
延床面積:66.24㎡
設計:2019年5月~2022年2月
工事:2021年11月~2022年4月
竣工:2022年4月
写真:千葉正人
| 種別 | 使用箇所 | 商品名(メーカー名) |
|---|---|---|
| 外装・壁 | 外壁 | 杉羽目板仕上げ ノンロットクリア塗装(千葉県森林組合) |
| 外装・屋根 | 屋根 | FRP防水 |
| 外装・建具 | 南側西側開口部 | アルミ造作サッシ |
| 外装・建具 | その他開口部 | アルミ樹脂複合サッシ[マディオP](三協アルミ) |
| 内装・床 | 1階 床 | ベタ基礎スラブコンクリート金鏝押さえ+クリア塗装 |
| 内装・壁 | 1階 壁 | ハイベストウッド表し(ノダ) |
| 内装・天井 | 1階 天井 | エースボード表し(チヨダウーテ) |
| 内装・床 | 2階 床 | 針葉樹24mm合板クリア塗装仕上げ |
| 内装・壁 | 2階 壁 | ハイベストウッド表し(ノダ) |
| 内装・天井 | 2階 天井 | エースボード表し(チヨダウーテ) |
| 内装・照明 | 照明 |
※企業様による建材情報についてのご意見や「PR」のご相談はこちらから
※この情報は弊サイトや設計者が建材の性能等を保証するものではありません





