干田正浩 / MHAAによる、東京・目黒区の集合住宅「盤桓」。樹木が茂り“心地よい風”が流れる旧家の敷地での計画。木々を残し“風を取込む”建築を求め、内部から考えて“多様な住戸タイプ”を立体的に組合せる構成を考案。緑との補色関係を考慮して朱色のファサードとする外観、東側の道路から見る。 photo©藤井浩司 TOREAL
干田正浩 / MHAAによる、東京・目黒区の集合住宅「盤桓」。樹木が茂り“心地よい風”が流れる旧家の敷地での計画。木々を残し“風を取込む”建築を求め、内部から考えて“多様な住戸タイプ”を立体的に組合せる構成を考案。緑との補色関係を考慮して朱色のファサードとする外観、敷地内の南側から見る。(建築家による解説:既存の樹木を残しつつ、敷地に吹く風をとらえる) photo©藤井浩司 TOREAL
干田正浩 / MHAAによる、東京・目黒区の集合住宅「盤桓」。樹木が茂り“心地よい風”が流れる旧家の敷地での計画。木々を残し“風を取込む”建築を求め、内部から考えて“多様な住戸タイプ”を立体的に組合せる構成を考案。緑との補色関係を考慮して朱色のファサードとする2階、共用部 photo©藤井浩司 TOREAL
干田正浩 / MHAAによる、東京・目黒区の集合住宅「盤桓」。樹木が茂り“心地よい風”が流れる旧家の敷地での計画。木々を残し“風を取込む”建築を求め、内部から考えて“多様な住戸タイプ”を立体的に組合せる構成を考案。緑との補色関係を考慮して朱色のファサードとする2階、住戸E、ダイニングからリビングを見る。 photo©藤井浩司 TOREAL
干田正浩 / MHAA建築設計事務所が設計した、東京・目黒区の集合住宅「盤桓(目黒の集合住宅)」です。
樹木が茂り“心地よい風”が流れる旧家の敷地での計画です。建築家は、木々を残し“風を取込む”建築を求め、内部から考えて“多様な住戸タイプ”を立体的に組合せる構成を考案しました。また、緑との補色関係を考慮して朱色のファサードとしました。
目黒に代々続く旧家の敷地には、南側に豊かな樹木が植えられ、北側に配された母屋との間には広々とした庭が広がっていた。
そこには、敷地を東西に抜ける心地よい風が流れている。
設計にあたり、まず大切にしたのは「この風を建築に取り込むこと」と「既存の樹木をできる限り残すこと」だった。
南側には、樹齢70年を超える桜をはじめ、梅、欅、アラカシ、サルスベリなど、種類も大きさも異なる樹木が点在していた。
既存樹木を守りながら、南側の避難経路(窓先空地)として2mのセットバックを確保し、雁行するファサードラインを形成。北側は日影規制をクリアする雛壇状の形状とし、この敷地条件から導かれた最大ボリュームの中に8戸の住戸を配置した。共用部は極力抑え、それぞれ異なる大きさの住戸を立体的に組み合わせている。
計画は外形からではなく、内部空間から組み立てた。各住戸から樹木や季節の移ろいが感じられること、そして室内に自然の風が巡ることを意識しながらプランを検討。桜を望むメゾネット、奥行きのあるコートハウス、サザンカに面したキッチン、インナーバルコニーをもつ書斎、森に向かって開くダイニングなど、敷地との関係性を手がかりに、多様な住戸タイプが生まれている。
ファサードには、既存樹木の緑と補色関係にある朱色を採用し、時間とともに育つ懸垂性植物を植栽。北側雛壇ボリュームの雨水は解放樋とし、水の流れを視覚化するとともに、落ちる音がエントランスに静かな表情を添えている。
構造は経済性と遮音性を考慮し、逆梁の壁式構造を採用。逆梁とすることで天井仕上げを省略でき、室内にはフラットで伸びやかな天井面が生まれる。建具は高さ2550mmのフルハイトとし、外部の風景と連続する大らかなスケール感をつくり出している。
画一的な間取りになりがちな集合住宅というビルディングタイプの中で、土地の風景や流れる風、光に応答する建築を目指した結果、すべて異なる空間をもつ住戸群が立ち上がった。共通のルールや素材という制約のもとで、部分から差異を積み重ねていくプロセスは、集落の成り立ちにも通じている。
以下の写真はクリックで拡大します

干田正浩 / MHAAによる、東京・目黒区の集合住宅「盤桓」。樹木が茂り“心地よい風”が流れる旧家の敷地での計画。木々を残し“風を取込む”建築を求め、内部から考えて“多様な住戸タイプ”を立体的に組合せる構成を考案。緑との補色関係を考慮して朱色のファサードとする外観、東側の道路から見る。 photo©藤井浩司 TOREAL

干田正浩 / MHAAによる、東京・目黒区の集合住宅「盤桓」。樹木が茂り“心地よい風”が流れる旧家の敷地での計画。木々を残し“風を取込む”建築を求め、内部から考えて“多様な住戸タイプ”を立体的に組合せる構成を考案。緑との補色関係を考慮して朱色のファサードとする外観、東側の道路から見る。 photo©藤井浩司 TOREAL

干田正浩 / MHAAによる、東京・目黒区の集合住宅「盤桓」。樹木が茂り“心地よい風”が流れる旧家の敷地での計画。木々を残し“風を取込む”建築を求め、内部から考えて“多様な住戸タイプ”を立体的に組合せる構成を考案。緑との補色関係を考慮して朱色のファサードとする外観、敷地内の南東側から見る。 photo©藤井浩司 TOREAL

干田正浩 / MHAAによる、東京・目黒区の集合住宅「盤桓」。樹木が茂り“心地よい風”が流れる旧家の敷地での計画。木々を残し“風を取込む”建築を求め、内部から考えて“多様な住戸タイプ”を立体的に組合せる構成を考案。緑との補色関係を考慮して朱色のファサードとする外観、敷地内の南東側から見る。 photo©藤井浩司 TOREAL

干田正浩 / MHAAによる、東京・目黒区の集合住宅「盤桓」。樹木が茂り“心地よい風”が流れる旧家の敷地での計画。木々を残し“風を取込む”建築を求め、内部から考えて“多様な住戸タイプ”を立体的に組合せる構成を考案。緑との補色関係を考慮して朱色のファサードとする外観、敷地内の南側から見る。 photo©藤井浩司 TOREAL

干田正浩 / MHAAによる、東京・目黒区の集合住宅「盤桓」。樹木が茂り“心地よい風”が流れる旧家の敷地での計画。木々を残し“風を取込む”建築を求め、内部から考えて“多様な住戸タイプ”を立体的に組合せる構成を考案。緑との補色関係を考慮して朱色のファサードとする外観、敷地内の南側から見る。(建築家による解説:既存の樹木を残しつつ、敷地に吹く風をとらえる) photo©藤井浩司 TOREAL

干田正浩 / MHAAによる、東京・目黒区の集合住宅「盤桓」。樹木が茂り“心地よい風”が流れる旧家の敷地での計画。木々を残し“風を取込む”建築を求め、内部から考えて“多様な住戸タイプ”を立体的に組合せる構成を考案。緑との補色関係を考慮して朱色のファサードとする外観、北側の道路から見る。(建築家による解説:通りからの視線を遮りながら、南からの光と風を取り入れる) photo©藤井浩司 TOREAL

干田正浩 / MHAAによる、東京・目黒区の集合住宅「盤桓」。樹木が茂り“心地よい風”が流れる旧家の敷地での計画。木々を残し“風を取込む”建築を求め、内部から考えて“多様な住戸タイプ”を立体的に組合せる構成を考案。緑との補色関係を考慮して朱色のファサードとする1階、共用部通路からエントランス側を見る。 photo©藤井浩司 TOREAL

干田正浩 / MHAAによる、東京・目黒区の集合住宅「盤桓」。樹木が茂り“心地よい風”が流れる旧家の敷地での計画。木々を残し“風を取込む”建築を求め、内部から考えて“多様な住戸タイプ”を立体的に組合せる構成を考案。緑との補色関係を考慮して朱色のファサードとする1階、住戸A、ダイニングからリビング側を見る。(建築家による解説:八重桜を望めるダイニングキッチン) photo©藤井浩司 TOREAL

干田正浩 / MHAAによる、東京・目黒区の集合住宅「盤桓」。樹木が茂り“心地よい風”が流れる旧家の敷地での計画。木々を残し“風を取込む”建築を求め、内部から考えて“多様な住戸タイプ”を立体的に組合せる構成を考案。緑との補色関係を考慮して朱色のファサードとする1階、住戸A、寝室 photo©藤井浩司 TOREAL

干田正浩 / MHAAによる、東京・目黒区の集合住宅「盤桓」。樹木が茂り“心地よい風”が流れる旧家の敷地での計画。木々を残し“風を取込む”建築を求め、内部から考えて“多様な住戸タイプ”を立体的に組合せる構成を考案。緑との補色関係を考慮して朱色のファサードとする1階、住戸B、ダイニングからリビングを見る。(建築家による解説:ウメの庭を望むリビングダイニング) photo©藤井浩司 TOREAL

干田正浩 / MHAAによる、東京・目黒区の集合住宅「盤桓」。樹木が茂り“心地よい風”が流れる旧家の敷地での計画。木々を残し“風を取込む”建築を求め、内部から考えて“多様な住戸タイプ”を立体的に組合せる構成を考案。緑との補色関係を考慮して朱色のファサードとする1階、住戸B、キッチン(建築家による解説:サザンカの見えるキッチン) photo©藤井浩司 TOREAL

干田正浩 / MHAAによる、東京・目黒区の集合住宅「盤桓」。樹木が茂り“心地よい風”が流れる旧家の敷地での計画。木々を残し“風を取込む”建築を求め、内部から考えて“多様な住戸タイプ”を立体的に組合せる構成を考案。緑との補色関係を考慮して朱色のファサードとする1階、住戸C、ダイニングからリビングを見る。(建築家による解説:木漏れ日と庭のリビングダイニング) photo©藤井浩司 TOREAL

干田正浩 / MHAAによる、東京・目黒区の集合住宅「盤桓」。樹木が茂り“心地よい風”が流れる旧家の敷地での計画。木々を残し“風を取込む”建築を求め、内部から考えて“多様な住戸タイプ”を立体的に組合せる構成を考案。緑との補色関係を考慮して朱色のファサードとする1階、住戸D、寝室(建築家による解説:森の書斎のある寝室) photo©藤井浩司 TOREAL

干田正浩 / MHAAによる、東京・目黒区の集合住宅「盤桓」。樹木が茂り“心地よい風”が流れる旧家の敷地での計画。木々を残し“風を取込む”建築を求め、内部から考えて“多様な住戸タイプ”を立体的に組合せる構成を考案。緑との補色関係を考慮して朱色のファサードとする2階、住戸D、キッチンからダイニング越しにリビングを見る。 photo©藤井浩司 TOREAL

干田正浩 / MHAAによる、東京・目黒区の集合住宅「盤桓」。樹木が茂り“心地よい風”が流れる旧家の敷地での計画。木々を残し“風を取込む”建築を求め、内部から考えて“多様な住戸タイプ”を立体的に組合せる構成を考案。緑との補色関係を考慮して朱色のファサードとする1階、住戸D、リビングから開口部越しにバルコニーを見る。 photo©MHAA建築設計事務所

干田正浩 / MHAAによる、東京・目黒区の集合住宅「盤桓」。樹木が茂り“心地よい風”が流れる旧家の敷地での計画。木々を残し“風を取込む”建築を求め、内部から考えて“多様な住戸タイプ”を立体的に組合せる構成を考案。緑との補色関係を考慮して朱色のファサードとする1階、共用部、吹抜を見上げる。 photo©藤井浩司 TOREAL

干田正浩 / MHAAによる、東京・目黒区の集合住宅「盤桓」。樹木が茂り“心地よい風”が流れる旧家の敷地での計画。木々を残し“風を取込む”建築を求め、内部から考えて“多様な住戸タイプ”を立体的に組合せる構成を考案。緑との補色関係を考慮して朱色のファサードとする1階、共用部、2階への階段 photo©藤井浩司 TOREAL

干田正浩 / MHAAによる、東京・目黒区の集合住宅「盤桓」。樹木が茂り“心地よい風”が流れる旧家の敷地での計画。木々を残し“風を取込む”建築を求め、内部から考えて“多様な住戸タイプ”を立体的に組合せる構成を考案。緑との補色関係を考慮して朱色のファサードとする2階、共用部 photo©藤井浩司 TOREAL

干田正浩 / MHAAによる、東京・目黒区の集合住宅「盤桓」。樹木が茂り“心地よい風”が流れる旧家の敷地での計画。木々を残し“風を取込む”建築を求め、内部から考えて“多様な住戸タイプ”を立体的に組合せる構成を考案。緑との補色関係を考慮して朱色のファサードとする2階、住戸E、ホールから開口部越しにDENを見る。 photo©藤井浩司 TOREAL

干田正浩 / MHAAによる、東京・目黒区の集合住宅「盤桓」。樹木が茂り“心地よい風”が流れる旧家の敷地での計画。木々を残し“風を取込む”建築を求め、内部から考えて“多様な住戸タイプ”を立体的に組合せる構成を考案。緑との補色関係を考慮して朱色のファサードとする2階、住戸E、ダイニングからリビングを見る。 photo©藤井浩司 TOREAL

干田正浩 / MHAAによる、東京・目黒区の集合住宅「盤桓」。樹木が茂り“心地よい風”が流れる旧家の敷地での計画。木々を残し“風を取込む”建築を求め、内部から考えて“多様な住戸タイプ”を立体的に組合せる構成を考案。緑との補色関係を考慮して朱色のファサードとする2階、住戸E、正面:サニタリー、右:バスルーム photo©藤井浩司 TOREAL

干田正浩 / MHAAによる、東京・目黒区の集合住宅「盤桓」。樹木が茂り“心地よい風”が流れる旧家の敷地での計画。木々を残し“風を取込む”建築を求め、内部から考えて“多様な住戸タイプ”を立体的に組合せる構成を考案。緑との補色関係を考慮して朱色のファサードとする2階、住戸G、エントランス側からホールを見る。 photo©藤井浩司 TOREAL

干田正浩 / MHAAによる、東京・目黒区の集合住宅「盤桓」。樹木が茂り“心地よい風”が流れる旧家の敷地での計画。木々を残し“風を取込む”建築を求め、内部から考えて“多様な住戸タイプ”を立体的に組合せる構成を考案。緑との補色関係を考慮して朱色のファサードとする2階、住戸G、ダイニング photo©藤井浩司 TOREAL

干田正浩 / MHAAによる、東京・目黒区の集合住宅「盤桓」。樹木が茂り“心地よい風”が流れる旧家の敷地での計画。木々を残し“風を取込む”建築を求め、内部から考えて“多様な住戸タイプ”を立体的に組合せる構成を考案。緑との補色関係を考慮して朱色のファサードとする2階、住戸G、ダイニングから開口部越しに外部を見る。(建築家による解説:テラスのラダーウォールは風だけでなく、視線や直射光もコントロールする) photo©藤井浩司 TOREAL

干田正浩 / MHAAによる、東京・目黒区の集合住宅「盤桓」。樹木が茂り“心地よい風”が流れる旧家の敷地での計画。木々を残し“風を取込む”建築を求め、内部から考えて“多様な住戸タイプ”を立体的に組合せる構成を考案。緑との補色関係を考慮して朱色のファサードとする3階、住戸G、2階から3階への階段 photo©藤井浩司 TOREAL

干田正浩 / MHAAによる、東京・目黒区の集合住宅「盤桓」。樹木が茂り“心地よい風”が流れる旧家の敷地での計画。木々を残し“風を取込む”建築を求め、内部から考えて“多様な住戸タイプ”を立体的に組合せる構成を考案。緑との補色関係を考慮して朱色のファサードとする3階、住戸G、リビング photo©藤井浩司 TOREAL

干田正浩 / MHAAによる、東京・目黒区の集合住宅「盤桓」。樹木が茂り“心地よい風”が流れる旧家の敷地での計画。木々を残し“風を取込む”建築を求め、内部から考えて“多様な住戸タイプ”を立体的に組合せる構成を考案。緑との補色関係を考慮して朱色のファサードとする3階、住戸G、リビングから開口部越しに外部を見る。(建築家による解説:テラスのラダーウォールで導いた風をジャロジー窓から取り入れる) photo©藤井浩司 TOREAL

干田正浩 / MHAAによる、東京・目黒区の集合住宅「盤桓」。樹木が茂り“心地よい風”が流れる旧家の敷地での計画。木々を残し“風を取込む”建築を求め、内部から考えて“多様な住戸タイプ”を立体的に組合せる構成を考案。緑との補色関係を考慮して朱色のファサードとする2階、住戸H、ホール側からダイニングを見る。(建築家による解説:桜の見えるダイニング) photo©藤井浩司 TOREAL

干田正浩 / MHAAによる、東京・目黒区の集合住宅「盤桓」。樹木が茂り“心地よい風”が流れる旧家の敷地での計画。木々を残し“風を取込む”建築を求め、内部から考えて“多様な住戸タイプ”を立体的に組合せる構成を考案。緑との補色関係を考慮して朱色のファサードとする2階、住戸H、ダイニング photo©藤井浩司 TOREAL

干田正浩 / MHAAによる、東京・目黒区の集合住宅「盤桓」。樹木が茂り“心地よい風”が流れる旧家の敷地での計画。木々を残し“風を取込む”建築を求め、内部から考えて“多様な住戸タイプ”を立体的に組合せる構成を考案。緑との補色関係を考慮して朱色のファサードとする2階、住戸H、ダイニングからキッチン側を見る。 photo©藤井浩司 TOREAL

干田正浩 / MHAAによる、東京・目黒区の集合住宅「盤桓」。樹木が茂り“心地よい風”が流れる旧家の敷地での計画。木々を残し“風を取込む”建築を求め、内部から考えて“多様な住戸タイプ”を立体的に組合せる構成を考案。緑との補色関係を考慮して朱色のファサードとする3階、住戸H、リビングから開口部越しに外部を見る。 photo©藤井浩司 TOREAL

干田正浩 / MHAAによる、東京・目黒区の集合住宅「盤桓」。樹木が茂り“心地よい風”が流れる旧家の敷地での計画。木々を残し“風を取込む”建築を求め、内部から考えて“多様な住戸タイプ”を立体的に組合せる構成を考案。緑との補色関係を考慮して朱色のファサードとする3階、住戸H、寝室から開口部越しに外部を見る。(建築家による解説:目黒不動尊の樹木を望みながら西陽を遮る位置にラダーウォールを配置) photo©藤井浩司 TOREAL

干田正浩 / MHAAによる、東京・目黒区の集合住宅「盤桓」。樹木が茂り“心地よい風”が流れる旧家の敷地での計画。木々を残し“風を取込む”建築を求め、内部から考えて“多様な住戸タイプ”を立体的に組合せる構成を考案。緑との補色関係を考慮して朱色のファサードとする外観、樋の詳細 photo©MHAA建築設計事務所

干田正浩 / MHAAによる、東京・目黒区の集合住宅「盤桓」。樹木が茂り“心地よい風”が流れる旧家の敷地での計画。木々を残し“風を取込む”建築を求め、内部から考えて“多様な住戸タイプ”を立体的に組合せる構成を考案。緑との補色関係を考慮して朱色のファサードとする外観、樋の詳細 photo©MHAA建築設計事務所

干田正浩 / MHAAによる、東京・目黒区の集合住宅「盤桓」。樹木が茂り“心地よい風”が流れる旧家の敷地での計画。木々を残し“風を取込む”建築を求め、内部から考えて“多様な住戸タイプ”を立体的に組合せる構成を考案。緑との補色関係を考慮して朱色のファサードとする外観、敷地内の南東側から見る。夕景 photo©藤井浩司 TOREAL

干田正浩 / MHAAによる、東京・目黒区の集合住宅「盤桓」。樹木が茂り“心地よい風”が流れる旧家の敷地での計画。木々を残し“風を取込む”建築を求め、内部から考えて“多様な住戸タイプ”を立体的に組合せる構成を考案。緑との補色関係を考慮して朱色のファサードとする外観、敷地内の南側から見る。夜景 photo©藤井浩司 TOREAL

干田正浩 / MHAAによる、東京・目黒区の集合住宅「盤桓」。樹木が茂り“心地よい風”が流れる旧家の敷地での計画。木々を残し“風を取込む”建築を求め、内部から考えて“多様な住戸タイプ”を立体的に組合せる構成を考案。緑との補色関係を考慮して朱色のファサードとする外観、敷地内の南東側から見る。夜景 photo©藤井浩司 TOREAL

干田正浩 / MHAAによる、東京・目黒区の集合住宅「盤桓」。樹木が茂り“心地よい風”が流れる旧家の敷地での計画。木々を残し“風を取込む”建築を求め、内部から考えて“多様な住戸タイプ”を立体的に組合せる構成を考案。緑との補色関係を考慮して朱色のファサードとする外観、敷地内の南側から見る。夜景 photo©藤井浩司 TOREAL

干田正浩 / MHAAによる、東京・目黒区の集合住宅「盤桓」。樹木が茂り“心地よい風”が流れる旧家の敷地での計画。木々を残し“風を取込む”建築を求め、内部から考えて“多様な住戸タイプ”を立体的に組合せる構成を考案。緑との補色関係を考慮して朱色のファサードとする外観、東側の道路から見る。夜景 photo©藤井浩司 TOREAL

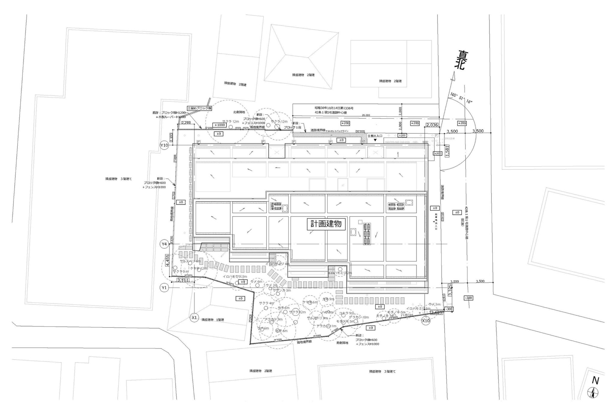
干田正浩 / MHAAによる、東京・目黒区の集合住宅「盤桓」。樹木が茂り“心地よい風”が流れる旧家の敷地での計画。木々を残し“風を取込む”建築を求め、内部から考えて“多様な住戸タイプ”を立体的に組合せる構成を考案。緑との補色関係を考慮して朱色のファサードとする配置図 image©MHAA建築設計事務所

干田正浩 / MHAAによる、東京・目黒区の集合住宅「盤桓」。樹木が茂り“心地よい風”が流れる旧家の敷地での計画。木々を残し“風を取込む”建築を求め、内部から考えて“多様な住戸タイプ”を立体的に組合せる構成を考案。緑との補色関係を考慮して朱色のファサードとする1階平面図 image©MHAA建築設計事務所

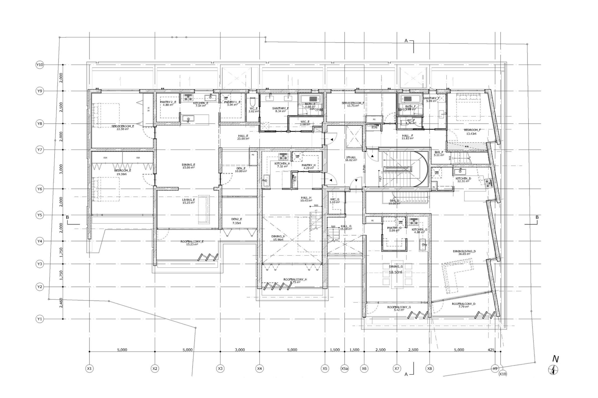
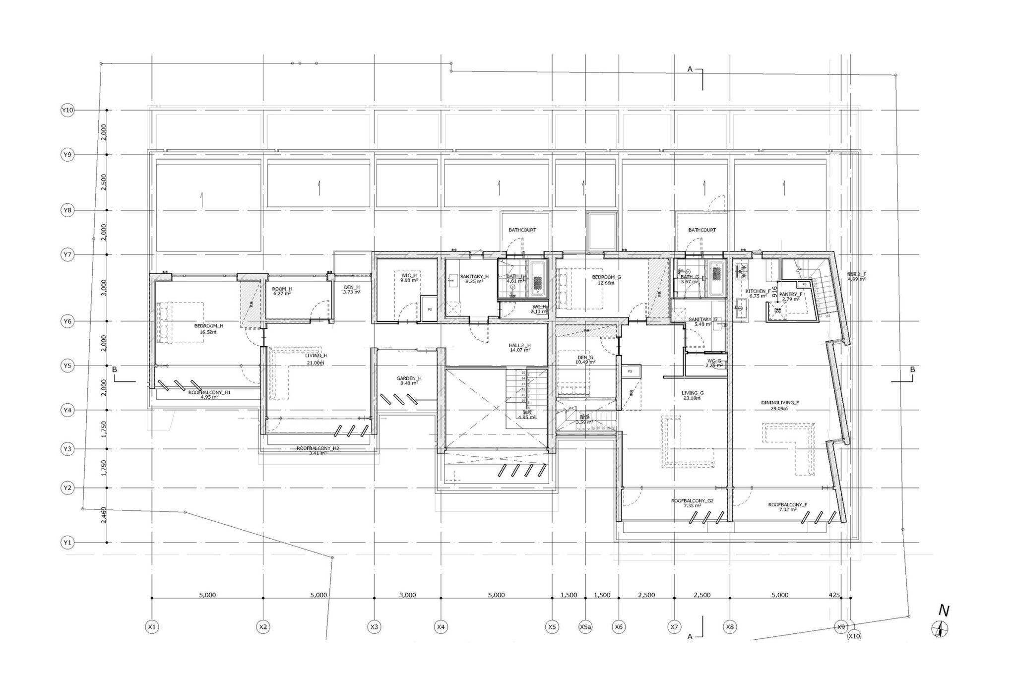
干田正浩 / MHAAによる、東京・目黒区の集合住宅「盤桓」。樹木が茂り“心地よい風”が流れる旧家の敷地での計画。木々を残し“風を取込む”建築を求め、内部から考えて“多様な住戸タイプ”を立体的に組合せる構成を考案。緑との補色関係を考慮して朱色のファサードとする2階平面図 image©MHAA建築設計事務所

干田正浩 / MHAAによる、東京・目黒区の集合住宅「盤桓」。樹木が茂り“心地よい風”が流れる旧家の敷地での計画。木々を残し“風を取込む”建築を求め、内部から考えて“多様な住戸タイプ”を立体的に組合せる構成を考案。緑との補色関係を考慮して朱色のファサードとする3階平面図 image©MHAA建築設計事務所

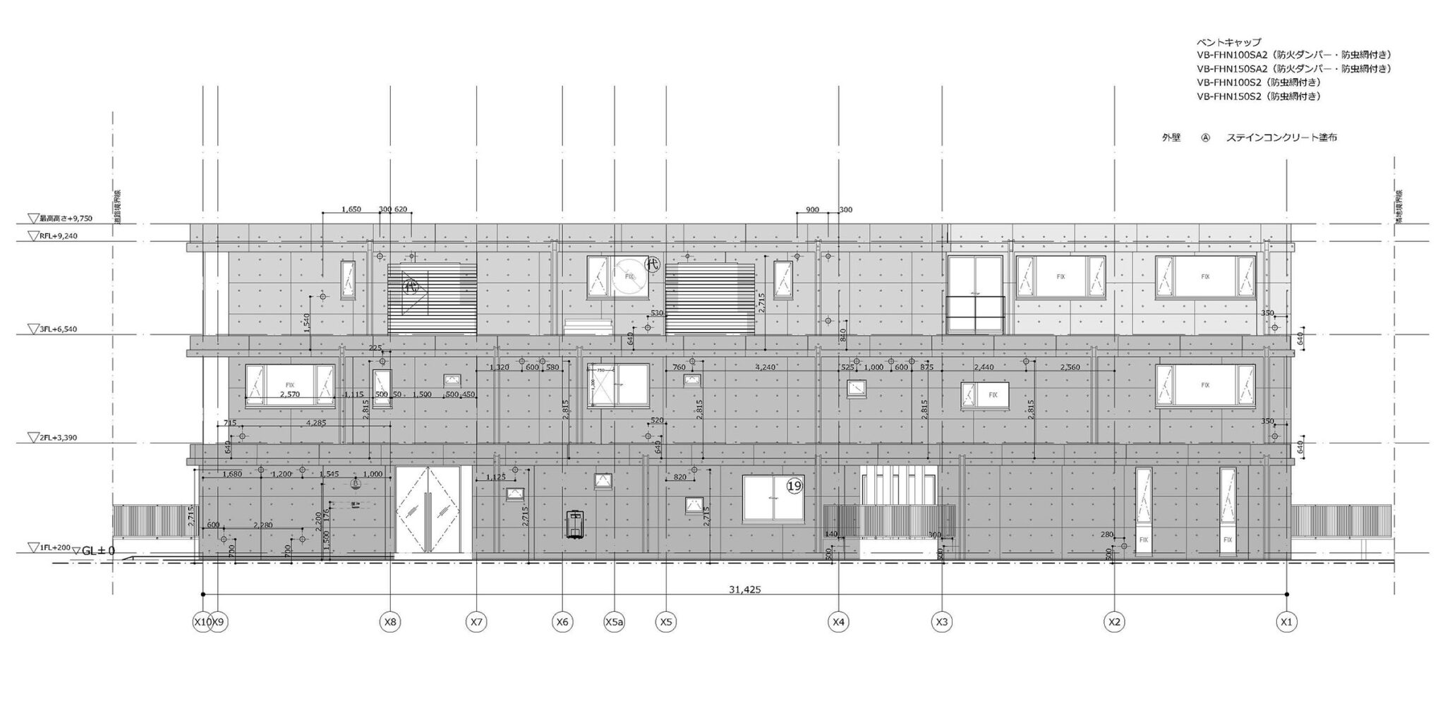
干田正浩 / MHAAによる、東京・目黒区の集合住宅「盤桓」。樹木が茂り“心地よい風”が流れる旧家の敷地での計画。木々を残し“風を取込む”建築を求め、内部から考えて“多様な住戸タイプ”を立体的に組合せる構成を考案。緑との補色関係を考慮して朱色のファサードとする東側立面図 image©MHAA建築設計事務所

干田正浩 / MHAAによる、東京・目黒区の集合住宅「盤桓」。樹木が茂り“心地よい風”が流れる旧家の敷地での計画。木々を残し“風を取込む”建築を求め、内部から考えて“多様な住戸タイプ”を立体的に組合せる構成を考案。緑との補色関係を考慮して朱色のファサードとする南側立面図 image©MHAA建築設計事務所

干田正浩 / MHAAによる、東京・目黒区の集合住宅「盤桓」。樹木が茂り“心地よい風”が流れる旧家の敷地での計画。木々を残し“風を取込む”建築を求め、内部から考えて“多様な住戸タイプ”を立体的に組合せる構成を考案。緑との補色関係を考慮して朱色のファサードとする西側立面図 image©MHAA建築設計事務所

干田正浩 / MHAAによる、東京・目黒区の集合住宅「盤桓」。樹木が茂り“心地よい風”が流れる旧家の敷地での計画。木々を残し“風を取込む”建築を求め、内部から考えて“多様な住戸タイプ”を立体的に組合せる構成を考案。緑との補色関係を考慮して朱色のファサードとする北側立面図 image©MHAA建築設計事務所

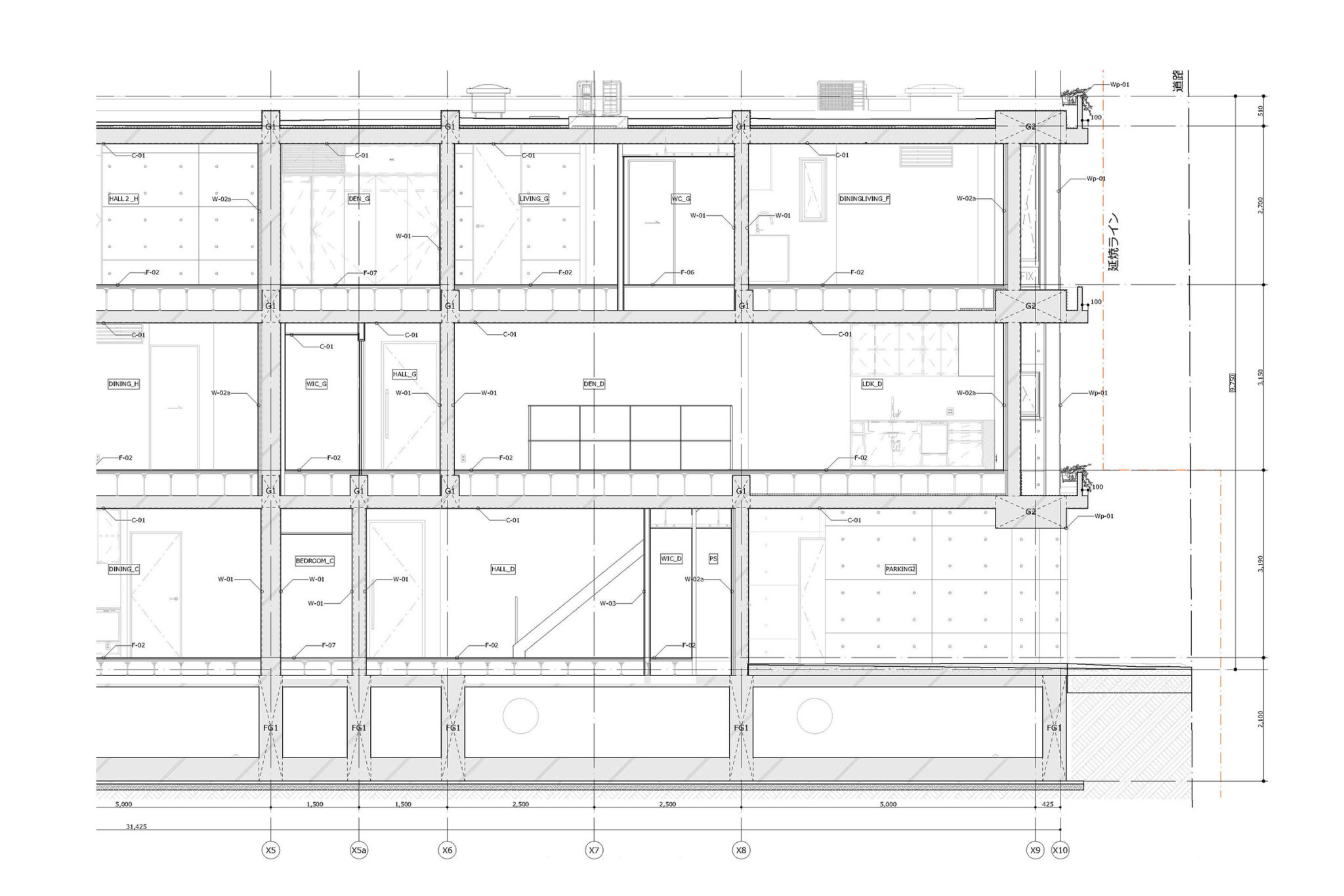
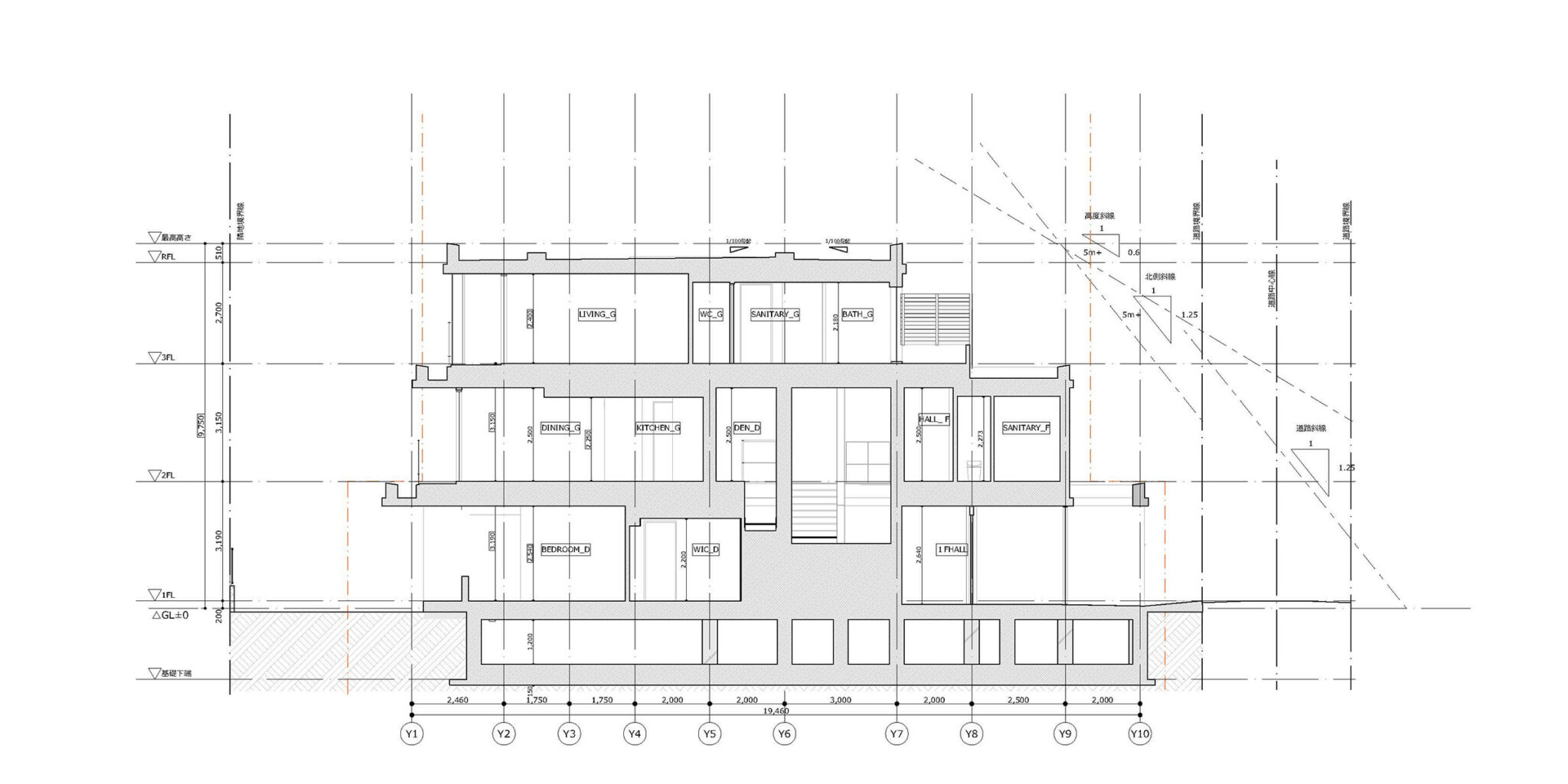
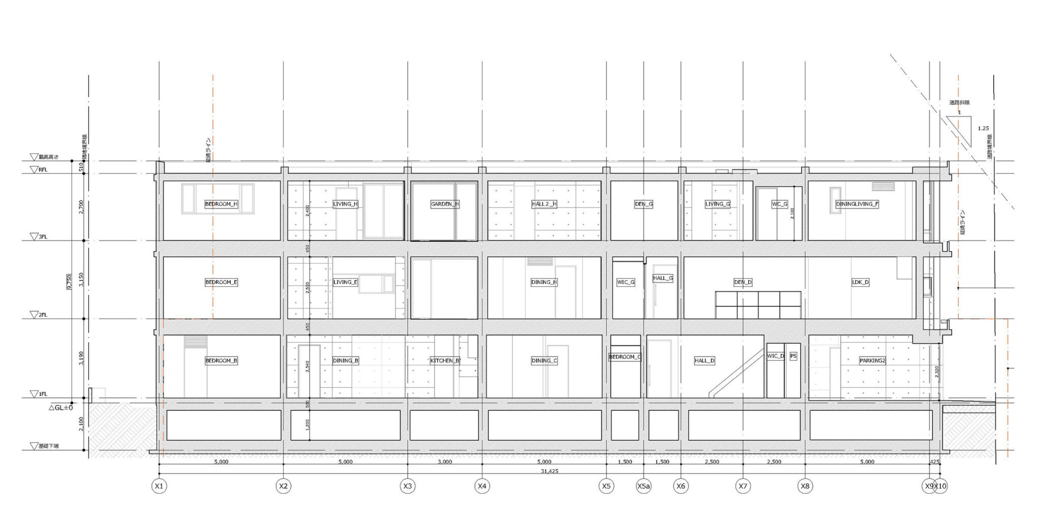
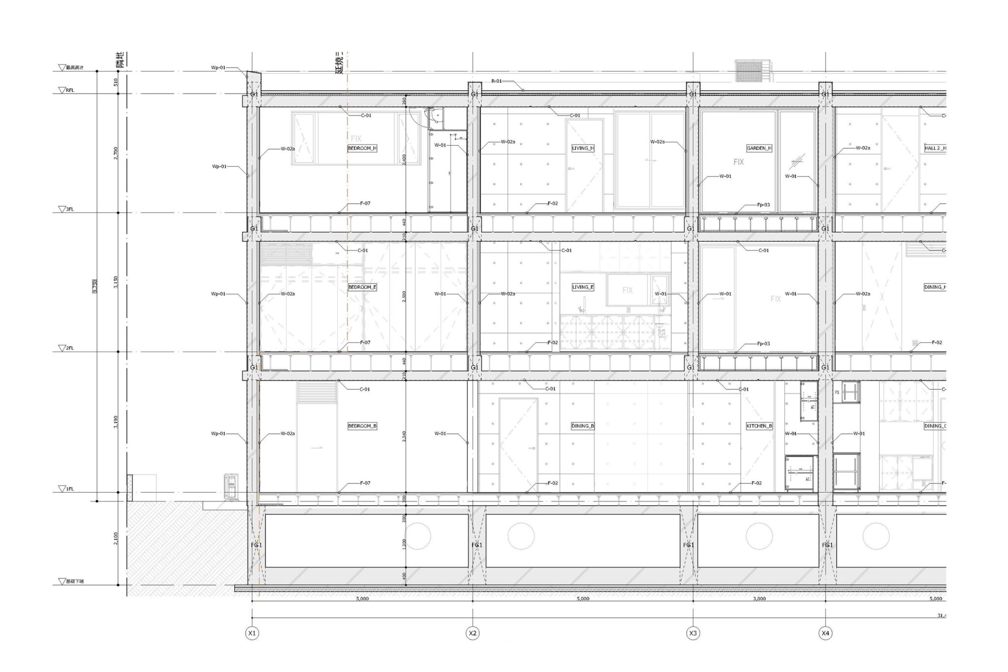
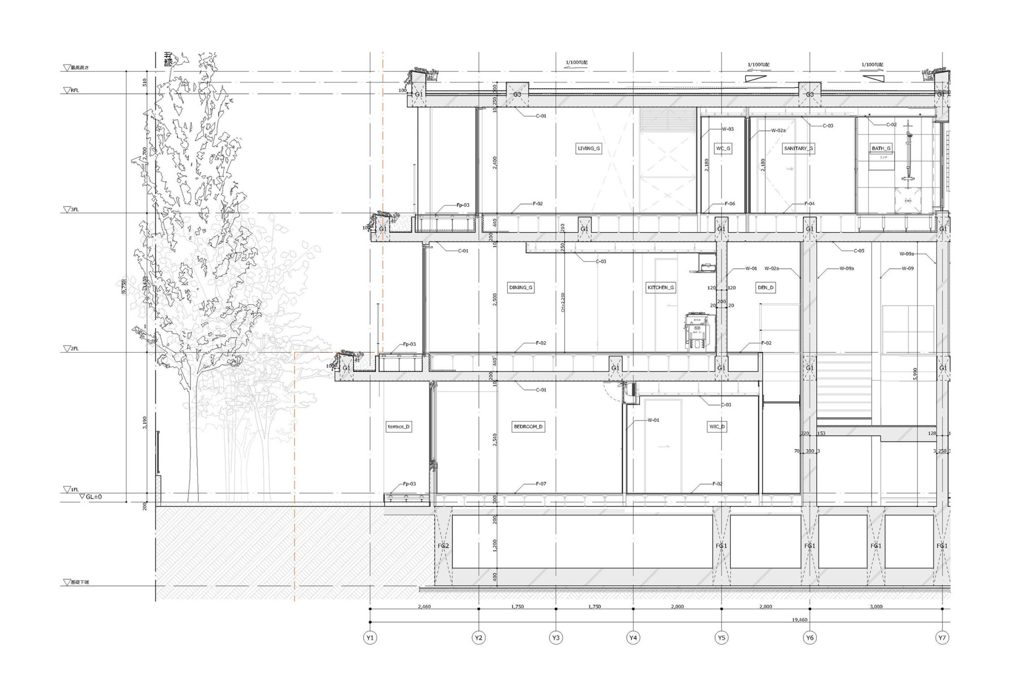
干田正浩 / MHAAによる、東京・目黒区の集合住宅「盤桓」。樹木が茂り“心地よい風”が流れる旧家の敷地での計画。木々を残し“風を取込む”建築を求め、内部から考えて“多様な住戸タイプ”を立体的に組合せる構成を考案。緑との補色関係を考慮して朱色のファサードとする断面図 image©MHAA建築設計事務所

干田正浩 / MHAAによる、東京・目黒区の集合住宅「盤桓」。樹木が茂り“心地よい風”が流れる旧家の敷地での計画。木々を残し“風を取込む”建築を求め、内部から考えて“多様な住戸タイプ”を立体的に組合せる構成を考案。緑との補色関係を考慮して朱色のファサードとする断面図 image©MHAA建築設計事務所

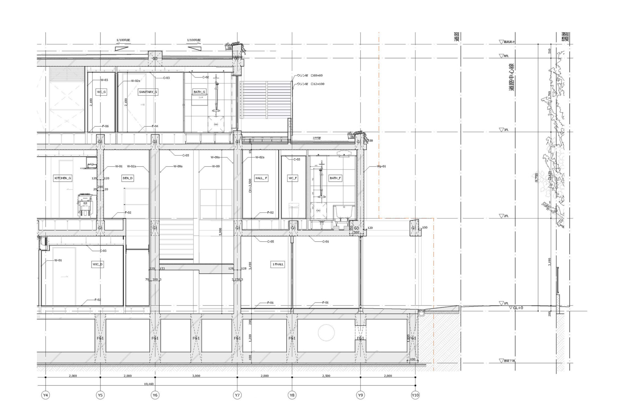
干田正浩 / MHAAによる、東京・目黒区の集合住宅「盤桓」。樹木が茂り“心地よい風”が流れる旧家の敷地での計画。木々を残し“風を取込む”建築を求め、内部から考えて“多様な住戸タイプ”を立体的に組合せる構成を考案。緑との補色関係を考慮して朱色のファサードとする矩計図 image©MHAA建築設計事務所

干田正浩 / MHAAによる、東京・目黒区の集合住宅「盤桓」。樹木が茂り“心地よい風”が流れる旧家の敷地での計画。木々を残し“風を取込む”建築を求め、内部から考えて“多様な住戸タイプ”を立体的に組合せる構成を考案。緑との補色関係を考慮して朱色のファサードとする矩計図 image©MHAA建築設計事務所

干田正浩 / MHAAによる、東京・目黒区の集合住宅「盤桓」。樹木が茂り“心地よい風”が流れる旧家の敷地での計画。木々を残し“風を取込む”建築を求め、内部から考えて“多様な住戸タイプ”を立体的に組合せる構成を考案。緑との補色関係を考慮して朱色のファサードとする矩計図 image©MHAA建築設計事務所

干田正浩 / MHAAによる、東京・目黒区の集合住宅「盤桓」。樹木が茂り“心地よい風”が流れる旧家の敷地での計画。木々を残し“風を取込む”建築を求め、内部から考えて“多様な住戸タイプ”を立体的に組合せる構成を考案。緑との補色関係を考慮して朱色のファサードとする矩計図 image©MHAA建築設計事務所

干田正浩 / MHAAによる、東京・目黒区の集合住宅「盤桓」。樹木が茂り“心地よい風”が流れる旧家の敷地での計画。木々を残し“風を取込む”建築を求め、内部から考えて“多様な住戸タイプ”を立体的に組合せる構成を考案。緑との補色関係を考慮して朱色のファサードとする開放樋ディテール image©MHAA建築設計事務所

干田正浩 / MHAAによる、東京・目黒区の集合住宅「盤桓」。樹木が茂り“心地よい風”が流れる旧家の敷地での計画。木々を残し“風を取込む”建築を求め、内部から考えて“多様な住戸タイプ”を立体的に組合せる構成を考案。緑との補色関係を考慮して朱色のファサードとする階段詳細図 image©MHAA建築設計事務所

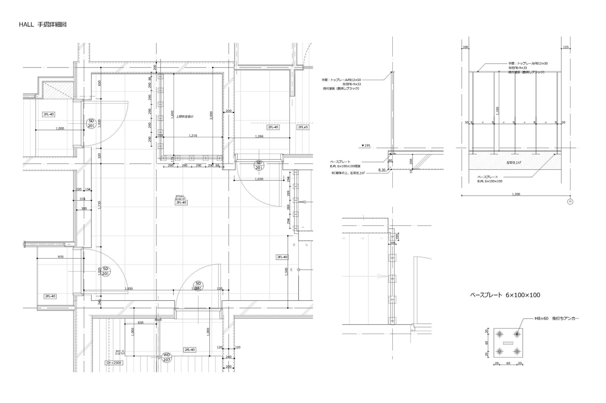
干田正浩 / MHAAによる、東京・目黒区の集合住宅「盤桓」。樹木が茂り“心地よい風”が流れる旧家の敷地での計画。木々を残し“風を取込む”建築を求め、内部から考えて“多様な住戸タイプ”を立体的に組合せる構成を考案。緑との補色関係を考慮して朱色のファサードとする手摺詳細図 image©MHAA建築設計事務所

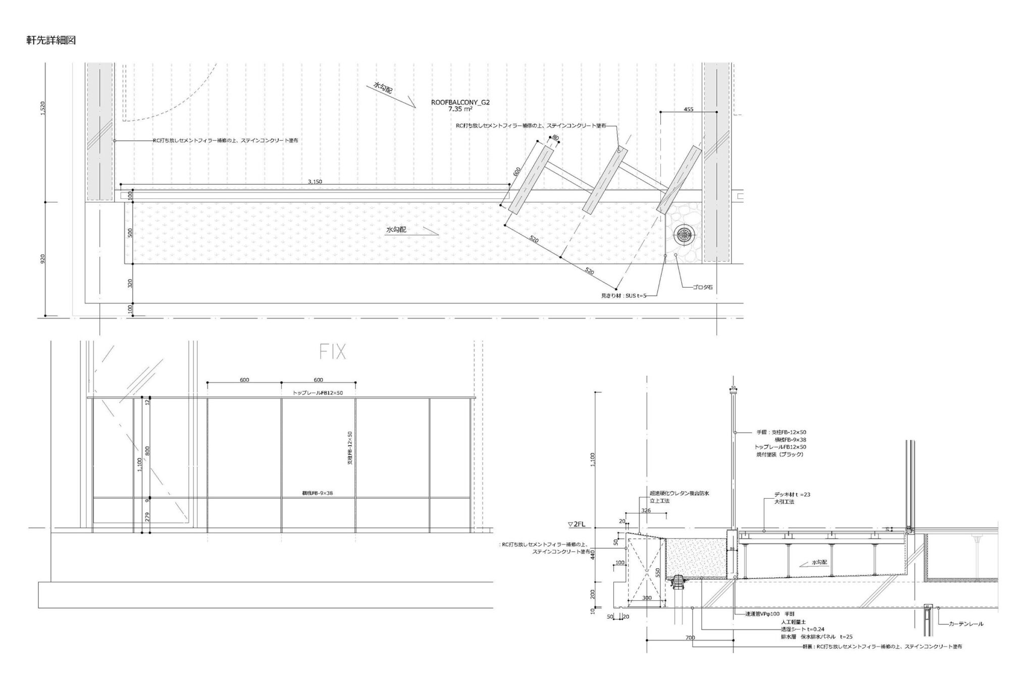
干田正浩 / MHAAによる、東京・目黒区の集合住宅「盤桓」。樹木が茂り“心地よい風”が流れる旧家の敷地での計画。木々を残し“風を取込む”建築を求め、内部から考えて“多様な住戸タイプ”を立体的に組合せる構成を考案。緑との補色関係を考慮して朱色のファサードとする軒先詳細図 image©MHAA建築設計事務所

干田正浩 / MHAAによる、東京・目黒区の集合住宅「盤桓」。樹木が茂り“心地よい風”が流れる旧家の敷地での計画。木々を残し“風を取込む”建築を求め、内部から考えて“多様な住戸タイプ”を立体的に組合せる構成を考案。緑との補色関係を考慮して朱色のファサードとする軒先詳細図 image©MHAA建築設計事務所

干田正浩 / MHAAによる、東京・目黒区の集合住宅「盤桓」。樹木が茂り“心地よい風”が流れる旧家の敷地での計画。木々を残し“風を取込む”建築を求め、内部から考えて“多様な住戸タイプ”を立体的に組合せる構成を考案。緑との補色関係を考慮して朱色のファサードとするダイアグラム image©MHAA建築設計事務所
以下、建築家によるテキストです。
目黒に代々続く旧家の敷地には、南側に豊かな樹木が植えられ、北側に配された母屋との間には広々とした庭が広がっていた。
そこには、敷地を東西に抜ける心地よい風が流れている。
設計にあたり、まず大切にしたのは「この風を建築に取り込むこと」と「既存の樹木をできる限り残すこと」だった。
南側には、樹齢70年を超える桜をはじめ、梅、欅、アラカシ、サルスベリなど、種類も大きさも異なる樹木が点在していた。
既存樹木を守りながら、南側の避難経路(窓先空地)として2mのセットバックを確保し、雁行するファサードラインを形成。北側は日影規制をクリアする雛壇状の形状とし、この敷地条件から導かれた最大ボリュームの中に8戸の住戸を配置した。共用部は極力抑え、それぞれ異なる大きさの住戸を立体的に組み合わせている。
計画は外形からではなく、内部空間から組み立てた。各住戸から樹木や季節の移ろいが感じられること、そして室内に自然の風が巡ることを意識しながらプランを検討。桜を望むメゾネット、奥行きのあるコートハウス、サザンカに面したキッチン、インナーバルコニーをもつ書斎、森に向かって開くダイニングなど、敷地との関係性を手がかりに、多様な住戸タイプが生まれている。
南側住戸には、敷地を横断する風を取り込むため、ラダーウォール(斜めの採風壁)を設置。誘引された風はジャロジー窓によって調整され、室内へと導かれる。この壁は同時に、通りからの視線や直射日光をやわらかく制御する役割も担っている。
共用部を最小限とした結果、1–2階メゾネット、2–3階メゾネット、単層住戸が混在し、全住戸が異なる独立したプラン構成となった。
ファサードには、既存樹木の緑と補色関係にある朱色を採用し、時間とともに育つ懸垂性植物を植栽。北側雛壇ボリュームの雨水は解放樋とし、水の流れを視覚化するとともに、落ちる音がエントランスに静かな表情を添えている。
構造は経済性と遮音性を考慮し、逆梁の壁式構造を採用。逆梁とすることで天井仕上げを省略でき、室内にはフラットで伸びやかな天井面が生まれる。建具は高さ2550mmのフルハイトとし、外部の風景と連続する大らかなスケール感をつくり出している。
画一的な間取りになりがちな集合住宅というビルディングタイプの中で、土地の風景や流れる風、光に応答する建築を目指した結果、すべて異なる空間をもつ住戸群が立ち上がった。共通のルールや素材という制約のもとで、部分から差異を積み重ねていくプロセスは、集落の成り立ちにも通じている。
都会の中にありながら、豊かな自然環境に包まれたこの小さな集落は、植物の成長とともに新たな生態系と環境を育んでいく。盤桓(ばんかん)という名の通り、人が思わず立ち去りがたくなるような建築として、この土地の風景に静かに馴染んでいくことを期待している。
■建築概要
題名:盤桓(目黒の集合住宅)
所在地:東京都目黒区
主用途:共同住宅(8戸)
意匠設計:MHAA建築設計事務所 担当/干田正浩、嶋田緒音
構造設計:山田憲明構造設計事務所
施工:青木工務店
構造:壁式RC造
階数:地上3階
最高高さ:9.750m
敷地面積:913.26㎡
建築面積:538.76㎡
延床面積:1218.03㎡
設計:2021年3月~2023年9月
工事:2023年12月~2025年3月
竣工:2025年4月
写真:藤井浩司(TOREAL)