鎌松亮 / note architectsによる、東京・江東区の「梁下の改修」。巨大な“十字梁”のある住戸での計画。“ひとつ梁の下”で家族が共に暮らす風景を求め、間仕切りと仕上げを梁下に止めて“梁の全体性”を保つ空間を考案。其々の部屋は壁仕上げに変化をつけて“場の性格”を分ける廊下からリビングダイニング側を見る。 photo©長谷川健太
鎌松亮 / note architectsによる、東京・江東区の「梁下の改修」。巨大な“十字梁”のある住戸での計画。“ひとつ梁の下”で家族が共に暮らす風景を求め、間仕切りと仕上げを梁下に止めて“梁の全体性”を保つ空間を考案。其々の部屋は壁仕上げに変化をつけて“場の性格”を分けるリビングダイニングからキッチンを見る。 photo©長谷川健太
鎌松亮 / note architectsによる、東京・江東区の「梁下の改修」。巨大な“十字梁”のある住戸での計画。“ひとつ梁の下”で家族が共に暮らす風景を求め、間仕切りと仕上げを梁下に止めて“梁の全体性”を保つ空間を考案。其々の部屋は壁仕上げに変化をつけて“場の性格”を分けるリビングダイニングから主寝室側を見る。(建具を移動した状態) photo©長谷川健太
鎌松亮 / note architectsが設計した、東京・江東区の「梁下の改修」です。
巨大な“十字梁”のある住戸での計画です。建築家は、“ひとつ梁の下”で家族が共に暮らす風景を求め、間仕切りと仕上げを梁下に止めて“梁の全体性”を保つ空間を考案しました。また、其々の部屋は壁仕上げに変化をつけて“場の性格”を分けています。
都内にある築45年のヴィンテージマンションの改修。
住戸には巨大な十字の梁が横断しており、間取りを規制しつつも、上から覆うような包容力のある、極めて魅力的な地形であると感じた。
しかし、既存の住戸は、典型的なファミリータイプの個室群で完結した間取りのため、十字梁は断片的な様相をしており、地形の良さを活かしきれていなかった。
地形を活かし、ひとつ梁の下で家族が共に暮らす風景を思い描いた。
まず、梁の仕上げを剥がしてコンクリートを露出し、地形の姿を明らかにした。
間仕切りや仕上げは梁下にとどめ、梁の全体性を保っている。梁と壁の隙間から全体がつながり、室同士が影響しあう変化に富んだ住空間となった。
長手の梁下には鴨居を通し、ラタン貼りの襖、有孔ボード、ラワン壁、ラワン戸など、多様な素材で構成した。また、十字梁により生まれた4つの室の壁仕上げに変化をつけ、場の性格を分けている。
食事や就寝のためのキッチンやベッドボードは、梁から距離をとり、より身体に近いスケールにした。
既にある地形を読み取り、梁との親密な関係を築いた。梁に抱かれながら家族が共に生活していることを意識できる、この場所ならではの暮らしが実現できた。
以下の写真はクリックで拡大します

鎌松亮 / note architectsによる、東京・江東区の「梁下の改修」。巨大な“十字梁”のある住戸での計画。“ひとつ梁の下”で家族が共に暮らす風景を求め、間仕切りと仕上げを梁下に止めて“梁の全体性”を保つ空間を考案。其々の部屋は壁仕上げに変化をつけて“場の性格”を分けるエントランスホールから廊下を見る。 photo©長谷川健太

鎌松亮 / note architectsによる、東京・江東区の「梁下の改修」。巨大な“十字梁”のある住戸での計画。“ひとつ梁の下”で家族が共に暮らす風景を求め、間仕切りと仕上げを梁下に止めて“梁の全体性”を保つ空間を考案。其々の部屋は壁仕上げに変化をつけて“場の性格”を分ける廊下からリビングダイニング側を見る。 photo©長谷川健太

鎌松亮 / note architectsによる、東京・江東区の「梁下の改修」。巨大な“十字梁”のある住戸での計画。“ひとつ梁の下”で家族が共に暮らす風景を求め、間仕切りと仕上げを梁下に止めて“梁の全体性”を保つ空間を考案。其々の部屋は壁仕上げに変化をつけて“場の性格”を分けるリビングダイニングからキッチンを見る。 photo©長谷川健太

鎌松亮 / note architectsによる、東京・江東区の「梁下の改修」。巨大な“十字梁”のある住戸での計画。“ひとつ梁の下”で家族が共に暮らす風景を求め、間仕切りと仕上げを梁下に止めて“梁の全体性”を保つ空間を考案。其々の部屋は壁仕上げに変化をつけて“場の性格”を分けるリビングダイニングから主寝室側を見る。 photo©長谷川健太

鎌松亮 / note architectsによる、東京・江東区の「梁下の改修」。巨大な“十字梁”のある住戸での計画。“ひとつ梁の下”で家族が共に暮らす風景を求め、間仕切りと仕上げを梁下に止めて“梁の全体性”を保つ空間を考案。其々の部屋は壁仕上げに変化をつけて“場の性格”を分けるリビングダイニングから主寝室側を見る。(建具を移動した状態) photo©長谷川健太

鎌松亮 / note architectsによる、東京・江東区の「梁下の改修」。巨大な“十字梁”のある住戸での計画。“ひとつ梁の下”で家族が共に暮らす風景を求め、間仕切りと仕上げを梁下に止めて“梁の全体性”を保つ空間を考案。其々の部屋は壁仕上げに変化をつけて“場の性格”を分けるリビングダイニングから主寝室側を見る。(建具を取り外した状態) photo©長谷川健太

鎌松亮 / note architectsによる、東京・江東区の「梁下の改修」。巨大な“十字梁”のある住戸での計画。“ひとつ梁の下”で家族が共に暮らす風景を求め、間仕切りと仕上げを梁下に止めて“梁の全体性”を保つ空間を考案。其々の部屋は壁仕上げに変化をつけて“場の性格”を分ける主寝室 photo©長谷川健太

鎌松亮 / note architectsによる、東京・江東区の「梁下の改修」。巨大な“十字梁”のある住戸での計画。“ひとつ梁の下”で家族が共に暮らす風景を求め、間仕切りと仕上げを梁下に止めて“梁の全体性”を保つ空間を考案。其々の部屋は壁仕上げに変化をつけて“場の性格”を分ける主寝室、造作家具の詳細 photo©長谷川健太

鎌松亮 / note architectsによる、東京・江東区の「梁下の改修」。巨大な“十字梁”のある住戸での計画。“ひとつ梁の下”で家族が共に暮らす風景を求め、間仕切りと仕上げを梁下に止めて“梁の全体性”を保つ空間を考案。其々の部屋は壁仕上げに変化をつけて“場の性格”を分けるキッチンから主寝室側の壁面を見る。 photo©長谷川健太

鎌松亮 / note architectsによる、東京・江東区の「梁下の改修」。巨大な“十字梁”のある住戸での計画。“ひとつ梁の下”で家族が共に暮らす風景を求め、間仕切りと仕上げを梁下に止めて“梁の全体性”を保つ空間を考案。其々の部屋は壁仕上げに変化をつけて“場の性格”を分けるキッチン、梁と壁の詳細 photo©長谷川健太

鎌松亮 / note architectsによる、東京・江東区の「梁下の改修」。巨大な“十字梁”のある住戸での計画。“ひとつ梁の下”で家族が共に暮らす風景を求め、間仕切りと仕上げを梁下に止めて“梁の全体性”を保つ空間を考案。其々の部屋は壁仕上げに変化をつけて“場の性格”を分けるリビングダイニングから廊下越しにルームB側を見る。 photo©長谷川健太

鎌松亮 / note architectsによる、東京・江東区の「梁下の改修」。巨大な“十字梁”のある住戸での計画。“ひとつ梁の下”で家族が共に暮らす風景を求め、間仕切りと仕上げを梁下に止めて“梁の全体性”を保つ空間を考案。其々の部屋は壁仕上げに変化をつけて“場の性格”を分ける左:ルームB、右:ルームA photo©長谷川健太

鎌松亮 / note architectsによる、東京・江東区の「梁下の改修」。巨大な“十字梁”のある住戸での計画。“ひとつ梁の下”で家族が共に暮らす風景を求め、間仕切りと仕上げを梁下に止めて“梁の全体性”を保つ空間を考案。其々の部屋は壁仕上げに変化をつけて“場の性格”を分けるルームBからルームAを見る。 photo©長谷川健太

鎌松亮 / note architectsによる、東京・江東区の「梁下の改修」。巨大な“十字梁”のある住戸での計画。“ひとつ梁の下”で家族が共に暮らす風景を求め、間仕切りと仕上げを梁下に止めて“梁の全体性”を保つ空間を考案。其々の部屋は壁仕上げに変化をつけて“場の性格”を分けるルームAからルームBを見る。 photo©長谷川健太

鎌松亮 / note architectsによる、東京・江東区の「梁下の改修」。巨大な“十字梁”のある住戸での計画。“ひとつ梁の下”で家族が共に暮らす風景を求め、間仕切りと仕上げを梁下に止めて“梁の全体性”を保つ空間を考案。其々の部屋は壁仕上げに変化をつけて“場の性格”を分けるルームA、梁と壁の詳細 photo©長谷川健太

鎌松亮 / note architectsによる、東京・江東区の「梁下の改修」。巨大な“十字梁”のある住戸での計画。“ひとつ梁の下”で家族が共に暮らす風景を求め、間仕切りと仕上げを梁下に止めて“梁の全体性”を保つ空間を考案。其々の部屋は壁仕上げに変化をつけて“場の性格”を分けるルームAから壁越しにウォークインクローゼット側を見る。 photo©長谷川健太

鎌松亮 / note architectsによる、東京・江東区の「梁下の改修」。巨大な“十字梁”のある住戸での計画。“ひとつ梁の下”で家族が共に暮らす風景を求め、間仕切りと仕上げを梁下に止めて“梁の全体性”を保つ空間を考案。其々の部屋は壁仕上げに変化をつけて“場の性格”を分けるウォークインクローゼット photo©長谷川健太

鎌松亮 / note architectsによる、東京・江東区の「梁下の改修」。巨大な“十字梁”のある住戸での計画。“ひとつ梁の下”で家族が共に暮らす風景を求め、間仕切りと仕上げを梁下に止めて“梁の全体性”を保つ空間を考案。其々の部屋は壁仕上げに変化をつけて“場の性格”を分ける廊下からトイレを見る。 photo©長谷川健太

鎌松亮 / note architectsによる、東京・江東区の「梁下の改修」。巨大な“十字梁”のある住戸での計画。“ひとつ梁の下”で家族が共に暮らす風景を求め、間仕切りと仕上げを梁下に止めて“梁の全体性”を保つ空間を考案。其々の部屋は壁仕上げに変化をつけて“場の性格”を分けるリビングダイニングからキッチンを見る。夜景 photo©長谷川健太

鎌松亮 / note architectsによる、東京・江東区の「梁下の改修」。巨大な“十字梁”のある住戸での計画。“ひとつ梁の下”で家族が共に暮らす風景を求め、間仕切りと仕上げを梁下に止めて“梁の全体性”を保つ空間を考案。其々の部屋は壁仕上げに変化をつけて“場の性格”を分けるリビングダイニングから主寝室側を見る。夜景 photo©長谷川健太

鎌松亮 / note architectsによる、東京・江東区の「梁下の改修」。巨大な“十字梁”のある住戸での計画。“ひとつ梁の下”で家族が共に暮らす風景を求め、間仕切りと仕上げを梁下に止めて“梁の全体性”を保つ空間を考案。其々の部屋は壁仕上げに変化をつけて“場の性格”を分ける主寝室。夜景 photo©長谷川健太

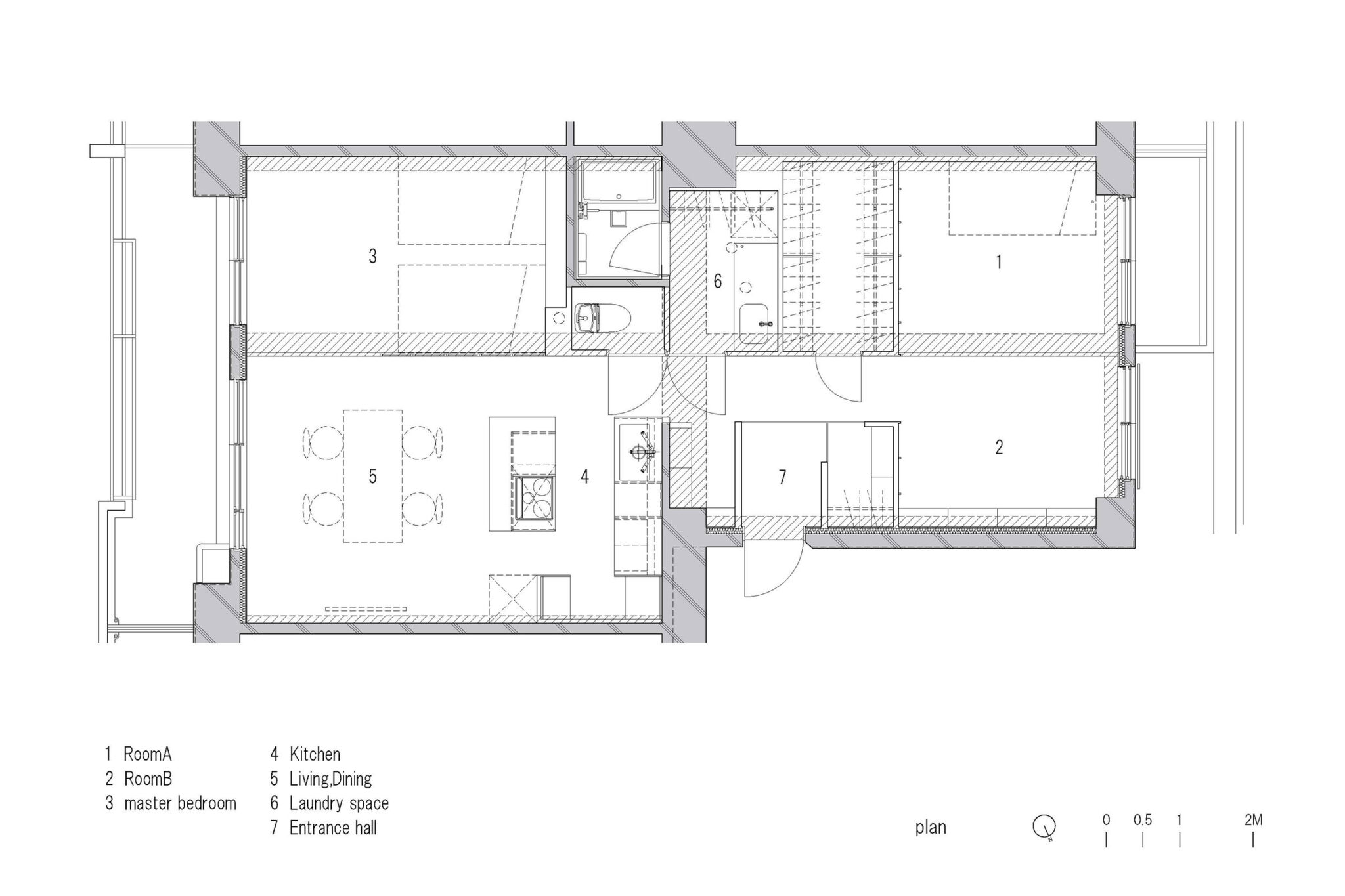
鎌松亮 / note architectsによる、東京・江東区の「梁下の改修」。巨大な“十字梁”のある住戸での計画。“ひとつ梁の下”で家族が共に暮らす風景を求め、間仕切りと仕上げを梁下に止めて“梁の全体性”を保つ空間を考案。其々の部屋は壁仕上げに変化をつけて“場の性格”を分ける平面図 image©note architects
以下、建築家によるテキストです。
都内にある築45年のヴィンテージマンションの改修。
住戸には巨大な十字の梁が横断しており、間取りを規制しつつも、上から覆うような包容力のある、極めて魅力的な地形であると感じた。
しかし、既存の住戸は、典型的なファミリータイプの個室群で完結した間取りのため、十字梁は断片的な様相をしており、地形の良さを活かしきれていなかった。
地形を活かし、ひとつ梁の下で家族が共に暮らす風景を思い描いた。
まず、梁の仕上げを剥がしてコンクリートを露出し、地形の姿を明らかにした。
間仕切りや仕上げは梁下にとどめ、梁の全体性を保っている。梁と壁の隙間から全体がつながり、室同士が影響しあう変化に富んだ住空間となった。
長手の梁下には鴨居を通し、ラタン貼りの襖、有孔ボード、ラワン壁、ラワン戸など、多様な素材で構成した。また、十字梁により生まれた4つの室の壁仕上げに変化をつけ、場の性格を分けている。
食事や就寝のためのキッチンやベッドボードは、梁から距離をとり、より身体に近いスケールにした。
既にある地形を読み取り、梁との親密な関係を築いた。梁に抱かれながら家族が共に生活していることを意識できる、この場所ならではの暮らしが実現できた。
■建築概要
題名:梁下の改修
所在地:東京都江東区
主用途:住宅
設計:note architects 担当/鎌松亮
施工:株式会社冨士見建設
不動産:リフォーム不動産深川studio
建具:有限会社坪原木工
構造:RC造14階建ての2階部分 既存建物
改修範囲床面積:71.41㎡
設計:2024年7月~2024年9月
工事:2024年10月~2025年2月
竣工:2025年2月
写真:長谷川健太
建材情報| 種別 | 使用箇所 | 商品名(メーカー名) | | 内装・床 | 主要箇所 床 | リノリウム:マーモリウム ココア(田島ルーフィング)
|
| 内装・壁 | 造作 壁 | ラワン合板 オイルフィニッシュ
|
| 内装・天井 | 主要箇所 天井 | コンクリート躯体 クリア塗装
|
| 内装・建具 | ラタン建具 | ラワン+ラタン(坪原木工)
|
| 内装・キッチン | キッチン | ラワン オイルフィニッシュ [現場製作]
|
| 内装・造作家具 | ベッドボード | オーク無垢 オイルフィニッシュ [現場製作]
|
※企業様による建材情報についてのご意見や「PR」のご相談はこちらから
※この情報は弊サイトや設計者が建材の性能等を保証するものではありません