森田悠紀建築設計事務所による、東京の「上目黒の家」。往来のある緑道に面した敷地。内外の“適切な関係”の構築を求め、壁柱を並べて“視線の抜けを確保”しつつ“外からの斜めの視線を遮る”建築を考案。土地の様々な条件に応えた末に“回廊の様な空間”が立上がる外観、北側の緑道より見る。 photo©西川公朗
森田悠紀建築設計事務所による、東京の「上目黒の家」。往来のある緑道に面した敷地。内外の“適切な関係”の構築を求め、壁柱を並べて“視線の抜けを確保”しつつ“外からの斜めの視線を遮る”建築を考案。土地の様々な条件に応えた末に“回廊の様な空間”が立上がる2階、キッチン側からダイニングを見る。 photo©西川公朗
森田悠紀建築設計事務所による、東京の「上目黒の家」。往来のある緑道に面した敷地。内外の“適切な関係”の構築を求め、壁柱を並べて“視線の抜けを確保”しつつ“外からの斜めの視線を遮る”建築を考案。土地の様々な条件に応えた末に“回廊の様な空間”が立上がる2階、ダイニングからキッチンとリビングを見る。 photo©西川公朗
森田悠紀建築設計事務所による、東京の「上目黒の家」。往来のある緑道に面した敷地。内外の“適切な関係”の構築を求め、壁柱を並べて“視線の抜けを確保”しつつ“外からの斜めの視線を遮る”建築を考案。土地の様々な条件に応えた末に“回廊の様な空間”が立上がる2階、キッチン側からリビングと階段室を見る。 photo©西川公朗
森田悠紀建築設計事務所が設計した、東京の「上目黒の家」です。
往来のある緑道に面した敷地での計画。建築家は、内外の“適切な関係”の構築を求め、壁柱を並べて“視線の抜けを確保”しつつ“外からの斜めの視線を遮る”建築を考案しました。また、土地の様々な条件に応えた末に“回廊の様な空間”が立上がりました。
木々への眺望がある候補地を建主と巡り、辿り着いたのが緑道に面したこの敷地だった。
川が暗渠化されてできた緑道は南北の台地に挟まれた谷地にあたり、敷地も道路から緑道へ向かって1mほど下がっている。敷地は袋小路の最奥にあるため付近に車の通過交通はなく、都市の喧騒から離れた静かな環境であった。
一方、緑道には歩行者の往来があり距離も近く、ただ開くのではなく適切な関係を築く必要があった。
そこで緑道に直交する壁柱の列柱を設け、壁柱に沿った視線の抜けを確保しつつ斜め方向の視線を遮ることで、守られながら開かれる空間を目指した。
同時に壁柱は構造上の要となり、半間間隔の柱割りは耐熱強化ガラスによる大きな開口を可能にしている。平面は不整形な敷地に沿うように雁行させ、敷地形状がもつ対角線方向の抜けを活かした。
断面計画では地形に呼応し、緑道へ視線を導く2枚の屋根を架け、厳しい斜線制限を躱しつつ、低い軒で北側建物からの視線を遮り、落ち着いたスケール感を実現した。また敷地は内水氾濫による浸水が想定されているため、高基礎にしながらも、量塊感のあるコンクリートで内部を囲い込むことによる安心感をもたらした。
敷地によるさまざまな条件に向き合った結果、建ち現れたのは雁行する列柱がつくる回廊のような空間であった。
回廊は古くから異なる領域を隔て繋ぐ役割を果たしてきたが、ここでは街や緑道と住宅が接するあわいの空間として存在する。
建主は、この家では時間の流れがゆっくりと感じられると語った。壁柱による奥行きのある開口は、緑道と室内という異なる領域を際立たせ、風に揺れる緑道の木々や人の動きを鮮明に切り取る。一方、内部の静けさはその対比によって引き立ち、洞窟の中から外界を眺めるような初源的な感覚と共に、意識は今という瞬間へ開かれていく。
以下の写真はクリックで拡大します

森田悠紀建築設計事務所による、東京の「上目黒の家」。往来のある緑道に面した敷地。内外の“適切な関係”の構築を求め、壁柱を並べて“視線の抜けを確保”しつつ“外からの斜めの視線を遮る”建築を考案。土地の様々な条件に応えた末に“回廊の様な空間”が立上がる外観、北側の道路より見る。 photo©西川公朗

森田悠紀建築設計事務所による、東京の「上目黒の家」。往来のある緑道に面した敷地。内外の“適切な関係”の構築を求め、壁柱を並べて“視線の抜けを確保”しつつ“外からの斜めの視線を遮る”建築を考案。土地の様々な条件に応えた末に“回廊の様な空間”が立上がる外観、北側の緑道より見る。 photo©西川公朗

森田悠紀建築設計事務所による、東京の「上目黒の家」。往来のある緑道に面した敷地。内外の“適切な関係”の構築を求め、壁柱を並べて“視線の抜けを確保”しつつ“外からの斜めの視線を遮る”建築を考案。土地の様々な条件に応えた末に“回廊の様な空間”が立上がる外観、南側の道路より見る。 photo©西川公朗

森田悠紀建築設計事務所による、東京の「上目黒の家」。往来のある緑道に面した敷地。内外の“適切な関係”の構築を求め、壁柱を並べて“視線の抜けを確保”しつつ“外からの斜めの視線を遮る”建築を考案。土地の様々な条件に応えた末に“回廊の様な空間”が立上がる1階、エントランスホールから2階への階段側を見る。 photo©西川公朗

森田悠紀建築設計事務所による、東京の「上目黒の家」。往来のある緑道に面した敷地。内外の“適切な関係”の構築を求め、壁柱を並べて“視線の抜けを確保”しつつ“外からの斜めの視線を遮る”建築を考案。土地の様々な条件に応えた末に“回廊の様な空間”が立上がる1階、エントランスホールから書斎側を見る。 photo©西川公朗

森田悠紀建築設計事務所による、東京の「上目黒の家」。往来のある緑道に面した敷地。内外の“適切な関係”の構築を求め、壁柱を並べて“視線の抜けを確保”しつつ“外からの斜めの視線を遮る”建築を考案。土地の様々な条件に応えた末に“回廊の様な空間”が立上がる1階、書斎から開口部越しに外部を見る。 photo©西川公朗

森田悠紀建築設計事務所による、東京の「上目黒の家」。往来のある緑道に面した敷地。内外の“適切な関係”の構築を求め、壁柱を並べて“視線の抜けを確保”しつつ“外からの斜めの視線を遮る”建築を考案。土地の様々な条件に応えた末に“回廊の様な空間”が立上がる1階、書斎から開口部越しに外部を見る。 photo©西川公朗

森田悠紀建築設計事務所による、東京の「上目黒の家」。往来のある緑道に面した敷地。内外の“適切な関係”の構築を求め、壁柱を並べて“視線の抜けを確保”しつつ“外からの斜めの視線を遮る”建築を考案。土地の様々な条件に応えた末に“回廊の様な空間”が立上がる1階、書斎 photo©西川公朗

森田悠紀建築設計事務所による、東京の「上目黒の家」。往来のある緑道に面した敷地。内外の“適切な関係”の構築を求め、壁柱を並べて“視線の抜けを確保”しつつ“外からの斜めの視線を遮る”建築を考案。土地の様々な条件に応えた末に“回廊の様な空間”が立上がる1階、書斎から2階への階段側を見る。 photo©西川公朗

森田悠紀建築設計事務所による、東京の「上目黒の家」。往来のある緑道に面した敷地。内外の“適切な関係”の構築を求め、壁柱を並べて“視線の抜けを確保”しつつ“外からの斜めの視線を遮る”建築を考案。土地の様々な条件に応えた末に“回廊の様な空間”が立上がる1階、書斎から2階への階段を見る。 photo©西川公朗

森田悠紀建築設計事務所による、東京の「上目黒の家」。往来のある緑道に面した敷地。内外の“適切な関係”の構築を求め、壁柱を並べて“視線の抜けを確保”しつつ“外からの斜めの視線を遮る”建築を考案。土地の様々な条件に応えた末に“回廊の様な空間”が立上がる1階、書斎から2階への階段を見る。 photo©西川公朗

森田悠紀建築設計事務所による、東京の「上目黒の家」。往来のある緑道に面した敷地。内外の“適切な関係”の構築を求め、壁柱を並べて“視線の抜けを確保”しつつ“外からの斜めの視線を遮る”建築を考案。土地の様々な条件に応えた末に“回廊の様な空間”が立上がる1階から2階への階段 photo©西川公朗

森田悠紀建築設計事務所による、東京の「上目黒の家」。往来のある緑道に面した敷地。内外の“適切な関係”の構築を求め、壁柱を並べて“視線の抜けを確保”しつつ“外からの斜めの視線を遮る”建築を考案。土地の様々な条件に応えた末に“回廊の様な空間”が立上がる2階、ダイニングからキッチンとリビングを見る。 photo©西川公朗

森田悠紀建築設計事務所による、東京の「上目黒の家」。往来のある緑道に面した敷地。内外の“適切な関係”の構築を求め、壁柱を並べて“視線の抜けを確保”しつつ“外からの斜めの視線を遮る”建築を考案。土地の様々な条件に応えた末に“回廊の様な空間”が立上がる2階、キッチン側からダイニングを見る。 photo©西川公朗

森田悠紀建築設計事務所による、東京の「上目黒の家」。往来のある緑道に面した敷地。内外の“適切な関係”の構築を求め、壁柱を並べて“視線の抜けを確保”しつつ“外からの斜めの視線を遮る”建築を考案。土地の様々な条件に応えた末に“回廊の様な空間”が立上がる2階、ダイニングからキッチンとリビングを見る。 photo©西川公朗

森田悠紀建築設計事務所による、東京の「上目黒の家」。往来のある緑道に面した敷地。内外の“適切な関係”の構築を求め、壁柱を並べて“視線の抜けを確保”しつつ“外からの斜めの視線を遮る”建築を考案。土地の様々な条件に応えた末に“回廊の様な空間”が立上がる2階、キッチン側からリビングと階段室を見る。 photo©西川公朗

森田悠紀建築設計事務所による、東京の「上目黒の家」。往来のある緑道に面した敷地。内外の“適切な関係”の構築を求め、壁柱を並べて“視線の抜けを確保”しつつ“外からの斜めの視線を遮る”建築を考案。土地の様々な条件に応えた末に“回廊の様な空間”が立上がる2階、リビングから吹抜を見る。 photo©西川公朗

森田悠紀建築設計事務所による、東京の「上目黒の家」。往来のある緑道に面した敷地。内外の“適切な関係”の構築を求め、壁柱を並べて“視線の抜けを確保”しつつ“外からの斜めの視線を遮る”建築を考案。土地の様々な条件に応えた末に“回廊の様な空間”が立上がる2階、リビングからダイニングとキッチンを見る。 photo©西川公朗

森田悠紀建築設計事務所による、東京の「上目黒の家」。往来のある緑道に面した敷地。内外の“適切な関係”の構築を求め、壁柱を並べて“視線の抜けを確保”しつつ“外からの斜めの視線を遮る”建築を考案。土地の様々な条件に応えた末に“回廊の様な空間”が立上がる2階、リビングからダイニング側を見る。 photo©西川公朗

森田悠紀建築設計事務所による、東京の「上目黒の家」。往来のある緑道に面した敷地。内外の“適切な関係”の構築を求め、壁柱を並べて“視線の抜けを確保”しつつ“外からの斜めの視線を遮る”建築を考案。土地の様々な条件に応えた末に“回廊の様な空間”が立上がる2階、キッチン photo©西川公朗

森田悠紀建築設計事務所による、東京の「上目黒の家」。往来のある緑道に面した敷地。内外の“適切な関係”の構築を求め、壁柱を並べて“視線の抜けを確保”しつつ“外からの斜めの視線を遮る”建築を考案。土地の様々な条件に応えた末に“回廊の様な空間”が立上がる2階、キッチンからダイニングを見る。 photo©西川公朗

森田悠紀建築設計事務所による、東京の「上目黒の家」。往来のある緑道に面した敷地。内外の“適切な関係”の構築を求め、壁柱を並べて“視線の抜けを確保”しつつ“外からの斜めの視線を遮る”建築を考案。土地の様々な条件に応えた末に“回廊の様な空間”が立上がる2階、キッチン、開口部の詳細 photo©西川公朗

森田悠紀建築設計事務所による、東京の「上目黒の家」。往来のある緑道に面した敷地。内外の“適切な関係”の構築を求め、壁柱を並べて“視線の抜けを確保”しつつ“外からの斜めの視線を遮る”建築を考案。土地の様々な条件に応えた末に“回廊の様な空間”が立上がる2階、リビング、手摺 photo©西川公朗

森田悠紀建築設計事務所による、東京の「上目黒の家」。往来のある緑道に面した敷地。内外の“適切な関係”の構築を求め、壁柱を並べて“視線の抜けを確保”しつつ“外からの斜めの視線を遮る”建築を考案。土地の様々な条件に応えた末に“回廊の様な空間”が立上がる1階、寝室 photo©西川公朗

森田悠紀建築設計事務所による、東京の「上目黒の家」。往来のある緑道に面した敷地。内外の“適切な関係”の構築を求め、壁柱を並べて“視線の抜けを確保”しつつ“外からの斜めの視線を遮る”建築を考案。土地の様々な条件に応えた末に“回廊の様な空間”が立上がる1階、洗面から浴室を見る。 photo©西川公朗

森田悠紀建築設計事務所による、東京の「上目黒の家」。往来のある緑道に面した敷地。内外の“適切な関係”の構築を求め、壁柱を並べて“視線の抜けを確保”しつつ“外からの斜めの視線を遮る”建築を考案。土地の様々な条件に応えた末に“回廊の様な空間”が立上がる建具 photo©西川公朗

森田悠紀建築設計事務所による、東京の「上目黒の家」。往来のある緑道に面した敷地。内外の“適切な関係”の構築を求め、壁柱を並べて“視線の抜けを確保”しつつ“外からの斜めの視線を遮る”建築を考案。土地の様々な条件に応えた末に“回廊の様な空間”が立上がる外壁と基礎 photo©西川公朗

森田悠紀建築設計事務所による、東京の「上目黒の家」。往来のある緑道に面した敷地。内外の“適切な関係”の構築を求め、壁柱を並べて“視線の抜けを確保”しつつ“外からの斜めの視線を遮る”建築を考案。土地の様々な条件に応えた末に“回廊の様な空間”が立上がる床と外壁 photo©西川公朗

森田悠紀建築設計事務所による、東京の「上目黒の家」。往来のある緑道に面した敷地。内外の“適切な関係”の構築を求め、壁柱を並べて“視線の抜けを確保”しつつ“外からの斜めの視線を遮る”建築を考案。土地の様々な条件に応えた末に“回廊の様な空間”が立上がる外観、南側の道路より見る。夕景 photo©西川公朗

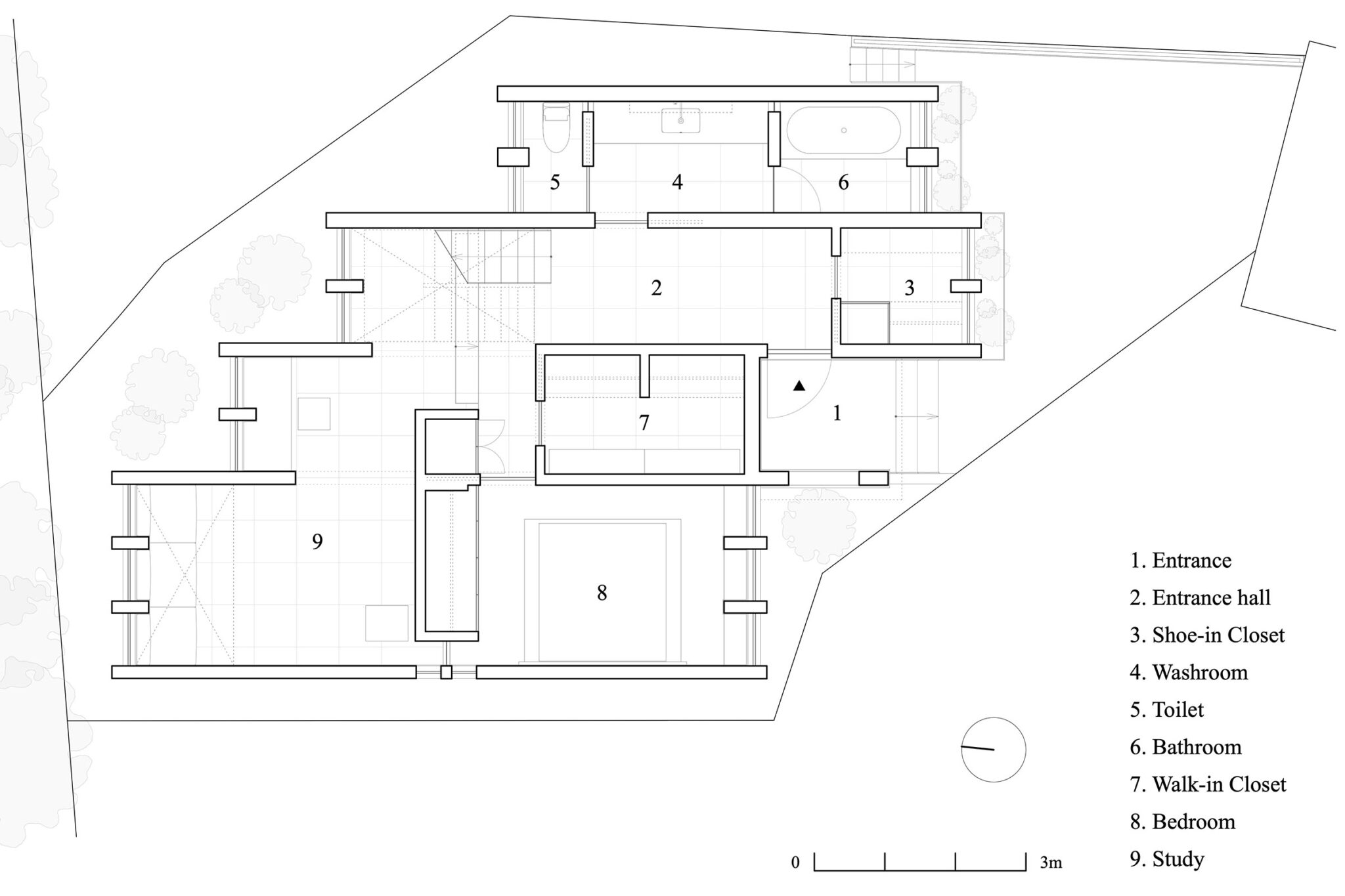
森田悠紀建築設計事務所による、東京の「上目黒の家」。往来のある緑道に面した敷地。内外の“適切な関係”の構築を求め、壁柱を並べて“視線の抜けを確保”しつつ“外からの斜めの視線を遮る”建築を考案。土地の様々な条件に応えた末に“回廊の様な空間”が立上がる1階平面図 image©森田悠紀建築設計事務所

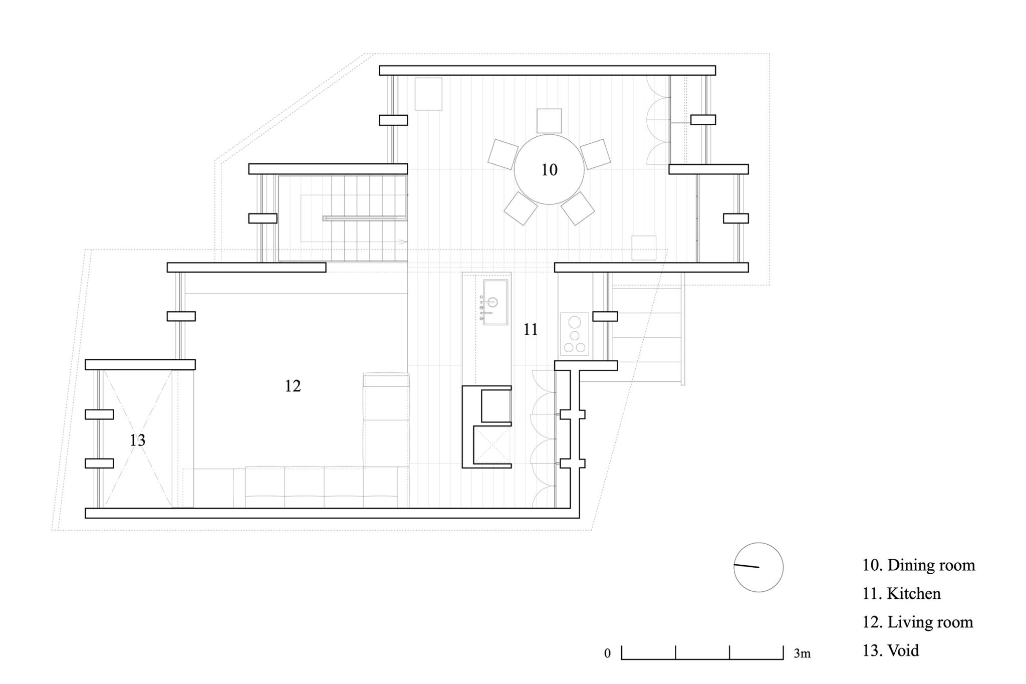
森田悠紀建築設計事務所による、東京の「上目黒の家」。往来のある緑道に面した敷地。内外の“適切な関係”の構築を求め、壁柱を並べて“視線の抜けを確保”しつつ“外からの斜めの視線を遮る”建築を考案。土地の様々な条件に応えた末に“回廊の様な空間”が立上がる2階平面図 image©森田悠紀建築設計事務所

森田悠紀建築設計事務所による、東京の「上目黒の家」。往来のある緑道に面した敷地。内外の“適切な関係”の構築を求め、壁柱を並べて“視線の抜けを確保”しつつ“外からの斜めの視線を遮る”建築を考案。土地の様々な条件に応えた末に“回廊の様な空間”が立上がる断面図 image©森田悠紀建築設計事務所

森田悠紀建築設計事務所による、東京の「上目黒の家」。往来のある緑道に面した敷地。内外の“適切な関係”の構築を求め、壁柱を並べて“視線の抜けを確保”しつつ“外からの斜めの視線を遮る”建築を考案。土地の様々な条件に応えた末に“回廊の様な空間”が立上がるスケッチ image©森田悠紀建築設計事務所
以下、建築家によるテキストです。
守られながら開かれる、あわいの空間
木々への眺望がある候補地を建主と巡り、辿り着いたのが緑道に面したこの敷地だった。
川が暗渠化されてできた緑道は南北の台地に挟まれた谷地にあたり、敷地も道路から緑道へ向かって1mほど下がっている。敷地は袋小路の最奥にあるため付近に車の通過交通はなく、都市の喧騒から離れた静かな環境であった。
一方、緑道には歩行者の往来があり距離も近く、ただ開くのではなく適切な関係を築く必要があった。
そこで緑道に直交する壁柱の列柱を設け、壁柱に沿った視線の抜けを確保しつつ斜め方向の視線を遮ることで、守られながら開かれる空間を目指した。
同時に壁柱は構造上の要となり、半間間隔の柱割りは耐熱強化ガラスによる大きな開口を可能にしている。平面は不整形な敷地に沿うように雁行させ、敷地形状がもつ対角線方向の抜けを活かした。
断面計画では地形に呼応し、緑道へ視線を導く2枚の屋根を架け、厳しい斜線制限を躱しつつ、低い軒で北側建物からの視線を遮り、落ち着いたスケール感を実現した。また敷地は内水氾濫による浸水が想定されているため、高基礎にしながらも、量塊感のあるコンクリートで内部を囲い込むことによる安心感をもたらした。
敷地によるさまざまな条件に向き合った結果、建ち現れたのは雁行する列柱がつくる回廊のような空間であった。
回廊は古くから異なる領域を隔て繋ぐ役割を果たしてきたが、ここでは街や緑道と住宅が接するあわいの空間として存在する。
建主は、この家では時間の流れがゆっくりと感じられると語った。壁柱による奥行きのある開口は、緑道と室内という異なる領域を際立たせ、風に揺れる緑道の木々や人の動きを鮮明に切り取る。一方、内部の静けさはその対比によって引き立ち、洞窟の中から外界を眺めるような初源的な感覚と共に、意識は今という瞬間へ開かれていく。
かつての川は人びとが行き交う緑道へと姿を変え、この家もまた庭木の成長と共に緑に包まれていく。こうした変化の中で、建築が変わらず人の感覚を「今」へと導く存在となることを目指した。
■建築概要
題名:上目黒の家
所在地:東京都
主用途:一戸建ての住宅
設計:株式会社森田悠紀建築設計事務所
施工:株式会社水雅
構造:木造
階数:地上2階
敷地面積:123.87㎡
建築面積:69.81㎡
延床面積:127.79㎡
設計:2023年11月~2024年4月
工事:2024年5月~2025年2月
竣工:2025年2月
写真:西川公朗
建材情報| 種別 | 使用箇所 | 商品名(メーカー名) | | 外装・壁 | 外壁 | ジョリパット
|
| 外装・屋根 | 屋根 | ガルバリウム鋼板 縦ハゼ葺き
|
| 内装・床 | 居室 床 | ダグラスファーフローリング OS塗装
|
| 内装・壁 | 居室 壁 | マーブルフィール
|
| 内装・天井 | 居室 天井 | プラネットカラー
|
※企業様による建材情報についてのご意見や「PR」のご相談はこちらから
※この情報は弊サイトや設計者が建材の性能等を保証するものではありません