architecturephoto®

  • 特集記事
  • 注目情報
  • タグ
  • 建築
  • アート
  • カルチャー
  • デザイン
  • ファッション
  • 動画
  • 展覧会
  • コンペ
  • 書籍
  • 建築求人
  • すべてのタグ

建築求人情報

Loading...
2026.4.27Mon
2026.4.26Sun
2026.4.28Tue
KIAS イシダアーキテクツスタジオによる、東京・杉並区の「善福寺公園の住宅」。公園に面するギャラリー併設の住まい。彫刻のように空間をつくった後に構造を形成する設計で、豊かな空間につながる“心地よいずれ”を備えた建築を構築。外部では9mのベンチで地域に“ソーシャルな場”も提供
photo©山内紀人

SHARE KIAS イシダアーキテクツスタジオによる、東京・杉並区の「善福寺公園の住宅」。公園に面するギャラリー併設の住まい。彫刻のように空間をつくった後に構造を形成する設計で、豊かな空間につながる“心地よいずれ”を備えた建築を構築。外部では9mのベンチで地域に“ソーシャルな場”も提供

architecture|feature
KIAS イシダアーキテツスタジオ小野奈那子建築構造研究所水雅建材(外装・壁)建材(外装・屋根)建材(内装・床)住宅図面あり杉並区東京石田建太朗山内紀人
KIAS イシダアーキテクツスタジオによる、東京・杉並区の「善福寺公園の住宅」。公園に面するギャラリー併設の住まい。彫刻のように空間をつくった後に構造を形成する設計で、豊かな空間につながる“心地よいずれ”を備えた建築を構築。外部では9mのベンチで地域に“ソーシャルな場”も提供外観、北東側の道路より見る。 photo©山内紀人
KIAS イシダアーキテクツスタジオによる、東京・杉並区の「善福寺公園の住宅」。公園に面するギャラリー併設の住まい。彫刻のように空間をつくった後に構造を形成する設計で、豊かな空間につながる“心地よいずれ”を備えた建築を構築。外部では9mのベンチで地域に“ソーシャルな場”も提供1階、ギャラリー photo©山内紀人
KIAS イシダアーキテクツスタジオによる、東京・杉並区の「善福寺公園の住宅」。公園に面するギャラリー併設の住まい。彫刻のように空間をつくった後に構造を形成する設計で、豊かな空間につながる“心地よいずれ”を備えた建築を構築。外部では9mのベンチで地域に“ソーシャルな場”も提供2階、ダイニングからリビングを見る。 photo©小野奈那子
KIAS イシダアーキテクツスタジオによる、東京・杉並区の「善福寺公園の住宅」。公園に面するギャラリー併設の住まい。彫刻のように空間をつくった後に構造を形成する設計で、豊かな空間につながる“心地よいずれ”を備えた建築を構築。外部では9mのベンチで地域に“ソーシャルな場”も提供2階、リビングダイニングから開口部越しに公園側を見る。 photo©小野奈那子

石田建太朗 / KIAS イシダアーキテクツスタジオが設計した、東京・杉並区の「善福寺公園の住宅」です。
公園に面するギャラリー併設の住まいです。建築家は、彫刻のように空間をつくった後に構造を形成する設計で、豊かな空間につながる“心地よいずれ”を備えた建築を構築しました。また、外部では9mのベンチで地域に“ソーシャルな場”も提供しています。

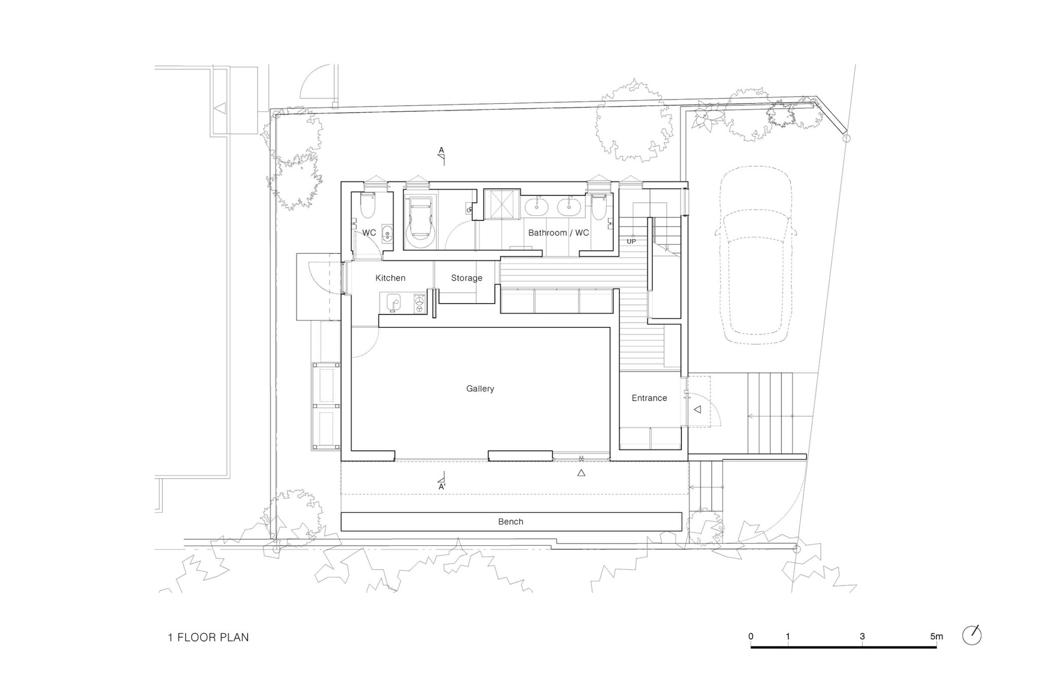
この住宅を設計するにあたり、緑豊かな善福寺公園の風景に向かって開かれる住空間を丁寧にかたちづくることから始まった。
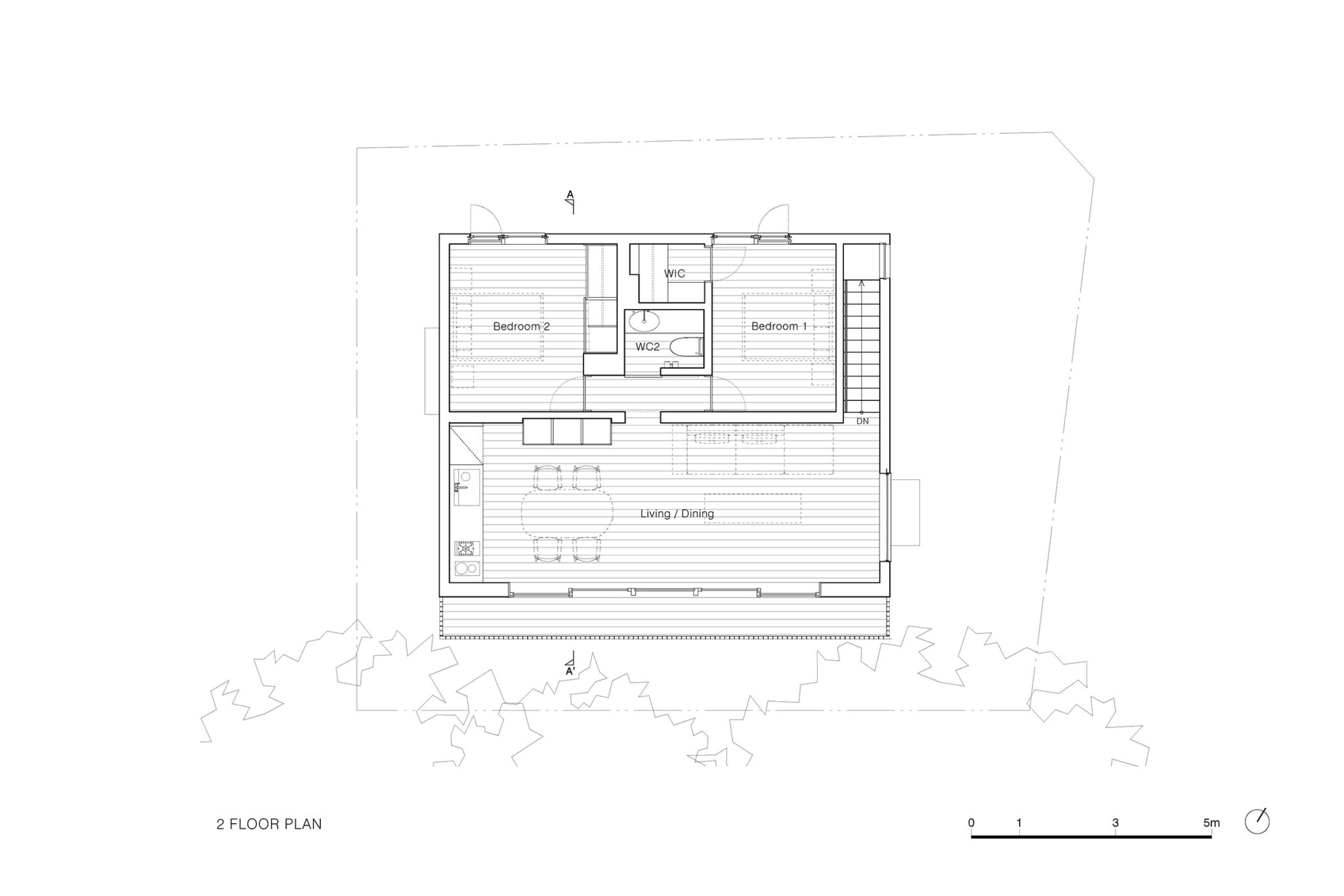
1階には若手アーティストの発表の場として開かれている小さな貸しギャラリースペースそして2階にはオーナーの住空間が計画された。

建築家によるテキストより

ギャラリーの前の公園に面したコミュニティスペースには9mのベンチが設えられており、ギャラリーに集まる人々や近所の人々のソーシャルな場を提供している。

2階の住宅のリビングルームの東側には朝日を向かい入れる丸窓を設えて、時間とともに動いていく床に投影される円い自然光を楽しむことができる。南向きの少し日本の障子窓のような横長の窓は、公園の緑の風景を最大限住空間に取り入れてくれる。
午後の光は勾配屋根に設けた天窓が室内を明るく照らしてくれる。また上下階をつなげる階段室には2階の床張りを貫く縦長の窓が縦の動線空間を明るくする。

建築家によるテキストより

彫刻のように空間を形作り、構造を形成して外壁の仕上げを設える。
この順序で設計することにより空間が構造に勝り、外装と構造と空間に心地よいずれをもたらし豊かな空間が構成された住宅が出来上がった。

建築家によるテキストより

以下の写真はクリックで拡大します

KIAS イシダアーキテクツスタジオによる、東京・杉並区の「善福寺公園の住宅」。公園に面するギャラリー併設の住まい。彫刻のように空間をつくった後に構造を形成する設計で、豊かな空間につながる“心地よいずれ”を備えた建築を構築。外部では9mのベンチで地域に“ソーシャルな場”も提供外観、北東側の道路より見る。 photo©山内紀人
KIAS イシダアーキテクツスタジオによる、東京・杉並区の「善福寺公園の住宅」。公園に面するギャラリー併設の住まい。彫刻のように空間をつくった後に構造を形成する設計で、豊かな空間につながる“心地よいずれ”を備えた建築を構築。外部では9mのベンチで地域に“ソーシャルな場”も提供外観、南東側の公園より見る。 photo©山内紀人
KIAS イシダアーキテクツスタジオによる、東京・杉並区の「善福寺公園の住宅」。公園に面するギャラリー併設の住まい。彫刻のように空間をつくった後に構造を形成する設計で、豊かな空間につながる“心地よいずれ”を備えた建築を構築。外部では9mのベンチで地域に“ソーシャルな場”も提供外観、北東側の道路より見る。 photo©山内紀人
KIAS イシダアーキテクツスタジオによる、東京・杉並区の「善福寺公園の住宅」。公園に面するギャラリー併設の住まい。彫刻のように空間をつくった後に構造を形成する設計で、豊かな空間につながる“心地よいずれ”を備えた建築を構築。外部では9mのベンチで地域に“ソーシャルな場”も提供外観、北東側の道路より見る。 photo©小野奈那子
KIAS イシダアーキテクツスタジオによる、東京・杉並区の「善福寺公園の住宅」。公園に面するギャラリー併設の住まい。彫刻のように空間をつくった後に構造を形成する設計で、豊かな空間につながる“心地よいずれ”を備えた建築を構築。外部では9mのベンチで地域に“ソーシャルな場”も提供ギャラリー前のベンチを見る。 photo©小野奈那子
KIAS イシダアーキテクツスタジオによる、東京・杉並区の「善福寺公園の住宅」。公園に面するギャラリー併設の住まい。彫刻のように空間をつくった後に構造を形成する設計で、豊かな空間につながる“心地よいずれ”を備えた建築を構築。外部では9mのベンチで地域に“ソーシャルな場”も提供1階、ギャラリー photo©山内紀人
KIAS イシダアーキテクツスタジオによる、東京・杉並区の「善福寺公園の住宅」。公園に面するギャラリー併設の住まい。彫刻のように空間をつくった後に構造を形成する設計で、豊かな空間につながる“心地よいずれ”を備えた建築を構築。外部では9mのベンチで地域に“ソーシャルな場”も提供1階、ギャラリー photo©山内紀人
KIAS イシダアーキテクツスタジオによる、東京・杉並区の「善福寺公園の住宅」。公園に面するギャラリー併設の住まい。彫刻のように空間をつくった後に構造を形成する設計で、豊かな空間につながる“心地よいずれ”を備えた建築を構築。外部では9mのベンチで地域に“ソーシャルな場”も提供1階、ギャラリー(展示中の様子) photo©小野奈那子
KIAS イシダアーキテクツスタジオによる、東京・杉並区の「善福寺公園の住宅」。公園に面するギャラリー併設の住まい。彫刻のように空間をつくった後に構造を形成する設計で、豊かな空間につながる“心地よいずれ”を備えた建築を構築。外部では9mのベンチで地域に“ソーシャルな場”も提供外観、北東側の道路より見る。 photo©山内紀人
KIAS イシダアーキテクツスタジオによる、東京・杉並区の「善福寺公園の住宅」。公園に面するギャラリー併設の住まい。彫刻のように空間をつくった後に構造を形成する設計で、豊かな空間につながる“心地よいずれ”を備えた建築を構築。外部では9mのベンチで地域に“ソーシャルな場”も提供1階、エントランスから2階への階段側を見る。 photo©山内紀人
KIAS イシダアーキテクツスタジオによる、東京・杉並区の「善福寺公園の住宅」。公園に面するギャラリー併設の住まい。彫刻のように空間をつくった後に構造を形成する設計で、豊かな空間につながる“心地よいずれ”を備えた建築を構築。外部では9mのベンチで地域に“ソーシャルな場”も提供2階、階段側からリビング・ダイニング・キッチンを見る。 photo©小野奈那子
KIAS イシダアーキテクツスタジオによる、東京・杉並区の「善福寺公園の住宅」。公園に面するギャラリー併設の住まい。彫刻のように空間をつくった後に構造を形成する設計で、豊かな空間につながる“心地よいずれ”を備えた建築を構築。外部では9mのベンチで地域に“ソーシャルな場”も提供2階、ダイニングからリビングを見る。 photo©小野奈那子
KIAS イシダアーキテクツスタジオによる、東京・杉並区の「善福寺公園の住宅」。公園に面するギャラリー併設の住まい。彫刻のように空間をつくった後に構造を形成する設計で、豊かな空間につながる“心地よいずれ”を備えた建築を構築。外部では9mのベンチで地域に“ソーシャルな場”も提供2階、リビングダイニングから開口部越しに公園側を見る。 photo©小野奈那子
KIAS イシダアーキテクツスタジオによる、東京・杉並区の「善福寺公園の住宅」。公園に面するギャラリー併設の住まい。彫刻のように空間をつくった後に構造を形成する設計で、豊かな空間につながる“心地よいずれ”を備えた建築を構築。外部では9mのベンチで地域に“ソーシャルな場”も提供2階、リビングから円形の開口部越しに外部を見る。 photo©山内紀人
KIAS イシダアーキテクツスタジオによる、東京・杉並区の「善福寺公園の住宅」。公園に面するギャラリー併設の住まい。彫刻のように空間をつくった後に構造を形成する設計で、豊かな空間につながる“心地よいずれ”を備えた建築を構築。外部では9mのベンチで地域に“ソーシャルな場”も提供2階、ダイニングからベッドルーム側を見る。 photo©山内紀人
KIAS イシダアーキテクツスタジオによる、東京・杉並区の「善福寺公園の住宅」。公園に面するギャラリー併設の住まい。彫刻のように空間をつくった後に構造を形成する設計で、豊かな空間につながる“心地よいずれ”を備えた建築を構築。外部では9mのベンチで地域に“ソーシャルな場”も提供2階、ベッドルーム2 photo©山内紀人
KIAS イシダアーキテクツスタジオによる、東京・杉並区の「善福寺公園の住宅」。公園に面するギャラリー併設の住まい。彫刻のように空間をつくった後に構造を形成する設計で、豊かな空間につながる“心地よいずれ”を備えた建築を構築。外部では9mのベンチで地域に“ソーシャルな場”も提供1階、洗面所・トイレ photo©山内紀人
KIAS イシダアーキテクツスタジオによる、東京・杉並区の「善福寺公園の住宅」。公園に面するギャラリー併設の住まい。彫刻のように空間をつくった後に構造を形成する設計で、豊かな空間につながる“心地よいずれ”を備えた建築を構築。外部では9mのベンチで地域に“ソーシャルな場”も提供外観、南東側の公園より見る。夕景 photo©山内紀人
KIAS イシダアーキテクツスタジオによる、東京・杉並区の「善福寺公園の住宅」。公園に面するギャラリー併設の住まい。彫刻のように空間をつくった後に構造を形成する設計で、豊かな空間につながる“心地よいずれ”を備えた建築を構築。外部では9mのベンチで地域に“ソーシャルな場”も提供1階平面図 image©イシダアーキテクツスタジオ
KIAS イシダアーキテクツスタジオによる、東京・杉並区の「善福寺公園の住宅」。公園に面するギャラリー併設の住まい。彫刻のように空間をつくった後に構造を形成する設計で、豊かな空間につながる“心地よいずれ”を備えた建築を構築。外部では9mのベンチで地域に“ソーシャルな場”も提供2階平面図 image©イシダアーキテクツスタジオ
KIAS イシダアーキテクツスタジオによる、東京・杉並区の「善福寺公園の住宅」。公園に面するギャラリー併設の住まい。彫刻のように空間をつくった後に構造を形成する設計で、豊かな空間につながる“心地よいずれ”を備えた建築を構築。外部では9mのベンチで地域に“ソーシャルな場”も提供東側立面図 image©イシダアーキテクツスタジオ
KIAS イシダアーキテクツスタジオによる、東京・杉並区の「善福寺公園の住宅」。公園に面するギャラリー併設の住まい。彫刻のように空間をつくった後に構造を形成する設計で、豊かな空間につながる“心地よいずれ”を備えた建築を構築。外部では9mのベンチで地域に“ソーシャルな場”も提供南側立面図 image©イシダアーキテクツスタジオ
KIAS イシダアーキテクツスタジオによる、東京・杉並区の「善福寺公園の住宅」。公園に面するギャラリー併設の住まい。彫刻のように空間をつくった後に構造を形成する設計で、豊かな空間につながる“心地よいずれ”を備えた建築を構築。外部では9mのベンチで地域に“ソーシャルな場”も提供断面図 image©イシダアーキテクツスタジオ

以下、建築家によるテキストです。


この住宅を設計するにあたり、緑豊かな善福寺公園の風景に向かって開かれる住空間を丁寧にかたちづくることから始まった。
1階には若手アーティストの発表の場として開かれている小さな貸しギャラリースペースそして2階にはオーナーの住空間が計画された。

ギャラリーの前の公園に面したコミュニティスペースには9mのベンチが設えられており、ギャラリーに集まる人々や近所の人々のソーシャルな場を提供している。

2階の住宅のリビングルームの東側には朝日を向かい入れる丸窓を設えて、時間とともに動いていく床に投影される円い自然光を楽しむことができる。南向きの少し日本の障子窓のような横長の窓は、公園の緑の風景を最大限住空間に取り入れてくれる。
午後の光は勾配屋根に設けた天窓が室内を明るく照らしてくれる。また上下階をつなげる階段室には2階の床張りを貫く縦長の窓が縦の動線空間を明るくする。

彫刻のように空間を形作り、構造を形成して外壁の仕上げを設える。
この順序で設計することにより空間が構造に勝り、外装と構造と空間に心地よいずれをもたらし豊かな空間が構成された住宅が出来上がった。

■建築概要

題名:善福寺公園の住宅
所在地:東京都杉並区
主用途:住宅
設計:イシダアーキテクツスタジオ 担当/石田建太朗、柿澤美由紀、塩月瑛山(※元所員)
構造設計:建築構造研究所 
施工:水雅
構造:木造
階数:地上2階
敷地面積:173.79㎡
建築面積:66.25㎡
延床面積:132.5㎡
設計:2022年10月~2023年11月
工事:2024年8月~2025年7月
竣工:2025年7月
写真:山内紀人、小野奈那子

建材情報
種別使用箇所商品名(メーカー名)
外装・屋根屋根

窯業系平形スレート:グランネクスト シンプル t5.2(ケイミュー)

外装・壁1階 外壁

磁器質タイル:ハイブリッドホワイト外用 600×1200 t10(リビエラ)

外装・壁2階 外壁

窯業系平形スレート:グランネクスト シンプル t5.2(ケイミュー)

内装・床LDK、寝室、廊下 床

オークフローリング ナチュラル [床暖房兼用] t12(ナカムラ・コーポレーション)

内装・床洗面所、WC、浴室 床

磁器質タイル:タッチストーン / ベインカットホワイトマット 600×1200 t10(リビエラ)

内装・床階段 床

ナラ無垢材 t30

※企業様による建材情報についてのご意見や「PR」のご相談はこちらから
※この情報は弊サイトや設計者が建材の性能等を保証するものではありません


The design of this residence began with carefully shaping living spaces that open toward the lush scenery of Zenpukuji Park. The first floor houses a small rental gallery space open as a venue for emerging artists, while the second floor accommodates the owner’s living quarters.

A 9-meter bench is installed in the community space facing the park in front of the gallery, providing a social gathering spot for gallery visitors and neighbors.

The living room on the upper floor features a round window on its east side, welcoming the morning sun. This allows residents to enjoy the circular natural light projected onto the floor as it moves throughout the day. The south-facing, slightly elongated window, reminiscent of traditional Japanese shoji screens, maximizes the incorporation of the park’s green scenery into the living space. Afternoon light brightens the interior through skylights set into the pitched roof. Additionally, a tall window extending through the second-floor flooring illuminates the vertical circulation space within the stairwell connecting the floors.

The exterior finish is applied after sculpting the space and forming the structure. Designing in this sequence allows the space to prevail over the structure, creating a pleasant disjunction between the exterior, structure, and space. This resulted in a residence composed of richly layered spaces.

House in Zenpukuji Park

Program: Private house 
Location: Suginami, Japan
Team: Kentaro Ishida, Miyuki Kakizawa, Eizan Shiotsuki
Structural Engineer: BSI 
Construction: Suiga 
Structure: wood
Site Area: 173.79 m2
Built Area: 66.25 m2
Total Floor Area: 132.5 m2
Completion: July 2025
Photography: Norihito Yamauchi, Nanako Ono

あわせて読みたい

サムネイル:シブカワ・エダーアーキテクツによるオーストリア・ノイレンバッハの「ノイレングバッハ高校」
シブカワ・エダーアーキテクツによるオーストリア・ノイレンバッハの「ノイレングバッハ高校」
  • SHARE
KIAS イシダアーキテツスタジオ小野奈那子建築構造研究所水雅建材(外装・壁)建材(外装・屋根)建材(内装・床)住宅図面あり杉並区東京石田建太朗山内紀人
2026.04.27 Mon 07:22
0
permalink

#石田建太朗の関連記事

  • 2026.1.14Wed
    【ap編集長の建築探索】vol.003 KIAS イシダアーキテクツスタジオ「善福寺公園の住宅」
  • 2020.3.02Mon
    /
    H&deM出身の建築家 石田建太朗へのインタビュー「完全ではないものがもたらす空間のおおらかさ」
  • 2018.12.14Fri
    /
    イシダアーキテクツスタジオによる、長野・軽井沢の別荘「積葉の家」の写真
  • 2018.3.14Wed
    //
    イシダアーキテクツスタジオによる、栃木県那須の、奈良美智の作品やコレクションを展示する為の美術館「那須の美術館」の写真
  • 2016.2.29Mon
    /
    イシダアーキテクツスタジオによる、千葉県浦安市の住宅「U House」の写真
  • 2014.4.18Fri
    サムネイル:ムトカ建築事務所、イシダアーキテクツスタジオ、髙橋一平、遠藤秀平による建築展「happy talking」の会場写真
    ムトカ建築事務所、イシダアーキテクツスタジオ、髙橋一平、遠藤秀平による建築展「happy talking」の会場写真
  • view all
view all

#水雅の関連記事

  • 2025.12.22Mon
    森田悠紀建築設計事務所による、東京の「上目黒の家」。往来のある緑道に面した敷地。内外の“適切な関係”の構築を求め、壁柱を並べて“視線の抜けを確保”しつつ“外からの斜めの視線を遮る”建築を考案。土地の様々な条件に応えた末に“回廊の様な空間”が立上がる
  • 2025.10.22Wed
    浜田晶則建築設計事務所による、山梨の「大法師山の立体格子」。街と山々を臨む“ひな壇状”の土地に建つ社屋。“自然と一体となる思想”を持つ伝統構法の“懸造”を参照し、木組の土台を全体に拡張した“立体格子”の建築を考案。幾重に重なる軸組の層が空間に奥行きをもたらす
  • 2024.10.03Thu
    浜田晶則建築設計事務所による、東京・世田谷区の「民家A」。現代の実家像も目指した住宅。施主が書いた“生活像の文章”を出発点とし、家族の記憶の象徴となる“もの”を街に対して表現する縦長窓“見世のディスプレイ”を備えた建築を考案。民家の要素や構成を援用して造る
  • 2024.6.21Fri
    森田悠紀建築設計事務所による、東京の「春日の家」。見晴らしの良い坂道沿いの敷地。“この場所ならでは”の存在を求め、街特有の空間体験に通じる上階に登った先に“眺望が開ける”建築を考案。“必要な線を適切に存在させる”設計で地域の親密さとの繋がりも作る
  • 2024.5.31Fri
    森田悠紀建築設計事務所による、東京の「稲城の家」。緑地に面する北欧家具店を営む施主の為の住宅。竣工後に置かれる家具類の把握から出発し、簡素で実直な品々を納める為の“器”としての空間を志向。風景と家具の存在感と釣り合う“A”型の架構を持つ建築を造る
  • 2024.5.24Fri
    森田悠紀建築設計事務所による、東京の「国分寺の家」。住宅密集地にある敷地。街と家の“距離感”を課題とし、適切な関係を結ぶ為の“街から遠く離れた静かな場所”を備えた建築を志向。玄関から長い距離を歩いて辿り着く“居間”で再び“街と繋がる”住まいを造る
  • 2023.3.28Tue
    藤田雄介+伊藤茉莉子 / Camp Designによる、東京・北区の「野縁の家」。建て込んだ場の再建築不可の木造住宅の改修。採光確保を設計の主題として、天窓等からの光を拡散する“半透明ポリカの光天井”を考案。内部建具の見付も“極限まで”細くして光で満たされる空間を作る
  • 2022.10.13Thu
    麻殖生龍哉 / マイオ建築研究所による、東京の「杉並の家」。住宅街の南に開けた敷地。場の特性を生かす開放的な建築を求め、“南”の恩恵の享受とネガティブ要素の排除を叶える可動式巨大ルーバーを考案。衣服の様に環境を適正化し公私を柔らかく隔てる
  • 2022.9.13Tue
    大村聡一朗+中村園香 / OHMURA NAKAMURA ATELIERによる、東京・多摩市の「連光寺の家 改修 / 二つの十字と四畳半」。若い家族の為に木造家屋を改修。居室と廊下が分かれた既存平面を刷新し、“十字壁”の配置で等価な“四畳半”空間が連続する構成を考案。生活変化も受け入れる緩やかな“分断”と“接続”の状態を作る
  • view all
view all

建築求人情報

Loading...

 

    公式アカウントをフォローして、見逃せない建築情報を受け取ろう。

    62,026
    • Follow
    87,374
    • Follow
    • Follow
    • Add Friends
    • Subscribe
    • 情報募集/建築・デザイン・アートの情報を随時募集しています。
      More
    • メールマガジン/ メールマガジンで最新の情報を配信しています。
      More

    この日更新したその他の記事

    【ap編集長の建築探索】vol.16 若手建築家9組「第2回 発掘展」
    photo©rem goto

    SHARE 【ap編集長の建築探索】vol.16 若手建築家9組「第2回 発掘展」

    architecture|feature
    ap編集長の建築探索一色暁生中島成隆五十嵐理人佐竹雄太小林佑輔建築展後藤連平林恭正渡邉明弘福田俊立石遼太郎論考野村亮介
    【ap編集長の建築探索】vol.16 若手建築家9組「第2回 発掘展」会場風景 photo©rem goto

    「ap編集長の建築探索」は、23年の歴史ある建築ウェブメディア「アーキテクチャーフォト」の編集長である後藤連平が、訪問した建築を紹介する連載シリーズです。論考のようなかっちりとした形式ではなく、現地で感じた雰囲気や空気感が伝わるような“ライブ感”のある文体で綴ります。読者の皆様も自身が建築を体験するように読んでいただければ幸いです。


    若手建築家9組「第2回 発掘展」

    TEXT:後藤連平

     
    渋谷で行われている若手建築家のグループ展「発掘展」を拝見した。
    (会期は2026/4/30まで)

    出展者は、林恭正、中島成隆、一色暁生、小林佑輔、野村亮介、立石遼太郎、福田俊、渡邉明弘、五十嵐理人の9名の建築家。
    この連載コーナーを読んでくださっている読者の方々は、何らかのSNSで、彼らの活動を目にしたことがあるのではないだろうか。
    この展示は、主催者である、渡邉さん、五十嵐さん、アラウンドアーキテクチャーの佐竹さんが、SNSなどでその活動を知った建築家にDM等でオファーを出して実現したのだという。

    先週は、神楽坂で、坂牛卓さんとその教え子の建築家たちによる「卓袱会建築展」が行われていたりと自主企画の展覧会が続いているなと思っていた。(残念ながらこちらはタイミングが合わず伺うことができなかった)

    そんなこともあり、このような自主企画で行われる建築展とはどのようなものなのだろうかと、現地を伺う前から考えていた。

    「発掘展」は、渋谷にあるコミュニティセンターの中のスペースを会場としていて、場のセレクトも面白い。駅からも近く、また様々な人々が別の目的でも訪問する場所であり、建築業界だけに向けた展示ではない趣旨も伝わってくる。

    展示物は、パネルと模型という建築展としてはオーソドックスなつくり。各自其々の個性を活かしたパネルが展示されているけれど、中身には、フォーマットがあり、そこに各自の経歴や好きな建築家などの情報も含まれており、各建築家の背景を想像するのも楽しい。

    会場を巡りながら、この出展メンバーに何か共通点はあるのだろうかと考えていた。こうやって集まってひとつの展示が成立している背景には、共通する建築に対する考えやスタンスがあるのではないかと。

    • 残り5枚の写真と建築家によるテキスト
    • SHARE
    ap編集長の建築探索一色暁生中島成隆五十嵐理人佐竹雄太小林佑輔建築展後藤連平林恭正渡邉明弘福田俊立石遼太郎論考野村亮介
    2026.04.27 Mon 16:45
    0
    permalink
    最も注目を集めたトピックス[期間:2026/4/20-4/26]

    SHARE 最も注目を集めたトピックス[期間:2026/4/20-4/26]

    architecture|feature
    最も注目を集めたトピックス
    最も注目を集めたトピックス[期間:2026/4/20-4/26]

    アーキテクチャーフォトで、先週(期間:2026/4/20-4/26)注目を集めたトピックスをまとめてご紹介します。リアルタイムでの一週間の集計は、トップページの「Weekly Top Topics」よりご覧いただけます。(弊サイトでは、作品記事についてSNS広告を活用した再発信を行う場合がありますが、その流入はランキングに影響しないよう設定しています)


    1. ピーター・ズントーとSOMによる、アメリカの「デイヴィッド・ゲフィン・ギャラリーズ」。ロサンゼルス郡立美術館の新本館。展示空間を約9m持ち上げ、地上レベルに劇場や店舗などがある“新たな屋外公共空間”も創出。水平に広がるギャラリーは文化や時代が異なる作品群のフラットな展示を可能にする
    2. 長坂常 / スキーマ建築計画による、香川・豊島の「Teshima Factory」。かつての鉄工所を食堂兼食糧工場として再生。既存の“シンメトリー”の大きなエントランスに着目し、計画の軸に据えて全体の構成を整理する設計を志向。内部では元の鉄骨の色味を基調として家具や造作を展開
    3. OMA / 重松象平が空間デザインを手掛けた、東京・墨田区の、江戸東京博物館のリニューアル。菊竹清訓設計の博物館の改修。公共体験の向上を目指し、“アイデンティティの明確化”や“再訪動機の創出”を実現する計画を志向。伝統的な文様や版画に加えて都市の情景などの映像を投影するピロティ空間を考案
    4. 五十嵐理人 / IGArchitectsと五十嵐友子による、東京の住宅「家の躯体」。生活と仕事の境界が曖昧な夫婦の為に計画。大らかで“何処でも仕事ができる”住居を求め、7枚の床がズレながら重なり多様な役割を担う立体的な一室空間の建築を考案。都心に住む現実と小敷地での可能性を形にする
    5. 齊藤啓輔 / 1st atelierによる、富山の「南砺の行燈」。縮小する地方の住宅の在り方も模索。空洞化が進んで空き地が増える状況において、地域の祭りの“行燈”を参照した“カーテンウォール”を追加する計画を考案。増築部は中間領域となり“温熱環境装置”としても機能
    6. 【ap編集長の建築探索】vol.014 ウルトラスタジオ「上原坂道のマンション」
    7. 建築家8組による新作模型の展覧会「波板と珊瑚礁 ‐ 建築を遠くに投げる八の実践」をレポート。WHAT MUSEUMで開催。ALTEMY、Office Yuasa、ガラージュ、GROUP、DOMINO ARCHITECTS、畠山鉄生+吉野太基+アーキペラゴアーキテクツスタジオ、平野利樹、RUI Architectsが出展
    8. 【ap編集長の建築探索】vol.015 日吉坂事務所「KITAYON KADO」
    9. パナソニックが運営する、東京・新橋の“BRIDGEHEAD Shimbashi”を会場に「『現し』を考える。展ver.4.0」が開催。スキーマ建築計画出身の西原将が企画と会場設計を手掛ける“現し”をテーマとした展示。配線の基本から電材の一覧まで収録し、設計の際に便利な“現し配線の手引き”も制作して公開
    10. 内野吉貴 / YDS建築研究所による、「熊本の住宅」
    11. 西原将 / スタジオパルマコンによる「『現し』を考える。展ver.4.0」。BRIDGEHEAD Shimbashiで開催。“現し”をテーマに床・壁・天井を考え、“電材の可能性”の一端を提示。一点物のものづくりとは異なる“作ることを開く”を求めて既製品の体系に“潜り込む”
    12. 山田紗子による、TOTOギャラリー・間での建築展「parallel tunes」。大阪・関西万博の休憩所も手がけた建築家の展示。複雑さを増す世界を“多声的”と捉え肯定し、“躍動感のある豊かな環境”の創出を志向。会場の空間を環境と捉えて“複雑な旋律を奏でながら共鳴する”世界を表現
    13. 隈研吾建築都市設計事務所・BDP・MICAによる、ロンドンの、ナショナル・ギャラリー新館設計コンペの勝利案。200年以上の歴史ある美術館を拡張する計画。都市の重要な二つの広場の間にある敷地において、両者を結びつける新たな屋外空間を備えた建築を提案
    14. BIG・WRA・HASTINGS Architectureによる、アメリカ・ナッシュビルの「テネシー舞台芸術センター」。音楽の街の“4つの公演空間”を備えた施設。“波打つ劇場のカーテン”から着想を得て、外部アーチは持ち上げて内部の活動を表出する建築を考案。“あらゆる方向”から人々を迎え入れる構成は都市との繋がりを考慮
    15. ファラによる、舞台美術「pendulo」。移民労働者を主題とした演劇の為に計画。“意味を投影する存在”として、MDFや波板などの“ありふれた材料”を用いた“意図的に控えめ”な空間を考案。モジュール式として様々な劇場や制約への適用も可能にする
    16. 藤本壮介建築設計事務所による、仙台市の「音楽ホール・中心部震災メモリアル拠点複合施設」の基本設計概要書が公開
    17. 五十嵐理人 / IGArchitectsによる、沖縄の住宅「重なりの間」。本島の“穏やかな集落”での計画。“気候と生活の間のフレーム”としての在り方も追及し、視覚的な開放とは異なる“開放性”を備えた空間を志向。重なりを生む“壁柱”と暮らしを守る“大屋根”からなる建築を考案
    18. 槇総合計画事務所による建築展「Vernacular Humanism / 人と社会と建築と」。槇文彦が創設し60周年を迎えた設計事務所の展覧会。同事務所設計の建築を会場に、未発表作品や進行中計画も含む145作品を紹介
    19. 鎌松亮 / note architectsによる、東京・江東区の「梁下の改修」。巨大な“十字梁”のある住戸での計画。“ひとつ梁の下”で家族が共に暮らす風景を求め、間仕切りと仕上げを梁下に止めて“梁の全体性”を保つ空間を考案。其々の部屋は壁仕上げに変化をつけて“場の性格”を分ける
    20. 2026年日本建築学会賞(作品)を、周防貴之の「屋島山上プロジェクト」、髙橋一平の「霞ケ浦どうぶつとみんなのいえ」、日野雅司・川口有子・仲俊治の「金沢美術工芸大学」が受賞

    • 過去の「最も注目を集めたトピックス」はこちらでどうぞ
    • SHARE
    最も注目を集めたトピックス
    2026.04.27 Mon 06:58
    0
    permalink
    2026.4.25Sat
    • レム・コールハースとクリストフ・ファン・ヘレウェイの対談「A Conversation on the Places of OMA, 1975–2025」の動画。デルフト工科大学で2026年4月に行われたもの
    2026.4.29Wed
    • 【ap job更新】 軽井沢・京都・瀬戸内を中心に、木造の住宅や別荘を手掛ける「株式会社クレア」が、住宅設計・実施設計・インテリアデザイン・企画のスタッフを募集中
    • 真泉洋介 / プラスマイズミアーキテクトによる、東京・品川区の「荏原の集合住宅」。住宅街の細長く不定形な敷地での計画。“閉鎖的になりがち”な環境に対して、光を効果的に取り入れる“明るい住空間”を志向。開口部の形状操作と様々な場所への配置で“光の通り道”をつくり出す

    Subscribe and Follow

    公式アカウントをフォローして、
    見逃せない建築情報を受け取ろう。

    「建築と社会の関係を視覚化する」メディア、アーキテクチャーフォトの公式アカウントです。
    様々な切り口による複眼的視点で建築に関する情報を最速でお届けします。

    62,026
    • Follow
    87,374
    • Follow
    • Follow
    • Add Friends
    • Subscribe
    • 情報募集/建築・デザイン・アートの情報を随時募集しています。
      More
    • メールマガジン/ メールマガジンで最新の情報を配信しています。
      More

    architecturephoto® News Letter

    メールマガジンでも最新の更新情報を配信中

    • ホーム
    • アーキテクチャーフォトについて
    • アーキテクチャーフォト規約
    • プライバシーポリシー
    • 特定商取引法に関する表記
    • 利用者情報の外部送信について
    • 広告掲載について
    • お問い合わせ/作品投稿

    Copyright © architecturephoto.net.

    • 建築
    • アート
    • カルチャー
    • デザイン
    • ファッション
    • 動画
    • 展覧会
    • コンペ
    • 書籍
    • 建築求人
    • 特集記事
    • 注目情報
    • タグ
    • アーキテクチャーフォト ジョブボード
    • アーキテクチャーフォト・ブック
    • ホーム
    • アーキテクチャーフォトについて
    • アーキテクチャーフォト規約
    • プライバシーポリシー
    • 特定商取引法に関する表記
    • 利用者情報の外部送信について
    • 広告掲載について
    • お問い合わせ/作品投稿

    メールマガジンで最新の情報を配信しています

    この記事をシェア
    タイトルタイトルタイトルタイトルタイトル
    https://architecturephoto.net/permalink

    記事について#architecturephotonetでつぶやいてみましょう。
    有益なコメントは拡散や、サイトでも紹介させていただくこともございます。

    architecturephoto®
    • black
    • gray
    • white

    建築求人情報紹介

    Loading...