architecturephoto®

  • 特集記事
  • 注目情報
  • タグ
  • 建築
  • アート
  • カルチャー
  • デザイン
  • ファッション
  • 動画
  • 展覧会
  • コンペ
  • 書籍
  • 建築求人
  • すべてのタグ

建築求人情報

Loading...
2026.4.20Mon
2026.4.19Sun
2026.4.21Tue
長坂常 / スキーマ建築計画による、香川・豊島の「Teshima Factory」。かつての鉄工所を食堂兼食糧工場として再生。既存の“シンメトリー”の大きなエントランスに着目し、計画の軸に据えて全体の構成を整理する設計を志向。内部では元の鉄骨の色味を基調として家具や造作を展開
photo©長谷川健太

SHARE 長坂常 / スキーマ建築計画による、香川・豊島の「Teshima Factory」。かつての鉄工所を食堂兼食糧工場として再生。既存の“シンメトリー”の大きなエントランスに着目し、計画の軸に据えて全体の構成を整理する設計を志向。内部では元の鉄骨の色味を基調として家具や造作を展開

architecture|feature
あらい建設スキーマ建築計画ハシゴタカ建築設計事務所図面ありリノベーションコンバージョン店舗香川工場長坂常長谷川健太
長坂常 / スキーマ建築計画による、香川・豊島の「Teshima Factory」。かつての鉄工所を食堂兼食糧工場として再生。既存の“シンメトリー”の大きなエントランスに着目し、計画の軸に据えて全体の構成を整理する設計を志向。内部では元の鉄骨の色味を基調として家具や造作を展開外観、南東側より見る。 photo©長谷川健太
長坂常 / スキーマ建築計画による、香川・豊島の「Teshima Factory」。かつての鉄工所を食堂兼食糧工場として再生。既存の“シンメトリー”の大きなエントランスに着目し、計画の軸に据えて全体の構成を整理する設計を志向。内部では元の鉄骨の色味を基調として家具や造作を展開外観、南側より見る。 photo©長谷川健太
長坂常 / スキーマ建築計画による、香川・豊島の「Teshima Factory」。かつての鉄工所を食堂兼食糧工場として再生。既存の“シンメトリー”の大きなエントランスに着目し、計画の軸に据えて全体の構成を整理する設計を志向。内部では元の鉄骨の色味を基調として家具や造作を展開食堂、客席から厨房側を見る。 photo©長谷川健太
長坂常 / スキーマ建築計画による、香川・豊島の「Teshima Factory」。かつての鉄工所を食堂兼食糧工場として再生。既存の“シンメトリー”の大きなエントランスに着目し、計画の軸に据えて全体の構成を整理する設計を志向。内部では元の鉄骨の色味を基調として家具や造作を展開食堂、客席 photo©長谷川健太

長坂常 / スキーマ建築計画が設計した、香川・豊島の「Teshima Factory」です。
かつての鉄工所を食堂兼食糧工場として再生するプロジェクトです。建築家は、既存の“シンメトリー”の大きなエントランスに着目し、計画の軸に据えて全体の構成を整理する設計を志向しました。また、内部では元の鉄骨の色味を基調として家具や造作を展開しています。施設の場所はこちら(Google Map)。

Teshima Factoryは、豊島・家浦港前に建つ旧鉄工所を、食堂兼食糧工場として再生したプロジェクトである。

豊島はかつて不法投棄による産業廃棄物問題により、「ゴミの島」として知られていたが、その原因でもあった本土からの距離が近年ではよい結果を生みつつある。汚名を払拭するかのように自然環境との調和を図った豊島美術館。そして外部資材の入手が困難な離島ゆえの、島内にあるもので成り立たせてきた農業や暮らし。

建築家によるテキストより

豊かな水源と起伏に富んだ地形を活かし、島では無農薬による棚田農業が古くから営まれており、その水がそのまま海へと流れ出すことで、海藻が育ち、それを求める魚が集まり、漁業もまた豊かなものとなっていた。

このように農と漁が連動し、自然の循環の中にあった豊島の暮らしは、今では“周回遅れの最先端”とも言える持続可能な営みである。しかし、近年は高齢化によりその営みも次第に失われつつある。

そうした状況に着目したのが、本プロジェクトの事業主であるアミューズである。彼らは、かつての農業を再生し、そこで生まれる産品を島の新たな名物として広く伝えることで、新たなアグリカルチャーツーリズムを創出しようとしている。その第一弾として誕生したのが、このTeshima Factoryである。

建築家によるテキストより

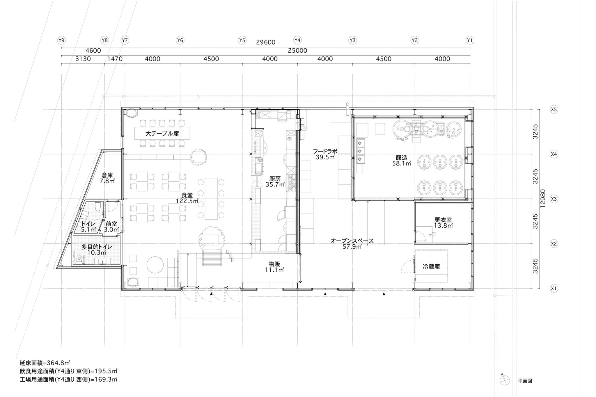
建築計画においては、延床面積360㎡の元工場の建物をおおよそ半分に分け、一方は工場としての機能を残し醸造所に、残り半分は200㎡未満の用途変更として新たに食堂とする計画とした。

既存建物は中央に大きなシンメトリーのエントランスをもっていたため、それを軸に構成を整理し、工場側には既存のスレート屋根を残して遮光性を確保し、食堂側には波板ポリカーボネートを用いて自然光を取り込む構成とした。結果、双子のような対をなす空間=Twinsが、豊島の玄関口に現れることとなった。

インテリアにおいては、既存鉄骨の色味を基調に家具や造作を展開。天井から吊るされた球体照明には、同系色の海洋プラスチックごみを収集・再構成したマテリアルを用いている。その下には、オランダのアーティスト、Sander Wassinkと島民によって共同製作された椅子が並ぶ。

建築家によるテキストより

以下の写真はクリックで拡大します

長坂常 / スキーマ建築計画による、香川・豊島の「Teshima Factory」。かつての鉄工所を食堂兼食糧工場として再生。既存の“シンメトリー”の大きなエントランスに着目し、計画の軸に据えて全体の構成を整理する設計を志向。内部では元の鉄骨の色味を基調として家具や造作を展開周辺の風景 photo©長谷川健太
長坂常 / スキーマ建築計画による、香川・豊島の「Teshima Factory」。かつての鉄工所を食堂兼食糧工場として再生。既存の“シンメトリー”の大きなエントランスに着目し、計画の軸に据えて全体の構成を整理する設計を志向。内部では元の鉄骨の色味を基調として家具や造作を展開周辺の風景 photo©長谷川健太
長坂常 / スキーマ建築計画による、香川・豊島の「Teshima Factory」。かつての鉄工所を食堂兼食糧工場として再生。既存の“シンメトリー”の大きなエントランスに着目し、計画の軸に据えて全体の構成を整理する設計を志向。内部では元の鉄骨の色味を基調として家具や造作を展開周辺の風景 photo©長谷川健太
長坂常 / スキーマ建築計画による、香川・豊島の「Teshima Factory」。かつての鉄工所を食堂兼食糧工場として再生。既存の“シンメトリー”の大きなエントランスに着目し、計画の軸に据えて全体の構成を整理する設計を志向。内部では元の鉄骨の色味を基調として家具や造作を展開周辺の風景 photo©長谷川健太
長坂常 / スキーマ建築計画による、香川・豊島の「Teshima Factory」。かつての鉄工所を食堂兼食糧工場として再生。既存の“シンメトリー”の大きなエントランスに着目し、計画の軸に据えて全体の構成を整理する設計を志向。内部では元の鉄骨の色味を基調として家具や造作を展開周辺の風景 photo©長谷川健太
長坂常 / スキーマ建築計画による、香川・豊島の「Teshima Factory」。かつての鉄工所を食堂兼食糧工場として再生。既存の“シンメトリー”の大きなエントランスに着目し、計画の軸に据えて全体の構成を整理する設計を志向。内部では元の鉄骨の色味を基調として家具や造作を展開周辺の風景 photo©長谷川健太
長坂常 / スキーマ建築計画による、香川・豊島の「Teshima Factory」。かつての鉄工所を食堂兼食糧工場として再生。既存の“シンメトリー”の大きなエントランスに着目し、計画の軸に据えて全体の構成を整理する設計を志向。内部では元の鉄骨の色味を基調として家具や造作を展開周辺の風景 photo©長谷川健太
長坂常 / スキーマ建築計画による、香川・豊島の「Teshima Factory」。かつての鉄工所を食堂兼食糧工場として再生。既存の“シンメトリー”の大きなエントランスに着目し、計画の軸に据えて全体の構成を整理する設計を志向。内部では元の鉄骨の色味を基調として家具や造作を展開周辺の風景 photo©長谷川健太
長坂常 / スキーマ建築計画による、香川・豊島の「Teshima Factory」。かつての鉄工所を食堂兼食糧工場として再生。既存の“シンメトリー”の大きなエントランスに着目し、計画の軸に据えて全体の構成を整理する設計を志向。内部では元の鉄骨の色味を基調として家具や造作を展開鳥瞰、南東側より見下ろす。 photo©長谷川健太
長坂常 / スキーマ建築計画による、香川・豊島の「Teshima Factory」。かつての鉄工所を食堂兼食糧工場として再生。既存の“シンメトリー”の大きなエントランスに着目し、計画の軸に据えて全体の構成を整理する設計を志向。内部では元の鉄骨の色味を基調として家具や造作を展開俯瞰、南側より見下ろす。 photo©長谷川健太
長坂常 / スキーマ建築計画による、香川・豊島の「Teshima Factory」。かつての鉄工所を食堂兼食糧工場として再生。既存の“シンメトリー”の大きなエントランスに着目し、計画の軸に据えて全体の構成を整理する設計を志向。内部では元の鉄骨の色味を基調として家具や造作を展開外観、南西の海側より見る。 photo©長谷川健太
長坂常 / スキーマ建築計画による、香川・豊島の「Teshima Factory」。かつての鉄工所を食堂兼食糧工場として再生。既存の“シンメトリー”の大きなエントランスに着目し、計画の軸に据えて全体の構成を整理する設計を志向。内部では元の鉄骨の色味を基調として家具や造作を展開外観、南東側より見る。 photo©長谷川健太
長坂常 / スキーマ建築計画による、香川・豊島の「Teshima Factory」。かつての鉄工所を食堂兼食糧工場として再生。既存の“シンメトリー”の大きなエントランスに着目し、計画の軸に据えて全体の構成を整理する設計を志向。内部では元の鉄骨の色味を基調として家具や造作を展開外観、南側より見る。 photo©長谷川健太
長坂常 / スキーマ建築計画による、香川・豊島の「Teshima Factory」。かつての鉄工所を食堂兼食糧工場として再生。既存の“シンメトリー”の大きなエントランスに着目し、計画の軸に据えて全体の構成を整理する設計を志向。内部では元の鉄骨の色味を基調として家具や造作を展開外観、北西側から見上げる。 photo©長谷川健太
長坂常 / スキーマ建築計画による、香川・豊島の「Teshima Factory」。かつての鉄工所を食堂兼食糧工場として再生。既存の“シンメトリー”の大きなエントランスに着目し、計画の軸に据えて全体の構成を整理する設計を志向。内部では元の鉄骨の色味を基調として家具や造作を展開外観、南側より外壁を見る。 photo©長谷川健太
長坂常 / スキーマ建築計画による、香川・豊島の「Teshima Factory」。かつての鉄工所を食堂兼食糧工場として再生。既存の“シンメトリー”の大きなエントランスに着目し、計画の軸に据えて全体の構成を整理する設計を志向。内部では元の鉄骨の色味を基調として家具や造作を展開外観、開口部の詳細 photo©長谷川健太
長坂常 / スキーマ建築計画による、香川・豊島の「Teshima Factory」。かつての鉄工所を食堂兼食糧工場として再生。既存の“シンメトリー”の大きなエントランスに着目し、計画の軸に据えて全体の構成を整理する設計を志向。内部では元の鉄骨の色味を基調として家具や造作を展開外観、南側よりサインを見る。 photo©長谷川健太
長坂常 / スキーマ建築計画による、香川・豊島の「Teshima Factory」。かつての鉄工所を食堂兼食糧工場として再生。既存の“シンメトリー”の大きなエントランスに着目し、計画の軸に据えて全体の構成を整理する設計を志向。内部では元の鉄骨の色味を基調として家具や造作を展開外観、南側より食堂のエントランスを見る。 photo©長谷川健太
長坂常 / スキーマ建築計画による、香川・豊島の「Teshima Factory」。かつての鉄工所を食堂兼食糧工場として再生。既存の“シンメトリー”の大きなエントランスに着目し、計画の軸に据えて全体の構成を整理する設計を志向。内部では元の鉄骨の色味を基調として家具や造作を展開外観、食堂のエントランスの詳細 photo©長谷川健太
長坂常 / スキーマ建築計画による、香川・豊島の「Teshima Factory」。かつての鉄工所を食堂兼食糧工場として再生。既存の“シンメトリー”の大きなエントランスに着目し、計画の軸に据えて全体の構成を整理する設計を志向。内部では元の鉄骨の色味を基調として家具や造作を展開外観、食堂のエントランスの詳細 photo©長谷川健太
長坂常 / スキーマ建築計画による、香川・豊島の「Teshima Factory」。かつての鉄工所を食堂兼食糧工場として再生。既存の“シンメトリー”の大きなエントランスに着目し、計画の軸に据えて全体の構成を整理する設計を志向。内部では元の鉄骨の色味を基調として家具や造作を展開外部から食堂のエントランス越しに客席を見る。 photo©長谷川健太
長坂常 / スキーマ建築計画による、香川・豊島の「Teshima Factory」。かつての鉄工所を食堂兼食糧工場として再生。既存の“シンメトリー”の大きなエントランスに着目し、計画の軸に据えて全体の構成を整理する設計を志向。内部では元の鉄骨の色味を基調として家具や造作を展開外部から食堂のエントランス越しに客席を見る。 photo©長谷川健太
長坂常 / スキーマ建築計画による、香川・豊島の「Teshima Factory」。かつての鉄工所を食堂兼食糧工場として再生。既存の“シンメトリー”の大きなエントランスに着目し、計画の軸に据えて全体の構成を整理する設計を志向。内部では元の鉄骨の色味を基調として家具や造作を展開食堂、客席から厨房側を見る。 photo©長谷川健太
長坂常 / スキーマ建築計画による、香川・豊島の「Teshima Factory」。かつての鉄工所を食堂兼食糧工場として再生。既存の“シンメトリー”の大きなエントランスに着目し、計画の軸に据えて全体の構成を整理する設計を志向。内部では元の鉄骨の色味を基調として家具や造作を展開食堂、客席 photo©長谷川健太
長坂常 / スキーマ建築計画による、香川・豊島の「Teshima Factory」。かつての鉄工所を食堂兼食糧工場として再生。既存の“シンメトリー”の大きなエントランスに着目し、計画の軸に据えて全体の構成を整理する設計を志向。内部では元の鉄骨の色味を基調として家具や造作を展開食堂、客席から厨房側を見る。 photo©長谷川健太
長坂常 / スキーマ建築計画による、香川・豊島の「Teshima Factory」。かつての鉄工所を食堂兼食糧工場として再生。既存の“シンメトリー”の大きなエントランスに着目し、計画の軸に据えて全体の構成を整理する設計を志向。内部では元の鉄骨の色味を基調として家具や造作を展開食堂、客席から厨房側を見る。 photo©長谷川健太
長坂常 / スキーマ建築計画による、香川・豊島の「Teshima Factory」。かつての鉄工所を食堂兼食糧工場として再生。既存の“シンメトリー”の大きなエントランスに着目し、計画の軸に据えて全体の構成を整理する設計を志向。内部では元の鉄骨の色味を基調として家具や造作を展開食堂、客席 photo©長谷川健太
長坂常 / スキーマ建築計画による、香川・豊島の「Teshima Factory」。かつての鉄工所を食堂兼食糧工場として再生。既存の“シンメトリー”の大きなエントランスに着目し、計画の軸に据えて全体の構成を整理する設計を志向。内部では元の鉄骨の色味を基調として家具や造作を展開食堂、客席から開口部越しに外部を見る。 photo©長谷川健太
長坂常 / スキーマ建築計画による、香川・豊島の「Teshima Factory」。かつての鉄工所を食堂兼食糧工場として再生。既存の“シンメトリー”の大きなエントランスに着目し、計画の軸に据えて全体の構成を整理する設計を志向。内部では元の鉄骨の色味を基調として家具や造作を展開食堂、客席から開口部越しに外部を見る。 photo©長谷川健太
長坂常 / スキーマ建築計画による、香川・豊島の「Teshima Factory」。かつての鉄工所を食堂兼食糧工場として再生。既存の“シンメトリー”の大きなエントランスに着目し、計画の軸に据えて全体の構成を整理する設計を志向。内部では元の鉄骨の色味を基調として家具や造作を展開食堂 photo©長谷川健太
長坂常 / スキーマ建築計画による、香川・豊島の「Teshima Factory」。かつての鉄工所を食堂兼食糧工場として再生。既存の“シンメトリー”の大きなエントランスに着目し、計画の軸に据えて全体の構成を整理する設計を志向。内部では元の鉄骨の色味を基調として家具や造作を展開食堂、客席、壁と床 photo©長谷川健太
長坂常 / スキーマ建築計画による、香川・豊島の「Teshima Factory」。かつての鉄工所を食堂兼食糧工場として再生。既存の“シンメトリー”の大きなエントランスに着目し、計画の軸に据えて全体の構成を整理する設計を志向。内部では元の鉄骨の色味を基調として家具や造作を展開食堂、家具の詳細 photo©長谷川健太
長坂常 / スキーマ建築計画による、香川・豊島の「Teshima Factory」。かつての鉄工所を食堂兼食糧工場として再生。既存の“シンメトリー”の大きなエントランスに着目し、計画の軸に据えて全体の構成を整理する設計を志向。内部では元の鉄骨の色味を基調として家具や造作を展開食堂、家具の詳細 photo©長谷川健太
長坂常 / スキーマ建築計画による、香川・豊島の「Teshima Factory」。かつての鉄工所を食堂兼食糧工場として再生。既存の“シンメトリー”の大きなエントランスに着目し、計画の軸に据えて全体の構成を整理する設計を志向。内部では元の鉄骨の色味を基調として家具や造作を展開食堂からエントランス越しに見る。 photo©長谷川健太
長坂常 / スキーマ建築計画による、香川・豊島の「Teshima Factory」。かつての鉄工所を食堂兼食糧工場として再生。既存の“シンメトリー”の大きなエントランスに着目し、計画の軸に据えて全体の構成を整理する設計を志向。内部では元の鉄骨の色味を基調として家具や造作を展開醸造所、オープンスペースから「醸造」を見る。 photo©長谷川健太
長坂常 / スキーマ建築計画による、香川・豊島の「Teshima Factory」。かつての鉄工所を食堂兼食糧工場として再生。既存の“シンメトリー”の大きなエントランスに着目し、計画の軸に据えて全体の構成を整理する設計を志向。内部では元の鉄骨の色味を基調として家具や造作を展開醸造所、オープンスペースから食堂の物販側を見る。 photo©長谷川健太
長坂常 / スキーマ建築計画による、香川・豊島の「Teshima Factory」。かつての鉄工所を食堂兼食糧工場として再生。既存の“シンメトリー”の大きなエントランスに着目し、計画の軸に据えて全体の構成を整理する設計を志向。内部では元の鉄骨の色味を基調として家具や造作を展開オープンスペース、建具のサイン photo©長谷川健太
長坂常 / スキーマ建築計画による、香川・豊島の「Teshima Factory」。かつての鉄工所を食堂兼食糧工場として再生。既存の“シンメトリー”の大きなエントランスに着目し、計画の軸に据えて全体の構成を整理する設計を志向。内部では元の鉄骨の色味を基調として家具や造作を展開外観、南側より見る。夜景 photo©長谷川健太
長坂常 / スキーマ建築計画による、香川・豊島の「Teshima Factory」。かつての鉄工所を食堂兼食糧工場として再生。既存の“シンメトリー”の大きなエントランスに着目し、計画の軸に据えて全体の構成を整理する設計を志向。内部では元の鉄骨の色味を基調として家具や造作を展開外観、南側より見る。夜景 photo©長谷川健太
長坂常 / スキーマ建築計画による、香川・豊島の「Teshima Factory」。かつての鉄工所を食堂兼食糧工場として再生。既存の“シンメトリー”の大きなエントランスに着目し、計画の軸に据えて全体の構成を整理する設計を志向。内部では元の鉄骨の色味を基調として家具や造作を展開平面図 image©スキーマ建築計画
長坂常 / スキーマ建築計画による、香川・豊島の「Teshima Factory」。かつての鉄工所を食堂兼食糧工場として再生。既存の“シンメトリー”の大きなエントランスに着目し、計画の軸に据えて全体の構成を整理する設計を志向。内部では元の鉄骨の色味を基調として家具や造作を展開立面図 image©スキーマ建築計画
長坂常 / スキーマ建築計画による、香川・豊島の「Teshima Factory」。かつての鉄工所を食堂兼食糧工場として再生。既存の“シンメトリー”の大きなエントランスに着目し、計画の軸に据えて全体の構成を整理する設計を志向。内部では元の鉄骨の色味を基調として家具や造作を展開断面図 image©スキーマ建築計画

以下、建築家によるテキストです。


Teshima Factoryは、豊島・家浦港前に建つ旧鉄工所を、食堂兼食糧工場として再生したプロジェクトである。

豊島はかつて不法投棄による産業廃棄物問題により、「ゴミの島」として知られていたが、その原因でもあった本土からの距離が近年ではよい結果を生みつつある。汚名を払拭するかのように自然環境との調和を図った豊島美術館。そして外部資材の入手が困難な離島ゆえの、島内にあるもので成り立たせてきた農業や暮らし。

豊かな水源と起伏に富んだ地形を活かし、島では無農薬による棚田農業が古くから営まれており、その水がそのまま海へと流れ出すことで、海藻が育ち、それを求める魚が集まり、漁業もまた豊かなものとなっていた。

このように農と漁が連動し、自然の循環の中にあった豊島の暮らしは、今では“周回遅れの最先端”とも言える持続可能な営みである。しかし、近年は高齢化によりその営みも次第に失われつつある。

そうした状況に着目したのが、本プロジェクトの事業主であるアミューズである。彼らは、かつての農業を再生し、そこで生まれる産品を島の新たな名物として広く伝えることで、新たなアグリカルチャーツーリズムを創出しようとしている。その第一弾として誕生したのが、このTeshima Factoryである。

建築計画においては、延床面積360㎡の元工場の建物をおおよそ半分に分け、一方は工場としての機能を残し醸造所に、残り半分は200㎡未満の用途変更として新たに食堂とする計画とした。

既存建物は中央に大きなシンメトリーのエントランスをもっていたため、それを軸に構成を整理し、工場側には既存のスレート屋根を残して遮光性を確保し、食堂側には波板ポリカーボネートを用いて自然光を取り込む構成とした。結果、双子のような対をなす空間=Twinsが、豊島の玄関口に現れることとなった。

インテリアにおいては、既存鉄骨の色味を基調に家具や造作を展開。天井から吊るされた球体照明には、同系色の海洋プラスチックごみを収集・再構成したマテリアルを用いている。その下には、オランダのアーティスト、Sander Wassinkと島民によって共同製作された椅子が並ぶ。

この食堂は、島民と観光客が集い、島の食を囲みながら交わる、新たなコミュニケーションの場となっている。

■建築概要

題名:Teshima Factory
所在地:香川県小豆郡土庄町豊島家浦889
主用途:飲食店、工場
設計:長坂常 / スキーマ建築計画 担当/上島惇之介、中原風香
構造監修:株式会社ハシゴダカ建築設計事務所
建築施工:株式会社あらい建設
家具施工:株式会社ガルボ
設備設計:株式会社ラックランド
設備施工:株式会社TMシステム
厨房計画:株式会社フジマック
厨房監修:料理人 廣瀬亮
ブルワリー計画、運営協力:株式会社スペントグレイン 担当/鈴木諒
椅子製作:サンダー・ワッシンク
照明計画:株式会社遠藤照明
サイン計画:6D-K co.,Ltd 担当/木住野彰悟、加藤乃梨佳
設計協力:イイジマデザイン 担当/飯島靜
植栽:ニワコデザイン 担当/相樂佳祐
海洋ゴミ提供:NPO法人ひらど海てらす
プロジェクトマネージャー:株式会社GOODTIME 担当/明山淳也
プロジェクトマネージャー:森ビル株式会社 担当/石澤滝太郎
構造:鉄骨造
階数:1階
敷地面積:973.4㎡
延床面積:364.8m²
引渡日:2025年3月9日
OPEN:2025年4月2日
写真:長谷川健太


Teshima Factory is a project that revitalised a former ironworks located in front of Ieura Port in Teshima Island as a cafeteria and food factory.

Teshima was once known as ‘Garbage Island’ due to industrial waste problems caused by illegal dumping, but in recent years, its distance from the mainland, which was also the cause of the problem, has begun to yield positive results. The Teshima Art Museum, which harmonises with the natural environment as if to erase the island’s stigma.

And the agriculture and way of life that have been sustained using only what is available on the island, due to the difficulty of obtaining external materials. Taking advantage of the island’s abundant water sources and undulating terrain, terraced rice farming without pesticides has long been practised here. The water flows directly into the sea, nurturing seaweed, which attracts fish, thereby enriching the fishing industry.

In this way, the lifestyle of Teshima, which was part of the natural cycle intertwining agriculture and fishing, is now a sustainable practice that could be described as ‘cutting-edge because being one or more laps behind.’ However, in recent years, this way of life has gradually been lost due to the ageing population.

Amuse, the project operator, has focused on this situation. They aim to revive the former agriculture, promote the products of island as the new speciality, and create a new form of agricultural tourism. Teshima Factory is the first step in this endeavour.

In terms of architectural planning, the original factory building, with a total floor area of 360 m², was divided into two roughly equal parts. One part retained its function as a factory and was becoming a brewery, while the other half was converted into a new cafeteria with a floor area of less than 200 m².

The existing building had a large symmetrical entrance at its centre, so the design was organised around this axis. The factory side retained the existing slate roof to ensure shade, while the cafeteria side used corrugated polycarbonate panels to allow natural light to enter. As a result, the twin-like spaces appeared at the entrance to Teshima.

The interior design features furniture and fixtures based on the colour of the existing steel frame. The spherical lighting fixtures suspended from the ceiling are made from recycled marine plastic waste collected from the ocean. Beneath them are chairs jointly created by Dutch artist Sander Wassink and the islanders.

This cafeteria has become a new place for communication, where islanders and tourists gather to enjoy the island’s cuisine.

Teshima Factory


Location: 889 Ieura, Teshima, Tonosho-cho, Shodo-gun, Kagawa, Japan

Usage: Restaurant, Factory

Design: Jo Nagasaka / Schemata Architects

Project Team: Junnosuke Kamijima, Fuka Nakahara

Structural Supervision: Hashigodaka Architects Inc.

Construction: Arai Construction Co., Ltd.

Furniture Construction: Garbo inc.

Equipment Design: LUCKLAND Co., Ltd.

Equipment Construction: TM System Co., Ltd.

Kitchen Planning: Fujimak Co., Ltd.
Kitchen Supervision): Chef Ryo Hirose
Brewery Planning & Operations Support: Ryo Suzuki / Spent Grain Inc.
Chair Production: Sander Wassink
Lighting Design: Endo Lighting Corporation
Sign Design: Shogo Kishino,Norika Kato / 6D-K co., Ltd.
Design Collaboration: Shizuka Iijima / Iijima Design
Planting Design: Keisuke Sagara / Niwaco Design
Marine Debris Supply: Hirado Umi Terrace NPO
Project Direction: Junya Akeyama / GOODTIME
Project Direction: Takitaro Ishizawa / Mori Building Co., Ltd.
Structure: Steel Frame Construction

Number of Floors: 1 Floor

Site Area: 973.4 m²

Total Floor Area: 364.8 m²

Handover Date: March 9, 2025

Opening Date: April 2, 2025

Photography: Kenta Hasegawa

あわせて読みたい

BIGによる、ノルウェーの、家具工場「ザ・プラス」。体験センター等を内包し公共公園の一部としても機能する施設。直感的体験と開放性を目指して、放射状に配した4つの生産空間を中央で繋げ“プラス”型となるよう設計。わずか18ヵ月で完成された環境にも配慮した建築
  • SHARE
あらい建設スキーマ建築計画ハシゴタカ建築設計事務所図面ありリノベーションコンバージョン店舗香川工場長坂常長谷川健太
2026.04.20 Mon 07:25
0
permalink

#ハシゴタカ建築設計事務所の関連記事

  • 2026.4.28Tue
    真泉洋介 / プラスマイズミアーキテクトによる、東京・品川区の「荏原の集合住宅」。住宅街の細長く不定形な敷地での計画。“閉鎖的になりがち”な環境に対して、光を効果的に取り入れる“明るい住空間”を志向。開口部の形状操作と様々な場所への配置で“光の通り道”をつくり出す
  • 2024.10.15Tue
    諸江一紀建築設計事務所による、愛知・岡崎市の「庇の家」。下屋のある住宅が建ち並ぶ地域での計画。“屋根が重なる風景”との呼応も意図し、箱型のヴォリュームの四周に“庇”を配置する建築を考案。縁側の垂木を内部にまで延長して“屋根で守られる安堵感”も空間に与える
  • 2024.7.24Wed
    長坂常 / スキーマ建築計画による、長崎・対馬の宿泊施設「hotel jin」。フェリー乗場に近い木造旅館を改修したホテル。国内外のゲストを迎える“島の表玄関”を目指し、イベント開催も可能な“エンプティな空間”を備えた建築を考案。外から内部の様子を伺えるように窓まわりにも手を加える
  • 2024.7.22Mon
    長坂常 / スキーマ建築計画による、北海道の店舗「函館千秋庵総本家」。外観の上下が和洋折衷の建物が並ぶ地域に建つ老舗和菓子店の改修。新しい“和洋折衷”の在り方も意図し、地域でも馴染み深い“洋煉瓦”を“尺モジュール”等で馴染ませる空間を考案。家具類は床が隆起した様に作る
  • 2024.2.14Wed
    長坂常 / スキーマ建築計画による、岡山・倉敷市の店舗「立ち呑み ura」。倉敷美観地区の近隣での計画。観光産業の街で住民の為に出来る事を模索し、“若い人の営みをつくる”切っ掛けとなる存在を志向。地域のランドマークを意図して立面の開口から内壁のライトアップを見せる建築を考案
  • 2024.1.22Mon
    諸江一紀建築設計事務所による、愛知・豊田市の「道の家」。特徴的な道が多い街のT字の交差点に面する敷地。道の通行だけでない多義性に着目し、内部に複数の“道の様なもの”を通す構成を考案。近隣との交流や採光通風をもたらす役割を担って“住まいと街”に潤いを与える
  • 2023.12.11Mon
    諸江一紀建築設計事務所による、愛知・一宮市の「家具工房とピアノ教室のある家」。歴史ある街道に面する敷地。道行く人が仕事の様子を感受できる建築を求め、工房と作業場にもなる庭を通りに向かって開放する構成を考案。街との接点となる“少しだけ開かれた家”は住まい手の地元への意識も変える
  • 2023.9.27Wed
    GENETOによる、長野・白馬村の「KANOLLY Resorts」。リゾート開発が進む豪雪地の宿泊施設。地域の山々や風土への敬意と積雪対策を意図し、“合掌造り”を参照した建物を3つ雁行配置して繋げる構成を考案。環境を堪能できるように部屋毎に内外の関係性を調整
  • 2023.8.25Fri
    真泉洋介 / プラスマイズミアーキテクトによる、神奈川・葉山町の住宅「sunny bitters」。山裾の傾斜地の旗竿地に計画。ガラスを張り巡らせた“浮遊感”のある建築で、一体的に繋がる内部空間には様々な高さの“座れる居場所”が連続。其々の場からの視線の抜けも意識して設計
  • 2023.7.18Tue
    真泉洋介 / プラスマイズミアーキテクトによる、千葉・松戸市の、集会所「紙敷あんど」。神社の境内に計画。伝統的な社会の枠組から現代に即した“地域扶助”の創出を目指し、テレワーク等の“日常的利用”も想定した多様に使える“コミュニティー”の場を志向。各箇所に様々な使い方のアイデアを込める
  • view all
view all

#香川の関連記事

  • 2025.10.29Wed
    大室佑介アトリエによる、香川・多度津町の「鳥のための塔」。アート祭への出展作品として計画。“雄大な自然への敬意”と“墓地に近接する立地”も考慮し、島の一部となる“ささやかな塔”を志向。正八角形の柱の中に“円筒状”の内部空間を作って中谷ミチコのレリーフを配置
  • 2025.5.31Sat
    安藤忠雄による「直島新美術館」の様子を伝えるニュース動画。開館前日に行われた内覧会の様子を収録
  • 2025.5.30Fri
    安藤忠雄による、香川の「直島新美術館」が、明日開館。完成した建築や開館記念展の様子も公開
  • 2025.2.10Mon
    林健太郎建築設計事務所による、香川の住宅「善通寺の建物」。往来のある道に面した角地での計画。家族・建築・街の関係を考慮し、リビング等を納めた地上階の上に家形の個室群をセットバックさせて載せる構成を考案。後退で生み出したルーフテラスは住宅を外に開く役割も担う
  • 2025.2.03Mon
    安藤忠雄建築研究所による、香川の「直島新美術館」の新しいパースが公開。開館は、2025年5月31日に決定。開館記念として、国内外のアーティスト12組の展覧会を開催
  • 2024.11.03Sun
    堀部安嗣による、香川の「時の納屋」(2024年竣工) の動画。堀部が初めて手掛けた公共建築で、国立公園内の飲食施設
  • 2024.4.10Wed
    長坂常 / スキーマ建築計画による、香川・小豆島の温泉施設「島湯」がオープン。既存ホテル内の温浴施設を“引き算”のデザインで改修。黄金湯と狛江湯に続く長坂が手掛ける温浴施設
  • 2023.9.05Tue
    安藤忠雄の設計で、香川・直島に「直島新美術館(仮称)」が建設。島で10番目となる安藤による建築。アジア地域の作家の作品を収集し展示する施設。2025年春の開館を予定
  • 2023.7.06Thu
    空間構想による、香川・高松市の「四国村ミウゼアム『おやねさん』」。屋外博物館の入口に建つチケット売場等を備えた施設。場の“潜在的価値”の現前を目指し、周辺の“資源”を繋ぐ様に地形の改変と新築を行い関係性を“空間的に”調停。屋根は表と裏の環境と呼応して“有機的”形状を描く
  • 2023.2.18Sat
    丹下健三が1964年に完成させた「旧香川県立体育館」の解体決定の概要を伝えるニュース動画
  • view all
view all

建築求人情報

Loading...

 

    公式アカウントをフォローして、見逃せない建築情報を受け取ろう。

    62,026
    • Follow
    87,374
    • Follow
    • Follow
    • Add Friends
    • Subscribe
    • 情報募集/建築・デザイン・アートの情報を随時募集しています。
      More
    • メールマガジン/ メールマガジンで最新の情報を配信しています。
      More

    この日更新したその他の記事

    ピーター・ズントーとSOMによる、アメリカの「デイヴィッド・ゲフィン・ギャラリーズ」。ロサンゼルス郡立美術館の新本館。展示空間を約9m持ち上げ、地上レベルに劇場や店舗などがある“新たな屋外公共空間”も創出。水平に広がるギャラリーは文化や時代が異なる作品群のフラットな展示を可能にする
    photo © Iwan Baan

    SHARE ピーター・ズントーとSOMによる、アメリカの「デイヴィッド・ゲフィン・ギャラリーズ」。ロサンゼルス郡立美術館の新本館。展示空間を約9m持ち上げ、地上レベルに劇場や店舗などがある“新たな屋外公共空間”も創出。水平に広がるギャラリーは文化や時代が異なる作品群のフラットな展示を可能にする

    architecture|art|feature
    美術館・博物館ピーター・ズントーSOMアメリカロサンゼルス
    ピーター・ズントーとSOMによる、アメリカの「デイヴィッド・ゲフィン・ギャラリーズ」。ロサンゼルス郡立美術館の新本館。展示空間を約9m持ち上げ、地上レベルに劇場や店舗などがある“新たな屋外公共空間”も創出。水平に広がるギャラリーは文化や時代が異なる作品群のフラットな展示を可能にするAerial view of LACMA buildings, including David Geffen Galleries in context of Miracle Mile photo © Iwan Baan
    ピーター・ズントーとSOMによる、アメリカの「デイヴィッド・ゲフィン・ギャラリーズ」。ロサンゼルス郡立美術館の新本館。展示空間を約9m持ち上げ、地上レベルに劇場や店舗などがある“新たな屋外公共空間”も創出。水平に広がるギャラリーは文化や時代が異なる作品群のフラットな展示を可能にするExterior view northwest from Wilshire Boulevard with Tony Smith’s Smoke (1967) at left, David Geffen Galleries at LACMA, art © Tony Smith Estate/Artists Rights Society (ARS), New York, photo © Iwan Baan
    ピーター・ズントーとSOMによる、アメリカの「デイヴィッド・ゲフィン・ギャラリーズ」。ロサンゼルス郡立美術館の新本館。展示空間を約9m持ち上げ、地上レベルに劇場や店舗などがある“新たな屋外公共空間”も創出。水平に広がるギャラリーは文化や時代が異なる作品群のフラットな展示を可能にするExterior view of exhibition level, David Geffen Galleries at LACMA photo © Iwan Baan
    ピーター・ズントーとSOMによる、アメリカの「デイヴィッド・ゲフィン・ギャラリーズ」。ロサンゼルス郡立美術館の新本館。展示空間を約9m持ち上げ、地上レベルに劇場や店舗などがある“新たな屋外公共空間”も創出。水平に広がるギャラリーは文化や時代が異なる作品群のフラットな展示を可能にするClassical Revivals in Europe and America with Pompeo Batoni’s Portrait of Sir Wyndham Knatchbull-Wyndham (1758–59) at right, David Geffen Galleries at LACMA photo © Iwan Baan
    ピーター・ズントーとSOMによる、アメリカの「デイヴィッド・ゲフィン・ギャラリーズ」。ロサンゼルス郡立美術館の新本館。展示空間を約9m持ち上げ、地上レベルに劇場や店舗などがある“新たな屋外公共空間”も創出。水平に広がるギャラリーは文化や時代が異なる作品群のフラットな展示を可能にするShaping Dutch Identity: The Mr. and Mrs. Edward Carter Collection, David Geffen Galleries at LACMA photo © Iwan Baan

    ピーター・ズントーとSOMが設計した、アメリカの「デイヴィッド・ゲフィン・ギャラリーズ」です。
    ロサンゼルス郡立美術館の新本館の計画です。建築家は、展示空間を約9m持ち上げ、地上レベルに劇場や店舗などがある“新たな屋外公共空間”も創出しました。また、水平に広がるギャラリーは文化や時代が異なる作品群のフラットな展示を可能にしています。施設の場所はこちら(Google Map)。


    こちらはリリーステキストの一部です(翻訳:アーキテクチャーフォト / 原文は末尾に掲載)

    ピーター・ズントー設計によるLACMAの新しいデイヴィッド・ゲフィン・ギャラリーズが、4月19日(*2026年)にオープンします

    ウィルシャー・ブールバードにまたがる彫刻的な建物は、世界的な美術コレクションに新たなヴィジョンを提供します

    米国西部で最大かつ最も包括的な美術館として、物理的およびプログラム的な変革を20年にわたり経てきた後、ロサンゼルス郡立美術館(LACMA)は、4月19日(日)に新しいデイヴィッド・ゲフィン・ギャラリーズのリボンカッティングを祝います。著名な建築家ピーター・ズントーによって設計されたこの建物は、LACMAの常設コレクションの拠点であるとともに、現代世界においてグローバルな美術館がどのようなものであり得るかというヴィジョンとして創られました。

    この建物の高く持ち上げられた展示レベルは、ロサンゼルスの広がりある眺望を提供すると同時に、その下に開放的な広場と新たな屋外公共空間を生み出します。この水平的な設計により、LACMAはすべての作品を単一のレベル上で提示することが可能となり、いかなる文化、伝統、または時代にも優先順位を与えることがありません。このインスタレーションにより、キュレーターは従来の分類に縛られることなく独創的で啓示的なつながりを生み出すことが可能となり、来館者はあらかじめ定められた動線から解放され、自らの好奇心に従って、多くの新しい作品に出会い、昔からのお気に入りの作品を新たな視点で見ることができます。

    世界史6,000年にわたる15万5,000点の作品から成るLACMAのコレクションからの新しい作品は、今後も時間をかけて追加され続けるため、来館者はギャラリーズで常に何か新しいものを見ることが期待できます。

    LACMAのCEO兼ウォリス・アネンバーグ・ディレクターであるマイケル・ゴーヴァン(Michael Govan)は、次のように述べました。「4月19日には、待望されてきたデイヴィッド・ゲフィン・ギャラリーズに最初の来館者を迎えることになります。比類なきピーター・ズントーによって設計されたこの常設コレクションの新たな拠点は、何千年にもわたる世界的な芸術交流を含み、今日ロサンゼルスに存在する多くの文化の伝統と革新を照らし出しています。私たちは、デイヴィッド・ゲフィン・ギャラリーズを築いた官民パートナーシップを推進した市民的および慈善的な指導者たち、この美しい建物を創り上げた建築家、そしてこれらの空間に命を吹き込んだ驚くべき仕事を成し遂げたキュレーターとアーティストに対して深い感謝の念をもって、近隣の人々および近くからも遠方からも訪れる来館者を歓迎します」

    • 残り58枚の写真と建築家によるテキスト
    • SHARE
    美術館・博物館ピーター・ズントーSOMアメリカロサンゼルス
    2026.04.20 Mon 15:58
    0
    permalink
    最も注目を集めたトピックス[期間:2026/4/13-4/19]

    SHARE 最も注目を集めたトピックス[期間:2026/4/13-4/19]

    architecture|feature
    最も注目を集めたトピックス
    最も注目を集めたトピックス[期間:2026/4/13-4/19]

    アーキテクチャーフォトで、先週(期間:2026/4/13-4/19)注目を集めたトピックスをまとめてご紹介します。リアルタイムでの一週間の集計は、トップページの「Weekly Top Topics」よりご覧いただけます。(弊サイトでは、作品記事についてSNS広告を活用した再発信を行う場合がありますが、その流入はランキングに影響しないよう設定しています)


    1. 齊藤啓輔 / 1st atelierによる、富山の「南砺の行燈」。縮小する地方の住宅の在り方も模索。空洞化が進んで空き地が増える状況において、地域の祭りの“行燈”を参照した“カーテンウォール”を追加する計画を考案。増築部は中間領域となり“温熱環境装置”としても機能
    2. OMA / 重松象平が空間デザインを手掛けた、東京・墨田区の、江戸東京博物館のリニューアル。菊竹清訓設計の博物館の改修。公共体験の向上を目指し、“アイデンティティの明確化”や“再訪動機の創出”を実現する計画を志向。伝統的な文様や版画に加えて都市の情景などの映像を投影するピロティ空間を考案
    3. 【ap編集長の建築探索】vol.014 ウルトラスタジオ「上原坂道のマンション」
    4. 五十嵐理人 / IGArchitectsによる、沖縄の住宅「重なりの間」。本島の“穏やかな集落”での計画。“気候と生活の間のフレーム”としての在り方も追及し、視覚的な開放とは異なる“開放性”を備えた空間を志向。重なりを生む“壁柱”と暮らしを守る“大屋根”からなる建築を考案
    5. 山田紗子による、TOTOギャラリー・間での建築展「parallel tunes」。大阪・関西万博の休憩所も手がけた建築家の展示。複雑さを増す世界を“多声的”と捉え肯定し、“躍動感のある豊かな環境”の創出を志向。会場の空間を環境と捉えて“複雑な旋律を奏でながら共鳴する”世界を表現
    6. 五十嵐理人 / IGArchitectsと五十嵐友子による、東京の住宅「家の躯体」。生活と仕事の境界が曖昧な夫婦の為に計画。大らかで“何処でも仕事ができる”住居を求め、7枚の床がズレながら重なり多様な役割を担う立体的な一室空間の建築を考案。都心に住む現実と小敷地での可能性を形にする
    7. スミルハン・ラディックによる、チリ・パプドの住宅「Pite House」。プリツカー賞受賞建築家の代表作のひとつで2005年に完成。海岸の岩の多い地形に埋め込まれた家。住まいと風景の関係を探求し、建築を“擁壁とテラスの連なり”として構成して周辺環境の“岩”と結びつける
    8. 隈研吾建築都市設計事務所・BDP・MICAによる、ロンドンの、ナショナル・ギャラリー新館設計コンペの勝利案。200年以上の歴史ある美術館を拡張する計画。都市の重要な二つの広場の間にある敷地において、両者を結びつける新たな屋外空間を備えた建築を提案
    9. 鎌松亮 / note architectsによる、東京・江東区の「梁下の改修」。巨大な“十字梁”のある住戸での計画。“ひとつ梁の下”で家族が共に暮らす風景を求め、間仕切りと仕上げを梁下に止めて“梁の全体性”を保つ空間を考案。其々の部屋は壁仕上げに変化をつけて“場の性格”を分ける
    10. 佐野文彦 / Fumihiko Sano Studioによる、東京・港区の飲食店「Tremolare」。既存が“採石場”の様だった空間に計画。躯体の量塊の関係性や重量感を活かしつつ、自然素材のカウンターや什器で“素材感や軽さ”を導入して全体を構築。個室では弧状の天井と丸い壁面で中心性と一体感を生む
    11. 内野吉貴 / YDS建築研究所による、「熊本の住宅」
    12. 藤本壮介建築設計事務所による、仙台市の「音楽ホール・中心部震災メモリアル拠点複合施設」の基本設計概要書が公開
    13. 2026年日本建築学会賞(作品)を、周防貴之の「屋島山上プロジェクト」、髙橋一平の「霞ケ浦どうぶつとみんなのいえ」、日野雅司・川口有子・仲俊治の「金沢美術工芸大学」が受賞
    14. スミルハン・ラディックによる、チリ・サンティアゴの飲食店「Restaurant Mestizo」。プリツカー賞受賞建築家の代表作のひとつで2006年に完成。都市公園の中にある“ランドスケープの延長”として造られた建築。地平線・シェルター・公共的な所作として同時に現れる屋根が内外の境界を溶融する
    15. 槇総合計画事務所による建築展「Vernacular Humanism / 人と社会と建築と」。槇文彦が創設し60周年を迎えた設計事務所の展覧会。同事務所設計の建築を会場に、未発表作品や進行中計画も含む145作品を紹介
    16. パナソニックが運営する、東京・新橋の“BRIDGEHEAD Shimbashi”を会場に「『現し』を考える。展ver.4.0」が開催。スキーマ建築計画出身の西原将が企画と会場設計を手掛ける“現し”をテーマとした展示。配線の基本から電材の一覧まで収録し、設計の際に便利な“現し配線の手引き”も制作して公開
    17. 藤田時彦 / atelier umiによる、滋賀・高島市の「安曇川の家」。豊かな自然に囲まれた大きな敷地。施主の“森の中に住みたい”という要望を起点とし、“森のような要素”を空間に導入する計画を志向。天井高の変化と“柔らかなアール”の連続で木々の下を歩く様な感覚を生み出す
    18. 干田正浩 / MHAAによる、東京・目黒区の集合住宅「盤桓」。樹木が茂り“心地よい風”が流れる旧家の敷地での計画。木々を残し“風を取込む”建築を求め、内部から考えて“多様な住戸タイプ”を立体的に組合せる構成を考案。緑との補色関係を考慮して朱色のファサードとする
    19. ファラによる、ポルトガル・ポルトの「stand for circo de ideias」。ブックフェアの為の9㎡のスタンド。24の金属部材を三次元のグリッドとして組み立て、周縁部に配した鏡で“複製され拡張される”空間を考案。部材の色彩は公園のクジャクとも予期せぬ対応関係を結ぶ
    20. 長坂常 / スキーマ建築計画による、京都左京区南禅寺草川町の「ブルーボトルコーヒー京都カフェ」

    • 過去の「最も注目を集めたトピックス」はこちらでどうぞ
    • SHARE
    最も注目を集めたトピックス
    2026.04.20 Mon 07:13
    0
    permalink
    2026.4.18Sat
    • ピーター・ズントーとSOMによる、アメリカの「デイヴィッド・ゲフィン・ギャラリーズ」のウォークスルー動画。2026年4月に公開されたもの
    2026.4.22Wed
    • 【ap編集長の建築探索】vol.015 日吉坂事務所「KITAYON KADO」

    Subscribe and Follow

    公式アカウントをフォローして、
    見逃せない建築情報を受け取ろう。

    「建築と社会の関係を視覚化する」メディア、アーキテクチャーフォトの公式アカウントです。
    様々な切り口による複眼的視点で建築に関する情報を最速でお届けします。

    62,026
    • Follow
    87,374
    • Follow
    • Follow
    • Add Friends
    • Subscribe
    • 情報募集/建築・デザイン・アートの情報を随時募集しています。
      More
    • メールマガジン/ メールマガジンで最新の情報を配信しています。
      More

    architecturephoto® News Letter

    メールマガジンでも最新の更新情報を配信中

    • ホーム
    • アーキテクチャーフォトについて
    • アーキテクチャーフォト規約
    • プライバシーポリシー
    • 特定商取引法に関する表記
    • 利用者情報の外部送信について
    • 広告掲載について
    • お問い合わせ/作品投稿

    Copyright © architecturephoto.net.

    • 建築
    • アート
    • カルチャー
    • デザイン
    • ファッション
    • 動画
    • 展覧会
    • コンペ
    • 書籍
    • 建築求人
    • 特集記事
    • 注目情報
    • タグ
    • アーキテクチャーフォト ジョブボード
    • アーキテクチャーフォト・ブック
    • ホーム
    • アーキテクチャーフォトについて
    • アーキテクチャーフォト規約
    • プライバシーポリシー
    • 特定商取引法に関する表記
    • 利用者情報の外部送信について
    • 広告掲載について
    • お問い合わせ/作品投稿

    メールマガジンで最新の情報を配信しています

    この記事をシェア
    タイトルタイトルタイトルタイトルタイトル
    https://architecturephoto.net/permalink

    記事について#architecturephotonetでつぶやいてみましょう。
    有益なコメントは拡散や、サイトでも紹介させていただくこともございます。

    architecturephoto®
    • black
    • gray
    • white

    建築求人情報紹介

    Loading...